mobile_sound +7 (930) 655-55-90

Типовые конструкции и железобетонные изделия. Рабочие чертежи (Серия 3.503-14)

Поделиться:
Поделиться:

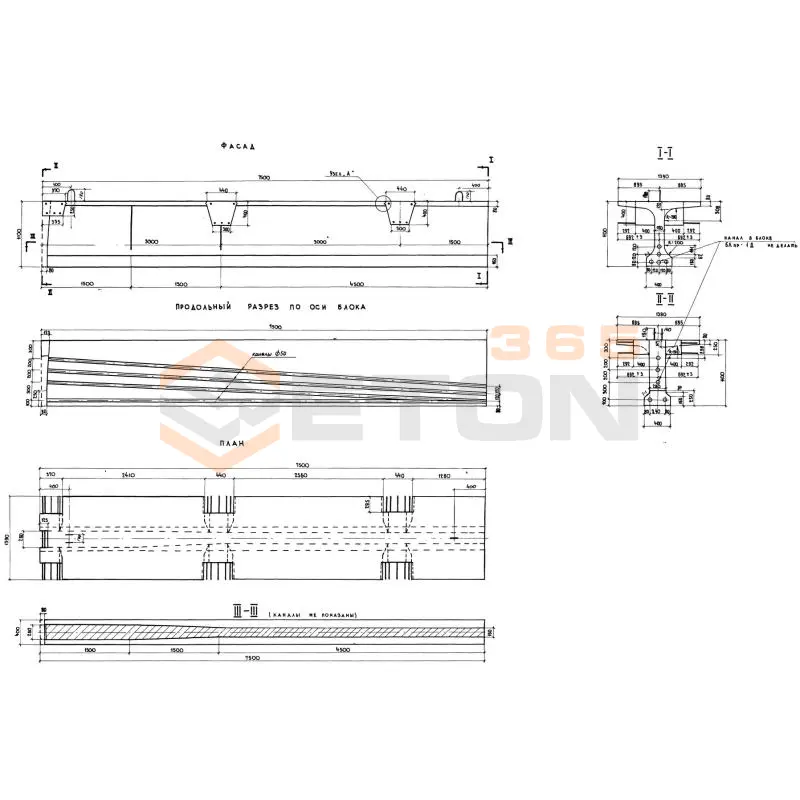
Документ Серия 3.503-14 описывает область применения, номенклатуру и ключевые требования, опираясь на действующие нормы и практику проектирования. В пяти выпусках Серии 3.503-14 собрана вся важная и необходимая информация для производства железобетонных пролетных строений, предназначенных под автодорожные мостовые сооружения. Кроме балок пролетных строений в документе приведены другие конструкции, востребованные для полноценного строительства мостов. Их рабочие чертежи и технические условия производства приведены на страницах Серии вместе с рекомендациями по ведению монтажных работ.

Файлы для скачивания:
picture_as_pdf

2758.pdf

16,474.7 KB

скачать
picture_as_pdf

2759.pdf

26,505.9 KB

скачать
picture_as_pdf

2760.pdf

31,484.3 KB

скачать
picture_as_pdf

2761.pdf

14,582.2 KB

скачать
picture_as_pdf

2762.pdf

22,503.7 KB

скачать
Товары Серия 3.503-14 (48)
Б
Балки подтротуарные Серия 3.503-14
  • Длина 2990 мм.
  • Ширина 320 мм.
  • Высота 120 мм.
  • Вес 250 кг.
  • Объем бетона 0,1 м3
  • Геометрический объем 0,1148 м3
Цена: 8245 руб.
Подробнее
Бу
Балки подтротуарные Серия 3.503-14
  • Длина 2680 мм.
  • Ширина 320 мм.
  • Высота 120 мм.
  • Вес 230 кг.
  • Объем бетона 0,09 м3
  • Геометрический объем 0,1029 м3
Цена: 5900 руб.
Подробнее
Бкр 11,36
Балки Серия 3.503-14
  • Длина 11360 мм.
  • Ширина 1390 мм.
  • Высота 900 мм.
  • Вес 8900 кг.
  • Объем бетона 3,55 м3
  • Геометрический объем 14,2114 м3
Цена: 232736 руб.
Подробнее
Бкр 12
Балки Серия 3.503-14
  • Длина 12000 мм.
  • Ширина 1390 мм.
  • Высота 900 мм.
  • Вес 9400 кг.
  • Объем бетона 3,76 м3
  • Геометрический объем 15,012 м3
Цена: 246503 руб.
Подробнее
Бкр 12
Балки Серия 3.503-14
  • Длина 12000 мм.
  • Ширина 1500 мм.
  • Высота 900 мм.
  • Вес 11800 кг.
  • Объем бетона 4,7 м3
  • Геометрический объем 16,2 м3
Цена: 308129 руб.
Подробнее
Бкр 14,06
Балки Серия 3.503-14
  • Длина 14060 мм.
  • Ширина 1390 мм.
  • Высота 900 мм.
  • Вес 11100 кг.
  • Объем бетона 4,41 м3
  • Геометрический объем 17,5891 м3
Цена: 289117 руб.
Подробнее
Бкр 16,76
Балки Серия 3.503-14
  • Длина 16760 мм.
  • Ширина 1390 мм.
  • Высота 1050 мм.
  • Вес 14200 кг.
  • Объем бетона 5,68 м3
  • Геометрический объем 24,4612 м3
Цена: 372377 руб.
Подробнее
Бкр 15
Балки Серия 3.503-14
  • Длина 15000 мм.
  • Ширина 1500 мм.
  • Высота 900 мм.
  • Вес 14700 кг.
  • Объем бетона 5,87 м3
  • Геометрический объем 20,25 м3
Цена: 384834 руб.
Подробнее
Бкр 15
Балки Серия 3.503-14
  • Длина 15000 мм.
  • Ширина 1390 мм.
  • Высота 900 мм.
  • Вес 11800 кг.
  • Объем бетона 4,7 м3
  • Геометрический объем 18,765 м3
Цена: 308129 руб.
Подробнее
Бкр 18
Балки Серия 3.503-14
  • Длина 18000 мм.
  • Ширина 1500 мм.
  • Высота 1050 мм.
  • Вес 18900 кг.
  • Объем бетона 7,56 м3
  • Геометрический объем 28,35 м3
Цена: 495629 руб.
Подробнее
БЛкр 1
Балки Серия 3.503-14
  • Длина 7500 мм.
  • Ширина 1500 мм.
  • Высота 1150 мм.
  • Вес 9500 кг.
  • Объем бетона 3,78 м3
  • Геометрический объем 12,9375 м3
Цена: 311661 руб.
Подробнее
Бкр 18
Балки Серия 3.503-14
  • Длина 18000 мм.
  • Ширина 1390 мм.
  • Высота 1050 мм.
  • Вес 15300 кг.
  • Объем бетона 6,11 м3
  • Геометрический объем 26,271 м3
Цена: 400568 руб.
Подробнее
БЛкр 1 д
Балки Серия 3.503-14
  • Длина 7500 мм.
  • Ширина 1390 мм.
  • Высота 1150 мм.
  • Вес 7500 кг.
  • Объем бетона 3,01 м3
  • Геометрический объем 11,9887 м3
Цена: 248175 руб.
Подробнее
БЛкр 1 тн
Балки Серия 3.503-14
  • Длина 7500 мм.
  • Ширина 1500 мм.
  • Высота 1150 мм.
  • Вес 9500 кг.
  • Объем бетона 3,78 м3
  • Геометрический объем 12,9375 м3
Цена: 311661 руб.
Подробнее
БЛкр 2
Балки Серия 3.503-14
  • Длина 3000 мм.
  • Ширина 1300 мм.
  • Высота 1150 мм.
  • Вес 3600 кг.
  • Объем бетона 1,43 м3
  • Геометрический объем 4,485 м3
Цена: 117904 руб.
Подробнее
БЛкр 2 д
Балки Серия 3.503-14
  • Длина 3000 мм.
  • Ширина 1390 мм.
  • Высота 1100 мм.
  • Вес 2800 кг.
  • Объем бетона 1,13 м3
  • Геометрический объем 4,587 м3
Цена: 93169 руб.
Подробнее
БЛкр 3
Балки Серия 3.503-14
  • Длина 7500 мм.
  • Ширина 1500 мм.
  • Высота 1150 мм.
  • Вес 9500 кг.
  • Объем бетона 3,78 м3
  • Геометрический объем 12,9375 м3
Цена: 311661 руб.
Подробнее
БЛкр 4
Балки Серия 3.503-14
  • Длина 6000 мм.
  • Ширина 1300 мм.
  • Высота 1150 мм.
  • Вес 7200 кг.
  • Объем бетона 2,87 м3
  • Геометрический объем 8,97 м3
Цена: 236632 руб.
Подробнее
БЛкр 3 д
Балки Серия 3.503-14
  • Длина 7500 мм.
  • Ширина 1390 мм.
  • Высота 1150 мм.
  • Вес 7500 кг.
  • Объем бетона 3,01 м3
  • Геометрический объем 11,9887 м3
Цена: 248175 руб.
Подробнее
БЛкр 3 тн
Балки Серия 3.503-14
  • Длина 7500 мм.
  • Ширина 1500 мм.
  • Высота 1150 мм.
  • Вес 9500 кг.
  • Объем бетона 3,78 м3
  • Геометрический объем 12,9375 м3
Цена: 311661 руб.
Подробнее
БЛкр 4 д
Балки Серия 3.503-14
  • Длина 6000 мм.
  • Ширина 1390 мм.
  • Высота 1100 мм.
  • Вес 5700 кг.
  • Объем бетона 2,26 м3
  • Геометрический объем 9,174 м3
Цена: 186337 руб.
Подробнее
БЛпр 1
Балки Серия 3.503-14
  • Длина 7500 мм.
  • Ширина 1300 мм.
  • Высота 1150 мм.
  • Вес 8900 кг.
  • Объем бетона 3,55 м3
  • Геометрический объем 11,2125 м3
Цена: 292698 руб.
Подробнее
БЛпр 3
Балки Серия 3.503-14
  • Длина 7500 мм.
  • Ширина 1300 мм.
  • Высота 1150 мм.
  • Вес 8900 кг.
  • Объем бетона 3,55 м3
  • Геометрический объем 11,2125 м3
Цена: 292698 руб.
Подробнее
БЛпр 3 д
Балки Серия 3.503-14
  • Длина 7500 мм.
  • Ширина 1390 мм.
  • Высота 1100 мм.
  • Вес 7700 кг.
  • Объем бетона 3,05 м3
  • Геометрический объем 11,4675 м3
Цена: 251473 руб.
Подробнее
БЛпр 1 д
Балки Серия 3.503-14
  • Длина 7500 мм.
  • Ширина 1390 мм.
  • Высота 1100 мм.
  • Вес 7700 кг.
  • Объем бетона 3,05 м3
  • Геометрический объем 11,4675 м3
Цена: 251473 руб.
Подробнее
БЛпр 2 д
Балки Серия 3.503-14
  • Длина 3000 мм.
  • Ширина 1390 мм.
  • Высота 1100 мм.
  • Вес 2900 кг.
  • Объем бетона 1,15 м3
  • Геометрический объем 4,587 м3
Цена: 94818 руб.
Подробнее
БЛпр 2
Балки Серия 3.503-14
  • Длина 3000 мм.
  • Ширина 1300 мм.
  • Высота 1150 мм.
  • Вес 3400 кг.
  • Объем бетона 1,35 м3
  • Геометрический объем 4,485 м3
Цена: 111308 руб.
Подробнее
БЛпр 4
Балки Серия 3.503-14
  • Длина 6000 мм.
  • Ширина 1300 мм.
  • Высота 1150 мм.
  • Вес 6800 кг.
  • Объем бетона 2,69 м3
  • Геометрический объем 8,97 м3
Цена: 221791 руб.
Подробнее
Бпр 12
Балки Серия 3.503-14
  • Длина 12000 мм.
  • Ширина 1390 мм.
  • Высота 900 мм.
  • Вес 9600 кг.
  • Объем бетона 3,85 м3
  • Геометрический объем 15,012 м3
Цена: 252404 руб.
Подробнее
БЛпр 4 д
Балки Серия 3.503-14
  • Длина 6000 мм.
  • Ширина 1390 мм.
  • Высота 1100 мм.
  • Вес 5800 кг.
  • Объем бетона 2,3 м3
  • Геометрический объем 9,174 м3
Цена: 189635 руб.
Подробнее
Бпр 11,36
Балки Серия 3.503-14
  • Длина 11360 мм.
  • Ширина 1390 мм.
  • Высота 900 мм.
  • Вес 9100 кг.
  • Объем бетона 3,64 м3
  • Геометрический объем 14,2114 м3
Цена: 238636 руб.
Подробнее
Бпр 12
Балки Серия 3.503-14
  • Длина 12000 мм.
  • Ширина 1300 мм.
  • Высота 900 мм.
  • Вес 10900 кг.
  • Объем бетона 4,34 м3
  • Геометрический объем 14,04 м3
Цена: 284528 руб.
Подробнее
Бпр 14,06
Балки Серия 3.503-14
  • Длина 14060 мм.
  • Ширина 1390 мм.
  • Высота 900 мм.
  • Вес 11300 кг.
  • Объем бетона 4,51 м3
  • Геометрический объем 17,5891 м3
Цена: 295673 руб.
Подробнее
Бпр 15
Балки Серия 3.503-14
  • Длина 15000 мм.
  • Ширина 1390 мм.
  • Высота 900 мм.
  • Вес 12100 кг.
  • Объем бетона 4,81 м3
  • Геометрический объем 18,765 м3
Цена: 315341 руб.
Подробнее
Бпр 15
Балки Серия 3.503-14
  • Длина 15000 мм.
  • Ширина 1300 мм.
  • Высота 900 мм.
  • Вес 13600 кг.
  • Объем бетона 5,44 м3
  • Геометрический объем 17,55 м3
Цена: 356643 руб.
Подробнее
Бпр 16,76
Балки Серия 3.503-14
  • Длина 16760 мм.
  • Ширина 1390 мм.
  • Высота 1050 мм.
  • Вес 14500 кг.
  • Объем бетона 5,8 м3
  • Геометрический объем 24,4612 м3
Цена: 380244 руб.
Подробнее
Бпр 18
Балки Серия 3.503-14
  • Длина 18000 мм.
  • Ширина 1300 мм.
  • Высота 1050 мм.
  • Вес 17600 кг.
  • Объем бетона 7,06 м3
  • Геометрический объем 24,57 м3
Цена: 462849 руб.
Подробнее
Бпр 18
Балки Серия 3.503-14
  • Длина 18000 мм.
  • Ширина 1390 мм.
  • Высота 1050 мм.
  • Вес 15600 кг.
  • Объем бетона 6,23 м3
  • Геометрический объем 26,271 м3
Цена: 408435 руб.
Подробнее
ПО
Блоки перильных ограждений Серия 3.503-14
  • Длина 2980 мм.
  • Ширина 1000 мм.
  • Высота 120 мм.
  • Вес 2500 кг.
  • Объем бетона 0,1 м3
  • Геометрический объем 0,3576 м3
Цена: 4850 руб.
Подробнее
ПОу
Блоки перильных ограждений Серия 3.503-14
  • Длина 2680 мм.
  • Ширина 1000 мм.
  • Высота 120 мм.
  • Вес 2300 кг.
  • Объем бетона 0,09 м3
  • Геометрический объем 0,3216 м3
Цена: 4365 руб.
Подробнее
ПТ 1 у
Блоки тротуарные Серия 3.503-14
  • Длина 2680 мм.
  • Ширина 1400 мм.
  • Высота 580 мм.
  • Вес 1400 кг.
  • Объем бетона 0,56 м3
  • Геометрический объем 2,1762 м3
Цена: 21728 руб.
Подробнее
ПТ 1
Блоки тротуарные Серия 3.503-14
  • Длина 2990 мм.
  • Ширина 1400 мм.
  • Высота 580 мм.
  • Вес 1550 кг.
  • Объем бетона 0,62 м3
  • Геометрический объем 2,4279 м3
Цена: 24056 руб.
Подробнее
ПТ 2 у
Блоки тротуарные Серия 3.503-14
  • Длина 2680 мм.
  • Ширина 2150 мм.
  • Высота 580 мм.
  • Вес 1800 кг.
  • Объем бетона 0,72 м3
  • Геометрический объем 3,342 м3
Цена: 27936 руб.
Подробнее
ПТ 2
Блоки тротуарные Серия 3.503-14
  • Длина 2990 мм.
  • Ширина 2150 мм.
  • Высота 580 мм.
  • Вес 2000 кг.
  • Объем бетона 0,8 м3
  • Геометрический объем 3,7285 м3
Цена: 31040 руб.
Подробнее
Т 1
Блоки тротуарные Серия 3.503-14
  • Длина 2990 мм.
  • Ширина 1250 мм.
  • Высота 420 мм.
  • Вес 1300 кг.
  • Объем бетона 0,46 м3
  • Геометрический объем 1,5697 м3
Цена: 17848 руб.
Подробнее
Т 1 у
Блоки тротуарные Серия 3.503-14
  • Длина 2680 мм.
  • Ширина 1250 мм.
  • Высота 420 мм.
  • Вес 1030 кг.
  • Объем бетона 0,41 м3
  • Геометрический объем 1,407 м3
Цена: 15908 руб.
Подробнее
Т 2
Блоки тротуарные Серия 3.503-14
  • Длина 2990 мм.
  • Ширина 1750 мм.
  • Высота 420 мм.
  • Вес 1500 кг.
  • Объем бетона 0,58 м3
  • Геометрический объем 2,1976 м3
Цена: 22504 руб.
Подробнее
Т 2 у
Блоки тротуарные Серия 3.503-14
  • Длина 2680 мм.
  • Ширина 1750 мм.
  • Высота 420 мм.
  • Вес 1400 кг.
  • Объем бетона 0,52 м3
  • Геометрический объем 1,9698 м3
Цена: 20176 руб.
Подробнее

Уведомление о файлах cookie

Мы используем файлы cookie для улучшения вашего опыта просмотра и анализа трафика. Нажимая "Принять все", вы соглашаетесь с нашей политикой конфиденциальности и политикой обработки файлов cookie.

MAX Дзен Телеграм Вконтакте vk