mobile_sound +7 (930) 655-55-90

Железобетонные опоры линий электропередачи. Рабочие чертежи (Серия 3.503.1-100)

Поделиться:
Поделиться:

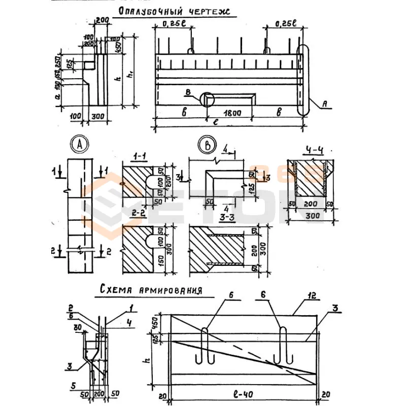
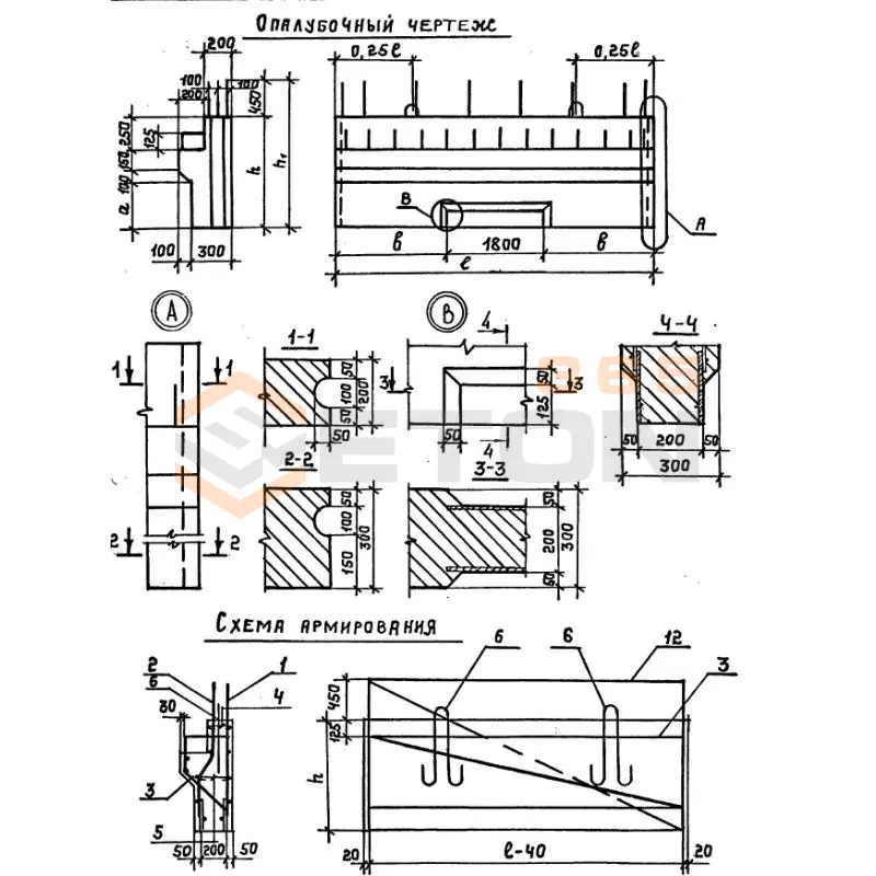
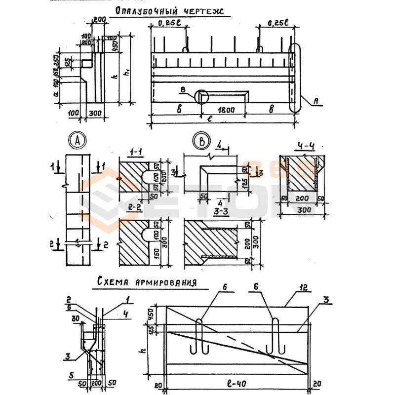
Документ Серия 3.503.1-100 описывает область применения, номенклатуру и ключевые требования, опираясь на действующие нормы и практику проектирования. Серия 3.503.1-100 разрабатывалась проектным институтом СОЮЗПРОЕКТ и была введён в действие в действие с июля 1992 года после утверждения Минтрансстроем СССР. В составе регламента пять выпусков, которые максимально детально описывают все тонкости и нюансы производства унифицированных стоечных опор, используемых при строительстве автодорожных мостов. Конструкции отличаются высокой прочностью и благодаря входящим в состав материалам могут применяться как в обычных, так и северных условиях.

Файлы для скачивания:
picture_as_pdf

1817.pdf

22,648.0 KB

скачать
picture_as_pdf

1818.pdf

14,260.5 KB

скачать
picture_as_pdf

1819.pdf

29,117.0 KB

скачать
picture_as_pdf

1820.pdf

40,328.1 KB

скачать
picture_as_pdf

1821.pdf

23,545.0 KB

скачать
Товары Серия 3.503.1-100 (60)
БШ 10-19 тАIII
Блоки шкафной стенки Серия 3.503.1-100
  • Длина 980 мм.
  • Ширина 200 мм.
  • Высота 1880 мм.
  • Вес 900 кг.
  • Объем бетона 0,4 м3
  • Геометрический объем 0,3685 м3
Цена: 17460 руб.
Подробнее
БШ 10-17 тАIII
Блоки шкафной стенки Серия 3.503.1-100
  • Длина 980 мм.
  • Ширина 200 мм.
  • Высота 1680 мм.
  • Вес 800 кг.
  • Объем бетона 0,3 м3
  • Геометрический объем 0,3293 м3
Цена: 13095 руб.
Подробнее
БШ 32-10 тАII
Блоки шкафной стенки Серия 3.503.1-100
  • Длина 3240 мм.
  • Ширина 300 мм.
  • Высота 1000 мм.
  • Вес 2300 кг.
  • Объем бетона 0,9 м3
  • Геометрический объем 0,972 м3
Цена: 39285 руб.
Подробнее
БШ 32-10 тАIII
Блоки шкафной стенки Серия 3.503.1-100
  • Длина 3240 мм.
  • Ширина 300 мм.
  • Высота 1000 мм.
  • Вес 2300 кг.
  • Объем бетона 0,9 м3
  • Геометрический объем 0,972 м3
Цена: 39285 руб.
Подробнее
БШ 32-12 тАII
Блоки шкафной стенки Серия 3.503.1-100
  • Длина 3240 мм.
  • Ширина 300 мм.
  • Высота 1150 мм.
  • Вес 2700 кг.
  • Объем бетона 1,1 м3
  • Геометрический объем 1,1178 м3
Цена: 48015 руб.
Подробнее
БШ 32-12 тАIII
Блоки шкафной стенки Серия 3.503.1-100
  • Длина 3240 мм.
  • Ширина 300 мм.
  • Высота 1150 мм.
  • Вес 2700 кг.
  • Объем бетона 1,1 м3
  • Геометрический объем 1,1178 м3
Цена: 48015 руб.
Подробнее
БШ 32-15 тАIII
Блоки шкафной стенки Серия 3.503.1-100
  • Длина 3240 мм.
  • Ширина 300 мм.
  • Высота 1450 мм.
  • Вес 3400 кг.
  • Объем бетона 1,4 м3
  • Геометрический объем 1,4094 м3
Цена: 61110 руб.
Подробнее
БШ 32-15 тАII
Блоки шкафной стенки Серия 3.503.1-100
  • Длина 3240 мм.
  • Ширина 300 мм.
  • Высота 1450 мм.
  • Вес 3400 кг.
  • Объем бетона 1,4 м3
  • Геометрический объем 1,4094 м3
Цена: 61110 руб.
Подробнее
БШ 32-17 тАII
Блоки шкафной стенки Серия 3.503.1-100
  • Длина 3240 мм.
  • Ширина 300 мм.
  • Высота 1650 мм.
  • Вес 3900 кг.
  • Объем бетона 1,6 м3
  • Геометрический объем 1,6038 м3
Цена: 69840 руб.
Подробнее
БШ 32-9 тАII
Блоки шкафной стенки Серия 3.503.1-100
  • Длина 3240 мм.
  • Ширина 300 мм.
  • Высота 850 мм.
  • Вес 2000 кг.
  • Объем бетона 0,8 м3
  • Геометрический объем 0,8262 м3
Цена: 34920 руб.
Подробнее
БШ 32-17 тАIII
Блоки шкафной стенки Серия 3.503.1-100
  • Длина 3240 мм.
  • Ширина 300 мм.
  • Высота 1650 мм.
  • Вес 3900 кг.
  • Объем бетона 1,6 м3
  • Геометрический объем 1,6038 м3
Цена: 69840 руб.
Подробнее
БШ 35-10 тАIII
Блоки шкафной стенки Серия 3.503.1-100
  • Длина 3480 мм.
  • Ширина 300 мм.
  • Высота 1000 мм.
  • Вес 2500 кг.
  • Объем бетона 1 м3
  • Геометрический объем 1,044 м3
Цена: 43650 руб.
Подробнее
БШ 35-10 тАII
Блоки шкафной стенки Серия 3.503.1-100
  • Длина 3480 мм.
  • Ширина 300 мм.
  • Высота 1000 мм.
  • Вес 2500 кг.
  • Объем бетона 1 м3
  • Геометрический объем 1,044 м3
Цена: 43650 руб.
Подробнее
БШ 32-9 тАIII
Блоки шкафной стенки Серия 3.503.1-100
  • Длина 3240 мм.
  • Ширина 300 мм.
  • Высота 850 мм.
  • Вес 2000 кг.
  • Объем бетона 0,8 м3
  • Геометрический объем 0,8262 м3
Цена: 34920 руб.
Подробнее
БШ 35-12 тАII
Блоки шкафной стенки Серия 3.503.1-100
  • Длина 3480 мм.
  • Ширина 300 мм.
  • Высота 1150 мм.
  • Вес 2900 кг.
  • Объем бетона 1,2 м3
  • Геометрический объем 1,2006 м3
Цена: 52380 руб.
Подробнее
БШ 35-12 тАIII
Блоки шкафной стенки Серия 3.503.1-100
  • Длина 3480 мм.
  • Ширина 300 мм.
  • Высота 1150 мм.
  • Вес 2900 кг.
  • Объем бетона 1,2 м3
  • Геометрический объем 1,2006 м3
Цена: 52380 руб.
Подробнее
БШ 35-15 тАII
Блоки шкафной стенки Серия 3.503.1-100
  • Длина 3480 мм.
  • Ширина 300 мм.
  • Высота 1450 мм.
  • Вес 3700 кг.
  • Объем бетона 1,5 м3
  • Геометрический объем 1,5138 м3
Цена: 65475 руб.
Подробнее
БШ 35-15 тАIII
Блоки шкафной стенки Серия 3.503.1-100
  • Длина 3480 мм.
  • Ширина 300 мм.
  • Высота 1450 мм.
  • Вес 3700 кг.
  • Объем бетона 1,5 м3
  • Геометрический объем 1,5138 м3
Цена: 65475 руб.
Подробнее
БШ 35-17 тАIII
Блоки шкафной стенки Серия 3.503.1-100
  • Длина 3480 мм.
  • Ширина 300 мм.
  • Высота 1650 мм.
  • Вес 4200 кг.
  • Объем бетона 1,7 м3
  • Геометрический объем 1,7226 м3
Цена: 74205 руб.
Подробнее
БШ 35-17 тАII
Блоки шкафной стенки Серия 3.503.1-100
  • Длина 3480 мм.
  • Ширина 300 мм.
  • Высота 1650 мм.
  • Вес 4200 кг.
  • Объем бетона 1,7 м3
  • Геометрический объем 1,7226 м3
Цена: 74205 руб.
Подробнее
БШ 35-9 тАIII
Блоки шкафной стенки Серия 3.503.1-100
  • Длина 3480 мм.
  • Ширина 300 мм.
  • Высота 850 мм.
  • Вес 2100 кг.
  • Объем бетона 0,8 м3
  • Геометрический объем 0,8874 м3
Цена: 34920 руб.
Подробнее
БШ 37-10 тАIII
Блоки шкафной стенки Серия 3.503.1-100
  • Длина 3730 мм.
  • Ширина 300 мм.
  • Высота 1000 мм.
  • Вес 2700 кг.
  • Объем бетона 1,1 м3
  • Геометрический объем 1,119 м3
Цена: 48015 руб.
Подробнее
БШ 35-9 тАII
Блоки шкафной стенки Серия 3.503.1-100
  • Длина 3480 мм.
  • Ширина 300 мм.
  • Высота 850 мм.
  • Вес 2100 кг.
  • Объем бетона 0,8 м3
  • Геометрический объем 0,8874 м3
Цена: 34920 руб.
Подробнее
БШ 37-12 тАIII
Блоки шкафной стенки Серия 3.503.1-100
  • Длина 3730 мм.
  • Ширина 300 мм.
  • Высота 1150 мм.
  • Вес 3100 кг.
  • Объем бетона 1,2 м3
  • Геометрический объем 1,2869 м3
Цена: 52380 руб.
Подробнее
БШ 37-10 тАII
Блоки шкафной стенки Серия 3.503.1-100
  • Длина 3730 мм.
  • Ширина 300 мм.
  • Высота 1000 мм.
  • Вес 2700 кг.
  • Объем бетона 1,1 м3
  • Геометрический объем 1,119 м3
Цена: 48015 руб.
Подробнее
БШ 37-12 тАII
Блоки шкафной стенки Серия 3.503.1-100
  • Длина 3730 мм.
  • Ширина 300 мм.
  • Высота 1150 мм.
  • Вес 3100 кг.
  • Объем бетона 1,2 м3
  • Геометрический объем 1,2869 м3
Цена: 52380 руб.
Подробнее
БШ 37-13 тАII
Блоки шкафной стенки Серия 3.503.1-100
  • Длина 3730 мм.
  • Ширина 300 мм.
  • Высота 1300 мм.
  • Вес 3500 кг.
  • Объем бетона 1,4 м3
  • Геометрический объем 1,4547 м3
Цена: 61110 руб.
Подробнее
БШ 37-13 тАIII
Блоки шкафной стенки Серия 3.503.1-100
  • Длина 3730 мм.
  • Ширина 300 мм.
  • Высота 1300 мм.
  • Вес 3500 кг.
  • Объем бетона 1,4 м3
  • Геометрический объем 1,4547 м3
Цена: 61110 руб.
Подробнее
БШ 37-16 тАII
Блоки шкафной стенки Серия 3.503.1-100
  • Длина 3730 мм.
  • Ширина 300 мм.
  • Высота 1600 мм.
  • Вес 4400 кг.
  • Объем бетона 1,7 м3
  • Геометрический объем 1,7904 м3
Цена: 74205 руб.
Подробнее
БШ 37-18 тАII
Блоки шкафной стенки Серия 3.503.1-100
  • Длина 3730 мм.
  • Ширина 300 мм.
  • Высота 1800 мм.
  • Вес 4900 кг.
  • Объем бетона 2 м3
  • Геометрический объем 2,0142 м3
Цена: 87300 руб.
Подробнее
БШ 37-16 тАIII
Блоки шкафной стенки Серия 3.503.1-100
  • Длина 3730 мм.
  • Ширина 300 мм.
  • Высота 1600 мм.
  • Вес 4400 кг.
  • Объем бетона 1,7 м3
  • Геометрический объем 1,7904 м3
Цена: 74205 руб.
Подробнее
БШ 37-18 тАIII
Блоки шкафной стенки Серия 3.503.1-100
  • Длина 3730 мм.
  • Ширина 300 мм.
  • Высота 1800 мм.
  • Вес 4900 кг.
  • Объем бетона 2 м3
  • Геометрический объем 2,0142 м3
Цена: 87300 руб.
Подробнее
БШ 40-10 тАII
Блоки шкафной стенки Серия 3.503.1-100
  • Длина 3990 мм.
  • Ширина 300 мм.
  • Высота 1000 мм.
  • Вес 2900 кг.
  • Объем бетона 1,2 м3
  • Геометрический объем 1,197 м3
Цена: 52380 руб.
Подробнее
БШ 40-12 тАII
Блоки шкафной стенки Серия 3.503.1-100
  • Длина 3990 мм.
  • Ширина 300 мм.
  • Высота 1150 мм.
  • Вес 3300 кг.
  • Объем бетона 1,3 м3
  • Геометрический объем 1,3765 м3
Цена: 56745 руб.
Подробнее
БШ 40-10 тАIII
Блоки шкафной стенки Серия 3.503.1-100
  • Длина 3990 мм.
  • Ширина 300 мм.
  • Высота 1000 мм.
  • Вес 2900 кг.
  • Объем бетона 1,2 м3
  • Геометрический объем 1,197 м3
Цена: 52380 руб.
Подробнее
БШ 40-12 тАIII
Блоки шкафной стенки Серия 3.503.1-100
  • Длина 3990 мм.
  • Ширина 300 мм.
  • Высота 1150 мм.
  • Вес 3300 кг.
  • Объем бетона 1,3 м3
  • Геометрический объем 1,3765 м3
Цена: 56745 руб.
Подробнее
БШ 40-13 тАIII
Блоки шкафной стенки Серия 3.503.1-100
  • Длина 3990 мм.
  • Ширина 300 мм.
  • Высота 1300 мм.
  • Вес 3800 кг.
  • Объем бетона 3,8 м3
  • Геометрический объем 1,5561 м3
Цена: 165870 руб.
Подробнее
БШ 40-13 тАII
Блоки шкафной стенки Серия 3.503.1-100
  • Длина 3990 мм.
  • Ширина 300 мм.
  • Высота 1300 мм.
  • Вес 3800 кг.
  • Объем бетона 3,8 м3
  • Геометрический объем 1,5561 м3
Цена: 165870 руб.
Подробнее
БШ 40-16 тАIII
Блоки шкафной стенки Серия 3.503.1-100
  • Длина 3990 мм.
  • Ширина 300 мм.
  • Высота 1600 мм.
  • Вес 4700 кг.
  • Объем бетона 1,9 м3
  • Геометрический объем 1,9152 м3
Цена: 82935 руб.
Подробнее
БШ 40-15 тАII
Блоки шкафной стенки Серия 3.503.1-100
  • Длина 3990 мм.
  • Ширина 300 мм.
  • Высота 1450 мм.
  • Вес 4200 кг.
  • Объем бетона 1,7 м3
  • Геометрический объем 1,7356 м3
Цена: 74205 руб.
Подробнее
БШ 40-15 тАIII
Блоки шкафной стенки Серия 3.503.1-100
  • Длина 3990 мм.
  • Ширина 300 мм.
  • Высота 1450 мм.
  • Вес 4200 кг.
  • Объем бетона 1,7 м3
  • Геометрический объем 1,7356 м3
Цена: 74205 руб.
Подробнее
БШ 40-17 тАII
Блоки шкафной стенки Серия 3.503.1-100
  • Длина 3990 мм.
  • Ширина 300 мм.
  • Высота 1650 мм.
  • Вес 4900 кг.
  • Объем бетона 2 м3
  • Геометрический объем 1,975 м3
Цена: 87300 руб.
Подробнее
БШ 40-17 тАIII
Блоки шкафной стенки Серия 3.503.1-100
  • Длина 3990 мм.
  • Ширина 300 мм.
  • Высота 1650 мм.
  • Вес 4900 кг.
  • Объем бетона 2 м3
  • Геометрический объем 1,975 м3
Цена: 87300 руб.
Подробнее
БШ 40-16 тАII
Блоки шкафной стенки Серия 3.503.1-100
  • Длина 3990 мм.
  • Ширина 300 мм.
  • Высота 1600 мм.
  • Вес 4700 кг.
  • Объем бетона 1,9 м3
  • Геометрический объем 1,9152 м3
Цена: 82935 руб.
Подробнее
БШ 40-18 тАII
Блоки шкафной стенки Серия 3.503.1-100
  • Длина 3990 мм.
  • Ширина 300 мм.
  • Высота 1800 мм.
  • Вес 5300 кг.
  • Объем бетона 2,1 м3
  • Геометрический объем 2,1546 м3
Цена: 91665 руб.
Подробнее
БШ 40-18 тАIII
Блоки шкафной стенки Серия 3.503.1-100
  • Длина 3990 мм.
  • Ширина 300 мм.
  • Высота 1800 мм.
  • Вес 5300 кг.
  • Объем бетона 2,1 м3
  • Геометрический объем 2,1546 м3
Цена: 91665 руб.
Подробнее
БШ 40-9 тАIII
Блоки шкафной стенки Серия 3.503.1-100
  • Длина 3990 мм.
  • Ширина 300 мм.
  • Высота 850 мм.
  • Вес 2400 кг.
  • Объем бетона 1 м3
  • Геометрический объем 1,0174 м3
Цена: 43650 руб.
Подробнее
БШ 40-9 тАII
Блоки шкафной стенки Серия 3.503.1-100
  • Длина 3990 мм.
  • Ширина 300 мм.
  • Высота 850 мм.
  • Вес 2400 кг.
  • Объем бетона 1 м3
  • Геометрический объем 1,0174 м3
Цена: 43650 руб.
Подробнее
С 10-60-14 тАII
Стойки Серия 3.503.1-100
  • Длина 10000 мм.
  • Ширина 600 мм.
  • Высота 600 мм.
  • Вес 7000 кг.
  • Объем бетона 2,8 м3
  • Геометрический объем 3,6 м3
Цена: 57036 руб.
Подробнее
С 10-60-14 тАIII
Стойки Серия 3.503.1-100
  • Длина 10000 мм.
  • Ширина 600 мм.
  • Высота 600 мм.
  • Вес 7000 кг.
  • Объем бетона 2,8 м3
  • Геометрический объем 3,6 м3
Цена: 57036 руб.
Подробнее
С 10-60-20 тАII
Стойки Серия 3.503.1-100
  • Длина 10000 мм.
  • Ширина 600 мм.
  • Высота 600 мм.
  • Вес 7000 кг.
  • Объем бетона 2,8 м3
  • Геометрический объем 3,6 м3
Цена: 57036 руб.
Подробнее
С 10-60-20 тАIII
Стойки Серия 3.503.1-100
  • Длина 10000 мм.
  • Ширина 600 мм.
  • Высота 600 мм.
  • Вес 7000 кг.
  • Объем бетона 2,8 м3
  • Геометрический объем 3,6 м3
Цена: 57036 руб.
Подробнее
С 10-60-24 тАII
Стойки Серия 3.503.1-100
  • Длина 10000 мм.
  • Ширина 600 мм.
  • Высота 600 мм.
  • Вес 7000 кг.
  • Объем бетона 2,8 м3
  • Геометрический объем 3,6 м3
Цена: 57036 руб.
Подробнее
С 10-60-24 тАIII
Стойки Серия 3.503.1-100
  • Длина 10000 мм.
  • Ширина 600 мм.
  • Высота 600 мм.
  • Вес 7000 кг.
  • Объем бетона 2,8 м3
  • Геометрический объем 3,6 м3
Цена: 57036 руб.
Подробнее
С 10-80-14 тАII
Стойки Серия 3.503.1-100
  • Длина 10000 мм.
  • Ширина 800 мм.
  • Высота 800 мм.
  • Вес 12500 кг.
  • Объем бетона 5 м3
  • Геометрический объем 6,4 м3
Цена: 101850 руб.
Подробнее
С 10-80-20 тАII
Стойки Серия 3.503.1-100
  • Длина 10000 мм.
  • Ширина 800 мм.
  • Высота 800 мм.
  • Вес 12500 кг.
  • Объем бетона 5 м3
  • Геометрический объем 6,4 м3
Цена: 101850 руб.
Подробнее
С 10-80-14 тАIII
Стойки Серия 3.503.1-100
  • Длина 10000 мм.
  • Ширина 800 мм.
  • Высота 800 мм.
  • Вес 12500 кг.
  • Объем бетона 5 м3
  • Геометрический объем 6,4 м3
Цена: 101850 руб.
Подробнее
С 10-80-20 тАIII
Стойки Серия 3.503.1-100
  • Длина 10000 мм.
  • Ширина 800 мм.
  • Высота 800 мм.
  • Вес 12500 кг.
  • Объем бетона 5 м3
  • Геометрический объем 6,4 м3
Цена: 101850 руб.
Подробнее
С 10-80-24 тАII
Стойки Серия 3.503.1-100
  • Длина 10000 мм.
  • Ширина 800 мм.
  • Высота 800 мм.
  • Вес 12500 кг.
  • Объем бетона 5 м3
  • Геометрический объем 6,4 м3
Цена: 101850 руб.
Подробнее
С 10-80-28 тАII
Стойки Серия 3.503.1-100
  • Длина 10000 мм.
  • Ширина 800 мм.
  • Высота 800 мм.
  • Вес 12500 кг.
  • Объем бетона 5 м3
  • Геометрический объем 6,4 м3
Цена: 101850 руб.
Подробнее

Уведомление о файлах cookie

Мы используем файлы cookie для улучшения вашего опыта просмотра и анализа трафика. Нажимая "Принять все", вы соглашаетесь с нашей политикой конфиденциальности и политикой обработки файлов cookie.

MAX Дзен Телеграм Вконтакте vk