mobile_sound +7 (930) 655-55-90

Железобетонные опоры линий электропередачи. Рабочие чертежи (Серия ХТР 1-1)

Поделиться:
Поделиться:

Документ Серия ХТР 1-1 описывает область применения, номенклатуру и ключевые требования, опираясь на действующие нормы и практику проектирования. Проектным институтом ПРОМСТРОЙПРОЕКТ была разработана Серия ХТР 1-1, введенная в действие после утверждения Госстроем СССР, начиная с февраля 1967 года. Проектирование осуществлялось совместно с НИИЖБ. Регламент определяет и регламентирует рабочие чертежи и описание организации производственного процесса для изготовления элементов каналов из железобетона, имеющих высоту 150, 180 и 210 сантиметров.

Файлы для скачивания:
picture_as_pdf

5279.pdf

4,916.5 KB

скачать
Товары Серия ХТР 1-1 (51)
Л 28д (ХТР 1-1)
Мотки Серия ХТР 1-1
  • Длина 570 мм.
  • Ширина 2040 мм.
  • Высота 1320 мм.
  • Вес 800 кг.
  • Объем бетона 0,32 м3
  • Геометрический объем 1,5349 м3
Цена: 9312 руб.
Подробнее
Л 28 (ХТР 1-1)
Мотки Серия ХТР 1-1
  • Длина 2970 мм.
  • Ширина 2040 мм.
  • Высота 1320 мм.
  • Вес 4250 кг.
  • Объем бетона 1,7 м3
  • Геометрический объем 7,9976 м3
Цена: 49470 руб.
Подробнее
Л 29 (ХТР 1-1)
Мотки Серия ХТР 1-1
  • Длина 2970 мм.
  • Ширина 2040 мм.
  • Высота 740 мм.
  • Вес 2950 кг.
  • Объем бетона 1,18 м3
  • Геометрический объем 4,4835 м3
Цена: 34338 руб.
Подробнее
Л 29д (ХТР 1-1)
Мотки Серия ХТР 1-1
  • Длина 570 мм.
  • Ширина 2040 мм.
  • Высота 740 мм.
  • Вес 580 кг.
  • Объем бетона 0,23 м3
  • Геометрический объем 0,8605 м3
Цена: 6693 руб.
Подробнее
ОП 8 (ХТР 1-1)
Опорные подушки Серия ХТР 1-1
  • Длина 950 мм.
  • Ширина 1100 мм.
  • Высота 300 мм.
  • Вес 800 кг.
  • Объем бетона 0,31 м3
  • Геометрический объем 0,3135 м3
Цена: 6615 руб.
Подробнее
ОП 9 (ХТР 1-1)
Опорные подушки Серия ХТР 1-1
  • Длина 1100 мм.
  • Ширина 1300 мм.
  • Высота 300 мм.
  • Вес 1100 кг.
  • Объем бетона 0,43 м3
  • Геометрический объем 0,429 м3
Цена: 9176 руб.
Подробнее
ПД 11-1 (ХТР 1-1)
Плиты днища Серия ХТР 1-1
  • Длина 3780 мм.
  • Ширина 1470 мм.
  • Высота 300 мм.
  • Вес 1700 кг.
  • Объем бетона 0,68 м3
  • Геометрический объем 1,667 м3
Цена: 13192 руб.
Подробнее
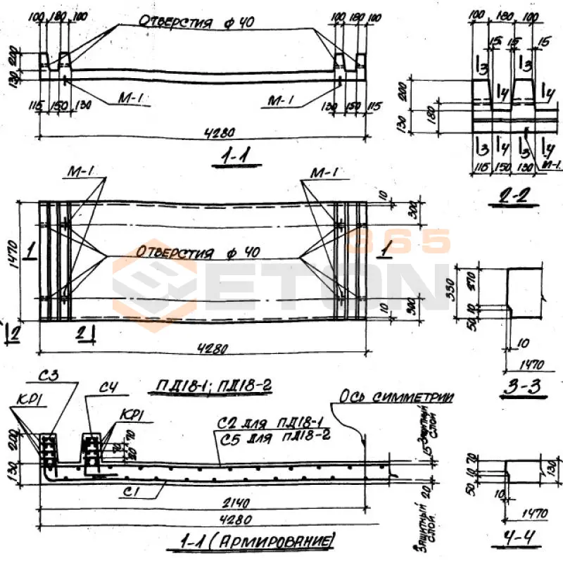
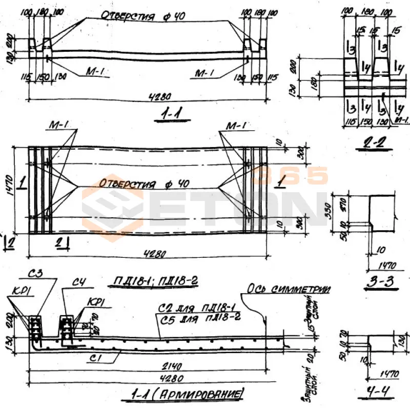
ПД 18-1 (ХТР 1-1)
Плиты днища Серия ХТР 1-1
  • Длина 1470 мм.
  • Ширина 4280 мм.
  • Высота 330 мм.
  • Вес 2380 кг.
  • Объем бетона 0,95 м3
  • Геометрический объем 2,0762 м3
Цена: 18430 руб.
Подробнее
ПД 18-2 (ХТР 1-1)
Плиты днища Серия ХТР 1-1
  • Длина 1470 мм.
  • Ширина 4280 мм.
  • Высота 330 мм.
  • Вес 2380 кг.
  • Объем бетона 0,95 м3
  • Геометрический объем 2,0762 м3
Цена: 18430 руб.
Подробнее
ПД 13-1 (ХТР 1-1)
Плиты днища Серия ХТР 1-1
  • Длина 4980 мм.
  • Ширина 1470 мм.
  • Высота 330 мм.
  • Вес 2750 кг.
  • Объем бетона 1,1 м3
  • Геометрический объем 2,4158 м3
Цена: 21340 руб.
Подробнее
ПД 14-1 (ХТР 1-1)
Плиты днища Серия ХТР 1-1
  • Длина 4980 мм.
  • Ширина 1470 мм.
  • Высота 330 мм.
  • Вес 2750 кг.
  • Объем бетона 1,1 м3
  • Геометрический объем 2,4158 м3
Цена: 21340 руб.
Подробнее
ПД 12-1 (ХТР 1-1)
Плиты днища Серия ХТР 1-1
  • Длина 3780 мм.
  • Ширина 1470 мм.
  • Высота 300 мм.
  • Вес 1700 кг.
  • Объем бетона 0,68 м3
  • Геометрический объем 1,667 м3
Цена: 13192 руб.
Подробнее
ПД 5 (ХТР 1-1)
Плиты днища Серия ХТР 1-1
  • Длина 2980 мм.
  • Ширина 1520 мм.
  • Высота 120 мм.
  • Вес 1350 кг.
  • Объем бетона 0,54 м3
  • Геометрический объем 0,5436 м3
Цена: 10476 руб.
Подробнее
ПД 19 (ХТР 1-1)
Плиты днища Серия ХТР 1-1
  • Длина 1470 мм.
  • Ширина 3610 мм.
  • Высота 400 мм.
  • Вес 2500 кг.
  • Объем бетона 1 м3
  • Геометрический объем 2,1227 м3
Цена: 19400 руб.
Подробнее
ПД 5д (ХТР 1-1)
Плиты днища Серия ХТР 1-1
  • Длина 580 мм.
  • Ширина 1520 мм.
  • Высота 120 мм.
  • Вес 280 кг.
  • Объем бетона 0,11 м3
  • Геометрический объем 0,1058 м3
Цена: 2134 руб.
Подробнее
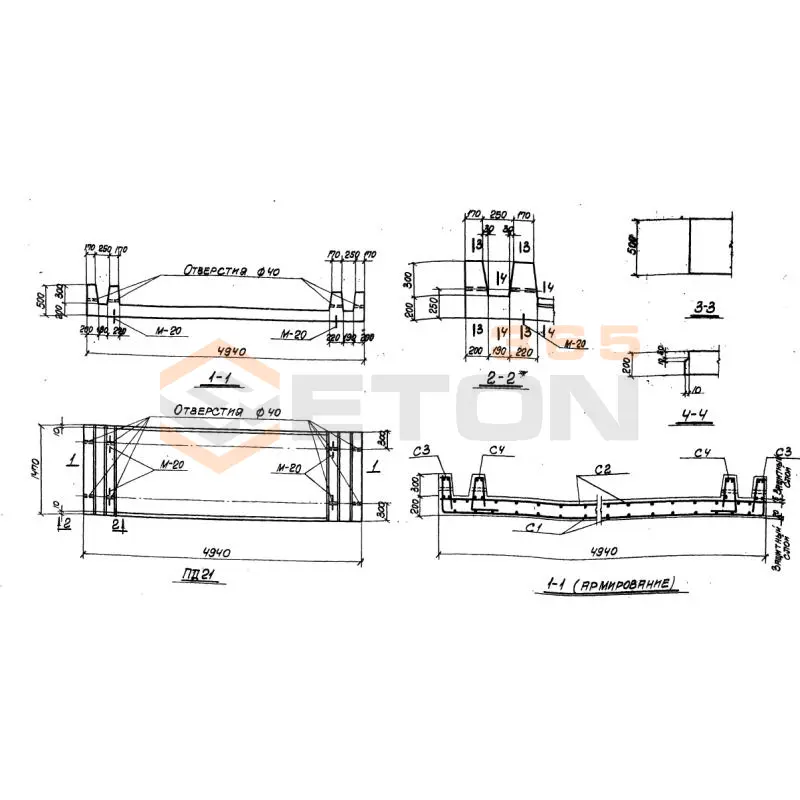
ПД 21 (ХТР 1-1)
Плиты днища Серия ХТР 1-1
  • Длина 1470 мм.
  • Ширина 4940 мм.
  • Высота 500 мм.
  • Вес 4500 кг.
  • Объем бетона 1,79 м3
  • Геометрический объем 3,6309 м3
Цена: 34726 руб.
Подробнее
ПД 20 (ХТР 1-1)
Плиты днища Серия ХТР 1-1
  • Длина 4300 мм.
  • Ширина 1470 мм.
  • Высота 480 мм.
  • Вес 3600 кг.
  • Объем бетона 1,44 м3
  • Геометрический объем 3,0341 м3
Цена: 27936 руб.
Подробнее
ПД 5-3 (ХТР 1-1)
Плиты днища Серия ХТР 1-1
  • Длина 2970 мм.
  • Ширина 1980 мм.
  • Высота 300 мм.
  • Вес 2150 кг.
  • Объем бетона 0,86 м3
  • Геометрический объем 1,7642 м3
Цена: 16684 руб.
Подробнее
ПД 6-1 (ХТР 1-1)
Плиты днища Серия ХТР 1-1
  • Длина 2970 мм.
  • Ширина 1980 мм.
  • Высота 300 мм.
  • Вес 2150 кг.
  • Объем бетона 0,86 м3
  • Геометрический объем 1,7642 м3
Цена: 16684 руб.
Подробнее
ПД 8-1 (ХТР 1-1)
Плиты днища Серия ХТР 1-1
  • Длина 2970 мм.
  • Ширина 2580 мм.
  • Высота 330 мм.
  • Вес 3180 кг.
  • Объем бетона 1,27 м3
  • Геометрический объем 2,5287 м3
Цена: 24638 руб.
Подробнее
ПД 7-1 (ХТР 1-1)
Плиты днища Серия ХТР 1-1
  • Длина 2970 мм.
  • Ширина 2580 мм.
  • Высота 330 мм.
  • Вес 3180 кг.
  • Объем бетона 1,27 м3
  • Геометрический объем 2,5287 м3
Цена: 24638 руб.
Подробнее
ПДТ 2-5 (ХТР 1-1)
Плиты днища Серия ХТР 1-1
  • Длина 2970 мм.
  • Ширина 2420 мм.
  • Высота 380 мм.
  • Вес 3500 кг.
  • Объем бетона 1,39 м3
  • Геометрический объем 2,7312 м3
Цена: 26966 руб.
Подробнее
ПДТ 1-4 (ХТР 1-1)
Плиты днища Серия ХТР 1-1
  • Длина 2970 мм.
  • Ширина 2120 мм.
  • Высота 380 мм.
  • Вес 3200 кг.
  • Объем бетона 1,26 м3
  • Геометрический объем 2,3926 м3
Цена: 24444 руб.
Подробнее
ПДТ 3-5 (ХТР 1-1)
Плиты днища Серия ХТР 1-1
  • Длина 2970 мм.
  • Ширина 2500 мм.
  • Высота 450 мм.
  • Вес 4700 кг.
  • Объем бетона 1,87 м3
  • Геометрический объем 3,3413 м3
Цена: 36278 руб.
Подробнее
ПДТ 4-3 (ХТР 1-1)
Плиты днища Серия ХТР 1-1
  • Длина 2970 мм.
  • Ширина 3100 мм.
  • Высота 450 мм.
  • Вес 5000 кг.
  • Объем бетона 2 м3
  • Геометрический объем 4,1432 м3
Цена: 38800 руб.
Подробнее
П 23 (ХТР 1-1)
Плиты перекрытий Серия ХТР 1-1
  • Длина 2980 мм.
  • Ширина 1500 мм.
  • Высота 120 мм.
  • Вес 1250 кг.
  • Объем бетона 0,5 м3
  • Геометрический объем 0,5364 м3
Цена: 12125 руб.
Подробнее
П 23д (ХТР 1-1)
Плиты перекрытий Серия ХТР 1-1
  • Длина 590 мм.
  • Ширина 1500 мм.
  • Высота 120 мм.
  • Вес 250 кг.
  • Объем бетона 0,1 м3
  • Геометрический объем 0,1062 м3
Цена: 2425 руб.
Подробнее
П 24 (ХТР 1-1)
Плиты перекрытий Серия ХТР 1-1
  • Длина 2990 мм.
  • Ширина 2100 мм.
  • Высота 160 мм.
  • Вес 2500 кг.
  • Объем бетона 1 м3
  • Геометрический объем 1,0046 м3
Цена: 24250 руб.
Подробнее
П 24д (ХТР 1-1)
Плиты перекрытий Серия ХТР 1-1
  • Длина 590 мм.
  • Ширина 2100 мм.
  • Высота 160 мм.
  • Вес 500 кг.
  • Объем бетона 0,2 м3
  • Геометрический объем 0,1982 м3
Цена: 4850 руб.
Подробнее
П 3 а (ХТР 1-1)
Плиты перекрытий Серия ХТР 1-1
  • Длина 2990 мм.
  • Ширина 1450 мм.
  • Высота 100 мм.
  • Вес 1080 кг.
  • Объем бетона 0,43 м3
  • Геометрический объем 0,4335 м3
Цена: 10428 руб.
Подробнее
П 3 ад (ХТР 1-1)
Плиты перекрытий Серия ХТР 1-1
  • Длина 590 мм.
  • Ширина 1450 мм.
  • Высота 100 мм.
  • Вес 230 кг.
  • Объем бетона 0,09 м3
  • Геометрический объем 0,0856 м3
Цена: 2183 руб.
Подробнее
П 4 а (ХТР 1-1)
Плиты перекрытий Серия ХТР 1-1
  • Длина 2990 мм.
  • Ширина 1800 мм.
  • Высота 120 мм.
  • Вес 1630 кг.
  • Объем бетона 0,65 м3
  • Геометрический объем 0,6458 м3
Цена: 15763 руб.
Подробнее
П 5 а (ХТР 1-1)
Плиты перекрытий Серия ХТР 1-1
  • Длина 2990 мм.
  • Ширина 2400 мм.
  • Высота 160 мм.
  • Вес 2880 кг.
  • Объем бетона 1,15 м3
  • Геометрический объем 1,1482 м3
Цена: 27888 руб.
Подробнее
П 4 ад (ХТР 1-1)
Плиты перекрытий Серия ХТР 1-1
  • Длина 590 мм.
  • Ширина 1800 мм.
  • Высота 120 мм.
  • Вес 330 кг.
  • Объем бетона 0,13 м3
  • Геометрический объем 0,1274 м3
Цена: 3153 руб.
Подробнее
П 5 ад (ХТР 1-1)
Плиты перекрытий Серия ХТР 1-1
  • Длина 590 мм.
  • Ширина 2400 мм.
  • Высота 160 мм.
  • Вес 580 кг.
  • Объем бетона 0,23 м3
  • Геометрический объем 0,2266 м3
Цена: 5578 руб.
Подробнее
ПТ 6 к (ХТР 1-1)
Плиты перекрытий Серия ХТР 1-1
  • Длина 2990 мм.
  • Ширина 2200 мм.
  • Высота 140 мм.
  • Вес 1400 кг.
  • Объем бетона 0,47 м3
  • Геометрический объем 0,9209 м3
Цена: 11398 руб.
Подробнее
ПТ 6 кд (ХТР 1-1)
Плиты перекрытий Серия ХТР 1-1
  • Длина 590 мм.
  • Ширина 2200 мм.
  • Высота 140 мм.
  • Вес 310 кг.
  • Объем бетона 0,11 м3
  • Геометрический объем 0,1817 м3
Цена: 2668 руб.
Подробнее
ПТ 7 кд (ХТР 1-1)
Плиты перекрытий Серия ХТР 1-1
  • Длина 590 мм.
  • Ширина 2800 мм.
  • Высота 160 мм.
  • Вес 490 кг.
  • Объем бетона 0,18 м3
  • Геометрический объем 0,2643 м3
Цена: 4365 руб.
Подробнее
ПТ 7 к (ХТР 1-1)
Плиты перекрытий Серия ХТР 1-1
  • Длина 2990 мм.
  • Ширина 2800 мм.
  • Высота 160 мм.
  • Вес 2230 кг.
  • Объем бетона 0,78 м3
  • Геометрический объем 1,3395 м3
Цена: 18915 руб.
Подробнее
ПС 4 (ХТР 1-1)
Плиты стеновые Серия ХТР 1-1
  • Длина 2980 мм.
  • Ширина 1520 мм.
  • Высота 100 мм.
  • Вес 1120 кг.
  • Объем бетона 0,45 м3
  • Геометрический объем 0,453 м3
Цена: 7421 руб.
Подробнее
ПС 4д (ХТР 1-1)
Плиты стеновые Серия ХТР 1-1
  • Длина 580 мм.
  • Ширина 1520 мм.
  • Высота 100 мм.
  • Вес 230 кг.
  • Объем бетона 0,09 м3
  • Геометрический объем 0,0882 м3
Цена: 1484 руб.
Подробнее
ПС 8д (ХТР 1-1)
Плиты стеновые Серия ХТР 1-1
  • Длина 580 мм.
  • Ширина 2120 мм.
  • Высота 150 мм.
  • Вес 500 кг.
  • Объем бетона 0,19 м3
  • Геометрический объем 0,1844 м3
Цена: 3133 руб.
Подробнее
ПС 6 (ХТР 1-1)
Плиты стеновые Серия ХТР 1-1
  • Длина 2980 мм.
  • Ширина 1820 мм.
  • Высота 120 мм.
  • Вес 1620 кг.
  • Объем бетона 0,65 м3
  • Геометрический объем 0,6508 м3
Цена: 10719 руб.
Подробнее
ПС 8 (ХТР 1-1)
Плиты стеновые Серия ХТР 1-1
  • Длина 2980 мм.
  • Ширина 2120 мм.
  • Высота 150 мм.
  • Вес 2400 кг.
  • Объем бетона 0,95 м3
  • Геометрический объем 0,9476 м3
Цена: 15666 руб.
Подробнее
ПС 6д (ХТР 1-1)
Плиты стеновые Серия ХТР 1-1
  • Длина 580 мм.
  • Ширина 1820 мм.
  • Высота 120 мм.
  • Вес 320 кг.
  • Объем бетона 0,13 м3
  • Геометрический объем 0,1267 м3
Цена: 2144 руб.
Подробнее
ПС 7 (ХТР 1-1)
Плиты стеновые Серия ХТР 1-1
  • Длина 2980 мм.
  • Ширина 1820 мм.
  • Высота 150 мм.
  • Вес 2000 кг.
  • Объем бетона 0,81 м3
  • Геометрический объем 0,8135 м3
Цена: 13357 руб.
Подробнее
ПС 7д (ХТР 1-1)
Плиты стеновые Серия ХТР 1-1
  • Длина 580 мм.
  • Ширина 1820 мм.
  • Высота 150 мм.
  • Вес 400 кг.
  • Объем бетона 0,16 м3
  • Геометрический объем 0,1583 м3
Цена: 2638 руб.
Подробнее
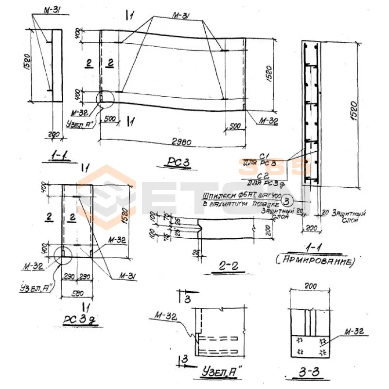
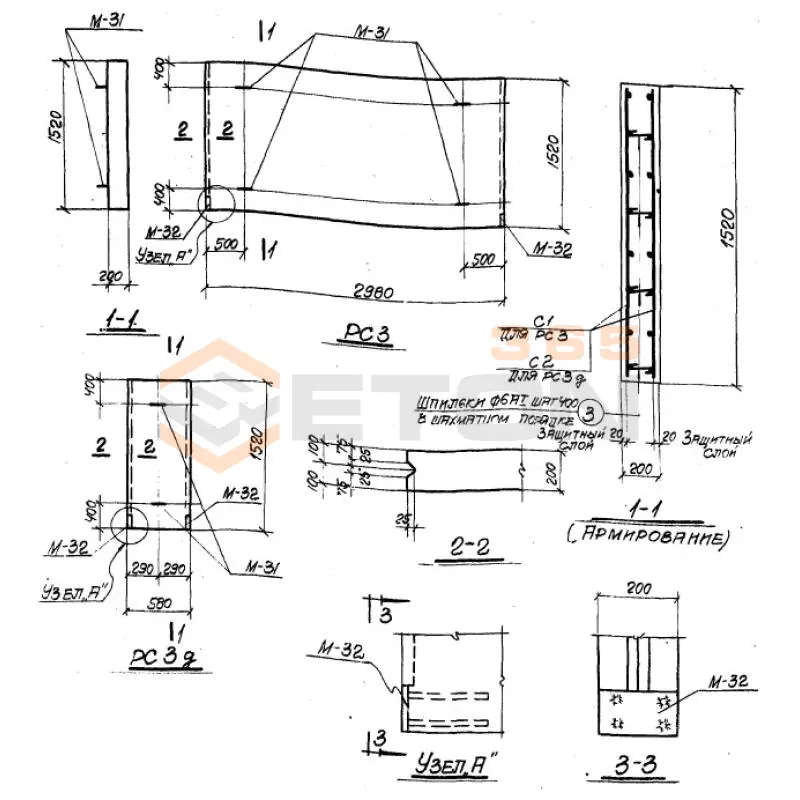
РС 3д (ХТР 1-1)
Плиты стеновые Серия ХТР 1-1
  • Длина 580 мм.
  • Ширина 1520 мм.
  • Высота 200 мм.
  • Вес 450 кг.
  • Объем бетона 0,18 м3
  • Геометрический объем 0,1763 м3
Цена: 2968 руб.
Подробнее
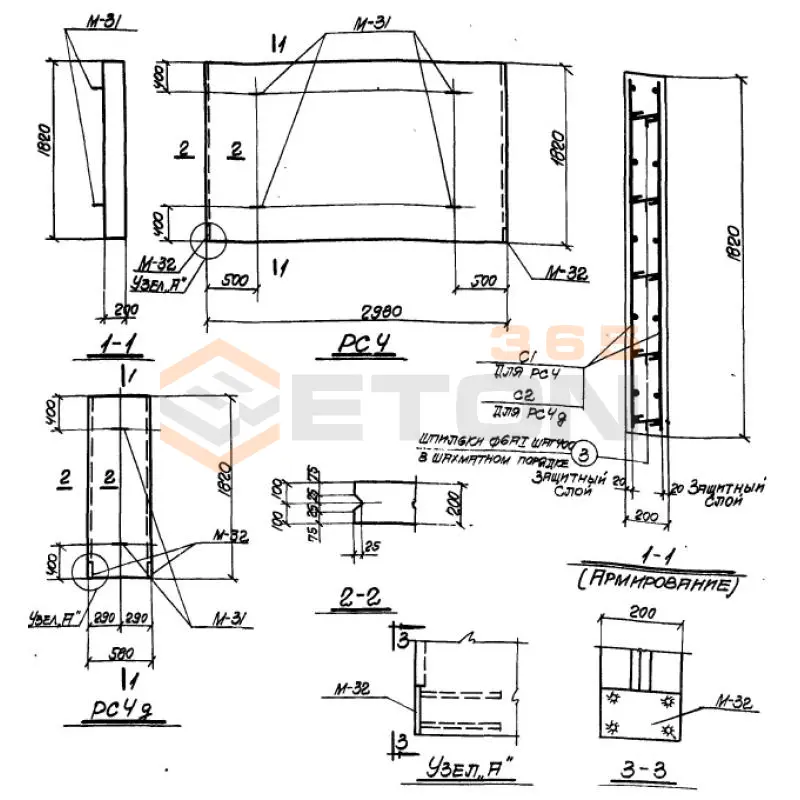
РС 4 (ХТР 1-1)
Плиты стеновые Серия ХТР 1-1
  • Длина 2980 мм.
  • Ширина 1820 мм.
  • Высота 200 мм.
  • Вес 2700 кг.
  • Объем бетона 1,08 м3
  • Геометрический объем 1,0847 м3
Цена: 17809 руб.
Подробнее
РС 3 (ХТР 1-1)
Плиты стеновые Серия ХТР 1-1
  • Длина 2980 мм.
  • Ширина 1520 мм.
  • Высота 200 мм.
  • Вес 2250 кг.
  • Объем бетона 0,9 м3
  • Геометрический объем 0,9059 м3
Цена: 14841 руб.
Подробнее
РС 4д (ХТР 1-1)
Плиты стеновые Серия ХТР 1-1
  • Длина 580 мм.
  • Ширина 1820 мм.
  • Высота 200 мм.
  • Вес 530 кг.
  • Объем бетона 0,21 м3
  • Геометрический объем 0,2111 м3
Цена: 3463 руб.
Подробнее

Уведомление о файлах cookie

Мы используем файлы cookie для улучшения вашего опыта просмотра и анализа трафика. Нажимая "Принять все", вы соглашаетесь с нашей политикой конфиденциальности и политикой обработки файлов cookie.

MAX Дзен Телеграм Вконтакте vk