mobile_sound +7 (930) 655-55-90

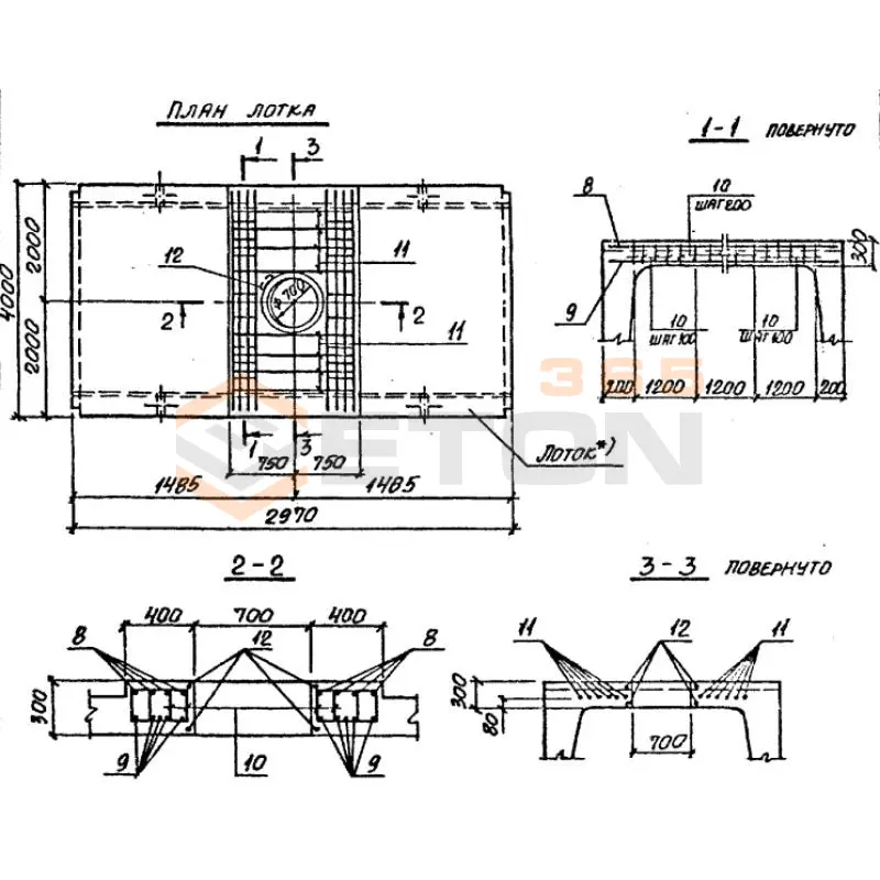
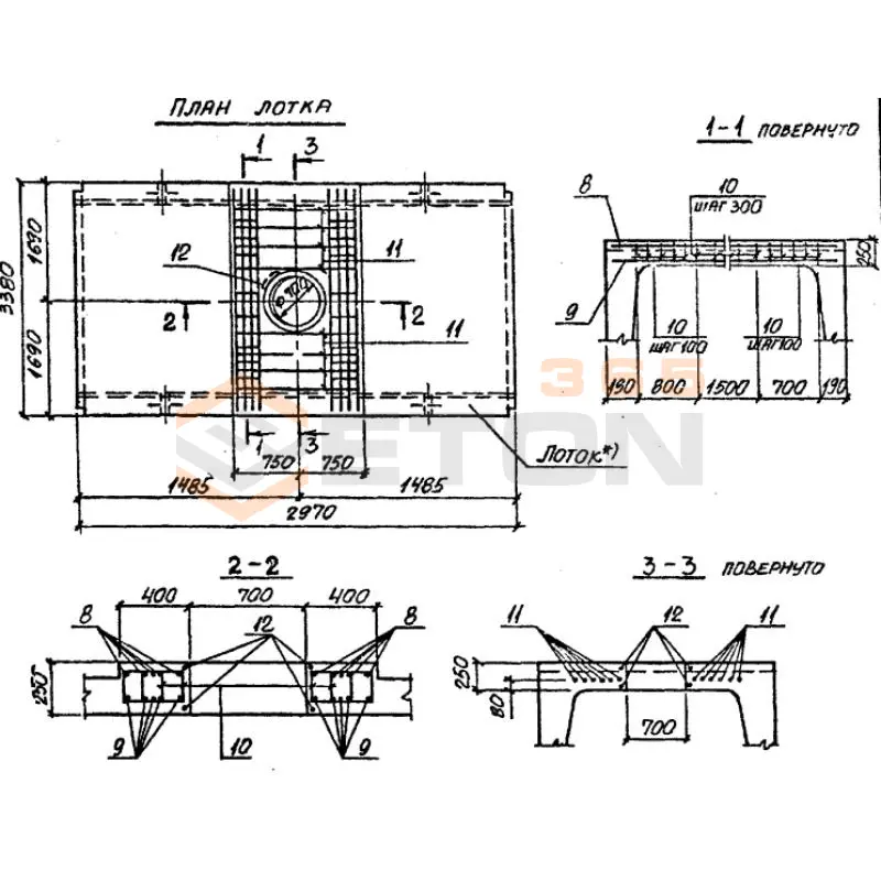
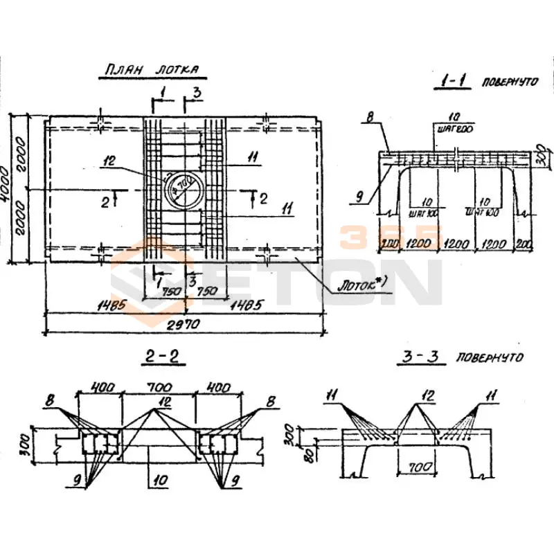
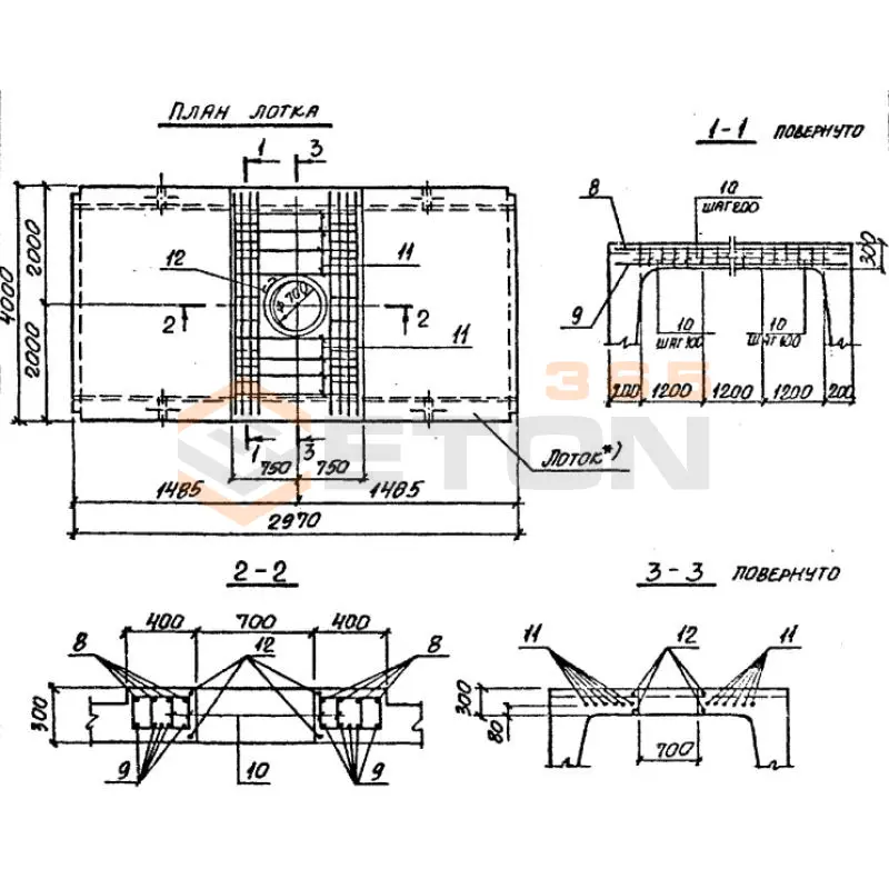
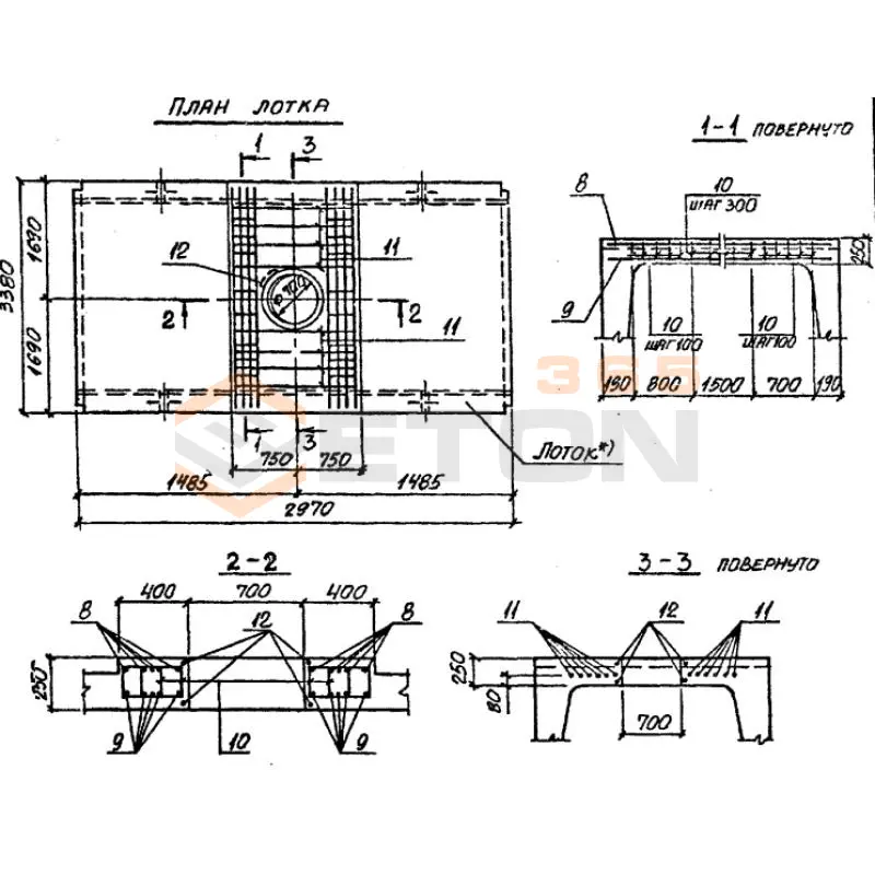
Мотки теплотрасс Мо серия 3.006.1-2/87 с отверстием

Поделиться:
Фильтр по характеристикам
Длина (мм.)
keyboard_arrow_down
мм.
мм.
Ширина (мм.)
keyboard_arrow_down
мм.
мм.
Высота (мм.)
keyboard_arrow_down
мм.
мм.
Вес (кг.)
keyboard_arrow_down
кг.
кг.
Поделиться:

Завод "Бетон365" производит лотки теплотрасс МО серии 3.006.1-2/87 с отверстием — специализированные железобетонные конструкции для прокладки и защиты подземных коммуникаций. Эти изделия, соответствующие требованиям ГОСТ, обеспечивают надежную изоляцию тепловых сетей, равномерно распределяют нагрузку от грунта и транспорта, а технологические отверстия упрощают монтаж и обслуживание инженерных систем. Применение готовых лотков значительно сокращает сроки строительства и повышает долговечность теплотрасс в условиях Москвы и Московской области.

Мы реализуем лотки теплотрасс МО с отверстиями напрямую от производителя, что гарантирует оптимальную цену и контроль качества на всех этапах производства. Купить эти железобетонные изделия в Мск можно с доставкой на объект — мы обеспечим полный комплект документации и поможем подобрать необходимые типоразмеры для вашего проекта. Обращайтесь для расчета стоимости и оформления заказа!

Ло 14-8
Мотки теплотрасс Мо серия 3.006.1-2/87 с отверстием
  • Длина 5970 мм.
  • Ширина 1840 мм.
  • Высота 630 мм.
  • Вес 4900 кг.
  • Объем бетона 1,96 м3
  • Геометрический объем 6,9204 м3
Цена: 47530 руб.
Подробнее
Ло 15-8
Мотки теплотрасс Мо серия 3.006.1-2/87 с отверстием
  • Длина 5970 мм.
  • Ширина 1840 мм.
  • Высота 780 мм.
  • Вес 5200 кг.
  • Объем бетона 2,08 м3
  • Геометрический объем 8,5681 м3
Цена: 50440 руб.
Подробнее
Ло 16-8
Мотки теплотрасс Мо серия 3.006.1-2/87 с отверстием
  • Длина 5970 мм.
  • Ширина 1840 мм.
  • Высота 1080 мм.
  • Вес 6500 кг.
  • Объем бетона 2,62 м3
  • Геометрический объем 11,8636 м3
Цена: 63535 руб.
Подробнее
Ло 17-8
Мотки теплотрасс Мо серия 3.006.1-2/87 с отверстием
  • Длина 5970 мм.
  • Ширина 1840 мм.
  • Высота 1380 мм.
  • Вес 7750 кг.
  • Объем бетона 3,1 м3
  • Геометрический объем 15,159 м3
Цена: 75175 руб.
Подробнее
Ло 18-8
Мотки теплотрасс Мо серия 3.006.1-2/87 с отверстием
  • Длина 5970 мм.
  • Ширина 1840 мм.
  • Высота 1680 мм.
  • Вес 9550 кг.
  • Объем бетона 3,82 м3
  • Геометрический объем 18,4545 м3
Цена: 92635 руб.
Подробнее
Ло 19-8
Мотки теплотрасс Мо серия 3.006.1-2/87 с отверстием
  • Длина 5970 мм.
  • Ширина 2160 мм.
  • Высота 800 мм.
  • Вес 6570 кг.
  • Объем бетона 2,63 м3
  • Геометрический объем 10,3162 м3
Цена: 63778 руб.
Подробнее
Ло 20-11
Мотки теплотрасс Мо серия 3.006.1-2/87 с отверстием
  • Длина 5970 мм.
  • Ширина 2160 мм.
  • Высота 1100 мм.
  • Вес 7770 кг.
  • Объем бетона 3,11 м3
  • Геометрический объем 14,1847 м3
Цена: 75418 руб.
Подробнее
Ло 21-8
Мотки теплотрасс Мо серия 3.006.1-2/87 с отверстием
  • Длина 5970 мм.
  • Ширина 2160 мм.
  • Высота 1400 мм.
  • Вес 9120 кг.
  • Объем бетона 3,65 м3
  • Геометрический объем 18,0533 м3
Цена: 88513 руб.
Подробнее
Ло 22-8
Мотки теплотрасс Мо серия 3.006.1-2/87 с отверстием
  • Длина 2970 мм.
  • Ширина 2160 мм.
  • Высота 1700 мм.
  • Вес 5450 кг.
  • Объем бетона 2,18 м3
  • Геометрический объем 10,9058 м3
Цена: 52865 руб.
Подробнее
Ло 23-8
Мотки теплотрасс Мо серия 3.006.1-2/87 с отверстием
  • Длина 5970 мм.
  • Ширина 2460 мм.
  • Высота 800 мм.
  • Вес 7450 кг.
  • Объем бетона 2,98 м3
  • Геометрический объем 11,749 м3
Цена: 72265 руб.
Подробнее
Ло 24-8
Мотки теплотрасс Мо серия 3.006.1-2/87 с отверстием
  • Длина 5970 мм.
  • Ширина 2460 мм.
  • Высота 1100 мм.
  • Вес 8450 кг.
  • Объем бетона 3,38 м3
  • Геометрический объем 16,1548 м3
Цена: 81965 руб.
Подробнее
Ло 25-8
Мотки теплотрасс Мо серия 3.006.1-2/87 с отверстием
  • Длина 2970 мм.
  • Ширина 2460 мм.
  • Высота 1400 мм.
  • Вес 5070 кг.
  • Объем бетона 2,03 м3
  • Геометрический объем 10,2287 м3
Цена: 49228 руб.
Подробнее
Ло 26-8
Мотки теплотрасс Мо серия 3.006.1-2/87 с отверстием
  • Длина 2970 мм.
  • Ширина 2460 мм.
  • Высота 1700 мм.
  • Вес 5840 кг.
  • Объем бетона 2,33 м3
  • Геометрический объем 12,4205 м3
Цена: 56503 руб.
Подробнее
Ло 27-8
Мотки теплотрасс Мо серия 3.006.1-2/87 с отверстием
  • Длина 2970 мм.
  • Ширина 2780 мм.
  • Высота 820 мм.
  • Вес 4850 кг.
  • Объем бетона 1,94 м3
  • Геометрический объем 6,7704 м3
Цена: 47045 руб.
Подробнее
Ло 28-8
Мотки теплотрасс Мо серия 3.006.1-2/87 с отверстием
  • Длина 2970 мм.
  • Ширина 2780 мм.
  • Высота 1120 мм.
  • Вес 5370 кг.
  • Объем бетона 2,15 м3
  • Геометрический объем 9,2474 м3
Цена: 52138 руб.
Подробнее
Ло 29-8
Мотки теплотрасс Мо серия 3.006.1-2/87 с отверстием
  • Длина 2970 мм.
  • Ширина 2780 мм.
  • Высота 1420 мм.
  • Вес 6120 кг.
  • Объем бетона 2,45 м3
  • Геометрический объем 11,7244 м3
Цена: 59413 руб.
Подробнее
Ло 30-8
Мотки теплотрасс Мо серия 3.006.1-2/87 с отверстием
  • Длина 2970 мм.
  • Ширина 2780 мм.
  • Высота 1720 мм.
  • Вес 6870 кг.
  • Объем бетона 2,75 м3
  • Геометрический объем 14,2014 м3
Цена: 66688 руб.
Подробнее
Ло 31-8
Мотки теплотрасс Мо серия 3.006.1-2/87 с отверстием
  • Длина 2970 мм.
  • Ширина 3380 мм.
  • Высота 850 мм.
  • Вес 6280 кг.
  • Объем бетона 2,51 м3
  • Геометрический объем 8,5328 м3
Цена: 60868 руб.
Подробнее
Ло 32-8
Мотки теплотрасс Мо серия 3.006.1-2/87 с отверстием
  • Длина 2970 мм.
  • Ширина 3380 мм.
  • Высота 1150 мм.
  • Вес 680 кг.
  • Объем бетона 2,72 м3
  • Геометрический объем 11,5444 м3
Цена: 65960 руб.
Подробнее
Ло 33-8
Мотки теплотрасс Мо серия 3.006.1-2/87 с отверстием
  • Длина 2970 мм.
  • Ширина 3380 мм.
  • Высота 1450 мм.
  • Вес 7550 кг.
  • Объем бетона 3,02 м3
  • Геометрический объем 14,556 м3
Цена: 73235 руб.
Подробнее
Ло 34-8
Мотки теплотрасс Мо серия 3.006.1-2/87 с отверстием
  • Длина 2970 мм.
  • Ширина 3380 мм.
  • Высота 1750 мм.
  • Вес 8370 кг.
  • Объем бетона 3,35 м3
  • Геометрический объем 17,5676 м3
Цена: 81238 руб.
Подробнее
Ло 35-8
Мотки теплотрасс Мо серия 3.006.1-2/87 с отверстием
  • Длина 2970 мм.
  • Ширина 4000 мм.
  • Высота 900 мм.
  • Вес 8400 кг.
  • Объем бетона 3,36 м3
  • Геометрический объем 10,692 м3
Цена: 81480 руб.
Подробнее
Ло 36-8
Мотки теплотрасс Мо серия 3.006.1-2/87 с отверстием
  • Длина 2970 мм.
  • Ширина 4000 мм.
  • Высота 1200 мм.
  • Вес 8930 кг.
  • Объем бетона 3,37 м3
  • Геометрический объем 14,256 м3
Цена: 81723 руб.
Подробнее
Ло 37-8
Мотки теплотрасс Мо серия 3.006.1-2/87 с отверстием
  • Длина 2970 мм.
  • Ширина 4000 мм.
  • Высота 1500 мм.
  • Вес 9750 кг.
  • Объем бетона 3,9 м3
  • Геометрический объем 17,82 м3
Цена: 94575 руб.
Подробнее
Ло 38-8
Мотки теплотрасс Мо серия 3.006.1-2/87 с отверстием
  • Длина 2970 мм.
  • Ширина 4000 мм.
  • Высота 1800 мм.
  • Вес 10570 кг.
  • Объем бетона 4,23 м3
  • Геометрический объем 21,384 м3
Цена: 102578 руб.
Подробнее

Как правильно выбрать - Мотки теплотрасс Мо серия 3.006.1-2/87 с отверстием

Мотки теплотрасс Мо серия 3.006.1-2/87 с отверстием предназначены для прокладки и защиты тепловых сетей в непроходных каналах. Они образуют жесткий каркас, воспринимающий давление грунта, и обеспечивают фиксированное положение трубопроводов. Ключевой особенностью данной серии является наличие отверстий для пропуска труб, что исключает необходимость их сверления на объекте и гарантирует проектное положение коммуникаций. Долговечность и бесперебойная работа теплотрассы в значительной степени определяются точным соответствием характеристик лотков проектным нагрузкам и агрессивности грунтовых условий.

Критерии выбора

  • Соответствие серии и нормам: Изделие должно строго соответствовать рабочим чертежам серии 3.006.1-2/87 и техническим условиям (ТУ) на изготовление.
  • Ключевые технические параметры: Обращайте внимание на марку бетона (не ниже В25), морозостойкость (F200) и водонепроницаемость (W6), которые критичны для работы в водонасыщенных грунтах.
  • Конфигурация и геометрия: Проверяйте соответствие габаритных размеров, расположение и диаметр монтажных петель, а также точность позиционирования отверстий под трубы согласно проекту.
  • Качество изготовления: В паспорте качества должны быть указаны класс напрягаемой арматуры (Ат-IV, Ат-V) и факт контроля трещиностойкости. Визуально изделие не должно иметь сквозных трещин и раковин.
  • Эксплуатационные нагрузки: Убедитесь, что несущая способность лотков Мо серии 3.006.1-2/87 с отверстием рассчитана на давление грунта и транспортные нагрузки, указанные в проекте.

Рекомендации по подбору и монтажу

При закупке лотков теплотрасс Мо серии 3.006.1-2/87 с отверстием требуйте полный комплект технической документации, включая паспорта на бетон и арматуру. Особое внимание уделите визуальному контролю закладных деталей и отсутствию сколов по кромкам отверстий, которые могут осложнить монтаж труб.

На этапе проектирования и подготовки к монтажу обязательно учитывайте тип основания. Укладка лотков должна производиться на выровненное и уплотненное песчаное основание строго по проектным отметкам и осям. При монтаже лотков теплотрасс с отверстием следите за совпадением отверстий в смежных элементах, используя геодезические инструменты для контроля положения. Герметизация стыков между лотками является обязательным условием для предотвращения проникновения грунтовых вод и обеспечения расчетного срока службы конструкции.

Ответы экспертов на ваши вопросы

Ответ: Основное назначение данных лотков — это прокладка и защита тепловых сетей (теплотрасс) в непроходных каналах. Они служат для размещения и фиксации трубопроводов, обеспечивая их защиту от механических повреждений и воздействия грунта. Отверстия в лотках предназначены для пропуска дренажных труб, что позволяет организовать отвод грунтовых вод из канала и предотвратить затопление теплотрассы, тем самым повышая ее долговечность и надежность.

Ответ: Лотки изготавливаются из тяжелого бетона по серии 3.006.1-2/87. Их стандартная длина (L) составляет 2990 мм или 5990 мм (в зависимости от модификации). Ширина (B) и высота (H) могут варьироваться в зависимости от типоразмера (например, ЛО 12-... , ЛО 15-... и т.д., где цифры часто обозначают ширину в дециметрах). Наличие отверстия стандартизировано и указывается в маркировке. Конкретные размеры, массу и класс бетона необходимо уточнять в рабочих чертежах серии для выбранного типоразмера.

Ответ: Главное преимущество — это возможность эффективного дренажа. Отверстия позволяют отводить воду, скапливающуюся в канале, в дренажную систему. Это предотвращает постоянное нахождение труб в воде, что значительно снижает риск коррозии металлических элементов (труб, опор) и разрушения бетона при замораживании-оттаивании. В результате повышается общий срок службы всей конструкции теплотрассы и снижаются эксплуатационные расходы.

Ответ: Монтаж лотков производится в предварительно подготовленную траншею на спланированное и уплотненное основание (обычно из песка или щебня). Лотки укладываются вплотную друг к другу. Для обеспечения устойчивости и правильного распределения нагрузок важно строго соблюдать проектные отметки и уклоны. Стыки между лотками, как правило, герметизируются. После укладки труб и проведения необходимых испытаний производится обратная засыпка траншеи с послойным уплотнением грунта.

Ответ: Основным документом является сама серия 3.006.1-2/87 "Лотки теплотрасс ЛО", которая содержит рабочие чертежи, спецификации и технические требования. При производстве и приемке лотков руководствуются:

  • ГОСТ 13015-2012 "Изделия бетонные и железобетонные для строительства. Общие технические требования".
  • ГОСТ 26633-2015 "Бетоны тяжелые и мелкозернистые. Технические условия".
  • СП 124.13330.2012 (актуализированная редакция СНиП 41-02-2003) "Тепловые сети". Проектирование ведется в соответствии с требованиями действующих строительных норм и правил (СП и СНиП).
Ранее смотрели
Панели многопустотные Серия 1.440-1 ПКЛ 16-52-6 АIV (1.440-1)
ПКЛ 16-52-6 АIV (1.440-1)
Панели многопустотные Серия 1.440-1
Диафрагмы жесткости 1.020-1/87 ( 1.020.1-7, 1.020-1/83, ИИ 04-1, 1.020.1-3пв ) 2Д 22-28-2 с37
2Д 22-28-2 с37
Диафрагмы жесткости 1.020-1/87 ( 1.020.1-7, 1.020-1/83, ИИ 04-1, 1.020.1-3пв )
КБ 8 (Б3.300.1-5.04)
КБ 8 (Б3.300.1-5.04)
Крышки бетонные Серия Б3.300.1-5.04
Панели многопустотные Серия 1.440-1 ПКЛ 16-52-10 АIV (1.440-1)
ПКЛ 16-52-10 АIV (1.440-1)
Панели многопустотные Серия 1.440-1
Панели многопустотные Серия 1.440-1 ПКЛ 16-52-15 АIV (1.440-1)
ПКЛ 16-52-15 АIV (1.440-1)
Панели многопустотные Серия 1.440-1
Диафрагмы жесткости 1.020-1/87 ( 1.020.1-7, 1.020-1/83, ИИ 04-1, 1.020.1-3пв ) 2Д 26-33-2 с2
2Д 26-33-2 с2
Диафрагмы жесткости 1.020-1/87 ( 1.020.1-7, 1.020-1/83, ИИ 04-1, 1.020.1-3пв )
Панели многопустотные Серия 1.440-1 ПКЛ 10-56-6 АIV (1.440-1)
ПКЛ 10-56-6 АIV (1.440-1)
Панели многопустотные Серия 1.440-1
Блоки бассейнов и лестниц Шифр 734 П 8 (Шифр 734)
П 8 (Шифр 734)
Блоки бассейнов и лестниц Шифр 734

Уведомление о файлах cookie

Мы используем файлы cookie для улучшения вашего опыта просмотра и анализа трафика. Нажимая "Принять все", вы соглашаетесь с нашей политикой конфиденциальности и политикой обработки файлов cookie.

Дзен Телеграм Вконтакте vk