mobile_sound +7 (930) 655-55-90

Типовые конструкции и железобетонные изделия. Рабочие чертежи (Серия КЭ 01-50)

Поделиться:
Поделиться:

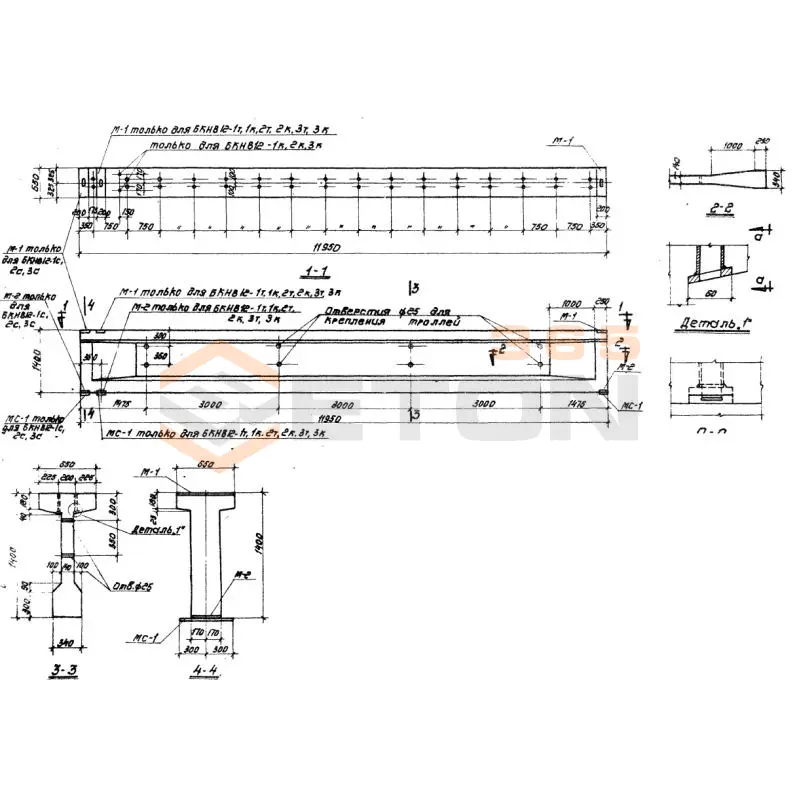
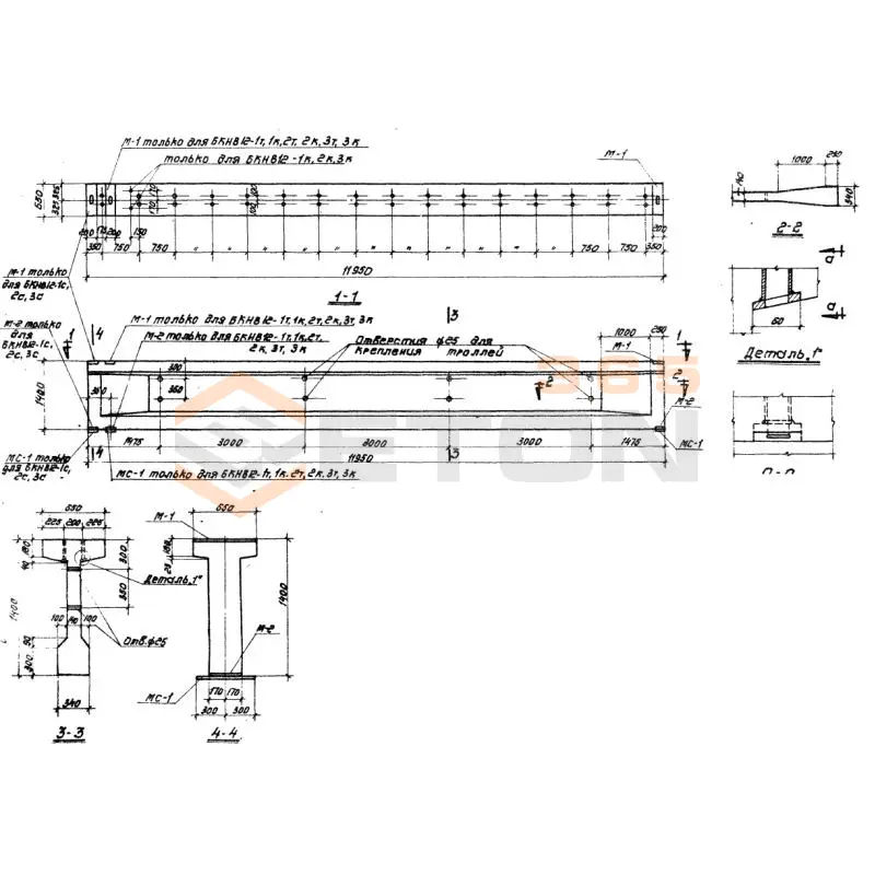
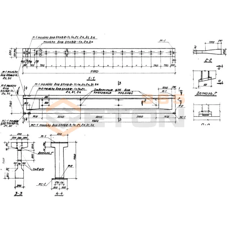
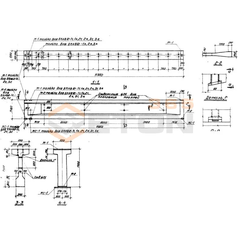
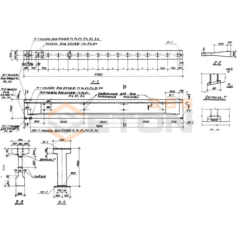
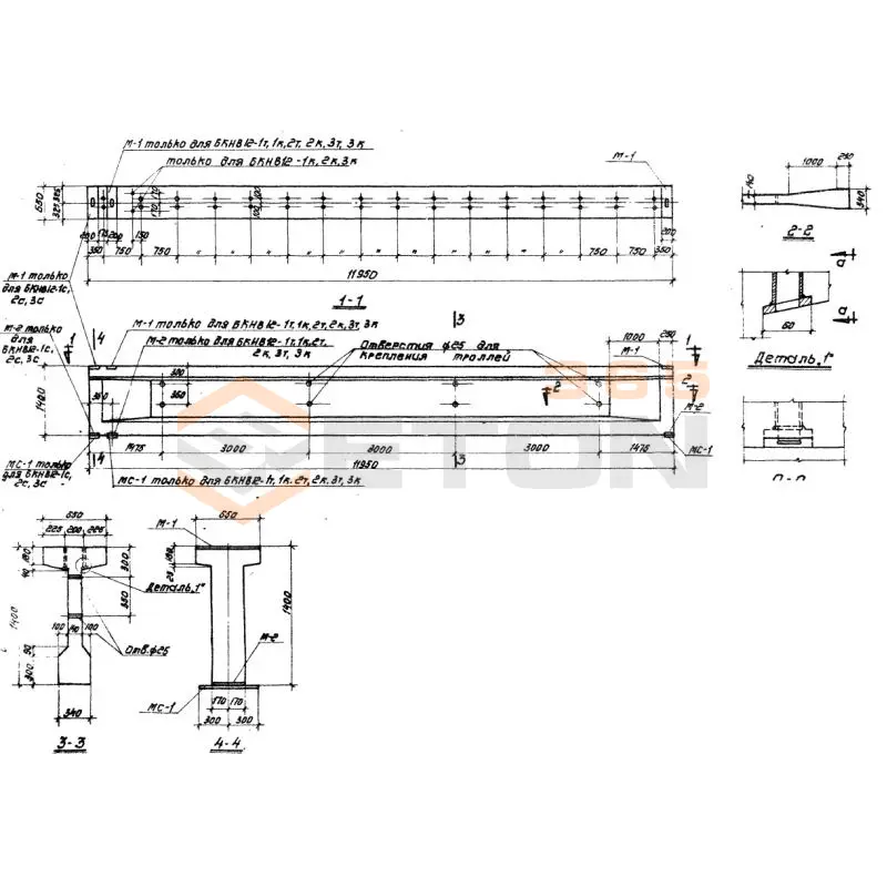
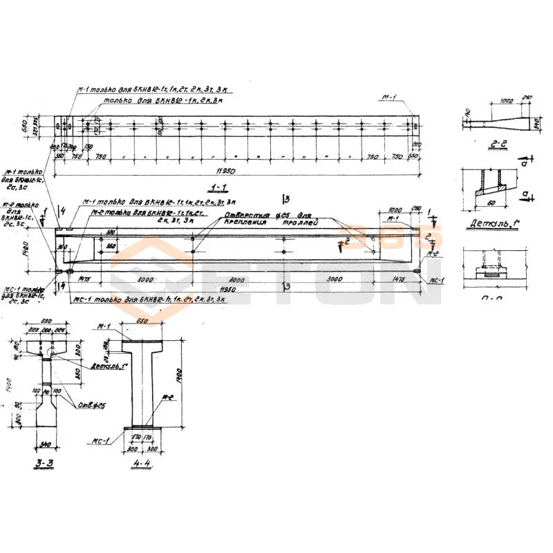
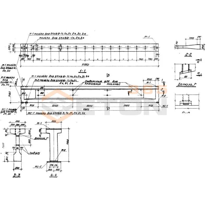
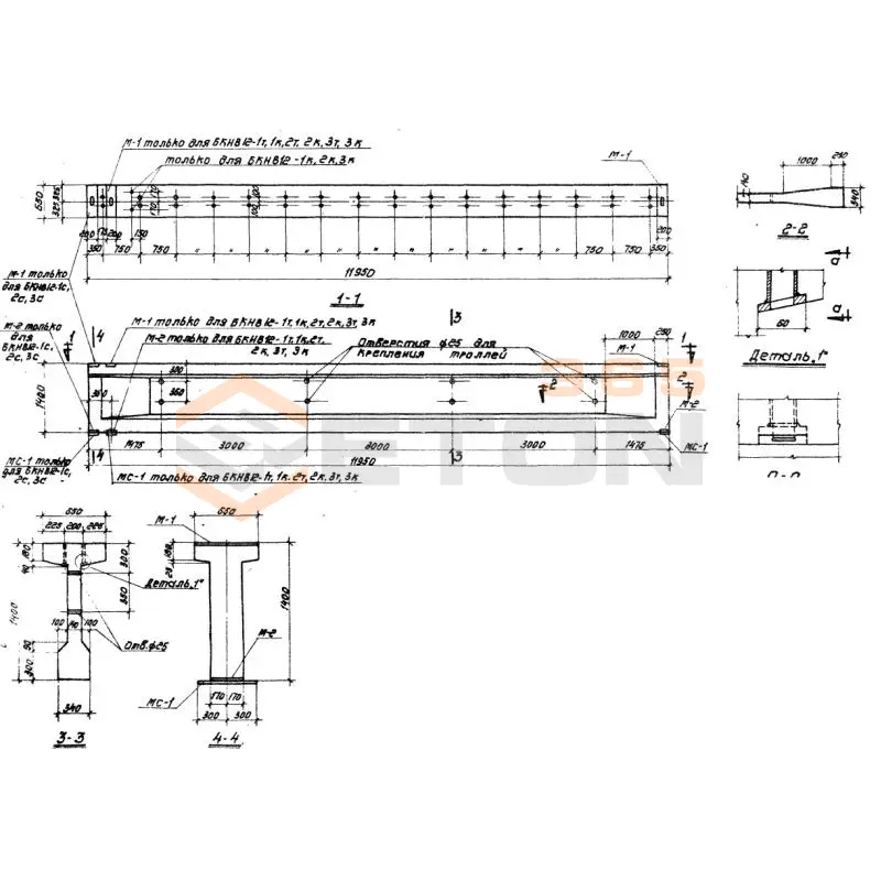
Документ Серия КЭ 01-50 описывает область применения, номенклатуру и ключевые требования, опираясь на действующие нормы и практику проектирования. В Серии КЭ 01-50 содержатся подробные инструкции для производства подкрановых балок из железобетона, чьи пролеты составляют 6 метров, используемых в строительстве промышленных сооружений с пролетами от 18 до 30 метров. допускается возможность оснащение возводимых объектов кранами, имеющими грузоподъемность от 10 до 30 тонн. Предварительно напряженные конструкции могут иметь несколько положений в каркасе возводимого сооружения: крайние, средние и у температурных швов.

Файлы для скачивания:
picture_as_pdf

5257.pdf

6,472.0 KB

скачать
picture_as_pdf

5258.pdf

5,045.1 KB

скачать
picture_as_pdf

5259.pdf

2,959.3 KB

скачать
picture_as_pdf

5260.pdf

3,669.7 KB

скачать
Товары Серия КЭ 01-50 (51)
БКНА 12-1 к (КЭ 01-50)
Балки подкрановые Серия КЭ 01-50
  • Длина 11950 мм.
  • Ширина 650 мм.
  • Высота 1400 мм.
  • Вес 11600 кг.
  • Объем бетона 4,64 м3
  • Геометрический объем 10,8745 м3
Цена: 180032 руб.
Подробнее
БКНА 12-1 с (КЭ 01-50)
Балки подкрановые Серия КЭ 01-50
  • Длина 11950 мм.
  • Ширина 650 мм.
  • Высота 1400 мм.
  • Вес 11600 кг.
  • Объем бетона 4,64 м3
  • Геометрический объем 10,8745 м3
Цена: 180032 руб.
Подробнее
БКНА 12-1 т (КЭ 01-50)
Балки подкрановые Серия КЭ 01-50
  • Длина 11950 мм.
  • Ширина 650 мм.
  • Высота 1400 мм.
  • Вес 11600 кг.
  • Объем бетона 4,64 м3
  • Геометрический объем 10,8745 м3
Цена: 180032 руб.
Подробнее
БКНА 12-2 к (КЭ 01-50)
Балки подкрановые Серия КЭ 01-50
  • Длина 11950 мм.
  • Ширина 650 мм.
  • Высота 1400 мм.
  • Вес 11600 кг.
  • Объем бетона 4,64 м3
  • Геометрический объем 10,8745 м3
Цена: 180032 руб.
Подробнее
БКНА 12-2 с (КЭ 01-50)
Балки подкрановые Серия КЭ 01-50
  • Длина 11950 мм.
  • Ширина 650 мм.
  • Высота 1400 мм.
  • Вес 11600 кг.
  • Объем бетона 4,64 м3
  • Геометрический объем 10,8745 м3
Цена: 180032 руб.
Подробнее
БКНА 12-2 т (КЭ 01-50)
Балки подкрановые Серия КЭ 01-50
  • Длина 11950 мм.
  • Ширина 650 мм.
  • Высота 1400 мм.
  • Вес 11600 кг.
  • Объем бетона 4,64 м3
  • Геометрический объем 10,8745 м3
Цена: 180032 руб.
Подробнее
БКНА 12-3 к (КЭ 01-50)
Балки подкрановые Серия КЭ 01-50
  • Длина 11950 мм.
  • Ширина 650 мм.
  • Высота 1400 мм.
  • Вес 11600 кг.
  • Объем бетона 4,64 м3
  • Геометрический объем 10,8745 м3
Цена: 180032 руб.
Подробнее
БКНА 12-3 т (КЭ 01-50)
Балки подкрановые Серия КЭ 01-50
  • Длина 11950 мм.
  • Ширина 650 мм.
  • Высота 1400 мм.
  • Вес 11600 кг.
  • Объем бетона 4,64 м3
  • Геометрический объем 10,8745 м3
Цена: 180032 руб.
Подробнее
БКНА 12-3 с (КЭ 01-50)
Балки подкрановые Серия КЭ 01-50
  • Длина 11950 мм.
  • Ширина 650 мм.
  • Высота 1400 мм.
  • Вес 11600 кг.
  • Объем бетона 4,64 м3
  • Геометрический объем 10,8745 м3
Цена: 180032 руб.
Подробнее
БКНА 6-1 к (КЭ 01-50)
Балки подкрановые Серия КЭ 01-50
  • Длина 5950 мм.
  • Ширина 550 мм.
  • Высота 800 мм.
  • Вес 2930 кг.
  • Объем бетона 1,17 м3
  • Геометрический объем 2,618 м3
Цена: 45396 руб.
Подробнее
БКНА 6-1 с (КЭ 01-50)
Балки подкрановые Серия КЭ 01-50
  • Длина 5950 мм.
  • Ширина 550 мм.
  • Высота 800 мм.
  • Вес 2930 кг.
  • Объем бетона 1,17 м3
  • Геометрический объем 2,618 м3
Цена: 45396 руб.
Подробнее
БКНА 6-1 т (КЭ 01-50)
Балки подкрановые Серия КЭ 01-50
  • Длина 5950 мм.
  • Ширина 550 мм.
  • Высота 800 мм.
  • Вес 2930 кг.
  • Объем бетона 1,17 м3
  • Геометрический объем 2,618 м3
Цена: 45396 руб.
Подробнее
БКНА 6-2 т (КЭ 01-50)
Балки подкрановые Серия КЭ 01-50
  • Длина 5950 мм.
  • Ширина 600 мм.
  • Высота 1000 мм.
  • Вес 4150 кг.
  • Объем бетона 1,66 м3
  • Геометрический объем 3,57 м3
Цена: 64408 руб.
Подробнее
БКНА 6-2 с (КЭ 01-50)
Балки подкрановые Серия КЭ 01-50
  • Длина 5950 мм.
  • Ширина 600 мм.
  • Высота 1000 мм.
  • Вес 4150 кг.
  • Объем бетона 1,66 м3
  • Геометрический объем 3,57 м3
Цена: 64408 руб.
Подробнее
БКНА 6-2 к (КЭ 01-50)
Балки подкрановые Серия КЭ 01-50
  • Длина 5950 мм.
  • Ширина 600 мм.
  • Высота 1000 мм.
  • Вес 4150 кг.
  • Объем бетона 1,66 м3
  • Геометрический объем 3,57 м3
Цена: 64408 руб.
Подробнее
БКНА 6-4 к (КЭ 01-50)
Балки подкрановые Серия КЭ 01-50
  • Длина 5950 мм.
  • Ширина 600 мм.
  • Высота 1000 мм.
  • Вес 4150 кг.
  • Объем бетона 1,66 м3
  • Геометрический объем 3,57 м3
Цена: 64408 руб.
Подробнее
БКНА 6-4 с (КЭ 01-50)
Балки подкрановые Серия КЭ 01-50
  • Длина 5950 мм.
  • Ширина 600 мм.
  • Высота 1000 мм.
  • Вес 4150 кг.
  • Объем бетона 1,66 м3
  • Геометрический объем 3,57 м3
Цена: 64408 руб.
Подробнее
БКНА 6-3 т (КЭ 01-50)
Балки подкрановые Серия КЭ 01-50
  • Длина 5950 мм.
  • Ширина 600 мм.
  • Высота 1000 мм.
  • Вес 4150 кг.
  • Объем бетона 1,66 м3
  • Геометрический объем 3,57 м3
Цена: 64408 руб.
Подробнее
БКНА 6-3 с (КЭ 01-50)
Балки подкрановые Серия КЭ 01-50
  • Длина 5950 мм.
  • Ширина 600 мм.
  • Высота 1000 мм.
  • Вес 4150 кг.
  • Объем бетона 1,66 м3
  • Геометрический объем 3,57 м3
Цена: 64408 руб.
Подробнее
БКНА 6-3 к (КЭ 01-50)
Балки подкрановые Серия КЭ 01-50
  • Длина 5950 мм.
  • Ширина 600 мм.
  • Высота 1000 мм.
  • Вес 4150 кг.
  • Объем бетона 1,66 м3
  • Геометрический объем 3,57 м3
Цена: 64408 руб.
Подробнее
БКНБ 12-2 к (КЭ 01-50)
Балки подкрановые Серия КЭ 01-50
  • Длина 11950 мм.
  • Ширина 650 мм.
  • Высота 1400 мм.
  • Вес 11600 кг.
  • Объем бетона 4,64 м3
  • Геометрический объем 10,8745 м3
Цена: 180032 руб.
Подробнее
БКНБ 12-1 с (КЭ 01-50)
Балки подкрановые Серия КЭ 01-50
  • Длина 11950 мм.
  • Ширина 650 мм.
  • Высота 1400 мм.
  • Вес 11600 кг.
  • Объем бетона 4,64 м3
  • Геометрический объем 10,8745 м3
Цена: 180032 руб.
Подробнее
БКНБ 12-1 к (КЭ 01-50)
Балки подкрановые Серия КЭ 01-50
  • Длина 11950 мм.
  • Ширина 650 мм.
  • Высота 1400 мм.
  • Вес 11600 кг.
  • Объем бетона 4,64 м3
  • Геометрический объем 10,8745 м3
Цена: 180032 руб.
Подробнее
БКНА 6-4 т (КЭ 01-50)
Балки подкрановые Серия КЭ 01-50
  • Длина 5950 мм.
  • Ширина 600 мм.
  • Высота 1000 мм.
  • Вес 4150 кг.
  • Объем бетона 1,66 м3
  • Геометрический объем 3,57 м3
Цена: 64408 руб.
Подробнее
БКНБ 12-1 т (КЭ 01-50)
Балки подкрановые Серия КЭ 01-50
  • Длина 11950 мм.
  • Ширина 650 мм.
  • Высота 1400 мм.
  • Вес 11600 кг.
  • Объем бетона 4,64 м3
  • Геометрический объем 10,8745 м3
Цена: 180032 руб.
Подробнее
БКНБ 12-2 с (КЭ 01-50)
Балки подкрановые Серия КЭ 01-50
  • Длина 11950 мм.
  • Ширина 650 мм.
  • Высота 1400 мм.
  • Вес 11600 кг.
  • Объем бетона 4,64 м3
  • Геометрический объем 10,8745 м3
Цена: 180032 руб.
Подробнее
БКНБ 12-3 с (КЭ 01-50)
Балки подкрановые Серия КЭ 01-50
  • Длина 11950 мм.
  • Ширина 650 мм.
  • Высота 1400 мм.
  • Вес 11600 кг.
  • Объем бетона 4,64 м3
  • Геометрический объем 10,8745 м3
Цена: 180032 руб.
Подробнее
БКНБ 12-2 т (КЭ 01-50)
Балки подкрановые Серия КЭ 01-50
  • Длина 11950 мм.
  • Ширина 650 мм.
  • Высота 1400 мм.
  • Вес 11600 кг.
  • Объем бетона 4,64 м3
  • Геометрический объем 10,8745 м3
Цена: 180032 руб.
Подробнее
БКНБ 12-3 к (КЭ 01-50)
Балки подкрановые Серия КЭ 01-50
  • Длина 11950 мм.
  • Ширина 650 мм.
  • Высота 1400 мм.
  • Вес 11600 кг.
  • Объем бетона 4,64 м3
  • Геометрический объем 10,8745 м3
Цена: 180032 руб.
Подробнее
БКНБ 12-3 т (КЭ 01-50)
Балки подкрановые Серия КЭ 01-50
  • Длина 11950 мм.
  • Ширина 650 мм.
  • Высота 1400 мм.
  • Вес 11600 кг.
  • Объем бетона 4,64 м3
  • Геометрический объем 10,8745 м3
Цена: 180032 руб.
Подробнее
БКНБ 6-2 к (КЭ 01-50)
Балки подкрановые Серия КЭ 01-50
  • Длина 5950 мм.
  • Ширина 600 мм.
  • Высота 1000 мм.
  • Вес 4150 кг.
  • Объем бетона 1,66 м3
  • Геометрический объем 3,57 м3
Цена: 64408 руб.
Подробнее
БКНБ 6-1 к (КЭ 01-50)
Балки подкрановые Серия КЭ 01-50
  • Длина 5950 мм.
  • Ширина 550 мм.
  • Высота 800 мм.
  • Вес 2930 кг.
  • Объем бетона 1,17 м3
  • Геометрический объем 2,618 м3
Цена: 45396 руб.
Подробнее
БКНБ 6-1 т (КЭ 01-50)
Балки подкрановые Серия КЭ 01-50
  • Длина 5950 мм.
  • Ширина 550 мм.
  • Высота 800 мм.
  • Вес 2930 кг.
  • Объем бетона 1,17 м3
  • Геометрический объем 2,618 м3
Цена: 45396 руб.
Подробнее
БКНБ 6-2 с (КЭ 01-50)
Балки подкрановые Серия КЭ 01-50
  • Длина 5950 мм.
  • Ширина 600 мм.
  • Высота 1000 мм.
  • Вес 4150 кг.
  • Объем бетона 1,66 м3
  • Геометрический объем 3,57 м3
Цена: 64408 руб.
Подробнее
БКНБ 6-1 с (КЭ 01-50)
Балки подкрановые Серия КЭ 01-50
  • Длина 5950 мм.
  • Ширина 550 мм.
  • Высота 800 мм.
  • Вес 2930 кг.
  • Объем бетона 1,17 м3
  • Геометрический объем 2,618 м3
Цена: 45396 руб.
Подробнее
БКНБ 6-3 к (КЭ 01-50)
Балки подкрановые Серия КЭ 01-50
  • Длина 5950 мм.
  • Ширина 600 мм.
  • Высота 1000 мм.
  • Вес 4150 кг.
  • Объем бетона 1,66 м3
  • Геометрический объем 3,57 м3
Цена: 64408 руб.
Подробнее
БКНБ 6-3 с (КЭ 01-50)
Балки подкрановые Серия КЭ 01-50
  • Длина 5950 мм.
  • Ширина 600 мм.
  • Высота 1000 мм.
  • Вес 4150 кг.
  • Объем бетона 1,66 м3
  • Геометрический объем 3,57 м3
Цена: 64408 руб.
Подробнее
БКНБ 6-3 т (КЭ 01-50)
Балки подкрановые Серия КЭ 01-50
  • Длина 5950 мм.
  • Ширина 600 мм.
  • Высота 1000 мм.
  • Вес 4150 кг.
  • Объем бетона 1,66 м3
  • Геометрический объем 3,57 м3
Цена: 64408 руб.
Подробнее
БКНБ 6-4 к (КЭ 01-50)
Балки подкрановые Серия КЭ 01-50
  • Длина 5950 мм.
  • Ширина 600 мм.
  • Высота 1000 мм.
  • Вес 4150 кг.
  • Объем бетона 1,66 м3
  • Геометрический объем 3,57 м3
Цена: 64408 руб.
Подробнее
БКНБ 6-2 т (КЭ 01-50)
Балки подкрановые Серия КЭ 01-50
  • Длина 5950 мм.
  • Ширина 600 мм.
  • Высота 1000 мм.
  • Вес 4150 кг.
  • Объем бетона 1,66 м3
  • Геометрический объем 3,57 м3
Цена: 64408 руб.
Подробнее
БКНБ 6-4 с (КЭ 01-50)
Балки подкрановые Серия КЭ 01-50
  • Длина 5950 мм.
  • Ширина 600 мм.
  • Высота 1000 мм.
  • Вес 4150 кг.
  • Объем бетона 1,66 м3
  • Геометрический объем 3,57 м3
Цена: 64408 руб.
Подробнее
БКНВ 12-1 к (КЭ 01-50)
Балки подкрановые Серия КЭ 01-50
  • Длина 11950 мм.
  • Ширина 650 мм.
  • Высота 1400 мм.
  • Вес 10700 кг.
  • Объем бетона 4,27 м3
  • Геометрический объем 10,8745 м3
Цена: 165676 руб.
Подробнее
БКНВ 12-1 с (КЭ 01-50)
Балки подкрановые Серия КЭ 01-50
  • Длина 11950 мм.
  • Ширина 650 мм.
  • Высота 1400 мм.
  • Вес 10700 кг.
  • Объем бетона 4,27 м3
  • Геометрический объем 10,8745 м3
Цена: 165676 руб.
Подробнее
БКНВ 12-1 т (КЭ 01-50)
Балки подкрановые Серия КЭ 01-50
  • Длина 11950 мм.
  • Ширина 650 мм.
  • Высота 1400 мм.
  • Вес 10700 кг.
  • Объем бетона 4,27 м3
  • Геометрический объем 10,8745 м3
Цена: 165676 руб.
Подробнее
БКНБ 6-4 т (КЭ 01-50)
Балки подкрановые Серия КЭ 01-50
  • Длина 5950 мм.
  • Ширина 600 мм.
  • Высота 1000 мм.
  • Вес 4150 кг.
  • Объем бетона 1,66 м3
  • Геометрический объем 3,57 м3
Цена: 64408 руб.
Подробнее
БКНВ 12-2 к (КЭ 01-50)
Балки подкрановые Серия КЭ 01-50
  • Длина 11950 мм.
  • Ширина 650 мм.
  • Высота 1400 мм.
  • Вес 10700 кг.
  • Объем бетона 4,27 м3
  • Геометрический объем 10,8745 м3
Цена: 165676 руб.
Подробнее
БКНВ 12-2 с (КЭ 01-50)
Балки подкрановые Серия КЭ 01-50
  • Длина 11950 мм.
  • Ширина 650 мм.
  • Высота 1400 мм.
  • Вес 10700 кг.
  • Объем бетона 4,27 м3
  • Геометрический объем 10,8745 м3
Цена: 165676 руб.
Подробнее
БКНВ 12-3 к (КЭ 01-50)
Балки подкрановые Серия КЭ 01-50
  • Длина 11950 мм.
  • Ширина 650 мм.
  • Высота 1400 мм.
  • Вес 10700 кг.
  • Объем бетона 4,27 м3
  • Геометрический объем 10,8745 м3
Цена: 165676 руб.
Подробнее
БКНВ 12-2 т (КЭ 01-50)
Балки подкрановые Серия КЭ 01-50
  • Длина 11950 мм.
  • Ширина 650 мм.
  • Высота 1400 мм.
  • Вес 10700 кг.
  • Объем бетона 4,27 м3
  • Геометрический объем 10,8745 м3
Цена: 165676 руб.
Подробнее
БКНВ 12-3 с (КЭ 01-50)
Балки подкрановые Серия КЭ 01-50
  • Длина 11950 мм.
  • Ширина 650 мм.
  • Высота 1400 мм.
  • Вес 10700 кг.
  • Объем бетона 4,27 м3
  • Геометрический объем 10,8745 м3
Цена: 165676 руб.
Подробнее
БКНВ 12-3 т (КЭ 01-50)
Балки подкрановые Серия КЭ 01-50
  • Длина 11950 мм.
  • Ширина 650 мм.
  • Высота 1400 мм.
  • Вес 10700 кг.
  • Объем бетона 4,27 м3
  • Геометрический объем 10,8745 м3
Цена: 165676 руб.
Подробнее

Уведомление о файлах cookie

Мы используем файлы cookie для улучшения вашего опыта просмотра и анализа трафика. Нажимая "Принять все", вы соглашаетесь с нашей политикой конфиденциальности и политикой обработки файлов cookie.

MAX Дзен Телеграм Вконтакте vk