mobile_sound +7 (930) 655-55-90

Техническая документация и чертежи (ИНВ 28900м)

Поделиться:
Поделиться:

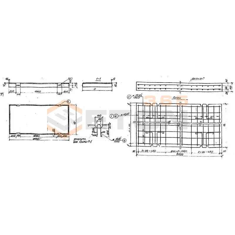
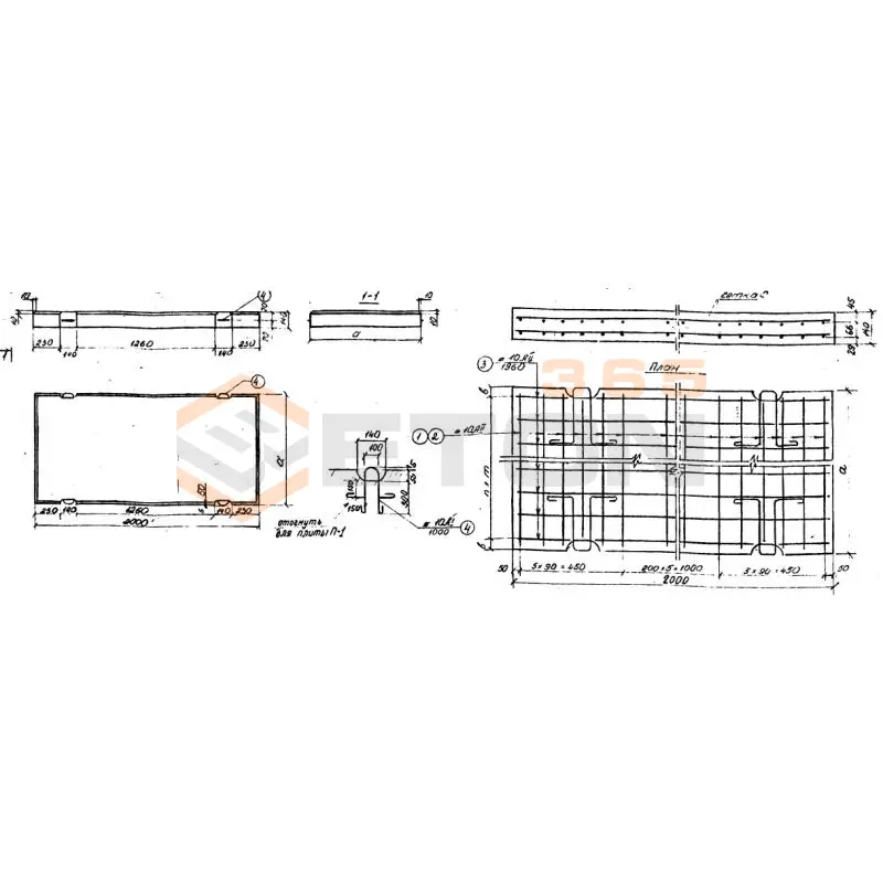
Документ ИНВ 28900м описывает область применения, номенклатуру и ключевые требования, опираясь на действующие нормы и практику проектирования. Рабочая документация ИНВ 28900м была разработана Министерством транспортного строительства ГЛАВТРАНСПРОЕКТ и ГПИ СОЮЗПРОЕКТ в 1983 году и состоит из перечня рекомендаций, необходимых для производства сводчатых плит и других конструкций, предназначенных под пролетные строения мостов длиной 12 и 18 метров. Представленные в документе конструкции могут быть использованы в разных температурно-неразрезных схемах в любых климатических условиях и подходят под пролеты габаритов Г4,5 и Г6,5. Расчет прочности велся на основе нагрузки за пределами проезжей части в размере НК80.

Файлы для скачивания:
picture_as_pdf

5708.pdf

4,511.8 KB

скачать
Товары ИНВ 28900м (13)
Б (ИНВ 28900м)
Блоки карнизные ИНВ 28900м
  • Длина 2990 мм.
  • Ширина 454 мм.
  • Высота 300 мм.
  • Вес 490 кг.
  • Объем бетона 0,197 м3
  • Геометрический объем 0,4072 м3
Цена: 6688 руб.
Подробнее
БКн (ИНВ 28900м)
Блоки карнизные ИНВ 28900м
  • Длина 2990 мм.
  • Ширина 454 мм.
  • Высота 300 мм.
  • Вес 480 кг.
  • Объем бетона 0,19 м3
  • Геометрический объем 0,4072 м3
Цена: 6451 руб.
Подробнее
БКт (ИНВ 28900м)
Блоки карнизные ИНВ 28900м
  • Длина 2990 мм.
  • Ширина 454 мм.
  • Высота 300 мм.
  • Вес 480 кг.
  • Объем бетона 0,19 м3
  • Геометрический объем 0,4072 м3
Цена: 6451 руб.
Подробнее
Б 12 (ИНВ 28900м)
Блоки пролетных строений ИНВ 28900м
  • Длина 12000 мм.
  • Ширина 1800 мм.
  • Высота 600 мм.
  • Вес 13200 кг.
  • Объем бетона 5,27 м3
  • Геометрический объем 12,96 м3
Цена: 255595 руб.
Подробнее
Б 18 (ИНВ 28900м)
Блоки пролетных строений ИНВ 28900м
  • Длина 18000 мм.
  • Ширина 1800 мм.
  • Высота 800 мм.
  • Вес 23800 кг.
  • Объем бетона 9,52 м3
  • Геометрический объем 25,92 м3
Цена: 461720 руб.
Подробнее
Б 12 к (ИНВ 28900м)
Блоки пролетных строений ИНВ 28900м
  • Длина 12000 мм.
  • Ширина 1800 мм.
  • Высота 600 мм.
  • Вес 13200 кг.
  • Объем бетона 5,27 м3
  • Геометрический объем 12,96 м3
Цена: 255595 руб.
Подробнее
Б 12 кт (ИНВ 28900м)
Блоки пролетных строений ИНВ 28900м
  • Длина 12000 мм.
  • Ширина 1800 мм.
  • Высота 600 мм.
  • Вес 13200 кг.
  • Объем бетона 5,27 м3
  • Геометрический объем 12,96 м3
Цена: 255595 руб.
Подробнее
Б 18 к (ИНВ 28900м)
Блоки пролетных строений ИНВ 28900м
  • Длина 18000 мм.
  • Ширина 1800 мм.
  • Высота 800 мм.
  • Вес 23800 кг.
  • Объем бетона 9,52 м3
  • Геометрический объем 25,92 м3
Цена: 461720 руб.
Подробнее
Б 18 кт (ИНВ 28900м)
Блоки пролетных строений ИНВ 28900м
  • Длина 18000 мм.
  • Ширина 1800 мм.
  • Высота 800 мм.
  • Вес 23800 кг.
  • Объем бетона 9,52 м3
  • Геометрический объем 25,92 м3
Цена: 461720 руб.
Подробнее
Т 0,75 (ИНВ 28900м)
Блоки тротуарные ИНВ 28900м
  • Длина 2990 мм.
  • Ширина 940 мм.
  • Высота 280 мм.
  • Вес 1120 кг.
  • Объем бетона 0,45 м3
  • Геометрический объем 0,787 м3
Цена: 15278 руб.
Подробнее
Т 1,5 (ИНВ 28900м)
Блоки тротуарные ИНВ 28900м
  • Длина 2990 мм.
  • Ширина 1690 мм.
  • Высота 280 мм.
  • Вес 1420 кг.
  • Объем бетона 0,57 м3
  • Геометрический объем 1,4149 м3
Цена: 19352 руб.
Подробнее
П 1 (ИНВ 28900м)
Плиты ИНВ 28900м
  • Длина 2000 мм.
  • Ширина 520 мм.
  • Высота 140 мм.
  • Вес 370 кг.
  • Объем бетона 0,15 м3
  • Геометрический объем 0,1456 м3
Цена: 3638 руб.
Подробнее
П 2 (ИНВ 28900м)
Плиты ИНВ 28900м
  • Длина 2000 мм.
  • Ширина 1810 мм.
  • Высота 140 мм.
  • Вес 1270 кг.
  • Объем бетона 0,51 м3
  • Геометрический объем 0,5068 м3
Цена: 12368 руб.
Подробнее

Уведомление о файлах cookie

Мы используем файлы cookie для улучшения вашего опыта просмотра и анализа трафика. Нажимая "Принять все", вы соглашаетесь с нашей политикой конфиденциальности и политикой обработки файлов cookie.

MAX Дзен Телеграм Вконтакте vk