mobile_sound +7 (930) 655-55-90

Панели наружных цокольных стен Серия 1.117-13

Поделиться:
Фильтр по характеристикам
Длина (мм.)
keyboard_arrow_down
мм.
мм.
Ширина (мм.)
keyboard_arrow_down
мм.
мм.
Высота (мм.)
keyboard_arrow_down
мм.
мм.
Вес (кг.)
keyboard_arrow_down
кг.
кг.
Объем бетона (м3)
keyboard_arrow_down
м3
м3
Поделиться:

Завод "Бетон365" производит панели наружных цокольных стен Серия 1.117-13 – ключевые элементы для формирования прочного и устойчивого цокольного этажа зданий различного назначения. Эти железобетонные изделия, соответствующие строгим требованиям ГОСТ, обеспечивают надежную защиту от внешних воздействий, равномерно распределяют нагрузку от вышележащих конструкций и значительно сокращают сроки монтажа. Применение готовых панелей исключает необходимость трудоемкого монолитного бетонирования, гарантируя идеальную геометрию и долговечность сооружения.

Мы реализуем панели наружных цокольных стен Серия 1.117-13 в Москве и МО по конкурентной цене от производителя, что позволяет заказчикам экономить без потери в качестве. В каталоге представлены изделия с разными характеристиками для любых проектов. Организуем оперативную доставку на объект и предоставим подробные консультации по монтажу. Чтобы купить надежные ЖБИ с гарантией, обратитесь к нашим специалистам для расчета стоимости заказа!

ЦР 1-27-20-3
Панели наружных цокольных стен Серия 1.117-13
  • Длина 2690 мм.
  • Ширина 300 мм.
  • Высота 2030 мм.
  • Вес 2755 кг.
  • Объем бетона 1,311 м3
  • Геометрический объем 1,6382 м3
Цена: 44508 руб.
Подробнее
ЦР 1-27-20-4
Панели наружных цокольных стен Серия 1.117-13
  • Длина 2690 мм.
  • Ширина 400 мм.
  • Высота 2030 мм.
  • Вес 3715 кг.
  • Объем бетона 1,819 м3
  • Геометрический объем 2,1843 м3
Цена: 61755 руб.
Подробнее
ЦР 1-30-20-3
Панели наружных цокольных стен Серия 1.117-13
  • Длина 2990 мм.
  • Ширина 300 мм.
  • Высота 2030 мм.
  • Вес 7670 кг.
  • Объем бетона 1,472 м3
  • Геометрический объем 1,8209 м3
Цена: 49974 руб.
Подробнее
ЦР 1-27-20-35
Панели наружных цокольных стен Серия 1.117-13
  • Длина 2690 мм.
  • Ширина 350 мм.
  • Высота 2030 мм.
  • Вес 3235 кг.
  • Объем бетона 1,568 м3
  • Геометрический объем 1,9112 м3
Цена: 53234 руб.
Подробнее
ЦР 1-30-20-35
Панели наружных цокольных стен Серия 1.117-13
  • Длина 2990 мм.
  • Ширина 350 мм.
  • Высота 2030 мм.
  • Вес 7830 кг.
  • Объем бетона 1,753 м3
  • Геометрический объем 2,1244 м3
Цена: 59514 руб.
Подробнее
ЦР 1-30-20-4
Панели наружных цокольных стен Серия 1.117-13
  • Длина 2990 мм.
  • Ширина 400 мм.
  • Высота 2030 мм.
  • Вес 8200 кг.
  • Объем бетона 2,032 м3
  • Геометрический объем 2,4279 м3
Цена: 68986 руб.
Подробнее
ЦР 1-60-20-3
Панели наружных цокольных стен Серия 1.117-13
  • Длина 5990 мм.
  • Ширина 300 мм.
  • Высота 2030 мм.
  • Вес 6275 кг.
  • Объем бетона 2,992 м3
  • Геометрический объем 3,6479 м3
Цена: 101578 руб.
Подробнее
ЦР 1-36-20-3
Панели наружных цокольных стен Серия 1.117-13
  • Длина 3590 мм.
  • Ширина 300 мм.
  • Высота 2030 мм.
  • Вес 7790 кг.
  • Объем бетона 1,779 м3
  • Геометрический объем 2,1863 м3
Цена: 60397 руб.
Подробнее
ЦР 1-36-20-4
Панели наружных цокольных стен Серия 1.117-13
  • Длина 3590 мм.
  • Ширина 400 мм.
  • Высота 2030 мм.
  • Вес 5025 кг.
  • Объем бетона 2,46 м3
  • Геометрический объем 2,9151 м3
Цена: 83517 руб.
Подробнее
ЦР 1-60-20-35
Панели наружных цокольных стен Серия 1.117-13
  • Длина 5990 мм.
  • Ширина 350 мм.
  • Высота 2030 мм.
  • Вес 7880 кг.
  • Объем бетона 3,568 м3
  • Геометрический объем 4,2559 м3
Цена: 121134 руб.
Подробнее
ЦР 1-36-20-35
Панели наружных цокольных стен Серия 1.117-13
  • Длина 3590 мм.
  • Ширина 350 мм.
  • Высота 2030 мм.
  • Вес 4375 кг.
  • Объем бетона 2,12 м3
  • Геометрический объем 2,5507 м3
Цена: 71974 руб.
Подробнее
ЦР 1-66-20-3
Панели наружных цокольных стен Серия 1.117-13
  • Длина 6590 мм.
  • Ширина 300 мм.
  • Высота 2030 мм.
  • Вес 6940 кг.
  • Объем бетона 3,306 м3
  • Геометрический объем 4,0133 м3
Цена: 112239 руб.
Подробнее
ЦР 1-66-20-35
Панели наружных цокольных стен Серия 1.117-13
  • Длина 6590 мм.
  • Ширина 350 мм.
  • Высота 2030 мм.
  • Вес 7235 кг.
  • Объем бетона 3,938 м3
  • Геометрический объем 4,6822 м3
Цена: 133695 руб.
Подробнее
ЦР 2-34-19-35
Панели наружных цокольных стен Серия 1.117-13
  • Длина 3445 мм.
  • Ширина 350 мм.
  • Высота 1900 мм.
  • Вес 3855 кг.
  • Объем бетона 1,87 м3
  • Геометрический объем 2,2909 м3
Цена: 63487 руб.
Подробнее
ЦР 2-34-19-3
Панели наружных цокольных стен Серия 1.117-13
  • Длина 3395 мм.
  • Ширина 300 мм.
  • Высота 1900 мм.
  • Вес 3240 кг.
  • Объем бетона 1,535 м3
  • Геометрический объем 1,9351 м3
Цена: 52113 руб.
Подробнее
ЦР 1л-66-20-3
Панели наружных цокольных стен Серия 1.117-13
  • Длина 6590 мм.
  • Ширина 300 мм.
  • Высота 2030 мм.
  • Вес 6940 кг.
  • Объем бетона 3,306 м3
  • Геометрический объем 4,0133 м3
Цена: 112239 руб.
Подробнее
ЦР 2-34-20-3
Панели наружных цокольных стен Серия 1.117-13
  • Длина 3395 мм.
  • Ширина 300 мм.
  • Высота 2030 мм.
  • Вес 3350 кг.
  • Объем бетона 1,554 м3
  • Геометрический объем 2,0676 м3
Цена: 52758 руб.
Подробнее
ЦР 1л-66-20-35
Панели наружных цокольных стен Серия 1.117-13
  • Длина 6590 мм.
  • Ширина 350 мм.
  • Высота 2030 мм.
  • Вес 7235 кг.
  • Объем бетона 3,938 м3
  • Геометрический объем 4,6822 м3
Цена: 133695 руб.
Подробнее
ЦР 2-34-20-35
Панели наружных цокольных стен Серия 1.117-13
  • Длина 3445 мм.
  • Ширина 350 мм.
  • Высота 2030 мм.
  • Вес 4010 кг.
  • Объем бетона 1,908 м3
  • Геометрический объем 2,4477 м3
Цена: 64777 руб.
Подробнее
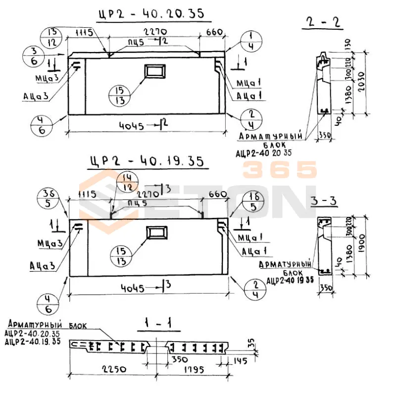
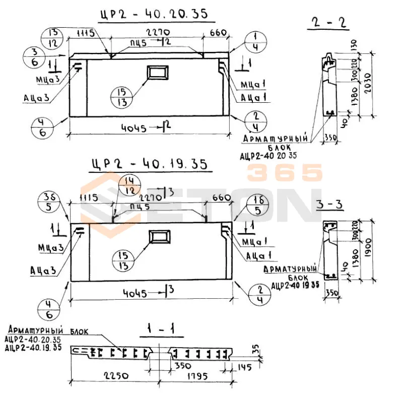
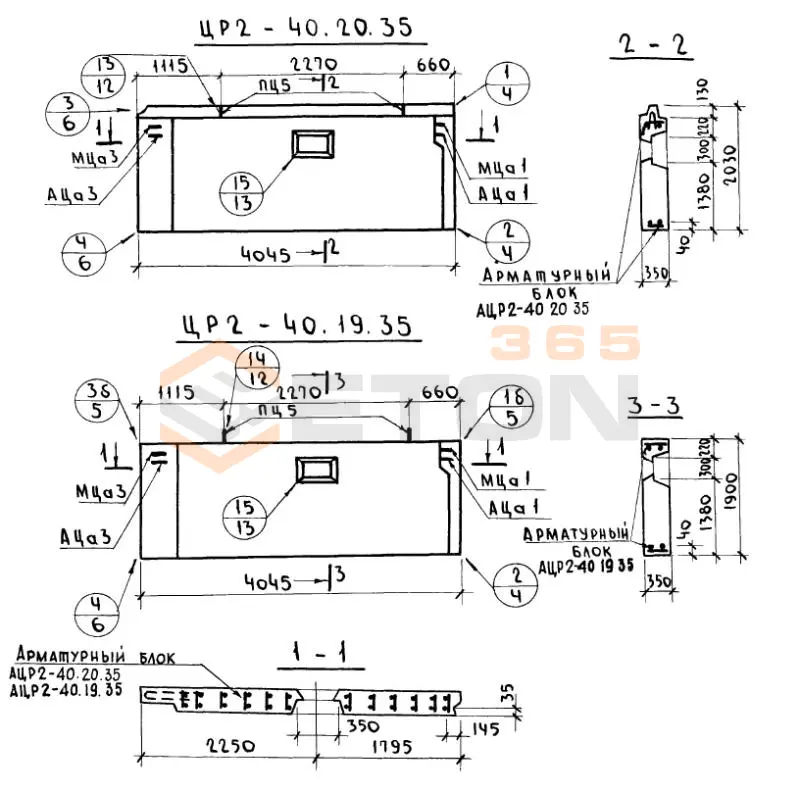
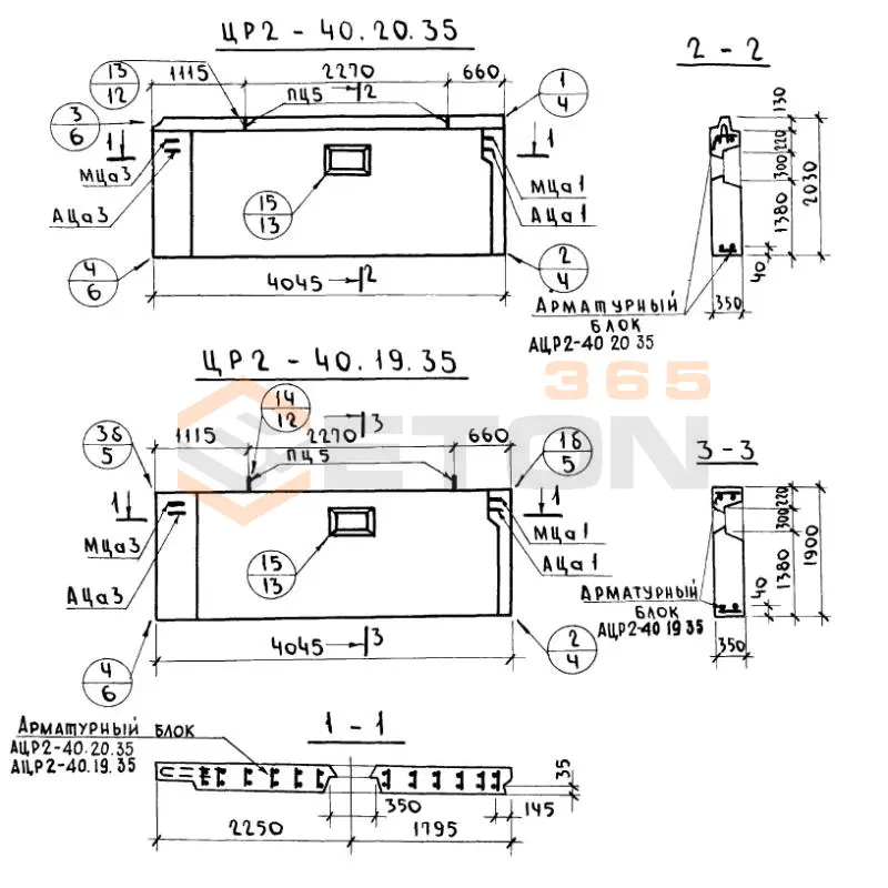
ЦР 2-40-19-35
Панели наружных цокольных стен Серия 1.117-13
  • Длина 4045 мм.
  • Ширина 350 мм.
  • Высота 1900 мм.
  • Вес 4595 кг.
  • Объем бетона 2,235 м3
  • Геометрический объем 2,6899 м3
Цена: 75878 руб.
Подробнее
ЦР 2-35-19-4
Панели наружных цокольных стен Серия 1.117-13
  • Длина 3495 мм.
  • Ширина 400 мм.
  • Высота 2030 мм.
  • Вес 4480 кг.
  • Объем бетона 2,212 м3
  • Геометрический объем 2,8379 м3
Цена: 75097 руб.
Подробнее
ЦР 2-40-19-3
Панели наружных цокольных стен Серия 1.117-13
  • Длина 3995 мм.
  • Ширина 300 мм.
  • Высота 1900 мм.
  • Вес 3870 кг.
  • Объем бетона 1,843 м3
  • Геометрический объем 2,2771 м3
Цена: 62570 руб.
Подробнее
ЦР 2-40-20-35
Панели наружных цокольных стен Серия 1.117-13
  • Длина 4045 мм.
  • Ширина 350 мм.
  • Высота 2030 мм.
  • Вес 4775 кг.
  • Объем бетона 2,282 м3
  • Геометрический объем 2,874 м3
Цена: 77474 руб.
Подробнее
ЦР 2-40-20-3
Панели наружных цокольных стен Серия 1.117-13
  • Длина 3995 мм.
  • Ширина 300 мм.
  • Высота 2030 мм.
  • Вес 4025 кг.
  • Объем бетона 1,876 м3
  • Геометрический объем 2,433 м3
Цена: 63690 руб.
Подробнее
ЦР 2-35-20-4
Панели наружных цокольных стен Серия 1.117-13
  • Длина 3495 мм.
  • Ширина 400 мм.
  • Высота 2030 мм.
  • Вес 4690 кг.
  • Объем бетона 2,257 м3
  • Геометрический объем 2,8379 м3
Цена: 76625 руб.
Подробнее
ЦР 2-41-19-4
Панели наружных цокольных стен Серия 1.117-13
  • Длина 4095 мм.
  • Ширина 400 мм.
  • Высота 1900 мм.
  • Вес 5430 кг.
  • Объем бетона 2,633 м3
  • Геометрический объем 3,1122 м3
Цена: 89390 руб.
Подробнее
ЦР 2-41-20-4
Панели наружных цокольных стен Серия 1.117-13
  • Длина 4095 мм.
  • Ширина 400 мм.
  • Высота 2030 мм.
  • Вес 5560 кг.
  • Объем бетона 2,683 м3
  • Геометрический объем 3,3251 м3
Цена: 91088 руб.
Подробнее
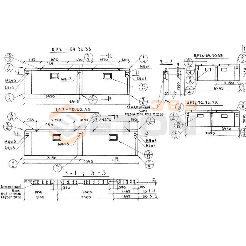
ЦР 2-64-20-3
Панели наружных цокольных стен Серия 1.117-13
  • Длина 6395 мм.
  • Ширина 300 мм.
  • Высота 2030 мм.
  • Вес 6515 кг.
  • Объем бетона 3,051 м3
  • Геометрический объем 3,8946 м3
Цена: 103581 руб.
Подробнее
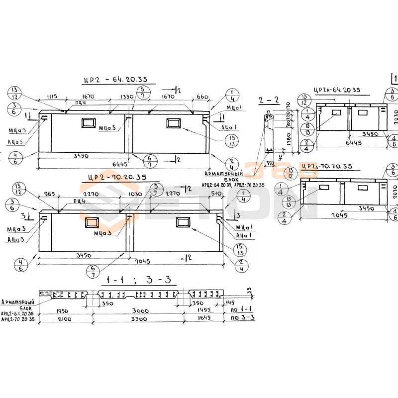
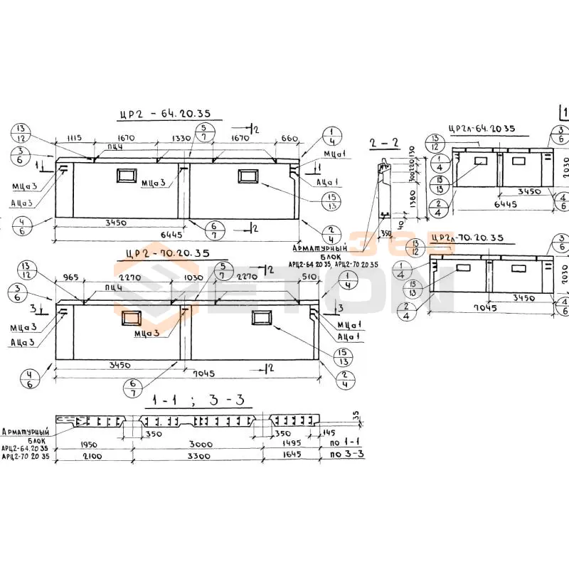
ЦР 2-70-20-3
Панели наружных цокольных стен Серия 1.117-13
  • Длина 6995 мм.
  • Ширина 300 мм.
  • Высота 2030 мм.
  • Вес 7165 кг.
  • Объем бетона 3,364 м3
  • Геометрический объем 4,26 м3
Цена: 114208 руб.
Подробнее
ЦР 2-70-20-35
Панели наружных цокольных стен Серия 1.117-13
  • Длина 7045 мм.
  • Ширина 350 мм.
  • Высота 2030 мм.
  • Вес 7090 кг.
  • Объем бетона 4,074 м3
  • Геометрический объем 5,0055 м3
Цена: 138312 руб.
Подробнее
ЦР 2-64-20-35
Панели наружных цокольных стен Серия 1.117-13
  • Длина 6445 мм.
  • Ширина 350 мм.
  • Высота 2030 мм.
  • Вес 7295 кг.
  • Объем бетона 3,707 м3
  • Геометрический объем 4,5792 м3
Цена: 125853 руб.
Подробнее
ЦР 2л-34-19-3
Панели наружных цокольных стен Серия 1.117-13
  • Длина 3395 мм.
  • Ширина 300 мм.
  • Высота 1900 мм.
  • Вес 3240 кг.
  • Объем бетона 1,535 м3
  • Геометрический объем 1,9351 м3
Цена: 52113 руб.
Подробнее
ЦР 2л-34-20-3
Панели наружных цокольных стен Серия 1.117-13
  • Длина 3395 мм.
  • Ширина 300 мм.
  • Высота 2030 мм.
  • Вес 3350 кг.
  • Объем бетона 1,554 м3
  • Геометрический объем 2,0676 м3
Цена: 52758 руб.
Подробнее
ЦР 2л-35-20-4
Панели наружных цокольных стен Серия 1.117-13
  • Длина 3495 мм.
  • Ширина 400 мм.
  • Высота 2030 мм.
  • Вес 4690 кг.
  • Объем бетона 2,257 м3
  • Геометрический объем 2,8379 м3
Цена: 76625 руб.
Подробнее
ЦР 2л-40-19-3
Панели наружных цокольных стен Серия 1.117-13
  • Длина 3995 мм.
  • Ширина 300 мм.
  • Высота 1900 мм.
  • Вес 3870 кг.
  • Объем бетона 1,843 м3
  • Геометрический объем 2,2771 м3
Цена: 62570 руб.
Подробнее
ЦР 2л-34-20-35
Панели наружных цокольных стен Серия 1.117-13
  • Длина 3445 мм.
  • Ширина 350 мм.
  • Высота 2030 мм.
  • Вес 4010 кг.
  • Объем бетона 1,908 м3
  • Геометрический объем 2,4477 м3
Цена: 64777 руб.
Подробнее
ЦР 2л-34-19-35
Панели наружных цокольных стен Серия 1.117-13
  • Длина 3445 мм.
  • Ширина 350 мм.
  • Высота 1900 мм.
  • Вес 3855 кг.
  • Объем бетона 1,87 м3
  • Геометрический объем 2,2909 м3
Цена: 63487 руб.
Подробнее
ЦР 2л-35-19-4
Панели наружных цокольных стен Серия 1.117-13
  • Длина 3495 мм.
  • Ширина 400 мм.
  • Высота 2030 мм.
  • Вес 4480 кг.
  • Объем бетона 2,212 м3
  • Геометрический объем 2,8379 м3
Цена: 75097 руб.
Подробнее
ЦР 2л-40-19-35
Панели наружных цокольных стен Серия 1.117-13
  • Длина 4045 мм.
  • Ширина 350 мм.
  • Высота 1900 мм.
  • Вес 4595 кг.
  • Объем бетона 2,235 м3
  • Геометрический объем 2,6899 м3
Цена: 75878 руб.
Подробнее
ЦР 2л-40-20-3
Панели наружных цокольных стен Серия 1.117-13
  • Длина 3995 мм.
  • Ширина 300 мм.
  • Высота 2030 мм.
  • Вес 4025 кг.
  • Объем бетона 1,876 м3
  • Геометрический объем 2,433 м3
Цена: 63690 руб.
Подробнее
ЦР 2л-40-20-35
Панели наружных цокольных стен Серия 1.117-13
  • Длина 4045 мм.
  • Ширина 350 мм.
  • Высота 2030 мм.
  • Вес 4775 кг.
  • Объем бетона 2,282 м3
  • Геометрический объем 2,874 м3
Цена: 77474 руб.
Подробнее
ЦР 2л-41-19-4
Панели наружных цокольных стен Серия 1.117-13
  • Длина 4095 мм.
  • Ширина 400 мм.
  • Высота 1900 мм.
  • Вес 5430 кг.
  • Объем бетона 2,633 м3
  • Геометрический объем 3,1122 м3
Цена: 89390 руб.
Подробнее
ЦР 2л-41-20-4
Панели наружных цокольных стен Серия 1.117-13
  • Длина 4095 мм.
  • Ширина 400 мм.
  • Высота 2030 мм.
  • Вес 5560 кг.
  • Объем бетона 2,683 м3
  • Геометрический объем 3,3251 м3
Цена: 91088 руб.
Подробнее
ЦР 2л-64-20-35
Панели наружных цокольных стен Серия 1.117-13
  • Длина 6445 мм.
  • Ширина 350 мм.
  • Высота 2030 мм.
  • Вес 7295 кг.
  • Объем бетона 3,707 м3
  • Геометрический объем 4,5792 м3
Цена: 125853 руб.
Подробнее
ЦР 2л-64-20-3
Панели наружных цокольных стен Серия 1.117-13
  • Длина 6395 мм.
  • Ширина 300 мм.
  • Высота 2030 мм.
  • Вес 6515 кг.
  • Объем бетона 3,051 м3
  • Геометрический объем 3,8946 м3
Цена: 103581 руб.
Подробнее
ЦР 2л-70-20-3
Панели наружных цокольных стен Серия 1.117-13
  • Длина 6995 мм.
  • Ширина 300 мм.
  • Высота 2030 мм.
  • Вес 7165 кг.
  • Объем бетона 3,364 м3
  • Геометрический объем 4,26 м3
Цена: 114208 руб.
Подробнее
ЦР 2л-70-20-35
Панели наружных цокольных стен Серия 1.117-13
  • Длина 7045 мм.
  • Ширина 350 мм.
  • Высота 2030 мм.
  • Вес 7090 кг.
  • Объем бетона 4,074 м3
  • Геометрический объем 5,0055 м3
Цена: 138312 руб.
Подробнее
ЦР 4-26-19-3
Панели наружных цокольных стен Серия 1.117-13
  • Длина 2595 мм.
  • Ширина 300 мм.
  • Высота 1900 мм.
  • Вес 2580 кг.
  • Объем бетона 1,246 м3
  • Геометрический объем 1,4791 м3
Цена: 42302 руб.
Подробнее
ЦР 4-26-19-35
Панели наружных цокольных стен Серия 1.117-13
  • Длина 2595 мм.
  • Ширина 350 мм.
  • Высота 1900 мм.
  • Вес 3010 кг.
  • Объем бетона 1,486 м3
  • Геометрический объем 1,7257 м3
Цена: 50450 руб.
Подробнее
ЦР 4-26-20-35
Панели наружных цокольных стен Серия 1.117-13
  • Длина 2595 мм.
  • Ширина 350 мм.
  • Высота 2030 мм.
  • Вес 3130 кг.
  • Объем бетона 1,517 м3
  • Геометрический объем 1,8437 м3
Цена: 51502 руб.
Подробнее
ЦР 4-26-20-3
Панели наружных цокольных стен Серия 1.117-13
  • Длина 2595 мм.
  • Ширина 300 мм.
  • Высота 2030 мм.
  • Вес 2670 кг.
  • Объем бетона 1,27 м3
  • Геометрический объем 1,5804 м3
Цена: 43117 руб.
Подробнее
ЦР 4-26-19-4
Панели наружных цокольных стен Серия 1.117-13
  • Длина 2595 мм.
  • Ширина 400 мм.
  • Высота 1900 мм.
  • Вес 3440 кг.
  • Объем бетона 1,725 м3
  • Геометрический объем 1,9722 м3
Цена: 58564 руб.
Подробнее
ЦР 4-26-20-4
Панели наружных цокольных стен Серия 1.117-13
  • Длина 2595 мм.
  • Ширина 400 мм.
  • Высота 2030 мм.
  • Вес 3595 кг.
  • Объем бетона 1,763 м3
  • Геометрический объем 2,1071 м3
Цена: 59854 руб.
Подробнее
ЦР 4-29-19-35
Панели наружных цокольных стен Серия 1.117-13
  • Длина 2895 мм.
  • Ширина 350 мм.
  • Высота 1900 мм.
  • Вес 3380 кг.
  • Объем бетона 1,668 м3
  • Геометрический объем 1,9252 м3
Цена: 56629 руб.
Подробнее
ЦР 4-29-20-35
Панели наружных цокольных стен Серия 1.117-13
  • Длина 2895 мм.
  • Ширина 350 мм.
  • Высота 2030 мм.
  • Вес 3515 кг.
  • Объем бетона 1,701 м3
  • Геометрический объем 2,0569 м3
Цена: 57749 руб.
Подробнее
ЦР 4-29-20-4
Панели наружных цокольных стен Серия 1.117-13
  • Длина 2895 мм.
  • Ширина 400 мм.
  • Высота 2030 мм.
  • Вес 4030 кг.
  • Объем бетона 1,977 м3
  • Геометрический объем 2,3507 м3
Цена: 67119 руб.
Подробнее
ЦР 4-29-19-3
Панели наружных цокольных стен Серия 1.117-13
  • Длина 2895 мм.
  • Ширина 300 мм.
  • Высота 1900 мм.
  • Вес 2900 кг.
  • Объем бетона 1,4 м3
  • Геометрический объем 1,6502 м3
Цена: 47530 руб.
Подробнее
ЦР 4-29-19-4
Панели наружных цокольных стен Серия 1.117-13
  • Длина 2895 мм.
  • Ширина 400 мм.
  • Высота 1900 мм.
  • Вес 3860 кг.
  • Объем бетона 1,936 м3
  • Геометрический объем 2,2002 м3
Цена: 65727 руб.
Подробнее
ЦР 4-29-20-3
Панели наружных цокольных стен Серия 1.117-13
  • Длина 2895 мм.
  • Ширина 300 мм.
  • Высота 2030 мм.
  • Вес 3040 кг.
  • Объем бетона 1,467 м3
  • Геометрический объем 1,7631 м3
Цена: 49805 руб.
Подробнее
ЦР 4-35-19-3
Панели наружных цокольных стен Серия 1.117-13
  • Длина 3495 мм.
  • Ширина 300 мм.
  • Высота 2030 мм.
  • Вес 3530 кг.
  • Объем бетона 1,707 м3
  • Геометрический объем 2,1285 м3
Цена: 57953 руб.
Подробнее

Как правильно выбрать - Панели наружных цокольных стен Серия 1.117-13

Панели наружных цокольных стен Серия 1.117-13 предназначены для возведения цокольной части зданий и подвальных помещений. Они выполняют ключевую функцию ограждающей и несущей конструкции, воспринимая давление грунта и обеспечивая защиту от влаги и промерзания. Долговечность и устойчивость всего здания напрямую зависят от соответствия выбранных панелей проектным нагрузкам и агрессивности грунтовых условий.

Критерии выбора

  • Марка бетона и защитные свойства: Обязательно проверяйте паспорт на соответствие бетона классу прочности на сжатие не ниже В25, морозостойкости F200 и водонепроницаемости W6, что критично для контакта с грунтом.
  • Типоразмер и конфигурация: Сверяйтесь с проектной спецификацией по габаритным размерам (длина, высота, толщина) и типу панели (прямая, с проемами). Отклонения по геометрии недопустимы.
  • Арматурный каркас: Уточняйте класс и диаметр рабочей арматуры (обычно А400-А500), а также наличие и расположение монтажных петель или закладных деталей для строповки и соединения.
  • Расчетные нагрузки: Панели цокольных стен серии 1.117-13 должны соответствовать проектному боковому давлению грунта и вертикальной нагрузке от вышележащих конструкций.
  • Соответствие нормативам: Изделие должно изготавливаться в строгом соответствии с требованиями серии 1.117-13 и ГОСТ 12504-80.

Рекомендации по подбору и монтажу

При составлении спецификации на панели наружных цокольных стен обязательно требуйте у производителя паспорта качества с протоколами испытаний бетона на водонепроницаемость и морозостойкость. Убедитесь, что поставка включает полный комплект типоразмеров и доборных элементов, чтобы избежать простоев на объекте. При проектировании заранее закладывайте мероприятия по гидроизоляции торцов и стыков панелей цокольных стен, особенно в условиях высокого уровня грунтовых вод.

Монтаж следует вести на подготовленное и выверенное основание (фундаментную плиту или ленту). Ключевой момент – обеспечение герметичности горизонтальных и вертикальных швов с помощью предусмотренных проектом уплотнителей и последующей замоноличивания. Перед обратной засыпкой пазух котлована убедитесь в надежности временного крепления панелей и завершении работ по устройству наружной гидроизоляции.

Ответы экспертов на ваши вопросы

Панели наружных цокольных стен серии 1.117-13 предназначены для устройства цокольной части стен подвалов и технических подполий жилых, общественных и производственных зданий с неагрессивной степенью воздействия грунтовых вод. Они применяются в зданиях с поперечными и продольными несущими стенами. Основное требование к основанию — устройство по подготовленному и спланированному грунту основания, песчаной подготовке или бетонной подготовке (бетон класса В7.5 или выше) толщиной не менее 100 мм. Панели укладываются на выравнивающий слой цементно-песчаного раствора.

Панели серии 1.117-13 рассчитаны на восприятие вертикальных нагрузок от вышележащих конструкций здания, горизонтального давления грунта, а также возможных эксплуатационных нагрузок. Несущая способность панелей обеспечивается их армированием и классом бетона (как правило, не ниже В15). Маркировка панелей включает буквенно-цифровое обозначение, например, ПЦ 24.18.25-1, где: ПЦ — панель цокольная, 24 — длина в дециметрах (2400 мм), 18 — высота в дециметрах (1800 мм), 25 — толщина в сантиметрах (250 мм), а последняя цифра может указывать на модификацию или тип опирания.

Типовые размеры панелей по серии 1.117-13: длина обычно 2380 мм и 2980 мм (номинально 2.4 и 3.0 м), высота 1180 мм и 1780 мм (номинально 1.2 и 1.8 м), толщина 200, 250, 300 мм. Монтаж осуществляется с помощью грузоподъемных механизмов. Панели устанавливаются на подготовленное основание и соединяются между собой с помощью выпусков арматуры или закладных деталей, которые свариваются. Стыки между панелями заполняются бетоном на мелком заполнителе. Важно обеспечить точное выравнивание первого ряда панелей, так как от этого зависит геометрия всей цокольной стены.

Гидроизоляция обеспечивается устройством обмазочной или оклеечной гидроизоляции по наружной поверхности панелей после монтажа и заделки стыков. Со стороны грунта обычно выполняется вертикальная гидроизоляция (например, из рулонных материалов на битумной основе). Теплозащита цокольной части может обеспечиваться либо применением утепленных панелей (с внутренним слоем эффективного утеплителя), либо устройством наружного слоя теплоизоляции (например, плиты экструдированного пенополистирола) с последующей защитой от механических повреждений. Конкретное решение зависит от проекта и климатического района строительства.

Основные преимущества: высокая скорость возведения цокольных стен за счет применения крупноразмерных элементов заводского изготовления, гарантированное качество бетона и арматуры, высокая несущая способность и долговечность. Ограничения: необходимость использования грузоподъемной техники, требовательность к точности подготовки основания и монтажа, ограниченная номенклатура типоразмеров, которая может не подходить для зданий сложной конфигурации. Также панели требуют тщательной герметизации стыков для обеспечения водонепроницаемости.

Ранее смотрели
МСП 60-30-16-10-8
МСП 60-30-16-10-8
Двухмодульные панели перекрытия Серия КУБ 2,5
Гипсобетонные и шлакобетонные перегородки Серия ИИ 03-04 ПШ 2 (ИИ 03-04)
ПШ 2 (ИИ 03-04)
Гипсобетонные и шлакобетонные перегородки Серия ИИ 03-04
ПШ 6 (ИИ 03-04)
ПШ 6 (ИИ 03-04)
Гипсобетонные и шлакобетонные перегородки Серия ИИ 03-04
Гипсобетонные и шлакобетонные перегородки Серия ИИ 03-04 ПШ 5 (ИИ 03-04)
ПШ 5 (ИИ 03-04)
Гипсобетонные и шлакобетонные перегородки Серия ИИ 03-04
МСП 49-30-16-8-6
МСП 49-30-16-8-6
Двухмодульные панели перекрытия Серия КУБ 2,5
Гипсобетонные и шлакобетонные перегородки Серия ИИ 03-04 ПГ 14 а (ИИ 03-04)
ПГ 14 а (ИИ 03-04)
Гипсобетонные и шлакобетонные перегородки Серия ИИ 03-04
Панели перекрытия ребристые Серия 1.220.1-2 ПР 30-12-8 АIII
ПР 30-12-8 АIII
Панели перекрытия ребристые Серия 1.220.1-2
МСП 60-30-16-8-6
МСП 60-30-16-8-6
Двухмодульные панели перекрытия Серия КУБ 2,5

Уведомление о файлах cookie

Мы используем файлы cookie для улучшения вашего опыта просмотра и анализа трафика. Нажимая "Принять все", вы соглашаетесь с нашей политикой конфиденциальности и политикой обработки файлов cookie.

Дзен Телеграм Вконтакте vk