mobile_sound +7 (930) 655-55-90

Техническая документация и чертежи (ТПР 501-7-014.91)

Поделиться:
Поделиться:

Документ ТПР 501-7-014.91 описывает область применения, номенклатуру и ключевые требования, опираясь на действующие нормы и практику проектирования. В составе Типовых проектных решений ТПР 501-7-014.91 насчитывается четыре альбома, каждый из которых отражает полезную информацию, необходимую для производства и монтажа конструкций из железобетона, предназначенных для обустройства пассажирских низких платформ. Материалоемкость изготовления описывается не только в сметах, но и в спецификациях, представленных для каждого типоразмера изделия и конструкции вместе с опалубочными и арматурными чертежами. Разработчиком нормативного документа является проектный институт ГИПРОПРОМТРАНССТРОЙ, введение в действие состоялось с июня 1992 года после утверждения уполномоченными органами.

Файлы для скачивания:
picture_as_pdf

4286.pdf

13,091.2 KB

скачать
picture_as_pdf

4287.pdf

5,579.5 KB

скачать
picture_as_pdf

4288.pdf

3,751.2 KB

скачать
picture_as_pdf

4297.pdf

4,569.6 KB

скачать
picture_as_pdf

4298.pdf

4,291.2 KB

скачать
picture_as_pdf

4299.pdf

4,462.7 KB

скачать
picture_as_pdf

4300.pdf

3,554.8 KB

скачать
picture_as_pdf

4301.pdf

3,705.0 KB

скачать
picture_as_pdf

4302.pdf

2,904.3 KB

скачать
picture_as_pdf

4303.pdf

2,986.0 KB

скачать
picture_as_pdf

4304.pdf

2,966.5 KB

скачать
picture_as_pdf

4305.pdf

2,902.1 KB

скачать
picture_as_pdf

4306.pdf

3,857.3 KB

скачать
picture_as_pdf

4289.pdf

3,835.0 KB

скачать
picture_as_pdf

4307.pdf

3,801.9 KB

скачать
picture_as_pdf

4308.pdf

3,158.5 KB

скачать
picture_as_pdf

4309.pdf

3,243.8 KB

скачать
picture_as_pdf

4310.pdf

3,145.5 KB

скачать
picture_as_pdf

4311.pdf

3,181.3 KB

скачать
picture_as_pdf

4290.pdf

3,892.2 KB

скачать
picture_as_pdf

4291.pdf

3,879.7 KB

скачать
picture_as_pdf

4292.pdf

3,799.7 KB

скачать
picture_as_pdf

4293.pdf

3,810.0 KB

скачать
picture_as_pdf

4294.pdf

4,098.7 KB

скачать
picture_as_pdf

4295.pdf

3,992.2 KB

скачать
picture_as_pdf

4296.pdf

4,032.1 KB

скачать
picture_as_pdf

4312.pdf

3,079.9 KB

скачать
picture_as_pdf

4321.pdf

3,101.4 KB

скачать
picture_as_pdf

4322.pdf

2,943.7 KB

скачать
picture_as_pdf

4323.pdf

3,259.0 KB

скачать
picture_as_pdf

4324.pdf

3,503.3 KB

скачать
picture_as_pdf

4325.pdf

3,448.5 KB

скачать
picture_as_pdf

4326.pdf

2,528.4 KB

скачать
picture_as_pdf

4327.pdf

2,986.0 KB

скачать
picture_as_pdf

4328.pdf

2,510.3 KB

скачать
picture_as_pdf

4329.pdf

2,875.5 KB

скачать
picture_as_pdf

4330.pdf

3,749.4 KB

скачать
picture_as_pdf

4313.pdf

3,137.3 KB

скачать
picture_as_pdf

4331.pdf

3,158.0 KB

скачать
picture_as_pdf

4332.pdf

3,027.1 KB

скачать
picture_as_pdf

4333.pdf

2,802.0 KB

скачать
picture_as_pdf

4334.pdf

3,141.6 KB

скачать
picture_as_pdf

4335.pdf

2,539.0 KB

скачать
picture_as_pdf

4314.pdf

3,429.4 KB

скачать
picture_as_pdf

4315.pdf

3,205.5 KB

скачать
picture_as_pdf

4316.pdf

2,927.2 KB

скачать
picture_as_pdf

4317.pdf

2,940.2 KB

скачать
picture_as_pdf

4318.pdf

3,113.5 KB

скачать
picture_as_pdf

4319.pdf

3,133.3 KB

скачать
picture_as_pdf

4320.pdf

3,276.0 KB

скачать
Товары ТПР 501-7-014.91 (12)
ЛМ 36-15 л (ТПР 501-07-014.91)
Лестничные марши ТПР 501-07-014.91
  • Длина 3950 мм.
  • Ширина 1495 мм.
  • Высота 1730 мм.
  • Вес 1950 кг.
  • Объем бетона 0,78 м3
  • Геометрический объем 10,2161 м3
Цена: 16645 руб.
Подробнее
ЛМ 36-15 п (ТПР 501-07-014.91)
Лестничные марши ТПР 501-07-014.91
  • Длина 3950 мм.
  • Ширина 1495 мм.
  • Высота 1730 мм.
  • Вес 1950 кг.
  • Объем бетона 0,78 м3
  • Геометрический объем 10,2161 м3
Цена: 16645 руб.
Подробнее
ОЛ 18-12 л (ТПР 501-07-014.91)
Панели лестничного ограждения ТПР 501-07-014.91
  • Длина 1790 мм.
  • Ширина 120 мм.
  • Высота 1170 мм.
  • Вес 225 кг.
  • Объем бетона 0,09 м3
  • Геометрический объем 0,2513 м3
Цена: 2095 руб.
Подробнее
ОЛ 18-12 п (ТПР 501-07-014.91)
Панели лестничного ограждения ТПР 501-07-014.91
  • Длина 1790 мм.
  • Ширина 120 мм.
  • Высота 1170 мм.
  • Вес 225 кг.
  • Объем бетона 0,09 м3
  • Геометрический объем 0,2513 м3
Цена: 2095 руб.
Подробнее
ПО 15 (ТПР 501-07-014.91)
Панели ограждения ТПР 501-07-014.91
  • Длина 1400 мм.
  • Ширина 60 мм.
  • Высота 900 мм.
  • Вес 122 кг.
  • Объем бетона 0,048 м3
  • Геометрический объем 0,0756 м3
Цена: 3725 руб.
Подробнее
ПО 20 (ТПР 501-07-014.91)
Панели ограждения ТПР 501-07-014.91
  • Длина 1900 мм.
  • Ширина 60 мм.
  • Высота 900 мм.
  • Вес 158 кг.
  • Объем бетона 0,0632 м3
  • Геометрический объем 0,1026 м3
Цена: 4904 руб.
Подробнее
СОР (ТПР 501-07-014.91)
Стойки ограждения ТПР 501-07-014.91
  • Длина 2300 мм.
  • Ширина 150 мм.
  • Высота 150 мм.
  • Вес 120 кг.
  • Объем бетона 0,048 м3
  • Геометрический объем 0,0517 м3
Цена: 1630 руб.
Подробнее
СОУ (ТПР 501-07-014.91)
Стойки ограждения ТПР 501-07-014.91
  • Длина 2300 мм.
  • Ширина 150 мм.
  • Высота 150 мм.
  • Вес 120 кг.
  • Объем бетона 0,048 м3
  • Геометрический объем 0,0517 м3
Цена: 1630 руб.
Подробнее
ФБС 24-3-6 и (ТПР 501-07-014.91)
Фундаментные блоки ТПР 501-07-014.91
  • Длина 2380 мм.
  • Ширина 300 мм.
  • Высота 580 мм.
  • Вес 970 кг.
  • Объем бетона 0,4 м3
  • Геометрический объем 0,4141 м3
Цена: 3570 руб.
Подробнее
ФБС 9-3-6 и (ТПР 501-07-014.91)
Фундаментные блоки ТПР 501-07-014.91
  • Длина 880 мм.
  • Ширина 300 мм.
  • Высота 580 мм.
  • Вес 350 кг.
  • Объем бетона 0,14 м3
  • Геометрический объем 0,1531 м3
Цена: 1249 руб.
Подробнее
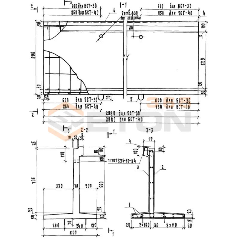
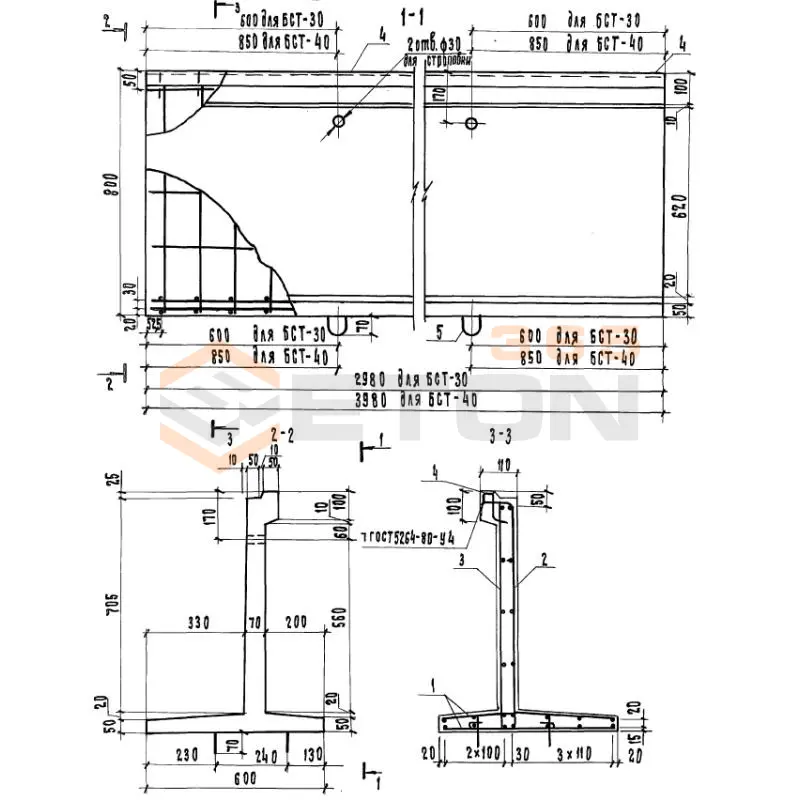
БСТ 30 (ТПР 501-07-014.91)
Стенки бортовые ТПР 501-07-014.91
  • Длина 2980 мм.
  • Ширина 600 мм.
  • Высота 800 мм.
  • Вес 654 кг.
  • Объем бетона 0,262 м3
  • Геометрический объем 1,4304 м3
Цена: 10166 руб.
Подробнее
БСТ 40 (ТПР 501-07-014.91)
Стенки бортовые ТПР 501-07-014.91
  • Длина 3980 мм.
  • Ширина 600 мм.
  • Высота 800 мм.
  • Вес 874 кг.
  • Объем бетона 0,35 м3
  • Геометрический объем 1,9104 м3
Цена: 13580 руб.
Подробнее

Уведомление о файлах cookie

Мы используем файлы cookie для улучшения вашего опыта просмотра и анализа трафика. Нажимая "Принять все", вы соглашаетесь с нашей политикой конфиденциальности и политикой обработки файлов cookie.

MAX Дзен Телеграм Вконтакте vk