mobile_sound +7 (930) 655-55-90

Блоки фундамента Серия 3.503.1-53

Поделиться:
Фильтр по характеристикам
Длина (мм.)
keyboard_arrow_down
мм.
мм.
Ширина (мм.)
keyboard_arrow_down
мм.
мм.
Высота (мм.)
keyboard_arrow_down
мм.
мм.
Вес (кг.)
keyboard_arrow_down
кг.
кг.
Объем бетона (м3)
keyboard_arrow_down
м3
м3
Поделиться:

Завод "Бетон365" производит блоки фундамента Серия 3.503.1-53 — универсальные железобетонные изделия для возведения надежных оснований жилых, промышленных и гражданских объектов. Эти конструктивные элементы, соответствующие строгим требованиям ГОСТ, обеспечивают равномерное распределение нагрузок и создают жесткую пространственную систему, что значительно сокращает сроки монтажа и повышает устойчивость сооружения к деформациям.

В Москве и Московской области вы можете купить блоки фундамента 3.503.1-53 напрямую от производителя по конкурентной цене, получив сертифицированную продукцию с гарантией долговечности. Мы обеспечиваем оперативную доставку на объект и готовы проконсультировать по вопросам применения данных ЖБИ в вашем проекте. Обращайтесь для расчета стоимости и оформления заказа!

210ФК 1 (3.503.1-53)
Блоки фундамента Серия 3.503.1-53
  • Длина 2480 мм.
  • Ширина 2100 мм.
  • Высота 1420 мм.
  • Вес 12500 кг.
  • Объем бетона 5 м3
  • Геометрический объем 7,3954 м3
Цена: 145500 руб.
Подробнее
210ФК 2 (3.503.1-53)
Блоки фундамента Серия 3.503.1-53
  • Длина 2480 мм.
  • Ширина 2100 мм.
  • Высота 1580 мм.
  • Вес 14000 кг.
  • Объем бетона 5,6 м3
  • Геометрический объем 8,2286 м3
Цена: 162960 руб.
Подробнее
210ФП 2 (3.503.1-53)
Блоки фундамента Серия 3.503.1-53
  • Длина 2560 мм.
  • Ширина 2100 мм.
  • Высота 1420 мм.
  • Вес 11000 кг.
  • Объем бетона 4,4 м3
  • Геометрический объем 7,6339 м3
Цена: 128040 руб.
Подробнее
24Ф 365-5 (3.503.1-53)
Блоки фундамента Серия 3.503.1-53
  • Длина 3650 мм.
  • Ширина 1600 мм.
  • Высота 1200 мм.
  • Вес 11800 кг.
  • Объем бетона 4,72 м3
  • Геометрический объем 7,008 м3
Цена: 137352 руб.
Подробнее
210ФП 4 (3.503.1-53)
Блоки фундамента Серия 3.503.1-53
  • Длина 2560 мм.
  • Ширина 2100 мм.
  • Высота 1580 мм.
  • Вес 12000 кг.
  • Объем бетона 4,8 м3
  • Геометрический объем 8,4941 м3
Цена: 139680 руб.
Подробнее
24Ф 450-5 (3.503.1-53)
Блоки фундамента Серия 3.503.1-53
  • Длина 4500 мм.
  • Ширина 1600 мм.
  • Высота 1200 мм.
  • Вес 13200 кг.
  • Объем бетона 5,28 м3
  • Геометрический объем 8,64 м3
Цена: 153648 руб.
Подробнее
24Ф 450-7 (3.503.1-53)
Блоки фундамента Серия 3.503.1-53
  • Длина 4500 мм.
  • Ширина 1600 мм.
  • Высота 1200 мм.
  • Вес 14200 кг.
  • Объем бетона 5,68 м3
  • Геометрический объем 8,64 м3
Цена: 165288 руб.
Подробнее
24Ф 500-7 (3.503.1-53)
Блоки фундамента Серия 3.503.1-53
  • Длина 5000 мм.
  • Ширина 1600 мм.
  • Высота 1200 мм.
  • Вес 15200 кг.
  • Объем бетона 6,08 м3
  • Геометрический объем 9,6 м3
Цена: 176928 руб.
Подробнее
250ФК 1 (3.503.1-53)
Блоки фундамента Серия 3.503.1-53
  • Длина 2480 мм.
  • Ширина 2500 мм.
  • Высота 1420 мм.
  • Вес 13800 кг.
  • Объем бетона 5,52 м3
  • Геометрический объем 8,804 м3
Цена: 160632 руб.
Подробнее
250ФП 2 (3.503.1-53)
Блоки фундамента Серия 3.503.1-53
  • Длина 2560 мм.
  • Ширина 2500 мм.
  • Высота 1420 мм.
  • Вес 12300 кг.
  • Объем бетона 4,92 м3
  • Геометрический объем 9,088 м3
Цена: 143172 руб.
Подробнее
300ФК 1 (3.503.1-53)
Блоки фундамента Серия 3.503.1-53
  • Длина 2480 мм.
  • Ширина 3000 мм.
  • Высота 1420 мм.
  • Вес 14500 кг.
  • Объем бетона 5,8 м3
  • Геометрический объем 10,5648 м3
Цена: 168780 руб.
Подробнее
33Ф 500-5 (3.503.1-53)
Блоки фундамента Серия 3.503.1-53
  • Длина 5000 мм.
  • Ширина 1600 мм.
  • Высота 1200 мм.
  • Вес 14300 кг.
  • Объем бетона 5,72 м3
  • Геометрический объем 9,6 м3
Цена: 166452 руб.
Подробнее
300ФП 2 (3.503.1-53)
Блоки фундамента Серия 3.503.1-53
  • Длина 2560 мм.
  • Ширина 3000 мм.
  • Высота 1420 мм.
  • Вес 13300 кг.
  • Объем бетона 5,32 м3
  • Геометрический объем 10,9056 м3
Цена: 154812 руб.
Подробнее
33Ф 500-7 (3.503.1-53)
Блоки фундамента Серия 3.503.1-53
  • Длина 5000 мм.
  • Ширина 1600 мм.
  • Высота 1200 мм.
  • Вес 15200 кг.
  • Объем бетона 6,08 м3
  • Геометрический объем 9,6 м3
Цена: 176928 руб.
Подробнее
350ФК 1 (3.503.1-53)
Блоки фундамента Серия 3.503.1-53
  • Длина 2480 мм.
  • Ширина 3500 мм.
  • Высота 1420 мм.
  • Вес 16000 кг.
  • Объем бетона 6,4 м3
  • Геометрический объем 12,3256 м3
Цена: 186240 руб.
Подробнее
350ФП 2 (3.503.1-53)
Блоки фундамента Серия 3.503.1-53
  • Длина 2560 мм.
  • Ширина 3500 мм.
  • Высота 1420 мм.
  • Вес 14500 кг.
  • Объем бетона 5,8 м3
  • Геометрический объем 12,7232 м3
Цена: 168780 руб.
Подробнее
400ФК 1 (3.503.1-53)
Блоки фундамента Серия 3.503.1-53
  • Длина 2480 мм.
  • Ширина 4000 мм.
  • Высота 1620 мм.
  • Вес 19500 кг.
  • Объем бетона 7,8 м3
  • Геометрический объем 16,0704 м3
Цена: 226980 руб.
Подробнее
400ФП 2 (3.503.1-53)
Блоки фундамента Серия 3.503.1-53
  • Длина 2560 мм.
  • Ширина 4000 мм.
  • Высота 1620 мм.
  • Вес 8300 кг.
  • Объем бетона 3,32 м3
  • Геометрический объем 16,5888 м3
Цена: 96612 руб.
Подробнее
450ФК 1 (3.503.1-53)
Блоки фундамента Серия 3.503.1-53
  • Длина 2480 мм.
  • Ширина 1850 мм.
  • Высота 1620 мм.
  • Вес 8800 кг.
  • Объем бетона 3,52 м3
  • Геометрический объем 7,4326 м3
Цена: 102432 руб.
Подробнее
450ФК 2 (3.503.1-53)
Блоки фундамента Серия 3.503.1-53
  • Длина 2480 мм.
  • Ширина 1850 мм.
  • Высота 1620 мм.
  • Вес 8800 кг.
  • Объем бетона 3,52 м3
  • Геометрический объем 7,4326 м3
Цена: 102432 руб.
Подробнее
450ФП 2 (3.503.1-53)
Блоки фундамента Серия 3.503.1-53
  • Длина 2560 мм.
  • Ширина 4500 мм.
  • Высота 1620 мм.
  • Вес 9000 кг.
  • Объем бетона 3,6 м3
  • Геометрический объем 18,6624 м3
Цена: 104760 руб.
Подробнее
500ФК 1 (3.503.1-53)
Блоки фундамента Серия 3.503.1-53
  • Длина 2480 мм.
  • Ширина 2050 мм.
  • Высота 1720 мм.
  • Вес 10300 кг.
  • Объем бетона 4,12 м3
  • Геометрический объем 8,7445 м3
Цена: 119892 руб.
Подробнее
500ФК 2 (3.503.1-53)
Блоки фундамента Серия 3.503.1-53
  • Длина 2480 мм.
  • Ширина 2050 мм.
  • Высота 1720 мм.
  • Вес 10300 кг.
  • Объем бетона 4,12 м3
  • Геометрический объем 8,7445 м3
Цена: 119892 руб.
Подробнее
500ФП 2 (3.503.1-53)
Блоки фундамента Серия 3.503.1-53
  • Длина 2560 мм.
  • Ширина 5000 мм.
  • Высота 1720 мм.
  • Вес 10500 кг.
  • Объем бетона 4,2 м3
  • Геометрический объем 22,016 м3
Цена: 122220 руб.
Подробнее

Как правильно выбрать - Блоки фундамента Серия 3.503.1-53

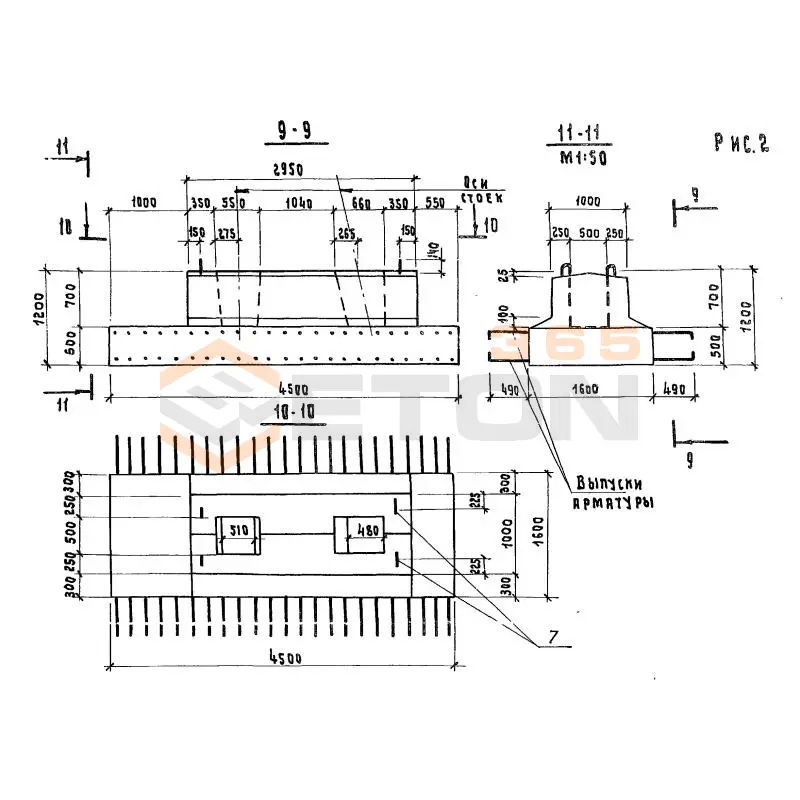
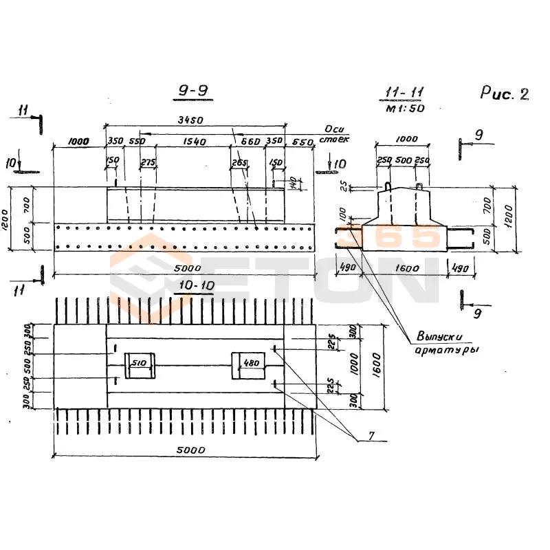
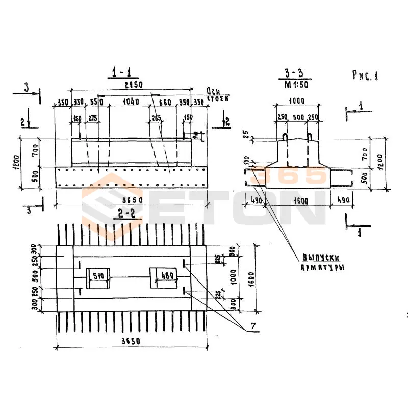
Блоки фундамента Серия 3.503.1-53 предназначены для возведения сборных ленточных фундаментов и стен подвалов зданий различного назначения. Они обеспечивают высокую скорость монтажа и несущую способность конструкции. Ключевая функция – восприятие нагрузок от вышележащих конструкций и передача их на основание. Долговечность и надежность всего здания напрямую зависят от грамотного подбора параметров этих блоков в соответствии с проектными решениями и геологическими условиями площадки.

Критерии выбора

  • Марка бетона и прочность: Изделия изготавливаются из тяжелого бетона марки не ниже М200 (класс прочности на сжатие В15), что обеспечивает необходимую несущую способность.
  • Морозостойкость и водонепроницаемость: Для большинства регионов обязательна морозостойкость F100-F200. Водонепроницаемость (W4-W6) критически важна для блоков, работающих в условиях обводненных грунтов.
  • Типоразмер и конфигурация: Серия 3.503.1-53 включает блоки фундаментные сплошные (ФБС) основных типоразмеров (например, 2380x500x580 мм). Необходимо сверять габариты с проектной спецификацией.
  • Наличие монтажных петель: Обязательно наличие закладных деталей (петель) из арматуры класса А-I или А-III для безопасной строповки.
  • Соответствие нормам: Изделие должно строго соответствовать требованиям ГОСТ 13579-78* на блоки бетонные для стен подвалов.
  • Внешний вид и геометрия: Отсутствие трещин, сколов ребер, точность геометрических размеров – залог плотной стыковки и равномерного распределения нагрузки.

Рекомендации по подбору и монтажу

При закупке блоков фундамента Серия 3.503.1-53 требуйте паспорт качества на каждую партию, где указаны фактические прочностные характеристики, марка бетона и дата изготовления. Убедитесь, что поставка комплектная и включает все необходимые доборные блоки для исключения простоев. При проектировании обязательно учитывайте несущую способность грунта основания и уровень грунтовых вод – в сложных условиях может потребоваться применение блоков с повышенной водонепроницаемостью.

Монтаж ведут на тщательно выровненное и уплотненное песчано-щебеночное основание. Первый ряд блоков укладывают на цементно-песчаный раствор, тщательно проверяя горизонт и привязку к осям. Вертикальные швы между блоками также заполняют раствором. Критически важно обеспечить перевязку швов в смежных рядах, аналогично кирпичной кладке. Правильный подбор и монтаж блоков фундамента по данной серии – основа прочного и долговечного нулевого цикла здания.

Ответы экспертов на ваши вопросы

Серия 3.503.1-53 предусматривает следующие основные типы блоков:

  • ФБС (сплошные) - основные несущие блоки для стен подвалов и фундаментов
  • ФБВ (с вырезами) - для прокладки перемычек и коммуникаций
  • ФБП (пустотные) - для устройства стен подвалов с reduced нагрузкой Основное назначение - возведение сборных ленточных фундаментов и стен подвалов зданий различного назначения.

Основные типоразмеры блоков:

  • Длина: 880, 1180, 2380 мм
  • Ширина: 300, 400, 500, 600 мм
  • Высота: 580 мм Маркировка состоит из буквенного обозначения типа блока и цифр, указывающих размеры в дециметрах. Например, ФБС 24.6.6-т означает: фундаментный блок сплошной длиной 2380 мм, шириной 600 мм, высотой 580 мм.

Блоки изготавливаются из:

  • Тяжелого бетона классов В7,5-В15
  • Керамзитобетона класса В5-В12,5 Марка бетона по морозостойкости должна быть не ниже F50, по водонепроницаемости - W2-W4 в зависимости от условий эксплуатации.

Блоки оборудуются стальными монтажными петлями из арматурной стали класса А-I. Петли располагаются на расстоянии 250-800 мм от торцов блока в зависимости от его длины. После монтажа петли должны быть загнуты и замоноличены.

В сейсмических районах (7 баллов и более) необходимо:

  • Устраивать монолитные железобетонные пояса поверх блоков
  • Увеличивать марку бетона блоков
  • Выполнять дополнительное армирование швов
  • Обеспечивать надежное анкерование блоков между собой
Ранее смотрели
Лотки водосточные без уклона СТО 57388863-001-2008 ЛВК 100-305-362 (в к-те с усил.насадками,чугун.решетками)
ЛВК 100-305-362 (в к-те с усил.насадками,чугун.решетками)
Мотки водосточные без уклона СТО 57388863-001-2008
Лотки водосточные без уклона СТО 57388863-001-2008 ЛВК 100-305-305 (в к-те с усил.насадками,чугун.решетками)
ЛВК 100-305-305 (в к-те с усил.насадками,чугун.решетками)
Мотки водосточные без уклона СТО 57388863-001-2008
Лотки водосточные без уклона СТО 57388863-001-2008 ЛВК 100-305-230 (в к-те с усил.насадками,чугун.решетками)
ЛВК 100-305-230 (в к-те с усил.насадками,чугун.решетками)
Мотки водосточные без уклона СТО 57388863-001-2008
Лотки водосточные без уклона СТО 57388863-001-2008 ЛВК 100-250-310 (в к-те с усил.насадками,чугун.решетками)
ЛВК 100-250-310 (в к-те с усил.насадками,чугун.решетками)
Мотки водосточные без уклона СТО 57388863-001-2008
Лотки водосточные без уклона СТО 57388863-001-2008 ЛВК 100-300-300 (в к-те с усил.насадками,чугун.решетками)
ЛВК 100-300-300 (в к-те с усил.насадками,чугун.решетками)
Мотки водосточные без уклона СТО 57388863-001-2008
Лотки водосточные без уклона СТО 57388863-001-2008 ЛВК 100-300-230 (в к-те с усил.насадками,чугун.решетками)
ЛВК 100-300-230 (в к-те с усил.насадками,чугун.решетками)
Мотки водосточные без уклона СТО 57388863-001-2008
ЛВК 100-140-125 (полимербетонный)
ЛВК 100-140-125 (полимербетонный)
Мотки водосточные без уклона СТО 57388863-001-2008
СВ 105-3,6 (ТУ 5863-007-00113557-94)
СВ 105-3,6 (ТУ 5863-007-00113557-94)
Стойки железобетонные ТУ 5863-007-00113557-94

Уведомление о файлах cookie

Мы используем файлы cookie для улучшения вашего опыта просмотра и анализа трафика. Нажимая "Принять все", вы соглашаетесь с нашей политикой конфиденциальности и политикой обработки файлов cookie.

Дзен Телеграм Вконтакте vk