mobile_sound +7 (930) 655-55-90

Типовые конструкции и железобетонные изделия. Рабочие чертежи (Серия ПК 01-06)

Поделиться:
Поделиться:

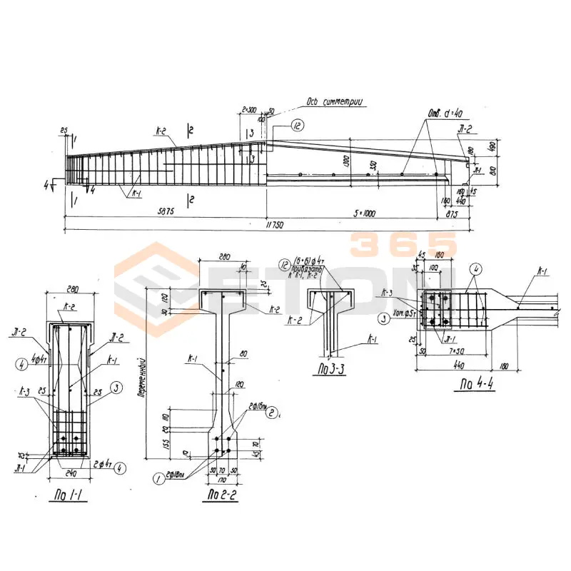
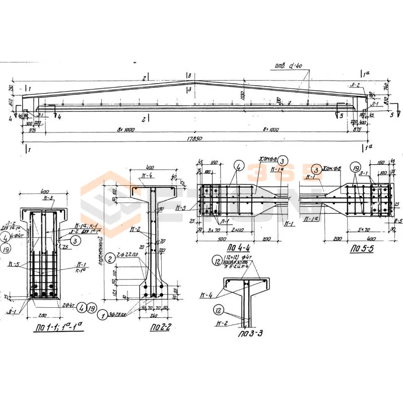
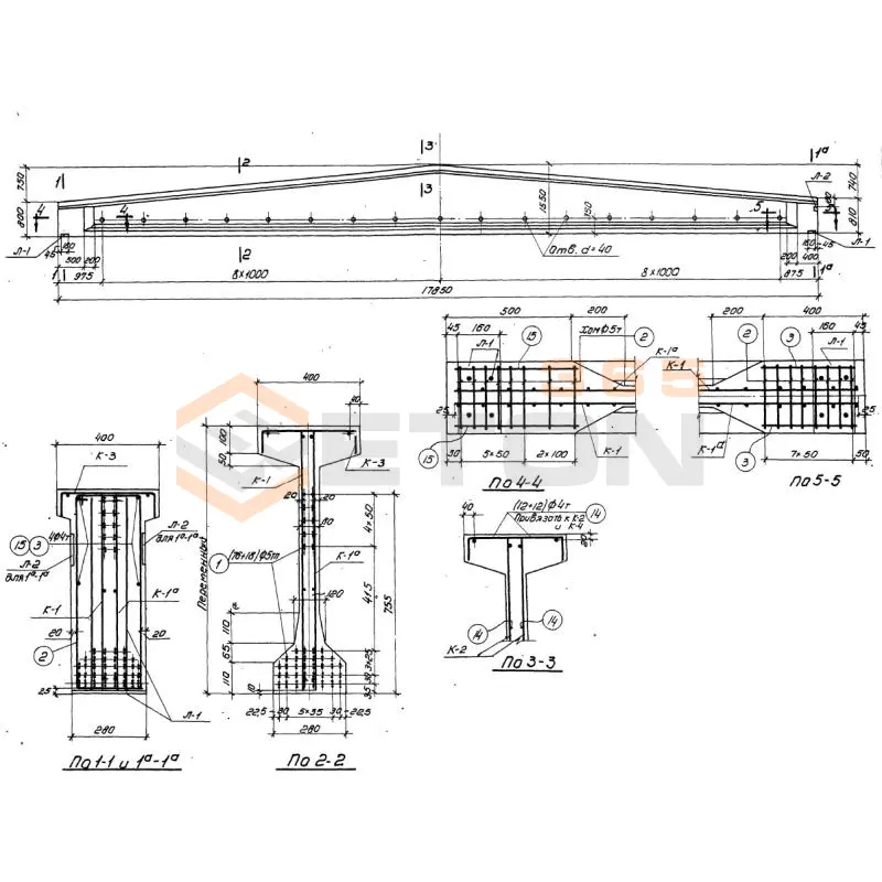
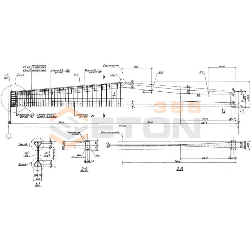
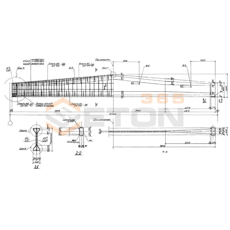
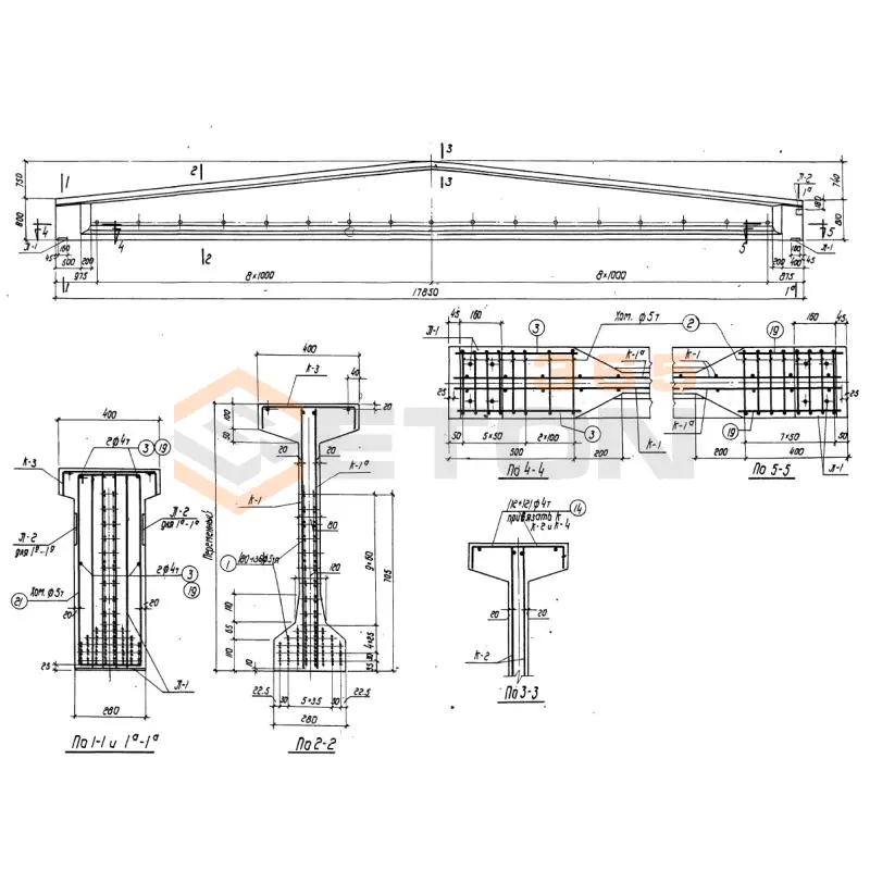
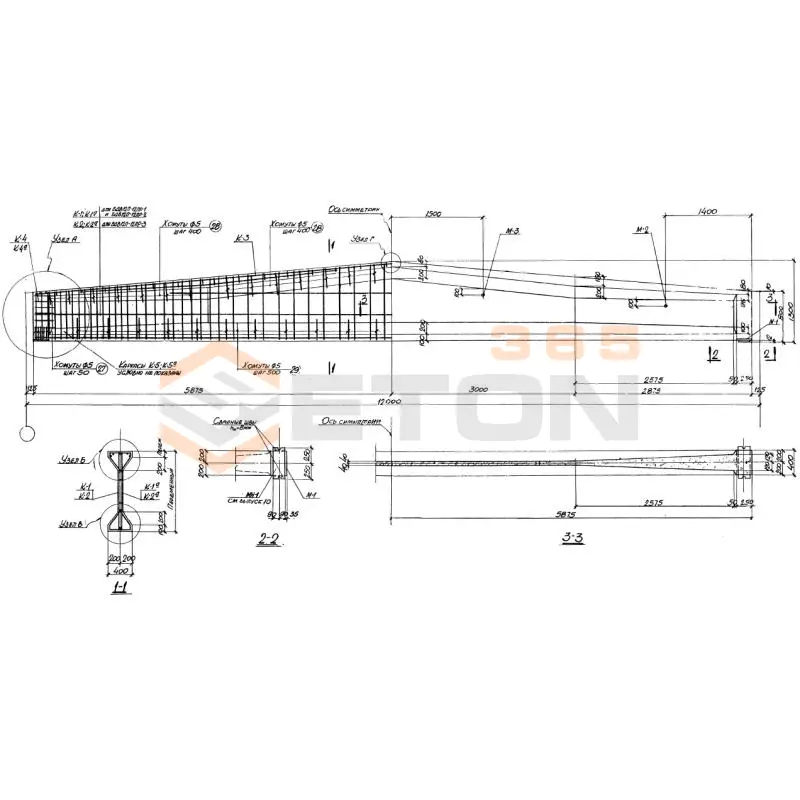
Документ Серия ПК 01-06 описывает область применения, номенклатуру и ключевые требования, опираясь на действующие нормы и практику проектирования. Серия ПК 01-06 состоит из большого числа нормативных выпусков, каждый из которых посвящен отдельной части по организации процесса производства сборных несущих изделия и конструкции из железобетона, используемых в сооружениях с покрытиями кровли, выполненными из рулонных материалов. Разработкой регламента занимался Проектный институт №1, работы осуществлялись совместно с НИИС, введение в действие состоялось после утверждения, начиная с 1957 года. Номенклатурный перечень Серии включает в себя балки пролетами 9, 12.

Файлы для скачивания:
picture_as_pdf

3265.pdf

17,834.1 KB

скачать
picture_as_pdf

3276.pdf

9,172.3 KB

скачать
picture_as_pdf

3277.pdf

12,161.9 KB

скачать
picture_as_pdf

3278.pdf

12,380.8 KB

скачать
picture_as_pdf

3279.pdf

11,755.6 KB

скачать
picture_as_pdf

3280.pdf

12,264.8 KB

скачать
picture_as_pdf

3281.pdf

10,809.0 KB

скачать
picture_as_pdf

3266.pdf

13,601.3 KB

скачать
picture_as_pdf

3267.pdf

16,340.4 KB

скачать
picture_as_pdf

3268.pdf

18,478.1 KB

скачать
picture_as_pdf

3269.pdf

20,551.8 KB

скачать
picture_as_pdf

3270.pdf

16,644.8 KB

скачать
picture_as_pdf

3271.pdf

18,650.0 KB

скачать
picture_as_pdf

3273.pdf

13,483.6 KB

скачать
picture_as_pdf

3272.pdf

31,620.8 KB

скачать
picture_as_pdf

3274.pdf

10,067.1 KB

скачать
picture_as_pdf

3275.pdf

52,223.9 KB

скачать
Товары Серия ПК 01-06 (60)
Б 3-12-3
Балки Серия ПК 01-06
  • Длина 11850 мм.
  • Ширина 280 мм.
  • Высота 1300 мм.
  • Вес 4080 кг.
  • Объем бетона 1,63 м3
  • Геометрический объем 4,3134 м3
Цена: 118583 руб.
Подробнее
Б 3-12-2
Балки Серия ПК 01-06
  • Длина 11850 мм.
  • Ширина 280 мм.
  • Высота 1300 мм.
  • Вес 4080 кг.
  • Объем бетона 1,63 м3
  • Геометрический объем 4,3134 м3
Цена: 118583 руб.
Подробнее
Б 3-15-1
Балки Серия ПК 01-06
  • Длина 14850 мм.
  • Ширина 320 мм.
  • Высота 1425 мм.
  • Вес 5450 кг.
  • Объем бетона 2,18 м3
  • Геометрический объем 6,7716 м3
Цена: 158595 руб.
Подробнее
Б 3-15-3
Балки Серия ПК 01-06
  • Длина 14850 мм.
  • Ширина 320 мм.
  • Высота 1425 мм.
  • Вес 5920 кг.
  • Объем бетона 2,4 м3
  • Геометрический объем 6,7716 м3
Цена: 174600 руб.
Подробнее
Б 3-15-2
Балки Серия ПК 01-06
  • Длина 14850 мм.
  • Ширина 320 мм.
  • Высота 1425 мм.
  • Вес 5820 кг.
  • Объем бетона 2,33 м3
  • Геометрический объем 6,7716 м3
Цена: 169508 руб.
Подробнее
Б 3-18-1
Балки Серия ПК 01-06
  • Длина 17850 мм.
  • Ширина 320 мм.
  • Высота 1550 мм.
  • Вес 7050 кг.
  • Объем бетона 2,82 м3
  • Геометрический объем 8,8536 м3
Цена: 205155 руб.
Подробнее
Б 3-18-2
Балки Серия ПК 01-06
  • Длина 17850 мм.
  • Ширина 400 мм.
  • Высота 1550 мм.
  • Вес 7620 кг.
  • Объем бетона 3,05 м3
  • Геометрический объем 11,067 м3
Цена: 221888 руб.
Подробнее
Б 3-18-3
Балки Серия ПК 01-06
  • Длина 17850 мм.
  • Ширина 400 мм.
  • Высота 1550 мм.
  • Вес 7620 кг.
  • Объем бетона 3,05 м3
  • Геометрический объем 11,067 м3
Цена: 221888 руб.
Подробнее
Б 4-12-1
Балки Серия ПК 01-06
  • Длина 11950 мм.
  • Ширина 280 мм.
  • Высота 1300 мм.
  • Вес 4130 кг.
  • Объем бетона 1,65 м3
  • Геометрический объем 4,3498 м3
Цена: 120038 руб.
Подробнее
Б 4-12-2
Балки Серия ПК 01-06
  • Длина 11950 мм.
  • Ширина 280 мм.
  • Высота 1300 мм.
  • Вес 4130 кг.
  • Объем бетона 1,65 м3
  • Геометрический объем 4,3498 м3
Цена: 120038 руб.
Подробнее
Б 4-12-3
Балки Серия ПК 01-06
  • Длина 11950 мм.
  • Ширина 280 мм.
  • Высота 1300 мм.
  • Вес 4130 кг.
  • Объем бетона 1,65 м3
  • Геометрический объем 4,3498 м3
Цена: 120038 руб.
Подробнее
Б 4-15-1
Балки Серия ПК 01-06
  • Длина 14950 мм.
  • Ширина 320 мм.
  • Высота 1425 мм.
  • Вес 5500 кг.
  • Объем бетона 2,2 м3
  • Геометрический объем 6,8172 м3
Цена: 160050 руб.
Подробнее
Б 4-15-2
Балки Серия ПК 01-06
  • Длина 14950 мм.
  • Ширина 320 мм.
  • Высота 1425 мм.
  • Вес 5870 кг.
  • Объем бетона 2,35 м3
  • Геометрический объем 6,8172 м3
Цена: 170963 руб.
Подробнее
Б 4-15-3
Балки Серия ПК 01-06
  • Длина 14950 мм.
  • Ширина 320 мм.
  • Высота 1425 мм.
  • Вес 5870 кг.
  • Объем бетона 2,35 м3
  • Геометрический объем 6,8172 м3
Цена: 170963 руб.
Подробнее
Б 4-18-2
Балки Серия ПК 01-06
  • Длина 17950 мм.
  • Ширина 400 мм.
  • Высота 1550 мм.
  • Вес 7450 кг.
  • Объем бетона 2,98 м3
  • Геометрический объем 11,129 м3
Цена: 216795 руб.
Подробнее
Б 4-18-1
Балки Серия ПК 01-06
  • Длина 17950 мм.
  • Ширина 320 мм.
  • Высота 1550 мм.
  • Вес 7100 кг.
  • Объем бетона 2,84 м3
  • Геометрический объем 8,9032 м3
Цена: 206610 руб.
Подробнее
Б 4-18-3
Балки Серия ПК 01-06
  • Длина 17950 мм.
  • Ширина 400 мм.
  • Высота 1550 мм.
  • Вес 7670 кг.
  • Объем бетона 3,07 м3
  • Геометрический объем 11,129 м3
Цена: 223343 руб.
Подробнее
Б 4-24-1
Балки Серия ПК 01-06
  • Длина 23950 мм.
  • Ширина 400 мм.
  • Высота 2000 мм.
  • Вес 11700 кг.
  • Объем бетона 4,67 м3
  • Геометрический объем 19,16 м3
Цена: 339743 руб.
Подробнее
Б 4-24-2
Балки Серия ПК 01-06
  • Длина 23950 мм.
  • Ширина 400 мм.
  • Высота 2000 мм.
  • Вес 11950 кг.
  • Объем бетона 4,78 м3
  • Геометрический объем 19,16 м3
Цена: 347745 руб.
Подробнее
Б 5-12-1
Балки Серия ПК 01-06
  • Длина 11750 мм.
  • Ширина 280 мм.
  • Высота 1300 мм.
  • Вес 4030 кг.
  • Объем бетона 1,61 м3
  • Геометрический объем 4,277 м3
Цена: 117128 руб.
Подробнее
Б 4-24-4
Балки Серия ПК 01-06
  • Длина 23950 мм.
  • Ширина 400 мм.
  • Высота 2000 мм.
  • Вес 11950 кг.
  • Объем бетона 4,78 м3
  • Геометрический объем 19,16 м3
Цена: 347745 руб.
Подробнее
Б 4-24-3
Балки Серия ПК 01-06
  • Длина 23950 мм.
  • Ширина 400 мм.
  • Высота 2000 мм.
  • Вес 11950 кг.
  • Объем бетона 4,78 м3
  • Геометрический объем 19,16 м3
Цена: 347745 руб.
Подробнее
Б 5-12-3
Балки Серия ПК 01-06
  • Длина 11750 мм.
  • Ширина 280 мм.
  • Высота 1300 мм.
  • Вес 4030 кг.
  • Объем бетона 1,61 м3
  • Геометрический объем 4,277 м3
Цена: 117128 руб.
Подробнее
Б 5-12-2
Балки Серия ПК 01-06
  • Длина 11750 мм.
  • Ширина 280 мм.
  • Высота 1300 мм.
  • Вес 4030 кг.
  • Объем бетона 1,61 м3
  • Геометрический объем 4,277 м3
Цена: 117128 руб.
Подробнее
Б 5-15-1
Балки Серия ПК 01-06
  • Длина 14750 мм.
  • Ширина 320 мм.
  • Высота 1425 мм.
  • Вес 5400 кг.
  • Объем бетона 2,16 м3
  • Геометрический объем 6,726 м3
Цена: 157140 руб.
Подробнее
Б 5-15-3
Балки Серия ПК 01-06
  • Длина 14750 мм.
  • Ширина 320 мм.
  • Высота 1425 мм.
  • Вес 5780 кг.
  • Объем бетона 2,31 м3
  • Геометрический объем 6,726 м3
Цена: 168053 руб.
Подробнее
Б 5-18-1
Балки Серия ПК 01-06
  • Длина 17750 мм.
  • Ширина 320 мм.
  • Высота 1550 мм.
  • Вес 7000 кг.
  • Объем бетона 2,8 м3
  • Геометрический объем 8,804 м3
Цена: 203700 руб.
Подробнее
Б 5-15-2
Балки Серия ПК 01-06
  • Длина 14750 мм.
  • Ширина 320 мм.
  • Высота 1425 мм.
  • Вес 5780 кг.
  • Объем бетона 2,31 м3
  • Геометрический объем 6,726 м3
Цена: 168053 руб.
Подробнее
Б 5-18-3
Балки Серия ПК 01-06
  • Длина 17750 мм.
  • Ширина 400 мм.
  • Высота 1550 мм.
  • Вес 7570 кг.
  • Объем бетона 3,03 м3
  • Геометрический объем 11,005 м3
Цена: 220433 руб.
Подробнее
Б 6-12-1
Балки Серия ПК 01-06
  • Длина 11850 мм.
  • Ширина 280 мм.
  • Высота 1300 мм.
  • Вес 4080 кг.
  • Объем бетона 1,63 м3
  • Геометрический объем 4,3134 м3
Цена: 118583 руб.
Подробнее
Б 5-18-2
Балки Серия ПК 01-06
  • Длина 17750 мм.
  • Ширина 400 мм.
  • Высота 1550 мм.
  • Вес 7200 кг.
  • Объем бетона 2,88 м3
  • Геометрический объем 11,005 м3
Цена: 209520 руб.
Подробнее
Б 6-15-1
Балки Серия ПК 01-06
  • Длина 14850 мм.
  • Ширина 320 мм.
  • Высота 1425 мм.
  • Вес 5450 кг.
  • Объем бетона 2,18 м3
  • Геометрический объем 6,7716 м3
Цена: 158595 руб.
Подробнее
Б 6-12-3
Балки Серия ПК 01-06
  • Длина 11850 мм.
  • Ширина 280 мм.
  • Высота 1300 мм.
  • Вес 4080 кг.
  • Объем бетона 1,63 м3
  • Геометрический объем 4,3134 м3
Цена: 118583 руб.
Подробнее
Б 6-12-2
Балки Серия ПК 01-06
  • Длина 11850 мм.
  • Ширина 280 мм.
  • Высота 1300 мм.
  • Вес 4080 кг.
  • Объем бетона 1,63 м3
  • Геометрический объем 4,3134 м3
Цена: 118583 руб.
Подробнее
Б 6-15-2
Балки Серия ПК 01-06
  • Длина 14850 мм.
  • Ширина 320 мм.
  • Высота 1425 мм.
  • Вес 5820 кг.
  • Объем бетона 2,33 м3
  • Геометрический объем 6,7716 м3
Цена: 169508 руб.
Подробнее
Б 6-15-3
Балки Серия ПК 01-06
  • Длина 14850 мм.
  • Ширина 320 мм.
  • Высота 1425 мм.
  • Вес 5830 кг.
  • Объем бетона 2,33 м3
  • Геометрический объем 6,7716 м3
Цена: 169508 руб.
Подробнее
Б 6-18-1
Балки Серия ПК 01-06
  • Длина 17850 мм.
  • Ширина 320 мм.
  • Высота 1550 мм.
  • Вес 7000 кг.
  • Объем бетона 2,82 м3
  • Геометрический объем 8,8536 м3
Цена: 205155 руб.
Подробнее
БДВ 12п-12 п-1
Балки Серия ПК 01-06
  • Длина 12000 мм.
  • Ширина 400 мм.
  • Высота 1300 мм.
  • Вес 7200 кг.
  • Объем бетона 2,86 м3
  • Геометрический объем 6,24 м3
Цена: 208065 руб.
Подробнее
Б 6-18-2
Балки Серия ПК 01-06
  • Длина 17850 мм.
  • Ширина 400 мм.
  • Высота 1550 мм.
  • Вес 7250 кг.
  • Объем бетона 2,9 м3
  • Геометрический объем 11,067 м3
Цена: 210975 руб.
Подробнее
Б 6-18-3
Балки Серия ПК 01-06
  • Длина 17850 мм.
  • Ширина 400 мм.
  • Высота 1550 мм.
  • Вес 7650 кг.
  • Объем бетона 3,05 м3
  • Геометрический объем 11,067 м3
Цена: 221888 руб.
Подробнее
БДВ 12п-12 п-2
Балки Серия ПК 01-06
  • Длина 12000 мм.
  • Ширина 400 мм.
  • Высота 1300 мм.
  • Вес 7200 кг.
  • Объем бетона 2,86 м3
  • Геометрический объем 6,24 м3
Цена: 208065 руб.
Подробнее
БДВ 12п-12 пр-1
Балки Серия ПК 01-06
  • Длина 12000 мм.
  • Ширина 400 мм.
  • Высота 1300 мм.
  • Вес 7200 кг.
  • Объем бетона 2,86 м3
  • Геометрический объем 6,24 м3
Цена: 208065 руб.
Подробнее
БДВ 12п-12 п-3
Балки Серия ПК 01-06
  • Длина 12000 мм.
  • Ширина 400 мм.
  • Высота 1300 мм.
  • Вес 7200 кг.
  • Объем бетона 2,86 м3
  • Геометрический объем 6,24 м3
Цена: 208065 руб.
Подробнее
БДВ 12п-12 ск-1
Балки Серия ПК 01-06
  • Длина 12000 мм.
  • Ширина 400 мм.
  • Высота 1300 мм.
  • Вес 7200 кг.
  • Объем бетона 2,86 м3
  • Геометрический объем 6,24 м3
Цена: 208065 руб.
Подробнее
БДВ 12п-12 пр-3
Балки Серия ПК 01-06
  • Длина 12000 мм.
  • Ширина 400 мм.
  • Высота 1300 мм.
  • Вес 7200 кг.
  • Объем бетона 2,86 м3
  • Геометрический объем 6,24 м3
Цена: 208065 руб.
Подробнее
БДВ 12п-12 пр-2
Балки Серия ПК 01-06
  • Длина 12000 мм.
  • Ширина 400 мм.
  • Высота 1300 мм.
  • Вес 7200 кг.
  • Объем бетона 2,86 м3
  • Геометрический объем 6,24 м3
Цена: 208065 руб.
Подробнее
БДВ 12п-12с-1
Балки Серия ПК 01-06
  • Длина 12000 мм.
  • Ширина 400 мм.
  • Высота 1300 мм.
  • Вес 7200 кг.
  • Объем бетона 2,86 м3
  • Геометрический объем 6,24 м3
Цена: 208065 руб.
Подробнее
БДВ 12п-12 ск-2
Балки Серия ПК 01-06
  • Длина 12000 мм.
  • Ширина 400 мм.
  • Высота 1300 мм.
  • Вес 7200 кг.
  • Объем бетона 2,86 м3
  • Геометрический объем 6,24 м3
Цена: 208065 руб.
Подробнее
БДВ 12п-12 ск-3
Балки Серия ПК 01-06
  • Длина 12000 мм.
  • Ширина 400 мм.
  • Высота 1300 мм.
  • Вес 7200 кг.
  • Объем бетона 2,86 м3
  • Геометрический объем 6,24 м3
Цена: 208065 руб.
Подробнее
БДВ 12п-18 п-1
Балки Серия ПК 01-06
  • Длина 18000 мм.
  • Ширина 400 мм.
  • Высота 1800 мм.
  • Вес 12300 кг.
  • Объем бетона 4,91 м3
  • Геометрический объем 12,96 м3
Цена: 357203 руб.
Подробнее
БДВ 12п-12с-2
Балки Серия ПК 01-06
  • Длина 12000 мм.
  • Ширина 400 мм.
  • Высота 1300 мм.
  • Вес 7200 кг.
  • Объем бетона 2,86 м3
  • Геометрический объем 6,24 м3
Цена: 208065 руб.
Подробнее
БДВ 12п-12с-3
Балки Серия ПК 01-06
  • Длина 12000 мм.
  • Ширина 400 мм.
  • Высота 1300 мм.
  • Вес 7200 кг.
  • Объем бетона 2,86 м3
  • Геометрический объем 6,24 м3
Цена: 208065 руб.
Подробнее
БДВ 12п-18 пр-1
Балки Серия ПК 01-06
  • Длина 18000 мм.
  • Ширина 400 мм.
  • Высота 1800 мм.
  • Вес 12300 кг.
  • Объем бетона 4,91 м3
  • Геометрический объем 12,96 м3
Цена: 357203 руб.
Подробнее
БДВ 12п-18 п-2
Балки Серия ПК 01-06
  • Длина 18000 мм.
  • Ширина 400 мм.
  • Высота 1800 мм.
  • Вес 12300 кг.
  • Объем бетона 4,91 м3
  • Геометрический объем 12,96 м3
Цена: 357203 руб.
Подробнее
БДВ 12п-18 п-3
Балки Серия ПК 01-06
  • Длина 18000 мм.
  • Ширина 400 мм.
  • Высота 1800 мм.
  • Вес 15000 кг.
  • Объем бетона 6,02 м3
  • Геометрический объем 12,96 м3
Цена: 437955 руб.
Подробнее
БДВ 12п-18 пр-3
Балки Серия ПК 01-06
  • Длина 18000 мм.
  • Ширина 400 мм.
  • Высота 1800 мм.
  • Вес 15000 кг.
  • Объем бетона 6,02 м3
  • Геометрический объем 12,96 м3
Цена: 437955 руб.
Подробнее
БДВ 12п-18 пр-2
Балки Серия ПК 01-06
  • Длина 18000 мм.
  • Ширина 400 мм.
  • Высота 1800 мм.
  • Вес 12300 кг.
  • Объем бетона 4,91 м3
  • Геометрический объем 12,96 м3
Цена: 357203 руб.
Подробнее
БДВ 12п-18 ск-1
Балки Серия ПК 01-06
  • Длина 18000 мм.
  • Ширина 400 мм.
  • Высота 1800 мм.
  • Вес 12300 кг.
  • Объем бетона 4,91 м3
  • Геометрический объем 12,96 м3
Цена: 357203 руб.
Подробнее
БДВ 12п-18 ск-2
Балки Серия ПК 01-06
  • Длина 18000 мм.
  • Ширина 400 мм.
  • Высота 1800 мм.
  • Вес 12300 кг.
  • Объем бетона 4,91 м3
  • Геометрический объем 12,96 м3
Цена: 357203 руб.
Подробнее
БДВ 12п-18 ск-3
Балки Серия ПК 01-06
  • Длина 18000 мм.
  • Ширина 400 мм.
  • Высота 1800 мм.
  • Вес 15000 кг.
  • Объем бетона 6,02 м3
  • Геометрический объем 12,96 м3
Цена: 437955 руб.
Подробнее

Уведомление о файлах cookie

Мы используем файлы cookie для улучшения вашего опыта просмотра и анализа трафика. Нажимая "Принять все", вы соглашаетесь с нашей политикой конфиденциальности и политикой обработки файлов cookie.

MAX Дзен Телеграм Вконтакте vk