mobile_sound +7 (930) 655-55-90

Типовые конструкции и железобетонные изделия. Рабочие чертежи (Серия ПК 01-06)

Поделиться:
Поделиться:

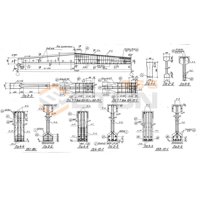
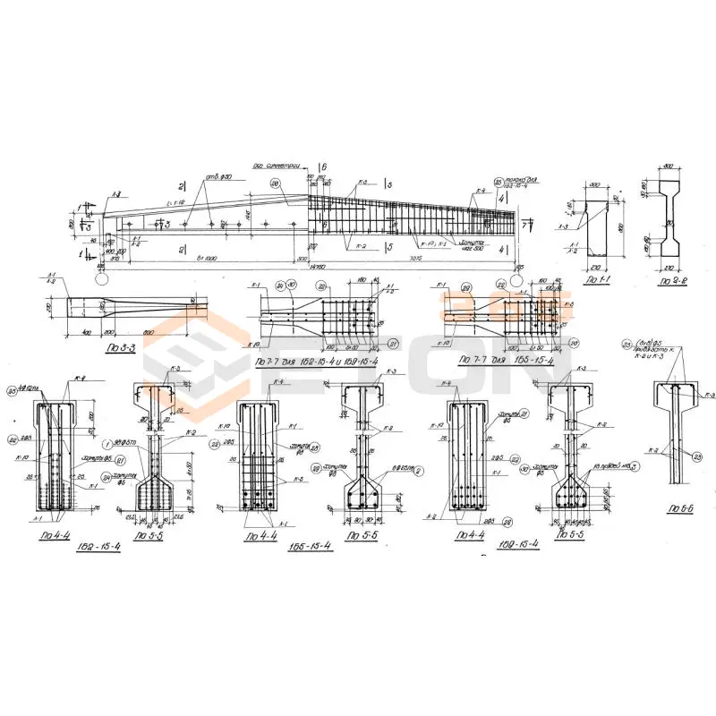
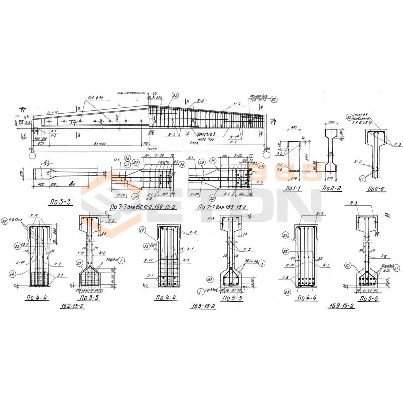
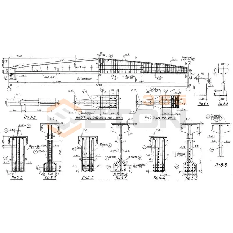
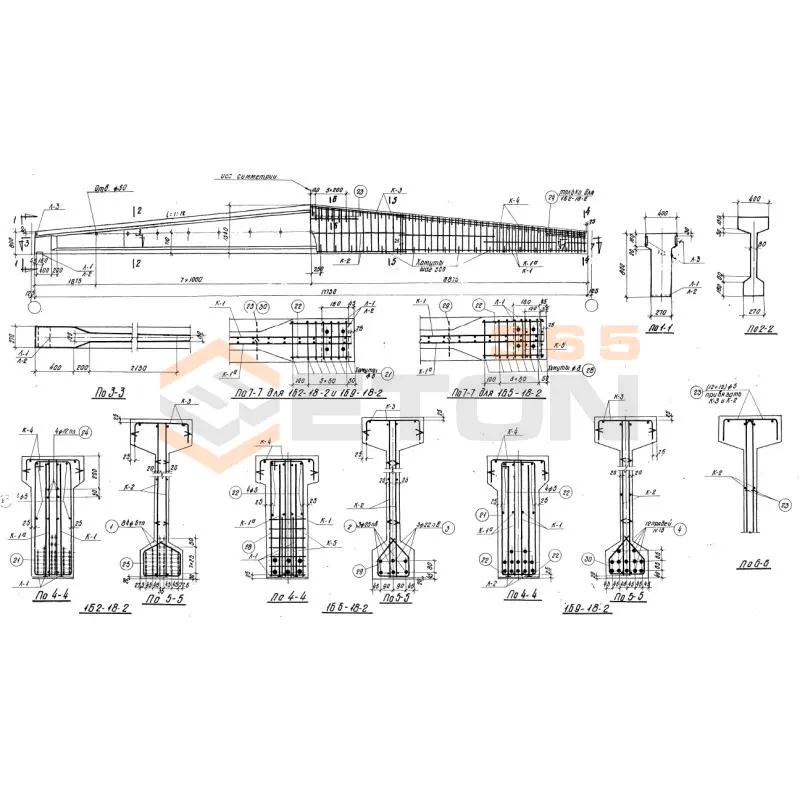
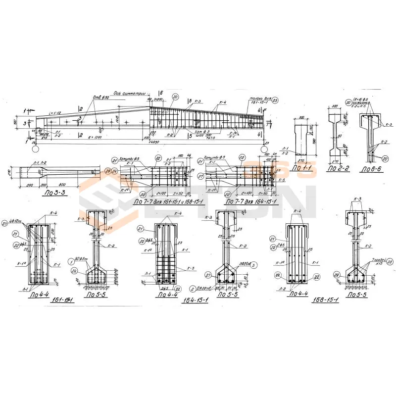
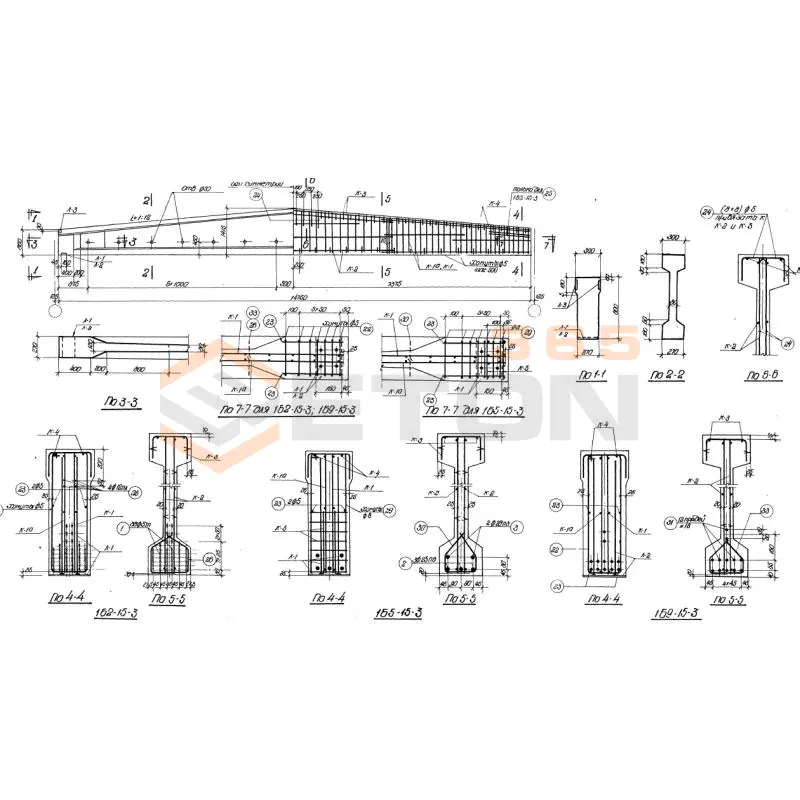
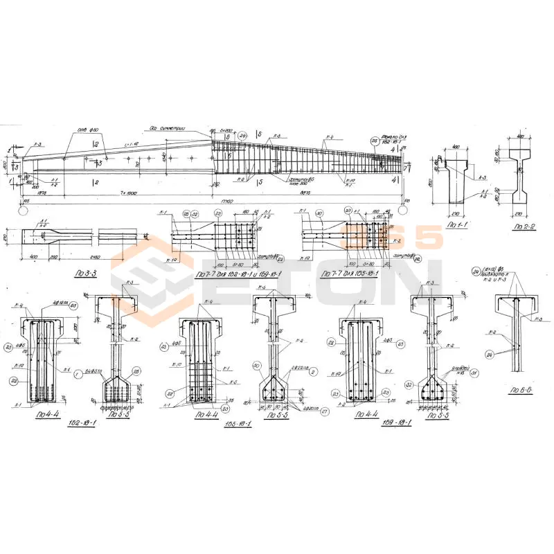
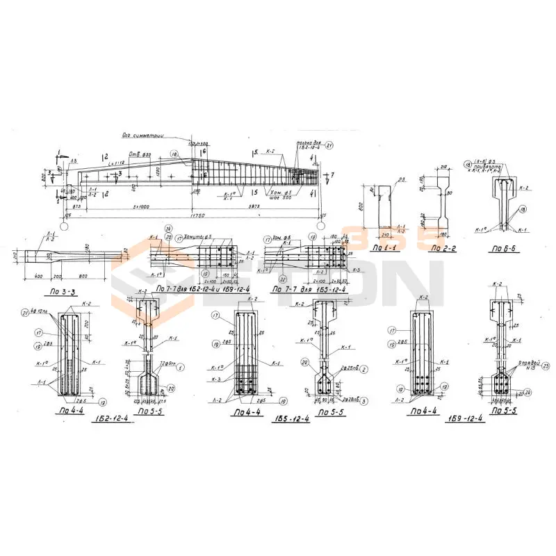
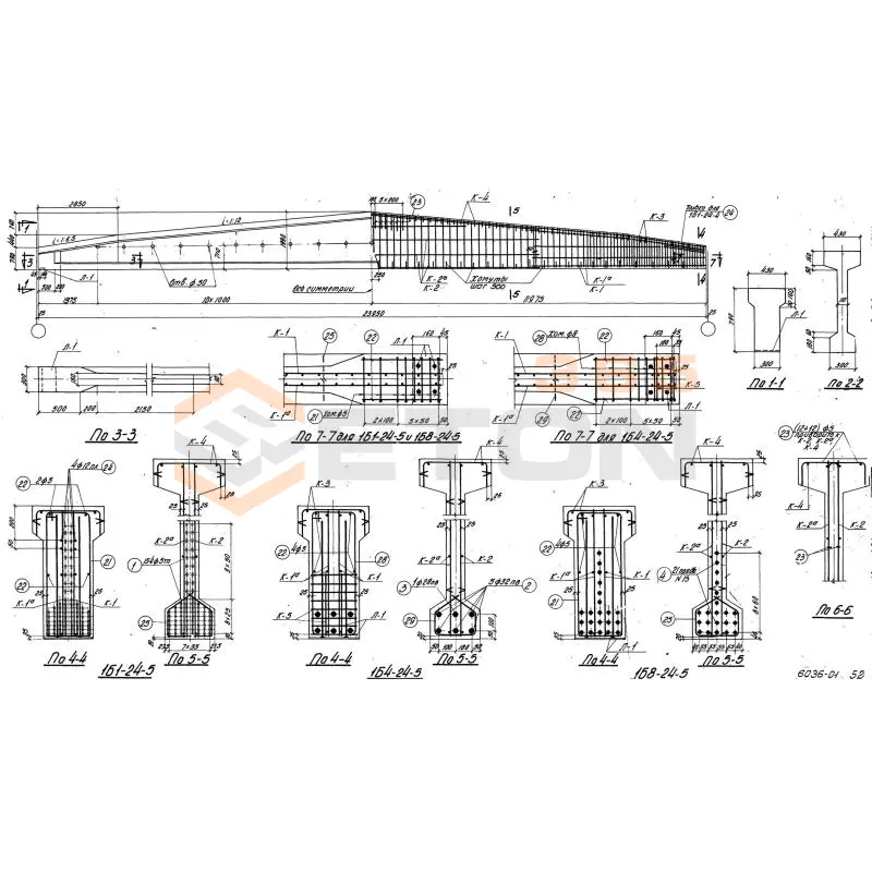
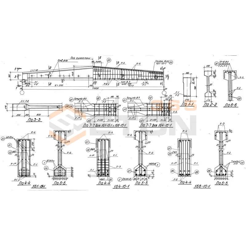
Документ Серия ПК 01-06 описывает область применения, номенклатуру и ключевые требования, опираясь на действующие нормы и практику проектирования. Серия ПК 01-06 состоит из большого числа нормативных выпусков, каждый из которых посвящен отдельной части по организации процесса производства сборных несущих изделия и конструкции из железобетона, используемых в сооружениях с покрытиями кровли, выполненными из рулонных материалов. Разработкой регламента занимался Проектный институт №1, работы осуществлялись совместно с НИИС, введение в действие состоялось после утверждения, начиная с 1957 года. Номенклатурный перечень Серии включает в себя балки пролетами 9, 12.

Файлы для скачивания:
picture_as_pdf

3265.pdf

17,834.1 KB

скачать
picture_as_pdf

3276.pdf

9,172.3 KB

скачать
picture_as_pdf

3277.pdf

12,161.9 KB

скачать
picture_as_pdf

3278.pdf

12,380.8 KB

скачать
picture_as_pdf

3279.pdf

11,755.6 KB

скачать
picture_as_pdf

3280.pdf

12,264.8 KB

скачать
picture_as_pdf

3281.pdf

10,809.0 KB

скачать
picture_as_pdf

3266.pdf

13,601.3 KB

скачать
picture_as_pdf

3267.pdf

16,340.4 KB

скачать
picture_as_pdf

3268.pdf

18,478.1 KB

скачать
picture_as_pdf

3269.pdf

20,551.8 KB

скачать
picture_as_pdf

3270.pdf

16,644.8 KB

скачать
picture_as_pdf

3271.pdf

18,650.0 KB

скачать
picture_as_pdf

3273.pdf

13,483.6 KB

скачать
picture_as_pdf

3272.pdf

31,620.8 KB

скачать
picture_as_pdf

3274.pdf

10,067.1 KB

скачать
picture_as_pdf

3275.pdf

52,223.9 KB

скачать
Товары Серия ПК 01-06 (60)
1Б 6-12-3
Балки Серия ПК 01-06
  • Длина 11950 мм.
  • Ширина 210 мм.
  • Высота 1290 мм.
  • Вес 4100 кг.
  • Объем бетона 1,63 м3
  • Геометрический объем 3,2373 м3
Цена: 118583 руб.
Подробнее
1Б 6-15-1
Балки Серия ПК 01-06
  • Длина 15000 мм.
  • Ширина 300 мм.
  • Высота 1415 мм.
  • Вес 6650 кг.
  • Объем бетона 2,66 м3
  • Геометрический объем 6,3675 м3
Цена: 193515 руб.
Подробнее
1Б 6-15-2
Балки Серия ПК 01-06
  • Длина 15000 мм.
  • Ширина 300 мм.
  • Высота 1415 мм.
  • Вес 6650 кг.
  • Объем бетона 2,66 м3
  • Геометрический объем 6,3675 м3
Цена: 193515 руб.
Подробнее
1Б 6-15-3
Балки Серия ПК 01-06
  • Длина 15000 мм.
  • Ширина 300 мм.
  • Высота 1415 мм.
  • Вес 6650 кг.
  • Объем бетона 2,66 м3
  • Геометрический объем 6,3675 м3
Цена: 193515 руб.
Подробнее
1Б 6-15-4
Балки Серия ПК 01-06
  • Длина 15000 мм.
  • Ширина 300 мм.
  • Высота 1415 мм.
  • Вес 6650 кг.
  • Объем бетона 2,66 м3
  • Геометрический объем 6,3675 м3
Цена: 193515 руб.
Подробнее
1Б 6-18-1
Балки Серия ПК 01-06
  • Длина 17950 мм.
  • Ширина 400 мм.
  • Высота 1540 мм.
  • Вес 9100 кг.
  • Объем бетона 3,62 м3
  • Геометрический объем 11,0572 м3
Цена: 263355 руб.
Подробнее
1Б 6-18-2
Балки Серия ПК 01-06
  • Длина 17950 мм.
  • Ширина 400 мм.
  • Высота 1540 мм.
  • Вес 9100 кг.
  • Объем бетона 3,62 м3
  • Геометрический объем 11,0572 м3
Цена: 263355 руб.
Подробнее
1Б 6-18-3
Балки Серия ПК 01-06
  • Длина 17950 мм.
  • Ширина 400 мм.
  • Высота 1540 мм.
  • Вес 9100 кг.
  • Объем бетона 3,62 м3
  • Геометрический объем 11,0572 м3
Цена: 263355 руб.
Подробнее
1Б 6-18-4
Балки Серия ПК 01-06
  • Длина 17950 мм.
  • Ширина 400 мм.
  • Высота 1540 мм.
  • Вес 9100 кг.
  • Объем бетона 3,62 м3
  • Геометрический объем 11,0572 м3
Цена: 263355 руб.
Подробнее
1Б 6-18-5
Балки Серия ПК 01-06
  • Длина 17950 мм.
  • Ширина 430 мм.
  • Высота 1540 мм.
  • Вес 9100 кг.
  • Объем бетона 3,62 м3
  • Геометрический объем 11,8865 м3
Цена: 263355 руб.
Подробнее
1Б 6-24-1
Балки Серия ПК 01-06
  • Длина 24000 мм.
  • Ширина 400 мм.
  • Высота 1990 мм.
  • Вес 13600 кг.
  • Объем бетона 5,42 м3
  • Геометрический объем 19,104 м3
Цена: 394305 руб.
Подробнее
1Б 6-24-3
Балки Серия ПК 01-06
  • Длина 24000 мм.
  • Ширина 400 мм.
  • Высота 1990 мм.
  • Вес 13600 кг.
  • Объем бетона 5,42 м3
  • Геометрический объем 19,104 м3
Цена: 394305 руб.
Подробнее
1Б 6-24-2
Балки Серия ПК 01-06
  • Длина 24000 мм.
  • Ширина 400 мм.
  • Высота 1990 мм.
  • Вес 13600 кг.
  • Объем бетона 5,42 м3
  • Геометрический объем 19,104 м3
Цена: 394305 руб.
Подробнее
1Б 6-24-4
Балки Серия ПК 01-06
  • Длина 24000 мм.
  • Ширина 400 мм.
  • Высота 1990 мм.
  • Вес 13600 кг.
  • Объем бетона 5,42 м3
  • Геометрический объем 19,104 м3
Цена: 394305 руб.
Подробнее
1Б 8-12-1
Балки Серия ПК 01-06
  • Длина 11950 мм.
  • Ширина 210 мм.
  • Высота 1290 мм.
  • Вес 4100 кг.
  • Объем бетона 1,65 м3
  • Геометрический объем 3,2373 м3
Цена: 120038 руб.
Подробнее
1Б 8-12-2
Балки Серия ПК 01-06
  • Длина 11950 мм.
  • Ширина 210 мм.
  • Высота 1290 мм.
  • Вес 4100 кг.
  • Объем бетона 1,65 м3
  • Геометрический объем 3,2373 м3
Цена: 120038 руб.
Подробнее
1Б 6-24-5
Балки Серия ПК 01-06
  • Длина 24000 мм.
  • Ширина 430 мм.
  • Высота 1990 мм.
  • Вес 16200 кг.
  • Объем бетона 6,47 м3
  • Геометрический объем 20,5368 м3
Цена: 470693 руб.
Подробнее
1Б 8-12-4
Балки Серия ПК 01-06
  • Длина 11950 мм.
  • Ширина 210 мм.
  • Высота 1290 мм.
  • Вес 4100 кг.
  • Объем бетона 1,65 м3
  • Геометрический объем 3,2373 м3
Цена: 120038 руб.
Подробнее
1Б 8-12-3
Балки Серия ПК 01-06
  • Длина 11950 мм.
  • Ширина 210 мм.
  • Высота 1290 мм.
  • Вес 4100 кг.
  • Объем бетона 1,65 м3
  • Геометрический объем 3,2373 м3
Цена: 120038 руб.
Подробнее
1Б 8-15-1
Балки Серия ПК 01-06
  • Длина 15000 мм.
  • Ширина 300 мм.
  • Высота 1415 мм.
  • Вес 6700 кг.
  • Объем бетона 2,68 м3
  • Геометрический объем 6,3675 м3
Цена: 194970 руб.
Подробнее
1Б 8-15-4
Балки Серия ПК 01-06
  • Длина 15000 мм.
  • Ширина 300 мм.
  • Высота 1415 мм.
  • Вес 6700 кг.
  • Объем бетона 2,68 м3
  • Геометрический объем 6,3675 м3
Цена: 194970 руб.
Подробнее
1Б 8-15-2
Балки Серия ПК 01-06
  • Длина 15000 мм.
  • Ширина 300 мм.
  • Высота 1415 мм.
  • Вес 6700 кг.
  • Объем бетона 2,68 м3
  • Геометрический объем 6,3675 м3
Цена: 194970 руб.
Подробнее
1Б 8-15-3
Балки Серия ПК 01-06
  • Длина 15000 мм.
  • Ширина 300 мм.
  • Высота 1415 мм.
  • Вес 6700 кг.
  • Объем бетона 2,68 м3
  • Геометрический объем 6,3675 м3
Цена: 194970 руб.
Подробнее
1Б 8-18-1
Балки Серия ПК 01-06
  • Длина 17950 мм.
  • Ширина 400 мм.
  • Высота 1540 мм.
  • Вес 9100 кг.
  • Объем бетона 3,64 м3
  • Геометрический объем 11,0572 м3
Цена: 264810 руб.
Подробнее
1Б 8-18-2
Балки Серия ПК 01-06
  • Длина 17950 мм.
  • Ширина 400 мм.
  • Высота 1540 мм.
  • Вес 9100 кг.
  • Объем бетона 3,64 м3
  • Геометрический объем 11,0572 м3
Цена: 264810 руб.
Подробнее
1Б 8-18-3
Балки Серия ПК 01-06
  • Длина 17950 мм.
  • Ширина 400 мм.
  • Высота 1540 мм.
  • Вес 9100 кг.
  • Объем бетона 3,64 м3
  • Геометрический объем 11,0572 м3
Цена: 264810 руб.
Подробнее
1Б 8-18-4
Балки Серия ПК 01-06
  • Длина 17950 мм.
  • Ширина 400 мм.
  • Высота 1540 мм.
  • Вес 9100 кг.
  • Объем бетона 3,64 м3
  • Геометрический объем 11,0572 м3
Цена: 264810 руб.
Подробнее
1Б 8-18-5
Балки Серия ПК 01-06
  • Длина 17950 мм.
  • Ширина 430 мм.
  • Высота 1540 мм.
  • Вес 10700 кг.
  • Объем бетона 4,27 м3
  • Геометрический объем 11,8865 м3
Цена: 310643 руб.
Подробнее
1Б 8-24-1
Балки Серия ПК 01-06
  • Длина 24000 мм.
  • Ширина 400 мм.
  • Высота 1990 мм.
  • Вес 13600 кг.
  • Объем бетона 5,44 м3
  • Геометрический объем 19,104 м3
Цена: 395760 руб.
Подробнее
1Б 8-24-4
Балки Серия ПК 01-06
  • Длина 24000 мм.
  • Ширина 400 мм.
  • Высота 1990 мм.
  • Вес 13600 кг.
  • Объем бетона 5,44 м3
  • Геометрический объем 19,104 м3
Цена: 395760 руб.
Подробнее
1Б 8-24-3
Балки Серия ПК 01-06
  • Длина 24000 мм.
  • Ширина 400 мм.
  • Высота 1990 мм.
  • Вес 13600 кг.
  • Объем бетона 5,44 м3
  • Геометрический объем 19,104 м3
Цена: 395760 руб.
Подробнее
1Б 9-12-2
Балки Серия ПК 01-06
  • Длина 11950 мм.
  • Ширина 210 мм.
  • Высота 1290 мм.
  • Вес 4100 кг.
  • Объем бетона 1,62 м3
  • Геометрический объем 3,2373 м3
Цена: 117855 руб.
Подробнее
1Б 8-24-2
Балки Серия ПК 01-06
  • Длина 24000 мм.
  • Ширина 400 мм.
  • Высота 1990 мм.
  • Вес 13600 кг.
  • Объем бетона 5,44 м3
  • Геометрический объем 19,104 м3
Цена: 395760 руб.
Подробнее
1Б 8-24-5
Балки Серия ПК 01-06
  • Длина 24000 мм.
  • Ширина 430 мм.
  • Высота 1990 мм.
  • Вес 16300 кг.
  • Объем бетона 4,51 м3
  • Геометрический объем 20,5368 м3
Цена: 328103 руб.
Подробнее
1Б 9-12-1
Балки Серия ПК 01-06
  • Длина 12000 мм.
  • Ширина 210 мм.
  • Высота 1290 мм.
  • Вес 4100 кг.
  • Объем бетона 1,62 м3
  • Геометрический объем 3,2508 м3
Цена: 117855 руб.
Подробнее
1Б 9-12-3
Балки Серия ПК 01-06
  • Длина 11950 мм.
  • Ширина 210 мм.
  • Высота 1290 мм.
  • Вес 4100 кг.
  • Объем бетона 1,62 м3
  • Геометрический объем 3,2373 м3
Цена: 117855 руб.
Подробнее
1Б 9-12-4
Балки Серия ПК 01-06
  • Длина 11950 мм.
  • Ширина 210 мм.
  • Высота 1290 мм.
  • Вес 4100 кг.
  • Объем бетона 1,62 м3
  • Геометрический объем 3,2373 м3
Цена: 117855 руб.
Подробнее
1Б 9-15-1
Балки Серия ПК 01-06
  • Длина 15000 мм.
  • Ширина 300 мм.
  • Высота 1415 мм.
  • Вес 6600 кг.
  • Объем бетона 2,64 м3
  • Геометрический объем 6,3675 м3
Цена: 192060 руб.
Подробнее
1Б 9-15-2
Балки Серия ПК 01-06
  • Длина 15000 мм.
  • Ширина 300 мм.
  • Высота 1415 мм.
  • Вес 6600 кг.
  • Объем бетона 2,64 м3
  • Геометрический объем 6,3675 м3
Цена: 192060 руб.
Подробнее
1Б 9-15-3
Балки Серия ПК 01-06
  • Длина 15000 мм.
  • Ширина 300 мм.
  • Высота 1415 мм.
  • Вес 6600 кг.
  • Объем бетона 2,64 м3
  • Геометрический объем 6,3675 м3
Цена: 192060 руб.
Подробнее
1Б 9-15-4
Балки Серия ПК 01-06
  • Длина 15000 мм.
  • Ширина 300 мм.
  • Высота 1415 мм.
  • Вес 6600 кг.
  • Объем бетона 2,64 м3
  • Геометрический объем 6,3675 м3
Цена: 192060 руб.
Подробнее
1Б 9-18-1
Балки Серия ПК 01-06
  • Длина 17950 мм.
  • Ширина 400 мм.
  • Высота 1540 мм.
  • Вес 9000 кг.
  • Объем бетона 3,6 м3
  • Геометрический объем 11,0572 м3
Цена: 261900 руб.
Подробнее
1Б 9-18-2
Балки Серия ПК 01-06
  • Длина 17950 мм.
  • Ширина 400 мм.
  • Высота 1540 мм.
  • Вес 9000 кг.
  • Объем бетона 3,6 м3
  • Геометрический объем 11,0572 м3
Цена: 261900 руб.
Подробнее
1Б 9-18-4
Балки Серия ПК 01-06
  • Длина 17950 мм.
  • Ширина 400 мм.
  • Высота 1540 мм.
  • Вес 9000 кг.
  • Объем бетона 3,6 м3
  • Геометрический объем 11,0572 м3
Цена: 261900 руб.
Подробнее
1Б 9-18-3
Балки Серия ПК 01-06
  • Длина 17950 мм.
  • Ширина 400 мм.
  • Высота 1540 мм.
  • Вес 9000 кг.
  • Объем бетона 3,6 м3
  • Геометрический объем 11,0572 м3
Цена: 261900 руб.
Подробнее
1Б 9-18-5
Балки Серия ПК 01-06
  • Длина 17950 мм.
  • Ширина 430 мм.
  • Высота 1540 мм.
  • Вес 1060 кг.
  • Объем бетона 4,22 м3
  • Геометрический объем 11,8865 м3
Цена: 307005 руб.
Подробнее
1Б 9-24-1
Балки Серия ПК 01-06
  • Длина 24000 мм.
  • Ширина 400 мм.
  • Высота 1990 мм.
  • Вес 13500 кг.
  • Объем бетона 5,39 м3
  • Геометрический объем 19,104 м3
Цена: 392123 руб.
Подробнее
1Б 9-24-2
Балки Серия ПК 01-06
  • Длина 24000 мм.
  • Ширина 400 мм.
  • Высота 1990 мм.
  • Вес 13500 кг.
  • Объем бетона 5,39 м3
  • Геометрический объем 19,104 м3
Цена: 392123 руб.
Подробнее
1Б 9-24-4
Балки Серия ПК 01-06
  • Длина 24000 мм.
  • Ширина 400 мм.
  • Высота 1990 мм.
  • Вес 13500 кг.
  • Объем бетона 5,39 м3
  • Геометрический объем 19,104 м3
Цена: 392123 руб.
Подробнее
1Б 9-24-3
Балки Серия ПК 01-06
  • Длина 24000 мм.
  • Ширина 400 мм.
  • Высота 1990 мм.
  • Вес 13500 кг.
  • Объем бетона 5,39 м3
  • Геометрический объем 19,104 м3
Цена: 392123 руб.
Подробнее
1Б 9-24-5
Балки Серия ПК 01-06
  • Длина 24000 мм.
  • Ширина 430 мм.
  • Высота 1990 мм.
  • Вес 16100 кг.
  • Объем бетона 6,45 м3
  • Геометрический объем 20,5368 м3
Цена: 469238 руб.
Подробнее
АБ 1-18-1 АIIIв
Балки Серия ПК 01-06
  • Длина 17950 мм.
  • Ширина 400 мм.
  • Высота 1540 мм.
  • Вес 9100 кг.
  • Объем бетона 3,64 м3
  • Геометрический объем 11,0572 м3
Цена: 264810 руб.
Подробнее
АБ 1-18-1 АIV
Балки Серия ПК 01-06
  • Длина 17950 мм.
  • Ширина 400 мм.
  • Высота 1540 мм.
  • Вес 9100 кг.
  • Объем бетона 3,64 м3
  • Геометрический объем 11,0572 м3
Цена: 264810 руб.
Подробнее
АБ 1-18-2 АIIIв
Балки Серия ПК 01-06
  • Длина 17950 мм.
  • Ширина 400 мм.
  • Высота 1540 мм.
  • Вес 9100 кг.
  • Объем бетона 3,64 м3
  • Геометрический объем 11,0572 м3
Цена: 264810 руб.
Подробнее
АБ 1-18-2 п
Балки Серия ПК 01-06
  • Длина 17950 мм.
  • Ширина 400 мм.
  • Высота 1540 мм.
  • Вес 9100 кг.
  • Объем бетона 3,64 м3
  • Геометрический объем 11,0572 м3
Цена: 264810 руб.
Подробнее
АБ 1-18-2 АIV
Балки Серия ПК 01-06
  • Длина 17950 мм.
  • Ширина 400 мм.
  • Высота 1540 мм.
  • Вес 9100 кг.
  • Объем бетона 3,64 м3
  • Геометрический объем 11,0572 м3
Цена: 264810 руб.
Подробнее
АБ 1-18-3 АIIIв
Балки Серия ПК 01-06
  • Длина 17950 мм.
  • Ширина 430 мм.
  • Высота 1540 мм.
  • Вес 10700 кг.
  • Объем бетона 4,27 м3
  • Геометрический объем 11,8865 м3
Цена: 310643 руб.
Подробнее
АБ 1-18-1 п
Балки Серия ПК 01-06
  • Длина 17950 мм.
  • Ширина 400 мм.
  • Высота 1540 мм.
  • Вес 9100 кг.
  • Объем бетона 3,64 м3
  • Геометрический объем 11,0572 м3
Цена: 264810 руб.
Подробнее
АБ 1-18-3 АIV
Балки Серия ПК 01-06
  • Длина 17950 мм.
  • Ширина 430 мм.
  • Высота 1540 мм.
  • Вес 10700 кг.
  • Объем бетона 4,27 м3
  • Геометрический объем 11,8865 м3
Цена: 310643 руб.
Подробнее
АБ 1-18-3 п
Балки Серия ПК 01-06
  • Длина 17950 мм.
  • Ширина 430 мм.
  • Высота 1540 мм.
  • Вес 10700 кг.
  • Объем бетона 4,27 м3
  • Геометрический объем 11,8865 м3
Цена: 310643 руб.
Подробнее

Уведомление о файлах cookie

Мы используем файлы cookie для улучшения вашего опыта просмотра и анализа трафика. Нажимая "Принять все", вы соглашаетесь с нашей политикой конфиденциальности и политикой обработки файлов cookie.

MAX Дзен Телеграм Вконтакте vk