mobile_sound +7 (930) 655-55-90

Типовые конструкции и железобетонные изделия. Рабочие чертежи (Серия ПК 01-06)

Поделиться:
Поделиться:

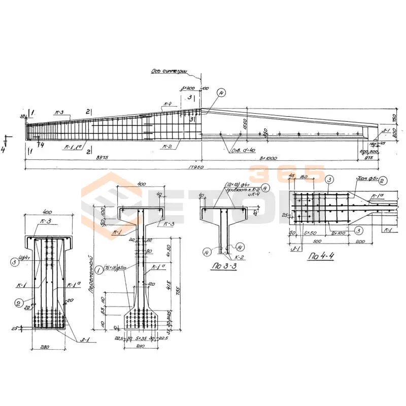
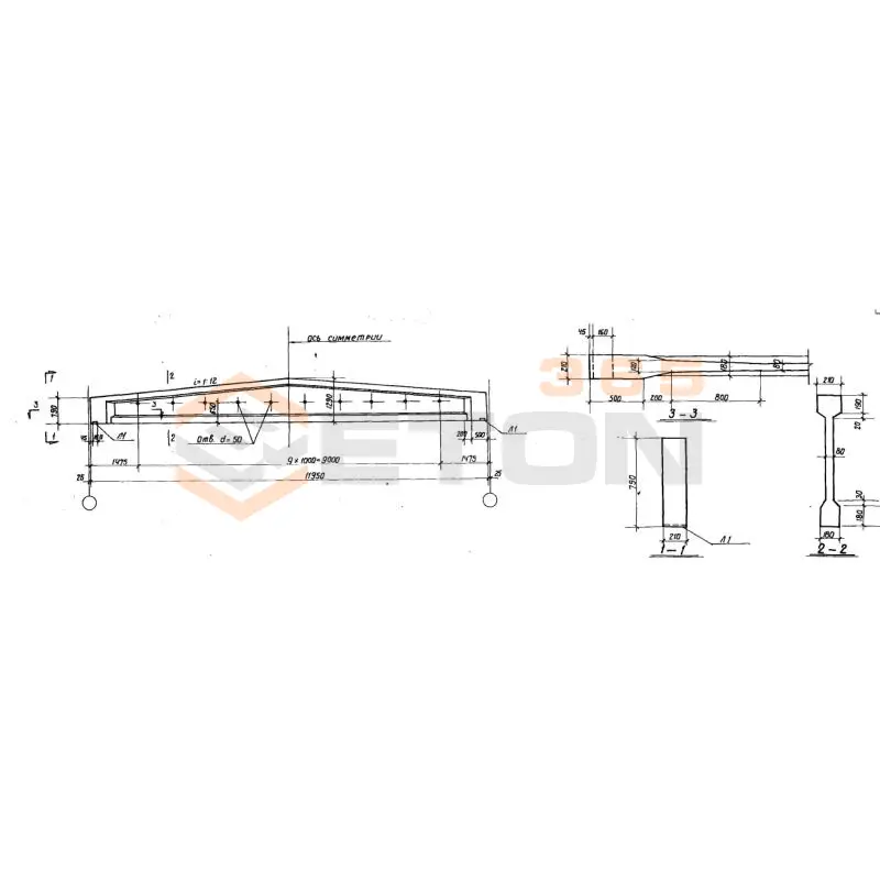
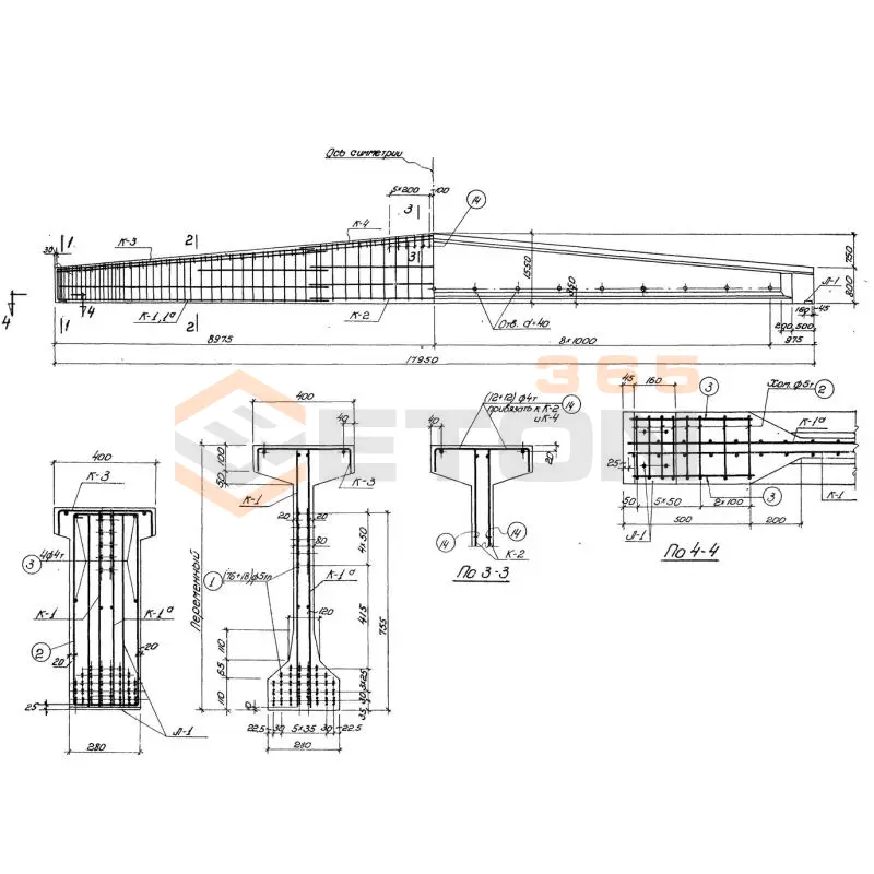
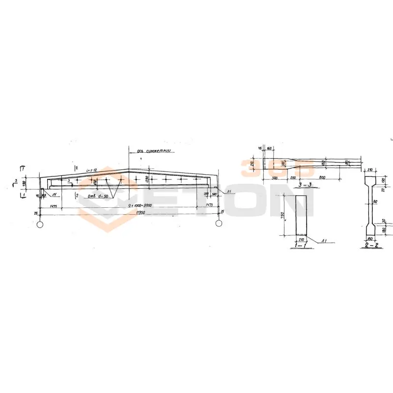
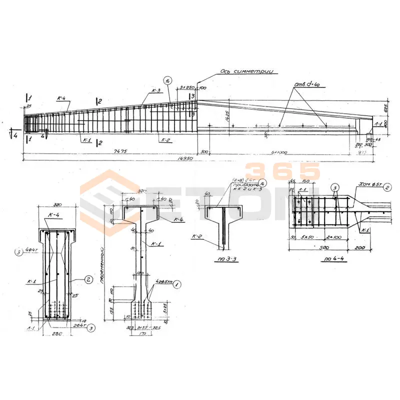
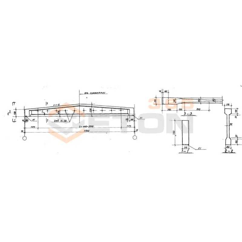
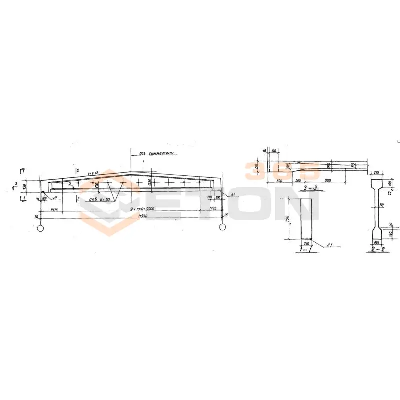
Документ Серия ПК 01-06 описывает область применения, номенклатуру и ключевые требования, опираясь на действующие нормы и практику проектирования. Серия ПК 01-06 состоит из большого числа нормативных выпусков, каждый из которых посвящен отдельной части по организации процесса производства сборных несущих изделия и конструкции из железобетона, используемых в сооружениях с покрытиями кровли, выполненными из рулонных материалов. Разработкой регламента занимался Проектный институт №1, работы осуществлялись совместно с НИИС, введение в действие состоялось после утверждения, начиная с 1957 года. Номенклатурный перечень Серии включает в себя балки пролетами 9, 12.

Файлы для скачивания:
picture_as_pdf

3265.pdf

17,834.1 KB

скачать
picture_as_pdf

3276.pdf

9,172.3 KB

скачать
picture_as_pdf

3277.pdf

12,161.9 KB

скачать
picture_as_pdf

3278.pdf

12,380.8 KB

скачать
picture_as_pdf

3279.pdf

11,755.6 KB

скачать
picture_as_pdf

3280.pdf

12,264.8 KB

скачать
picture_as_pdf

3281.pdf

10,809.0 KB

скачать
picture_as_pdf

3266.pdf

13,601.3 KB

скачать
picture_as_pdf

3267.pdf

16,340.4 KB

скачать
picture_as_pdf

3268.pdf

18,478.1 KB

скачать
picture_as_pdf

3269.pdf

20,551.8 KB

скачать
picture_as_pdf

3270.pdf

16,644.8 KB

скачать
picture_as_pdf

3271.pdf

18,650.0 KB

скачать
picture_as_pdf

3273.pdf

13,483.6 KB

скачать
picture_as_pdf

3272.pdf

31,620.8 KB

скачать
picture_as_pdf

3274.pdf

10,067.1 KB

скачать
picture_as_pdf

3275.pdf

52,223.9 KB

скачать
Товары Серия ПК 01-06 (60)
АБ 1-18-4 АIIIв
Балки Серия ПК 01-06
  • Длина 17950 мм.
  • Ширина 430 мм.
  • Высота 1540 мм.
  • Вес 10700 кг.
  • Объем бетона 4,27 м3
  • Геометрический объем 11,8865 м3
Цена: 310643 руб.
Подробнее
АБ 1-18-4 АIV
Балки Серия ПК 01-06
  • Длина 17950 мм.
  • Ширина 430 мм.
  • Высота 1540 мм.
  • Вес 10700 кг.
  • Объем бетона 4,27 м3
  • Геометрический объем 11,8865 м3
Цена: 310643 руб.
Подробнее
АБ 1-18-4 п
Балки Серия ПК 01-06
  • Длина 17950 мм.
  • Ширина 430 мм.
  • Высота 1540 мм.
  • Вес 10700 кг.
  • Объем бетона 4,27 м3
  • Геометрический объем 11,8865 м3
Цена: 310643 руб.
Подробнее
АБ 12-1 АIIIв
Балки Серия ПК 01-06
  • Длина 11950 мм.
  • Ширина 210 мм.
  • Высота 1290 мм.
  • Вес 4100 кг.
  • Объем бетона 1,65 м3
  • Геометрический объем 3,2373 м3
Цена: 120038 руб.
Подробнее
АБ 12-1 АIV
Балки Серия ПК 01-06
  • Длина 11950 мм.
  • Ширина 210 мм.
  • Высота 1290 мм.
  • Вес 4100 кг.
  • Объем бетона 1,65 м3
  • Геометрический объем 3,2373 м3
Цена: 120038 руб.
Подробнее
АБ 12-1 п
Балки Серия ПК 01-06
  • Длина 11950 мм.
  • Ширина 210 мм.
  • Высота 1290 мм.
  • Вес 4100 кг.
  • Объем бетона 1,65 м3
  • Геометрический объем 3,2373 м3
Цена: 120038 руб.
Подробнее
АБ 12-2 АIIIв
Балки Серия ПК 01-06
  • Длина 11950 мм.
  • Ширина 210 мм.
  • Высота 1290 мм.
  • Вес 4100 кг.
  • Объем бетона 1,65 м3
  • Геометрический объем 3,2373 м3
Цена: 120038 руб.
Подробнее
АБ 12-2 п
Балки Серия ПК 01-06
  • Длина 11950 мм.
  • Ширина 210 мм.
  • Высота 1290 мм.
  • Вес 4100 кг.
  • Объем бетона 1,65 м3
  • Геометрический объем 3,2373 м3
Цена: 120038 руб.
Подробнее
АБ 12-3 АIIIв
Балки Серия ПК 01-06
  • Длина 11950 мм.
  • Ширина 210 мм.
  • Высота 1290 мм.
  • Вес 4100 кг.
  • Объем бетона 1,65 м3
  • Геометрический объем 3,2373 м3
Цена: 120038 руб.
Подробнее
АБ 12-2 АIV
Балки Серия ПК 01-06
  • Длина 11950 мм.
  • Ширина 210 мм.
  • Высота 1290 мм.
  • Вес 4100 кг.
  • Объем бетона 1,65 м3
  • Геометрический объем 3,2373 м3
Цена: 120038 руб.
Подробнее
АБ 12-3 АIV
Балки Серия ПК 01-06
  • Длина 11950 мм.
  • Ширина 210 мм.
  • Высота 1290 мм.
  • Вес 4100 кг.
  • Объем бетона 1,65 м3
  • Геометрический объем 3,2373 м3
Цена: 120038 руб.
Подробнее
АБ 18-1 АIIIв
Балки Серия ПК 01-06
  • Длина 17950 мм.
  • Ширина 400 мм.
  • Высота 1540 мм.
  • Вес 9100 кг.
  • Объем бетона 3,64 м3
  • Геометрический объем 11,0572 м3
Цена: 264810 руб.
Подробнее
АБ 18-1 АIV
Балки Серия ПК 01-06
  • Длина 17950 мм.
  • Ширина 400 мм.
  • Высота 1540 мм.
  • Вес 9100 кг.
  • Объем бетона 3,64 м3
  • Геометрический объем 11,0572 м3
Цена: 264810 руб.
Подробнее
АБ 12-3 п
Балки Серия ПК 01-06
  • Длина 11950 мм.
  • Ширина 210 мм.
  • Высота 1290 мм.
  • Вес 4100 кг.
  • Объем бетона 1,65 м3
  • Геометрический объем 3,2373 м3
Цена: 120038 руб.
Подробнее
АБ 18-2 АIIIв
Балки Серия ПК 01-06
  • Длина 17950 мм.
  • Ширина 400 мм.
  • Высота 1540 мм.
  • Вес 9100 кг.
  • Объем бетона 3,64 м3
  • Геометрический объем 11,0572 м3
Цена: 264810 руб.
Подробнее
АБ 18-1 п
Балки Серия ПК 01-06
  • Длина 17950 мм.
  • Ширина 400 мм.
  • Высота 1540 мм.
  • Вес 9100 кг.
  • Объем бетона 3,64 м3
  • Геометрический объем 11,0572 м3
Цена: 264810 руб.
Подробнее
АБ 18-2 АIV
Балки Серия ПК 01-06
  • Длина 17950 мм.
  • Ширина 400 мм.
  • Высота 1540 мм.
  • Вес 9100 кг.
  • Объем бетона 3,64 м3
  • Геометрический объем 11,0572 м3
Цена: 264810 руб.
Подробнее
АБ 18-3 АIIIв
Балки Серия ПК 01-06
  • Длина 17950 мм.
  • Ширина 430 мм.
  • Высота 1540 мм.
  • Вес 10700 кг.
  • Объем бетона 4,27 м3
  • Геометрический объем 11,8865 м3
Цена: 310643 руб.
Подробнее
АБ 18-4 АIIIв
Балки Серия ПК 01-06
  • Длина 17950 мм.
  • Ширина 430 мм.
  • Высота 1540 мм.
  • Вес 10700 кг.
  • Объем бетона 4,27 м3
  • Геометрический объем 11,8865 м3
Цена: 310643 руб.
Подробнее
АБ 18-2 п
Балки Серия ПК 01-06
  • Длина 17950 мм.
  • Ширина 400 мм.
  • Высота 1540 мм.
  • Вес 9100 кг.
  • Объем бетона 3,64 м3
  • Геометрический объем 11,0572 м3
Цена: 264810 руб.
Подробнее
АБ 18-3 п
Балки Серия ПК 01-06
  • Длина 17950 мм.
  • Ширина 430 мм.
  • Высота 1540 мм.
  • Вес 10700 кг.
  • Объем бетона 4,27 м3
  • Геометрический объем 11,8865 м3
Цена: 310643 руб.
Подробнее
АБ 18-3 АIV
Балки Серия ПК 01-06
  • Длина 17950 мм.
  • Ширина 430 мм.
  • Высота 1540 мм.
  • Вес 10700 кг.
  • Объем бетона 4,27 м3
  • Геометрический объем 11,8865 м3
Цена: 310643 руб.
Подробнее
АБ 18-4 АIV
Балки Серия ПК 01-06
  • Длина 17950 мм.
  • Ширина 430 мм.
  • Высота 1540 мм.
  • Вес 10700 кг.
  • Объем бетона 4,27 м3
  • Геометрический объем 11,8865 м3
Цена: 310643 руб.
Подробнее
АБ 18-4 п
Балки Серия ПК 01-06
  • Длина 17950 мм.
  • Ширина 430 мм.
  • Высота 1540 мм.
  • Вес 10700 кг.
  • Объем бетона 4,27 м3
  • Геометрический объем 11,8865 м3
Цена: 310643 руб.
Подробнее
АБ 2-18-1 АIIIв
Балки Серия ПК 01-06
  • Длина 17950 мм.
  • Ширина 400 мм.
  • Высота 1540 мм.
  • Вес 9100 кг.
  • Объем бетона 3,64 м3
  • Геометрический объем 11,0572 м3
Цена: 264810 руб.
Подробнее
АБ 2-18-1 АIV
Балки Серия ПК 01-06
  • Длина 17950 мм.
  • Ширина 400 мм.
  • Высота 1540 мм.
  • Вес 9100 кг.
  • Объем бетона 3,64 м3
  • Геометрический объем 11,0572 м3
Цена: 264810 руб.
Подробнее
АБ 2-18-1 п
Балки Серия ПК 01-06
  • Длина 17950 мм.
  • Ширина 400 мм.
  • Высота 1540 мм.
  • Вес 9100 кг.
  • Объем бетона 3,64 м3
  • Геометрический объем 11,0572 м3
Цена: 264810 руб.
Подробнее
АБ 2-18-2 АIIIв
Балки Серия ПК 01-06
  • Длина 17950 мм.
  • Ширина 400 мм.
  • Высота 1540 мм.
  • Вес 9100 кг.
  • Объем бетона 3,64 м3
  • Геометрический объем 11,0572 м3
Цена: 264810 руб.
Подробнее
АБ 2-18-2 АIV
Балки Серия ПК 01-06
  • Длина 17950 мм.
  • Ширина 400 мм.
  • Высота 1540 мм.
  • Вес 9100 кг.
  • Объем бетона 3,64 м3
  • Геометрический объем 11,0572 м3
Цена: 264810 руб.
Подробнее
АБ 2-18-2 п
Балки Серия ПК 01-06
  • Длина 17950 мм.
  • Ширина 400 мм.
  • Высота 1540 мм.
  • Вес 9100 кг.
  • Объем бетона 3,64 м3
  • Геометрический объем 11,0572 м3
Цена: 264810 руб.
Подробнее
АБ 2-18-3 АIV
Балки Серия ПК 01-06
  • Длина 17950 мм.
  • Ширина 430 мм.
  • Высота 1540 мм.
  • Вес 10700 кг.
  • Объем бетона 4,27 м3
  • Геометрический объем 11,8865 м3
Цена: 310643 руб.
Подробнее
АБ 2-18-3 АIIIв
Балки Серия ПК 01-06
  • Длина 17950 мм.
  • Ширина 430 мм.
  • Высота 1540 мм.
  • Вес 10700 кг.
  • Объем бетона 4,27 м3
  • Геометрический объем 11,8865 м3
Цена: 310643 руб.
Подробнее
АБ 2-18-4 АIIIв
Балки Серия ПК 01-06
  • Длина 17950 мм.
  • Ширина 430 мм.
  • Высота 1540 мм.
  • Вес 10700 кг.
  • Объем бетона 4,27 м3
  • Геометрический объем 11,8865 м3
Цена: 310643 руб.
Подробнее
АБ 2-18-3 АIIIв
Балки Серия ПК 01-06
  • Длина 17950 мм.
  • Ширина 430 мм.
  • Высота 1540 мм.
  • Вес 10700 кг.
  • Объем бетона 4,27 м3
  • Геометрический объем 11,8865 м3
Цена: 310643 руб.
Подробнее
АБ 2-18-3 п
Балки Серия ПК 01-06
  • Длина 17950 мм.
  • Ширина 430 мм.
  • Высота 1540 мм.
  • Вес 10700 кг.
  • Объем бетона 4,27 м3
  • Геометрический объем 11,8865 м3
Цена: 310643 руб.
Подробнее
АБ 2-18-4 АIV
Балки Серия ПК 01-06
  • Длина 17950 мм.
  • Ширина 430 мм.
  • Высота 1540 мм.
  • Вес 10700 кг.
  • Объем бетона 4,27 м3
  • Геометрический объем 11,8865 м3
Цена: 310643 руб.
Подробнее
Б 1-12-1
Балки Серия ПК 01-06
  • Длина 11950 мм.
  • Ширина 280 мм.
  • Высота 1300 мм.
  • Вес 4130 кг.
  • Объем бетона 1,65 м3
  • Геометрический объем 4,3498 м3
Цена: 120038 руб.
Подробнее
Б 1-12-3
Балки Серия ПК 01-06
  • Длина 11950 мм.
  • Ширина 280 мм.
  • Высота 1300 мм.
  • Вес 4130 кг.
  • Объем бетона 1,65 м3
  • Геометрический объем 4,3498 м3
Цена: 120038 руб.
Подробнее
Б 1-15-1
Балки Серия ПК 01-06
  • Длина 14950 мм.
  • Ширина 320 мм.
  • Высота 1425 мм.
  • Вес 5500 кг.
  • Объем бетона 2,2 м3
  • Геометрический объем 6,8172 м3
Цена: 160050 руб.
Подробнее
АБ 2-18-4 п
Балки Серия ПК 01-06
  • Длина 17950 мм.
  • Ширина 430 мм.
  • Высота 1540 мм.
  • Вес 10700 кг.
  • Объем бетона 4,27 м3
  • Геометрический объем 11,8865 м3
Цена: 310643 руб.
Подробнее
Б 1-12-2
Балки Серия ПК 01-06
  • Длина 11950 мм.
  • Ширина 280 мм.
  • Высота 1300 мм.
  • Вес 4130 кг.
  • Объем бетона 1,65 м3
  • Геометрический объем 4,3498 м3
Цена: 120038 руб.
Подробнее
Б 1-15-2
Балки Серия ПК 01-06
  • Длина 14950 мм.
  • Ширина 320 мм.
  • Высота 1425 мм.
  • Вес 5500 кг.
  • Объем бетона 2,2 м3
  • Геометрический объем 6,8172 м3
Цена: 160050 руб.
Подробнее
Б 1-15-3
Балки Серия ПК 01-06
  • Длина 14950 мм.
  • Ширина 320 мм.
  • Высота 1425 мм.
  • Вес 5500 кг.
  • Объем бетона 2,2 м3
  • Геометрический объем 6,8172 м3
Цена: 160050 руб.
Подробнее
Б 1-18-1
Балки Серия ПК 01-06
  • Длина 17950 мм.
  • Ширина 400 мм.
  • Высота 1550 мм.
  • Вес 7670 кг.
  • Объем бетона 3,07 м3
  • Геометрический объем 11,129 м3
Цена: 223343 руб.
Подробнее
Б 1-18-3
Балки Серия ПК 01-06
  • Длина 17950 мм.
  • Ширина 400 мм.
  • Высота 1550 мм.
  • Вес 7670 кг.
  • Объем бетона 3,07 м3
  • Геометрический объем 11,129 м3
Цена: 223343 руб.
Подробнее
Б 1-18-2
Балки Серия ПК 01-06
  • Длина 17950 мм.
  • Ширина 400 мм.
  • Высота 1550 мм.
  • Вес 7670 кг.
  • Объем бетона 3,07 м3
  • Геометрический объем 11,129 м3
Цена: 223343 руб.
Подробнее
Б 1-24-1
Балки Серия ПК 01-06
  • Длина 23950 мм.
  • Ширина 400 мм.
  • Высота 2000 мм.
  • Вес 11700 кг.
  • Объем бетона 4,67 м3
  • Геометрический объем 19,16 м3
Цена: 339743 руб.
Подробнее
Б 1-24-2
Балки Серия ПК 01-06
  • Длина 23950 мм.
  • Ширина 400 мм.
  • Высота 2000 мм.
  • Вес 11700 кг.
  • Объем бетона 4,67 м3
  • Геометрический объем 19,16 м3
Цена: 339743 руб.
Подробнее
Б 1-24-3
Балки Серия ПК 01-06
  • Длина 23950 мм.
  • Ширина 400 мм.
  • Высота 2000 мм.
  • Вес 11700 кг.
  • Объем бетона 4,67 м3
  • Геометрический объем 19,16 м3
Цена: 339743 руб.
Подробнее
Б 1-24-4
Балки Серия ПК 01-06
  • Длина 23950 мм.
  • Ширина 400 мм.
  • Высота 2000 мм.
  • Вес 11700 кг.
  • Объем бетона 4,67 м3
  • Геометрический объем 19,16 м3
Цена: 339743 руб.
Подробнее
Б 2-12-1
Балки Серия ПК 01-06
  • Длина 11750 мм.
  • Ширина 280 мм.
  • Высота 1300 мм.
  • Вес 4030 кг.
  • Объем бетона 1,2 м3
  • Геометрический объем 4,277 м3
Цена: 87300 руб.
Подробнее
Б 2-12-2
Балки Серия ПК 01-06
  • Длина 11750 мм.
  • Ширина 280 мм.
  • Высота 1300 мм.
  • Вес 4030 кг.
  • Объем бетона 1,61 м3
  • Геометрический объем 4,277 м3
Цена: 117128 руб.
Подробнее
Б 2-12-3
Балки Серия ПК 01-06
  • Длина 11750 мм.
  • Ширина 280 мм.
  • Высота 1300 мм.
  • Вес 4030 кг.
  • Объем бетона 1,61 м3
  • Геометрический объем 4,277 м3
Цена: 117128 руб.
Подробнее
Б 2-15-3
Балки Серия ПК 01-06
  • Длина 14750 мм.
  • Ширина 320 мм.
  • Высота 1425 мм.
  • Вес 5270 кг.
  • Объем бетона 2,38 м3
  • Геометрический объем 6,726 м3
Цена: 173145 руб.
Подробнее
Б 2-15-2
Балки Серия ПК 01-06
  • Длина 14750 мм.
  • Ширина 320 мм.
  • Высота 1425 мм.
  • Вес 5770 кг.
  • Объем бетона 2,31 м3
  • Геометрический объем 6,726 м3
Цена: 168053 руб.
Подробнее
Б 2-15-1
Балки Серия ПК 01-06
  • Длина 14750 мм.
  • Ширина 320 мм.
  • Высота 1425 мм.
  • Вес 5040 кг.
  • Объем бетона 2,16 м3
  • Геометрический объем 6,726 м3
Цена: 157140 руб.
Подробнее
Б 2-18-1
Балки Серия ПК 01-06
  • Длина 17750 мм.
  • Ширина 320 мм.
  • Высота 1550 мм.
  • Вес 7000 кг.
  • Объем бетона 2,8 м3
  • Геометрический объем 8,804 м3
Цена: 203700 руб.
Подробнее
Б 2-18-3
Балки Серия ПК 01-06
  • Длина 17750 мм.
  • Ширина 400 мм.
  • Высота 1550 мм.
  • Вес 7670 кг.
  • Объем бетона 3,07 м3
  • Геометрический объем 11,005 м3
Цена: 223343 руб.
Подробнее
Б 2-18-2
Балки Серия ПК 01-06
  • Длина 17750 мм.
  • Ширина 400 мм.
  • Высота 1550 мм.
  • Вес 7570 кг.
  • Объем бетона 3,03 м3
  • Геометрический объем 11,005 м3
Цена: 220433 руб.
Подробнее
Б 3-12-1
Балки Серия ПК 01-06
  • Длина 11850 мм.
  • Ширина 280 мм.
  • Высота 1300 мм.
  • Вес 4080 кг.
  • Объем бетона 1,63 м3
  • Геометрический объем 4,3134 м3
Цена: 118583 руб.
Подробнее

Уведомление о файлах cookie

Мы используем файлы cookie для улучшения вашего опыта просмотра и анализа трафика. Нажимая "Принять все", вы соглашаетесь с нашей политикой конфиденциальности и политикой обработки файлов cookie.

MAX Дзен Телеграм Вконтакте vk