mobile_sound +7 (930) 655-55-90

Типовые конструкции и железобетонные изделия. Рабочие чертежи (Серия ИИ 03-02)

Поделиться:
Поделиться:

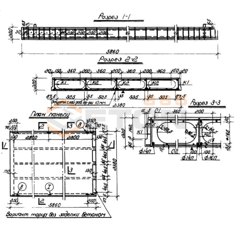
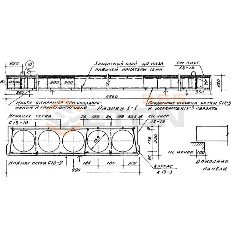
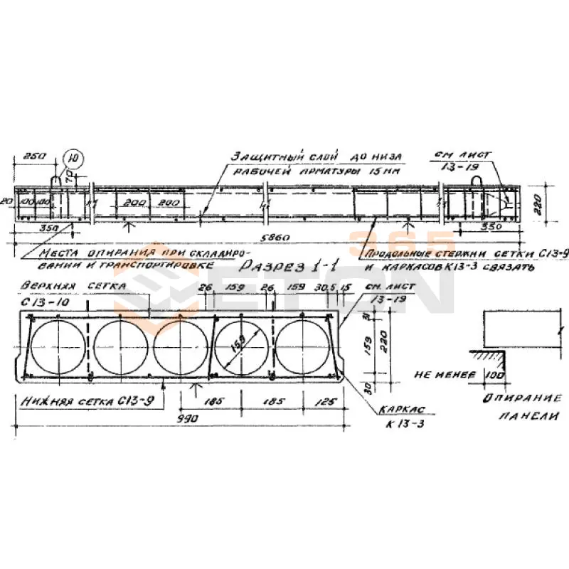
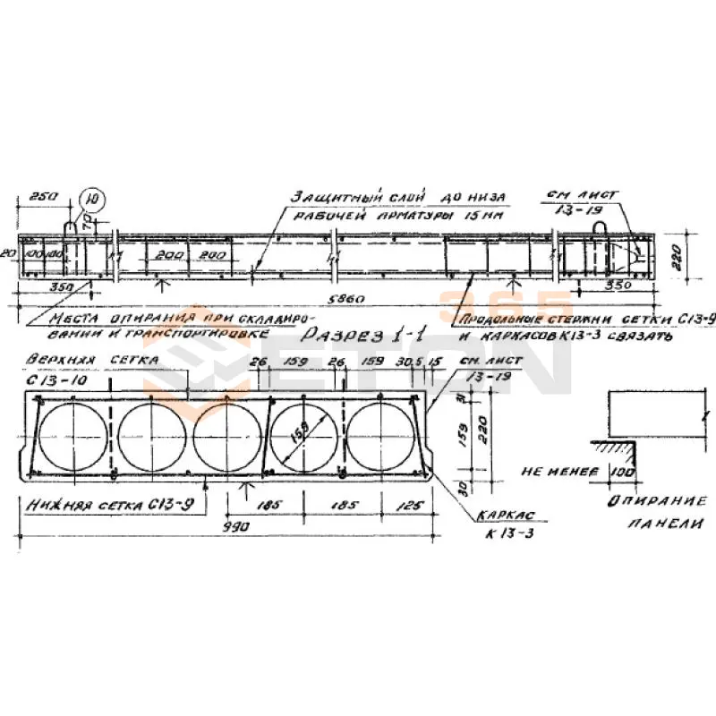
Документ Серия ИИ 03-02 описывает область применения, номенклатуру и ключевые требования, опираясь на действующие нормы и практику проектирования. Серия ИИ 03-02 является крупным нормативным документом, охватывающим большое количество индустриальных изделия и конструкции, используемых в сфере гражданского строительства. В составе регламента масса выпусков, каждый из которых предназначен для отражения определенного информационного блока, направленного на максимально эффективное производство различных изделия и конструкции. Для этих целей приведены опалубочные и арматурные чертежи, технические условия, инструкции по проектированию, расчеты величин несущих способностей, правила контроля, приемки и паспортизации.

Файлы для скачивания:
picture_as_pdf

370.pdf

3,189.6 KB

скачать
picture_as_pdf

398.pdf

4,391.5 KB

скачать
picture_as_pdf

399.pdf

4,548.0 KB

скачать
picture_as_pdf

400.pdf

15,288.0 KB

скачать
picture_as_pdf

401.pdf

13,645.2 KB

скачать
picture_as_pdf

402.pdf

11,172.3 KB

скачать
picture_as_pdf

403.pdf

17,088.9 KB

скачать
picture_as_pdf

404.pdf

7,281.0 KB

скачать
picture_as_pdf

405.pdf

9,400.8 KB

скачать
picture_as_pdf

4588.pdf

1,148.3 KB

скачать
picture_as_pdf

406.pdf

8,049.9 KB

скачать
picture_as_pdf

407.pdf

5,302.9 KB

скачать
picture_as_pdf

373.pdf

6,358.7 KB

скачать
picture_as_pdf

378.pdf

3,479.2 KB

скачать
picture_as_pdf

379.pdf

4,579.9 KB

скачать
picture_as_pdf

381.pdf

12,613.5 KB

скачать
picture_as_pdf

382.pdf

16,141.5 KB

скачать
picture_as_pdf

384.pdf

3,362.0 KB

скачать
picture_as_pdf

388.pdf

8,107.5 KB

скачать
picture_as_pdf

389.pdf

7,862.6 KB

скачать
picture_as_pdf

390.pdf

5,084.1 KB

скачать
picture_as_pdf

391.pdf

5,329.9 KB

скачать
picture_as_pdf

392.pdf

7,221.3 KB

скачать
picture_as_pdf

393.pdf

7,067.9 KB

скачать
picture_as_pdf

394.pdf

11,302.3 KB

скачать
picture_as_pdf

395.pdf

3,525.6 KB

скачать
picture_as_pdf

396.pdf

2,943.9 KB

скачать
picture_as_pdf

397.pdf

11,937.3 KB

скачать
picture_as_pdf

374.pdf

9,959.5 KB

скачать
picture_as_pdf

375.pdf

2,820.0 KB

скачать
picture_as_pdf

377.pdf

6,085.3 KB

скачать
picture_as_pdf

4585.pdf

4,585.6 KB

скачать
picture_as_pdf

372.pdf

4,005.0 KB

скачать
picture_as_pdf

376.pdf

2,871.0 KB

скачать
picture_as_pdf

380.pdf

2,068.6 KB

скачать
picture_as_pdf

4586.pdf

6,148.5 KB

скачать
picture_as_pdf

4587.pdf

2,398.6 KB

скачать
picture_as_pdf

383.pdf

8,594.2 KB

скачать
picture_as_pdf

371.pdf

2,652.3 KB

скачать
picture_as_pdf

385.pdf

5,917.9 KB

скачать
picture_as_pdf

386.pdf

3,188.9 KB

скачать
picture_as_pdf

387.pdf

2,890.8 KB

скачать
Товары Серия ИИ 03-02 (60)
ПО 47-8
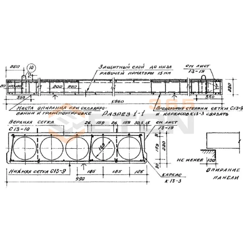
Панели с круглыми пустотами Серия ИИ 03-02 Альбом 5 ч1
  • Длина 4660 мм.
  • Ширина 780 мм.
  • Высота 220 мм.
  • Вес 885 кг.
  • Объем бетона 0,352 м3
  • Геометрический объем 0,7997 м3
Цена: 7512 руб.
Подробнее
ПО 59-12
Панели с круглыми пустотами Серия ИИ 03-02 Альбом 5 ч1
  • Длина 5860 мм.
  • Ширина 1190 мм.
  • Высота 220 мм.
  • Вес 1360 кг.
  • Объем бетона 0,544 м3
  • Геометрический объем 1,5341 м3
Цена: 11609 руб.
Подробнее
ПО 59-16
Панели с круглыми пустотами Серия ИИ 03-02 Альбом 5 ч1
  • Длина 5860 мм.
  • Ширина 1590 мм.
  • Высота 220 мм.
  • Вес 2060 кг.
  • Объем бетона 0,826 м3
  • Геометрический объем 2,0498 м3
Цена: 17627 руб.
Подробнее
ПО 59-24
Панели с круглыми пустотами Серия ИИ 03-02 Альбом 5 ч1
  • Длина 5860 мм.
  • Ширина 2380 мм.
  • Высота 220 мм.
  • Вес 3000 кг.
  • Объем бетона 1,2 м3
  • Геометрический объем 3,0683 м3
Цена: 25608 руб.
Подробнее
ПС 30-10 а АII
Панели с круглыми пустотами Серия ИИ 03-02 Альбом 5 ч1
  • Длина 2980 мм.
  • Ширина 990 мм.
  • Высота 220 мм.
  • Вес 935 кг.
  • Объем бетона 0,361 м3
  • Геометрический объем 0,649 м3
Цена: 7704 руб.
Подробнее
ПС 30-10 а ВI
Панели с круглыми пустотами Серия ИИ 03-02 Альбом 5 ч1
  • Длина 2980 мм.
  • Ширина 990 мм.
  • Высота 220 мм.
  • Вес 935 кг.
  • Объем бетона 0,361 м3
  • Геометрический объем 0,649 м3
Цена: 7704 руб.
Подробнее
ПС 30-10 а АIII
Панели с круглыми пустотами Серия ИИ 03-02 Альбом 5 ч1
  • Длина 2980 мм.
  • Ширина 990 мм.
  • Высота 220 мм.
  • Вес 935 кг.
  • Объем бетона 0,361 м3
  • Геометрический объем 0,649 м3
Цена: 7704 руб.
Подробнее
ПС 30-10 АII
Панели с круглыми пустотами Серия ИИ 03-02 Альбом 5 ч1
  • Длина 2980 мм.
  • Ширина 990 мм.
  • Высота 220 мм.
  • Вес 935 кг.
  • Объем бетона 0,361 м3
  • Геометрический объем 0,649 м3
Цена: 7704 руб.
Подробнее
ПС 30-10 ВI
Панели с круглыми пустотами Серия ИИ 03-02 Альбом 5 ч1
  • Длина 2980 мм.
  • Ширина 990 мм.
  • Высота 220 мм.
  • Вес 935 кг.
  • Объем бетона 0,361 м3
  • Геометрический объем 0,649 м3
Цена: 7704 руб.
Подробнее
ПС 30-12 а АII
Панели с круглыми пустотами Серия ИИ 03-02 Альбом 5 ч1
  • Длина 2980 мм.
  • Ширина 1190 мм.
  • Высота 220 мм.
  • Вес 1140 кг.
  • Объем бетона 0,436 м3
  • Геометрический объем 0,7802 м3
Цена: 9304 руб.
Подробнее
ПС 30-10 АIII
Панели с круглыми пустотами Серия ИИ 03-02 Альбом 5 ч1
  • Длина 2980 мм.
  • Ширина 990 мм.
  • Высота 220 мм.
  • Вес 935 кг.
  • Объем бетона 0,361 м3
  • Геометрический объем 0,649 м3
Цена: 7704 руб.
Подробнее
ПС 30-12 а АIII
Панели с круглыми пустотами Серия ИИ 03-02 Альбом 5 ч1
  • Длина 2980 мм.
  • Ширина 1190 мм.
  • Высота 220 мм.
  • Вес 1140 кг.
  • Объем бетона 0,436 м3
  • Геометрический объем 0,7802 м3
Цена: 9304 руб.
Подробнее
ПС 30-12 а ВI
Панели с круглыми пустотами Серия ИИ 03-02 Альбом 5 ч1
  • Длина 2980 мм.
  • Ширина 1190 мм.
  • Высота 220 мм.
  • Вес 1140 кг.
  • Объем бетона 0,436 м3
  • Геометрический объем 0,7802 м3
Цена: 9304 руб.
Подробнее
ПС 30-12 АII
Панели с круглыми пустотами Серия ИИ 03-02 Альбом 5 ч1
  • Длина 2980 мм.
  • Ширина 1190 мм.
  • Высота 220 мм.
  • Вес 1140 кг.
  • Объем бетона 0,436 м3
  • Геометрический объем 0,7802 м3
Цена: 9304 руб.
Подробнее
ПС 30-16 а АII
Панели с круглыми пустотами Серия ИИ 03-02 Альбом 5 ч1
  • Длина 2980 мм.
  • Ширина 1590 мм.
  • Высота 220 мм.
  • Вес 1526 кг.
  • Объем бетона 0,609 м3
  • Геометрический объем 1,0424 м3
Цена: 12996 руб.
Подробнее
ПС 30-12 ВI
Панели с круглыми пустотами Серия ИИ 03-02 Альбом 5 ч1
  • Длина 2980 мм.
  • Ширина 1190 мм.
  • Высота 220 мм.
  • Вес 1140 кг.
  • Объем бетона 0,436 м3
  • Геометрический объем 0,7802 м3
Цена: 9304 руб.
Подробнее
ПС 30-12 АIII
Панели с круглыми пустотами Серия ИИ 03-02 Альбом 5 ч1
  • Длина 2980 мм.
  • Ширина 1190 мм.
  • Высота 220 мм.
  • Вес 1140 кг.
  • Объем бетона 0,436 м3
  • Геометрический объем 0,7802 м3
Цена: 9304 руб.
Подробнее
ПС 30-16 а АIII
Панели с круглыми пустотами Серия ИИ 03-02 Альбом 5 ч1
  • Длина 2980 мм.
  • Ширина 1590 мм.
  • Высота 220 мм.
  • Вес 1526 кг.
  • Объем бетона 0,609 м3
  • Геометрический объем 1,0424 м3
Цена: 12996 руб.
Подробнее
ПС 30-16 АII
Панели с круглыми пустотами Серия ИИ 03-02 Альбом 5 ч1
  • Длина 2980 мм.
  • Ширина 1590 мм.
  • Высота 220 мм.
  • Вес 1470 кг.
  • Объем бетона 0,587 м3
  • Геометрический объем 1,0424 м3
Цена: 12527 руб.
Подробнее
ПС 59-10 а ВрII
Панели с круглыми пустотами Серия ИИ 03-02 Альбом 5 ч1
  • Длина 5860 мм.
  • Ширина 990 мм.
  • Высота 220 мм.
  • Вес 1740 кг.
  • Объем бетона 0,695 м3
  • Геометрический объем 1,2763 м3
Цена: 14831 руб.
Подробнее
ПС 30-16 а ВI
Панели с круглыми пустотами Серия ИИ 03-02 Альбом 5 ч1
  • Длина 2980 мм.
  • Ширина 1590 мм.
  • Высота 220 мм.
  • Вес 1526 кг.
  • Объем бетона 0,609 м3
  • Геометрический объем 1,0424 м3
Цена: 12996 руб.
Подробнее
ПС 59-10 АтV
Панели с круглыми пустотами Серия ИИ 03-02 Альбом 5 ч1
  • Длина 5860 мм.
  • Ширина 990 мм.
  • Высота 220 мм.
  • Вес 1700 кг.
  • Объем бетона 0,682 м3
  • Геометрический объем 1,2763 м3
Цена: 14554 руб.
Подробнее
ПС 30-16 ВI
Панели с круглыми пустотами Серия ИИ 03-02 Альбом 5 ч1
  • Длина 2980 мм.
  • Ширина 1590 мм.
  • Высота 220 мм.
  • Вес 1470 кг.
  • Объем бетона 0,587 м3
  • Геометрический объем 1,0424 м3
Цена: 12527 руб.
Подробнее
ПС 30-16 АIII
Панели с круглыми пустотами Серия ИИ 03-02 Альбом 5 ч1
  • Длина 2980 мм.
  • Ширина 1590 мм.
  • Высота 220 мм.
  • Вес 1470 кг.
  • Объем бетона 0,587 м3
  • Геометрический объем 1,0424 м3
Цена: 12527 руб.
Подробнее
ПС 59-10 а АтV
Панели с круглыми пустотами Серия ИИ 03-02 Альбом 5 ч1
  • Длина 5860 мм.
  • Ширина 990 мм.
  • Высота 220 мм.
  • Вес 1740 кг.
  • Объем бетона 0,695 м3
  • Геометрический объем 1,2763 м3
Цена: 14831 руб.
Подробнее
ПС 59-10 ВрII
Панели с круглыми пустотами Серия ИИ 03-02 Альбом 5 ч1
  • Длина 5860 мм.
  • Ширина 990 мм.
  • Высота 220 мм.
  • Вес 1700 кг.
  • Объем бетона 0,682 м3
  • Геометрический объем 1,2763 м3
Цена: 14554 руб.
Подробнее
ПС 63-10 а п7
Панели с круглыми пустотами Серия ИИ 03-02 Альбом 5 ч1
  • Длина 6260 мм.
  • Ширина 990 мм.
  • Высота 220 мм.
  • Вес 1850 кг.
  • Объем бетона 0,74 м3
  • Геометрический объем 1,3634 м3
Цена: 15792 руб.
Подробнее
ПС 59-12 АтV
Панели с круглыми пустотами Серия ИИ 03-02 Альбом 5 ч1
  • Длина 5860 мм.
  • Ширина 1190 мм.
  • Высота 220 мм.
  • Вес 2060 кг.
  • Объем бетона 0,825 м3
  • Геометрический объем 1,5341 м3
Цена: 17606 руб.
Подробнее
ПС 59-12 а ВрII
Панели с круглыми пустотами Серия ИИ 03-02 Альбом 5 ч1
  • Длина 5860 мм.
  • Ширина 1190 мм.
  • Высота 220 мм.
  • Вес 2100 кг.
  • Объем бетона 0,84 м3
  • Геометрический объем 1,5341 м3
Цена: 17926 руб.
Подробнее
ПС 59-12 а АтV
Панели с круглыми пустотами Серия ИИ 03-02 Альбом 5 ч1
  • Длина 5860 мм.
  • Ширина 1190 мм.
  • Высота 220 мм.
  • Вес 2100 кг.
  • Объем бетона 0,695 м3
  • Геометрический объем 1,5341 м3
Цена: 14831 руб.
Подробнее
ПС 63-10 а ВрII
Панели с круглыми пустотами Серия ИИ 03-02 Альбом 5 ч1
  • Длина 6260 мм.
  • Ширина 990 мм.
  • Высота 220 мм.
  • Вес 1850 кг.
  • Объем бетона 0,74 м3
  • Геометрический объем 1,3634 м3
Цена: 15792 руб.
Подробнее
ПС 59-12 ВрII
Панели с круглыми пустотами Серия ИИ 03-02 Альбом 5 ч1
  • Длина 5860 мм.
  • Ширина 1190 мм.
  • Высота 220 мм.
  • Вес 2060 кг.
  • Объем бетона 0,825 м3
  • Геометрический объем 1,5341 м3
Цена: 17606 руб.
Подробнее
ПС 63-10 ВрII
Панели с круглыми пустотами Серия ИИ 03-02 Альбом 5 ч1
  • Длина 6260 мм.
  • Ширина 990 мм.
  • Высота 220 мм.
  • Вес 1820 кг.
  • Объем бетона 0,73 м3
  • Геометрический объем 1,3634 м3
Цена: 15578 руб.
Подробнее
ПС 63-10 п7
Панели с круглыми пустотами Серия ИИ 03-02 Альбом 5 ч1
  • Длина 6260 мм.
  • Ширина 990 мм.
  • Высота 220 мм.
  • Вес 1820 кг.
  • Объем бетона 0,73 м3
  • Геометрический объем 1,3634 м3
Цена: 15578 руб.
Подробнее
ПС 63-12 АтV
Панели с круглыми пустотами Серия ИИ 03-02 Альбом 5 ч1
  • Длина 6260 мм.
  • Ширина 1190 мм.
  • Высота 220 мм.
  • Вес 2210 кг.
  • Объем бетона 0,884 м3
  • Геометрический объем 1,6389 м3
Цена: 18865 руб.
Подробнее
ПС 63-12 а ВрII
Панели с круглыми пустотами Серия ИИ 03-02 Альбом 5 ч1
  • Длина 6260 мм.
  • Ширина 1190 мм.
  • Высота 220 мм.
  • Вес 2245 кг.
  • Объем бетона 0,9 м3
  • Геометрический объем 1,6389 м3
Цена: 19206 руб.
Подробнее
ПС 63-12 а п7
Панели с круглыми пустотами Серия ИИ 03-02 Альбом 5 ч1
  • Длина 6260 мм.
  • Ширина 1190 мм.
  • Высота 220 мм.
  • Вес 2245 кг.
  • Объем бетона 0,9 м3
  • Геометрический объем 1,6389 м3
Цена: 19206 руб.
Подробнее
ПС 63-12 а АтVI
Панели с круглыми пустотами Серия ИИ 03-02 Альбом 5 ч1
  • Длина 6260 мм.
  • Ширина 1190 мм.
  • Высота 220 мм.
  • Вес 2245 кг.
  • Объем бетона 0,9 м3
  • Геометрический объем 1,6389 м3
Цена: 19206 руб.
Подробнее
ПС 63-10 АтV
Панели с круглыми пустотами Серия ИИ 03-02 Альбом 5 ч1
  • Длина 6260 мм.
  • Ширина 990 мм.
  • Высота 220 мм.
  • Вес 1820 кг.
  • Объем бетона 0,73 м3
  • Геометрический объем 1,3634 м3
Цена: 15578 руб.
Подробнее
ПТ 30-10 а АII
Панели с круглыми пустотами Серия ИИ 03-02 Альбом 5 ч1
  • Длина 2980 мм.
  • Ширина 990 мм.
  • Высота 220 мм.
  • Вес 935 кг.
  • Объем бетона 0,361 м3
  • Геометрический объем 0,649 м3
Цена: 7704 руб.
Подробнее
ПС 63-12 ВрII
Панели с круглыми пустотами Серия ИИ 03-02 Альбом 5 ч1
  • Длина 6260 мм.
  • Ширина 1190 мм.
  • Высота 220 мм.
  • Вес 2210 кг.
  • Объем бетона 0,884 м3
  • Геометрический объем 1,6389 м3
Цена: 18865 руб.
Подробнее
ПС 63-12 п7
Панели с круглыми пустотами Серия ИИ 03-02 Альбом 5 ч1
  • Длина 6260 мм.
  • Ширина 1190 мм.
  • Высота 220 мм.
  • Вес 2210 кг.
  • Объем бетона 0,884 м3
  • Геометрический объем 1,6389 м3
Цена: 18865 руб.
Подробнее
ПТ 30-10 а АIII
Панели с круглыми пустотами Серия ИИ 03-02 Альбом 5 ч1
  • Длина 2980 мм.
  • Ширина 990 мм.
  • Высота 220 мм.
  • Вес 935 кг.
  • Объем бетона 0,361 м3
  • Геометрический объем 0,649 м3
Цена: 7704 руб.
Подробнее
ПТ 30-10 АIII
Панели с круглыми пустотами Серия ИИ 03-02 Альбом 5 ч1
  • Длина 2980 мм.
  • Ширина 990 мм.
  • Высота 220 мм.
  • Вес 935 кг.
  • Объем бетона 0,361 м3
  • Геометрический объем 0,649 м3
Цена: 7704 руб.
Подробнее
ПТ 30-10 АII
Панели с круглыми пустотами Серия ИИ 03-02 Альбом 5 ч1
  • Длина 2980 мм.
  • Ширина 990 мм.
  • Высота 220 мм.
  • Вес 935 кг.
  • Объем бетона 0,361 м3
  • Геометрический объем 0,649 м3
Цена: 7704 руб.
Подробнее
ПТ 30-10 а ВI
Панели с круглыми пустотами Серия ИИ 03-02 Альбом 5 ч1
  • Длина 2980 мм.
  • Ширина 990 мм.
  • Высота 220 мм.
  • Вес 935 кг.
  • Объем бетона 0,361 м3
  • Геометрический объем 0,649 м3
Цена: 7704 руб.
Подробнее
ПТ 30-12 а АII
Панели с круглыми пустотами Серия ИИ 03-02 Альбом 5 ч1
  • Длина 2980 мм.
  • Ширина 1190 мм.
  • Высота 220 мм.
  • Вес 1140 кг.
  • Объем бетона 0,436 м3
  • Геометрический объем 0,7802 м3
Цена: 9304 руб.
Подробнее
ПТ 30-10 ВI
Панели с круглыми пустотами Серия ИИ 03-02 Альбом 5 ч1
  • Длина 2980 мм.
  • Ширина 990 мм.
  • Высота 220 мм.
  • Вес 935 кг.
  • Объем бетона 0,361 м3
  • Геометрический объем 0,649 м3
Цена: 7704 руб.
Подробнее
ПТ 30-12 а АIII
Панели с круглыми пустотами Серия ИИ 03-02 Альбом 5 ч1
  • Длина 2980 мм.
  • Ширина 1190 мм.
  • Высота 220 мм.
  • Вес 1140 кг.
  • Объем бетона 0,436 м3
  • Геометрический объем 0,7802 м3
Цена: 9304 руб.
Подробнее
ПТ 30-12 АIII
Панели с круглыми пустотами Серия ИИ 03-02 Альбом 5 ч1
  • Длина 2980 мм.
  • Ширина 1190 мм.
  • Высота 220 мм.
  • Вес 1140 кг.
  • Объем бетона 0,436 м3
  • Геометрический объем 0,7802 м3
Цена: 9304 руб.
Подробнее
ПТ 30-12 ВI
Панели с круглыми пустотами Серия ИИ 03-02 Альбом 5 ч1
  • Длина 2980 мм.
  • Ширина 1190 мм.
  • Высота 220 мм.
  • Вес 1140 кг.
  • Объем бетона 0,436 м3
  • Геометрический объем 0,7802 м3
Цена: 9304 руб.
Подробнее
ПТ 30-12 а ВI
Панели с круглыми пустотами Серия ИИ 03-02 Альбом 5 ч1
  • Длина 2980 мм.
  • Ширина 1190 мм.
  • Высота 220 мм.
  • Вес 1140 кг.
  • Объем бетона 0,436 м3
  • Геометрический объем 0,7802 м3
Цена: 9304 руб.
Подробнее
ПТ 30-12 АII
Панели с круглыми пустотами Серия ИИ 03-02 Альбом 5 ч1
  • Длина 2980 мм.
  • Ширина 1190 мм.
  • Высота 220 мм.
  • Вес 1140 кг.
  • Объем бетона 0,436 м3
  • Геометрический объем 0,7802 м3
Цена: 9304 руб.
Подробнее
ПТ 30-16 а АII
Панели с круглыми пустотами Серия ИИ 03-02 Альбом 5 ч1
  • Длина 2980 мм.
  • Ширина 1590 мм.
  • Высота 220 мм.
  • Вес 1526 кг.
  • Объем бетона 0,609 м3
  • Геометрический объем 1,0424 м3
Цена: 12996 руб.
Подробнее
ПТ 30-16 АII
Панели с круглыми пустотами Серия ИИ 03-02 Альбом 5 ч1
  • Длина 2980 мм.
  • Ширина 1590 мм.
  • Высота 220 мм.
  • Вес 1470 кг.
  • Объем бетона 0,587 м3
  • Геометрический объем 1,0424 м3
Цена: 12527 руб.
Подробнее
ПТ 30-16 а АIII
Панели с круглыми пустотами Серия ИИ 03-02 Альбом 5 ч1
  • Длина 2980 мм.
  • Ширина 1590 мм.
  • Высота 220 мм.
  • Вес 1526 кг.
  • Объем бетона 0,609 м3
  • Геометрический объем 1,0424 м3
Цена: 12996 руб.
Подробнее
ПТ 30-16 а ВI
Панели с круглыми пустотами Серия ИИ 03-02 Альбом 5 ч1
  • Длина 2980 мм.
  • Ширина 1590 мм.
  • Высота 220 мм.
  • Вес 1526 кг.
  • Объем бетона 0,609 м3
  • Геометрический объем 1,0424 м3
Цена: 12996 руб.
Подробнее
ПТ 30-16 ВI
Панели с круглыми пустотами Серия ИИ 03-02 Альбом 5 ч1
  • Длина 2980 мм.
  • Ширина 1590 мм.
  • Высота 220 мм.
  • Вес 1470 кг.
  • Объем бетона 0,587 м3
  • Геометрический объем 1,0424 м3
Цена: 12527 руб.
Подробнее
ПТ 59-10 а ВрII
Панели с круглыми пустотами Серия ИИ 03-02 Альбом 5 ч1
  • Длина 5860 мм.
  • Ширина 990 мм.
  • Высота 220 мм.
  • Вес 1740 кг.
  • Объем бетона 0,695 м3
  • Геометрический объем 1,2763 м3
Цена: 14831 руб.
Подробнее
ПТ 30-16 АIII
Панели с круглыми пустотами Серия ИИ 03-02 Альбом 5 ч1
  • Длина 2980 мм.
  • Ширина 1590 мм.
  • Высота 220 мм.
  • Вес 1470 кг.
  • Объем бетона 0,587 м3
  • Геометрический объем 1,0424 м3
Цена: 12527 руб.
Подробнее

Уведомление о файлах cookie

Мы используем файлы cookie для улучшения вашего опыта просмотра и анализа трафика. Нажимая "Принять все", вы соглашаетесь с нашей политикой конфиденциальности и политикой обработки файлов cookie.

MAX Дзен Телеграм Вконтакте vk