mobile_sound +7 (930) 655-55-90

Типовые конструкции и железобетонные изделия. Рабочие чертежи (Серия ИИ 03-02)

Поделиться:
Поделиться:

Документ Серия ИИ 03-02 описывает область применения, номенклатуру и ключевые требования, опираясь на действующие нормы и практику проектирования. Серия ИИ 03-02 является крупным нормативным документом, охватывающим большое количество индустриальных изделия и конструкции, используемых в сфере гражданского строительства. В составе регламента масса выпусков, каждый из которых предназначен для отражения определенного информационного блока, направленного на максимально эффективное производство различных изделия и конструкции. Для этих целей приведены опалубочные и арматурные чертежи, технические условия, инструкции по проектированию, расчеты величин несущих способностей, правила контроля, приемки и паспортизации.

Файлы для скачивания:
picture_as_pdf

370.pdf

3,189.6 KB

скачать
picture_as_pdf

398.pdf

4,391.5 KB

скачать
picture_as_pdf

399.pdf

4,548.0 KB

скачать
picture_as_pdf

400.pdf

15,288.0 KB

скачать
picture_as_pdf

401.pdf

13,645.2 KB

скачать
picture_as_pdf

402.pdf

11,172.3 KB

скачать
picture_as_pdf

403.pdf

17,088.9 KB

скачать
picture_as_pdf

404.pdf

7,281.0 KB

скачать
picture_as_pdf

405.pdf

9,400.8 KB

скачать
picture_as_pdf

4588.pdf

1,148.3 KB

скачать
picture_as_pdf

406.pdf

8,049.9 KB

скачать
picture_as_pdf

407.pdf

5,302.9 KB

скачать
picture_as_pdf

373.pdf

6,358.7 KB

скачать
picture_as_pdf

378.pdf

3,479.2 KB

скачать
picture_as_pdf

379.pdf

4,579.9 KB

скачать
picture_as_pdf

381.pdf

12,613.5 KB

скачать
picture_as_pdf

382.pdf

16,141.5 KB

скачать
picture_as_pdf

384.pdf

3,362.0 KB

скачать
picture_as_pdf

388.pdf

8,107.5 KB

скачать
picture_as_pdf

389.pdf

7,862.6 KB

скачать
picture_as_pdf

390.pdf

5,084.1 KB

скачать
picture_as_pdf

391.pdf

5,329.9 KB

скачать
picture_as_pdf

392.pdf

7,221.3 KB

скачать
picture_as_pdf

393.pdf

7,067.9 KB

скачать
picture_as_pdf

394.pdf

11,302.3 KB

скачать
picture_as_pdf

395.pdf

3,525.6 KB

скачать
picture_as_pdf

396.pdf

2,943.9 KB

скачать
picture_as_pdf

397.pdf

11,937.3 KB

скачать
picture_as_pdf

374.pdf

9,959.5 KB

скачать
picture_as_pdf

375.pdf

2,820.0 KB

скачать
picture_as_pdf

377.pdf

6,085.3 KB

скачать
picture_as_pdf

4585.pdf

4,585.6 KB

скачать
picture_as_pdf

372.pdf

4,005.0 KB

скачать
picture_as_pdf

376.pdf

2,871.0 KB

скачать
picture_as_pdf

380.pdf

2,068.6 KB

скачать
picture_as_pdf

4586.pdf

6,148.5 KB

скачать
picture_as_pdf

4587.pdf

2,398.6 KB

скачать
picture_as_pdf

383.pdf

8,594.2 KB

скачать
picture_as_pdf

371.pdf

2,652.3 KB

скачать
picture_as_pdf

385.pdf

5,917.9 KB

скачать
picture_as_pdf

386.pdf

3,188.9 KB

скачать
picture_as_pdf

387.pdf

2,890.8 KB

скачать
Товары Серия ИИ 03-02 (60)
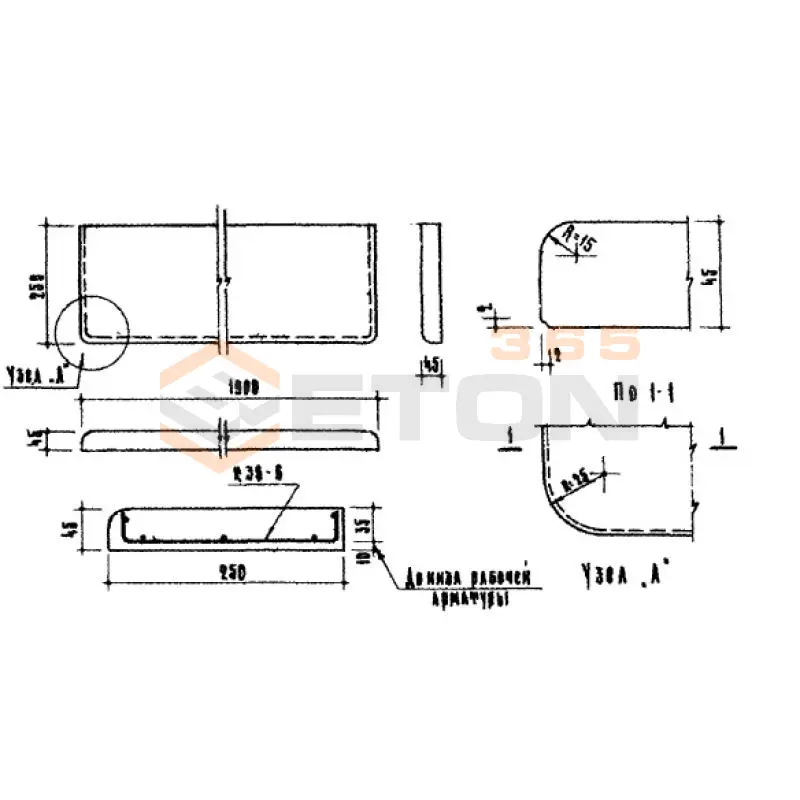
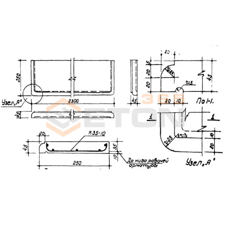
АП 5-4 п
Плиты парапетные Серия ИИ 03-02 Альбом 15-64
  • Длина 1090 мм.
  • Ширина 400 мм.
  • Высота 90 мм.
  • Вес 60 кг.
  • Объем бетона 0,024 м3
  • Геометрический объем 0,0392 м3
Цена: 931 руб.
Подробнее
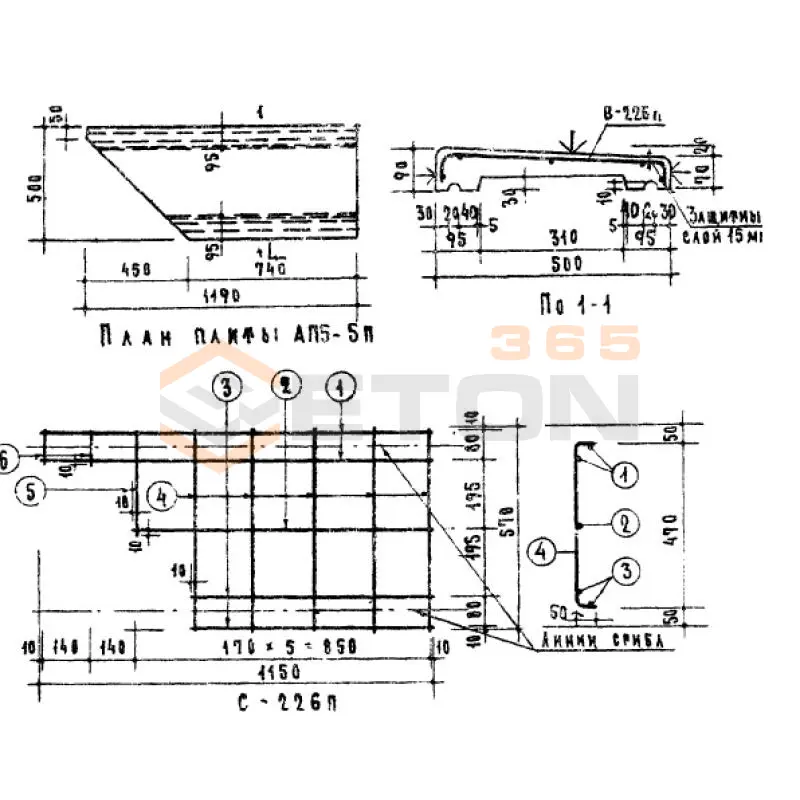
АП 5-5 п
Плиты парапетные Серия ИИ 03-02 Альбом 15-64
  • Длина 1190 мм.
  • Ширина 500 мм.
  • Высота 90 мм.
  • Вес 75 кг.
  • Объем бетона 0,03 м3
  • Геометрический объем 0,0536 м3
Цена: 1164 руб.
Подробнее
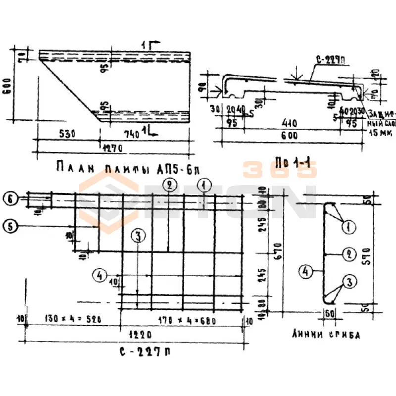
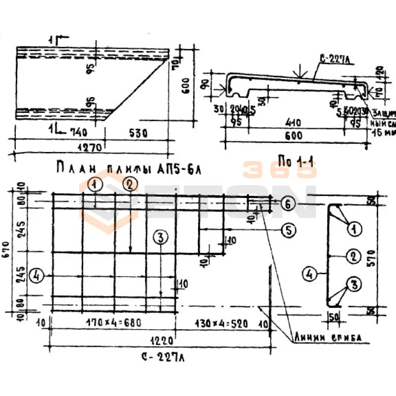
АП 5-6 л
Плиты парапетные Серия ИИ 03-02 Альбом 15-64
  • Длина 1270 мм.
  • Ширина 600 мм.
  • Высота 90 мм.
  • Вес 92,5 кг.
  • Объем бетона 0,037 м3
  • Геометрический объем 0,0686 м3
Цена: 1436 руб.
Подробнее
АП 5-6 п
Плиты парапетные Серия ИИ 03-02 Альбом 15-64
  • Длина 1270 мм.
  • Ширина 600 мм.
  • Высота 90 мм.
  • Вес 92,5 кг.
  • Объем бетона 0,037 м3
  • Геометрический объем 0,0686 м3
Цена: 1436 руб.
Подробнее
АП 5-5 л
Плиты парапетные Серия ИИ 03-02 Альбом 15-64
  • Длина 1190 мм.
  • Ширина 500 мм.
  • Высота 90 мм.
  • Вес 75 кг.
  • Объем бетона 0,03 м3
  • Геометрический объем 0,0536 м3
Цена: 1164 руб.
Подробнее
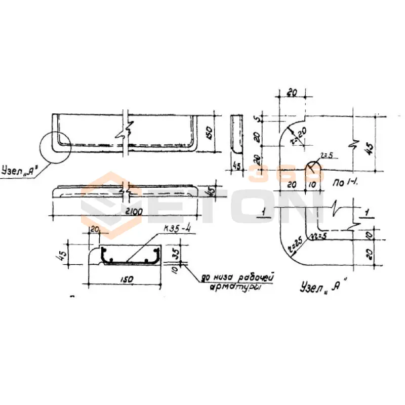
БП 4-13
Плиты подоконные Серия ИИ 03-02
  • Длина 1300 мм.
  • Ширина 150 мм.
  • Высота 45 мм.
  • Вес 21 кг.
  • Объем бетона 0,0085 м3
  • Геометрический объем 0,0088 м3
Цена: 330 руб.
Подробнее
БП 4-11
Плиты подоконные Серия ИИ 03-02
  • Длина 1100 мм.
  • Ширина 150 мм.
  • Высота 45 мм.
  • Вес 18 кг.
  • Объем бетона 0,007 м3
  • Геометрический объем 0,0074 м3
Цена: 272 руб.
Подробнее
БП 4-15
Плиты подоконные Серия ИИ 03-02
  • Длина 1500 мм.
  • Ширина 150 мм.
  • Высота 45 мм.
  • Вес 25 кг.
  • Объем бетона 0,01 м3
  • Геометрический объем 0,0101 м3
Цена: 388 руб.
Подробнее
БП 4-21
Плиты подоконные Серия ИИ 03-02
  • Длина 2100 мм.
  • Ширина 150 мм.
  • Высота 45 мм.
  • Вес 35 кг.
  • Объем бетона 0,014 м3
  • Геометрический объем 0,0142 м3
Цена: 543 руб.
Подробнее
БП 4-23
Плиты подоконные Серия ИИ 03-02
  • Длина 2300 мм.
  • Ширина 150 мм.
  • Высота 45 мм.
  • Вес 40 кг.
  • Объем бетона 0,016 м3
  • Геометрический объем 0,0155 м3
Цена: 621 руб.
Подробнее
БП 5-11
Плиты подоконные Серия ИИ 03-02
  • Длина 1100 мм.
  • Ширина 250 мм.
  • Высота 45 мм.
  • Вес 30 кг.
  • Объем бетона 0,012 м3
  • Геометрический объем 0,0124 м3
Цена: 466 руб.
Подробнее
БП 5-15
Плиты подоконные Серия ИИ 03-02
  • Длина 1500 мм.
  • Ширина 250 мм.
  • Высота 45 мм.
  • Вес 42,5 кг.
  • Объем бетона 0,017 м3
  • Геометрический объем 0,0169 м3
Цена: 660 руб.
Подробнее
БП 5-13
Плиты подоконные Серия ИИ 03-02
  • Длина 1300 мм.
  • Ширина 250 мм.
  • Высота 45 мм.
  • Вес 37,5 кг.
  • Объем бетона 0,015 м3
  • Геометрический объем 0,0146 м3
Цена: 582 руб.
Подробнее
БП 5-17
Плиты подоконные Серия ИИ 03-02
  • Длина 1700 мм.
  • Ширина 250 мм.
  • Высота 45 мм.
  • Вес 48 кг.
  • Объем бетона 0,019 м3
  • Геометрический объем 0,0191 м3
Цена: 737 руб.
Подробнее
БП 5-19
Плиты подоконные Серия ИИ 03-02
  • Длина 1900 мм.
  • Ширина 250 мм.
  • Высота 45 мм.
  • Вес 52,5 кг.
  • Объем бетона 0,021 м3
  • Геометрический объем 0,0214 м3
Цена: 815 руб.
Подробнее
БП 5-23
Плиты подоконные Серия ИИ 03-02
  • Длина 2300 мм.
  • Ширина 250 мм.
  • Высота 45 мм.
  • Вес 65 кг.
  • Объем бетона 0,026 м3
  • Геометрический объем 0,0259 м3
Цена: 1009 руб.
Подробнее
БП 5-21
Плиты подоконные Серия ИИ 03-02
  • Длина 2100 мм.
  • Ширина 250 мм.
  • Высота 45 мм.
  • Вес 58 кг.
  • Объем бетона 0,023 м3
  • Геометрический объем 0,0236 м3
Цена: 892 руб.
Подробнее
БП 5-27
Плиты подоконные Серия ИИ 03-02
  • Длина 2700 мм.
  • Ширина 250 мм.
  • Высота 45 мм.
  • Вес 75 кг.
  • Объем бетона 0,03 м3
  • Геометрический объем 0,0304 м3
Цена: 1164 руб.
Подробнее
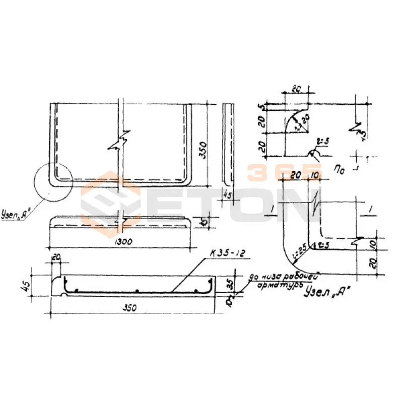
БП 6-13
Плиты подоконные Серия ИИ 03-02
  • Длина 1300 мм.
  • Ширина 350 мм.
  • Высота 45 мм.
  • Вес 62 кг.
  • Объем бетона 0,021 м3
  • Геометрический объем 0,0205 м3
Цена: 815 руб.
Подробнее
БП 6-11
Плиты подоконные Серия ИИ 03-02
  • Длина 1100 мм.
  • Ширина 350 мм.
  • Высота 45 мм.
  • Вес 43 кг.
  • Объем бетона 0,017 м3
  • Геометрический объем 0,0173 м3
Цена: 660 руб.
Подробнее
БП 6-15
Плиты подоконные Серия ИИ 03-02
  • Длина 1500 мм.
  • Ширина 350 мм.
  • Высота 45 мм.
  • Вес 60 кг.
  • Объем бетона 0,024 м3
  • Геометрический объем 0,0236 м3
Цена: 931 руб.
Подробнее
БП 6-17
Плиты подоконные Серия ИИ 03-02
  • Длина 1700 мм.
  • Ширина 350 мм.
  • Высота 45 мм.
  • Вес 65 кг.
  • Объем бетона 0,026 м3
  • Геометрический объем 0,0268 м3
Цена: 1009 руб.
Подробнее
БП 6-21
Плиты подоконные Серия ИИ 03-02
  • Длина 2100 мм.
  • Ширина 350 мм.
  • Высота 45 мм.
  • Вес 82,5 кг.
  • Объем бетона 0,033 м3
  • Геометрический объем 0,0331 м3
Цена: 1280 руб.
Подробнее
БП 6-19
Плиты подоконные Серия ИИ 03-02
  • Длина 1900 мм.
  • Ширина 350 мм.
  • Высота 45 мм.
  • Вес 75 кг.
  • Объем бетона 0,03 м3
  • Геометрический объем 0,0299 м3
Цена: 1164 руб.
Подробнее
БП 6-27
Плиты подоконные Серия ИИ 03-02
  • Длина 2700 мм.
  • Ширина 350 мм.
  • Высота 45 мм.
  • Вес 105 кг.
  • Объем бетона 0,042 м3
  • Геометрический объем 0,0425 м3
Цена: 1630 руб.
Подробнее
БП 6-23
Плиты подоконные Серия ИИ 03-02
  • Длина 2300 мм.
  • Ширина 350 мм.
  • Высота 45 мм.
  • Вес 90 кг.
  • Объем бетона 0,036 м3
  • Геометрический объем 0,0362 м3
Цена: 1397 руб.
Подробнее
АП 3
Плиты покрытия дымовентиляционных труб Серия ИИ 03-02 Альбом 15-64
  • Длина 1800 мм.
  • Ширина 700 мм.
  • Высота 80 мм.
  • Вес 220 кг.
  • Объем бетона 0,088 м3
  • Геометрический объем 0,1008 м3
Цена: 3414 руб.
Подробнее
АП 2
Плиты покрытия дымовентиляционных труб Серия ИИ 03-02 Альбом 15-64
  • Длина 2200 мм.
  • Ширина 700 мм.
  • Высота 80 мм.
  • Вес 170 кг.
  • Объем бетона 0,108 м3
  • Геометрический объем 0,1232 м3
Цена: 4190 руб.
Подробнее
АП 4
Плиты покрытия дымовентиляционных труб Серия ИИ 03-02 Альбом 15-64
  • Длина 1200 мм.
  • Ширина 900 мм.
  • Высота 80 мм.
  • Вес 190 кг.
  • Объем бетона 0,076 м3
  • Геометрический объем 0,0864 м3
Цена: 2949 руб.
Подробнее
ППР 1
Плиты приямка Серия ИИ 03-02 Альбом 15-64
  • Длина 1580 мм.
  • Ширина 1300 мм.
  • Высота 100 мм.
  • Вес 340 кг.
  • Объем бетона 0,136 м3
  • Геометрический объем 0,2054 м3
Цена: 2243 руб.
Подробнее
ПМ 30-5
Плиты Серия ИИ 03-02
  • Длина 2980 мм.
  • Ширина 500 мм.
  • Высота 220 мм.
  • Вес 820 кг.
  • Объем бетона 0,328 м3
  • Геометрический объем 0,3278 м3
Цена: 9545 руб.
Подробнее
Ц 4
Плиты цветочниц Серия ИИ 03-02
  • Длина 1800 мм.
  • Ширина 500 мм.
  • Высота 80 мм.
  • Вес 168 кг.
  • Объем бетона 0,0673 м3
  • Геометрический объем 0,072 м3
Цена: 2611 руб.
Подробнее
Ц 3
Плиты цветочниц Серия ИИ 03-02
  • Длина 2400 мм.
  • Ширина 500 мм.
  • Высота 80 мм.
  • Вес 224 кг.
  • Объем бетона 0,0897 м3
  • Геометрический объем 0,096 м3
Цена: 3480 руб.
Подробнее
Ц 5
Плиты цветочниц Серия ИИ 03-02
  • Длина 1200 мм.
  • Ширина 500 мм.
  • Высота 80 мм.
  • Вес 112 кг.
  • Объем бетона 0,0448 м3
  • Геометрический объем 0,048 м3
Цена: 1738 руб.
Подробнее
ПВ 47-8
Панели с вертикальными пустотами Серия ИИ 03-02
  • Длина 4660 мм.
  • Ширина 790 мм.
  • Высота 220 мм.
  • Вес 932 кг.
  • Объем бетона 0,373 м3
  • Геометрический объем 0,8099 м3
Цена: 7960 руб.
Подробнее
ПВ 47-10
Панели с вертикальными пустотами Серия ИИ 03-02
  • Длина 4660 мм.
  • Ширина 990 мм.
  • Высота 220 мм.
  • Вес 1190 кг.
  • Объем бетона 0,475 м3
  • Геометрический объем 1,0149 м3
Цена: 10137 руб.
Подробнее
ПТВ 30-12
Панели с вертикальными пустотами Серия ИИ 03-02
  • Длина 2980 мм.
  • Ширина 1190 мм.
  • Высота 220 мм.
  • Вес 890 кг.
  • Объем бетона 0,356 м3
  • Геометрический объем 0,7802 м3
Цена: 7597 руб.
Подробнее
ПТВ 30-16
Панели с вертикальными пустотами Серия ИИ 03-02
  • Длина 2980 мм.
  • Ширина 1590 мм.
  • Высота 220 мм.
  • Вес 1200 кг.
  • Объем бетона 0,48 м3
  • Геометрический объем 1,0424 м3
Цена: 10243 руб.
Подробнее
ПТВ 47-10
Панели с вертикальными пустотами Серия ИИ 03-02
  • Длина 4660 мм.
  • Ширина 990 мм.
  • Высота 220 мм.
  • Вес 1190 кг.
  • Объем бетона 0,475 м3
  • Геометрический объем 1,0149 м3
Цена: 10137 руб.
Подробнее
ПТВ 47-8
Панели с вертикальными пустотами Серия ИИ 03-02
  • Длина 4660 мм.
  • Ширина 790 мм.
  • Высота 220 мм.
  • Вес 932 кг.
  • Объем бетона 0,373 м3
  • Геометрический объем 0,8099 м3
Цена: 7960 руб.
Подробнее
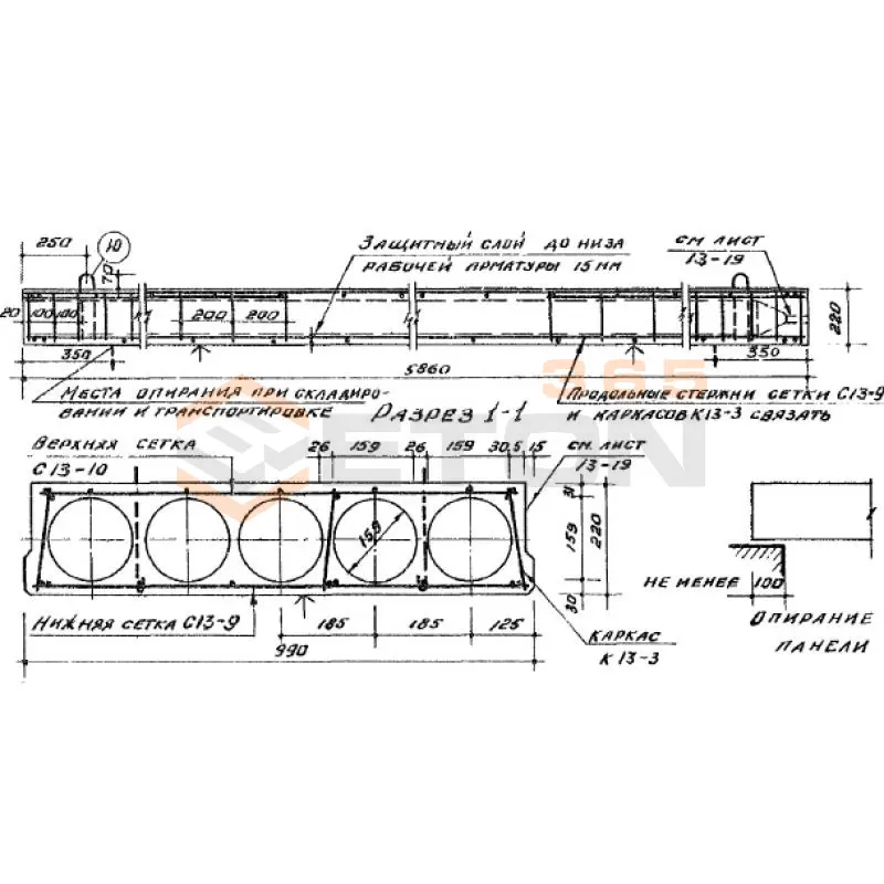
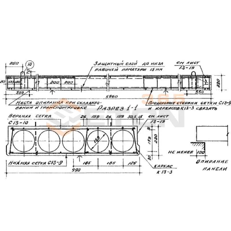
П 59-10 а ВрII
Панели с круглыми пустотами Серия ИИ 03-02 Альбом 5 ч1
  • Длина 5860 мм.
  • Ширина 990 мм.
  • Высота 220 мм.
  • Вес 1740 кг.
  • Объем бетона 0,695 м3
  • Геометрический объем 1,2763 м3
Цена: 14831 руб.
Подробнее
П 59-12 а ВрII
Панели с круглыми пустотами Серия ИИ 03-02 Альбом 5 ч1
  • Длина 5860 мм.
  • Ширина 1190 мм.
  • Высота 220 мм.
  • Вес 2100 кг.
  • Объем бетона 0,84 м3
  • Геометрический объем 1,5341 м3
Цена: 17926 руб.
Подробнее
П 59-10 ВрII
Панели с круглыми пустотами Серия ИИ 03-02 Альбом 5 ч1
  • Длина 5860 мм.
  • Ширина 990 мм.
  • Высота 220 мм.
  • Вес 1700 кг.
  • Объем бетона 0,682 м3
  • Геометрический объем 1,2763 м3
Цена: 14554 руб.
Подробнее
П 59-12 ВрII
Панели с круглыми пустотами Серия ИИ 03-02 Альбом 5 ч1
  • Длина 5860 мм.
  • Ширина 1190 мм.
  • Высота 220 мм.
  • Вес 2060 кг.
  • Объем бетона 0,825 м3
  • Геометрический объем 1,5341 м3
Цена: 17606 руб.
Подробнее
П 59-16 ВрII
Панели с круглыми пустотами Серия ИИ 03-02 Альбом 5 ч1
  • Длина 5860 мм.
  • Ширина 1590 мм.
  • Высота 220 мм.
  • Вес 2790 кг.
  • Объем бетона 1,114 м3
  • Геометрический объем 2,0498 м3
Цена: 23773 руб.
Подробнее
П 59-16 а ВрII
Панели с круглыми пустотами Серия ИИ 03-02 Альбом 5 ч1
  • Длина 5860 мм.
  • Ширина 1590 мм.
  • Высота 220 мм.
  • Вес 2840 кг.
  • Объем бетона 1,134 м3
  • Геометрический объем 2,0498 м3
Цена: 24200 руб.
Подробнее
П 63-10 а ВрII
Панели с круглыми пустотами Серия ИИ 03-02 Альбом 5 ч1
  • Длина 6260 мм.
  • Ширина 990 мм.
  • Высота 220 мм.
  • Вес 1850 кг.
  • Объем бетона 0,74 м3
  • Геометрический объем 1,3634 м3
Цена: 15792 руб.
Подробнее
П 63-10 а АтV
Панели с круглыми пустотами Серия ИИ 03-02 Альбом 5 ч1
  • Длина 6260 мм.
  • Ширина 990 мм.
  • Высота 220 мм.
  • Вес 1310 кг.
  • Объем бетона 0,729 м3
  • Геометрический объем 1,3634 м3
Цена: 15557 руб.
Подробнее
П 63-10 АтV
Панели с круглыми пустотами Серия ИИ 03-02 Альбом 5 ч1
  • Длина 6260 мм.
  • Ширина 990 мм.
  • Высота 220 мм.
  • Вес 1820 кг.
  • Объем бетона 0,73 м3
  • Геометрический объем 1,3634 м3
Цена: 15578 руб.
Подробнее
П 63-10 а п7
Панели с круглыми пустотами Серия ИИ 03-02 Альбом 5 ч1
  • Длина 6260 мм.
  • Ширина 990 мм.
  • Высота 220 мм.
  • Вес 1850 кг.
  • Объем бетона 0,74 м3
  • Геометрический объем 1,3634 м3
Цена: 15792 руб.
Подробнее
П 63-10 ВрII
Панели с круглыми пустотами Серия ИИ 03-02 Альбом 5 ч1
  • Длина 6260 мм.
  • Ширина 990 мм.
  • Высота 220 мм.
  • Вес 1820 кг.
  • Объем бетона 0,73 м3
  • Геометрический объем 1,3634 м3
Цена: 15578 руб.
Подробнее
П 63-12 а ВрII
Панели с круглыми пустотами Серия ИИ 03-02 Альбом 5 ч1
  • Длина 6260 мм.
  • Ширина 1190 мм.
  • Высота 220 мм.
  • Вес 2245 кг.
  • Объем бетона 0,9 м3
  • Геометрический объем 1,6389 м3
Цена: 19206 руб.
Подробнее
П 63-12 а АтV
Панели с круглыми пустотами Серия ИИ 03-02 Альбом 5 ч1
  • Длина 6260 мм.
  • Ширина 1190 мм.
  • Высота 220 мм.
  • Вес 2245 кг.
  • Объем бетона 0,9 м3
  • Геометрический объем 1,6389 м3
Цена: 19206 руб.
Подробнее
П 63-10 п7
Панели с круглыми пустотами Серия ИИ 03-02 Альбом 5 ч1
  • Длина 6260 мм.
  • Ширина 990 мм.
  • Высота 220 мм.
  • Вес 1320 кг.
  • Объем бетона 0,73 м3
  • Геометрический объем 1,3634 м3
Цена: 15578 руб.
Подробнее
П 63-12 АтV
Панели с круглыми пустотами Серия ИИ 03-02 Альбом 5 ч1
  • Длина 6260 мм.
  • Ширина 1190 мм.
  • Высота 220 мм.
  • Вес 2210 кг.
  • Объем бетона 0,884 м3
  • Геометрический объем 1,6389 м3
Цена: 18865 руб.
Подробнее
П 63-12 а п7
Панели с круглыми пустотами Серия ИИ 03-02 Альбом 5 ч1
  • Длина 6260 мм.
  • Ширина 1190 мм.
  • Высота 220 мм.
  • Вес 2245 кг.
  • Объем бетона 0,9 м3
  • Геометрический объем 1,6389 м3
Цена: 19206 руб.
Подробнее
П 63-12 ВрII
Панели с круглыми пустотами Серия ИИ 03-02 Альбом 5 ч1
  • Длина 6260 мм.
  • Ширина 1190 мм.
  • Высота 220 мм.
  • Вес 2210 кг.
  • Объем бетона 0,884 м3
  • Геометрический объем 1,6389 м3
Цена: 18865 руб.
Подробнее
П 63-12 п7
Панели с круглыми пустотами Серия ИИ 03-02 Альбом 5 ч1
  • Длина 6260 мм.
  • Ширина 1190 мм.
  • Высота 220 мм.
  • Вес 2210 кг.
  • Объем бетона 0,884 м3
  • Геометрический объем 1,6389 м3
Цена: 18865 руб.
Подробнее
ПК 4,5-63-10 АIIIв
Панели с круглыми пустотами Серия ИИ 03-02 Альбом 5 ч1
  • Длина 6260 мм.
  • Ширина 990 мм.
  • Высота 220 мм.
  • Вес 1820 кг.
  • Объем бетона 0,73 м3
  • Геометрический объем 1,3634 м3
Цена: 15578 руб.
Подробнее
ПC 63-10 а АтVI
Панели с круглыми пустотами Серия ИИ 03-02 Альбом 5 ч1
  • Длина 6260 мм.
  • Ширина 990 мм.
  • Высота 220 мм.
  • Вес 1850 кг.
  • Объем бетона 0,74 м3
  • Геометрический объем 1,3634 м3
Цена: 15792 руб.
Подробнее

Уведомление о файлах cookie

Мы используем файлы cookie для улучшения вашего опыта просмотра и анализа трафика. Нажимая "Принять все", вы соглашаетесь с нашей политикой конфиденциальности и политикой обработки файлов cookie.

MAX Дзен Телеграм Вконтакте vk