mobile_sound +7 (930) 655-55-90

Типовые конструкции и железобетонные изделия. Рабочие чертежи (Серия ИИ 03-02)

Поделиться:
Поделиться:

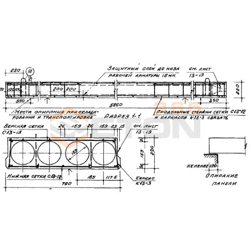
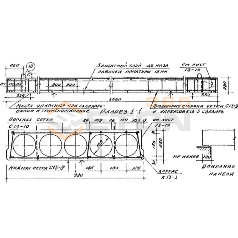
Документ Серия ИИ 03-02 описывает область применения, номенклатуру и ключевые требования, опираясь на действующие нормы и практику проектирования. Серия ИИ 03-02 является крупным нормативным документом, охватывающим большое количество индустриальных изделия и конструкции, используемых в сфере гражданского строительства. В составе регламента масса выпусков, каждый из которых предназначен для отражения определенного информационного блока, направленного на максимально эффективное производство различных изделия и конструкции. Для этих целей приведены опалубочные и арматурные чертежи, технические условия, инструкции по проектированию, расчеты величин несущих способностей, правила контроля, приемки и паспортизации.

Файлы для скачивания:
picture_as_pdf

370.pdf

3,189.6 KB

скачать
picture_as_pdf

398.pdf

4,391.5 KB

скачать
picture_as_pdf

399.pdf

4,548.0 KB

скачать
picture_as_pdf

400.pdf

15,288.0 KB

скачать
picture_as_pdf

401.pdf

13,645.2 KB

скачать
picture_as_pdf

402.pdf

11,172.3 KB

скачать
picture_as_pdf

403.pdf

17,088.9 KB

скачать
picture_as_pdf

404.pdf

7,281.0 KB

скачать
picture_as_pdf

405.pdf

9,400.8 KB

скачать
picture_as_pdf

4588.pdf

1,148.3 KB

скачать
picture_as_pdf

406.pdf

8,049.9 KB

скачать
picture_as_pdf

407.pdf

5,302.9 KB

скачать
picture_as_pdf

373.pdf

6,358.7 KB

скачать
picture_as_pdf

378.pdf

3,479.2 KB

скачать
picture_as_pdf

379.pdf

4,579.9 KB

скачать
picture_as_pdf

381.pdf

12,613.5 KB

скачать
picture_as_pdf

382.pdf

16,141.5 KB

скачать
picture_as_pdf

384.pdf

3,362.0 KB

скачать
picture_as_pdf

388.pdf

8,107.5 KB

скачать
picture_as_pdf

389.pdf

7,862.6 KB

скачать
picture_as_pdf

390.pdf

5,084.1 KB

скачать
picture_as_pdf

391.pdf

5,329.9 KB

скачать
picture_as_pdf

392.pdf

7,221.3 KB

скачать
picture_as_pdf

393.pdf

7,067.9 KB

скачать
picture_as_pdf

394.pdf

11,302.3 KB

скачать
picture_as_pdf

395.pdf

3,525.6 KB

скачать
picture_as_pdf

396.pdf

2,943.9 KB

скачать
picture_as_pdf

397.pdf

11,937.3 KB

скачать
picture_as_pdf

374.pdf

9,959.5 KB

скачать
picture_as_pdf

375.pdf

2,820.0 KB

скачать
picture_as_pdf

377.pdf

6,085.3 KB

скачать
picture_as_pdf

4585.pdf

4,585.6 KB

скачать
picture_as_pdf

372.pdf

4,005.0 KB

скачать
picture_as_pdf

376.pdf

2,871.0 KB

скачать
picture_as_pdf

380.pdf

2,068.6 KB

скачать
picture_as_pdf

4586.pdf

6,148.5 KB

скачать
picture_as_pdf

4587.pdf

2,398.6 KB

скачать
picture_as_pdf

383.pdf

8,594.2 KB

скачать
picture_as_pdf

371.pdf

2,652.3 KB

скачать
picture_as_pdf

385.pdf

5,917.9 KB

скачать
picture_as_pdf

386.pdf

3,188.9 KB

скачать
picture_as_pdf

387.pdf

2,890.8 KB

скачать
Товары Серия ИИ 03-02 (60)
ПК 59-16 АтV
Панели с круглыми пустотами Серия ИИ 03-02 Альбом 5 ч1
  • Длина 5860 мм.
  • Ширина 1590 мм.
  • Высота 220 мм.
  • Вес 2790 кг.
  • Объем бетона 1,114 м3
  • Геометрический объем 2,0498 м3
Цена: 23773 руб.
Подробнее
ПК 59-18
Панели с круглыми пустотами Серия ИИ 03-02 Альбом 5 ч1
  • Длина 5860 мм.
  • Ширина 1790 мм.
  • Высота 220 мм.
  • Вес 3140 кг.
  • Объем бетона 1,255 м3
  • Геометрический объем 2,3077 м3
Цена: 26782 руб.
Подробнее
ПК 59-16 ВрII
Панели с круглыми пустотами Серия ИИ 03-02 Альбом 5 ч1
  • Длина 5860 мм.
  • Ширина 1590 мм.
  • Высота 220 мм.
  • Вес 2790 кг.
  • Объем бетона 1,114 м3
  • Геометрический объем 2,0498 м3
Цена: 23773 руб.
Подробнее
ПК 59-8
Панели с круглыми пустотами Серия ИИ 03-02 Альбом 5 ч1
  • Длина 5860 мм.
  • Ширина 790 мм.
  • Высота 220 мм.
  • Вес 1840 кг.
  • Объем бетона 0,536 м3
  • Геометрический объем 1,0185 м3
Цена: 11438 руб.
Подробнее
ПК 6-47-10 АII
Панели с круглыми пустотами Серия ИИ 03-02 Альбом 5 ч1
  • Длина 4660 мм.
  • Ширина 990 мм.
  • Высота 220 мм.
  • Вес 1370 кг.
  • Объем бетона 0,547 м3
  • Геометрический объем 1,0149 м3
Цена: 11673 руб.
Подробнее
ПК 6-47-10 АIIIв
Панели с круглыми пустотами Серия ИИ 03-02 Альбом 5 ч1
  • Длина 4660 мм.
  • Ширина 990 мм.
  • Высота 220 мм.
  • Вес 985 кг.
  • Объем бетона 0,547 м3
  • Геометрический объем 1,0149 м3
Цена: 11673 руб.
Подробнее
ПК 6-47-10 ВрII
Панели с круглыми пустотами Серия ИИ 03-02 Альбом 5 ч1
  • Длина 4660 мм.
  • Ширина 990 мм.
  • Высота 220 мм.
  • Вес 1370 кг.
  • Объем бетона 0,547 м3
  • Геометрический объем 1,0149 м3
Цена: 11673 руб.
Подробнее
ПК 6-47-10 п7
Панели с круглыми пустотами Серия ИИ 03-02 Альбом 5 ч1
  • Длина 4660 мм.
  • Ширина 990 мм.
  • Высота 220 мм.
  • Вес 1370 кг.
  • Объем бетона 0,547 м3
  • Геометрический объем 1,0149 м3
Цена: 11673 руб.
Подробнее
ПК 6-47-12 АIIIв
Панели с круглыми пустотами Серия ИИ 03-02 Альбом 5 ч1
  • Длина 4660 мм.
  • Ширина 1190 мм.
  • Высота 220 мм.
  • Вес 1660 кг.
  • Объем бетона 0,662 м3
  • Геометрический объем 1,22 м3
Цена: 14127 руб.
Подробнее
ПК 6-47-12 АII
Панели с круглыми пустотами Серия ИИ 03-02 Альбом 5 ч1
  • Длина 4660 мм.
  • Ширина 1190 мм.
  • Высота 220 мм.
  • Вес 1660 кг.
  • Объем бетона 0,662 м3
  • Геометрический объем 1,22 м3
Цена: 14127 руб.
Подробнее
ПК 6-47-12 п7
Панели с круглыми пустотами Серия ИИ 03-02 Альбом 5 ч1
  • Длина 4660 мм.
  • Ширина 1190 мм.
  • Высота 220 мм.
  • Вес 1660 кг.
  • Объем бетона 0,662 м3
  • Геометрический объем 1,22 м3
Цена: 14127 руб.
Подробнее
ПК 6-47-12 ВрII
Панели с круглыми пустотами Серия ИИ 03-02 Альбом 5 ч1
  • Длина 4660 мм.
  • Ширина 1190 мм.
  • Высота 220 мм.
  • Вес 1660 кг.
  • Объем бетона 0,662 м3
  • Геометрический объем 1,22 м3
Цена: 14127 руб.
Подробнее
ПК 6-47-16 АII
Панели с круглыми пустотами Серия ИИ 03-02 Альбом 5 ч1
  • Длина 4660 мм.
  • Ширина 1590 мм.
  • Высота 220 мм.
  • Вес 2230 кг.
  • Объем бетона 0,893 м3
  • Геометрический объем 1,6301 м3
Цена: 19057 руб.
Подробнее
ПК 6-47-12 АIV
Панели с круглыми пустотами Серия ИИ 03-02 Альбом 5 ч1
  • Длина 4660 мм.
  • Ширина 1190 мм.
  • Высота 220 мм.
  • Вес 1660 кг.
  • Объем бетона 0,662 м3
  • Геометрический объем 1,22 м3
Цена: 14127 руб.
Подробнее
ПК 6-47-16 АIIIв
Панели с круглыми пустотами Серия ИИ 03-02 Альбом 5 ч1
  • Длина 4660 мм.
  • Ширина 1590 мм.
  • Высота 220 мм.
  • Вес 2230 кг.
  • Объем бетона 0,893 м3
  • Геометрический объем 1,6301 м3
Цена: 19057 руб.
Подробнее
ПК 6-63-10 АIIIв
Панели с круглыми пустотами Серия ИИ 03-02 Альбом 5 ч1
  • Длина 6260 мм.
  • Ширина 990 мм.
  • Высота 220 мм.
  • Вес 1820 кг.
  • Объем бетона 0,73 м3
  • Геометрический объем 1,3634 м3
Цена: 15578 руб.
Подробнее
ПК 6-63-10 АIV
Панели с круглыми пустотами Серия ИИ 03-02 Альбом 5 ч1
  • Длина 6260 мм.
  • Ширина 990 мм.
  • Высота 220 мм.
  • Вес 1820 кг.
  • Объем бетона 0,73 м3
  • Геометрический объем 1,3634 м3
Цена: 15578 руб.
Подробнее
ПК 6-47-16 АIV
Панели с круглыми пустотами Серия ИИ 03-02 Альбом 5 ч1
  • Длина 4660 мм.
  • Ширина 1590 мм.
  • Высота 220 мм.
  • Вес 2230 кг.
  • Объем бетона 0,893 м3
  • Геометрический объем 1,6301 м3
Цена: 19057 руб.
Подробнее
ПК 6-47-16 ВрII
Панели с круглыми пустотами Серия ИИ 03-02 Альбом 5 ч1
  • Длина 4660 мм.
  • Ширина 1590 мм.
  • Высота 220 мм.
  • Вес 2230 кг.
  • Объем бетона 0,893 м3
  • Геометрический объем 1,6301 м3
Цена: 19057 руб.
Подробнее
ПК 6-47-16 п7
Панели с круглыми пустотами Серия ИИ 03-02 Альбом 5 ч1
  • Длина 4660 мм.
  • Ширина 1590 мм.
  • Высота 220 мм.
  • Вес 2230 кг.
  • Объем бетона 0,893 м3
  • Геометрический объем 1,6301 м3
Цена: 19057 руб.
Подробнее
ПК 6-63-10 ВрII
Панели с круглыми пустотами Серия ИИ 03-02 Альбом 5 ч1
  • Длина 6260 мм.
  • Ширина 990 мм.
  • Высота 220 мм.
  • Вес 1310 кг.
  • Объем бетона 0,729 м3
  • Геометрический объем 1,3634 м3
Цена: 15557 руб.
Подробнее
ПК 6-63-10 п7
Панели с круглыми пустотами Серия ИИ 03-02 Альбом 5 ч1
  • Длина 6260 мм.
  • Ширина 990 мм.
  • Высота 220 мм.
  • Вес 1310 кг.
  • Объем бетона 0,729 м3
  • Геометрический объем 1,3634 м3
Цена: 15557 руб.
Подробнее
ПК 6-63-12 АIIIв
Панели с круглыми пустотами Серия ИИ 03-02 Альбом 5 ч1
  • Длина 6260 мм.
  • Ширина 1190 мм.
  • Высота 220 мм.
  • Вес 2210 кг.
  • Объем бетона 0,884 м3
  • Геометрический объем 1,6389 м3
Цена: 18865 руб.
Подробнее
ПК 6-63-12 АIV
Панели с круглыми пустотами Серия ИИ 03-02 Альбом 5 ч1
  • Длина 6260 мм.
  • Ширина 1190 мм.
  • Высота 220 мм.
  • Вес 2210 кг.
  • Объем бетона 0,884 м3
  • Геометрический объем 1,6389 м3
Цена: 18865 руб.
Подробнее
ПК 6-63-16 АIIIв
Панели с круглыми пустотами Серия ИИ 03-02 Альбом 5 ч1
  • Длина 6260 мм.
  • Ширина 1590 мм.
  • Высота 220 мм.
  • Вес 2980 кг.
  • Объем бетона 1,192 м3
  • Геометрический объем 2,1897 м3
Цена: 25437 руб.
Подробнее
ПК 6-63-12 ВрII
Панели с круглыми пустотами Серия ИИ 03-02 Альбом 5 ч1
  • Длина 6260 мм.
  • Ширина 1190 мм.
  • Высота 220 мм.
  • Вес 2210 кг.
  • Объем бетона 0,884 м3
  • Геометрический объем 1,6389 м3
Цена: 18865 руб.
Подробнее
ПК 6-63-12 п7
Панели с круглыми пустотами Серия ИИ 03-02 Альбом 5 ч1
  • Длина 6260 мм.
  • Ширина 1190 мм.
  • Высота 220 мм.
  • Вес 2210 кг.
  • Объем бетона 0,884 м3
  • Геометрический объем 1,6389 м3
Цена: 18865 руб.
Подробнее
ПК 6-63-16 ВрII
Панели с круглыми пустотами Серия ИИ 03-02 Альбом 5 ч1
  • Длина 6260 мм.
  • Ширина 1590 мм.
  • Высота 220 мм.
  • Вес 2980 кг.
  • Объем бетона 1,192 м3
  • Геометрический объем 2,1897 м3
Цена: 25437 руб.
Подробнее
ПК 6-63-16 АIV
Панели с круглыми пустотами Серия ИИ 03-02 Альбом 5 ч1
  • Длина 6260 мм.
  • Ширина 1590 мм.
  • Высота 220 мм.
  • Вес 2980 кг.
  • Объем бетона 1,192 м3
  • Геометрический объем 2,1897 м3
Цена: 25437 руб.
Подробнее
ПК 63-8
Панели с круглыми пустотами Серия ИИ 03-02 Альбом 5 ч1
  • Длина 6260 мм.
  • Ширина 790 мм.
  • Высота 220 мм.
  • Вес 1040 кг.
  • Объем бетона 0,575 м3
  • Геометрический объем 1,088 м3
Цена: 12271 руб.
Подробнее
ПК 8-63-10 АIV
Панели с круглыми пустотами Серия ИИ 03-02 Альбом 5 ч1
  • Длина 6260 мм.
  • Ширина 990 мм.
  • Высота 220 мм.
  • Вес 1820 кг.
  • Объем бетона 0,73 м3
  • Геометрический объем 1,3634 м3
Цена: 15578 руб.
Подробнее
ПК 8-63-10 АIIIв
Панели с круглыми пустотами Серия ИИ 03-02 Альбом 5 ч1
  • Длина 6260 мм.
  • Ширина 990 мм.
  • Высота 220 мм.
  • Вес 1820 кг.
  • Объем бетона 0,73 м3
  • Геометрический объем 1,3634 м3
Цена: 15578 руб.
Подробнее
ПК 6-63-16 п7
Панели с круглыми пустотами Серия ИИ 03-02 Альбом 5 ч1
  • Длина 6260 мм.
  • Ширина 1590 мм.
  • Высота 220 мм.
  • Вес 2980 кг.
  • Объем бетона 1,192 м3
  • Геометрический объем 2,1897 м3
Цена: 25437 руб.
Подробнее
ПК 63-10
Панели с круглыми пустотами Серия ИИ 03-02 Альбом 5 ч1
  • Длина 6260 мм.
  • Ширина 990 мм.
  • Высота 220 мм.
  • Вес 1310 кг.
  • Объем бетона 0,729 м3
  • Геометрический объем 1,3634 м3
Цена: 15557 руб.
Подробнее
ПК 8-63-10 ВрII
Панели с круглыми пустотами Серия ИИ 03-02 Альбом 5 ч1
  • Длина 6260 мм.
  • Ширина 990 мм.
  • Высота 220 мм.
  • Вес 1310 кг.
  • Объем бетона 0,729 м3
  • Геометрический объем 1,3634 м3
Цена: 15557 руб.
Подробнее
ПК 8-63-10 п7
Панели с круглыми пустотами Серия ИИ 03-02 Альбом 5 ч1
  • Длина 6260 мм.
  • Ширина 990 мм.
  • Высота 220 мм.
  • Вес 1310 кг.
  • Объем бетона 0,729 м3
  • Геометрический объем 1,3634 м3
Цена: 15557 руб.
Подробнее
ПК 8-63-12 АIV
Панели с круглыми пустотами Серия ИИ 03-02 Альбом 5 ч1
  • Длина 6260 мм.
  • Ширина 1190 мм.
  • Высота 220 мм.
  • Вес 2210 кг.
  • Объем бетона 0,884 м3
  • Геометрический объем 1,6389 м3
Цена: 18865 руб.
Подробнее
ПК 8-63-12 АIIIв
Панели с круглыми пустотами Серия ИИ 03-02 Альбом 5 ч1
  • Длина 6260 мм.
  • Ширина 1190 мм.
  • Высота 220 мм.
  • Вес 2210 кг.
  • Объем бетона 0,884 м3
  • Геометрический объем 1,6389 м3
Цена: 18865 руб.
Подробнее
ПК 8-63-16 АIIIв
Панели с круглыми пустотами Серия ИИ 03-02 Альбом 5 ч1
  • Длина 6260 мм.
  • Ширина 1590 мм.
  • Высота 220 мм.
  • Вес 2980 кг.
  • Объем бетона 1,192 м3
  • Геометрический объем 2,1897 м3
Цена: 25437 руб.
Подробнее
ПК 8-63-16 АIV
Панели с круглыми пустотами Серия ИИ 03-02 Альбом 5 ч1
  • Длина 6260 мм.
  • Ширина 1590 мм.
  • Высота 220 мм.
  • Вес 2980 кг.
  • Объем бетона 1,192 м3
  • Геометрический объем 2,1897 м3
Цена: 25437 руб.
Подробнее
ПК 8-63-12 п7
Панели с круглыми пустотами Серия ИИ 03-02 Альбом 5 ч1
  • Длина 6260 мм.
  • Ширина 1190 мм.
  • Высота 220 мм.
  • Вес 2210 кг.
  • Объем бетона 0,884 м3
  • Геометрический объем 1,6389 м3
Цена: 18865 руб.
Подробнее
ПК 8-63-16 ВрII
Панели с круглыми пустотами Серия ИИ 03-02 Альбом 5 ч1
  • Длина 6260 мм.
  • Ширина 1590 мм.
  • Высота 220 мм.
  • Вес 2980 кг.
  • Объем бетона 1,192 м3
  • Геометрический объем 2,1897 м3
Цена: 25437 руб.
Подробнее
ПК 8-63-12 ВрII
Панели с круглыми пустотами Серия ИИ 03-02 Альбом 5 ч1
  • Длина 6260 мм.
  • Ширина 1190 мм.
  • Высота 220 мм.
  • Вес 2210 кг.
  • Объем бетона 0,884 м3
  • Геометрический объем 1,6389 м3
Цена: 18865 руб.
Подробнее
ПКУ 59-10 а
Панели с круглыми пустотами Серия ИИ 03-02 Альбом 5 ч1
  • Длина 5860 мм.
  • Ширина 990 мм.
  • Высота 220 мм.
  • Вес 1740 кг.
  • Объем бетона 0,695 м3
  • Геометрический объем 1,2763 м3
Цена: 14831 руб.
Подробнее
ПКУ 59-10 а АтVI
Панели с круглыми пустотами Серия ИИ 03-02 Альбом 5 ч1
  • Длина 5860 мм.
  • Ширина 990 мм.
  • Высота 220 мм.
  • Вес 1700 кг.
  • Объем бетона 0,682 м3
  • Геометрический объем 1,2763 м3
Цена: 14554 руб.
Подробнее
ПКУ 59-10 АIIIв
Панели с круглыми пустотами Серия ИИ 03-02 Альбом 5 ч1
  • Длина 5860 мм.
  • Ширина 990 мм.
  • Высота 220 мм.
  • Вес 1700 кг.
  • Объем бетона 0,682 м3
  • Геометрический объем 1,2763 м3
Цена: 14554 руб.
Подробнее
ПКУ 59-10 АтVI
Панели с круглыми пустотами Серия ИИ 03-02 Альбом 5 ч1
  • Длина 5860 мм.
  • Ширина 990 мм.
  • Высота 220 мм.
  • Вес 1700 кг.
  • Объем бетона 0,682 м3
  • Геометрический объем 1,2763 м3
Цена: 14554 руб.
Подробнее
ПК 8-63-16 п7
Панели с круглыми пустотами Серия ИИ 03-02 Альбом 5 ч1
  • Длина 6260 мм.
  • Ширина 1590 мм.
  • Высота 220 мм.
  • Вес 2980 кг.
  • Объем бетона 1,192 м3
  • Геометрический объем 2,1897 м3
Цена: 25437 руб.
Подробнее
ПКУ 59-10 АIV
Панели с круглыми пустотами Серия ИИ 03-02 Альбом 5 ч1
  • Длина 5860 мм.
  • Ширина 990 мм.
  • Высота 220 мм.
  • Вес 1700 кг.
  • Объем бетона 0,682 м3
  • Геометрический объем 1,2763 м3
Цена: 14554 руб.
Подробнее
ПКУ 59-10 а ВрII
Панели с круглыми пустотами Серия ИИ 03-02 Альбом 5 ч1
  • Длина 5860 мм.
  • Ширина 990 мм.
  • Высота 220 мм.
  • Вес 1740 кг.
  • Объем бетона 0,695 м3
  • Геометрический объем 1,2763 м3
Цена: 14831 руб.
Подробнее
ПКУ 59-10 ВрII
Панели с круглыми пустотами Серия ИИ 03-02 Альбом 5 ч1
  • Длина 5860 мм.
  • Ширина 990 мм.
  • Высота 220 мм.
  • Вес 1700 кг.
  • Объем бетона 0,682 м3
  • Геометрический объем 1,2763 м3
Цена: 14554 руб.
Подробнее
ПКУ 59-12 а ВрII
Панели с круглыми пустотами Серия ИИ 03-02 Альбом 5 ч1
  • Длина 5860 мм.
  • Ширина 1190 мм.
  • Высота 220 мм.
  • Вес 2100 кг.
  • Объем бетона 0,84 м3
  • Геометрический объем 1,5341 м3
Цена: 17926 руб.
Подробнее
ПКУ 59-12 а АтVI
Панели с круглыми пустотами Серия ИИ 03-02 Альбом 5 ч1
  • Длина 5860 мм.
  • Ширина 1190 мм.
  • Высота 220 мм.
  • Вес 2060 кг.
  • Объем бетона 0,825 м3
  • Геометрический объем 1,5341 м3
Цена: 17606 руб.
Подробнее
ПКУ 59-12 а
Панели с круглыми пустотами Серия ИИ 03-02 Альбом 5 ч1
  • Длина 5860 мм.
  • Ширина 1190 мм.
  • Высота 220 мм.
  • Вес 2100 кг.
  • Объем бетона 0,84 м3
  • Геометрический объем 1,5341 м3
Цена: 17926 руб.
Подробнее
ПКУ 59-12 АтVI
Панели с круглыми пустотами Серия ИИ 03-02 Альбом 5 ч1
  • Длина 5860 мм.
  • Ширина 1190 мм.
  • Высота 220 мм.
  • Вес 2060 кг.
  • Объем бетона 0,825 м3
  • Геометрический объем 1,5341 м3
Цена: 17606 руб.
Подробнее
ПКУ 59-12 АIIIв
Панели с круглыми пустотами Серия ИИ 03-02 Альбом 5 ч1
  • Длина 5860 мм.
  • Ширина 1190 мм.
  • Высота 220 мм.
  • Вес 2060 кг.
  • Объем бетона 0,825 м3
  • Геометрический объем 1,5341 м3
Цена: 17606 руб.
Подробнее
ПКУ 59-12 АIV
Панели с круглыми пустотами Серия ИИ 03-02 Альбом 5 ч1
  • Длина 5860 мм.
  • Ширина 1190 мм.
  • Высота 220 мм.
  • Вес 2060 кг.
  • Объем бетона 0,825 м3
  • Геометрический объем 1,5341 м3
Цена: 17606 руб.
Подробнее
ПО 59-10
Панели с круглыми пустотами Серия ИИ 03-02 Альбом 5 ч1
  • Длина 5860 мм.
  • Ширина 990 мм.
  • Высота 220 мм.
  • Вес 1190 кг.
  • Объем бетона 0,477 м3
  • Геометрический объем 1,2763 м3
Цена: 10179 руб.
Подробнее
ПКУ 59-12 ВрII
Панели с круглыми пустотами Серия ИИ 03-02 Альбом 5 ч1
  • Длина 5860 мм.
  • Ширина 1190 мм.
  • Высота 220 мм.
  • Вес 2060 кг.
  • Объем бетона 0,825 м3
  • Геометрический объем 1,5341 м3
Цена: 17606 руб.
Подробнее
ПО 47-10
Панели с круглыми пустотами Серия ИИ 03-02 Альбом 5 ч1
  • Длина 4660 мм.
  • Ширина 990 мм.
  • Высота 220 мм.
  • Вес 1145 кг.
  • Объем бетона 0,459 м3
  • Геометрический объем 1,0149 м3
Цена: 9795 руб.
Подробнее

Уведомление о файлах cookie

Мы используем файлы cookie для улучшения вашего опыта просмотра и анализа трафика. Нажимая "Принять все", вы соглашаетесь с нашей политикой конфиденциальности и политикой обработки файлов cookie.

MAX Дзен Телеграм Вконтакте vk