mobile_sound +7 (930) 655-55-90

Типовые конструкции и железобетонные изделия. Рабочие чертежи (Серия ИИ 03-02)

Поделиться:
Поделиться:

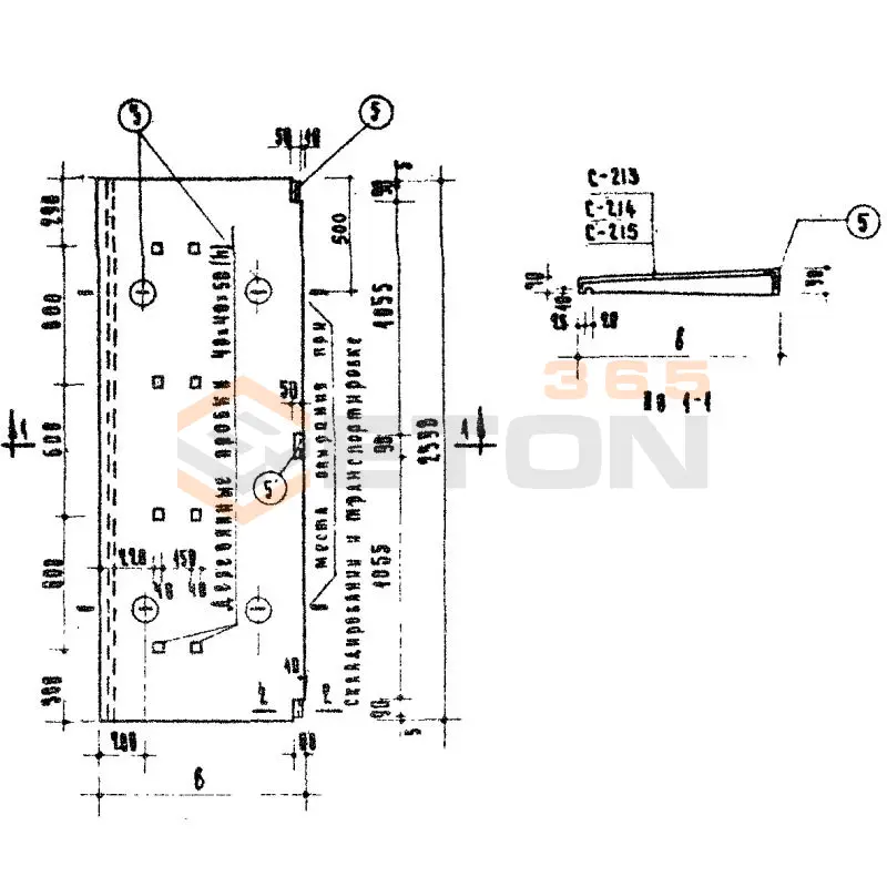
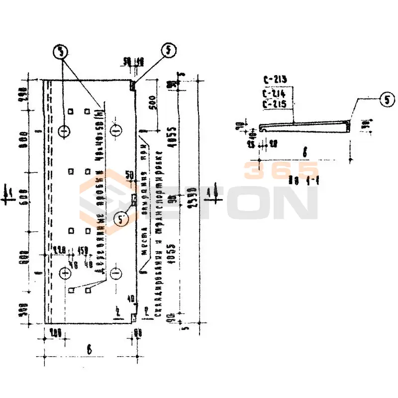
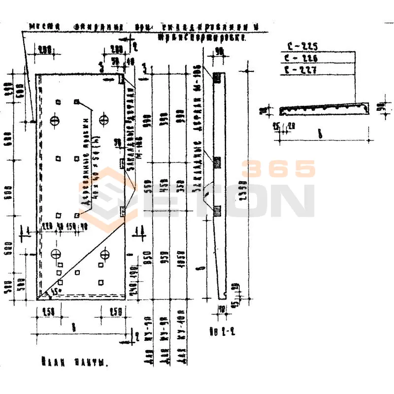
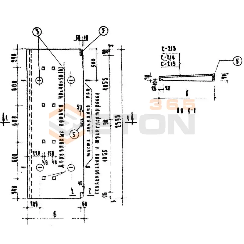
Документ Серия ИИ 03-02 описывает область применения, номенклатуру и ключевые требования, опираясь на действующие нормы и практику проектирования. Серия ИИ 03-02 является крупным нормативным документом, охватывающим большое количество индустриальных изделия и конструкции, используемых в сфере гражданского строительства. В составе регламента масса выпусков, каждый из которых предназначен для отражения определенного информационного блока, направленного на максимально эффективное производство различных изделия и конструкции. Для этих целей приведены опалубочные и арматурные чертежи, технические условия, инструкции по проектированию, расчеты величин несущих способностей, правила контроля, приемки и паспортизации.

Файлы для скачивания:
picture_as_pdf

370.pdf

3,189.6 KB

скачать
picture_as_pdf

398.pdf

4,391.5 KB

скачать
picture_as_pdf

399.pdf

4,548.0 KB

скачать
picture_as_pdf

400.pdf

15,288.0 KB

скачать
picture_as_pdf

401.pdf

13,645.2 KB

скачать
picture_as_pdf

402.pdf

11,172.3 KB

скачать
picture_as_pdf

403.pdf

17,088.9 KB

скачать
picture_as_pdf

404.pdf

7,281.0 KB

скачать
picture_as_pdf

405.pdf

9,400.8 KB

скачать
picture_as_pdf

4588.pdf

1,148.3 KB

скачать
picture_as_pdf

406.pdf

8,049.9 KB

скачать
picture_as_pdf

407.pdf

5,302.9 KB

скачать
picture_as_pdf

373.pdf

6,358.7 KB

скачать
picture_as_pdf

378.pdf

3,479.2 KB

скачать
picture_as_pdf

379.pdf

4,579.9 KB

скачать
picture_as_pdf

381.pdf

12,613.5 KB

скачать
picture_as_pdf

382.pdf

16,141.5 KB

скачать
picture_as_pdf

384.pdf

3,362.0 KB

скачать
picture_as_pdf

388.pdf

8,107.5 KB

скачать
picture_as_pdf

389.pdf

7,862.6 KB

скачать
picture_as_pdf

390.pdf

5,084.1 KB

скачать
picture_as_pdf

391.pdf

5,329.9 KB

скачать
picture_as_pdf

392.pdf

7,221.3 KB

скачать
picture_as_pdf

393.pdf

7,067.9 KB

скачать
picture_as_pdf

394.pdf

11,302.3 KB

скачать
picture_as_pdf

395.pdf

3,525.6 KB

скачать
picture_as_pdf

396.pdf

2,943.9 KB

скачать
picture_as_pdf

397.pdf

11,937.3 KB

скачать
picture_as_pdf

374.pdf

9,959.5 KB

скачать
picture_as_pdf

375.pdf

2,820.0 KB

скачать
picture_as_pdf

377.pdf

6,085.3 KB

скачать
picture_as_pdf

4585.pdf

4,585.6 KB

скачать
picture_as_pdf

372.pdf

4,005.0 KB

скачать
picture_as_pdf

376.pdf

2,871.0 KB

скачать
picture_as_pdf

380.pdf

2,068.6 KB

скачать
picture_as_pdf

4586.pdf

6,148.5 KB

скачать
picture_as_pdf

4587.pdf

2,398.6 KB

скачать
picture_as_pdf

383.pdf

8,594.2 KB

скачать
picture_as_pdf

371.pdf

2,652.3 KB

скачать
picture_as_pdf

385.pdf

5,917.9 KB

скачать
picture_as_pdf

386.pdf

3,188.9 KB

скачать
picture_as_pdf

387.pdf

2,890.8 KB

скачать
Товары Серия ИИ 03-02 (60)
БПТ 59-12 АIV
Панели перекрытий беспустотные Серия ИИ 03-02
  • Длина 5860 мм.
  • Ширина 1190 мм.
  • Высота 220 мм.
  • Вес 3800 кг.
  • Объем бетона 1,52 м3
  • Геометрический объем 1,5341 м3
Цена: 58976 руб.
Подробнее
БПТ 63-10 АIIIв
Панели перекрытий беспустотные Серия ИИ 03-02
  • Длина 6260 мм.
  • Ширина 990 мм.
  • Высота 220 мм.
  • Вес 2380 кг.
  • Объем бетона 1,353 м3
  • Геометрический объем 1,3634 м3
Цена: 52496 руб.
Подробнее
БПТ 63-12 АIIIв
Панели перекрытий беспустотные Серия ИИ 03-02
  • Длина 6260 мм.
  • Ширина 1190 мм.
  • Высота 220 мм.
  • Вес 4070 кг.
  • Объем бетона 1,53 м3
  • Геометрический объем 1,6389 м3
Цена: 59364 руб.
Подробнее
БПТ 63-10 АIV
Панели перекрытий беспустотные Серия ИИ 03-02
  • Длина 6260 мм.
  • Ширина 990 мм.
  • Высота 220 мм.
  • Вес 2380 кг.
  • Объем бетона 1,353 м3
  • Геометрический объем 1,3634 м3
Цена: 52496 руб.
Подробнее
БПТ 63-12 АIV
Панели перекрытий беспустотные Серия ИИ 03-02
  • Длина 6260 мм.
  • Ширина 1190 мм.
  • Высота 220 мм.
  • Вес 4070 кг.
  • Объем бетона 1,53 м3
  • Геометрический объем 1,6389 м3
Цена: 59364 руб.
Подробнее
БВ 1
Вкладыши балконные Серия ИИ 03-02
  • Длина 800 мм.
  • Ширина 220 мм.
  • Высота 1140 мм.
  • Вес 330 кг.
  • Объем бетона 0,132 м3
  • Геометрический объем 0,2006 м3
Цена: 4481 руб.
Подробнее
ПБ 28-5
Плиты балконные Серия ИИ 03-02 Альбом 18-64
  • Длина 2790 мм.
  • Ширина 1140 мм.
  • Высота 150 мм.
  • Вес 855 кг.
  • Объем бетона 0,342 м3
  • Геометрический объем 0,4771 м3
Цена: 16587 руб.
Подробнее
ПБ 28-5 а
Плиты балконные Серия ИИ 03-02 Альбом 18-64
  • Длина 2790 мм.
  • Ширина 1140 мм.
  • Высота 150 мм.
  • Вес 960 кг.
  • Объем бетона 0,384 м3
  • Геометрический объем 0,4771 м3
Цена: 18624 руб.
Подробнее
ПБ 28-4
Плиты балконные Серия ИИ 03-02 Альбом 18-64
  • Длина 2790 мм.
  • Ширина 1040 мм.
  • Высота 150 мм.
  • Вес 755 кг.
  • Объем бетона 0,303 м3
  • Геометрический объем 0,4352 м3
Цена: 14696 руб.
Подробнее
ПБ 28-5 б
Плиты балконные Серия ИИ 03-02 Альбом 18-64
  • Длина 2790 мм.
  • Ширина 1140 мм.
  • Высота 150 мм.
  • Вес 960 кг.
  • Объем бетона 0,384 м3
  • Геометрический объем 0,4771 м3
Цена: 18624 руб.
Подробнее
ПБ 28-6
Плиты балконные Серия ИИ 03-02 Альбом 18-64
  • Длина 2790 мм.
  • Ширина 1240 мм.
  • Высота 150 мм.
  • Вес 960 кг.
  • Объем бетона 0,384 м3
  • Геометрический объем 0,5189 м3
Цена: 18624 руб.
Подробнее
ПБ 32-5
Плиты балконные Серия ИИ 03-02 Альбом 18-64
  • Длина 3190 мм.
  • Ширина 1140 мм.
  • Высота 150 мм.
  • Вес 980 кг.
  • Объем бетона 0,392 м3
  • Геометрический объем 0,5455 м3
Цена: 19012 руб.
Подробнее
ПБ 28-6 а
Плиты балконные Серия ИИ 03-02 Альбом 18-64
  • Длина 2800 мм.
  • Ширина 1240 мм.
  • Высота 150 мм.
  • Вес 960 кг.
  • Объем бетона 0,384 м3
  • Геометрический объем 0,5208 м3
Цена: 18624 руб.
Подробнее
ПБ 28-6 б
Плиты балконные Серия ИИ 03-02 Альбом 18-64
  • Длина 2800 мм.
  • Ширина 1240 мм.
  • Высота 150 мм.
  • Вес 960 кг.
  • Объем бетона 0,384 м3
  • Геометрический объем 0,5208 м3
Цена: 18624 руб.
Подробнее
ПБ 32-4
Плиты балконные Серия ИИ 03-02 Альбом 18-64
  • Длина 3190 мм.
  • Ширина 1000 мм.
  • Высота 150 мм.
  • Вес 863 кг.
  • Объем бетона 0,345 м3
  • Геометрический объем 0,4785 м3
Цена: 16733 руб.
Подробнее
ПБ 32-4 л
Плиты балконные Серия ИИ 03-02 Альбом 18-64
  • Длина 3190 мм.
  • Ширина 1040 мм.
  • Высота 150 мм.
  • Вес 845 кг.
  • Объем бетона 0,338 м3
  • Геометрический объем 0,4976 м3
Цена: 16393 руб.
Подробнее
ПБ 32-4 п
Плиты балконные Серия ИИ 03-02 Альбом 18-64
  • Длина 3190 мм.
  • Ширина 1040 мм.
  • Высота 150 мм.
  • Вес 845 кг.
  • Объем бетона 0,338 м3
  • Геометрический объем 0,4976 м3
Цена: 16393 руб.
Подробнее
ПБ 32-5 а
Плиты балконные Серия ИИ 03-02 Альбом 18-64
  • Длина 3190 мм.
  • Ширина 1140 мм.
  • Высота 150 мм.
  • Вес 980 кг.
  • Объем бетона 0,392 м3
  • Геометрический объем 0,5455 м3
Цена: 19012 руб.
Подробнее
ПБ 32-5 б
Плиты балконные Серия ИИ 03-02 Альбом 18-64
  • Длина 3190 мм.
  • Ширина 1140 мм.
  • Высота 150 мм.
  • Вес 980 кг.
  • Объем бетона 0,392 м3
  • Геометрический объем 0,5455 м3
Цена: 19012 руб.
Подробнее
ПБ 32-6
Плиты балконные Серия ИИ 03-02 Альбом 18-64
  • Длина 3190 мм.
  • Ширина 1240 мм.
  • Высота 150 мм.
  • Вес 1100 кг.
  • Объем бетона 0,44 м3
  • Геометрический объем 0,5933 м3
Цена: 21340 руб.
Подробнее
ПБ 32-5 п
Плиты балконные Серия ИИ 03-02 Альбом 18-64
  • Длина 3190 мм.
  • Ширина 1140 мм.
  • Высота 150 мм.
  • Вес 965 кг.
  • Объем бетона 0,386 м3
  • Геометрический объем 0,5455 м3
Цена: 18721 руб.
Подробнее
ПБ 32-5 л
Плиты балконные Серия ИИ 03-02 Альбом 18-64
  • Длина 3190 мм.
  • Ширина 1140 мм.
  • Высота 150 мм.
  • Вес 965 кг.
  • Объем бетона 0,388 м3
  • Геометрический объем 0,5455 м3
Цена: 18818 руб.
Подробнее
ПБ 32-6 а
Плиты балконные Серия ИИ 03-02 Альбом 18-64
  • Длина 3190 мм.
  • Ширина 1240 мм.
  • Высота 150 мм.
  • Вес 1100 кг.
  • Объем бетона 0,44 м3
  • Геометрический объем 0,5933 м3
Цена: 21340 руб.
Подробнее
ПБ 32-6 б
Плиты балконные Серия ИИ 03-02 Альбом 18-64
  • Длина 3190 мм.
  • Ширина 1240 мм.
  • Высота 150 мм.
  • Вес 1100 кг.
  • Объем бетона 0,44 м3
  • Геометрический объем 0,5933 м3
Цена: 21340 руб.
Подробнее
ПБ 32-6 л
Плиты балконные Серия ИИ 03-02 Альбом 18-64
  • Длина 3190 мм.
  • Ширина 1240 мм.
  • Высота 150 мм.
  • Вес 1085 кг.
  • Объем бетона 0,434 м3
  • Геометрический объем 0,5933 м3
Цена: 21049 руб.
Подробнее
ПБ 32-6 п
Плиты балконные Серия ИИ 03-02 Альбом 18-64
  • Длина 3190 мм.
  • Ширина 1240 мм.
  • Высота 150 мм.
  • Вес 1085 кг.
  • Объем бетона 0,434 м3
  • Геометрический объем 0,5933 м3
Цена: 21049 руб.
Подробнее
ВП 1
Плиты входов Серия ИИ 03-02 Альбом 15-64
  • Длина 2400 мм.
  • Ширина 2800 мм.
  • Высота 120 мм.
  • Вес 1925 кг.
  • Объем бетона 0,77 м3
  • Геометрический объем 0,8064 м3
Цена: 33611 руб.
Подробнее
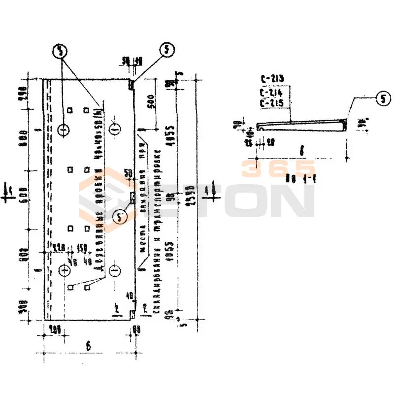
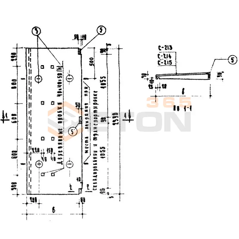
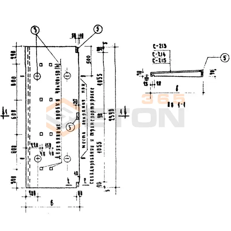
КР 10-10
Плиты карнизные Серия ИИ 03-02 Альбом 18-64
  • Длина 990 мм.
  • Ширина 1000 мм.
  • Высота 90 мм.
  • Вес 198 кг.
  • Объем бетона 0,079 м3
  • Геометрический объем 0,0891 м3
Цена: 2682 руб.
Подробнее
КР 10-9
Плиты карнизные Серия ИИ 03-02 Альбом 18-64
  • Длина 990 мм.
  • Ширина 900 мм.
  • Высота 90 мм.
  • Вес 178 кг.
  • Объем бетона 0,071 м3
  • Геометрический объем 0,0802 м3
Цена: 2410 руб.
Подробнее
КР 12-10
Плиты карнизные Серия ИИ 03-02 Альбом 18-64
  • Длина 1190 мм.
  • Ширина 1000 мм.
  • Высота 90 мм.
  • Вес 240 кг.
  • Объем бетона 0,1 м3
  • Геометрический объем 0,1071 м3
Цена: 3395 руб.
Подробнее
КР 10-7
Плиты карнизные Серия ИИ 03-02 Альбом 18-64
  • Длина 990 мм.
  • Ширина 750 мм.
  • Высота 90 мм.
  • Вес 1490 кг.
  • Объем бетона 0,059 м3
  • Геометрический объем 0,0668 м3
Цена: 2003 руб.
Подробнее
КР 12-7
Плиты карнизные Серия ИИ 03-02 Альбом 18-64
  • Длина 1190 мм.
  • Ширина 750 мм.
  • Высота 90 мм.
  • Вес 175 кг.
  • Объем бетона 0,07 м3
  • Геометрический объем 0,0803 м3
Цена: 2377 руб.
Подробнее
КР 24-10
Плиты карнизные Серия ИИ 03-02 Альбом 18-64
  • Длина 2390 мм.
  • Ширина 1000 мм.
  • Высота 90 мм.
  • Вес 480 кг.
  • Объем бетона 0,192 м3
  • Геометрический объем 0,2151 м3
Цена: 6518 руб.
Подробнее
КР 12-9
Плиты карнизные Серия ИИ 03-02 Альбом 18-64
  • Длина 1190 мм.
  • Ширина 900 мм.
  • Высота 90 мм.
  • Вес 215 кг.
  • Объем бетона 0,09 м3
  • Геометрический объем 0,0964 м3
Цена: 3056 руб.
Подробнее
КР 24-7
Плиты карнизные Серия ИИ 03-02 Альбом 18-64
  • Длина 2390 мм.
  • Ширина 750 мм.
  • Высота 90 мм.
  • Вес 360 кг.
  • Объем бетона 0,144 м3
  • Геометрический объем 0,1613 м3
Цена: 4889 руб.
Подробнее
КР 24-9
Плиты карнизные Серия ИИ 03-02 Альбом 18-64
  • Длина 2390 мм.
  • Ширина 900 мм.
  • Высота 80 мм.
  • Вес 430 кг.
  • Объем бетона 0,172 м3
  • Геометрический объем 0,1721 м3
Цена: 5839 руб.
Подробнее
КР 24-9
Плиты карнизные Серия ИИ 03-02 Альбом 18-64
  • Длина 2390 мм.
  • Ширина 900 мм.
  • Высота 90 мм.
  • Вес 430 кг.
  • Объем бетона 0,172 м3
  • Геометрический объем 0,1936 м3
Цена: 5839 руб.
Подробнее
КУ 10 л
Плиты карнизные Серия ИИ 03-02 Альбом 18-64
  • Длина 2390 мм.
  • Ширина 1000 мм.
  • Высота 90 мм.
  • Вес 478 кг.
  • Объем бетона 0,191 м3
  • Геометрический объем 0,2151 м3
Цена: 6484 руб.
Подробнее
КУ 10 п
Плиты карнизные Серия ИИ 03-02 Альбом 18-64
  • Длина 2390 мм.
  • Ширина 1000 мм.
  • Высота 90 мм.
  • Вес 478 кг.
  • Объем бетона 0,191 м3
  • Геометрический объем 0,2151 м3
Цена: 6484 руб.
Подробнее
КУ 7 п
Плиты карнизные Серия ИИ 03-02 Альбом 18-64
  • Длина 2390 мм.
  • Ширина 750 мм.
  • Высота 90 мм.
  • Вес 360 кг.
  • Объем бетона 0,144 м3
  • Геометрический объем 0,1613 м3
Цена: 4889 руб.
Подробнее
КУ 7 л
Плиты карнизные Серия ИИ 03-02 Альбом 18-64
  • Длина 2390 мм.
  • Ширина 750 мм.
  • Высота 90 мм.
  • Вес 360 кг.
  • Объем бетона 0,144 м3
  • Геометрический объем 0,1613 м3
Цена: 4889 руб.
Подробнее
КУ 9 п
Плиты карнизные Серия ИИ 03-02 Альбом 18-64
  • Длина 2390 мм.
  • Ширина 900 мм.
  • Высота 90 мм.
  • Вес 430 кг.
  • Объем бетона 0,172 м3
  • Геометрический объем 0,1936 м3
Цена: 5839 руб.
Подробнее
КУ 9 л
Плиты карнизные Серия ИИ 03-02 Альбом 18-64
  • Длина 2390 мм.
  • Ширина 900 мм.
  • Высота 90 мм.
  • Вес 430 кг.
  • Объем бетона 0,172 м3
  • Геометрический объем 0,1936 м3
Цена: 5839 руб.
Подробнее
ПЛ 24-4
Плиты лоджий Серия ИИ 03-02 Альбом 65
  • Длина 2380 мм.
  • Ширина 1250 мм.
  • Высота 150 мм.
  • Вес 873 кг.
  • Объем бетона 0,349 м3
  • Геометрический объем 0,4462 м3
Цена: 11849 руб.
Подробнее
ПЛ 24-5
Плиты лоджий Серия ИИ 03-02 Альбом 65
  • Длина 2380 мм.
  • Ширина 1350 мм.
  • Высота 150 мм.
  • Вес 963 кг.
  • Объем бетона 0,385 м3
  • Геометрический объем 0,4819 м3
Цена: 13071 руб.
Подробнее
ПЛ 24-6
Плиты лоджий Серия ИИ 03-02 Альбом 65
  • Длина 2380 мм.
  • Ширина 1450 мм.
  • Высота 150 мм.
  • Вес 1053 кг.
  • Объем бетона 0,421 м3
  • Геометрический объем 0,5177 м3
Цена: 14293 руб.
Подробнее
ОП 5
Опорные плиты Серия ИИ 03-02 Альбом 16
  • Длина 380 мм.
  • Ширина 250 мм.
  • Высота 140 мм.
  • Вес 34 кг.
  • Объем бетона 0,0134 м3
  • Геометрический объем 0,0133 м3
Цена: 455 руб.
Подробнее
ОП 6
Опорные плиты Серия ИИ 03-02 Альбом 16
  • Длина 510 мм.
  • Ширина 380 мм.
  • Высота 140 мм.
  • Вес 67,5 кг.
  • Объем бетона 0,027 м3
  • Геометрический объем 0,0271 м3
Цена: 917 руб.
Подробнее
ОП 5-2
Опорные плиты Серия ИИ 03-02 Альбом 16
  • Длина 510 мм.
  • Ширина 250 мм.
  • Высота 140 мм.
  • Вес 45 кг.
  • Объем бетона 0,018 м3
  • Геометрический объем 0,0179 м3
Цена: 611 руб.
Подробнее
ОП 6-4
Опорные плиты Серия ИИ 03-02 Альбом 16
  • Длина 640 мм.
  • Ширина 380 мм.
  • Высота 220 мм.
  • Вес 133 кг.
  • Объем бетона 0,053 м3
  • Геометрический объем 0,0535 м3
Цена: 1799 руб.
Подробнее
ОП 6-6
Опорные плиты Серия ИИ 03-02 Альбом 16
  • Длина 640 мм.
  • Ширина 640 мм.
  • Высота 220 мм.
  • Вес 225 кг.
  • Объем бетона 0,09 м3
  • Геометрический объем 0,0901 м3
Цена: 3056 руб.
Подробнее
ОП 6-2
Опорные плиты Серия ИИ 03-02 Альбом 16
  • Длина 640 мм.
  • Ширина 250 мм.
  • Высота 220 мм.
  • Вес 88 кг.
  • Объем бетона 0,035 м3
  • Геометрический объем 0,0352 м3
Цена: 1188 руб.
Подробнее
ОП 7
Опорные плиты Серия ИИ 03-02 Альбом 16
  • Длина 510 мм.
  • Ширина 250 мм.
  • Высота 140 мм.
  • Вес 45 кг.
  • Объем бетона 0,018 м3
  • Геометрический объем 0,0179 м3
Цена: 611 руб.
Подробнее
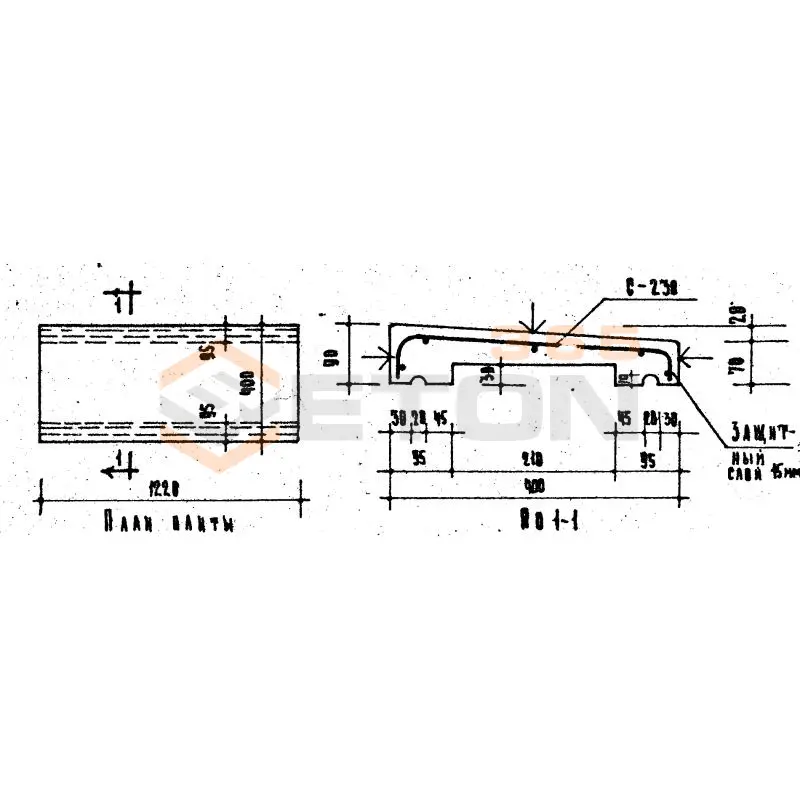
АП 1-4
Плиты парапетные Серия ИИ 03-02 Альбом 15-64
  • Длина 1220 мм.
  • Ширина 400 мм.
  • Высота 90 мм.
  • Вес 80 кг.
  • Объем бетона 0,033 м3
  • Геометрический объем 0,0439 м3
Цена: 1280 руб.
Подробнее
АП 1-5
Плиты парапетные Серия ИИ 03-02 Альбом 15-64
  • Длина 1240 мм.
  • Ширина 500 мм.
  • Высота 70 мм.
  • Вес 92,5 кг.
  • Объем бетона 0,037 м3
  • Геометрический объем 0,0434 м3
Цена: 1436 руб.
Подробнее
АП 1-6
Плиты парапетные Серия ИИ 03-02 Альбом 15-64
  • Длина 1270 мм.
  • Ширина 600 мм.
  • Высота 70 мм.
  • Вес 110 кг.
  • Объем бетона 0,044 м3
  • Геометрический объем 0,0533 м3
Цена: 1707 руб.
Подробнее
АП 1-6 а
Плиты парапетные Серия ИИ 03-02 Альбом 15-64
  • Длина 1270 мм.
  • Ширина 600 мм.
  • Высота 70 мм.
  • Вес 110 кг.
  • Объем бетона 0,044 м3
  • Геометрический объем 0,0533 м3
Цена: 1707 руб.
Подробнее
АП 5-4 л
Плиты парапетные Серия ИИ 03-02 Альбом 15-64
  • Длина 1090 мм.
  • Ширина 400 мм.
  • Высота 90 мм.
  • Вес 60 кг.
  • Объем бетона 0,024 м3
  • Геометрический объем 0,0392 м3
Цена: 931 руб.
Подробнее
АП 1-61
Плиты парапетные Серия ИИ 03-02 Альбом 15-64
  • Длина 1270 мм.
  • Ширина 600 мм.
  • Высота 70 мм.
  • Вес 39 кг.
  • Объем бетона 0,0156 м3
  • Геометрический объем 0,0533 м3
Цена: 605 руб.
Подробнее
АП 1-60
Плиты парапетные Серия ИИ 03-02 Альбом 15-64
  • Длина 1270 мм.
  • Ширина 600 мм.
  • Высота 70 мм.
  • Вес 96 кг.
  • Объем бетона 0,038 м3
  • Геометрический объем 0,0533 м3
Цена: 1474 руб.
Подробнее

Уведомление о файлах cookie

Мы используем файлы cookie для улучшения вашего опыта просмотра и анализа трафика. Нажимая "Принять все", вы соглашаетесь с нашей политикой конфиденциальности и политикой обработки файлов cookie.

MAX Дзен Телеграм Вконтакте vk