mobile_sound +7 (930) 655-55-90

Типовые конструкции и железобетонные изделия. Рабочие чертежи (Серия 3.503.1-63)

Поделиться:
Поделиться:

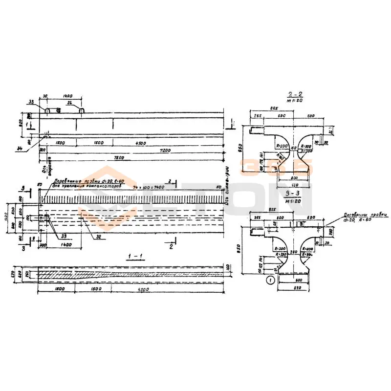
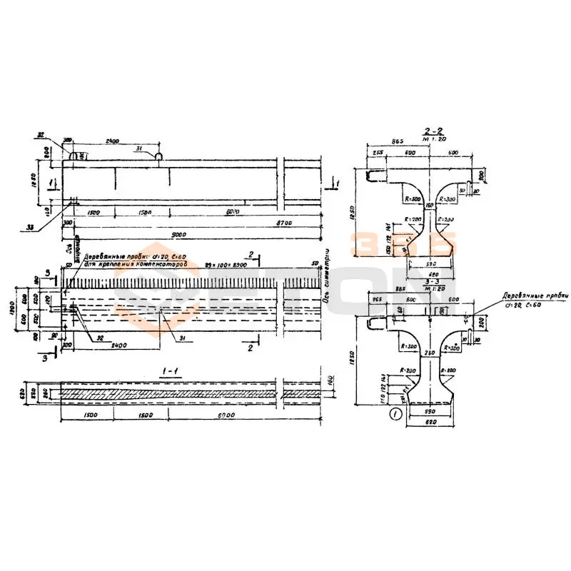
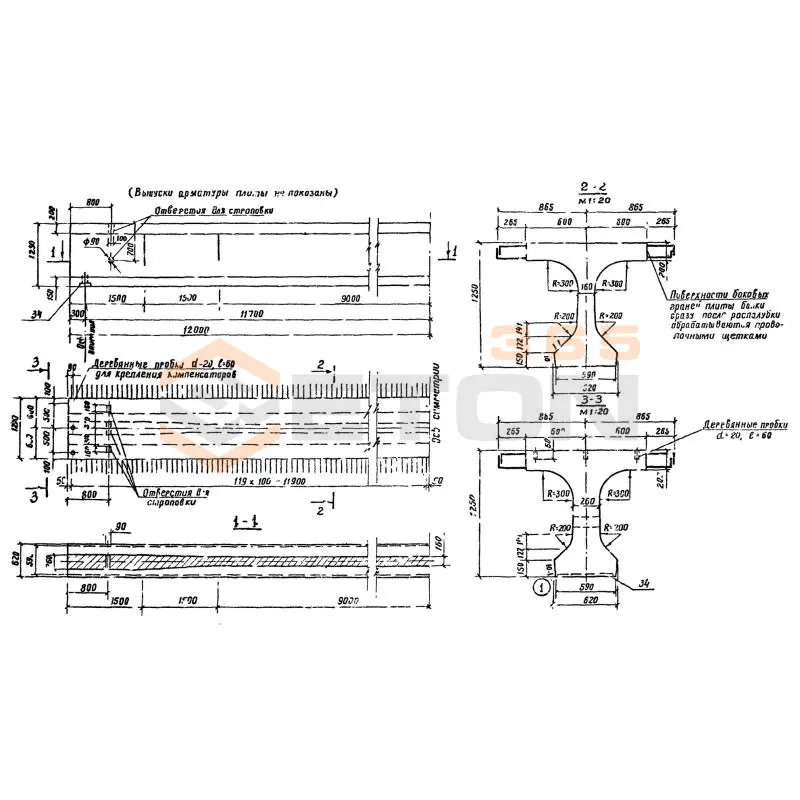
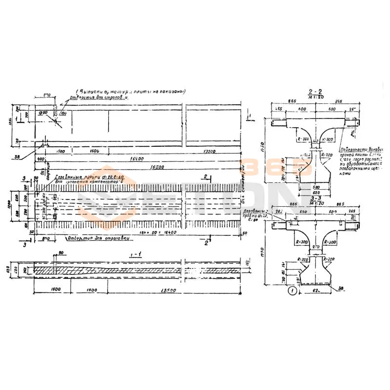
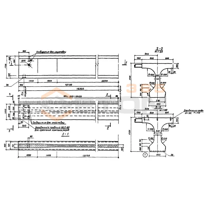
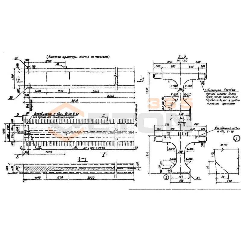
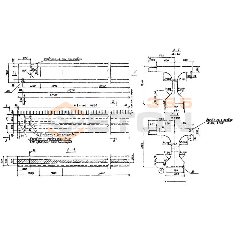
Документ Серия 3.503.1-63 описывает область применения, номенклатуру и ключевые требования, опираясь на действующие нормы и практику проектирования. Для строительства мостовых сооружений под нагрузку от автомобилей-самосвалов следует использовать высокопрочные пролетные строения. Именно такие сборные железобетонные элементы приведены на рабочих чертежах Серии 3.503.1-63. Детально проработанные балки запроектированы пролетами 12, 15, 18, 24 и 33 метра и используются совместно с тротуарными блоками.

Файлы для скачивания:
picture_as_pdf

2750.pdf

17,480.5 KB

скачать
picture_as_pdf

2751.pdf

22,739.5 KB

скачать
picture_as_pdf

2752.pdf

14,374.5 KB

скачать
Товары Серия 3.503.1-63 (11)
Бкр 24
Балки промежуточные Серия 3.503.1-63
  • Длина 24000 мм.
  • Ширина 1200 мм.
  • Высота 1250 мм.
  • Вес 35000 кг.
  • Объем бетона 14 м3
  • Геометрический объем 36 м3
Цена: 746900 руб.
Подробнее
Бкр 12
Балки промежуточные Серия 3.503.1-63
  • Длина 12000 мм.
  • Ширина 1200 мм.
  • Высота 950 мм.
  • Вес 15500 кг.
  • Объем бетона 6,2 м3
  • Геометрический объем 13,68 м3
Цена: 330770 руб.
Подробнее
Бкр 15
Балки промежуточные Серия 3.503.1-63
  • Длина 15000 мм.
  • Ширина 1200 мм.
  • Высота 950 мм.
  • Вес 19200 кг.
  • Объем бетона 7,68 м3
  • Геометрический объем 17,1 м3
Цена: 409728 руб.
Подробнее
Бкр 18
Балки промежуточные Серия 3.503.1-63
  • Длина 18000 мм.
  • Ширина 1200 мм.
  • Высота 1250 мм.
  • Вес 26500 кг.
  • Объем бетона 10,6 м3
  • Геометрический объем 27 м3
Цена: 565510 руб.
Подробнее
Бкр 33
Балки промежуточные Серия 3.503.1-63
  • Длина 33000 мм.
  • Ширина 1200 мм.
  • Высота 1750 мм.
  • Вес 56800 кг.
  • Объем бетона 22,72 м3
  • Геометрический объем 69,3 м3
Цена: 1212112 руб.
Подробнее
Бпр 12
Балки промежуточные Серия 3.503.1-63
  • Длина 12000 мм.
  • Ширина 1200 мм.
  • Высота 950 мм.
  • Вес 15500 кг.
  • Объем бетона 6,2 м3
  • Геометрический объем 13,68 м3
Цена: 330770 руб.
Подробнее
Бпр 15
Балки промежуточные Серия 3.503.1-63
  • Длина 15000 мм.
  • Ширина 1200 мм.
  • Высота 950 мм.
  • Вес 19200 кг.
  • Объем бетона 7,68 м3
  • Геометрический объем 17,1 м3
Цена: 409728 руб.
Подробнее
Бпр 18
Балки промежуточные Серия 3.503.1-63
  • Длина 18000 мм.
  • Ширина 1200 мм.
  • Высота 1250 мм.
  • Вес 26500 кг.
  • Объем бетона 10,6 м3
  • Геометрический объем 27 м3
Цена: 565510 руб.
Подробнее
Бпр 33
Балки промежуточные Серия 3.503.1-63
  • Длина 33000 мм.
  • Ширина 1200 мм.
  • Высота 1750 мм.
  • Вес 56800 кг.
  • Объем бетона 22,72 м3
  • Геометрический объем 69,3 м3
Цена: 1212112 руб.
Подробнее
Бпр 24
Балки промежуточные Серия 3.503.1-63
  • Длина 24000 мм.
  • Ширина 1200 мм.
  • Высота 1250 мм.
  • Вес 35000 кг.
  • Объем бетона 14 м3
  • Геометрический объем 36 м3
Цена: 746900 руб.
Подробнее
ТБ 1 (3.503.1-63)
Блоки тротуарные Серия 3.503.1-63
  • Длина 2990 мм.
  • Ширина 1770 мм.
  • Высота 830 мм.
  • Вес 2300 кг.
  • Объем бетона 0,92 м3
  • Геометрический объем 4,3926 м3
Цена: 31234 руб.
Подробнее

Уведомление о файлах cookie

Мы используем файлы cookie для улучшения вашего опыта просмотра и анализа трафика. Нажимая "Принять все", вы соглашаетесь с нашей политикой конфиденциальности и политикой обработки файлов cookie.

MAX Дзен Телеграм Вконтакте vk