mobile_sound +7 (930) 655-55-90

Железобетонные опоры линий электропередачи. Рабочие чертежи (Серия 3.015-1/82)

Поделиться:
Поделиться:

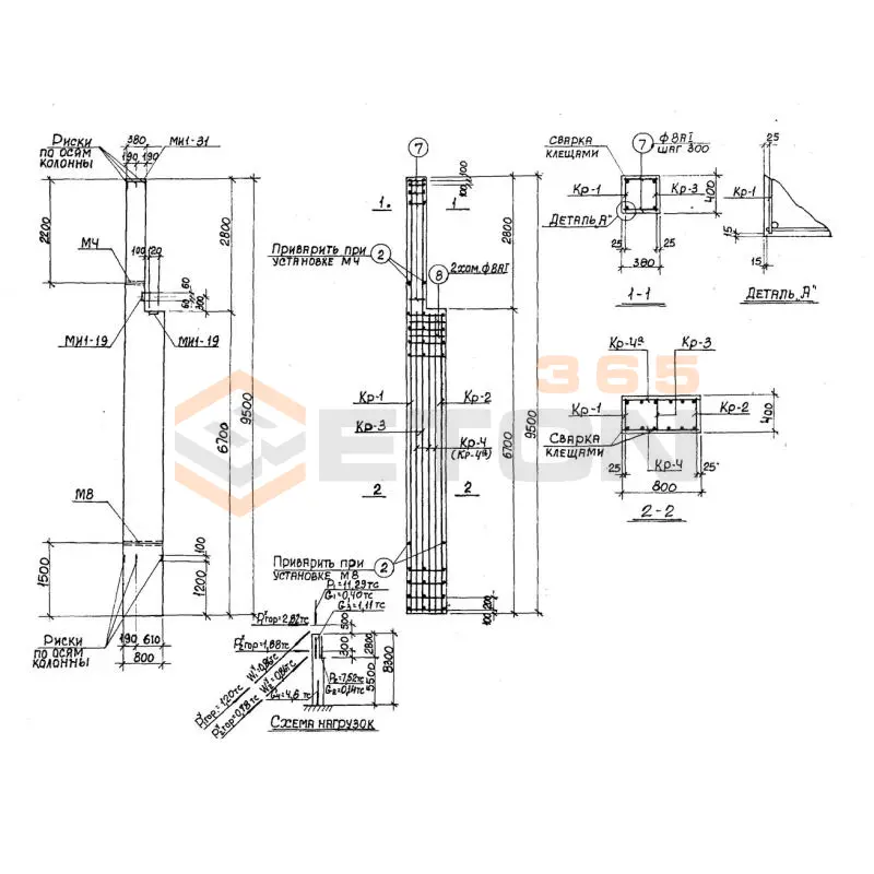
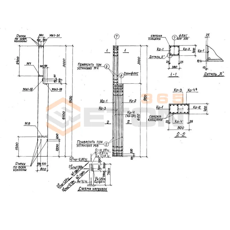
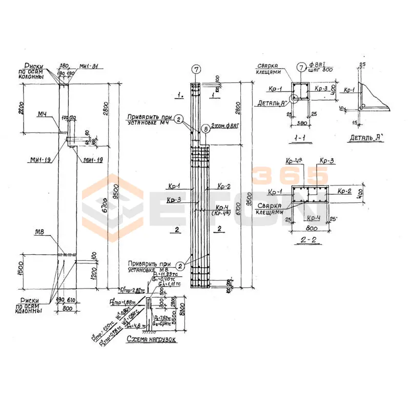
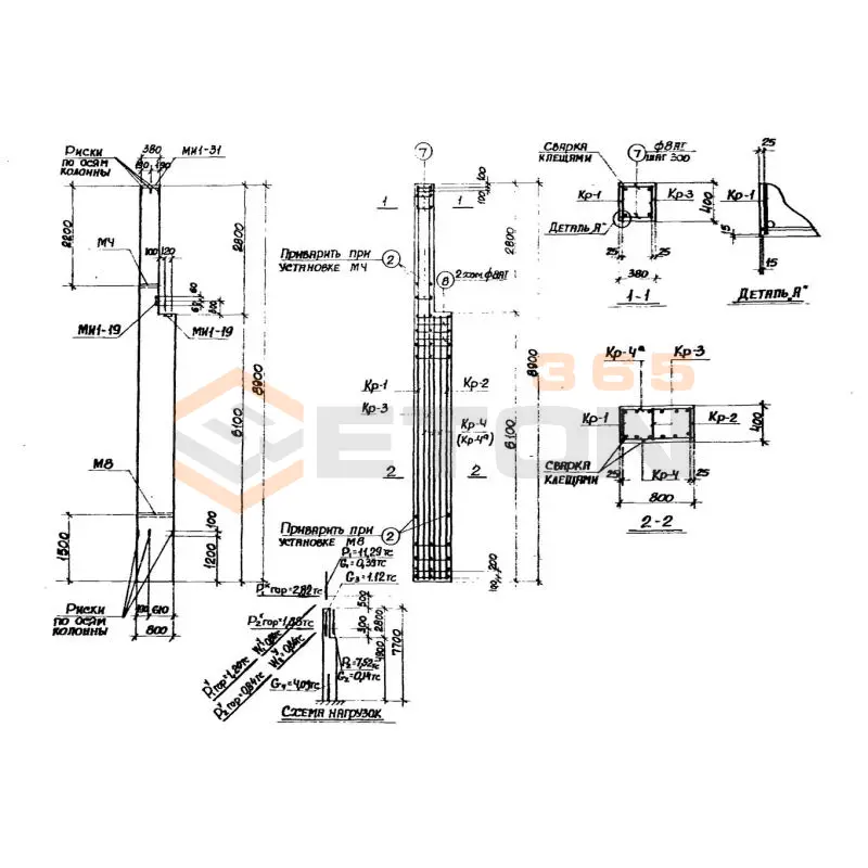
Документ Серия 3.015-1/82 описывает область применения, номенклатуру и ключевые требования, опираясь на действующие нормы и практику проектирования. Серия 3.015-1/82 является усовершенствованным и детально доработанным нормативом, в котором содержатся рабочие чертежи индустриальных отдельно стоящих опор, модернизированных в сравнении с ранее выпускаемыми изделиями. Конструкции применяются при возведении технологических трубопроводов и подразделяются на несколько типов, зависящих от величины несущей способности. Номенклатура регламента отражает большое количество вариантов геометрических пропорций строительных элементов, среди которых присутствуют колонны и траверсы, а также стальные конструкции.

Файлы для скачивания:
picture_as_pdf

1450.pdf

13,224.5 KB

скачать
picture_as_pdf

1451.pdf

17,734.4 KB

скачать
picture_as_pdf

1452.pdf

19,604.7 KB

скачать
picture_as_pdf

1453.pdf

15,452.9 KB

скачать
picture_as_pdf

1454.pdf

12,300.2 KB

скачать
picture_as_pdf

1455.pdf

11,964.1 KB

скачать
picture_as_pdf

1456.pdf

13,298.3 KB

скачать
picture_as_pdf

1457.pdf

18,519.4 KB

скачать
picture_as_pdf

1458.pdf

31,553.2 KB

скачать
picture_as_pdf

1459.pdf

3,167.7 KB

скачать
Товары Серия 3.015-1/82 (60)
К 46-3
Колонны Серия 3.015-1/82
  • Длина 8300 мм.
  • Ширина 600 мм.
  • Высота 400 мм.
  • Вес 4600 кг.
  • Объем бетона 1,83 м3
  • Геометрический объем 1,992 м3
Цена: 39052 руб.
Подробнее
К 46-5
Колонны Серия 3.015-1/82
  • Длина 8300 мм.
  • Ширина 600 мм.
  • Высота 400 мм.
  • Вес 4600 кг.
  • Объем бетона 1,83 м3
  • Геометрический объем 1,992 м3
Цена: 39052 руб.
Подробнее
К 46-4
Колонны Серия 3.015-1/82
  • Длина 8300 мм.
  • Ширина 600 мм.
  • Высота 400 мм.
  • Вес 4600 кг.
  • Объем бетона 1,83 м3
  • Геометрический объем 1,992 м3
Цена: 39052 руб.
Подробнее
К 47-1
Колонны Серия 3.015-1/82
  • Длина 8100 мм.
  • Ширина 600 мм.
  • Высота 400 мм.
  • Вес 4500 кг.
  • Объем бетона 1,8 м3
  • Геометрический объем 1,944 м3
Цена: 38412 руб.
Подробнее
К 47-3
Колонны Серия 3.015-1/82
  • Длина 8100 мм.
  • Ширина 600 мм.
  • Высота 400 мм.
  • Вес 4500 кг.
  • Объем бетона 1,8 м3
  • Геометрический объем 1,944 м3
Цена: 38412 руб.
Подробнее
К 47-2
Колонны Серия 3.015-1/82
  • Длина 8100 мм.
  • Ширина 600 мм.
  • Высота 400 мм.
  • Вес 4500 кг.
  • Объем бетона 1,8 м3
  • Геометрический объем 1,944 м3
Цена: 38412 руб.
Подробнее
К 47-4
Колонны Серия 3.015-1/82
  • Длина 8100 мм.
  • Ширина 600 мм.
  • Высота 400 мм.
  • Вес 4500 кг.
  • Объем бетона 1,8 м3
  • Геометрический объем 1,944 м3
Цена: 38412 руб.
Подробнее
К 48-2
Колонны Серия 3.015-1/82
  • Длина 8900 мм.
  • Ширина 600 мм.
  • Высота 400 мм.
  • Вес 4700 кг.
  • Объем бетона 1,87 м3
  • Геометрический объем 2,136 м3
Цена: 39906 руб.
Подробнее
К 48-1
Колонны Серия 3.015-1/82
  • Длина 8900 мм.
  • Ширина 600 мм.
  • Высота 400 мм.
  • Вес 4700 кг.
  • Объем бетона 1,87 м3
  • Геометрический объем 2,136 м3
Цена: 39906 руб.
Подробнее
К 48-3
Колонны Серия 3.015-1/82
  • Длина 8900 мм.
  • Ширина 600 мм.
  • Высота 400 мм.
  • Вес 4700 кг.
  • Объем бетона 1,87 м3
  • Геометрический объем 2,136 м3
Цена: 39906 руб.
Подробнее
К 49-1
Колонны Серия 3.015-1/82
  • Длина 8700 мм.
  • Ширина 600 мм.
  • Высота 400 мм.
  • Вес 4600 кг.
  • Объем бетона 1,84 м3
  • Геометрический объем 2,088 м3
Цена: 39266 руб.
Подробнее
К 49-2
Колонны Серия 3.015-1/82
  • Длина 8700 мм.
  • Ширина 600 мм.
  • Высота 400 мм.
  • Вес 4600 кг.
  • Объем бетона 1,84 м3
  • Геометрический объем 2,088 м3
Цена: 39266 руб.
Подробнее
К 5-2
Колонны Серия 3.015-1/82
  • Длина 6200 мм.
  • Ширина 400 мм.
  • Высота 400 мм.
  • Вес 3500 кг.
  • Объем бетона 1,38 м3
  • Геометрический объем 0,992 м3
Цена: 29449 руб.
Подробнее
К 5-1
Колонны Серия 3.015-1/82
  • Длина 6200 мм.
  • Ширина 400 мм.
  • Высота 400 мм.
  • Вес 3500 кг.
  • Объем бетона 1,38 м3
  • Геометрический объем 0,992 м3
Цена: 29449 руб.
Подробнее
К 48-4
Колонны Серия 3.015-1/82
  • Длина 8900 мм.
  • Ширина 600 мм.
  • Высота 400 мм.
  • Вес 4700 кг.
  • Объем бетона 1,87 м3
  • Геометрический объем 2,136 м3
Цена: 39906 руб.
Подробнее
К 5-3
Колонны Серия 3.015-1/82
  • Длина 6200 мм.
  • Ширина 400 мм.
  • Высота 400 мм.
  • Вес 3500 кг.
  • Объем бетона 1,38 м3
  • Геометрический объем 0,992 м3
Цена: 29449 руб.
Подробнее
К 50-1
Колонны Серия 3.015-1/82
  • Длина 8900 мм.
  • Ширина 800 мм.
  • Высота 400 мм.
  • Вес 6000 кг.
  • Объем бетона 2,38 м3
  • Геометрический объем 2,848 м3
Цена: 50789 руб.
Подробнее
К 52-2
Колонны Серия 3.015-1/82
  • Длина 9500 мм.
  • Ширина 600 мм.
  • Высота 400 мм.
  • Вес 5100 кг.
  • Объем бетона 2,02 м3
  • Геометрический объем 2,28 м3
Цена: 43107 руб.
Подробнее
К 51-1
Колонны Серия 3.015-1/82
  • Длина 9100 мм.
  • Ширина 800 мм.
  • Высота 400 мм.
  • Вес 6000 кг.
  • Объем бетона 2,4 м3
  • Геометрический объем 2,912 м3
Цена: 51216 руб.
Подробнее
К 52-1
Колонны Серия 3.015-1/82
  • Длина 9500 мм.
  • Ширина 600 мм.
  • Высота 400 мм.
  • Вес 5100 кг.
  • Объем бетона 2,02 м3
  • Геометрический объем 2,28 м3
Цена: 43107 руб.
Подробнее
К 52-3
Колонны Серия 3.015-1/82
  • Длина 9500 мм.
  • Ширина 600 мм.
  • Высота 400 мм.
  • Вес 5100 кг.
  • Объем бетона 2,02 м3
  • Геометрический объем 2,28 м3
Цена: 43107 руб.
Подробнее
К 52-4
Колонны Серия 3.015-1/82
  • Длина 9500 мм.
  • Ширина 600 мм.
  • Высота 400 мм.
  • Вес 5100 кг.
  • Объем бетона 2,02 м3
  • Геометрический объем 2,28 м3
Цена: 43107 руб.
Подробнее
К 53-1
Колонны Серия 3.015-1/82
  • Длина 9300 мм.
  • Ширина 600 мм.
  • Высота 400 мм.
  • Вес 5000 кг.
  • Объем бетона 1,99 м3
  • Геометрический объем 2,232 м3
Цена: 42467 руб.
Подробнее
К 54-1
Колонны Серия 3.015-1/82
  • Длина 9500 мм.
  • Ширина 800 мм.
  • Высота 400 мм.
  • Вес 6400 кг.
  • Объем бетона 2,56 м3
  • Геометрический объем 3,04 м3
Цена: 54630 руб.
Подробнее
К 53-2
Колонны Серия 3.015-1/82
  • Длина 9300 мм.
  • Ширина 600 мм.
  • Высота 400 мм.
  • Вес 5000 кг.
  • Объем бетона 1,99 м3
  • Геометрический объем 2,232 м3
Цена: 42467 руб.
Подробнее
К 53-3
Колонны Серия 3.015-1/82
  • Длина 9300 мм.
  • Ширина 600 мм.
  • Высота 400 мм.
  • Вес 5000 кг.
  • Объем бетона 1,99 м3
  • Геометрический объем 2,232 м3
Цена: 42467 руб.
Подробнее
К 55-1
Колонны Серия 3.015-1/82
  • Длина 9700 мм.
  • Ширина 800 мм.
  • Высота 400 мм.
  • Вес 6500 кг.
  • Объем бетона 2,6 м3
  • Геометрический объем 3,104 м3
Цена: 55484 руб.
Подробнее
К 6-1
Колонны Серия 3.015-1/82
  • Длина 6200 мм.
  • Ширина 500 мм.
  • Высота 400 мм.
  • Вес 4000 кг.
  • Объем бетона 1,6 м3
  • Геометрический объем 1,24 м3
Цена: 34144 руб.
Подробнее
К 7-2
Колонны Серия 3.015-1/82
  • Длина 6800 мм.
  • Ширина 300 мм.
  • Высота 300 мм.
  • Вес 1500 кг.
  • Объем бетона 0,61 м3
  • Геометрический объем 0,612 м3
Цена: 13017 руб.
Подробнее
К 7-1
Колонны Серия 3.015-1/82
  • Длина 6800 мм.
  • Ширина 300 мм.
  • Высота 300 мм.
  • Вес 1500 кг.
  • Объем бетона 0,61 м3
  • Геометрический объем 0,612 м3
Цена: 13017 руб.
Подробнее
К 7-3
Колонны Серия 3.015-1/82
  • Длина 6800 мм.
  • Ширина 300 мм.
  • Высота 300 мм.
  • Вес 1500 кг.
  • Объем бетона 0,61 м3
  • Геометрический объем 0,612 м3
Цена: 13017 руб.
Подробнее
К 7-4
Колонны Серия 3.015-1/82
  • Длина 6800 мм.
  • Ширина 300 мм.
  • Высота 300 мм.
  • Вес 1500 кг.
  • Объем бетона 0,61 м3
  • Геометрический объем 0,612 м3
Цена: 13017 руб.
Подробнее
К 8-10
Колонны Серия 3.015-1/82
  • Длина 6600 мм.
  • Ширина 400 мм.
  • Высота 400 мм.
  • Вес 2600 кг.
  • Объем бетона 1,06 м3
  • Геометрический объем 1,056 м3
Цена: 22620 руб.
Подробнее
К 8-1
Колонны Серия 3.015-1/82
  • Длина 6600 мм.
  • Ширина 400 мм.
  • Высота 400 мм.
  • Вес 2600 кг.
  • Объем бетона 1,06 м3
  • Геометрический объем 1,056 м3
Цена: 22620 руб.
Подробнее
К 8-12
Колонны Серия 3.015-1/82
  • Длина 6600 мм.
  • Ширина 400 мм.
  • Высота 400 мм.
  • Вес 2600 кг.
  • Объем бетона 1,06 м3
  • Геометрический объем 1,056 м3
Цена: 22620 руб.
Подробнее
К 8-2
Колонны Серия 3.015-1/82
  • Длина 6600 мм.
  • Ширина 400 мм.
  • Высота 400 мм.
  • Вес 2600 кг.
  • Объем бетона 1,06 м3
  • Геометрический объем 1,056 м3
Цена: 22620 руб.
Подробнее
К 8-11
Колонны Серия 3.015-1/82
  • Длина 6600 мм.
  • Ширина 400 мм.
  • Высота 400 мм.
  • Вес 2600 кг.
  • Объем бетона 1,06 м3
  • Геометрический объем 1,056 м3
Цена: 22620 руб.
Подробнее
К 8-3
Колонны Серия 3.015-1/82
  • Длина 6600 мм.
  • Ширина 400 мм.
  • Высота 400 мм.
  • Вес 2600 кг.
  • Объем бетона 1,06 м3
  • Геометрический объем 1,056 м3
Цена: 22620 руб.
Подробнее
К 8-4
Колонны Серия 3.015-1/82
  • Длина 6600 мм.
  • Ширина 400 мм.
  • Высота 400 мм.
  • Вес 2600 кг.
  • Объем бетона 1,06 м3
  • Геометрический объем 1,056 м3
Цена: 22620 руб.
Подробнее
К 8-5
Колонны Серия 3.015-1/82
  • Длина 6600 мм.
  • Ширина 400 мм.
  • Высота 400 мм.
  • Вес 2600 кг.
  • Объем бетона 1,06 м3
  • Геометрический объем 1,056 м3
Цена: 22620 руб.
Подробнее
К 8-6
Колонны Серия 3.015-1/82
  • Длина 6600 мм.
  • Ширина 400 мм.
  • Высота 400 мм.
  • Вес 2600 кг.
  • Объем бетона 1,06 м3
  • Геометрический объем 1,056 м3
Цена: 22620 руб.
Подробнее
К 8-8
Колонны Серия 3.015-1/82
  • Длина 6600 мм.
  • Ширина 400 мм.
  • Высота 400 мм.
  • Вес 2600 кг.
  • Объем бетона 1,06 м3
  • Геометрический объем 1,056 м3
Цена: 22620 руб.
Подробнее
К 8-9
Колонны Серия 3.015-1/82
  • Длина 6600 мм.
  • Ширина 400 мм.
  • Высота 400 мм.
  • Вес 2600 кг.
  • Объем бетона 1,06 м3
  • Геометрический объем 1,056 м3
Цена: 22620 руб.
Подробнее
К 8-7
Колонны Серия 3.015-1/82
  • Длина 6600 мм.
  • Ширина 400 мм.
  • Высота 400 мм.
  • Вес 2600 кг.
  • Объем бетона 1,06 м3
  • Геометрический объем 1,056 м3
Цена: 22620 руб.
Подробнее
К 9-2
Колонны Серия 3.015-1/82
  • Длина 6800 мм.
  • Ширина 400 мм.
  • Высота 400 мм.
  • Вес 3200 кг.
  • Объем бетона 1,27 м3
  • Геометрический объем 1,088 м3
Цена: 27102 руб.
Подробнее
К 9-1
Колонны Серия 3.015-1/82
  • Длина 6800 мм.
  • Ширина 400 мм.
  • Высота 400 мм.
  • Вес 3200 кг.
  • Объем бетона 1,27 м3
  • Геометрический объем 1,088 м3
Цена: 27102 руб.
Подробнее
К 9-3
Колонны Серия 3.015-1/82
  • Длина 6800 мм.
  • Ширина 400 мм.
  • Высота 400 мм.
  • Вес 3200 кг.
  • Объем бетона 1,27 м3
  • Геометрический объем 1,088 м3
Цена: 27102 руб.
Подробнее
Т 1-1
Траверсы Серия 3.015-1/82
  • Длина 2400 мм.
  • Ширина 500 мм.
  • Высота 250 мм.
  • Вес 800 кг.
  • Объем бетона 0,3 м3
  • Геометрический объем 0,3 м3
Цена: 11640 руб.
Подробнее
Т 10-1 (3.015-1/82)
Траверсы Серия 3.015-1/82
  • Длина 3600 мм.
  • Ширина 150 мм.
  • Высота 300 мм.
  • Вес 400 кг.
  • Объем бетона 0,16 м3
  • Геометрический объем 0,162 м3
Цена: 6208 руб.
Подробнее
Т 10-2 (3.015-1/82)
Траверсы Серия 3.015-1/82
  • Длина 3600 мм.
  • Ширина 150 мм.
  • Высота 300 мм.
  • Вес 400 кг.
  • Объем бетона 0,16 м3
  • Геометрический объем 0,162 м3
Цена: 6208 руб.
Подробнее
Т 11-1 (3.015-1/82)
Траверсы Серия 3.015-1/82
  • Длина 3600 мм.
  • Ширина 250 мм.
  • Высота 500 мм.
  • Вес 1130 кг.
  • Объем бетона 0,45 м3
  • Геометрический объем 0,45 м3
Цена: 17460 руб.
Подробнее
Т 11-2 (3.015-1/82)
Траверсы Серия 3.015-1/82
  • Длина 3600 мм.
  • Ширина 250 мм.
  • Высота 500 мм.
  • Вес 1130 кг.
  • Объем бетона 0,45 м3
  • Геометрический объем 0,45 м3
Цена: 17460 руб.
Подробнее
Т 12-1 (3.015-1/82)
Траверсы Серия 3.015-1/82
  • Длина 4200 мм.
  • Ширина 150 мм.
  • Высота 300 мм.
  • Вес 500 кг.
  • Объем бетона 0,19 м3
  • Геометрический объем 0,189 м3
Цена: 7372 руб.
Подробнее
Т 11-3 (3.015-1/82)
Траверсы Серия 3.015-1/82
  • Длина 3600 мм.
  • Ширина 250 мм.
  • Высота 500 мм.
  • Вес 1130 кг.
  • Объем бетона 0,45 м3
  • Геометрический объем 0,45 м3
Цена: 17460 руб.
Подробнее
Т 12-2 (3.015-1/82)
Траверсы Серия 3.015-1/82
  • Длина 4200 мм.
  • Ширина 150 мм.
  • Высота 300 мм.
  • Вес 500 кг.
  • Объем бетона 0,19 м3
  • Геометрический объем 0,189 м3
Цена: 7372 руб.
Подробнее
Т 13-1 (3.015-1/82)
Траверсы Серия 3.015-1/82
  • Длина 4200 мм.
  • Ширина 250 мм.
  • Высота 500 мм.
  • Вес 1300 кг.
  • Объем бетона 0,53 м3
  • Геометрический объем 0,525 м3
Цена: 20564 руб.
Подробнее
Т 13-2 (3.015-1/82)
Траверсы Серия 3.015-1/82
  • Длина 4200 мм.
  • Ширина 250 мм.
  • Высота 500 мм.
  • Вес 1300 кг.
  • Объем бетона 0,53 м3
  • Геометрический объем 0,525 м3
Цена: 20564 руб.
Подробнее
Т 14-1 (3.015-1/82)
Траверсы Серия 3.015-1/82
  • Длина 4800 мм.
  • Ширина 150 мм.
  • Высота 300 мм.
  • Вес 600 кг.
  • Объем бетона 0,22 м3
  • Геометрический объем 0,216 м3
Цена: 8536 руб.
Подробнее
Т 13-3 (3.015-1/82)
Траверсы Серия 3.015-1/82
  • Длина 4200 мм.
  • Ширина 250 мм.
  • Высота 500 мм.
  • Вес 1300 кг.
  • Объем бетона 0,53 м3
  • Геометрический объем 0,525 м3
Цена: 20564 руб.
Подробнее
Т 15-3 (3.015-1/82)
Траверсы Серия 3.015-1/82
  • Длина 4800 мм.
  • Ширина 250 мм.
  • Высота 500 мм.
  • Вес 1500 кг.
  • Объем бетона 0,6 м3
  • Геометрический объем 0,6 м3
Цена: 23280 руб.
Подробнее

Уведомление о файлах cookie

Мы используем файлы cookie для улучшения вашего опыта просмотра и анализа трафика. Нажимая "Принять все", вы соглашаетесь с нашей политикой конфиденциальности и политикой обработки файлов cookie.

MAX Дзен Телеграм Вконтакте vk