mobile_sound +7 (930) 655-55-90

Железобетонные опоры линий электропередачи. Рабочие чертежи (Серия ИИ 04-5)

Поделиться:
Поделиться:

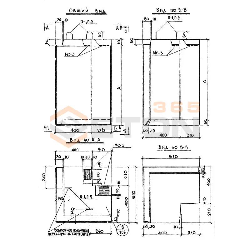
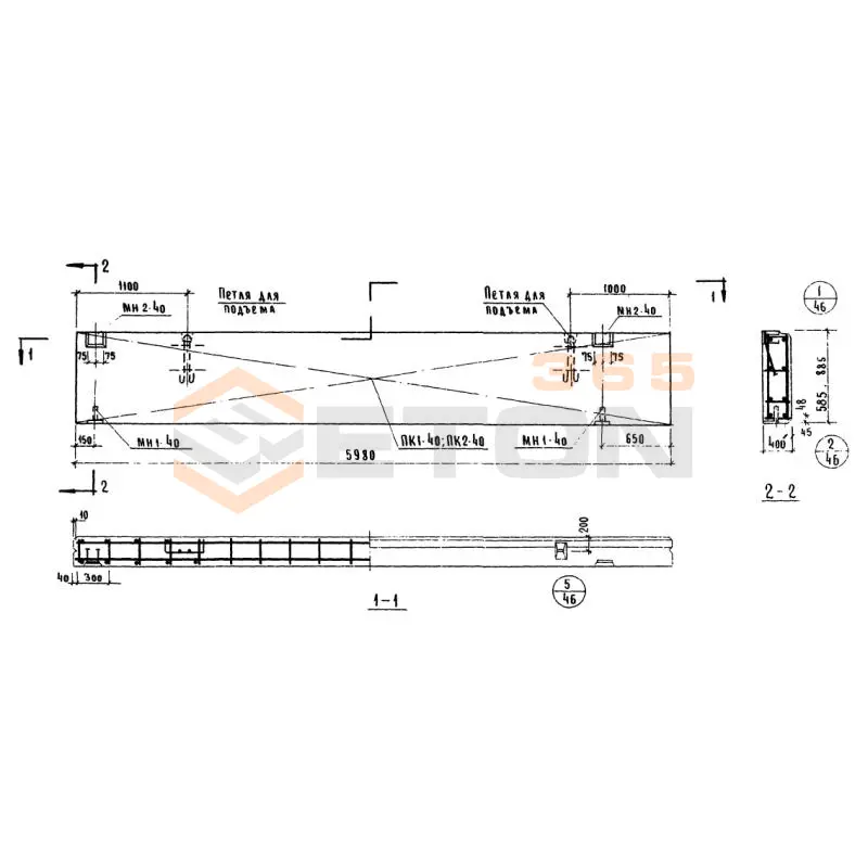
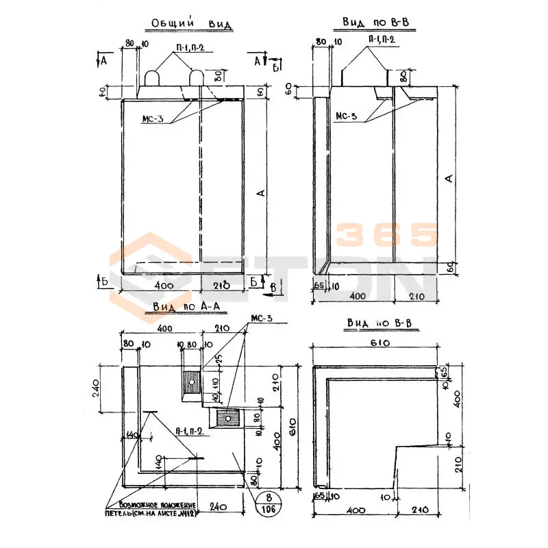
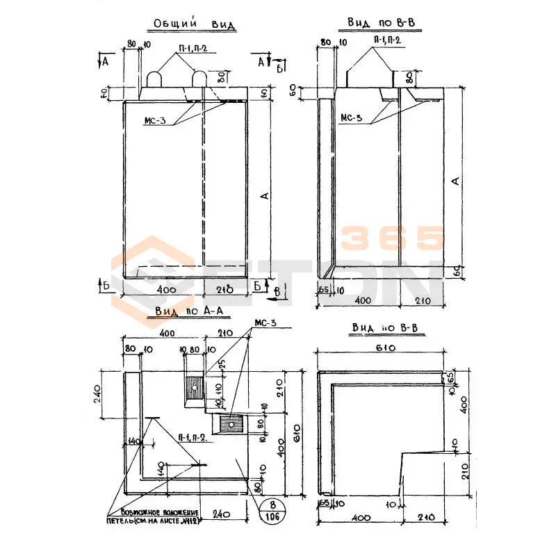
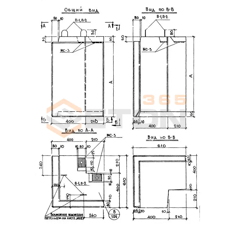
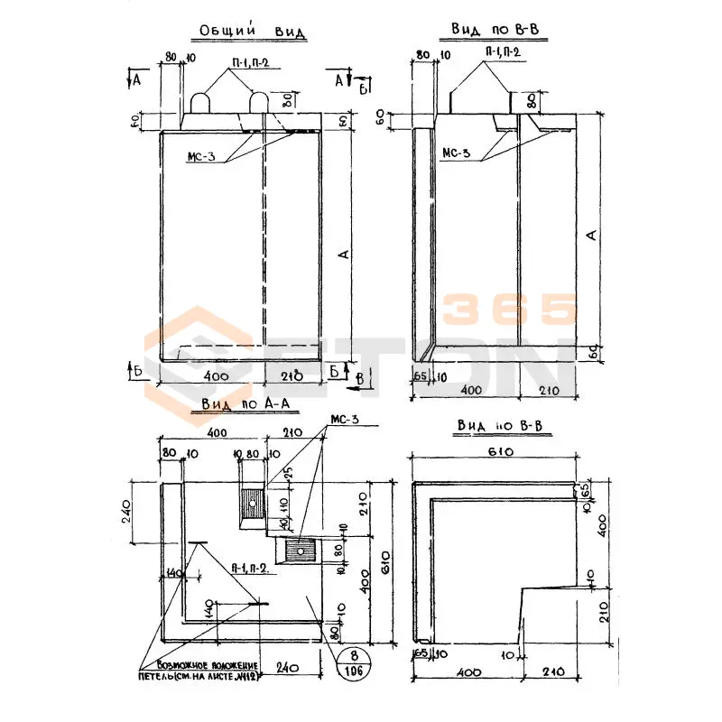
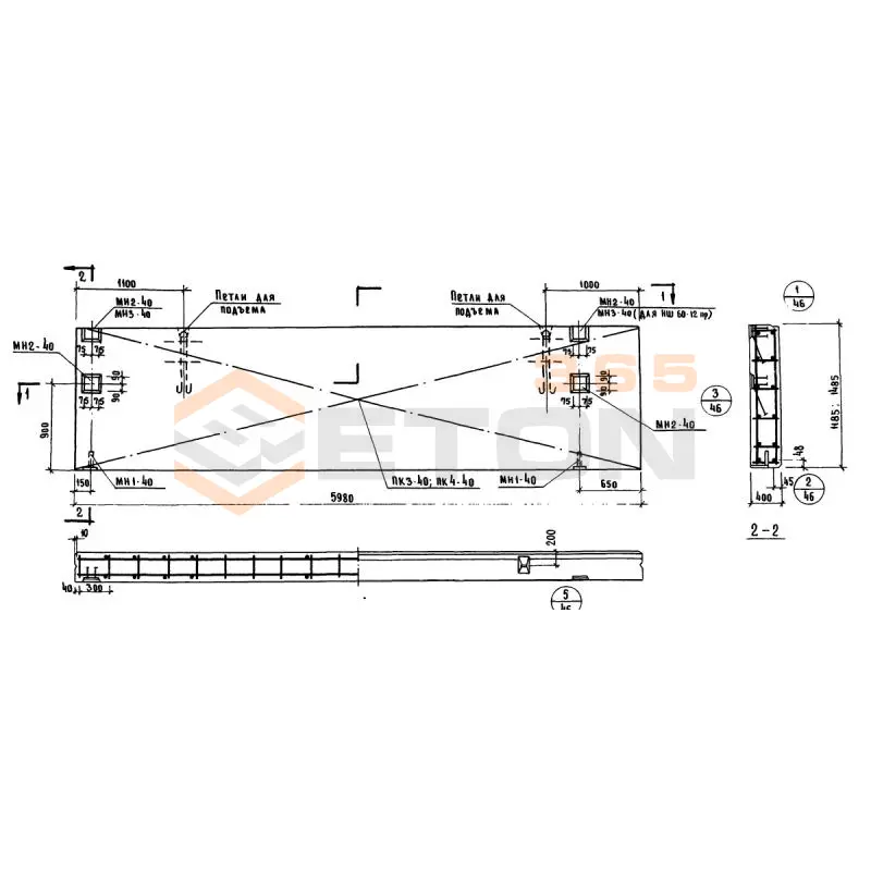
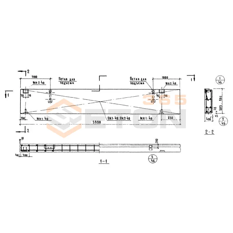
Документ Серия ИИ 04-5 описывает область применения, номенклатуру и ключевые требования, опираясь на действующие нормы и практику проектирования. Среди большого числа выпусков Серии ИИ 04-5 содержится масса полезной информации, необходимой для производства стеновых панелей, применяемых при возведении промышленных сооружений, административно-бытовых зданий и других объектов гражданского строительства. Расширить область применения конструкций позволяет использование в процессе изготовления не только тяжелого, но и легкого бетона (ячеистый, керамзитобетон) для снижения общей массы готовых изделия и конструкции. Также все элементы приведены в колоссальном количестве вариаций геометрических пропорций с толщиной от 200 до 350 мм.

Файлы для скачивания:
picture_as_pdf

2840.pdf

34,048.9 KB

скачать
picture_as_pdf

2850.pdf

20,527.8 KB

скачать
picture_as_pdf

2851.pdf

5,635.9 KB

скачать
picture_as_pdf

2852.pdf

5,645.4 KB

скачать
picture_as_pdf

2853.pdf

5,568.2 KB

скачать
picture_as_pdf

2854.pdf

17,389.2 KB

скачать
picture_as_pdf

2855.pdf

2,789.4 KB

скачать
picture_as_pdf

2856.pdf

5,080.0 KB

скачать
picture_as_pdf

2857.pdf

4,661.1 KB

скачать
picture_as_pdf

2858.pdf

4,838.0 KB

скачать
picture_as_pdf

2841.pdf

43,872.2 KB

скачать
picture_as_pdf

2859.pdf

12,630.7 KB

скачать
picture_as_pdf

2860.pdf

11,570.3 KB

скачать
picture_as_pdf

2861.pdf

9,141.8 KB

скачать
picture_as_pdf

2862.pdf

4,233.7 KB

скачать
picture_as_pdf

2842.pdf

8,665.9 KB

скачать
picture_as_pdf

2863.pdf

13,015.9 KB

скачать
picture_as_pdf

2864.pdf

8,317.5 KB

скачать
picture_as_pdf

2843.pdf

19,350.3 KB

скачать
picture_as_pdf

2845.pdf

14,753.8 KB

скачать
picture_as_pdf

2846.pdf

13,982.6 KB

скачать
picture_as_pdf

2847.pdf

13,311.4 KB

скачать
picture_as_pdf

2848.pdf

13,577.8 KB

скачать
picture_as_pdf

2849.pdf

13,683.6 KB

скачать
picture_as_pdf

2844.pdf

4,518.6 KB

скачать
Товары Серия ИИ 04-5 (60)
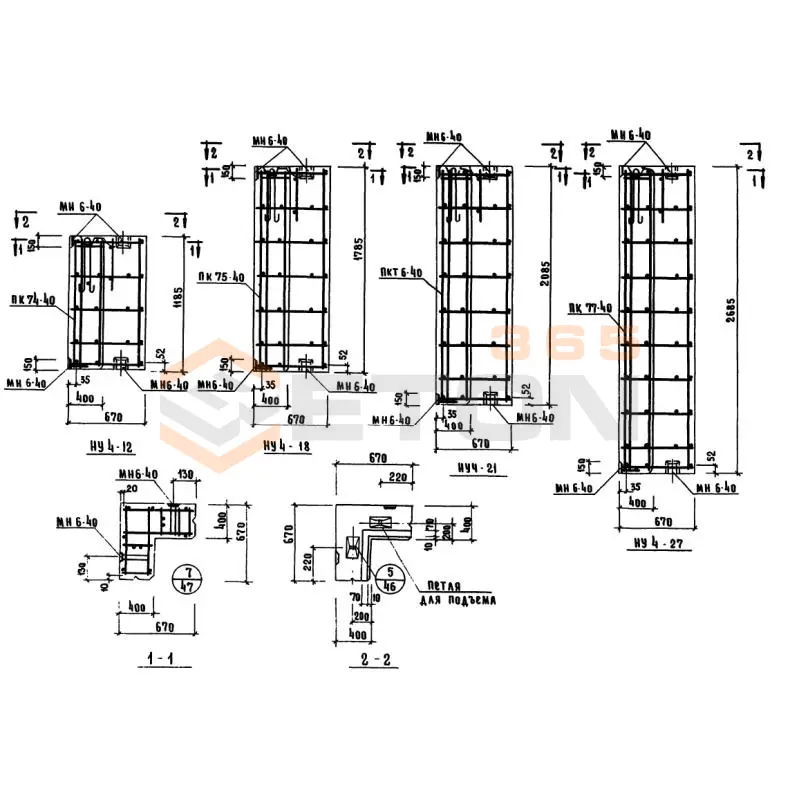
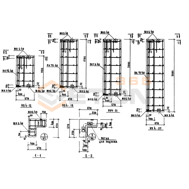
НУ 3-18
Панели стеновые керамзитобетонные толщиной 40 см Серия ИИ 04-5
  • Длина 720 мм.
  • Ширина 400 мм.
  • Высота 1785 мм.
  • Вес 1040 кг.
  • Объем бетона 0,742 м3
  • Геометрический объем 0,5141 м3
Цена: 25191 руб.
Подробнее
НУ 4-21
Панели стеновые керамзитобетонные толщиной 40 см Серия ИИ 04-5
  • Длина 670 мм.
  • Ширина 400 мм.
  • Высота 2085 мм.
  • Вес 990 кг.
  • Объем бетона 0,702 м3
  • Геометрический объем 0,5588 м3
Цена: 23833 руб.
Подробнее
НУ 4-27
Панели стеновые керамзитобетонные толщиной 40 см Серия ИИ 04-5
  • Длина 670 мм.
  • Ширина 400 мм.
  • Высота 2685 мм.
  • Вес 1300 кг.
  • Объем бетона 0,904 м3
  • Геометрический объем 0,7196 м3
Цена: 30691 руб.
Подробнее
НУ 5-15
Панели стеновые керамзитобетонные толщиной 40 см Серия ИИ 04-5
  • Длина 610 мм.
  • Ширина 400 мм.
  • Высота 1480 мм.
  • Вес 630 кг.
  • Объем бетона 0,53 м3
  • Геометрический объем 0,3611 м3
Цена: 17994 руб.
Подробнее
НУ 5-18
Панели стеновые керамзитобетонные толщиной 40 см Серия ИИ 04-5
  • Длина 610 мм.
  • Ширина 400 мм.
  • Высота 1780 мм.
  • Вес 660 кг.
  • Объем бетона 0,55 м3
  • Геометрический объем 0,4343 м3
Цена: 18673 руб.
Подробнее
НУ 5-12
Панели стеновые керамзитобетонные толщиной 40 см Серия ИИ 04-5
  • Длина 610 мм.
  • Ширина 400 мм.
  • Высота 1180 мм.
  • Вес 430 кг.
  • Объем бетона 0,35 м3
  • Геометрический объем 0,2879 м3
Цена: 11883 руб.
Подробнее
НУ 5-21
Панели стеновые керамзитобетонные толщиной 40 см Серия ИИ 04-5
  • Длина 610 мм.
  • Ширина 400 мм.
  • Высота 2080 мм.
  • Вес 770 кг.
  • Объем бетона 0,64 м3
  • Геометрический объем 0,5075 м3
Цена: 21728 руб.
Подробнее
НУ 5-33
Панели стеновые керамзитобетонные толщиной 40 см Серия ИИ 04-5
  • Длина 610 мм.
  • Ширина 400 мм.
  • Высота 3280 мм.
  • Вес 1210 кг.
  • Объем бетона 0,99 м3
  • Геометрический объем 0,8003 м3
Цена: 33611 руб.
Подробнее
НУ 5-6
Панели стеновые керамзитобетонные толщиной 40 см Серия ИИ 04-5
  • Длина 610 мм.
  • Ширина 400 мм.
  • Высота 580 мм.
  • Вес 220 кг.
  • Объем бетона 0,17 м3
  • Геометрический объем 0,1415 м3
Цена: 5772 руб.
Подробнее
НУ 5-42
Панели стеновые керамзитобетонные толщиной 40 см Серия ИИ 04-5
  • Длина 610 мм.
  • Ширина 400 мм.
  • Высота 4180 мм.
  • Вес 1540 кг.
  • Объем бетона 1,26 м3
  • Геометрический объем 1,0199 м3
Цена: 42777 руб.
Подробнее
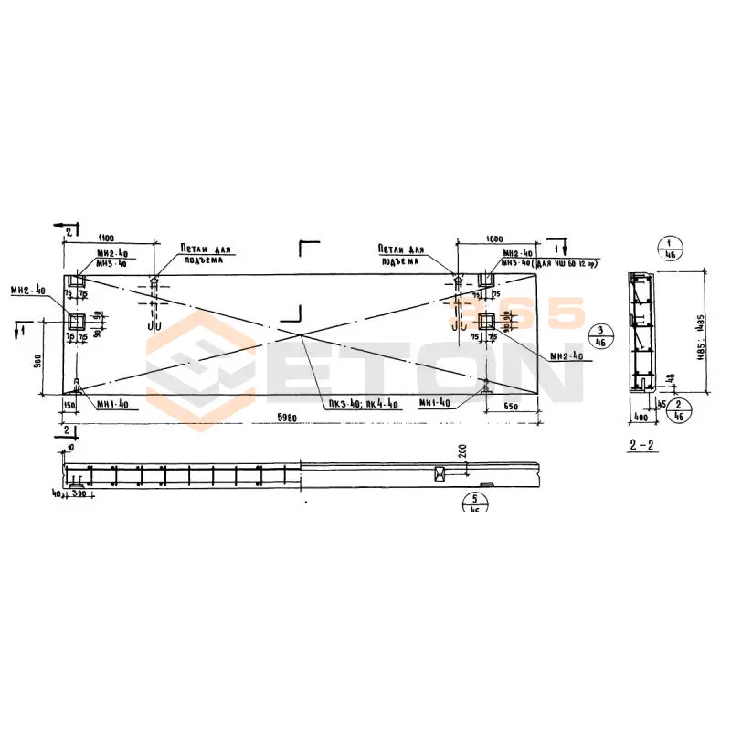
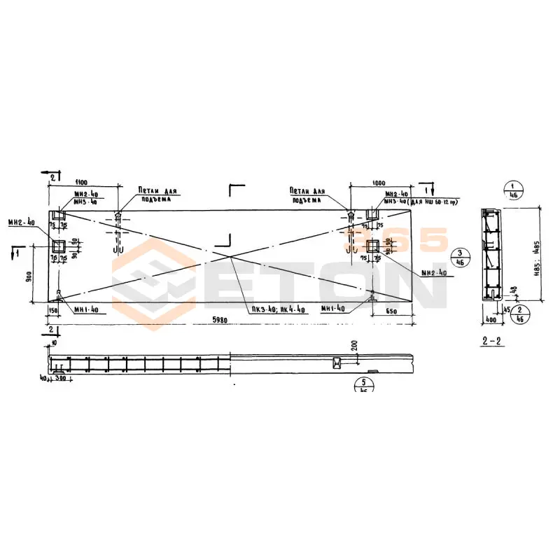
НШ 60-12 л
Панели стеновые керамзитобетонные толщиной 40 см Серия ИИ 04-5
  • Длина 5980 мм.
  • Ширина 400 мм.
  • Высота 1185 мм.
  • Вес 3720 кг.
  • Объем бетона 2,59 м3
  • Геометрический объем 2,8345 м3
Цена: 87931 руб.
Подробнее
НШ 60-15 л
Панели стеновые керамзитобетонные толщиной 40 см Серия ИИ 04-5
  • Длина 5980 мм.
  • Ширина 400 мм.
  • Высота 1485 мм.
  • Вес 4660 кг.
  • Объем бетона 3,25 м3
  • Геометрический объем 3,5521 м3
Цена: 110338 руб.
Подробнее
НШ 60-12 пр
Панели стеновые керамзитобетонные толщиной 40 см Серия ИИ 04-5
  • Длина 5980 мм.
  • Ширина 400 мм.
  • Высота 1185 мм.
  • Вес 3720 кг.
  • Объем бетона 2,59 м3
  • Геометрический объем 2,8345 м3
Цена: 87931 руб.
Подробнее
НУ 5-9
Панели стеновые керамзитобетонные толщиной 40 см Серия ИИ 04-5
  • Длина 610 мм.
  • Ширина 400 мм.
  • Высота 880 мм.
  • Вес 330 кг.
  • Объем бетона 0,27 м3
  • Геометрический объем 0,2147 м3
Цена: 9167 руб.
Подробнее
НШ 60-15 пр
Панели стеновые керамзитобетонные толщиной 40 см Серия ИИ 04-5
  • Длина 5980 мм.
  • Ширина 400 мм.
  • Высота 1485 мм.
  • Вес 4660 кг.
  • Объем бетона 3,25 м3
  • Геометрический объем 3,5521 м3
Цена: 110338 руб.
Подробнее
НШ 60-9 л
Панели стеновые керамзитобетонные толщиной 40 см Серия ИИ 04-5
  • Длина 5980 мм.
  • Ширина 400 мм.
  • Высота 885 мм.
  • Вес 2800 кг.
  • Объем бетона 1,93 м3
  • Геометрический объем 2,1169 м3
Цена: 65524 руб.
Подробнее
НШ 60-6 л
Панели стеновые керамзитобетонные толщиной 40 см Серия ИИ 04-5
  • Длина 5980 мм.
  • Ширина 400 мм.
  • Высота 585 мм.
  • Вес 1860 кг.
  • Объем бетона 1,28 м3
  • Геометрический объем 1,3993 м3
Цена: 43456 руб.
Подробнее
НШ 60-9 пр
Панели стеновые керамзитобетонные толщиной 40 см Серия ИИ 04-5
  • Длина 5980 мм.
  • Ширина 400 мм.
  • Высота 885 мм.
  • Вес 2800 кг.
  • Объем бетона 1,93 м3
  • Геометрический объем 2,1169 м3
Цена: 65524 руб.
Подробнее
НШ 60-6 пр
Панели стеновые керамзитобетонные толщиной 40 см Серия ИИ 04-5
  • Длина 5980 мм.
  • Ширина 400 мм.
  • Высота 585 мм.
  • Вес 1860 кг.
  • Объем бетона 1,28 м3
  • Геометрический объем 1,3993 м3
Цена: 43456 руб.
Подробнее
Н 12-12
Панели стеновые легкобетонные толщиной 20,25,30 и 35 см Серия ИИ 04-5
  • Длина 1180 мм.
  • Ширина 250 мм.
  • Высота 1185 мм.
  • Вес 400 кг.
  • Объем бетона 0,301 м3
  • Геометрический объем 0,3496 м3
Цена: 10219 руб.
Подробнее
Н 12-12
Панели стеновые легкобетонные толщиной 20,25,30 и 35 см Серия ИИ 04-5
  • Длина 1180 мм.
  • Ширина 350 мм.
  • Высота 1185 мм.
  • Вес 540 кг.
  • Объем бетона 0,439 м3
  • Геометрический объем 0,4894 м3
Цена: 14904 руб.
Подробнее
Н 12-12
Панели стеновые легкобетонные толщиной 20,25,30 и 35 см Серия ИИ 04-5
  • Длина 1180 мм.
  • Ширина 300 мм.
  • Высота 1185 мм.
  • Вес 470 кг.
  • Объем бетона 0,371 м3
  • Геометрический объем 0,4195 м3
Цена: 12595 руб.
Подробнее
Н 12-18
Панели стеновые легкобетонные толщиной 20,25,30 и 35 см Серия ИИ 04-5
  • Длина 1180 мм.
  • Ширина 250 мм.
  • Высота 1785 мм.
  • Вес 590 кг.
  • Объем бетона 0,447 м3
  • Геометрический объем 0,5266 м3
Цена: 15176 руб.
Подробнее
Н 12-18
Панели стеновые легкобетонные толщиной 20,25,30 и 35 см Серия ИИ 04-5
  • Длина 1180 мм.
  • Ширина 300 мм.
  • Высота 1785 мм.
  • Вес 710 кг.
  • Объем бетона 0,557 м3
  • Геометрический объем 0,6319 м3
Цена: 18910 руб.
Подробнее
Н 12-21
Панели стеновые легкобетонные толщиной 20,25,30 и 35 см Серия ИИ 04-5
  • Длина 1180 мм.
  • Ширина 250 мм.
  • Высота 2085 мм.
  • Вес 700 кг.
  • Объем бетона 0,525 м3
  • Геометрический объем 0,6151 м3
Цена: 17824 руб.
Подробнее
Н 12-21
Панели стеновые легкобетонные толщиной 20,25,30 и 35 см Серия ИИ 04-5
  • Длина 1180 мм.
  • Ширина 350 мм.
  • Высота 2085 мм.
  • Вес 940 кг.
  • Объем бетона 0,773 м3
  • Геометрический объем 0,8611 м3
Цена: 26243 руб.
Подробнее
Н 12-18
Панели стеновые легкобетонные толщиной 20,25,30 и 35 см Серия ИИ 04-5
  • Длина 1180 мм.
  • Ширина 350 мм.
  • Высота 1785 мм.
  • Вес 810 кг.
  • Объем бетона 0,662 м3
  • Геометрический объем 0,7372 м3
Цена: 22475 руб.
Подробнее
Н 12-21
Панели стеновые легкобетонные толщиной 20,25,30 и 35 см Серия ИИ 04-5
  • Длина 1180 мм.
  • Ширина 300 мм.
  • Высота 2085 мм.
  • Вес 820 кг.
  • Объем бетона 0,545 м3
  • Геометрический объем 0,7381 м3
Цена: 18503 руб.
Подробнее
Н 12-27
Панели стеновые легкобетонные толщиной 20,25,30 и 35 см Серия ИИ 04-5
  • Длина 1180 мм.
  • Ширина 250 мм.
  • Высота 2685 мм.
  • Вес 890 кг.
  • Объем бетона 0,67 м3
  • Геометрический объем 0,7921 м3
Цена: 22747 руб.
Подробнее
Н 12-27
Панели стеновые легкобетонные толщиной 20,25,30 и 35 см Серия ИИ 04-5
  • Длина 1180 мм.
  • Ширина 350 мм.
  • Высота 2685 мм.
  • Вес 1220 кг.
  • Объем бетона 0,995 м3
  • Геометрический объем 1,1089 м3
Цена: 33780 руб.
Подробнее
Н 12-27
Панели стеновые легкобетонные толщиной 20,25,30 и 35 см Серия ИИ 04-5
  • Длина 1180 мм.
  • Ширина 300 мм.
  • Высота 2685 мм.
  • Вес 1050 кг.
  • Объем бетона 0,83 м3
  • Геометрический объем 0,9505 м3
Цена: 28179 руб.
Подробнее
Н 15-12
Панели стеновые легкобетонные толщиной 20,25,30 и 35 см Серия ИИ 04-5
  • Длина 1450 мм.
  • Ширина 200 мм.
  • Высота 1185 мм.
  • Вес 320 кг.
  • Объем бетона 0,32 м3
  • Геометрический объем 0,3437 м3
Цена: 10864 руб.
Подробнее
Н 15-12
Панели стеновые легкобетонные толщиной 20,25,30 и 35 см Серия ИИ 04-5
  • Длина 1450 мм.
  • Ширина 300 мм.
  • Высота 1185 мм.
  • Вес 700 кг.
  • Объем бетона 0,46 м3
  • Геометрический объем 0,5155 м3
Цена: 15617 руб.
Подробнее
Н 15-18
Панели стеновые легкобетонные толщиной 20,25,30 и 35 см Серия ИИ 04-5
  • Длина 1450 мм.
  • Ширина 200 мм.
  • Высота 1785 мм.
  • Вес 470 кг.
  • Объем бетона 0,48 м3
  • Геометрический объем 0,5177 м3
Цена: 16296 руб.
Подробнее
Н 15-18
Панели стеновые легкобетонные толщиной 20,25,30 и 35 см Серия ИИ 04-5
  • Длина 1450 мм.
  • Ширина 300 мм.
  • Высота 1785 мм.
  • Вес 1040 кг.
  • Объем бетона 0,78 м3
  • Геометрический объем 0,7765 м3
Цена: 26481 руб.
Подробнее
Н 15-24
Панели стеновые легкобетонные толщиной 20,25,30 и 35 см Серия ИИ 04-5
  • Длина 1450 мм.
  • Ширина 300 мм.
  • Высота 2385 мм.
  • Вес 1400 кг.
  • Объем бетона 0,93 м3
  • Геометрический объем 1,0375 м3
Цена: 31574 руб.
Подробнее
Н 18-12
Панели стеновые легкобетонные толщиной 20,25,30 и 35 см Серия ИИ 04-5
  • Длина 1780 мм.
  • Ширина 350 мм.
  • Высота 1185 мм.
  • Вес 810 кг.
  • Объем бетона 0,663 м3
  • Геометрический объем 0,7383 м3
Цена: 22509 руб.
Подробнее
Н 15-24
Панели стеновые легкобетонные толщиной 20,25,30 и 35 см Серия ИИ 04-5
  • Длина 1450 мм.
  • Ширина 200 мм.
  • Высота 2385 мм.
  • Вес 630 кг.
  • Объем бетона 0,65 м3
  • Геометрический объем 0,6916 м3
Цена: 22068 руб.
Подробнее
Н 18-12
Панели стеновые легкобетонные толщиной 20,25,30 и 35 см Серия ИИ 04-5
  • Длина 1780 мм.
  • Ширина 250 мм.
  • Высота 1185 мм.
  • Вес 690 кг.
  • Объем бетона 0,447 м3
  • Геометрический объем 0,5273 м3
Цена: 15176 руб.
Подробнее
Н 18-12
Панели стеновые легкобетонные толщиной 20,25,30 и 35 см Серия ИИ 04-5
  • Длина 1780 мм.
  • Ширина 300 мм.
  • Высота 1185 мм.
  • Вес 710 кг.
  • Объем бетона 0,557 м3
  • Геометрический объем 0,6328 м3
Цена: 18910 руб.
Подробнее
Н 18-18
Панели стеновые легкобетонные толщиной 20,25,30 и 35 см Серия ИИ 04-5
  • Длина 1780 мм.
  • Ширина 250 мм.
  • Высота 1785 мм.
  • Вес 900 кг.
  • Объем бетона 0,679 м3
  • Геометрический объем 0,7943 м3
Цена: 23052 руб.
Подробнее
Н 18-18
Панели стеновые легкобетонные толщиной 20,25,30 и 35 см Серия ИИ 04-5
  • Длина 1780 мм.
  • Ширина 300 мм.
  • Высота 1785 мм.
  • Вес 1060 кг.
  • Объем бетона 0,839 м3
  • Геометрический объем 0,9532 м3
Цена: 28484 руб.
Подробнее
Н 18-18
Панели стеновые легкобетонные толщиной 20,25,30 и 35 см Серия ИИ 04-5
  • Длина 1780 мм.
  • Ширина 350 мм.
  • Высота 1785 мм.
  • Вес 1220 кг.
  • Объем бетона 0,999 м3
  • Геометрический объем 1,1121 м3
Цена: 33916 руб.
Подробнее
Н 18-21
Панели стеновые легкобетонные толщиной 20,25,30 и 35 см Серия ИИ 04-5
  • Длина 1780 мм.
  • Ширина 250 мм.
  • Высота 2085 мм.
  • Вес 1050 кг.
  • Объем бетона 0,801 м3
  • Геометрический объем 0,9278 м3
Цена: 27194 руб.
Подробнее
Н 18-21
Панели стеновые легкобетонные толщиной 20,25,30 и 35 см Серия ИИ 04-5
  • Длина 1780 мм.
  • Ширина 350 мм.
  • Высота 2085 мм.
  • Вес 1430 кг.
  • Объем бетона 1,167 м3
  • Геометрический объем 1,299 м3
Цена: 39620 руб.
Подробнее
Н 18-21
Панели стеновые легкобетонные толщиной 20,25,30 и 35 см Серия ИИ 04-5
  • Длина 1780 мм.
  • Ширина 300 мм.
  • Высота 2085 мм.
  • Вес 1250 кг.
  • Объем бетона 0,991 м3
  • Геометрический объем 1,1134 м3
Цена: 33644 руб.
Подробнее
Н 18-27
Панели стеновые легкобетонные толщиной 20,25,30 и 35 см Серия ИИ 04-5
  • Длина 1780 мм.
  • Ширина 250 мм.
  • Высота 2685 мм.
  • Вес 1350 кг.
  • Объем бетона 1,024 м3
  • Геометрический объем 1,1948 м3
Цена: 34765 руб.
Подробнее
Н 18-27
Панели стеновые легкобетонные толщиной 20,25,30 и 35 см Серия ИИ 04-5
  • Длина 1780 мм.
  • Ширина 300 мм.
  • Высота 2685 мм.
  • Вес 1590 кг.
  • Объем бетона 1,264 м3
  • Геометрический объем 1,4338 м3
Цена: 42913 руб.
Подробнее
Н 18-27
Панели стеновые легкобетонные толщиной 20,25,30 и 35 см Серия ИИ 04-5
  • Длина 1780 мм.
  • Ширина 350 мм.
  • Высота 2685 мм.
  • Вес 1840 кг.
  • Объем бетона 1,503 м3
  • Геометрический объем 1,6728 м3
Цена: 51027 руб.
Подробнее
Н 27-12 л
Панели стеновые легкобетонные толщиной 20,25,30 и 35 см Серия ИИ 04-5
  • Длина 2700 мм.
  • Ширина 350 мм.
  • Высота 1185 мм.
  • Вес 1200 кг.
  • Объем бетона 0,98 м3
  • Геометрический объем 1,1198 м3
Цена: 33271 руб.
Подробнее
Н 27-12 л
Панели стеновые легкобетонные толщиной 20,25,30 и 35 см Серия ИИ 04-5
  • Длина 2700 мм.
  • Ширина 250 мм.
  • Высота 1185 мм.
  • Вес 800 кг.
  • Объем бетона 0,67 м3
  • Геометрический объем 0,7999 м3
Цена: 22747 руб.
Подробнее
Н 27-12 пр
Панели стеновые легкобетонные толщиной 20,25,30 и 35 см Серия ИИ 04-5
  • Длина 2700 мм.
  • Ширина 250 мм.
  • Высота 1185 мм.
  • Вес 800 кг.
  • Объем бетона 0,67 м3
  • Геометрический объем 0,7999 м3
Цена: 22747 руб.
Подробнее
Н 27-12 л
Панели стеновые легкобетонные толщиной 20,25,30 и 35 см Серия ИИ 04-5
  • Длина 2700 мм.
  • Ширина 300 мм.
  • Высота 1185 мм.
  • Вес 1050 кг.
  • Объем бетона 0,82 м3
  • Геометрический объем 0,9598 м3
Цена: 27839 руб.
Подробнее
Н 27-12 пр
Панели стеновые легкобетонные толщиной 20,25,30 и 35 см Серия ИИ 04-5
  • Длина 2700 мм.
  • Ширина 300 мм.
  • Высота 1185 мм.
  • Вес 1050 кг.
  • Объем бетона 0,82 м3
  • Геометрический объем 0,9598 м3
Цена: 27839 руб.
Подробнее
Н 27-12 пр
Панели стеновые легкобетонные толщиной 20,25,30 и 35 см Серия ИИ 04-5
  • Длина 2700 мм.
  • Ширина 350 мм.
  • Высота 1185 мм.
  • Вес 1200 кг.
  • Объем бетона 0,98 м3
  • Геометрический объем 1,1198 м3
Цена: 33271 руб.
Подробнее
Н 27-15 л
Панели стеновые легкобетонные толщиной 20,25,30 и 35 см Серия ИИ 04-5
  • Длина 2700 мм.
  • Ширина 350 мм.
  • Высота 1485 мм.
  • Вес 1500 кг.
  • Объем бетона 1,21 м3
  • Геометрический объем 1,4033 м3
Цена: 41080 руб.
Подробнее
Н 27-15 л
Панели стеновые легкобетонные толщиной 20,25,30 и 35 см Серия ИИ 04-5
  • Длина 2700 мм.
  • Ширина 250 мм.
  • Высота 1485 мм.
  • Вес 1100 кг.
  • Объем бетона 0,84 м3
  • Геометрический объем 1,0024 м3
Цена: 28518 руб.
Подробнее
Н 27-15 л
Панели стеновые легкобетонные толщиной 20,25,30 и 35 см Серия ИИ 04-5
  • Длина 2700 мм.
  • Ширина 300 мм.
  • Высота 1485 мм.
  • Вес 1290 кг.
  • Объем бетона 1,02 м3
  • Геометрический объем 1,2028 м3
Цена: 34629 руб.
Подробнее
Н 27-15 пр
Панели стеновые легкобетонные толщиной 20,25,30 и 35 см Серия ИИ 04-5
  • Длина 2700 мм.
  • Ширина 250 мм.
  • Высота 1485 мм.
  • Вес 1100 кг.
  • Объем бетона 0,84 м3
  • Геометрический объем 1,0024 м3
Цена: 28518 руб.
Подробнее
Н 27-6 л
Панели стеновые легкобетонные толщиной 20,25,30 и 35 см Серия ИИ 04-5
  • Длина 2700 мм.
  • Ширина 350 мм.
  • Высота 585 мм.
  • Вес 600 кг.
  • Объем бетона 0,48 м3
  • Геометрический объем 0,5528 м3
Цена: 16296 руб.
Подробнее

Уведомление о файлах cookie

Мы используем файлы cookie для улучшения вашего опыта просмотра и анализа трафика. Нажимая "Принять все", вы соглашаетесь с нашей политикой конфиденциальности и политикой обработки файлов cookie.

Дзен Телеграм Вконтакте vk