mobile_sound +7 (930) 655-55-90

Железобетонные опоры линий электропередачи. Рабочие чертежи (Серия ИИ 04-5)

Поделиться:
Поделиться:

Документ Серия ИИ 04-5 описывает область применения, номенклатуру и ключевые требования, опираясь на действующие нормы и практику проектирования. Среди большого числа выпусков Серии ИИ 04-5 содержится масса полезной информации, необходимой для производства стеновых панелей, применяемых при возведении промышленных сооружений, административно-бытовых зданий и других объектов гражданского строительства. Расширить область применения конструкций позволяет использование в процессе изготовления не только тяжелого, но и легкого бетона (ячеистый, керамзитобетон) для снижения общей массы готовых изделия и конструкции. Также все элементы приведены в колоссальном количестве вариаций геометрических пропорций с толщиной от 200 до 350 мм.

Файлы для скачивания:
picture_as_pdf

2840.pdf

34,048.9 KB

скачать
picture_as_pdf

2850.pdf

20,527.8 KB

скачать
picture_as_pdf

2851.pdf

5,635.9 KB

скачать
picture_as_pdf

2852.pdf

5,645.4 KB

скачать
picture_as_pdf

2853.pdf

5,568.2 KB

скачать
picture_as_pdf

2854.pdf

17,389.2 KB

скачать
picture_as_pdf

2855.pdf

2,789.4 KB

скачать
picture_as_pdf

2856.pdf

5,080.0 KB

скачать
picture_as_pdf

2857.pdf

4,661.1 KB

скачать
picture_as_pdf

2858.pdf

4,838.0 KB

скачать
picture_as_pdf

2841.pdf

43,872.2 KB

скачать
picture_as_pdf

2859.pdf

12,630.7 KB

скачать
picture_as_pdf

2860.pdf

11,570.3 KB

скачать
picture_as_pdf

2861.pdf

9,141.8 KB

скачать
picture_as_pdf

2862.pdf

4,233.7 KB

скачать
picture_as_pdf

2842.pdf

8,665.9 KB

скачать
picture_as_pdf

2863.pdf

13,015.9 KB

скачать
picture_as_pdf

2864.pdf

8,317.5 KB

скачать
picture_as_pdf

2843.pdf

19,350.3 KB

скачать
picture_as_pdf

2845.pdf

14,753.8 KB

скачать
picture_as_pdf

2846.pdf

13,982.6 KB

скачать
picture_as_pdf

2847.pdf

13,311.4 KB

скачать
picture_as_pdf

2848.pdf

13,577.8 KB

скачать
picture_as_pdf

2849.pdf

13,683.6 KB

скачать
picture_as_pdf

2844.pdf

4,518.6 KB

скачать
Товары Серия ИИ 04-5 (60)
Н 57-6 л
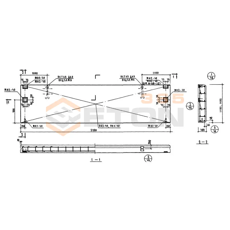
Панели стеновые керамзитобетонные толщиной 40 см Серия ИИ 04-5
  • Длина 5700 мм.
  • Ширина 400 мм.
  • Высота 585 мм.
  • Вес 1790 кг.
  • Объем бетона 1,24 м3
  • Геометрический объем 1,3338 м3
Цена: 42098 руб.
Подробнее
Н 57-9 л
Панели стеновые керамзитобетонные толщиной 40 см Серия ИИ 04-5
  • Длина 5700 мм.
  • Ширина 400 мм.
  • Высота 880 мм.
  • Вес 2260 кг.
  • Объем бетона 1,75 м3
  • Геометрический объем 2,0064 м3
Цена: 59413 руб.
Подробнее
Н 57-6 пр
Панели стеновые керамзитобетонные толщиной 40 см Серия ИИ 04-5
  • Длина 5700 мм.
  • Ширина 400 мм.
  • Высота 585 мм.
  • Вес 1790 кг.
  • Объем бетона 1,24 м3
  • Геометрический объем 1,3338 м3
Цена: 42098 руб.
Подробнее
Н 57-9 л
Панели стеновые керамзитобетонные толщиной 40 см Серия ИИ 04-5
  • Длина 5700 мм.
  • Ширина 400 мм.
  • Высота 885 мм.
  • Вес 2690 кг.
  • Объем бетона 1,88 м3
  • Геометрический объем 2,0178 м3
Цена: 63826 руб.
Подробнее
Н 57-6 пр
Панели стеновые керамзитобетонные толщиной 40 см Серия ИИ 04-5
  • Длина 5700 мм.
  • Ширина 400 мм.
  • Высота 580 мм.
  • Вес 1490 кг.
  • Объем бетона 1,15 м3
  • Геометрический объем 1,3224 м3
Цена: 39043 руб.
Подробнее
Н 57-9 пр
Панели стеновые керамзитобетонные толщиной 40 см Серия ИИ 04-5
  • Длина 5700 мм.
  • Ширина 400 мм.
  • Высота 885 мм.
  • Вес 2690 кг.
  • Объем бетона 1,88 м3
  • Геометрический объем 2,0178 м3
Цена: 63826 руб.
Подробнее
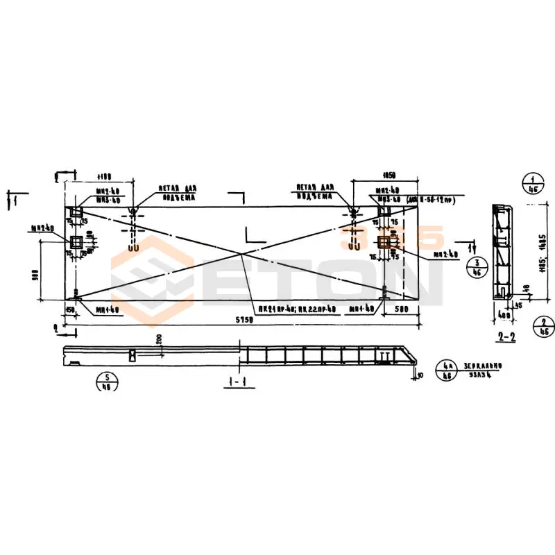
Н 58-12 л
Панели стеновые керамзитобетонные толщиной 40 см Серия ИИ 04-5
  • Длина 5750 мм.
  • Ширина 400 мм.
  • Высота 1185 мм.
  • Вес 3550 кг.
  • Объем бетона 2,48 м3
  • Геометрический объем 2,7255 м3
Цена: 84196 руб.
Подробнее
Н 58-6 л
Панели стеновые керамзитобетонные толщиной 40 см Серия ИИ 04-5
  • Длина 5750 мм.
  • Ширина 400 мм.
  • Высота 585 мм.
  • Вес 1820 кг.
  • Объем бетона 1,26 м3
  • Геометрический объем 1,3455 м3
Цена: 42777 руб.
Подробнее
Н 58-12 пр
Панели стеновые керамзитобетонные толщиной 40 см Серия ИИ 04-5
  • Длина 5750 мм.
  • Ширина 400 мм.
  • Высота 1185 мм.
  • Вес 3550 кг.
  • Объем бетона 2,48 м3
  • Геометрический объем 2,7255 м3
Цена: 84196 руб.
Подробнее
Н 57-9 пр
Панели стеновые керамзитобетонные толщиной 40 см Серия ИИ 04-5
  • Длина 5700 мм.
  • Ширина 400 мм.
  • Высота 880 мм.
  • Вес 2260 кг.
  • Объем бетона 1,75 м3
  • Геометрический объем 2,0064 м3
Цена: 59413 руб.
Подробнее
Н 58-15 пр
Панели стеновые керамзитобетонные толщиной 40 см Серия ИИ 04-5
  • Длина 5750 мм.
  • Ширина 400 мм.
  • Высота 1485 мм.
  • Вес 4450 кг.
  • Объем бетона 3,11 м3
  • Геометрический объем 3,4155 м3
Цена: 105585 руб.
Подробнее
Н 58-15 л
Панели стеновые керамзитобетонные толщиной 40 см Серия ИИ 04-5
  • Длина 5750 мм.
  • Ширина 400 мм.
  • Высота 1485 мм.
  • Вес 4450 кг.
  • Объем бетона 3,11 м3
  • Геометрический объем 3,4155 м3
Цена: 105585 руб.
Подробнее
Н 58-6 пр
Панели стеновые керамзитобетонные толщиной 40 см Серия ИИ 04-5
  • Длина 5750 мм.
  • Ширина 400 мм.
  • Высота 585 мм.
  • Вес 1820 кг.
  • Объем бетона 1,26 м3
  • Геометрический объем 1,3455 м3
Цена: 42777 руб.
Подробнее
Н 6-12
Панели стеновые керамзитобетонные толщиной 40 см Серия ИИ 04-5
  • Длина 580 мм.
  • Ширина 400 мм.
  • Высота 1185 мм.
  • Вес 360 кг.
  • Объем бетона 0,25 м3
  • Геометрический объем 0,2749 м3
Цена: 8488 руб.
Подробнее
Н 6-12
Панели стеновые керамзитобетонные толщиной 40 см Серия ИИ 04-5
  • Длина 600 мм.
  • Ширина 400 мм.
  • Высота 1180 мм.
  • Вес 340 кг.
  • Объем бетона 0,25 м3
  • Геометрический объем 0,2832 м3
Цена: 8488 руб.
Подробнее
Н 58-9 пр
Панели стеновые керамзитобетонные толщиной 40 см Серия ИИ 04-5
  • Длина 5750 мм.
  • Ширина 400 мм.
  • Высота 885 мм.
  • Вес 2690 кг.
  • Объем бетона 1,88 м3
  • Геометрический объем 2,0355 м3
Цена: 63826 руб.
Подробнее
Н 6-18
Панели стеновые керамзитобетонные толщиной 40 см Серия ИИ 04-5
  • Длина 600 мм.
  • Ширина 400 мм.
  • Высота 1780 мм.
  • Вес 510 кг.
  • Объем бетона 0,39 м3
  • Геометрический объем 0,4272 м3
Цена: 13241 руб.
Подробнее
Н 6-18
Панели стеновые керамзитобетонные толщиной 40 см Серия ИИ 04-5
  • Длина 580 мм.
  • Ширина 400 мм.
  • Высота 1785 мм.
  • Вес 542 кг.
  • Объем бетона 0,38 м3
  • Геометрический объем 0,4141 м3
Цена: 12901 руб.
Подробнее
Н 58-9 л
Панели стеновые керамзитобетонные толщиной 40 см Серия ИИ 04-5
  • Длина 5750 мм.
  • Ширина 400 мм.
  • Высота 885 мм.
  • Вес 2690 кг.
  • Объем бетона 1,88 м3
  • Геометрический объем 2,0355 м3
Цена: 63826 руб.
Подробнее
Н 6-21
Панели стеновые керамзитобетонные толщиной 40 см Серия ИИ 04-5
  • Длина 600 мм.
  • Ширина 400 мм.
  • Высота 2080 мм.
  • Вес 600 кг.
  • Объем бетона 0,46 м3
  • Геометрический объем 0,4992 м3
Цена: 15617 руб.
Подробнее
Н 6-27
Панели стеновые керамзитобетонные толщиной 40 см Серия ИИ 04-5
  • Длина 600 мм.
  • Ширина 400 мм.
  • Высота 2680 мм.
  • Вес 760 кг.
  • Объем бетона 0,59 м3
  • Геометрический объем 0,6432 м3
Цена: 20031 руб.
Подробнее
Н 6-21
Панели стеновые керамзитобетонные толщиной 40 см Серия ИИ 04-5
  • Длина 580 мм.
  • Ширина 400 мм.
  • Высота 2085 мм.
  • Вес 625 кг.
  • Объем бетона 0,44 м3
  • Геометрический объем 0,4837 м3
Цена: 14938 руб.
Подробнее
Н 60-12
Панели стеновые керамзитобетонные толщиной 40 см Серия ИИ 04-5
  • Длина 5980 мм.
  • Ширина 400 мм.
  • Высота 1180 мм.
  • Вес 3220 кг.
  • Объем бетона 2,51 м3
  • Геометрический объем 2,8226 м3
Цена: 85215 руб.
Подробнее
Н 60-12
Панели стеновые керамзитобетонные толщиной 40 см Серия ИИ 04-5
  • Длина 5980 мм.
  • Ширина 400 мм.
  • Высота 1185 мм.
  • Вес 3720 кг.
  • Объем бетона 2,84 м3
  • Геометрический объем 2,8345 м3
Цена: 96418 руб.
Подробнее
Н 6-27
Панели стеновые керамзитобетонные толщиной 40 см Серия ИИ 04-5
  • Длина 580 мм.
  • Ширина 400 мм.
  • Высота 2685 мм.
  • Вес 800 кг.
  • Объем бетона 0,56 м3
  • Геометрический объем 0,6229 м3
Цена: 19012 руб.
Подробнее
Н 60-12 л
Панели стеновые керамзитобетонные толщиной 40 см Серия ИИ 04-5
  • Длина 5980 мм.
  • Ширина 400 мм.
  • Высота 1180 мм.
  • Вес 3220 кг.
  • Объем бетона 2,51 м3
  • Геометрический объем 2,8226 м3
Цена: 85215 руб.
Подробнее
Н 60-12 пр
Панели стеновые керамзитобетонные толщиной 40 см Серия ИИ 04-5
  • Длина 5980 мм.
  • Ширина 400 мм.
  • Высота 1180 мм.
  • Вес 3220 кг.
  • Объем бетона 2,51 м3
  • Геометрический объем 2,8226 м3
Цена: 85215 руб.
Подробнее
Н 60-15
Панели стеновые керамзитобетонные толщиной 40 см Серия ИИ 04-5
  • Длина 5980 мм.
  • Ширина 400 мм.
  • Высота 1480 мм.
  • Вес 3960 кг.
  • Объем бетона 3,2 м3
  • Геометрический объем 3,5402 м3
Цена: 108640 руб.
Подробнее
Н 60-18
Панели стеновые керамзитобетонные толщиной 40 см Серия ИИ 04-5
  • Длина 5980 мм.
  • Ширина 400 мм.
  • Высота 1785 мм.
  • Вес 5560 кг.
  • Объем бетона 3,9 м3
  • Геометрический объем 4,2697 м3
Цена: 132405 руб.
Подробнее
Н 60-18
Панели стеновые керамзитобетонные толщиной 40 см Серия ИИ 04-5
  • Длина 5980 мм.
  • Ширина 400 мм.
  • Высота 1780 мм.
  • Вес 4790 кг.
  • Объем бетона 3,8 м3
  • Геометрический объем 4,2578 м3
Цена: 129010 руб.
Подробнее
Н 60-15
Панели стеновые керамзитобетонные толщиной 40 см Серия ИИ 04-5
  • Длина 5980 мм.
  • Ширина 400 мм.
  • Высота 1485 мм.
  • Вес 4660 кг.
  • Объем бетона 3,25 м3
  • Геометрический объем 3,5521 м3
Цена: 110338 руб.
Подробнее
Н 60-15 л
Панели стеновые керамзитобетонные толщиной 40 см Серия ИИ 04-5
  • Длина 5980 мм.
  • Ширина 400 мм.
  • Высота 1480 мм.
  • Вес 3960 кг.
  • Объем бетона 3,2 м3
  • Геометрический объем 3,5402 м3
Цена: 108640 руб.
Подробнее
Н 60-15 пр
Панели стеновые керамзитобетонные толщиной 40 см Серия ИИ 04-5
  • Длина 5980 мм.
  • Ширина 400 мм.
  • Высота 1480 мм.
  • Вес 3960 кг.
  • Объем бетона 3,2 м3
  • Геометрический объем 3,5402 м3
Цена: 108640 руб.
Подробнее
Н 60-21
Панели стеновые керамзитобетонные толщиной 40 см Серия ИИ 04-5
  • Длина 5980 мм.
  • Ширина 400 мм.
  • Высота 2080 мм.
  • Вес 5640 кг.
  • Объем бетона 4,46 м3
  • Геометрический объем 4,9754 м3
Цена: 151417 руб.
Подробнее
Н 60-6
Панели стеновые керамзитобетонные толщиной 40 см Серия ИИ 04-5
  • Длина 5980 мм.
  • Ширина 400 мм.
  • Высота 580 мм.
  • Вес 1830 кг.
  • Объем бетона 1,19 м3
  • Геометрический объем 1,3874 м3
Цена: 40401 руб.
Подробнее
Н 60-21
Панели стеновые керамзитобетонные толщиной 40 см Серия ИИ 04-5
  • Длина 5980 мм.
  • Ширина 400 мм.
  • Высота 2085 мм.
  • Вес 6550 кг.
  • Объем бетона 4,56 м3
  • Геометрический объем 4,9873 м3
Цена: 154812 руб.
Подробнее
Н 60-6
Панели стеновые керамзитобетонные толщиной 40 см Серия ИИ 04-5
  • Длина 5980 мм.
  • Ширина 400 мм.
  • Высота 585 мм.
  • Вес 1860 кг.
  • Объем бетона 1,28 м3
  • Геометрический объем 1,3993 м3
Цена: 43456 руб.
Подробнее
Н 60-6 пр
Панели стеновые керамзитобетонные толщиной 40 см Серия ИИ 04-5
  • Длина 5980 мм.
  • Ширина 400 мм.
  • Высота 580 мм.
  • Вес 1830 кг.
  • Объем бетона 1,19 м3
  • Геометрический объем 1,3874 м3
Цена: 40401 руб.
Подробнее
Н 60-9
Панели стеновые керамзитобетонные толщиной 40 см Серия ИИ 04-5
  • Длина 5980 мм.
  • Ширина 400 мм.
  • Высота 880 мм.
  • Вес 2400 кг.
  • Объем бетона 1,86 м3
  • Геометрический объем 2,105 м3
Цена: 63147 руб.
Подробнее
Н 60-6 л
Панели стеновые керамзитобетонные толщиной 40 см Серия ИИ 04-5
  • Длина 5980 мм.
  • Ширина 400 мм.
  • Высота 580 мм.
  • Вес 1830 кг.
  • Объем бетона 1,19 м3
  • Геометрический объем 1,3874 м3
Цена: 40401 руб.
Подробнее
Н 60-9
Панели стеновые керамзитобетонные толщиной 40 см Серия ИИ 04-5
  • Длина 5980 мм.
  • Ширина 400 мм.
  • Высота 885 мм.
  • Вес 2800 кг.
  • Объем бетона 1,93 м3
  • Геометрический объем 2,1169 м3
Цена: 65524 руб.
Подробнее
Н 60-9 л
Панели стеновые керамзитобетонные толщиной 40 см Серия ИИ 04-5
  • Длина 5980 мм.
  • Ширина 400 мм.
  • Высота 880 мм.
  • Вес 2400 кг.
  • Объем бетона 1,86 м3
  • Геометрический объем 2,105 м3
Цена: 63147 руб.
Подробнее
Н 60-9 пр
Панели стеновые керамзитобетонные толщиной 40 см Серия ИИ 04-5
  • Длина 5980 мм.
  • Ширина 400 мм.
  • Высота 880 мм.
  • Вес 2400 кг.
  • Объем бетона 1,86 м3
  • Геометрический объем 2,105 м3
Цена: 63147 руб.
Подробнее
НУ 1-15
Панели стеновые керамзитобетонные толщиной 40 см Серия ИИ 04-5
  • Длина 560 мм.
  • Ширина 400 мм.
  • Высота 1485 мм.
  • Вес 550 кг.
  • Объем бетона 0,38 м3
  • Геометрический объем 0,3326 м3
Цена: 12901 руб.
Подробнее
НУ 1-12
Панели стеновые керамзитобетонные толщиной 40 см Серия ИИ 04-5
  • Длина 560 мм.
  • Ширина 400 мм.
  • Высота 1185 мм.
  • Вес 440 кг.
  • Объем бетона 0,3 м3
  • Геометрический объем 0,2654 м3
Цена: 10185 руб.
Подробнее
НУ 1-18
Панели стеновые керамзитобетонные толщиной 40 см Серия ИИ 04-5
  • Длина 560 мм.
  • Ширина 400 мм.
  • Высота 1785 мм.
  • Вес 660 кг.
  • Объем бетона 0,5 м3
  • Геометрический объем 0,3998 м3
Цена: 16975 руб.
Подробнее
НУ 1-21
Панели стеновые керамзитобетонные толщиной 40 см Серия ИИ 04-5
  • Длина 560 мм.
  • Ширина 400 мм.
  • Высота 2085 мм.
  • Вес 770 кг.
  • Объем бетона 0,531 м3
  • Геометрический объем 0,467 м3
Цена: 18027 руб.
Подробнее
НУ 2-15
Панели стеновые керамзитобетонные толщиной 40 см Серия ИИ 04-5
  • Длина 610 мм.
  • Ширина 400 мм.
  • Высота 1485 мм.
  • Вес 640 кг.
  • Объем бетона 0,433 м3
  • Геометрический объем 0,3623 м3
Цена: 14700 руб.
Подробнее
НУ 1-9
Панели стеновые керамзитобетонные толщиной 40 см Серия ИИ 04-5
  • Длина 560 мм.
  • Ширина 400 мм.
  • Высота 885 мм.
  • Вес 343 кг.
  • Объем бетона 0,236 м3
  • Геометрический объем 0,1982 м3
Цена: 8012 руб.
Подробнее
НУ 1-6
Панели стеновые керамзитобетонные толщиной 40 см Серия ИИ 04-5
  • Длина 560 мм.
  • Ширина 400 мм.
  • Высота 585 мм.
  • Вес 231 кг.
  • Объем бетона 0,166 м3
  • Геометрический объем 0,131 м3
Цена: 5636 руб.
Подробнее
НУ 2-12
Панели стеновые керамзитобетонные толщиной 40 см Серия ИИ 04-5
  • Длина 610 мм.
  • Ширина 400 мм.
  • Высота 1185 мм.
  • Вес 470 кг.
  • Объем бетона 0,346 м3
  • Геометрический объем 0,2891 м3
Цена: 11747 руб.
Подробнее
НУ 2-18
Панели стеновые керамзитобетонные толщиной 40 см Серия ИИ 04-5
  • Длина 610 мм.
  • Ширина 400 мм.
  • Высота 1785 мм.
  • Вес 760 кг.
  • Объем бетона 0,521 м3
  • Геометрический объем 0,4355 м3
Цена: 17688 руб.
Подробнее
НУ 2-6
Панели стеновые керамзитобетонные толщиной 40 см Серия ИИ 04-5
  • Длина 610 мм.
  • Ширина 400 мм.
  • Высота 585 мм.
  • Вес 260 кг.
  • Объем бетона 0,17 м3
  • Геометрический объем 0,1427 м3
Цена: 5772 руб.
Подробнее
НУ 2-21
Панели стеновые керамзитобетонные толщиной 40 см Серия ИИ 04-5
  • Длина 610 мм.
  • Ширина 400 мм.
  • Высота 2085 мм.
  • Вес 880 кг.
  • Объем бетона 0,608 м3
  • Геометрический объем 0,5087 м3
Цена: 20642 руб.
Подробнее
НУ 3-12
Панели стеновые керамзитобетонные толщиной 40 см Серия ИИ 04-5
  • Длина 720 мм.
  • Ширина 400 мм.
  • Высота 1185 мм.
  • Вес 700 кг.
  • Объем бетона 0,492 м3
  • Геометрический объем 0,3413 м3
Цена: 16703 руб.
Подробнее
НУ 3-21
Панели стеновые керамзитобетонные толщиной 40 см Серия ИИ 04-5
  • Длина 720 мм.
  • Ширина 400 мм.
  • Высота 2085 мм.
  • Вес 1220 кг.
  • Объем бетона 0,867 м3
  • Геометрический объем 0,6005 м3
Цена: 29435 руб.
Подробнее
НУ 2-9
Панели стеновые керамзитобетонные толщиной 40 см Серия ИИ 04-5
  • Длина 610 мм.
  • Ширина 400 мм.
  • Высота 885 мм.
  • Вес 380 кг.
  • Объем бетона 0,257 м3
  • Геометрический объем 0,2159 м3
Цена: 8725 руб.
Подробнее
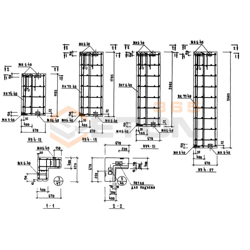
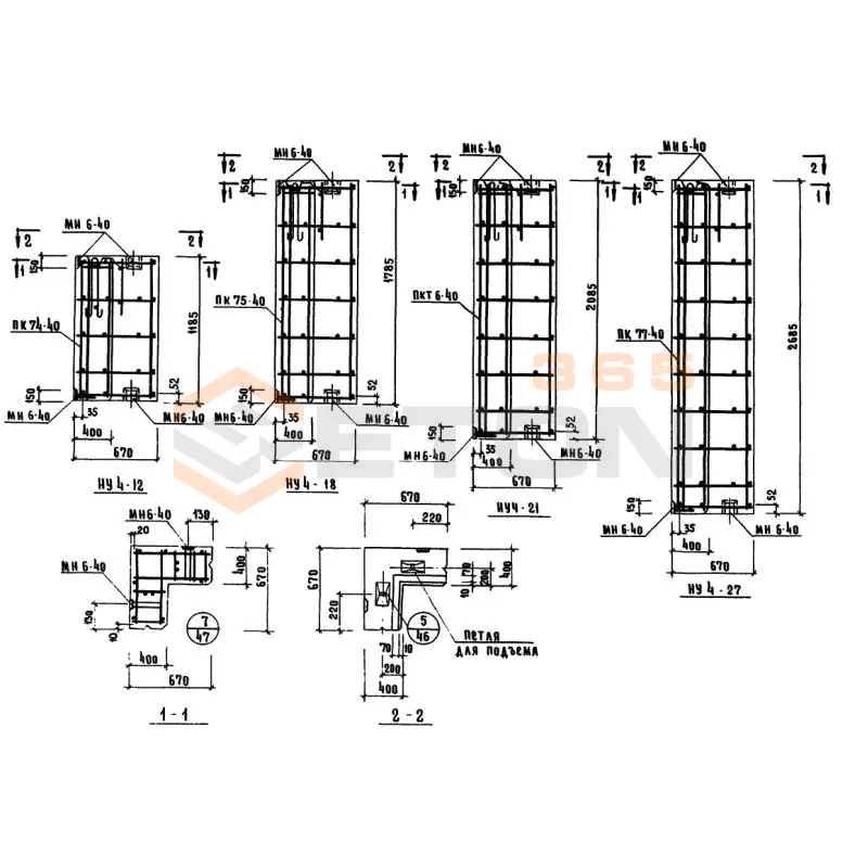
НУ 4-18
Панели стеновые керамзитобетонные толщиной 40 см Серия ИИ 04-5
  • Длина 670 мм.
  • Ширина 400 мм.
  • Высота 1785 мм.
  • Вес 850 кг.
  • Объем бетона 0,601 м3
  • Геометрический объем 0,4784 м3
Цена: 20404 руб.
Подробнее
НУ 4-12
Панели стеновые керамзитобетонные толщиной 40 см Серия ИИ 04-5
  • Длина 670 мм.
  • Ширина 400 мм.
  • Высота 1185 мм.
  • Вес 570 кг.
  • Объем бетона 0,399 м3
  • Геометрический объем 0,3176 м3
Цена: 13546 руб.
Подробнее
НУ 3-27
Панели стеновые керамзитобетонные толщиной 40 см Серия ИИ 04-5
  • Длина 720 мм.
  • Ширина 400 мм.
  • Высота 2685 мм.
  • Вес 1540 кг.
  • Объем бетона 1,116 м3
  • Геометрический объем 0,7733 м3
Цена: 37888 руб.
Подробнее

Уведомление о файлах cookie

Мы используем файлы cookie для улучшения вашего опыта просмотра и анализа трафика. Нажимая "Принять все", вы соглашаетесь с нашей политикой конфиденциальности и политикой обработки файлов cookie.

Дзен Телеграм Вконтакте vk