mobile_sound +7 (930) 655-55-90

Железобетонные опоры линий электропередачи. Рабочие чертежи (Серия ИИ 01-02)

Поделиться:
Поделиться:

Документ Серия ИИ 01-02 описывает область применения, номенклатуру и ключевые требования, опираясь на действующие нормы и практику проектирования. Среди многообразия типовых строительных каталогов, содержащих ключевые характеристики различных конструкций, представлена Серия ИИ 01-02, отражающая сведения об индустриальных изделиях, используемых при возведении 2 и 5 этажных жилых домов из камня. Номенклатурный перечень регламента достаточно разнообразен, в нем можно встретить ребристые плиты, многопустотные панели, прогоны, перемычки, элементы лестничной клетки и другие материалы. Для охвата большого числа типовых проектов конструкции запроектированы в нескольких вариантах геометрических пропорций с различными типами несущей способности, которые позволяют сопротивляться всевозможным воздействующим нагрузкам.

Файлы для скачивания:
picture_as_pdf

5249.pdf

4,657.3 KB

скачать
picture_as_pdf

5251.pdf

1,040.1 KB

скачать
picture_as_pdf

5250.pdf

9,504.4 KB

скачать
Товары Серия ИИ 01-02 (60)
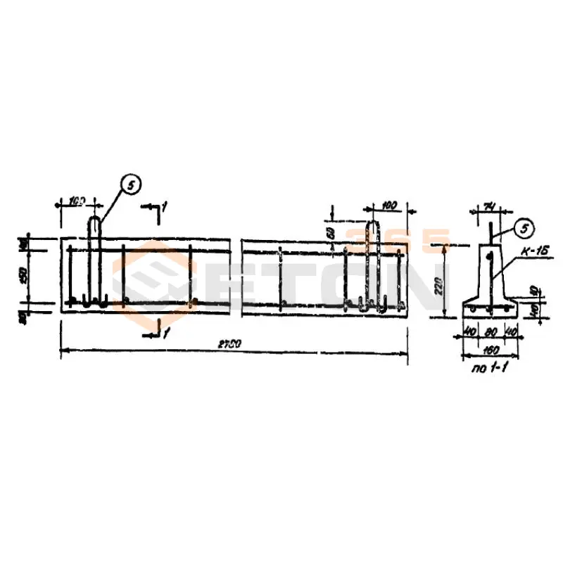
К 3 (ИИ 01-02)
Балки подкосоурные Серия ИИ 01-02
  • Длина 3100 мм.
  • Ширина 180 мм.
  • Высота 320 мм.
  • Вес 418 кг.
  • Объем бетона 0,167 м3
  • Геометрический объем 0,1786 м3
Цена: 7128 руб.
Подробнее
К 4 (ИИ 01-02)
Балки подкосоурные Серия ИИ 01-02
  • Длина 2900 мм.
  • Ширина 180 мм.
  • Высота 180 мм.
  • Вес 330 кг.
  • Объем бетона 0,132 м3
  • Геометрический объем 0,094 м3
Цена: 5634 руб.
Подробнее
БА 1 (ИИ 01-02)
Балки таврового сечения с нижней полкой Серия ИИ 01-02
  • Длина 2780 мм.
  • Ширина 160 мм.
  • Высота 220 мм.
  • Вес 150 кг.
  • Объем бетона 0,06 м3
  • Геометрический объем 0,0979 м3
Цена: 3795 руб.
Подробнее
БА 2 (ИИ 01-02)
Балки таврового сечения с нижней полкой Серия ИИ 01-02
  • Длина 2980 мм.
  • Ширина 160 мм.
  • Высота 220 мм.
  • Вес 163 кг.
  • Объем бетона 0,065 м3
  • Геометрический объем 0,1049 м3
Цена: 4111 руб.
Подробнее
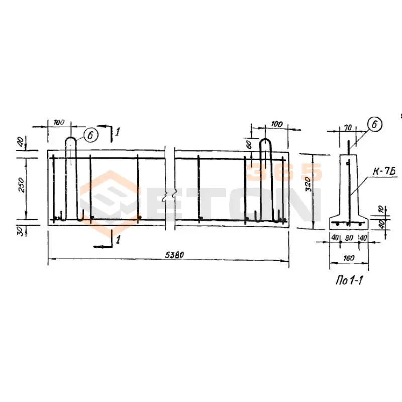
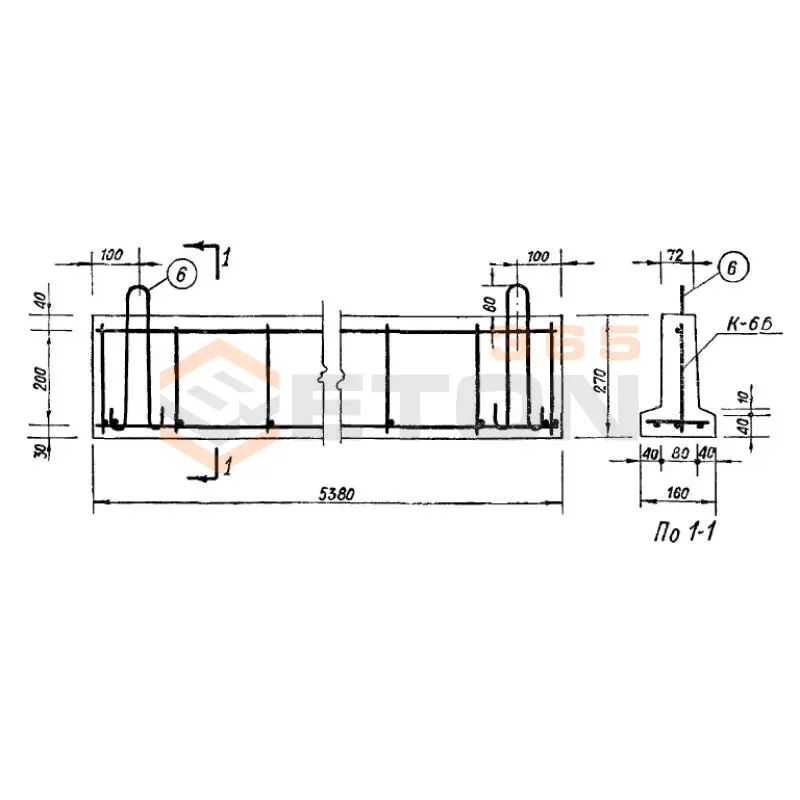
БА 6 (ИИ 01-02)
Балки таврового сечения с нижней полкой Серия ИИ 01-02
  • Длина 5380 мм.
  • Ширина 160 мм.
  • Высота 270 мм.
  • Вес 318 кг.
  • Объем бетона 0,127 м3
  • Геометрический объем 0,2324 м3
Цена: 8032 руб.
Подробнее
БА 3 (ИИ 01-02)
Балки таврового сечения с нижней полкой Серия ИИ 01-02
  • Длина 3180 мм.
  • Ширина 160 мм.
  • Высота 220 мм.
  • Вес 175 кг.
  • Объем бетона 0,07 м3
  • Геометрический объем 0,1119 м3
Цена: 4427 руб.
Подробнее
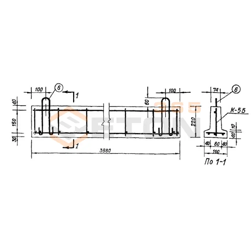
БА 5 (ИИ 01-02)
Балки таврового сечения с нижней полкой Серия ИИ 01-02
  • Длина 3980 мм.
  • Ширина 160 мм.
  • Высота 220 мм.
  • Вес 220 кг.
  • Объем бетона 0,088 м3
  • Геометрический объем 0,1401 м3
Цена: 5565 руб.
Подробнее
БА 4 (ИИ 01-02)
Балки таврового сечения с нижней полкой Серия ИИ 01-02
  • Длина 3580 мм.
  • Ширина 160 мм.
  • Высота 220 мм.
  • Вес 200 кг.
  • Объем бетона 0,08 м3
  • Геометрический объем 0,126 м3
Цена: 5060 руб.
Подробнее
ББ 6 (ИИ 01-02)
Балки таврового сечения с нижней полкой Серия ИИ 01-02
  • Длина 5380 мм.
  • Ширина 160 мм.
  • Высота 320 мм.
  • Вес 375 кг.
  • Объем бетона 0,15 м3
  • Геометрический объем 0,2755 м3
Цена: 9487 руб.
Подробнее
Ф 10 (ИИ 01-02)
Блоки ленточных фундаментов Серия ИИ 01-02
  • Длина 2780 мм.
  • Ширина 1000 мм.
  • Высота 300 мм.
  • Вес 1870 кг.
  • Объем бетона 0,75 м3
  • Геометрический объем 0,834 м3
Цена: 7275 руб.
Подробнее
Ф 14 (ИИ 01-02)
Блоки ленточных фундаментов Серия ИИ 01-02
  • Длина 2380 мм.
  • Ширина 1400 мм.
  • Высота 300 мм.
  • Вес 2300 кг.
  • Объем бетона 0,92 м3
  • Геометрический объем 0,9996 м3
Цена: 8924 руб.
Подробнее
Ф 12 (ИИ 01-02)
Блоки ленточных фундаментов Серия ИИ 01-02
  • Длина 2780 мм.
  • Ширина 1200 мм.
  • Высота 300 мм.
  • Вес 2320 кг.
  • Объем бетона 0,93 м3
  • Геометрический объем 1,0008 м3
Цена: 9021 руб.
Подробнее
Ф 16 (ИИ 01-02)
Блоки ленточных фундаментов Серия ИИ 01-02
  • Длина 2380 мм.
  • Ширина 1600 мм.
  • Высота 300 мм.
  • Вес 2550 кг.
  • Объем бетона 1,02 м3
  • Геометрический объем 1,1424 м3
Цена: 9894 руб.
Подробнее
Ф 24 (ИИ 01-02)
Блоки ленточных фундаментов Серия ИИ 01-02
  • Длина 1180 мм.
  • Ширина 2400 мм.
  • Высота 400 мм.
  • Вес 2280 кг.
  • Объем бетона 0,92 м3
  • Геометрический объем 1,1328 м3
Цена: 8924 руб.
Подробнее
Ф 20 (ИИ 01-02)
Блоки ленточных фундаментов Серия ИИ 01-02
  • Длина 1180 мм.
  • Ширина 2000 мм.
  • Высота 400 мм.
  • Вес 1980 кг.
  • Объем бетона 0,79 м3
  • Геометрический объем 0,944 м3
Цена: 7663 руб.
Подробнее
Ф 28 (ИИ 01-02)
Блоки ленточных фундаментов Серия ИИ 01-02
  • Длина 1180 мм.
  • Ширина 2800 мм.
  • Высота 400 мм.
  • Вес 2600 кг.
  • Объем бетона 1,04 м3
  • Геометрический объем 1,3216 м3
Цена: 10088 руб.
Подробнее
Ф 32 (ИИ 01-02)
Блоки ленточных фундаментов Серия ИИ 01-02
  • Длина 1180 мм.
  • Ширина 3200 мм.
  • Высота 400 мм.
  • Вес 2920 кг.
  • Объем бетона 11,7 м3
  • Геометрический объем 1,5104 м3
Цена: 113490 руб.
Подробнее
ФБ 10 (ИИ 01-02)
Блоки ленточных фундаментов Серия ИИ 01-02
  • Длина 1980 мм.
  • Ширина 1000 мм.
  • Высота 300 мм.
  • Вес 1450 кг.
  • Объем бетона 0,58 м3
  • Геометрический объем 0,594 м3
Цена: 5626 руб.
Подробнее
ФБ 8 (ИИ 01-02)
Блоки ленточных фундаментов Серия ИИ 01-02
  • Длина 1980 мм.
  • Ширина 800 мм.
  • Высота 300 мм.
  • Вес 1150 кг.
  • Объем бетона 0,463 м3
  • Геометрический объем 0,4752 м3
Цена: 4491 руб.
Подробнее
ФД 12 (ИИ 01-02)
Блоки ленточных фундаментов Серия ИИ 01-02
  • Длина 380 мм.
  • Ширина 1200 мм.
  • Высота 300 мм.
  • Вес 300 кг.
  • Объем бетона 0,12 м3
  • Геометрический объем 0,1368 м3
Цена: 1164 руб.
Подробнее
ФД 16 (ИИ 01-02)
Блоки ленточных фундаментов Серия ИИ 01-02
  • Длина 380 мм.
  • Ширина 1600 мм.
  • Высота 300 мм.
  • Вес 400 кг.
  • Объем бетона 0,16 м3
  • Геометрический объем 0,1824 м3
Цена: 1552 руб.
Подробнее
СП 5 (ИИ 01-02)
Блоки стен подвала Серия ИИ 01-02
  • Длина 2380 мм.
  • Ширина 500 мм.
  • Высота 580 мм.
  • Вес 1380 кг.
  • Объем бетона 0,576 м3
  • Геометрический объем 0,6902 м3
Цена: 5587 руб.
Подробнее
СП 8 (ИИ 01-02)
Блоки стен подвала Серия ИИ 01-02
  • Длина 2380 мм.
  • Ширина 800 мм.
  • Высота 580 мм.
  • Вес 2180 кг.
  • Объем бетона 0,906 м3
  • Геометрический объем 1,1043 м3
Цена: 8788 руб.
Подробнее
СПД 5 (ИИ 01-02)
Блоки стен подвала Серия ИИ 01-02
  • Длина 380 мм.
  • Ширина 500 мм.
  • Высота 580 мм.
  • Вес 215 кг.
  • Объем бетона 0,09 м3
  • Геометрический объем 0,1102 м3
Цена: 873 руб.
Подробнее
СП 4 (ИИ 01-02)
Блоки стен подвала Серия ИИ 01-02
  • Длина 2380 мм.
  • Ширина 400 мм.
  • Высота 580 мм.
  • Вес 1130 кг.
  • Объем бетона 0,47 м3
  • Геометрический объем 0,5522 м3
Цена: 4559 руб.
Подробнее
СП 6 (ИИ 01-02)
Блоки стен подвала Серия ИИ 01-02
  • Длина 2380 мм.
  • Ширина 600 мм.
  • Высота 580 мм.
  • Вес 1625 кг.
  • Объем бетона 0,677 м3
  • Геометрический объем 0,8282 м3
Цена: 6567 руб.
Подробнее
СПД 4 (ИИ 01-02)
Блоки стен подвала Серия ИИ 01-02
  • Длина 380 мм.
  • Ширина 400 мм.
  • Высота 580 мм.
  • Вес 175 кг.
  • Объем бетона 0,072 м3
  • Геометрический объем 0,0882 м3
Цена: 698 руб.
Подробнее
СПД 6 (ИИ 01-02)
Блоки стен подвала Серия ИИ 01-02
  • Длина 380 мм.
  • Ширина 600 мм.
  • Высота 580 мм.
  • Вес 245 кг.
  • Объем бетона 0,103 м3
  • Геометрический объем 0,1322 м3
Цена: 999 руб.
Подробнее
СПД 8 (ИИ 01-02)
Блоки стен подвала Серия ИИ 01-02
  • Длина 380 мм.
  • Ширина 800 мм.
  • Высота 580 мм.
  • Вес 315 кг.
  • Объем бетона 0,132 м3
  • Геометрический объем 0,1763 м3
Цена: 1280 руб.
Подробнее
ФП 20-16 (ИИ 01-02)
Блоки фундаментов под столбы Серия ИИ 01-02
  • Длина 2000 мм.
  • Ширина 1600 мм.
  • Высота 400 мм.
  • Вес 2425 кг.
  • Объем бетона 0,97 м3
  • Геометрический объем 1,28 м3
Цена: 15995 руб.
Подробнее
ФП 22-20 (ИИ 01-02)
Блоки фундаментов под столбы Серия ИИ 01-02
  • Длина 2200 мм.
  • Ширина 2000 мм.
  • Высота 400 мм.
  • Вес 3250 кг.
  • Объем бетона 1,3 м3
  • Геометрический объем 1,76 м3
Цена: 21437 руб.
Подробнее
ФП 24-8 (ИИ 01-02)
Блоки фундаментов под столбы Серия ИИ 01-02
  • Длина 2400 мм.
  • Ширина 800 мм.
  • Высота 580 мм.
  • Вес 2382 кг.
  • Объем бетона 0,94 м3
  • Геометрический объем 1,1136 м3
Цена: 15501 руб.
Подробнее
Л 1 (ИИ 01-02)
Лестничные марши Серия ИИ 01-02
  • Длина 3880 мм.
  • Ширина 1300 мм.
  • Высота 307 мм.
  • Вес 1600 кг.
  • Объем бетона 0,64 м3
  • Геометрический объем 1,5485 м3
Цена: 13658 руб.
Подробнее
Л 22 (ИИ 01-02)
Лестничные марши Серия ИИ 01-02
  • Длина 3000 мм.
  • Ширина 1300 мм.
  • Высота 1650 мм.
  • Вес 1450 кг.
  • Объем бетона 0,58 м3
  • Геометрический объем 6,435 м3
Цена: 12377 руб.
Подробнее
Л 2 (ИИ 01-02)
Лестничные марши Серия ИИ 01-02
  • Длина 3555 мм.
  • Ширина 1200 мм.
  • Высота 318 мм.
  • Вес 1375 кг.
  • Объем бетона 0,55 м3
  • Геометрический объем 1,3566 м3
Цена: 11737 руб.
Подробнее
Л 23 (ИИ 01-02)
Лестничные марши Серия ИИ 01-02
  • Длина 2610 мм.
  • Ширина 1200 мм.
  • Высота 1650 мм.
  • Вес 1280 кг.
  • Объем бетона 0,511 м3
  • Геометрический объем 5,1678 м3
Цена: 10905 руб.
Подробнее
Л 25 (ИИ 01-02)
Лестничные площадки Серия ИИ 01-02
  • Длина 3100 мм.
  • Ширина 1145 мм.
  • Высота 350 мм.
  • Вес 985 кг.
  • Объем бетона 0,342 м3
  • Геометрический объем 1,2423 м3
Цена: 8294 руб.
Подробнее
Л 26 (ИИ 01-02)
Лестничные площадки Серия ИИ 01-02
  • Длина 2900 мм.
  • Ширина 1750 мм.
  • Высота 350 мм.
  • Вес 925 кг.
  • Объем бетона 0,319 м3
  • Геометрический объем 1,7763 м3
Цена: 7736 руб.
Подробнее
Л 6 (ИИ 01-02)
Лестничные площадки Серия ИИ 01-02
  • Длина 2900 мм.
  • Ширина 1390 мм.
  • Высота 225 мм.
  • Вес 950 кг.
  • Объем бетона 0,38 м3
  • Геометрический объем 0,907 м3
Цена: 9215 руб.
Подробнее
Л 5 (ИИ 01-02)
Лестничные площадки Серия ИИ 01-02
  • Длина 3100 мм.
  • Ширина 1390 мм.
  • Высота 225 мм.
  • Вес 1100 кг.
  • Объем бетона 0,44 м3
  • Геометрический объем 0,9695 м3
Цена: 10670 руб.
Подробнее
Л 7 (ИИ 01-02)
Лестничные площадки Серия ИИ 01-02
  • Длина 2900 мм.
  • Ширина 1040 мм.
  • Высота 225 мм.
  • Вес 775 кг.
  • Объем бетона 0,31 м3
  • Геометрический объем 0,6786 м3
Цена: 7518 руб.
Подробнее
В 34 (ИИ 01-02)
Вкладыши Серия ИИ 01-02
  • Длина 340 мм.
  • Ширина 250 мм.
  • Высота 115 мм.
  • Вес 15 кг.
  • Объем бетона 0,006 м3
  • Геометрический объем 0,0098 м3
Цена: 204 руб.
Подробнее
В 41 (ИИ 01-02)
Вкладыши Серия ИИ 01-02
  • Длина 340 мм.
  • Ширина 250 мм.
  • Высота 130 мм.
  • Вес 17,5 кг.
  • Объем бетона 0,007 м3
  • Геометрический объем 0,0111 м3
Цена: 238 руб.
Подробнее
В 36 (ИИ 01-02)
Вкладыши Серия ИИ 01-02
  • Длина 1480 мм.
  • Ширина 220 мм.
  • Высота 265 мм.
  • Вес 167,5 кг.
  • Объем бетона 0,067 м3
  • Геометрический объем 0,0863 м3
Цена: 2275 руб.
Подробнее
В 43 (ИИ 01-02)
Вкладыши Серия ИИ 01-02
  • Длина 1380 мм.
  • Ширина 220 мм.
  • Высота 265 мм.
  • Вес 177 кг.
  • Объем бетона 0,071 м3
  • Геометрический объем 0,0805 м3
Цена: 2410 руб.
Подробнее
Л 10 (ИИ 01-02)
Вкладыши Серия ИИ 01-02
  • Длина 1445 мм.
  • Ширина 260 мм.
  • Высота 163 мм.
  • Вес 133 кг.
  • Объем бетона 0,053 м3
  • Геометрический объем 0,0612 м3
Цена: 1799 руб.
Подробнее
Л 5 (ИИ 01-02)
Вкладыши Серия ИИ 01-02
  • Длина 1545 мм.
  • Ширина 260 мм.
  • Высота 148 мм.
  • Вес 135 кг.
  • Объем бетона 0,054 м3
  • Геометрический объем 0,0595 м3
Цена: 1833 руб.
Подробнее
К 1 (ИИ 01-02)
Косоуры Серия ИИ 01-02
  • Длина 3895 мм.
  • Ширина 120 мм.
  • Высота 200 мм.
  • Вес 231 кг.
  • Объем бетона 0,093 м3
  • Геометрический объем 0,0935 м3
Цена: 3608 руб.
Подробнее
К 2 (ИИ 01-02)
Косоуры Серия ИИ 01-02
  • Длина 3534 мм.
  • Ширина 120 мм.
  • Высота 180 мм.
  • Вес 190 кг.
  • Объем бетона 0,076 м3
  • Геометрический объем 0,0763 м3
Цена: 2949 руб.
Подробнее
Л 2 (ИИ 01-02)
Проступи Серия ИИ 01-02
  • Длина 1395 мм.
  • Ширина 260 мм.
  • Высота 148 мм.
  • Вес 37 кг.
  • Объем бетона 0,0146 м3
  • Геометрический объем 0,0537 м3
Цена: 510 руб.
Подробнее
Л 3 (ИИ 01-02)
Проступи Серия ИИ 01-02
  • Длина 1300 мм.
  • Ширина 230 мм.
  • Высота 30 мм.
  • Вес 23 кг.
  • Объем бетона 0,009 м3
  • Геометрический объем 0,009 м3
Цена: 314 руб.
Подробнее
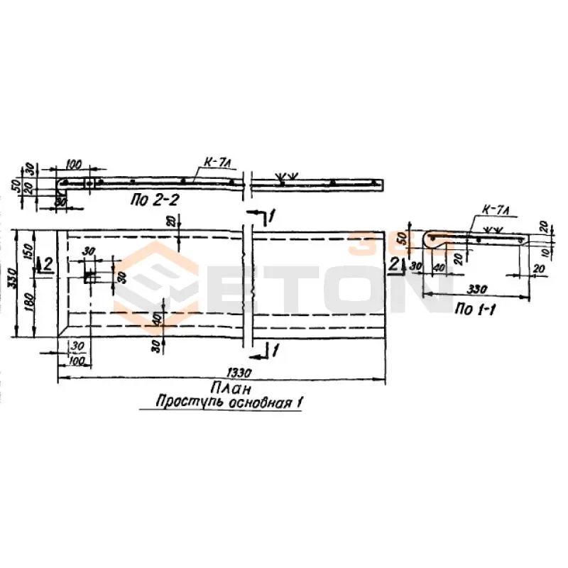
Л 1 (ИИ 01-02)
Проступи Серия ИИ 01-02
  • Длина 1330 мм.
  • Ширина 330 мм.
  • Высота 50 мм.
  • Вес 37 кг.
  • Объем бетона 0,0147 м3
  • Геометрический объем 0,0219 м3
Цена: 513 руб.
Подробнее
Л 4 (ИИ 01-02)
Проступи Серия ИИ 01-02
  • Длина 1250 мм.
  • Ширина 260 мм.
  • Высота 30 мм.
  • Вес 25 кг.
  • Объем бетона 0,01 м3
  • Геометрический объем 0,0097 м3
Цена: 349 руб.
Подробнее
Л 6 (ИИ 01-02)
Проступи Серия ИИ 01-02
  • Длина 1230 мм.
  • Ширина 320 мм.
  • Высота 50 мм.
  • Вес 33 кг.
  • Объем бетона 0,013 м3
  • Геометрический объем 0,0197 м3
Цена: 454 руб.
Подробнее
Л 7 (ИИ 01-02)
Проступи Серия ИИ 01-02
  • Длина 1295 мм.
  • Ширина 260 мм.
  • Высота 153 мм.
  • Вес 33 кг.
  • Объем бетона 0,013 м3
  • Геометрический объем 0,0515 м3
Цена: 454 руб.
Подробнее
Л 8 (ИИ 01-02)
Проступи Серия ИИ 01-02
  • Длина 1200 мм.
  • Ширина 230 мм.
  • Высота 30 мм.
  • Вес 20 кг.
  • Объем бетона 0,008 м3
  • Геометрический объем 0,0083 м3
Цена: 279 руб.
Подробнее
Л 9 (ИИ 01-02)
Проступи Серия ИИ 01-02
  • Длина 1150 мм.
  • Ширина 260 мм.
  • Высота 50 мм.
  • Вес 25 кг.
  • Объем бетона 0,01 м3
  • Геометрический объем 0,0149 м3
Цена: 349 руб.
Подробнее
П 31 (ИИ 01-02)
Проступи Серия ИИ 01-02
  • Длина 1330 мм.
  • Ширина 330 мм.
  • Высота 30 мм.
  • Вес 37 кг.
  • Объем бетона 0,015 м3
  • Геометрический объем 0,0132 м3
Цена: 524 руб.
Подробнее
П 32 (ИИ 01-02)
Проступи Серия ИИ 01-02
  • Длина 1210 мм.
  • Ширина 250 мм.
  • Высота 30 мм.
  • Вес 27,5 кг.
  • Объем бетона 0,011 м3
  • Геометрический объем 0,0091 м3
Цена: 384 руб.
Подробнее
П 33 (ИИ 01-02)
Проступи Серия ИИ 01-02
  • Длина 1210 мм.
  • Ширина 220 мм.
  • Высота 30 мм.
  • Вес 20 кг.
  • Объем бетона 0,008 м3
  • Геометрический объем 0,008 м3
Цена: 279 руб.
Подробнее

Уведомление о файлах cookie

Мы используем файлы cookie для улучшения вашего опыта просмотра и анализа трафика. Нажимая "Принять все", вы соглашаетесь с нашей политикой конфиденциальности и политикой обработки файлов cookie.

Дзен Телеграм Вконтакте vk