mobile_sound +7 (930) 655-55-90

Железобетонные опоры линий электропередачи. Рабочие чертежи (Серия ИИ 01-02)

Поделиться:
Поделиться:

Документ Серия ИИ 01-02 описывает область применения, номенклатуру и ключевые требования, опираясь на действующие нормы и практику проектирования. Среди многообразия типовых строительных каталогов, содержащих ключевые характеристики различных конструкций, представлена Серия ИИ 01-02, отражающая сведения об индустриальных изделиях, используемых при возведении 2 и 5 этажных жилых домов из камня. Номенклатурный перечень регламента достаточно разнообразен, в нем можно встретить ребристые плиты, многопустотные панели, прогоны, перемычки, элементы лестничной клетки и другие материалы. Для охвата большого числа типовых проектов конструкции запроектированы в нескольких вариантах геометрических пропорций с различными типами несущей способности, которые позволяют сопротивляться всевозможным воздействующим нагрузкам.

Файлы для скачивания:
picture_as_pdf

5249.pdf

4,657.3 KB

скачать
picture_as_pdf

5251.pdf

1,040.1 KB

скачать
picture_as_pdf

5250.pdf

9,504.4 KB

скачать
Товары Серия ИИ 01-02 (60)
ПОТ 60-12 (ИИ 01-02)
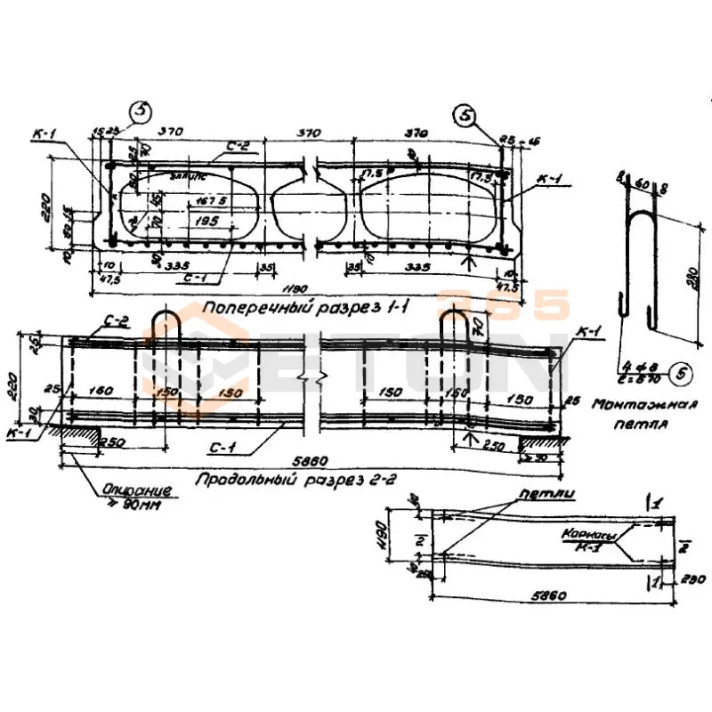
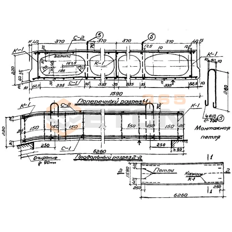
Панели с овальными пустотами Серия ИИ 01-02
  • Длина 5860 мм.
  • Ширина 1190 мм.
  • Высота 220 мм.
  • Вес 1625 кг.
  • Объем бетона 0,65 м3
  • Геометрический объем 1,5341 м3
Цена: 13871 руб.
Подробнее
ПОТ 60-10 (ИИ 01-02)
Панели с овальными пустотами Серия ИИ 01-02
  • Длина 5860 мм.
  • Ширина 990 мм.
  • Высота 220 мм.
  • Вес 1395 кг.
  • Объем бетона 0,558 м3
  • Геометрический объем 1,2763 м3
Цена: 11908 руб.
Подробнее
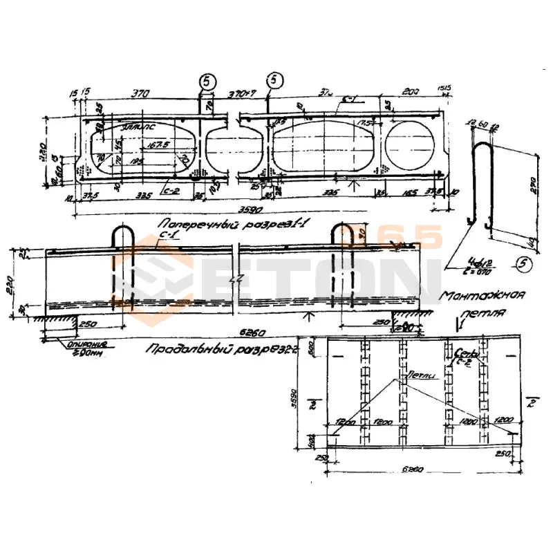
ПОНТ 64-36 (ИИ 01-02)
Панели с овальными пустотами Серия ИИ 01-02
  • Длина 6260 мм.
  • Ширина 3590 мм.
  • Высота 220 мм.
  • Вес 4910 кг.
  • Объем бетона 2,004 м3
  • Геометрический объем 4,9441 м3
Цена: 42765 руб.
Подробнее
ПОТ 60-18 (ИИ 01-02)
Панели с овальными пустотами Серия ИИ 01-02
  • Длина 5860 мм.
  • Ширина 1790 мм.
  • Высота 220 мм.
  • Вес 2523 кг.
  • Объем бетона 1,009 м3
  • Геометрический объем 2,3077 м3
Цена: 21532 руб.
Подробнее
ПОТ 60-34 (ИИ 01-02)
Панели с овальными пустотами Серия ИИ 01-02
  • Длина 5860 мм.
  • Ширина 3390 мм.
  • Высота 220 мм.
  • Вес 4358 кг.
  • Объем бетона 1,743 м3
  • Геометрический объем 4,3704 м3
Цена: 37196 руб.
Подробнее
ПОТ 60-36 (ИИ 01-02)
Панели с овальными пустотами Серия ИИ 01-02
  • Длина 5860 мм.
  • Ширина 3590 мм.
  • Высота 220 мм.
  • Вес 4690 кг.
  • Объем бетона 1,876 м3
  • Геометрический объем 4,6282 м3
Цена: 40034 руб.
Подробнее
ПОТ 64-10 (ИИ 01-02)
Панели с овальными пустотами Серия ИИ 01-02
  • Длина 6260 мм.
  • Ширина 990 мм.
  • Высота 220 мм.
  • Вес 1487 кг.
  • Объем бетона 0,595 м3
  • Геометрический объем 1,3634 м3
Цена: 12697 руб.
Подробнее
ПОТ 64-12 (ИИ 01-02)
Панели с овальными пустотами Серия ИИ 01-02
  • Длина 6250 мм.
  • Ширина 1190 мм.
  • Высота 220 мм.
  • Вес 1736 кг.
  • Объем бетона 0,694 м3
  • Геометрический объем 1,6362 м3
Цена: 14810 руб.
Подробнее
ПОТ 64-16 (ИИ 01-02)
Панели с овальными пустотами Серия ИИ 01-02
  • Длина 6260 мм.
  • Ширина 1590 мм.
  • Высота 220 мм.
  • Вес 2338 кг.
  • Объем бетона 0,935 м3
  • Геометрический объем 2,1897 м3
Цена: 19953 руб.
Подробнее
ПОТ 64-18 (ИИ 01-02)
Панели с овальными пустотами Серия ИИ 01-02
  • Длина 6260 мм.
  • Ширина 1790 мм.
  • Высота 220 мм.
  • Вес 2690 кг.
  • Объем бетона 1,076 м3
  • Геометрический объем 2,4652 м3
Цена: 22962 руб.
Подробнее
ПОТ 64-36 (ИИ 01-02)
Панели с овальными пустотами Серия ИИ 01-02
  • Длина 6260 мм.
  • Ширина 3590 мм.
  • Высота 220 мм.
  • Вес 5015 кг.
  • Объем бетона 2,004 м3
  • Геометрический объем 4,9441 м3
Цена: 42765 руб.
Подробнее
ПОТ 64-34 (ИИ 01-02)
Панели с овальными пустотами Серия ИИ 01-02
  • Длина 6260 мм.
  • Ширина 3390 мм.
  • Высота 220 мм.
  • Вес 4656 кг.
  • Объем бетона 1,862 м3
  • Геометрический объем 4,6687 м3
Цена: 39735 руб.
Подробнее
КА 1 (ИИ 01-02)
Панели ребристые Серия ИИ 01-02
  • Длина 2880 мм.
  • Ширина 1595 мм.
  • Высота 160 мм.
  • Вес 745 кг.
  • Объем бетона 0,298 м3
  • Геометрический объем 0,735 м3
Цена: 10117 руб.
Подробнее
КА 2 (ИИ 01-02)
Панели ребристые Серия ИИ 01-02
  • Длина 2980 мм.
  • Ширина 1595 мм.
  • Высота 160 мм.
  • Вес 783 кг.
  • Объем бетона 0,313 м3
  • Геометрический объем 0,7605 м3
Цена: 10626 руб.
Подробнее
КА 4 (ИИ 01-02)
Панели ребристые Серия ИИ 01-02
  • Длина 3180 мм.
  • Ширина 1595 мм.
  • Высота 160 мм.
  • Вес 813 кг.
  • Объем бетона 0,325 м3
  • Геометрический объем 0,8115 м3
Цена: 11034 руб.
Подробнее
КА 5 (ИИ 01-02)
Панели ребристые Серия ИИ 01-02
  • Длина 3580 мм.
  • Ширина 1595 мм.
  • Высота 220 мм.
  • Вес 1075 кг.
  • Объем бетона 0,43 м3
  • Геометрический объем 1,2562 м3
Цена: 14599 руб.
Подробнее
КА 3 (ИИ 01-02)
Панели ребристые Серия ИИ 01-02
  • Длина 3080 мм.
  • Ширина 1595 мм.
  • Высота 160 мм.
  • Вес 800 кг.
  • Объем бетона 0,92 м3
  • Геометрический объем 0,786 м3
Цена: 31234 руб.
Подробнее
КА 6 (ИИ 01-02)
Панели ребристые Серия ИИ 01-02
  • Длина 3980 мм.
  • Ширина 1595 мм.
  • Высота 220 мм.
  • Вес 1200 кг.
  • Объем бетона 0,48 м3
  • Геометрический объем 1,3966 м3
Цена: 16296 руб.
Подробнее
КБ 3 (ИИ 01-02)
Панели ребристые Серия ИИ 01-02
  • Длина 3080 мм.
  • Ширина 1595 мм.
  • Высота 220 мм.
  • Вес 950 кг.
  • Объем бетона 0,38 м3
  • Геометрический объем 1,0808 м3
Цена: 12901 руб.
Подробнее
КБ 2 (ИИ 01-02)
Панели ребристые Серия ИИ 01-02
  • Длина 2980 мм.
  • Ширина 1595 мм.
  • Высота 160 мм.
  • Вес 800 кг.
  • Объем бетона 0,32 м3
  • Геометрический объем 0,7605 м3
Цена: 10864 руб.
Подробнее
КА 7 (ИИ 01-02)
Панели ребристые Серия ИИ 01-02
  • Длина 5380 мм.
  • Ширина 1195 мм.
  • Высота 270 мм.
  • Вес 1575 кг.
  • Объем бетона 0,63 м3
  • Геометрический объем 1,7359 м3
Цена: 21389 руб.
Подробнее
КБ 5 (ИИ 01-02)
Панели ребристые Серия ИИ 01-02
  • Длина 3580 мм.
  • Ширина 1595 мм.
  • Высота 220 мм.
  • Вес 1125 кг.
  • Объем бетона 0,45 м3
  • Геометрический объем 1,2562 м3
Цена: 15278 руб.
Подробнее
КБ 4 (ИИ 01-02)
Панели ребристые Серия ИИ 01-02
  • Длина 3180 мм.
  • Ширина 1595 мм.
  • Высота 220 мм.
  • Вес 975 кг.
  • Объем бетона 0,39 м3
  • Геометрический объем 1,1159 м3
Цена: 13241 руб.
Подробнее
КБ 6 (ИИ 01-02)
Панели ребристые Серия ИИ 01-02
  • Длина 3980 мм.
  • Ширина 1595 мм.
  • Высота 220 мм.
  • Вес 1225 кг.
  • Объем бетона 0,49 м3
  • Геометрический объем 1,3966 м3
Цена: 16636 руб.
Подробнее
КБ 1 (ИИ 01-02)
Панели ребристые Серия ИИ 01-02
  • Длина 2880 мм.
  • Ширина 1595 мм.
  • Высота 160 мм.
  • Вес 775 кг.
  • Объем бетона 0,31 м3
  • Геометрический объем 0,735 м3
Цена: 10525 руб.
Подробнее
КБ 7 (ИИ 01-02)
Панели ребристые Серия ИИ 01-02
  • Длина 5380 мм.
  • Ширина 1195 мм.
  • Высота 270 мм.
  • Вес 1600 кг.
  • Объем бетона 0,64 м3
  • Геометрический объем 1,7359 м3
Цена: 21728 руб.
Подробнее
РА 3 (ИИ 01-02)
Панели ребристые Серия ИИ 01-02
  • Длина 3080 мм.
  • Ширина 365 мм.
  • Высота 160 мм.
  • Вес 255 кг.
  • Объем бетона 0,102 м3
  • Геометрический объем 0,1799 м3
Цена: 3463 руб.
Подробнее
РА 2 (ИИ 01-02)
Панели ребристые Серия ИИ 01-02
  • Длина 2980 мм.
  • Ширина 395 мм.
  • Высота 160 мм.
  • Вес 250 кг.
  • Объем бетона 0,1 м3
  • Геометрический объем 0,1883 м3
Цена: 3395 руб.
Подробнее
РА 7 (ИИ 01-02)
Панели ребристые Серия ИИ 01-02
  • Длина 5380 мм.
  • Ширина 395 мм.
  • Высота 270 мм.
  • Вес 625 кг.
  • Объем бетона 0,25 м3
  • Геометрический объем 0,5738 м3
Цена: 8488 руб.
Подробнее
РА 4 (ИИ 01-02)
Панели ребристые Серия ИИ 01-02
  • Длина 3180 мм.
  • Ширина 395 мм.
  • Высота 160 мм.
  • Вес 263 кг.
  • Объем бетона 0,105 м3
  • Геометрический объем 0,201 м3
Цена: 3565 руб.
Подробнее
РА 5 (ИИ 01-02)
Панели ребристые Серия ИИ 01-02
  • Длина 3580 мм.
  • Ширина 395 мм.
  • Высота 220 мм.
  • Вес 363 кг.
  • Объем бетона 0,145 м3
  • Геометрический объем 0,3111 м3
Цена: 4923 руб.
Подробнее
РА 6 (ИИ 01-02)
Панели ребристые Серия ИИ 01-02
  • Длина 3980 мм.
  • Ширина 395 мм.
  • Высота 220 мм.
  • Вес 400 кг.
  • Объем бетона 0,16 м3
  • Геометрический объем 0,3459 м3
Цена: 5432 руб.
Подробнее
РБ 2 (ИИ 01-02)
Панели ребристые Серия ИИ 01-02
  • Длина 2980 мм.
  • Ширина 395 мм.
  • Высота 160 мм.
  • Вес 250 кг.
  • Объем бетона 0,1 м3
  • Геометрический объем 0,1883 м3
Цена: 3395 руб.
Подробнее
РБ 4 (ИИ 01-02)
Панели ребристые Серия ИИ 01-02
  • Длина 3180 мм.
  • Ширина 395 мм.
  • Высота 160 мм.
  • Вес 263 кг.
  • Объем бетона 0,105 м3
  • Геометрический объем 0,201 м3
Цена: 3565 руб.
Подробнее
РБ 3 (ИИ 01-02)
Панели ребристые Серия ИИ 01-02
  • Длина 3080 мм.
  • Ширина 365 мм.
  • Высота 160 мм.
  • Вес 255 кг.
  • Объем бетона 0,102 м3
  • Геометрический объем 0,1799 м3
Цена: 3463 руб.
Подробнее
РБ 6 (ИИ 01-02)
Панели ребристые Серия ИИ 01-02
  • Длина 3980 мм.
  • Ширина 395 мм.
  • Высота 220 мм.
  • Вес 400 кг.
  • Объем бетона 0,16 м3
  • Геометрический объем 0,3459 м3
Цена: 5432 руб.
Подробнее
РБ 5 (ИИ 01-02)
Панели ребристые Серия ИИ 01-02
  • Длина 3580 мм.
  • Ширина 395 мм.
  • Высота 220 мм.
  • Вес 363 кг.
  • Объем бетона 0,145 м3
  • Геометрический объем 0,3111 м3
Цена: 4923 руб.
Подробнее
РБ 7 (ИИ 01-02)
Панели ребристые Серия ИИ 01-02
  • Длина 5380 мм.
  • Ширина 395 мм.
  • Высота 270 мм.
  • Вес 625 кг.
  • Объем бетона 0,25 м3
  • Геометрический объем 0,5738 м3
Цена: 8488 руб.
Подробнее
ПА 2 (ИИ 01-02)
Прогоны Серия ИИ 01-02
  • Длина 4480 мм.
  • Ширина 400 мм.
  • Высота 100 мм.
  • Вес 450 кг.
  • Объем бетона 0,18 м3
  • Геометрический объем 0,1792 м3
Цена: 6111 руб.
Подробнее
ПА 1 (ИИ 01-02)
Прогоны Серия ИИ 01-02
  • Длина 2980 мм.
  • Ширина 300 мм.
  • Высота 100 мм.
  • Вес 225 кг.
  • Объем бетона 0,09 м3
  • Геометрический объем 0,0894 м3
Цена: 3056 руб.
Подробнее
ПА 3 (ИИ 01-02)
Прогоны Серия ИИ 01-02
  • Длина 5180 мм.
  • Ширина 450 мм.
  • Высота 100 мм.
  • Вес 575 кг.
  • Объем бетона 0,23 м3
  • Геометрический объем 0,2331 м3
Цена: 7809 руб.
Подробнее
ПБ 1 (ИИ 01-02)
Прогоны Серия ИИ 01-02
  • Длина 2980 мм.
  • Ширина 300 мм.
  • Высота 100 мм.
  • Вес 225 кг.
  • Объем бетона 0,09 м3
  • Геометрический объем 0,0894 м3
Цена: 3056 руб.
Подробнее
ПБ 2 (ИИ 01-02)
Прогоны Серия ИИ 01-02
  • Длина 4480 мм.
  • Ширина 400 мм.
  • Высота 100 мм.
  • Вес 450 кг.
  • Объем бетона 0,18 м3
  • Геометрический объем 0,1792 м3
Цена: 6111 руб.
Подробнее
ПБ 3 (ИИ 01-02)
Прогоны Серия ИИ 01-02
  • Длина 5180 мм.
  • Ширина 450 мм.
  • Высота 100 мм.
  • Вес 575 кг.
  • Объем бетона 0,23 м3
  • Геометрический объем 0,2331 м3
Цена: 7809 руб.
Подробнее
ПВ 1 (ИИ 01-02)
Прогоны Серия ИИ 01-02
  • Длина 2980 мм.
  • Ширина 300 мм.
  • Высота 100 мм.
  • Вес 225 кг.
  • Объем бетона 0,09 м3
  • Геометрический объем 0,0894 м3
Цена: 3056 руб.
Подробнее
ПВ 3 (ИИ 01-02)
Прогоны Серия ИИ 01-02
  • Длина 5180 мм.
  • Ширина 450 мм.
  • Высота 100 мм.
  • Вес 575 кг.
  • Объем бетона 0,23 м3
  • Геометрический объем 0,2331 м3
Цена: 7809 руб.
Подробнее
ПВ 2 (ИИ 01-02)
Прогоны Серия ИИ 01-02
  • Длина 4480 мм.
  • Ширина 400 мм.
  • Высота 100 мм.
  • Вес 450 кг.
  • Объем бетона 0,18 м3
  • Геометрический объем 0,1792 м3
Цена: 6111 руб.
Подробнее
ТА 1 (ИИ 01-02)
Прогоны Серия ИИ 01-02
  • Длина 2980 мм.
  • Ширина 250 мм.
  • Высота 300 мм.
  • Вес 350 кг.
  • Объем бетона 0,14 м3
  • Геометрический объем 0,2235 м3
Цена: 4753 руб.
Подробнее
ТА 2 (ИИ 01-02)
Прогоны Серия ИИ 01-02
  • Длина 5180 мм.
  • Ширина 250 мм.
  • Высота 450 мм.
  • Вес 825 кг.
  • Объем бетона 0,33 м3
  • Геометрический объем 0,5827 м3
Цена: 11204 руб.
Подробнее
ТА 3 (ИИ 01-02)
Прогоны Серия ИИ 01-02
  • Длина 4480 мм.
  • Ширина 250 мм.
  • Высота 400 мм.
  • Вес 550 кг.
  • Объем бетона 0,22 м3
  • Геометрический объем 0,448 м3
Цена: 7469 руб.
Подробнее
ТБ 1 (ИИ 01-02)
Прогоны Серия ИИ 01-02
  • Длина 2980 мм.
  • Ширина 250 мм.
  • Высота 300 мм.
  • Вес 350 кг.
  • Объем бетона 0,14 м3
  • Геометрический объем 0,2235 м3
Цена: 4753 руб.
Подробнее
ТБ 2 (ИИ 01-02)
Прогоны Серия ИИ 01-02
  • Длина 5180 мм.
  • Ширина 250 мм.
  • Высота 450 мм.
  • Вес 825 кг.
  • Объем бетона 0,33 м3
  • Геометрический объем 0,5827 м3
Цена: 11204 руб.
Подробнее
ТВ 1 (ИИ 01-02)
Прогоны Серия ИИ 01-02
  • Длина 2980 мм.
  • Ширина 250 мм.
  • Высота 300 мм.
  • Вес 350 кг.
  • Объем бетона 0,14 м3
  • Геометрический объем 0,2235 м3
Цена: 4753 руб.
Подробнее
ТБ 3 (ИИ 01-02)
Прогоны Серия ИИ 01-02
  • Длина 4480 мм.
  • Ширина 250 мм.
  • Высота 400 мм.
  • Вес 550 кг.
  • Объем бетона 0,22 м3
  • Геометрический объем 0,448 м3
Цена: 7469 руб.
Подробнее
ТВ 2 (ИИ 01-02)
Прогоны Серия ИИ 01-02
  • Длина 5180 мм.
  • Ширина 250 мм.
  • Высота 450 мм.
  • Вес 825 кг.
  • Объем бетона 0,33 м3
  • Геометрический объем 0,5827 м3
Цена: 11204 руб.
Подробнее
ТВ 3 (ИИ 01-02)
Прогоны Серия ИИ 01-02
  • Длина 4480 мм.
  • Ширина 250 мм.
  • Высота 400 мм.
  • Вес 550 кг.
  • Объем бетона 0,22 м3
  • Геометрический объем 0,448 м3
Цена: 7469 руб.
Подробнее
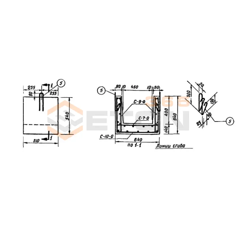
ОП 1 (ИИ 01-02)
Стаканы опорные Серия ИИ 01-02
  • Длина 640 мм.
  • Ширина 510 мм.
  • Высота 590 мм.
  • Вес 297 кг.
  • Объем бетона 0,095 м3
  • Геометрический объем 0,1926 м3
Цена: 3686 руб.
Подробнее
ОП 3 (ИИ 01-02)
Стаканы опорные Серия ИИ 01-02
  • Длина 510 мм.
  • Ширина 640 мм.
  • Высота 590 мм.
  • Вес 212 кг.
  • Объем бетона 0,085 м3
  • Геометрический объем 0,1926 м3
Цена: 3298 руб.
Подробнее
ОП 2 (ИИ 01-02)
Стаканы опорные Серия ИИ 01-02
  • Длина 640 мм.
  • Ширина 510 мм.
  • Высота 540 мм.
  • Вес 222 кг.
  • Объем бетона 0,089 м3
  • Геометрический объем 0,1763 м3
Цена: 3453 руб.
Подробнее
ОП 4 (ИИ 01-02)
Стаканы опорные Серия ИИ 01-02
  • Длина 510 мм.
  • Ширина 640 мм.
  • Высота 540 мм.
  • Вес 200 кг.
  • Объем бетона 0,08 м3
  • Геометрический объем 0,1763 м3
Цена: 3104 руб.
Подробнее

Уведомление о файлах cookie

Мы используем файлы cookie для улучшения вашего опыта просмотра и анализа трафика. Нажимая "Принять все", вы соглашаетесь с нашей политикой конфиденциальности и политикой обработки файлов cookie.

MAX Дзен Телеграм Вконтакте vk