mobile_sound +7 (930) 655-55-90

Железобетонные опоры линий электропередачи. Рабочие чертежи (Серия ИИ 01-02)

Поделиться:
Поделиться:

Документ Серия ИИ 01-02 описывает область применения, номенклатуру и ключевые требования, опираясь на действующие нормы и практику проектирования. Среди многообразия типовых строительных каталогов, содержащих ключевые характеристики различных конструкций, представлена Серия ИИ 01-02, отражающая сведения об индустриальных изделиях, используемых при возведении 2 и 5 этажных жилых домов из камня. Номенклатурный перечень регламента достаточно разнообразен, в нем можно встретить ребристые плиты, многопустотные панели, прогоны, перемычки, элементы лестничной клетки и другие материалы. Для охвата большого числа типовых проектов конструкции запроектированы в нескольких вариантах геометрических пропорций с различными типами несущей способности, которые позволяют сопротивляться всевозможным воздействующим нагрузкам.

Файлы для скачивания:
picture_as_pdf

5249.pdf

4,657.3 KB

скачать
picture_as_pdf

5251.pdf

1,040.1 KB

скачать
picture_as_pdf

5250.pdf

9,504.4 KB

скачать
Товары Серия ИИ 01-02 (60)
МГ 1 (ИИ 01-02)
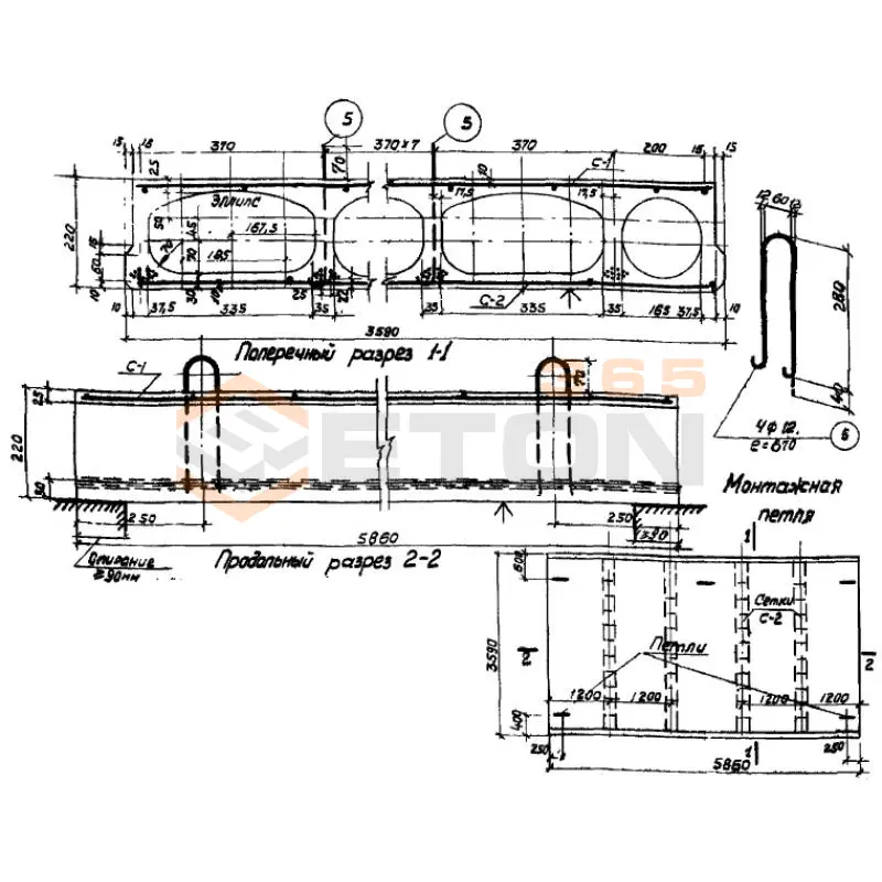
Панели с овальными пустотами Серия ИИ 01-02
  • Длина 2980 мм.
  • Ширина 1790 мм.
  • Высота 220 мм.
  • Вес 1290 кг.
  • Объем бетона 0,515 м3
  • Геометрический объем 1,1735 м3
Цена: 10990 руб.
Подробнее
МГ 3 (ИИ 01-02)
Панели с овальными пустотами Серия ИИ 01-02
  • Длина 3580 мм.
  • Ширина 1790 мм.
  • Высота 220 мм.
  • Вес 1525 кг.
  • Объем бетона 0,609 м3
  • Геометрический объем 1,4098 м3
Цена: 12996 руб.
Подробнее
МГ 4 а (ИИ 01-02)
Панели с овальными пустотами Серия ИИ 01-02
  • Длина 5860 мм.
  • Ширина 1790 мм.
  • Высота 220 мм.
  • Вес 2420 кг.
  • Объем бетона 0,967 м3
  • Геометрический объем 2,3077 м3
Цена: 20636 руб.
Подробнее
МГ 5 а (ИИ 01-02)
Панели с овальными пустотами Серия ИИ 01-02
  • Длина 6260 мм.
  • Ширина 1790 мм.
  • Высота 220 мм.
  • Вес 2575 кг.
  • Объем бетона 1,03 м3
  • Геометрический объем 2,4652 м3
Цена: 21980 руб.
Подробнее
МГ 6 (ИИ 01-02)
Панели с овальными пустотами Серия ИИ 01-02
  • Длина 3980 мм.
  • Ширина 1190 мм.
  • Высота 220 мм.
  • Вес 1100 кг.
  • Объем бетона 0,44 м3
  • Геометрический объем 1,042 м3
Цена: 9390 руб.
Подробнее
МГ 7 (ИИ 01-02)
Панели с овальными пустотами Серия ИИ 01-02
  • Длина 4780 мм.
  • Ширина 1190 мм.
  • Высота 220 мм.
  • Вес 1305 кг.
  • Объем бетона 0,522 м3
  • Геометрический объем 1,2514 м3
Цена: 11139 руб.
Подробнее
МГ 8 а (ИИ 01-02)
Панели с овальными пустотами Серия ИИ 01-02
  • Длина 5860 мм.
  • Ширина 1190 мм.
  • Высота 220 мм.
  • Вес 1580 кг.
  • Объем бетона 0,632 м3
  • Геометрический объем 1,5341 м3
Цена: 13487 руб.
Подробнее
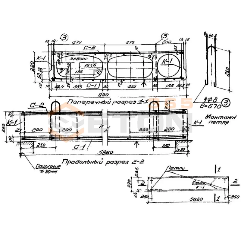
МД 1 (ИИ 01-02)
Панели с овальными пустотами Серия ИИ 01-02
  • Длина 2980 мм.
  • Ширина 1790 мм.
  • Высота 220 мм.
  • Вес 1290 кг.
  • Объем бетона 0,515 м3
  • Геометрический объем 1,1735 м3
Цена: 10990 руб.
Подробнее
МГ 9 а (ИИ 01-02)
Панели с овальными пустотами Серия ИИ 01-02
  • Длина 6260 мм.
  • Ширина 1190 мм.
  • Высота 220 мм.
  • Вес 1685 кг.
  • Объем бетона 0,674 м3
  • Геометрический объем 1,6389 м3
Цена: 14383 руб.
Подробнее
МД 12 (ИИ 01-02)
Панели с овальными пустотами Серия ИИ 01-02
  • Длина 5860 мм.
  • Ширина 990 мм.
  • Высота 220 мм.
  • Вес 1370 кг.
  • Объем бетона 0,548 м3
  • Геометрический объем 1,2763 м3
Цена: 11694 руб.
Подробнее
МД 14 (ИИ 01-02)
Панели с овальными пустотами Серия ИИ 01-02
  • Длина 2980 мм.
  • Ширина 600 мм.
  • Высота 220 мм.
  • Вес 415 кг.
  • Объем бетона 0,166 м3
  • Геометрический объем 0,3934 м3
Цена: 3542 руб.
Подробнее
МД 11 (ИИ 01-02)
Панели с овальными пустотами Серия ИИ 01-02
  • Длина 6260 мм.
  • Ширина 1590 мм.
  • Высота 220 мм.
  • Вес 2345 кг.
  • Объем бетона 0,939 м3
  • Геометрический объем 2,1897 м3
Цена: 20038 руб.
Подробнее
МД 13 (ИИ 01-02)
Панели с овальными пустотами Серия ИИ 01-02
  • Длина 6260 мм.
  • Ширина 990 мм.
  • Высота 220 мм.
  • Вес 1460 кг.
  • Объем бетона 0,583 м3
  • Геометрический объем 1,3634 м3
Цена: 12441 руб.
Подробнее
МД 10 (ИИ 01-02)
Панели с овальными пустотами Серия ИИ 01-02
  • Длина 5860 мм.
  • Ширина 1590 мм.
  • Высота 220 мм.
  • Вес 2200 кг.
  • Объем бетона 0,881 м3
  • Геометрический объем 2,0498 м3
Цена: 18801 руб.
Подробнее
МД 16 (ИИ 01-02)
Панели с овальными пустотами Серия ИИ 01-02
  • Длина 3580 мм.
  • Ширина 600 мм.
  • Высота 220 мм.
  • Вес 490 кг.
  • Объем бетона 0,196 м3
  • Геометрический объем 0,4726 м3
Цена: 4183 руб.
Подробнее
МД 15 (ИИ 01-02)
Панели с овальными пустотами Серия ИИ 01-02
  • Длина 3180 мм.
  • Ширина 600 мм.
  • Высота 220 мм.
  • Вес 440 кг.
  • Объем бетона 0,176 м3
  • Геометрический объем 0,4198 м3
Цена: 3756 руб.
Подробнее
МД 19 а (ИИ 01-02)
Панели с овальными пустотами Серия ИИ 01-02
  • Длина 5860 мм.
  • Ширина 600 мм.
  • Высота 220 мм.
  • Вес 780 кг.
  • Объем бетона 0,311 м3
  • Геометрический объем 0,7735 м3
Цена: 6637 руб.
Подробнее
МД 18 (ИИ 01-02)
Панели с овальными пустотами Серия ИИ 01-02
  • Длина 4780 мм.
  • Ширина 600 мм.
  • Высота 220 мм.
  • Вес 645 кг.
  • Объем бетона 0,257 м3
  • Геометрический объем 0,631 м3
Цена: 5484 руб.
Подробнее
МД 4 а (ИИ 01-02)
Панели с овальными пустотами Серия ИИ 01-02
  • Длина 5860 мм.
  • Ширина 1790 мм.
  • Высота 220 мм.
  • Вес 2420 кг.
  • Объем бетона 0,967 м3
  • Геометрический объем 2,3077 м3
Цена: 20636 руб.
Подробнее
МД 17 (ИИ 01-02)
Панели с овальными пустотами Серия ИИ 01-02
  • Длина 3980 мм.
  • Ширина 600 мм.
  • Высота 220 мм.
  • Вес 540 кг.
  • Объем бетона 0,216 м3
  • Геометрический объем 0,5254 м3
Цена: 4609 руб.
Подробнее
МД 2 (ИИ 01-02)
Панели с овальными пустотами Серия ИИ 01-02
  • Длина 3180 мм.
  • Ширина 1790 мм.
  • Высота 220 мм.
  • Вес 1365 кг.
  • Объем бетона 0,546 м3
  • Геометрический объем 1,2523 м3
Цена: 11652 руб.
Подробнее
МД 3 (ИИ 01-02)
Панели с овальными пустотами Серия ИИ 01-02
  • Длина 3580 мм.
  • Ширина 1790 мм.
  • Высота 220 мм.
  • Вес 1525 кг.
  • Объем бетона 0,609 м3
  • Геометрический объем 1,4098 м3
Цена: 12996 руб.
Подробнее
МД 20 а (ИИ 01-02)
Панели с овальными пустотами Серия ИИ 01-02
  • Длина 6260 мм.
  • Ширина 600 мм.
  • Высота 220 мм.
  • Вес 830 кг.
  • Объем бетона 0,331 м3
  • Геометрический объем 0,8263 м3
Цена: 7064 руб.
Подробнее
МД 5 а (ИИ 01-02)
Панели с овальными пустотами Серия ИИ 01-02
  • Длина 6260 мм.
  • Ширина 1790 мм.
  • Высота 220 мм.
  • Вес 2575 кг.
  • Объем бетона 1,03 м3
  • Геометрический объем 2,4652 м3
Цена: 21980 руб.
Подробнее
МД 6 (ИИ 01-02)
Панели с овальными пустотами Серия ИИ 01-02
  • Длина 3980 мм.
  • Ширина 1190 мм.
  • Высота 220 мм.
  • Вес 1100 кг.
  • Объем бетона 0,44 м3
  • Геометрический объем 1,042 м3
Цена: 9390 руб.
Подробнее
МД 7 (ИИ 01-02)
Панели с овальными пустотами Серия ИИ 01-02
  • Длина 4780 мм.
  • Ширина 1190 мм.
  • Высота 220 мм.
  • Вес 1305 кг.
  • Объем бетона 0,522 м3
  • Геометрический объем 1,2514 м3
Цена: 11139 руб.
Подробнее
МД 9 а (ИИ 01-02)
Панели с овальными пустотами Серия ИИ 01-02
  • Длина 6260 мм.
  • Ширина 1190 мм.
  • Высота 220 мм.
  • Вес 1685 кг.
  • Объем бетона 0,674 м3
  • Геометрический объем 1,6389 м3
Цена: 14383 руб.
Подробнее
ПО 60-10 (ИИ 01-02)
Панели с овальными пустотами Серия ИИ 01-02
  • Длина 5860 мм.
  • Ширина 990 мм.
  • Высота 220 мм.
  • Вес 1395 кг.
  • Объем бетона 0,558 м3
  • Геометрический объем 1,2763 м3
Цена: 11908 руб.
Подробнее
МД 8 а (ИИ 01-02)
Панели с овальными пустотами Серия ИИ 01-02
  • Длина 5860 мм.
  • Ширина 1190 мм.
  • Высота 220 мм.
  • Вес 1580 кг.
  • Объем бетона 0,632 м3
  • Геометрический объем 1,5341 м3
Цена: 13487 руб.
Подробнее
ПО 60-12 (ИИ 01-02)
Панели с овальными пустотами Серия ИИ 01-02
  • Длина 5860 мм.
  • Ширина 1190 мм.
  • Высота 220 мм.
  • Вес 1625 кг.
  • Объем бетона 0,65 м3
  • Геометрический объем 1,5341 м3
Цена: 13871 руб.
Подробнее
ПО 60-18 (ИИ 01-02)
Панели с овальными пустотами Серия ИИ 01-02
  • Длина 5860 мм.
  • Ширина 1790 мм.
  • Высота 220 мм.
  • Вес 2523 кг.
  • Объем бетона 1,009 м3
  • Геометрический объем 2,3077 м3
Цена: 21532 руб.
Подробнее
ПО 60-16 (ИИ 01-02)
Панели с овальными пустотами Серия ИИ 01-02
  • Длина 5860 мм.
  • Ширина 1590 мм.
  • Высота 220 мм.
  • Вес 2189 кг.
  • Объем бетона 0,876 м3
  • Геометрический объем 2,0498 м3
Цена: 18694 руб.
Подробнее
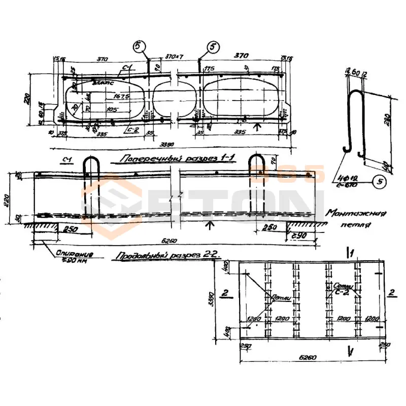
ПО 64-16 (ИИ 01-02)
Панели с овальными пустотами Серия ИИ 01-02
  • Длина 6260 мм.
  • Ширина 1590 мм.
  • Высота 220 мм.
  • Вес 2338 кг.
  • Объем бетона 0,935 м3
  • Геометрический объем 2,1897 м3
Цена: 19953 руб.
Подробнее
ПО 64-10 (ИИ 01-02)
Панели с овальными пустотами Серия ИИ 01-02
  • Длина 6260 мм.
  • Ширина 990 мм.
  • Высота 220 мм.
  • Вес 1487 кг.
  • Объем бетона 0,595 м3
  • Геометрический объем 1,3634 м3
Цена: 12697 руб.
Подробнее
ПО 64-18 (ИИ 01-02)
Панели с овальными пустотами Серия ИИ 01-02
  • Длина 6260 мм.
  • Ширина 1790 мм.
  • Высота 220 мм.
  • Вес 2690 кг.
  • Объем бетона 1,076 м3
  • Геометрический объем 2,4652 м3
Цена: 22962 руб.
Подробнее
ПО 60-36 (ИИ 01-02)
Панели с овальными пустотами Серия ИИ 01-02
  • Длина 5860 мм.
  • Ширина 3590 мм.
  • Высота 220 мм.
  • Вес 4690 кг.
  • Объем бетона 1,876 м3
  • Геометрический объем 4,6282 м3
Цена: 40034 руб.
Подробнее
ПО 64-12 (ИИ 01-02)
Панели с овальными пустотами Серия ИИ 01-02
  • Длина 6260 мм.
  • Ширина 1190 мм.
  • Высота 220 мм.
  • Вес 1736 кг.
  • Объем бетона 0,694 м3
  • Геометрический объем 1,6389 м3
Цена: 14810 руб.
Подробнее
ПО 64-36 (ИИ 01-02)
Панели с овальными пустотами Серия ИИ 01-02
  • Длина 6260 мм.
  • Ширина 3590 мм.
  • Высота 220 мм.
  • Вес 5015 кг.
  • Объем бетона 2,004 м3
  • Геометрический объем 4,9441 м3
Цена: 42765 руб.
Подробнее
ПОН 60-12 (ИИ 01-02)
Панели с овальными пустотами Серия ИИ 01-02
  • Длина 5860 мм.
  • Ширина 1190 мм.
  • Высота 220 мм.
  • Вес 1592 кг.
  • Объем бетона 0,65 м3
  • Геометрический объем 1,5341 м3
Цена: 13871 руб.
Подробнее
ПОН 60-10 (ИИ 01-02)
Панели с овальными пустотами Серия ИИ 01-02
  • Длина 5860 мм.
  • Ширина 990 мм.
  • Высота 220 мм.
  • Вес 1367 кг.
  • Объем бетона 0,558 м3
  • Геометрический объем 1,2763 м3
Цена: 11908 руб.
Подробнее
ПОН 60-16 (ИИ 01-02)
Панели с овальными пустотами Серия ИИ 01-02
  • Длина 5860 мм.
  • Ширина 1590 мм.
  • Высота 220 мм.
  • Вес 2146 кг.
  • Объем бетона 0,876 м3
  • Геометрический объем 2,0498 м3
Цена: 18694 руб.
Подробнее
ПОН 60-18 (ИИ 01-02)
Панели с овальными пустотами Серия ИИ 01-02
  • Длина 5860 мм.
  • Ширина 1790 мм.
  • Высота 220 мм.
  • Вес 2472 кг.
  • Объем бетона 1,009 м3
  • Геометрический объем 2,3077 м3
Цена: 21532 руб.
Подробнее
ПОН 64-10 (ИИ 01-02)
Панели с овальными пустотами Серия ИИ 01-02
  • Длина 6260 мм.
  • Ширина 990 мм.
  • Высота 220 мм.
  • Вес 1458 кг.
  • Объем бетона 0,395 м3
  • Геометрический объем 1,3634 м3
Цена: 8429 руб.
Подробнее
ПОН 60-36 (ИИ 01-02)
Панели с овальными пустотами Серия ИИ 01-02
  • Длина 5860 мм.
  • Ширина 3590 мм.
  • Высота 220 мм.
  • Вес 4595 кг.
  • Объем бетона 1,876 м3
  • Геометрический объем 4,6282 м3
Цена: 40034 руб.
Подробнее
ПОН 64-12 (ИИ 01-02)
Панели с овальными пустотами Серия ИИ 01-02
  • Длина 6260 мм.
  • Ширина 1190 мм.
  • Высота 220 мм.
  • Вес 1700 кг.
  • Объем бетона 0,694 м3
  • Геометрический объем 1,6389 м3
Цена: 14810 руб.
Подробнее
ПОН 64-16 (ИИ 01-02)
Панели с овальными пустотами Серия ИИ 01-02
  • Длина 6260 мм.
  • Ширина 1590 мм.
  • Высота 220 мм.
  • Вес 2290 кг.
  • Объем бетона 0,935 м3
  • Геометрический объем 2,1897 м3
Цена: 19953 руб.
Подробнее
ПОН 64-18 (ИИ 01-02)
Панели с овальными пустотами Серия ИИ 01-02
  • Длина 6260 мм.
  • Ширина 1790 мм.
  • Высота 220 мм.
  • Вес 2636 кг.
  • Объем бетона 1,076 м3
  • Геометрический объем 2,4652 м3
Цена: 22962 руб.
Подробнее
ПОНТ 60-10 (ИИ 01-02)
Панели с овальными пустотами Серия ИИ 01-02
  • Длина 5860 мм.
  • Ширина 990 мм.
  • Высота 220 мм.
  • Вес 1367 кг.
  • Объем бетона 0,558 м3
  • Геометрический объем 1,2763 м3
Цена: 11908 руб.
Подробнее
ПОН 64-36 (ИИ 01-02)
Панели с овальными пустотами Серия ИИ 01-02
  • Длина 6260 мм.
  • Ширина 3590 мм.
  • Высота 220 мм.
  • Вес 4910 кг.
  • Объем бетона 2,004 м3
  • Геометрический объем 4,9441 м3
Цена: 42765 руб.
Подробнее
ПОНТ 60-16 (ИИ 01-02)
Панели с овальными пустотами Серия ИИ 01-02
  • Длина 5860 мм.
  • Ширина 1590 мм.
  • Высота 220 мм.
  • Вес 2146 кг.
  • Объем бетона 0,876 м3
  • Геометрический объем 2,0498 м3
Цена: 18694 руб.
Подробнее
ПОНТ 60-12 (ИИ 01-02)
Панели с овальными пустотами Серия ИИ 01-02
  • Длина 5860 мм.
  • Ширина 1190 мм.
  • Высота 220 мм.
  • Вес 1598 кг.
  • Объем бетона 0,65 м3
  • Геометрический объем 1,5341 м3
Цена: 13871 руб.
Подробнее
ПОНТ 60-18 (ИИ 01-02)
Панели с овальными пустотами Серия ИИ 01-02
  • Длина 5860 мм.
  • Ширина 1790 мм.
  • Высота 220 мм.
  • Вес 2472 кг.
  • Объем бетона 1,009 м3
  • Геометрический объем 2,3077 м3
Цена: 21532 руб.
Подробнее
ПОНТ 60-34 (ИИ 01-02)
Панели с овальными пустотами Серия ИИ 01-02
  • Длина 5860 мм.
  • Ширина 3390 мм.
  • Высота 220 мм.
  • Вес 4270 кг.
  • Объем бетона 1,743 м3
  • Геометрический объем 4,3704 м3
Цена: 37196 руб.
Подробнее
ПОНТ 60-36 (ИИ 01-02)
Панели с овальными пустотами Серия ИИ 01-02
  • Длина 5860 мм.
  • Ширина 3590 мм.
  • Высота 220 мм.
  • Вес 4596 кг.
  • Объем бетона 1,876 м3
  • Геометрический объем 4,6282 м3
Цена: 40034 руб.
Подробнее
ПОНТ 64-16 (ИИ 01-02)
Панели с овальными пустотами Серия ИИ 01-02
  • Длина 6260 мм.
  • Ширина 1590 мм.
  • Высота 220 мм.
  • Вес 2290 кг.
  • Объем бетона 0,935 м3
  • Геометрический объем 2,1897 м3
Цена: 19953 руб.
Подробнее
ПОНТ 64-10 (ИИ 01-02)
Панели с овальными пустотами Серия ИИ 01-02
  • Длина 6260 мм.
  • Ширина 990 мм.
  • Высота 220 мм.
  • Вес 1458 кг.
  • Объем бетона 0,595 м3
  • Геометрический объем 1,3634 м3
Цена: 12697 руб.
Подробнее
ПОНТ 64-12 (ИИ 01-02)
Панели с овальными пустотами Серия ИИ 01-02
  • Длина 6260 мм.
  • Ширина 1190 мм.
  • Высота 220 мм.
  • Вес 1700 кг.
  • Объем бетона 0,694 м3
  • Геометрический объем 1,6389 м3
Цена: 14810 руб.
Подробнее
ПОНТ 64-18 (ИИ 01-02)
Панели с овальными пустотами Серия ИИ 01-02
  • Длина 6260 мм.
  • Ширина 1790 мм.
  • Высота 220 мм.
  • Вес 2636 кг.
  • Объем бетона 1,076 м3
  • Геометрический объем 2,4652 м3
Цена: 22962 руб.
Подробнее
ПОНТ 64-34 (ИИ 01-02)
Панели с овальными пустотами Серия ИИ 01-02
  • Длина 6260 мм.
  • Ширина 3390 мм.
  • Высота 220 мм.
  • Вес 4262 кг.
  • Объем бетона 1,852 м3
  • Геометрический объем 4,6687 м3
Цена: 39522 руб.
Подробнее
ПОТ 60-16 (ИИ 01-02)
Панели с овальными пустотами Серия ИИ 01-02
  • Длина 5860 мм.
  • Ширина 1590 мм.
  • Высота 220 мм.
  • Вес 2189 кг.
  • Объем бетона 0,876 м3
  • Геометрический объем 2,0498 м3
Цена: 18694 руб.
Подробнее

Уведомление о файлах cookie

Мы используем файлы cookie для улучшения вашего опыта просмотра и анализа трафика. Нажимая "Принять все", вы соглашаетесь с нашей политикой конфиденциальности и политикой обработки файлов cookie.

MAX Дзен Телеграм Вконтакте vk