mobile_sound +7 (930) 655-55-90

Железобетонные опоры линий электропередачи. Рабочие чертежи (Серия 3.505.1-15)

Поделиться:
Поделиться:

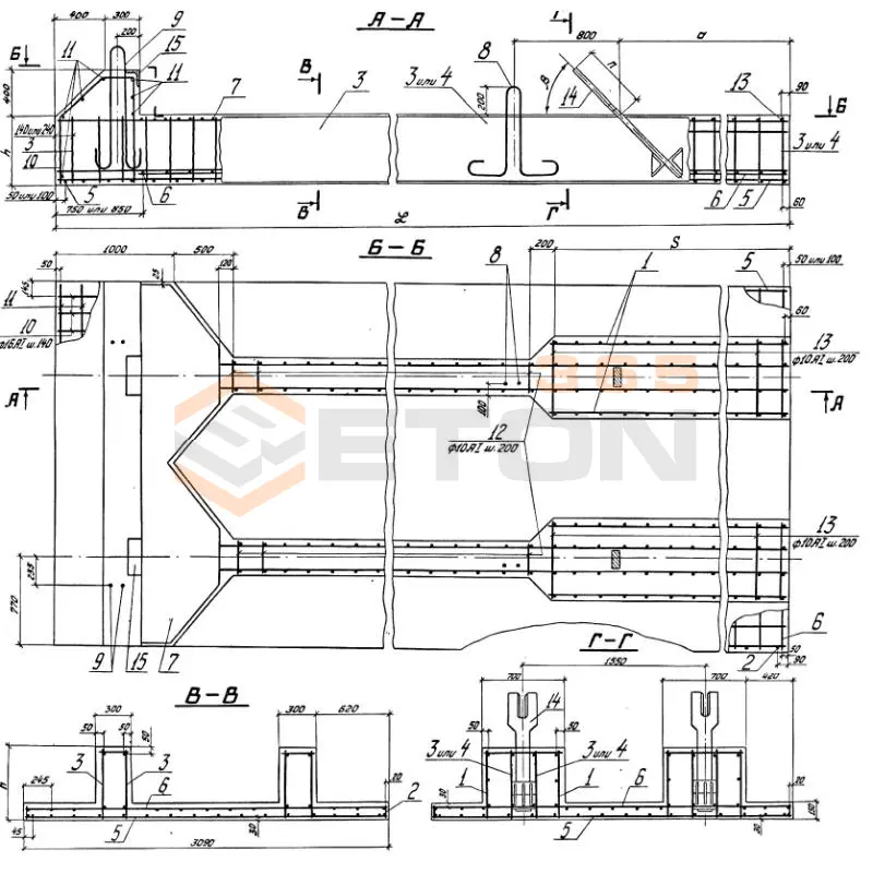
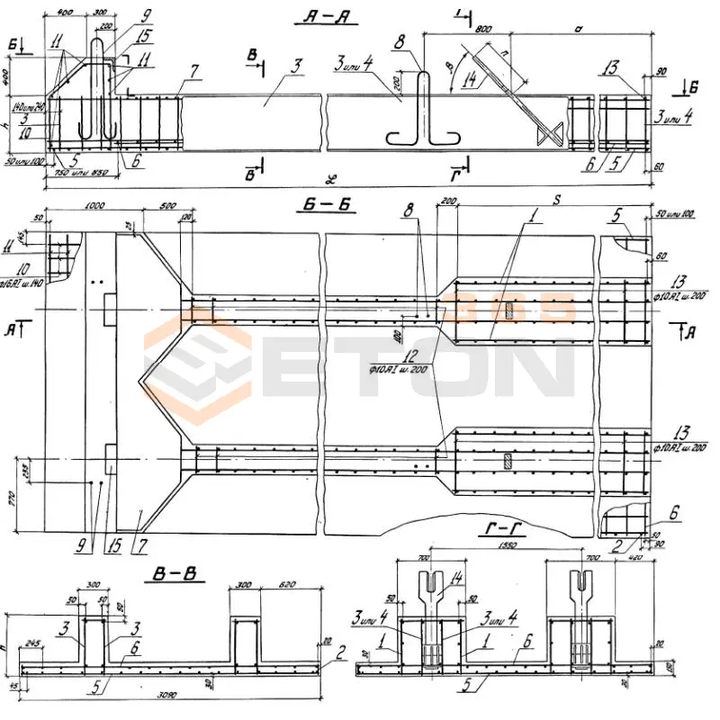
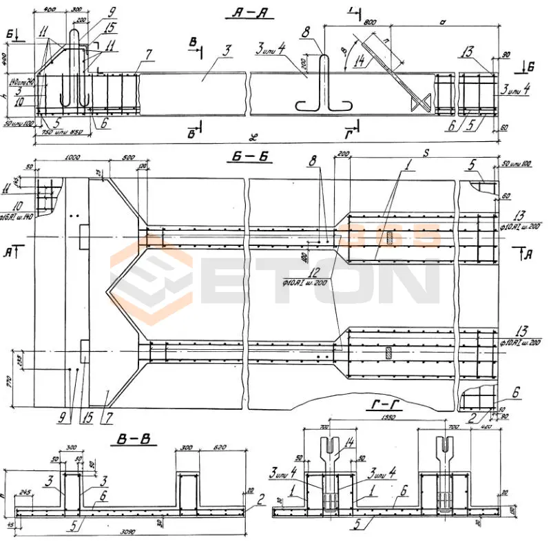
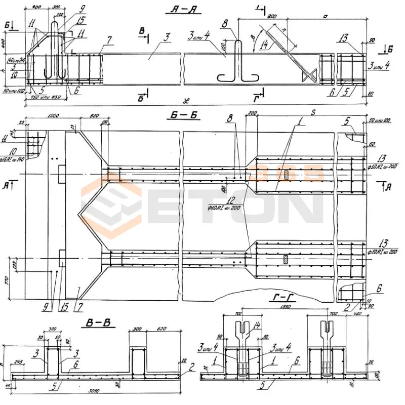
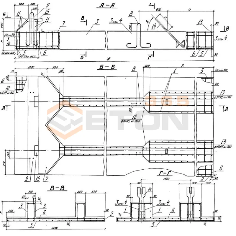
Документ Серия 3.505.1-15 описывает область применения, номенклатуру и ключевые требования, опираясь на действующие нормы и практику проектирования. Серия 3.505.1-15 распространяется на причальные набережные, имеющие высоту от 4 до 15 метров. Регламент детально описывает монтажные схемы вариантов обустройства набережных и определяет и регламентирует опалубочные и арматурные чертежи шпунтов и других железобетонных элементов фундаментов. Донного типа конструкции зарекомендовали себя как эффективные детали, применяемые при строительстве различных причальных сооружений, возводимых на территориях с температурами не ниже -40 градусов.

Файлы для скачивания:
picture_as_pdf

4622.pdf

25,827.6 KB

скачать
picture_as_pdf

4623.pdf

5,312.5 KB

скачать
picture_as_pdf

4624.pdf

18,574.1 KB

скачать
picture_as_pdf

4621.pdf

31,932.7 KB

скачать
picture_as_pdf

4625.pdf

11,095.5 KB

скачать
picture_as_pdf

4626.pdf

23,211.3 KB

скачать
Товары Серия 3.505.1-15 (60)
2ФПН 110-7
Плиты фундамента Серия 3.505.1-15
  • Длина 11000 мм.
  • Ширина 3090 мм.
  • Высота 700 мм.
  • Вес 30500 кг.
  • Объем бетона 12,2 м3
  • Геометрический объем 23,793 м3
Цена: 414190 руб.
Подробнее
2ФПН 110-7
Плиты фундамента Серия 3.505.1-15
  • Длина 11000 мм.
  • Ширина 3090 мм.
  • Высота 700 мм.
  • Вес 32800 кг.
  • Объем бетона 13,12 м3
  • Геометрический объем 23,793 м3
Цена: 445424 руб.
Подробнее
2ФПН 110-6
Плиты фундамента Серия 3.505.1-15
  • Длина 11000 мм.
  • Ширина 3090 мм.
  • Высота 600 мм.
  • Вес 26800 кг.
  • Объем бетона 10,72 м3
  • Геометрический объем 20,394 м3
Цена: 363944 руб.
Подробнее
2ФПН 115-6
Плиты фундамента Серия 3.505.1-15
  • Длина 11500 мм.
  • Ширина 3090 мм.
  • Высота 600 мм.
  • Вес 28500 кг.
  • Объем бетона 11,4 м3
  • Геометрический объем 21,321 м3
Цена: 387030 руб.
Подробнее
2ФПН 115-6
Плиты фундамента Серия 3.505.1-15
  • Длина 11500 мм.
  • Ширина 3090 мм.
  • Высота 600 мм.
  • Вес 29500 кг.
  • Объем бетона 11,8 м3
  • Геометрический объем 21,321 м3
Цена: 400610 руб.
Подробнее
2ФПН 115-6
Плиты фундамента Серия 3.505.1-15
  • Длина 11500 мм.
  • Ширина 3090 мм.
  • Высота 600 мм.
  • Вес 30300 кг.
  • Объем бетона 12,12 м3
  • Геометрический объем 21,321 м3
Цена: 411474 руб.
Подробнее
2ФПН 115-7
Плиты фундамента Серия 3.505.1-15
  • Длина 11500 мм.
  • Ширина 3090 мм.
  • Высота 700 мм.
  • Вес 33800 кг.
  • Объем бетона 13,52 м3
  • Геометрический объем 24,8745 м3
Цена: 459004 руб.
Подробнее
2ФПН 115-6
Плиты фундамента Серия 3.505.1-15
  • Длина 11500 мм.
  • Ширина 3090 мм.
  • Высота 600 мм.
  • Вес 27500 кг.
  • Объем бетона 11 м3
  • Геометрический объем 21,321 м3
Цена: 373450 руб.
Подробнее
2ФПН 115-7
Плиты фундамента Серия 3.505.1-15
  • Длина 11500 мм.
  • Ширина 3090 мм.
  • Высота 700 мм.
  • Вес 32800 кг.
  • Объем бетона 13,12 м3
  • Геометрический объем 24,8745 м3
Цена: 445424 руб.
Подробнее
2ФПН 115-7
Плиты фундамента Серия 3.505.1-15
  • Длина 11500 мм.
  • Ширина 3090 мм.
  • Высота 700 мм.
  • Вес 31500 кг.
  • Объем бетона 12,6 м3
  • Геометрический объем 24,8745 м3
Цена: 427770 руб.
Подробнее
2ФПН 115-8
Плиты фундамента Серия 3.505.1-15
  • Длина 11500 мм.
  • Ширина 3090 мм.
  • Высота 800 мм.
  • Вес 34500 кг.
  • Объем бетона 13,8 м3
  • Геометрический объем 28,428 м3
Цена: 468510 руб.
Подробнее
2ФПН 115-8
Плиты фундамента Серия 3.505.1-15
  • Длина 11500 мм.
  • Ширина 3090 мм.
  • Высота 800 мм.
  • Вес 35800 кг.
  • Объем бетона 14,32 м3
  • Геометрический объем 28,428 м3
Цена: 486164 руб.
Подробнее
2ФПН 115-8
Плиты фундамента Серия 3.505.1-15
  • Длина 11500 мм.
  • Ширина 3090 мм.
  • Высота 800 мм.
  • Вес 37300 кг.
  • Объем бетона 14,92 м3
  • Геометрический объем 28,428 м3
Цена: 506534 руб.
Подробнее
2ФПН 120-6
Плиты фундамента Серия 3.505.1-15
  • Длина 12000 мм.
  • Ширина 3090 мм.
  • Высота 600 мм.
  • Вес 28500 кг.
  • Объем бетона 11,4 м3
  • Геометрический объем 22,248 м3
Цена: 387030 руб.
Подробнее
2ФПН 120-6
Плиты фундамента Серия 3.505.1-15
  • Длина 12000 мм.
  • Ширина 3090 мм.
  • Высота 600 мм.
  • Вес 29500 кг.
  • Объем бетона 11,8 м3
  • Геометрический объем 22,248 м3
Цена: 400610 руб.
Подробнее
2ФПН 120-6
Плиты фундамента Серия 3.505.1-15
  • Длина 12000 мм.
  • Ширина 3090 мм.
  • Высота 600 мм.
  • Вес 30300 кг.
  • Объем бетона 12,12 м3
  • Геометрический объем 22,248 м3
Цена: 411474 руб.
Подробнее
2ФПН 120-6
Плиты фундамента Серия 3.505.1-15
  • Длина 12000 мм.
  • Ширина 3090 мм.
  • Высота 600 мм.
  • Вес 31300 кг.
  • Объем бетона 12,52 м3
  • Геометрический объем 22,248 м3
Цена: 425054 руб.
Подробнее
2ФПН 120-7
Плиты фундамента Серия 3.505.1-15
  • Длина 12000 мм.
  • Ширина 3090 мм.
  • Высота 700 мм.
  • Вес 32500 кг.
  • Объем бетона 13 м3
  • Геометрический объем 25,956 м3
Цена: 441350 руб.
Подробнее
2ФПН 120-7
Плиты фундамента Серия 3.505.1-15
  • Длина 12000 мм.
  • Ширина 3090 мм.
  • Высота 700 мм.
  • Вес 33500 кг.
  • Объем бетона 13,4 м3
  • Геометрический объем 25,956 м3
Цена: 454930 руб.
Подробнее
2ФПН 120-7
Плиты фундамента Серия 3.505.1-15
  • Длина 12000 мм.
  • Ширина 3090 мм.
  • Высота 700 мм.
  • Вес 34800 кг.
  • Объем бетона 13,92 м3
  • Геометрический объем 25,956 м3
Цена: 472584 руб.
Подробнее
2ФПН 120-8
Плиты фундамента Серия 3.505.1-15
  • Длина 12000 мм.
  • Ширина 3090 мм.
  • Высота 800 мм.
  • Вес 35500 кг.
  • Объем бетона 14,2 м3
  • Геометрический объем 29,664 м3
Цена: 482090 руб.
Подробнее
2ФПН 120-8
Плиты фундамента Серия 3.505.1-15
  • Длина 12000 мм.
  • Ширина 3090 мм.
  • Высота 800 мм.
  • Вес 37000 кг.
  • Объем бетона 14,8 м3
  • Геометрический объем 29,664 м3
Цена: 502460 руб.
Подробнее
2ФПН 120-8
Плиты фундамента Серия 3.505.1-15
  • Длина 12000 мм.
  • Ширина 3090 мм.
  • Высота 800 мм.
  • Вес 38300 кг.
  • Объем бетона 15,32 м3
  • Геометрический объем 29,664 м3
Цена: 520114 руб.
Подробнее
2ФПН 125-7
Плиты фундамента Серия 3.505.1-15
  • Длина 12500 мм.
  • Ширина 3090 мм.
  • Высота 700 мм.
  • Вес 33500 кг.
  • Объем бетона 13,4 м3
  • Геометрический объем 27,0375 м3
Цена: 454930 руб.
Подробнее
2ФПН 125-8
Плиты фундамента Серия 3.505.1-15
  • Длина 12500 мм.
  • Ширина 3090 мм.
  • Высота 800 мм.
  • Вес 39300 кг.
  • Объем бетона 15,72 м3
  • Геометрический объем 30,9 м3
Цена: 533694 руб.
Подробнее
2ФПН 125-8
Плиты фундамента Серия 3.505.1-15
  • Длина 12500 мм.
  • Ширина 3090 мм.
  • Высота 800 мм.
  • Вес 38000 кг.
  • Объем бетона 15,2 м3
  • Геометрический объем 30,9 м3
Цена: 516040 руб.
Подробнее
2ФПН 125-7
Плиты фундамента Серия 3.505.1-15
  • Длина 12500 мм.
  • Ширина 3090 мм.
  • Высота 700 мм.
  • Вес 35800 кг.
  • Объем бетона 14,32 м3
  • Геометрический объем 27,0375 м3
Цена: 486164 руб.
Подробнее
2ФПН 125-8
Плиты фундамента Серия 3.505.1-15
  • Длина 12500 мм.
  • Ширина 3090 мм.
  • Высота 800 мм.
  • Вес 36800 кг.
  • Объем бетона 14,72 м3
  • Геометрический объем 30,9 м3
Цена: 499744 руб.
Подробнее
2ФПН 125-7
Плиты фундамента Серия 3.505.1-15
  • Длина 12500 мм.
  • Ширина 3090 мм.
  • Высота 700 мм.
  • Вес 34500 кг.
  • Объем бетона 13,8 м3
  • Геометрический объем 27,0375 м3
Цена: 468510 руб.
Подробнее
2ФПН 130-7
Плиты фундамента Серия 3.505.1-15
  • Длина 13000 мм.
  • Ширина 3090 мм.
  • Высота 700 мм.
  • Вес 36800 кг.
  • Объем бетона 14,72 м3
  • Геометрический объем 28,119 м3
Цена: 499744 руб.
Подробнее
2ФПН 130-7
Плиты фундамента Серия 3.505.1-15
  • Длина 13000 мм.
  • Ширина 3090 мм.
  • Высота 700 мм.
  • Вес 35500 кг.
  • Объем бетона 14,2 м3
  • Геометрический объем 28,119 м3
Цена: 482090 руб.
Подробнее
2ФПН 130-8
Плиты фундамента Серия 3.505.1-15
  • Длина 13000 мм.
  • Ширина 3090 мм.
  • Высота 800 мм.
  • Вес 37800 кг.
  • Объем бетона 15,12 м3
  • Геометрический объем 32,136 м3
Цена: 513324 руб.
Подробнее
2ФПН 130-8
Плиты фундамента Серия 3.505.1-15
  • Длина 13000 мм.
  • Ширина 3090 мм.
  • Высота 800 мм.
  • Вес 39000 кг.
  • Объем бетона 15,6 м3
  • Геометрический объем 32,136 м3
Цена: 529620 руб.
Подробнее
2ФПН 40-3
Плиты фундамента Серия 3.505.1-15
  • Длина 4000 мм.
  • Ширина 3090 мм.
  • Высота 300 мм.
  • Вес 8000 кг.
  • Объем бетона 3,2 м3
  • Геометрический объем 3,708 м3
Цена: 108640 руб.
Подробнее
2ФПН 130-8
Плиты фундамента Серия 3.505.1-15
  • Длина 13000 мм.
  • Ширина 3090 мм.
  • Высота 800 мм.
  • Вес 40300 кг.
  • Объем бетона 16,12 м3
  • Геометрический объем 32,136 м3
Цена: 547274 руб.
Подробнее
2ФПН 45-4
Плиты фундамента Серия 3.505.1-15
  • Длина 4500 мм.
  • Ширина 3090 мм.
  • Высота 400 мм.
  • Вес 10500 кг.
  • Объем бетона 4,2 м3
  • Геометрический объем 5,562 м3
Цена: 142590 руб.
Подробнее
2ФПН 130-7
Плиты фундамента Серия 3.505.1-15
  • Длина 13000 мм.
  • Ширина 3090 мм.
  • Высота 700 мм.
  • Вес 34500 кг.
  • Объем бетона 13,4 м3
  • Геометрический объем 28,119 м3
Цена: 454930 руб.
Подробнее
2ФПН 45-3
Плиты фундамента Серия 3.505.1-15
  • Длина 4500 мм.
  • Ширина 3090 мм.
  • Высота 300 мм.
  • Вес 8800 кг.
  • Объем бетона 3,52 м3
  • Геометрический объем 4,1715 м3
Цена: 119504 руб.
Подробнее
2ФПН 45-4
Плиты фундамента Серия 3.505.1-15
  • Длина 4500 мм.
  • Ширина 3090 мм.
  • Высота 400 мм.
  • Вес 11000 кг.
  • Объем бетона 4,4 м3
  • Геометрический объем 5,562 м3
Цена: 149380 руб.
Подробнее
2ФПН 50-4
Плиты фундамента Серия 3.505.1-15
  • Длина 5000 мм.
  • Ширина 3090 мм.
  • Высота 400 мм.
  • Вес 11300 кг.
  • Объем бетона 4,52 м3
  • Геометрический объем 6,18 м3
Цена: 153454 руб.
Подробнее
2ФПН 50-4
Плиты фундамента Серия 3.505.1-15
  • Длина 5000 мм.
  • Ширина 3090 мм.
  • Высота 400 мм.
  • Вес 11800 кг.
  • Объем бетона 4,72 м3
  • Геометрический объем 6,18 м3
Цена: 160244 руб.
Подробнее
2ФПН 55-4
Плиты фундамента Серия 3.505.1-15
  • Длина 5500 мм.
  • Ширина 3090 мм.
  • Высота 400 мм.
  • Вес 12500 кг.
  • Объем бетона 5 м3
  • Геометрический объем 6,798 м3
Цена: 169750 руб.
Подробнее
2ФПН 55-4
Плиты фундамента Серия 3.505.1-15
  • Длина 5500 мм.
  • Ширина 3090 мм.
  • Высота 400 мм.
  • Вес 12000 кг.
  • Объем бетона 4,8 м3
  • Геометрический объем 6,798 м3
Цена: 162960 руб.
Подробнее
2ФПН 60-4
Плиты фундамента Серия 3.505.1-15
  • Длина 6000 мм.
  • Ширина 3090 мм.
  • Высота 400 мм.
  • Вес 13500 кг.
  • Объем бетона 5,4 м3
  • Геометрический объем 7,416 м3
Цена: 183330 руб.
Подробнее
2ФПН 60-4
Плиты фундамента Серия 3.505.1-15
  • Длина 6000 мм.
  • Ширина 3090 мм.
  • Высота 400 мм.
  • Вес 13000 кг.
  • Объем бетона 5,2 м3
  • Геометрический объем 7,416 м3
Цена: 176540 руб.
Подробнее
2ФПН 60-5
Плиты фундамента Серия 3.505.1-15
  • Длина 6000 мм.
  • Ширина 3090 мм.
  • Высота 500 мм.
  • Вес 17000 кг.
  • Объем бетона 6,8 м3
  • Геометрический объем 9,27 м3
Цена: 230860 руб.
Подробнее
2ФПН 60-5
Плиты фундамента Серия 3.505.1-15
  • Длина 6000 мм.
  • Ширина 3090 мм.
  • Высота 500 мм.
  • Вес 16300 кг.
  • Объем бетона 6,52 м3
  • Геометрический объем 9,27 м3
Цена: 221354 руб.
Подробнее
2ФПН 60-5
Плиты фундамента Серия 3.505.1-15
  • Длина 6000 мм.
  • Ширина 3090 мм.
  • Высота 500 мм.
  • Вес 15500 кг.
  • Объем бетона 6,2 м3
  • Геометрический объем 9,27 м3
Цена: 210490 руб.
Подробнее
2ФПН 65-4
Плиты фундамента Серия 3.505.1-15
  • Длина 6500 мм.
  • Ширина 3090 мм.
  • Высота 400 мм.
  • Вес 13800 кг.
  • Объем бетона 5,52 м3
  • Геометрический объем 8,034 м3
Цена: 187404 руб.
Подробнее
2ФПН 65-5
Плиты фундамента Серия 3.505.1-15
  • Длина 6500 мм.
  • Ширина 3090 мм.
  • Высота 500 мм.
  • Вес 17000 кг.
  • Объем бетона 6,8 м3
  • Геометрический объем 10,0425 м3
Цена: 230860 руб.
Подробнее
2ФПН 65-5
Плиты фундамента Серия 3.505.1-15
  • Длина 6500 мм.
  • Ширина 3090 мм.
  • Высота 500 мм.
  • Вес 17800 кг.
  • Объем бетона 7,12 м3
  • Геометрический объем 10,0425 м3
Цена: 241724 руб.
Подробнее
2ФПН 65-4
Плиты фундамента Серия 3.505.1-15
  • Длина 6500 мм.
  • Ширина 3090 мм.
  • Высота 400 мм.
  • Вес 14300 кг.
  • Объем бетона 5,72 м3
  • Геометрический объем 8,034 м3
Цена: 194194 руб.
Подробнее
2ФПН 65-5
Плиты фундамента Серия 3.505.1-15
  • Длина 6500 мм.
  • Ширина 3090 мм.
  • Высота 500 мм.
  • Вес 16300 кг.
  • Объем бетона 6,52 м3
  • Геометрический объем 10,0425 м3
Цена: 221354 руб.
Подробнее
2ФПН 70-4
Плиты фундамента Серия 3.505.1-15
  • Длина 7000 мм.
  • Ширина 3090 мм.
  • Высота 400 мм.
  • Вес 14500 кг.
  • Объем бетона 5,8 м3
  • Геометрический объем 8,652 м3
Цена: 196910 руб.
Подробнее
2ФПН 70-5
Плиты фундамента Серия 3.505.1-15
  • Длина 7000 мм.
  • Ширина 3090 мм.
  • Высота 500 мм.
  • Вес 17300 кг.
  • Объем бетона 6,92 м3
  • Геометрический объем 10,815 м3
Цена: 234934 руб.
Подробнее
2ФПН 70-5
Плиты фундамента Серия 3.505.1-15
  • Длина 7000 мм.
  • Ширина 3090 мм.
  • Высота 500 мм.
  • Вес 18000 кг.
  • Объем бетона 7,2 м3
  • Геометрический объем 10,815 м3
Цена: 244440 руб.
Подробнее
2ФПН 70-5
Плиты фундамента Серия 3.505.1-15
  • Длина 7000 мм.
  • Ширина 3090 мм.
  • Высота 500 мм.
  • Вес 18500 кг.
  • Объем бетона 7,4 м3
  • Геометрический объем 10,815 м3
Цена: 251230 руб.
Подробнее
2ФПН 70-4
Плиты фундамента Серия 3.505.1-15
  • Длина 7000 мм.
  • Ширина 3090 мм.
  • Высота 400 мм.
  • Вес 15000 кг.
  • Объем бетона 6 м3
  • Геометрический объем 8,652 м3
Цена: 203700 руб.
Подробнее
2ФПН 75-5
Плиты фундамента Серия 3.505.1-15
  • Длина 7500 мм.
  • Ширина 3090 мм.
  • Высота 500 мм.
  • Вес 18000 кг.
  • Объем бетона 7,2 м3
  • Геометрический объем 11,5875 м3
Цена: 244440 руб.
Подробнее
2ФПН 75-5
Плиты фундамента Серия 3.505.1-15
  • Длина 7500 мм.
  • Ширина 3090 мм.
  • Высота 500 мм.
  • Вес 18800 кг.
  • Объем бетона 7,52 м3
  • Геометрический объем 11,5875 м3
Цена: 255304 руб.
Подробнее

Уведомление о файлах cookie

Мы используем файлы cookie для улучшения вашего опыта просмотра и анализа трафика. Нажимая "Принять все", вы соглашаетесь с нашей политикой конфиденциальности и политикой обработки файлов cookie.

MAX Дзен Телеграм Вконтакте vk