mobile_sound +7 (930) 655-55-90

Железобетонные опоры линий электропередачи. Рабочие чертежи (Серия 3.505.1-15)

Поделиться:
Поделиться:

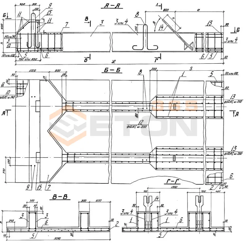
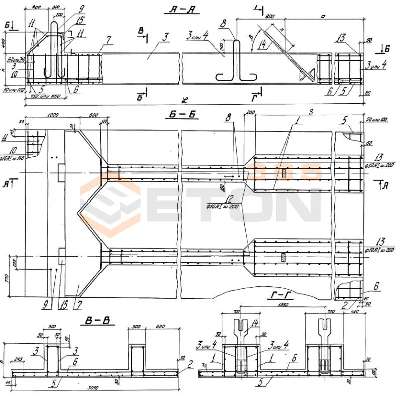
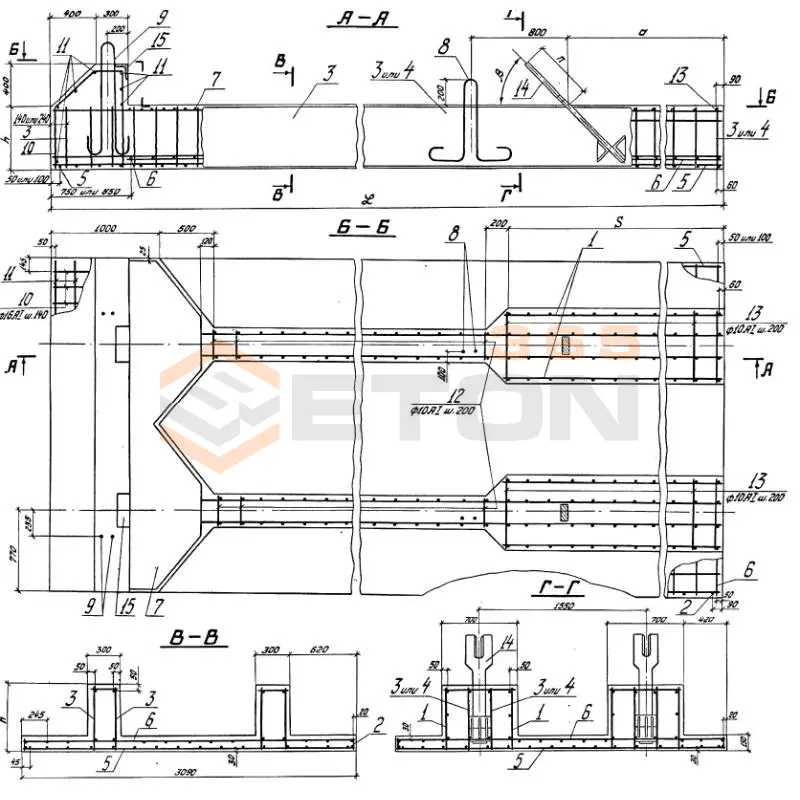
Документ Серия 3.505.1-15 описывает область применения, номенклатуру и ключевые требования, опираясь на действующие нормы и практику проектирования. Серия 3.505.1-15 распространяется на причальные набережные, имеющие высоту от 4 до 15 метров. Регламент детально описывает монтажные схемы вариантов обустройства набережных и определяет и регламентирует опалубочные и арматурные чертежи шпунтов и других железобетонных элементов фундаментов. Донного типа конструкции зарекомендовали себя как эффективные детали, применяемые при строительстве различных причальных сооружений, возводимых на территориях с температурами не ниже -40 градусов.

Файлы для скачивания:
picture_as_pdf

4622.pdf

25,827.6 KB

скачать
picture_as_pdf

4623.pdf

5,312.5 KB

скачать
picture_as_pdf

4624.pdf

18,574.1 KB

скачать
picture_as_pdf

4621.pdf

31,932.7 KB

скачать
picture_as_pdf

4625.pdf

11,095.5 KB

скачать
picture_as_pdf

4626.pdf

23,211.3 KB

скачать
Товары Серия 3.505.1-15 (60)
1ФПО 80-5
Плиты фундамента Серия 3.505.1-15
  • Длина 8000 мм.
  • Ширина 1540 мм.
  • Высота 500 мм.
  • Вес 9800 кг.
  • Объем бетона 3,92 м3
  • Геометрический объем 6,16 м3
Цена: 133084 руб.
Подробнее
1ФПО 80-5
Плиты фундамента Серия 3.505.1-15
  • Длина 8000 мм.
  • Ширина 1540 мм.
  • Высота 500 мм.
  • Вес 10300 кг.
  • Объем бетона 4,12 м3
  • Геометрический объем 6,16 м3
Цена: 139874 руб.
Подробнее
1ФПО 80-6
Плиты фундамента Серия 3.505.1-15
  • Длина 8000 мм.
  • Ширина 1540 мм.
  • Высота 600 мм.
  • Вес 11500 кг.
  • Объем бетона 4,6 м3
  • Геометрический объем 7,392 м3
Цена: 156170 руб.
Подробнее
1ФПО 80-6
Плиты фундамента Серия 3.505.1-15
  • Длина 8000 мм.
  • Ширина 1540 мм.
  • Высота 600 мм.
  • Вес 10500 кг.
  • Объем бетона 4,2 м3
  • Геометрический объем 7,392 м3
Цена: 142590 руб.
Подробнее
1ФПО 80-6
Плиты фундамента Серия 3.505.1-15
  • Длина 8000 мм.
  • Ширина 1540 мм.
  • Высота 600 мм.
  • Вес 12000 кг.
  • Объем бетона 4,8 м3
  • Геометрический объем 7,392 м3
Цена: 162960 руб.
Подробнее
1ФПО 80-6
Плиты фундамента Серия 3.505.1-15
  • Длина 8000 мм.
  • Ширина 1540 мм.
  • Высота 600 мм.
  • Вес 11000 кг.
  • Объем бетона 4,4 м3
  • Геометрический объем 7,392 м3
Цена: 149380 руб.
Подробнее
1ФПО 85-5
Плиты фундамента Серия 3.505.1-15
  • Длина 8500 мм.
  • Ширина 1540 мм.
  • Высота 500 мм.
  • Вес 10500 кг.
  • Объем бетона 4,2 м3
  • Геометрический объем 6,545 м3
Цена: 142590 руб.
Подробнее
1ФПО 85-5
Плиты фундамента Серия 3.505.1-15
  • Длина 8500 мм.
  • Ширина 1540 мм.
  • Высота 500 мм.
  • Вес 10300 кг.
  • Объем бетона 4,12 м3
  • Геометрический объем 6,545 м3
Цена: 139874 руб.
Подробнее
1ФПО 85-5
Плиты фундамента Серия 3.505.1-15
  • Длина 8500 мм.
  • Ширина 1540 мм.
  • Высота 500 мм.
  • Вес 9800 кг.
  • Объем бетона 3,92 м3
  • Геометрический объем 6,545 м3
Цена: 133084 руб.
Подробнее
1ФПО 85-6
Плиты фундамента Серия 3.505.1-15
  • Длина 8500 мм.
  • Ширина 1540 мм.
  • Высота 600 мм.
  • Вес 12300 кг.
  • Объем бетона 4,92 м3
  • Геометрический объем 7,854 м3
Цена: 167034 руб.
Подробнее
1ФПО 85-6
Плиты фундамента Серия 3.505.1-15
  • Длина 8500 мм.
  • Ширина 1540 мм.
  • Высота 600 мм.
  • Вес 11000 кг.
  • Объем бетона 4,4 м3
  • Геометрический объем 7,854 м3
Цена: 149380 руб.
Подробнее
1ФПО 85-6
Плиты фундамента Серия 3.505.1-15
  • Длина 8500 мм.
  • Ширина 1540 мм.
  • Высота 600 мм.
  • Вес 12000 кг.
  • Объем бетона 4,8 м3
  • Геометрический объем 7,854 м3
Цена: 162960 руб.
Подробнее
1ФПО 90-5
Плиты фундамента Серия 3.505.1-15
  • Длина 9000 мм.
  • Ширина 1540 мм.
  • Высота 500 мм.
  • Вес 10500 кг.
  • Объем бетона 4,2 м3
  • Геометрический объем 6,93 м3
Цена: 142590 руб.
Подробнее
1ФПО 85-6
Плиты фундамента Серия 3.505.1-15
  • Длина 8500 мм.
  • Ширина 1540 мм.
  • Высота 600 мм.
  • Вес 11500 кг.
  • Объем бетона 4,6 м3
  • Геометрический объем 7,854 м3
Цена: 156170 руб.
Подробнее
1ФПО 90-5
Плиты фундамента Серия 3.505.1-15
  • Длина 9000 мм.
  • Ширина 1540 мм.
  • Высота 500 мм.
  • Вес 11000 кг.
  • Объем бетона 4,4 м3
  • Геометрический объем 6,93 м3
Цена: 149380 руб.
Подробнее
1ФПО 90-6
Плиты фундамента Серия 3.505.1-15
  • Длина 9000 мм.
  • Ширина 1540 мм.
  • Высота 600 мм.
  • Вес 12800 кг.
  • Объем бетона 5,12 м3
  • Геометрический объем 8,316 м3
Цена: 173824 руб.
Подробнее
1ФПО 90-6
Плиты фундамента Серия 3.505.1-15
  • Длина 9000 мм.
  • Ширина 1540 мм.
  • Высота 600 мм.
  • Вес 12000 кг.
  • Объем бетона 4,8 м3
  • Геометрический объем 8,316 м3
Цена: 162960 руб.
Подробнее
1ФПО 90-7
Плиты фундамента Серия 3.505.1-15
  • Длина 9000 мм.
  • Ширина 1540 мм.
  • Высота 700 мм.
  • Вес 13300 кг.
  • Объем бетона 5,32 м3
  • Геометрический объем 9,702 м3
Цена: 180614 руб.
Подробнее
1ФПО 90-5
Плиты фундамента Серия 3.505.1-15
  • Длина 9000 мм.
  • Ширина 1540 мм.
  • Высота 500 мм.
  • Вес 10300 кг.
  • Объем бетона 4,12 м3
  • Геометрический объем 6,93 м3
Цена: 139874 руб.
Подробнее
1ФПО 90-6
Плиты фундамента Серия 3.505.1-15
  • Длина 9000 мм.
  • Ширина 1540 мм.
  • Высота 600 мм.
  • Вес 12300 кг.
  • Объем бетона 4,92 м3
  • Геометрический объем 8,316 м3
Цена: 167034 руб.
Подробнее
1ФПО 90-7
Плиты фундамента Серия 3.505.1-15
  • Длина 9000 мм.
  • Ширина 1540 мм.
  • Высота 700 мм.
  • Вес 13800 кг.
  • Объем бетона 5,52 м3
  • Геометрический объем 9,702 м3
Цена: 187404 руб.
Подробнее
1ФПО 90-6
Плиты фундамента Серия 3.505.1-15
  • Длина 9000 мм.
  • Ширина 1540 мм.
  • Высота 600 мм.
  • Вес 11500 кг.
  • Объем бетона 4,6 м3
  • Геометрический объем 8,316 м3
Цена: 156170 руб.
Подробнее
1ФПО 90-7
Плиты фундамента Серия 3.505.1-15
  • Длина 9000 мм.
  • Ширина 1540 мм.
  • Высота 700 мм.
  • Вес 14300 кг.
  • Объем бетона 5,72 м3
  • Геометрический объем 9,702 м3
Цена: 194194 руб.
Подробнее
1ФПО 95-5
Плиты фундамента Серия 3.505.1-15
  • Длина 9500 мм.
  • Ширина 1540 мм.
  • Высота 500 мм.
  • Вес 11500 кг.
  • Объем бетона 4,6 м3
  • Геометрический объем 7,315 м3
Цена: 156170 руб.
Подробнее
1ФПО 95-5
Плиты фундамента Серия 3.505.1-15
  • Длина 9500 мм.
  • Ширина 1540 мм.
  • Высота 500 мм.
  • Вес 10800 кг.
  • Объем бетона 4,32 м3
  • Геометрический объем 7,315 м3
Цена: 146664 руб.
Подробнее
1ФПО 95-5
Плиты фундамента Серия 3.505.1-15
  • Длина 9500 мм.
  • Ширина 1540 мм.
  • Высота 500 мм.
  • Вес 11000 кг.
  • Объем бетона 4,4 м3
  • Геометрический объем 7,315 м3
Цена: 149380 руб.
Подробнее
1ФПО 95-6
Плиты фундамента Серия 3.505.1-15
  • Длина 9500 мм.
  • Ширина 1540 мм.
  • Высота 600 мм.
  • Вес 12300 кг.
  • Объем бетона 4,92 м3
  • Геометрический объем 8,778 м3
Цена: 167034 руб.
Подробнее
1ФПО 95-6
Плиты фундамента Серия 3.505.1-15
  • Длина 9500 мм.
  • Ширина 1540 мм.
  • Высота 600 мм.
  • Вес 12000 кг.
  • Объем бетона 4,8 м3
  • Геометрический объем 8,778 м3
Цена: 162960 руб.
Подробнее
1ФПО 95-6
Плиты фундамента Серия 3.505.1-15
  • Длина 9500 мм.
  • Ширина 1540 мм.
  • Высота 600 мм.
  • Вес 12800 кг.
  • Объем бетона 5,12 м3
  • Геометрический объем 8,778 м3
Цена: 173824 руб.
Подробнее
1ФПО 95-7
Плиты фундамента Серия 3.505.1-15
  • Длина 9500 мм.
  • Ширина 1540 мм.
  • Высота 700 мм.
  • Вес 14300 кг.
  • Объем бетона 5,72 м3
  • Геометрический объем 10,241 м3
Цена: 194194 руб.
Подробнее
1ФПО 95-6
Плиты фундамента Серия 3.505.1-15
  • Длина 9500 мм.
  • Ширина 1540 мм.
  • Высота 600 мм.
  • Вес 13300 кг.
  • Объем бетона 5,32 м3
  • Геометрический объем 8,778 м3
Цена: 180614 руб.
Подробнее
1ФПО 95-7
Плиты фундамента Серия 3.505.1-15
  • Длина 9500 мм.
  • Ширина 1540 мм.
  • Высота 700 мм.
  • Вес 14800 кг.
  • Объем бетона 5,92 м3
  • Геометрический объем 10,241 м3
Цена: 200984 руб.
Подробнее
1ФПО 95-7
Плиты фундамента Серия 3.505.1-15
  • Длина 9500 мм.
  • Ширина 1540 мм.
  • Высота 700 мм.
  • Вес 13800 кг.
  • Объем бетона 5,52 м3
  • Геометрический объем 10,241 м3
Цена: 187404 руб.
Подробнее
2ФПБ 100-5
Плиты фундамента Серия 3.505.1-15
  • Длина 10000 мм.
  • Ширина 3090 мм.
  • Высота 500 мм.
  • Вес 23800 кг.
  • Объем бетона 9,52 м3
  • Геометрический объем 15,45 м3
Цена: 323204 руб.
Подробнее
2ФПБ 100-5
Плиты фундамента Серия 3.505.1-15
  • Длина 10000 мм.
  • Ширина 3090 мм.
  • Высота 500 мм.
  • Вес 23000 кг.
  • Объем бетона 9,2 м3
  • Геометрический объем 15,45 м3
Цена: 312340 руб.
Подробнее
2ФПБ 100-5
Плиты фундамента Серия 3.505.1-15
  • Длина 10000 мм.
  • Ширина 3090 мм.
  • Высота 500 мм.
  • Вес 22300 кг.
  • Объем бетона 8,92 м3
  • Геометрический объем 15,45 м3
Цена: 302834 руб.
Подробнее
2ФПБ 100-6
Плиты фундамента Серия 3.505.1-15
  • Длина 10000 мм.
  • Ширина 3090 мм.
  • Высота 600 мм.
  • Вес 26800 кг.
  • Объем бетона 10,72 м3
  • Геометрический объем 18,54 м3
Цена: 363944 руб.
Подробнее
2ФПБ 100-6
Плиты фундамента Серия 3.505.1-15
  • Длина 10000 мм.
  • Ширина 3090 мм.
  • Высота 600 мм.
  • Вес 27500 кг.
  • Объем бетона 11 м3
  • Геометрический объем 18,54 м3
Цена: 373450 руб.
Подробнее
2ФПБ 100-6
Плиты фундамента Серия 3.505.1-15
  • Длина 10000 мм.
  • Ширина 3090 мм.
  • Высота 600 мм.
  • Вес 24800 кг.
  • Объем бетона 9,92 м3
  • Геометрический объем 18,54 м3
Цена: 336784 руб.
Подробнее
2ФПБ 100-6
Плиты фундамента Серия 3.505.1-15
  • Длина 10000 мм.
  • Ширина 3090 мм.
  • Высота 600 мм.
  • Вес 25800 кг.
  • Объем бетона 10,32 м3
  • Геометрический объем 18,54 м3
Цена: 350364 руб.
Подробнее
2ФПБ 100-7
Плиты фундамента Серия 3.505.1-15
  • Длина 10000 мм.
  • Ширина 3090 мм.
  • Высота 700 мм.
  • Вес 30800 кг.
  • Объем бетона 12,32 м3
  • Геометрический объем 21,63 м3
Цена: 418264 руб.
Подробнее
2ФПБ 100-7
Плиты фундамента Серия 3.505.1-15
  • Длина 10000 мм.
  • Ширина 3090 мм.
  • Высота 700 мм.
  • Вес 28500 кг.
  • Объем бетона 11,4 м3
  • Геометрический объем 21,63 м3
Цена: 387030 руб.
Подробнее
2ФПБ 100-7
Плиты фундамента Серия 3.505.1-15
  • Длина 10000 мм.
  • Ширина 3090 мм.
  • Высота 700 мм.
  • Вес 29800 кг.
  • Объем бетона 11,92 м3
  • Геометрический объем 21,63 м3
Цена: 404684 руб.
Подробнее
2ФПБ 105-5
Плиты фундамента Серия 3.505.1-15
  • Длина 10500 мм.
  • Ширина 3090 мм.
  • Высота 500 мм.
  • Вес 24500 кг.
  • Объем бетона 9,8 м3
  • Геометрический объем 16,2225 м3
Цена: 332710 руб.
Подробнее
2ФПБ 105-5
Плиты фундамента Серия 3.505.1-15
  • Длина 10500 мм.
  • Ширина 3090 мм.
  • Высота 500 мм.
  • Вес 23800 кг.
  • Объем бетона 9,52 м3
  • Геометрический объем 16,2225 м3
Цена: 323204 руб.
Подробнее
2ФПБ 105-5
Плиты фундамента Серия 3.505.1-15
  • Длина 10500 мм.
  • Ширина 3090 мм.
  • Высота 500 мм.
  • Вес 23000 кг.
  • Объем бетона 9,2 м3
  • Геометрический объем 16,2225 м3
Цена: 312340 руб.
Подробнее
2ФПБ 105-6
Плиты фундамента Серия 3.505.1-15
  • Длина 10500 мм.
  • Ширина 3090 мм.
  • Высота 600 мм.
  • Вес 25800 кг.
  • Объем бетона 10,32 м3
  • Геометрический объем 19,467 м3
Цена: 350364 руб.
Подробнее
2ФПБ 105-6
Плиты фундамента Серия 3.505.1-15
  • Длина 10500 мм.
  • Ширина 3090 мм.
  • Высота 600 мм.
  • Вес 27500 кг.
  • Объем бетона 11 м3
  • Геометрический объем 19,467 м3
Цена: 373450 руб.
Подробнее
2ФПБ 105-6
Плиты фундамента Серия 3.505.1-15
  • Длина 10500 мм.
  • Ширина 3090 мм.
  • Высота 600 мм.
  • Вес 26800 кг.
  • Объем бетона 10,72 м3
  • Геометрический объем 19,467 м3
Цена: 363944 руб.
Подробнее
2ФПБ 105-6
Плиты фундамента Серия 3.505.1-15
  • Длина 10500 мм.
  • Ширина 3090 мм.
  • Высота 600 мм.
  • Вес 28500 кг.
  • Объем бетона 11,4 м3
  • Геометрический объем 19,467 м3
Цена: 387030 руб.
Подробнее
2ФПБ 105-7
Плиты фундамента Серия 3.505.1-15
  • Длина 10500 мм.
  • Ширина 3090 мм.
  • Высота 700 мм.
  • Вес 30800 кг.
  • Объем бетона 12,32 м3
  • Геометрический объем 22,7115 м3
Цена: 418264 руб.
Подробнее
2ФПБ 105-7
Плиты фундамента Серия 3.505.1-15
  • Длина 10500 мм.
  • Ширина 3090 мм.
  • Высота 700 мм.
  • Вес 31800 кг.
  • Объем бетона 12,72 м3
  • Геометрический объем 22,7115 м3
Цена: 431844 руб.
Подробнее
2ФПБ 105-7
Плиты фундамента Серия 3.505.1-15
  • Длина 10500 мм.
  • Ширина 3090 мм.
  • Высота 700 мм.
  • Вес 29500 кг.
  • Объем бетона 11,8 м3
  • Геометрический объем 22,7115 м3
Цена: 400610 руб.
Подробнее
2ФПБ 110-6
Плиты фундамента Серия 3.505.1-15
  • Длина 11000 мм.
  • Ширина 3090 мм.
  • Высота 600 мм.
  • Вес 29300 кг.
  • Объем бетона 11,72 м3
  • Геометрический объем 20,394 м3
Цена: 397894 руб.
Подробнее
2ФПБ 110-6
Плиты фундамента Серия 3.505.1-15
  • Длина 11000 мм.
  • Ширина 3090 мм.
  • Высота 600 мм.
  • Вес 27500 кг.
  • Объем бетона 11 м3
  • Геометрический объем 20,394 м3
Цена: 373450 руб.
Подробнее
2ФПБ 110-6
Плиты фундамента Серия 3.505.1-15
  • Длина 11000 мм.
  • Ширина 3090 мм.
  • Высота 600 мм.
  • Вес 28500 кг.
  • Объем бетона 11,4 м3
  • Геометрический объем 20,394 м3
Цена: 387030 руб.
Подробнее
2ФПБ 110-6
Плиты фундамента Серия 3.505.1-15
  • Длина 11000 мм.
  • Ширина 3090 мм.
  • Высота 600 мм.
  • Вес 26800 кг.
  • Объем бетона 10,72 м3
  • Геометрический объем 20,394 м3
Цена: 363944 руб.
Подробнее
2ФПБ 110-7
Плиты фундамента Серия 3.505.1-15
  • Длина 11000 мм.
  • Ширина 3090 мм.
  • Высота 700 мм.
  • Вес 31800 кг.
  • Объем бетона 12,72 м3
  • Геометрический объем 23,793 м3
Цена: 431844 руб.
Подробнее
2ФПБ 110-7
Плиты фундамента Серия 3.505.1-15
  • Длина 11000 мм.
  • Ширина 3090 мм.
  • Высота 700 мм.
  • Вес 30500 кг.
  • Объем бетона 12,2 м3
  • Геометрический объем 23,793 м3
Цена: 414190 руб.
Подробнее
2ФПБ 110-7
Плиты фундамента Серия 3.505.1-15
  • Длина 11000 мм.
  • Ширина 3090 мм.
  • Высота 700 мм.
  • Вес 32800 кг.
  • Объем бетона 13,12 м3
  • Геометрический объем 23,793 м3
Цена: 445424 руб.
Подробнее

Уведомление о файлах cookie

Мы используем файлы cookie для улучшения вашего опыта просмотра и анализа трафика. Нажимая "Принять все", вы соглашаетесь с нашей политикой конфиденциальности и политикой обработки файлов cookie.

MAX Дзен Телеграм Вконтакте vk