mobile_sound +7 (930) 655-55-90

Железобетонные опоры линий электропередачи. Рабочие чертежи (Серия 3.505.1-15)

Поделиться:
Поделиться:

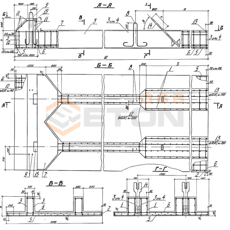
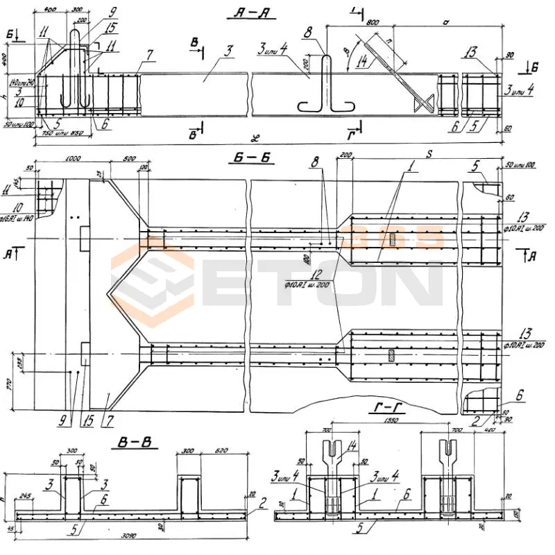
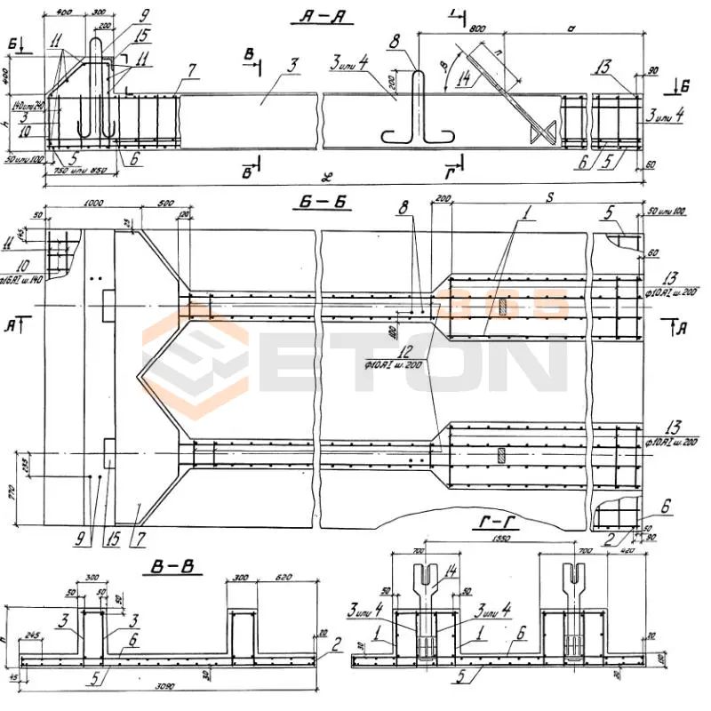
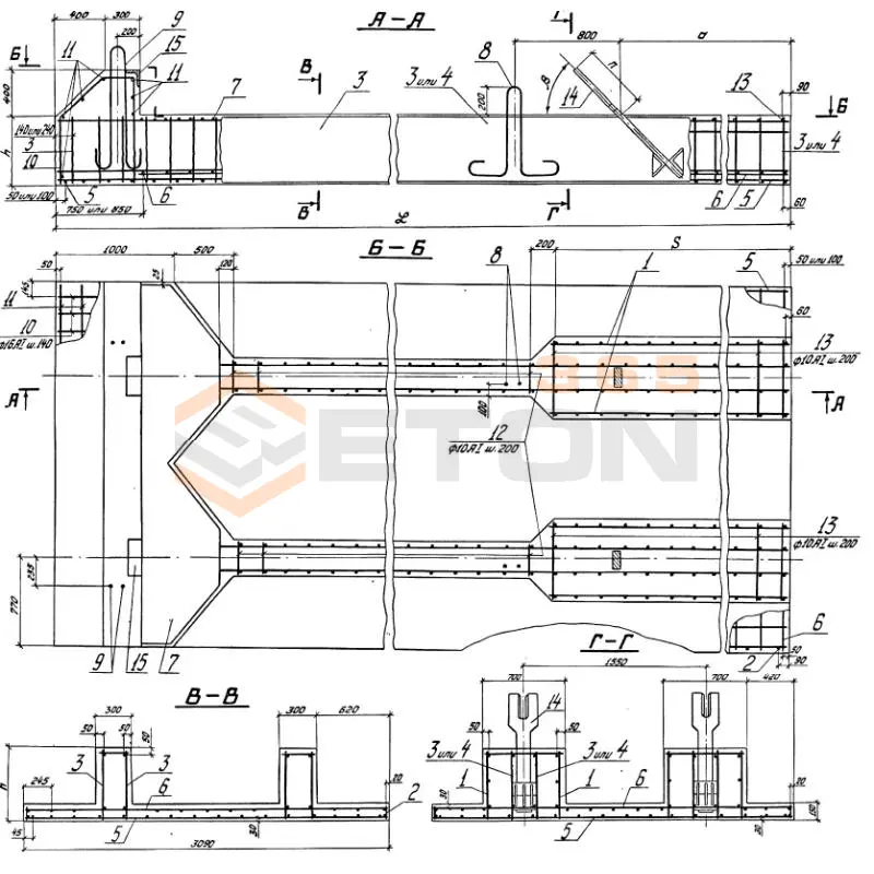
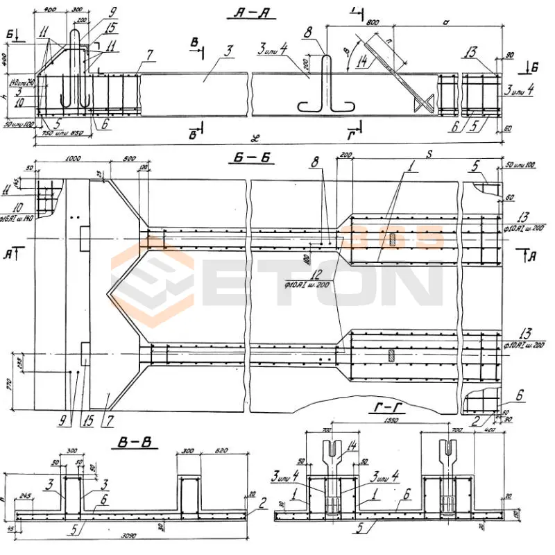
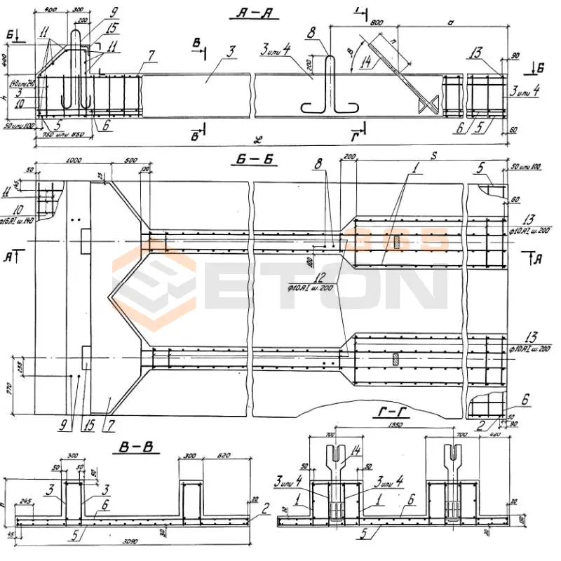
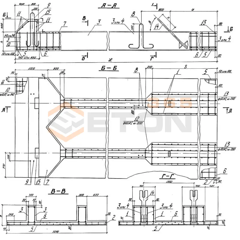
Документ Серия 3.505.1-15 описывает область применения, номенклатуру и ключевые требования, опираясь на действующие нормы и практику проектирования. Серия 3.505.1-15 распространяется на причальные набережные, имеющие высоту от 4 до 15 метров. Регламент детально описывает монтажные схемы вариантов обустройства набережных и определяет и регламентирует опалубочные и арматурные чертежи шпунтов и других железобетонных элементов фундаментов. Донного типа конструкции зарекомендовали себя как эффективные детали, применяемые при строительстве различных причальных сооружений, возводимых на территориях с температурами не ниже -40 градусов.

Файлы для скачивания:
picture_as_pdf

4622.pdf

25,827.6 KB

скачать
picture_as_pdf

4623.pdf

5,312.5 KB

скачать
picture_as_pdf

4624.pdf

18,574.1 KB

скачать
picture_as_pdf

4621.pdf

31,932.7 KB

скачать
picture_as_pdf

4625.pdf

11,095.5 KB

скачать
picture_as_pdf

4626.pdf

23,211.3 KB

скачать
Товары Серия 3.505.1-15 (60)
2ФПО 75-5
Плиты фундамента Серия 3.505.1-15
  • Длина 7500 мм.
  • Ширина 3090 мм.
  • Высота 500 мм.
  • Вес 18000 кг.
  • Объем бетона 7,2 м3
  • Геометрический объем 11,5875 м3
Цена: 244440 руб.
Подробнее
2ФПО 75-5
Плиты фундамента Серия 3.505.1-15
  • Длина 7500 мм.
  • Ширина 3090 мм.
  • Высота 500 мм.
  • Вес 18800 кг.
  • Объем бетона 7,52 м3
  • Геометрический объем 11,5875 м3
Цена: 255304 руб.
Подробнее
2ФПО 75-5
Плиты фундамента Серия 3.505.1-15
  • Длина 7500 мм.
  • Ширина 3090 мм.
  • Высота 500 мм.
  • Вес 19500 кг.
  • Объем бетона 7,8 м3
  • Геометрический объем 11,5875 м3
Цена: 264810 руб.
Подробнее
2ФПО 75-6
Плиты фундамента Серия 3.505.1-15
  • Длина 7500 мм.
  • Ширина 3090 мм.
  • Высота 600 мм.
  • Вес 23000 кг.
  • Объем бетона 9,2 м3
  • Геометрический объем 13,905 м3
Цена: 312340 руб.
Подробнее
2ФПО 75-6
Плиты фундамента Серия 3.505.1-15
  • Длина 7500 мм.
  • Ширина 3090 мм.
  • Высота 600 мм.
  • Вес 22000 кг.
  • Объем бетона 8,8 м3
  • Геометрический объем 13,905 м3
Цена: 298760 руб.
Подробнее
2ФПО 75-6
Плиты фундамента Серия 3.505.1-15
  • Длина 7500 мм.
  • Ширина 3090 мм.
  • Высота 600 мм.
  • Вес 21300 кг.
  • Объем бетона 8,52 м3
  • Геометрический объем 13,905 м3
Цена: 289254 руб.
Подробнее
2ФПО 75-6
Плиты фундамента Серия 3.505.1-15
  • Длина 7500 мм.
  • Ширина 3090 мм.
  • Высота 600 мм.
  • Вес 20300 кг.
  • Объем бетона 8,12 м3
  • Геометрический объем 13,905 м3
Цена: 275674 руб.
Подробнее
2ФПО 80-5
Плиты фундамента Серия 3.505.1-15
  • Длина 8000 мм.
  • Ширина 3090 мм.
  • Высота 500 мм.
  • Вес 18800 кг.
  • Объем бетона 7,52 м3
  • Геометрический объем 12,36 м3
Цена: 255304 руб.
Подробнее
2ФПО 80-5
Плиты фундамента Серия 3.505.1-15
  • Длина 8000 мм.
  • Ширина 3090 мм.
  • Высота 500 мм.
  • Вес 20300 кг.
  • Объем бетона 8,12 м3
  • Геометрический объем 12,36 м3
Цена: 275674 руб.
Подробнее
2ФПО 80-5
Плиты фундамента Серия 3.505.1-15
  • Длина 8000 мм.
  • Ширина 3090 мм.
  • Высота 500 мм.
  • Вес 19500 кг.
  • Объем бетона 7,8 м3
  • Геометрический объем 12,36 м3
Цена: 264810 руб.
Подробнее
2ФПО 80-6
Плиты фундамента Серия 3.505.1-15
  • Длина 8000 мм.
  • Ширина 3090 мм.
  • Высота 600 мм.
  • Вес 21300 кг.
  • Объем бетона 8,52 м3
  • Геометрический объем 14,832 м3
Цена: 289254 руб.
Подробнее
2ФПО 80-6
Плиты фундамента Серия 3.505.1-15
  • Длина 8000 мм.
  • Ширина 3090 мм.
  • Высота 600 мм.
  • Вес 22000 кг.
  • Объем бетона 8,8 м3
  • Геометрический объем 14,832 м3
Цена: 298760 руб.
Подробнее
2ФПО 80-6
Плиты фундамента Серия 3.505.1-15
  • Длина 8000 мм.
  • Ширина 3090 мм.
  • Высота 600 мм.
  • Вес 23000 кг.
  • Объем бетона 9,2 м3
  • Геометрический объем 14,832 м3
Цена: 312340 руб.
Подробнее
2ФПО 85-5
Плиты фундамента Серия 3.505.1-15
  • Длина 8500 мм.
  • Ширина 3090 мм.
  • Высота 500 мм.
  • Вес 19800 кг.
  • Объем бетона 7,92 м3
  • Геометрический объем 13,1325 м3
Цена: 268884 руб.
Подробнее
2ФПО 85-5
Плиты фундамента Серия 3.505.1-15
  • Длина 8500 мм.
  • Ширина 3090 мм.
  • Высота 500 мм.
  • Вес 20500 кг.
  • Объем бетона 8,2 м3
  • Геометрический объем 13,1325 м3
Цена: 278390 руб.
Подробнее
2ФПО 80-6
Плиты фундамента Серия 3.505.1-15
  • Длина 8000 мм.
  • Ширина 3090 мм.
  • Высота 600 мм.
  • Вес 23800 кг.
  • Объем бетона 9,52 м3
  • Геометрический объем 14,832 м3
Цена: 323204 руб.
Подробнее
2ФПО 85-5
Плиты фундамента Серия 3.505.1-15
  • Длина 8500 мм.
  • Ширина 3090 мм.
  • Высота 500 мм.
  • Вес 21000 кг.
  • Объем бетона 8,4 м3
  • Геометрический объем 13,1325 м3
Цена: 285180 руб.
Подробнее
2ФПО 85-6
Плиты фундамента Серия 3.505.1-15
  • Длина 8500 мм.
  • Ширина 3090 мм.
  • Высота 600 мм.
  • Вес 24800 кг.
  • Объем бетона 9,92 м3
  • Геометрический объем 15,759 м3
Цена: 336784 руб.
Подробнее
2ФПО 85-6
Плиты фундамента Серия 3.505.1-15
  • Длина 8500 мм.
  • Ширина 3090 мм.
  • Высота 600 мм.
  • Вес 22000 кг.
  • Объем бетона 8,8 м3
  • Геометрический объем 15,759 м3
Цена: 298760 руб.
Подробнее
2ФПО 85-6
Плиты фундамента Серия 3.505.1-15
  • Длина 8500 мм.
  • Ширина 3090 мм.
  • Высота 600 мм.
  • Вес 24000 кг.
  • Объем бетона 9,6 м3
  • Геометрический объем 15,759 м3
Цена: 325920 руб.
Подробнее
2ФПО 90-5
Плиты фундамента Серия 3.505.1-15
  • Длина 9000 мм.
  • Ширина 3090 мм.
  • Высота 500 мм.
  • Вес 22000 кг.
  • Объем бетона 8,8 м3
  • Геометрический объем 13,905 м3
Цена: 298760 руб.
Подробнее
2ФПО 90-5
Плиты фундамента Серия 3.505.1-15
  • Длина 9000 мм.
  • Ширина 3090 мм.
  • Высота 500 мм.
  • Вес 20500 кг.
  • Объем бетона 8,2 м3
  • Геометрический объем 13,905 м3
Цена: 278390 руб.
Подробнее
2ФПО 90-6
Плиты фундамента Серия 3.505.1-15
  • Длина 9000 мм.
  • Ширина 3090 мм.
  • Высота 600 мм.
  • Вес 24000 кг.
  • Объем бетона 9,6 м3
  • Геометрический объем 16,686 м3
Цена: 325920 руб.
Подробнее
2ФПО 90-6
Плиты фундамента Серия 3.505.1-15
  • Длина 9000 мм.
  • Ширина 3090 мм.
  • Высота 600 мм.
  • Вес 24800 кг.
  • Объем бетона 9,92 м3
  • Геометрический объем 16,686 м3
Цена: 336784 руб.
Подробнее
2ФПО 85-6
Плиты фундамента Серия 3.505.1-15
  • Длина 8500 мм.
  • Ширина 3090 мм.
  • Высота 600 мм.
  • Вес 23000 кг.
  • Объем бетона 9,2 м3
  • Геометрический объем 15,759 м3
Цена: 312340 руб.
Подробнее
2ФПО 90-5
Плиты фундамента Серия 3.505.1-15
  • Длина 9000 мм.
  • Ширина 3090 мм.
  • Высота 500 мм.
  • Вес 21300 кг.
  • Объем бетона 8,52 м3
  • Геометрический объем 13,905 м3
Цена: 289254 руб.
Подробнее
2ФПО 90-6
Плиты фундамента Серия 3.505.1-15
  • Длина 9000 мм.
  • Ширина 3090 мм.
  • Высота 600 мм.
  • Вес 25800 кг.
  • Объем бетона 10,32 м3
  • Геометрический объем 16,686 м3
Цена: 350364 руб.
Подробнее
2ФПО 90-7
Плиты фундамента Серия 3.505.1-15
  • Длина 9000 мм.
  • Ширина 3090 мм.
  • Высота 700 мм.
  • Вес 26500 кг.
  • Объем бетона 10,6 м3
  • Геометрический объем 19,467 м3
Цена: 359870 руб.
Подробнее
2ФПО 95-5
Плиты фундамента Серия 3.505.1-15
  • Длина 9500 мм.
  • Ширина 3090 мм.
  • Высота 500 мм.
  • Вес 22800 кг.
  • Объем бетона 9,12 м3
  • Геометрический объем 14,6775 м3
Цена: 309624 руб.
Подробнее
2ФПО 90-6
Плиты фундамента Серия 3.505.1-15
  • Длина 9000 мм.
  • Ширина 3090 мм.
  • Высота 600 мм.
  • Вес 23000 кг.
  • Объем бетона 9,2 м3
  • Геометрический объем 16,686 м3
Цена: 312340 руб.
Подробнее
2ФПО 95-5
Плиты фундамента Серия 3.505.1-15
  • Длина 9500 мм.
  • Ширина 3090 мм.
  • Высота 500 мм.
  • Вес 22000 кг.
  • Объем бетона 8,8 м3
  • Геометрический объем 14,6775 м3
Цена: 298760 руб.
Подробнее
2ФПО 90-7
Плиты фундамента Серия 3.505.1-15
  • Длина 9000 мм.
  • Ширина 3090 мм.
  • Высота 700 мм.
  • Вес 27800 кг.
  • Объем бетона 11,12 м3
  • Геометрический объем 19,467 м3
Цена: 377524 руб.
Подробнее
2ФПО 90-7
Плиты фундамента Серия 3.505.1-15
  • Длина 9000 мм.
  • Ширина 3090 мм.
  • Высота 700 мм.
  • Вес 28800 кг.
  • Объем бетона 11,52 м3
  • Геометрический объем 19,467 м3
Цена: 391104 руб.
Подробнее
2ФПО 95-5
Плиты фундамента Серия 3.505.1-15
  • Длина 9500 мм.
  • Ширина 3090 мм.
  • Высота 500 мм.
  • Вес 21500 кг.
  • Объем бетона 8,6 м3
  • Геометрический объем 14,6775 м3
Цена: 291970 руб.
Подробнее
2ФПО 95-6
Плиты фундамента Серия 3.505.1-15
  • Длина 9500 мм.
  • Ширина 3090 мм.
  • Высота 600 мм.
  • Вес 25800 кг.
  • Объем бетона 10,32 м3
  • Геометрический объем 17,613 м3
Цена: 350364 руб.
Подробнее
2ФПО 95-6
Плиты фундамента Серия 3.505.1-15
  • Длина 9500 мм.
  • Ширина 3090 мм.
  • Высота 600 мм.
  • Вес 26500 кг.
  • Объем бетона 10,6 м3
  • Геометрический объем 17,613 м3
Цена: 359870 руб.
Подробнее
2ФПО 95-6
Плиты фундамента Серия 3.505.1-15
  • Длина 9500 мм.
  • Ширина 3090 мм.
  • Высота 600 мм.
  • Вес 24000 кг.
  • Объем бетона 9,6 м3
  • Геометрический объем 17,613 м3
Цена: 325920 руб.
Подробнее
2ФПО 95-6
Плиты фундамента Серия 3.505.1-15
  • Длина 9500 мм.
  • Ширина 3090 мм.
  • Высота 600 мм.
  • Вес 24800 кг.
  • Объем бетона 9,92 м3
  • Геометрический объем 17,613 м3
Цена: 336784 руб.
Подробнее
2ФПО 95-7
Плиты фундамента Серия 3.505.1-15
  • Длина 9500 мм.
  • Ширина 3090 мм.
  • Высота 700 мм.
  • Вес 29800 кг.
  • Объем бетона 11,92 м3
  • Геометрический объем 20,5485 м3
Цена: 404684 руб.
Подробнее
2ФПО 95-7
Плиты фундамента Серия 3.505.1-15
  • Длина 9500 мм.
  • Ширина 3090 мм.
  • Высота 700 мм.
  • Вес 27500 кг.
  • Объем бетона 11 м3
  • Геометрический объем 20,5485 м3
Цена: 373450 руб.
Подробнее
ФКБ 100-5
Плиты фундамента Серия 3.505.1-15
  • Длина 10000 мм.
  • Ширина 1540 мм.
  • Высота 500 мм.
  • Вес 10000 кг.
  • Объем бетона 4 м3
  • Геометрический объем 7,7 м3
Цена: 135800 руб.
Подробнее
ФКБ 100-5
Плиты фундамента Серия 3.505.1-15
  • Длина 10000 мм.
  • Ширина 1540 мм.
  • Высота 500 мм.
  • Вес 9500 кг.
  • Объем бетона 3,8 м3
  • Геометрический объем 7,7 м3
Цена: 129010 руб.
Подробнее
2ФПО 95-7
Плиты фундамента Серия 3.505.1-15
  • Длина 9500 мм.
  • Ширина 3090 мм.
  • Высота 700 мм.
  • Вес 28800 кг.
  • Объем бетона 11,52 м3
  • Геометрический объем 20,5485 м3
Цена: 391104 руб.
Подробнее
ФКБ 100-5
Плиты фундамента Серия 3.505.1-15
  • Длина 10000 мм.
  • Ширина 1540 мм.
  • Высота 500 мм.
  • Вес 9300 кг.
  • Объем бетона 3,72 м3
  • Геометрический объем 7,7 м3
Цена: 126294 руб.
Подробнее
ФКБ 100-6
Плиты фундамента Серия 3.505.1-15
  • Длина 10000 мм.
  • Ширина 1540 мм.
  • Высота 600 мм.
  • Вес 12300 кг.
  • Объем бетона 4,92 м3
  • Геометрический объем 9,24 м3
Цена: 167034 руб.
Подробнее
ФКБ 100-6
Плиты фундамента Серия 3.505.1-15
  • Длина 10000 мм.
  • Ширина 1540 мм.
  • Высота 600 мм.
  • Вес 11000 кг.
  • Объем бетона 4,4 м3
  • Геометрический объем 9,24 м3
Цена: 149380 руб.
Подробнее
ФКБ 100-6
Плиты фундамента Серия 3.505.1-15
  • Длина 10000 мм.
  • Ширина 1540 мм.
  • Высота 600 мм.
  • Вес 11500 кг.
  • Объем бетона 4,6 м3
  • Геометрический объем 9,24 м3
Цена: 156170 руб.
Подробнее
ФКБ 100-7
Плиты фундамента Серия 3.505.1-15
  • Длина 10000 мм.
  • Ширина 1540 мм.
  • Высота 700 мм.
  • Вес 14000 кг.
  • Объем бетона 5,6 м3
  • Геометрический объем 10,78 м3
Цена: 190120 руб.
Подробнее
ФКБ 100-7
Плиты фундамента Серия 3.505.1-15
  • Длина 10000 мм.
  • Ширина 1540 мм.
  • Высота 700 мм.
  • Вес 12300 кг.
  • Объем бетона 4,92 м3
  • Геометрический объем 10,78 м3
Цена: 167034 руб.
Подробнее
ФКБ 100-6
Плиты фундамента Серия 3.505.1-15
  • Длина 10000 мм.
  • Ширина 1540 мм.
  • Высота 600 мм.
  • Вес 10500 кг.
  • Объем бетона 4,2 м3
  • Геометрический объем 9,24 м3
Цена: 142590 руб.
Подробнее
ФКБ 105-5
Плиты фундамента Серия 3.505.1-15
  • Длина 10500 мм.
  • Ширина 1540 мм.
  • Высота 500 мм.
  • Вес 9800 кг.
  • Объем бетона 3,92 м3
  • Геометрический объем 8,085 м3
Цена: 133084 руб.
Подробнее
ФКБ 100-7
Плиты фундамента Серия 3.505.1-15
  • Длина 10000 мм.
  • Ширина 1540 мм.
  • Высота 700 мм.
  • Вес 13000 кг.
  • Объем бетона 5,2 м3
  • Геометрический объем 10,78 м3
Цена: 176540 руб.
Подробнее
ФКБ 105-5
Плиты фундамента Серия 3.505.1-15
  • Длина 10500 мм.
  • Ширина 1540 мм.
  • Высота 500 мм.
  • Вес 9500 кг.
  • Объем бетона 3,8 м3
  • Геометрический объем 8,085 м3
Цена: 129010 руб.
Подробнее
ФКБ 105-5
Плиты фундамента Серия 3.505.1-15
  • Длина 10500 мм.
  • Ширина 1540 мм.
  • Высота 500 мм.
  • Вес 10300 кг.
  • Объем бетона 4,12 м3
  • Геометрический объем 8,085 м3
Цена: 139874 руб.
Подробнее
ФКБ 105-6
Плиты фундамента Серия 3.505.1-15
  • Длина 10500 мм.
  • Ширина 1540 мм.
  • Высота 600 мм.
  • Вес 11300 кг.
  • Объем бетона 4,52 м3
  • Геометрический объем 9,702 м3
Цена: 153454 руб.
Подробнее
ФКБ 105-6
Плиты фундамента Серия 3.505.1-15
  • Длина 10500 мм.
  • Ширина 1540 мм.
  • Высота 600 мм.
  • Вес 10800 кг.
  • Объем бетона 4,32 м3
  • Геометрический объем 9,702 м3
Цена: 146664 руб.
Подробнее
ФКБ 105-6
Плиты фундамента Серия 3.505.1-15
  • Длина 10500 мм.
  • Ширина 1540 мм.
  • Высота 600 мм.
  • Вес 12500 кг.
  • Объем бетона 5 м3
  • Геометрический объем 9,702 м3
Цена: 169750 руб.
Подробнее
ФКБ 105-6
Плиты фундамента Серия 3.505.1-15
  • Длина 10500 мм.
  • Ширина 1540 мм.
  • Высота 600 мм.
  • Вес 12000 кг.
  • Объем бетона 4,8 м3
  • Геометрический объем 9,702 м3
Цена: 162960 руб.
Подробнее
ФКБ 105-7
Плиты фундамента Серия 3.505.1-15
  • Длина 10500 мм.
  • Ширина 1540 мм.
  • Высота 700 мм.
  • Вес 14300 кг.
  • Объем бетона 5,72 м3
  • Геометрический объем 11,319 м3
Цена: 194194 руб.
Подробнее
ФКБ 105-7
Плиты фундамента Серия 3.505.1-15
  • Длина 10500 мм.
  • Ширина 1540 мм.
  • Высота 700 мм.
  • Вес 12800 кг.
  • Объем бетона 5,12 м3
  • Геометрический объем 11,319 м3
Цена: 173824 руб.
Подробнее

Уведомление о файлах cookie

Мы используем файлы cookie для улучшения вашего опыта просмотра и анализа трафика. Нажимая "Принять все", вы соглашаетесь с нашей политикой конфиденциальности и политикой обработки файлов cookie.

MAX Дзен Телеграм Вконтакте vk