mobile_sound +7 (930) 655-55-90

Типовые конструкции и железобетонные изделия. Рабочие чертежи (Серия 1.465.1-13)

Поделиться:
Поделиться:

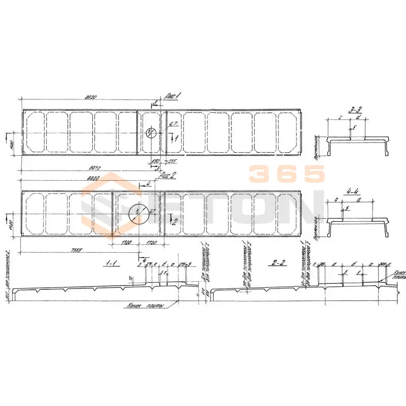
Документ Серия 1.465.1-13 описывает область применения, номенклатуру и ключевые требования, опираясь на действующие нормы и практику проектирования. Серия 1.465.1-13 описывает последовательность производства железобетонных плит, имеющих размеры 3х18 метров и применяемых в качестве элементов покрытий при строительстве одноэтажных сооружений производственных предприятий, имеющих кровлю с малым уклоном. Кроме рекомендаций по подбору сырья, в зависимости от климатических особенностей в регионе строительства, в документе представлено несколько способов армирования: стрежневой сталью и с использованием предварительно напряженной арматуры. Это позволяет расширить способы применения разных изделия и конструкции в зависимости от экономической целесообразности и величин воздействующих нагрузок.

Файлы для скачивания:
picture_as_pdf

2733.pdf

27,870.0 KB

скачать
picture_as_pdf

2734.pdf

7,258.5 KB

скачать
Товары Серия 1.465.1-13 (60)
1ПВ 18-1 АIV т-14 н
Плиты ребристые Серия 1.465.1-13
  • Длина 17940 мм.
  • Ширина 2930 мм.
  • Высота 600 мм.
  • Вес 12100 кг.
  • Объем бетона 4,6 м3
  • Геометрический объем 31,5385 м3
Цена: 132968 руб.
Подробнее
1ПВ 18-1 АIV т-14 п
Плиты ребристые Серия 1.465.1-13
  • Длина 17940 мм.
  • Ширина 2930 мм.
  • Высота 600 мм.
  • Вес 12100 кг.
  • Объем бетона 4,6 м3
  • Геометрический объем 31,5385 м3
Цена: 132968 руб.
Подробнее
1ПВ 18-1 АIV т-14,1 н
Плиты ребристые Серия 1.465.1-13
  • Длина 17940 мм.
  • Ширина 2930 мм.
  • Высота 600 мм.
  • Вес 12100 кг.
  • Объем бетона 4,6 м3
  • Геометрический объем 31,5385 м3
Цена: 132968 руб.
Подробнее
1ПВ 18-1 АIV т-14,1
Плиты ребристые Серия 1.465.1-13
  • Длина 17940 мм.
  • Ширина 2930 мм.
  • Высота 600 мм.
  • Вес 12100 кг.
  • Объем бетона 4,6 м3
  • Геометрический объем 31,5385 м3
Цена: 132968 руб.
Подробнее
1ПВ 18-1 АIV т-14,1 п
Плиты ребристые Серия 1.465.1-13
  • Длина 17940 мм.
  • Ширина 2930 мм.
  • Высота 600 мм.
  • Вес 12100 кг.
  • Объем бетона 4,6 м3
  • Геометрический объем 31,5385 м3
Цена: 132968 руб.
Подробнее
1ПВ 18-1 АIVл-4
Плиты ребристые Серия 1.465.1-13
  • Длина 17940 мм.
  • Ширина 2930 мм.
  • Высота 600 мм.
  • Вес 9000 кг.
  • Объем бетона 4,6 м3
  • Геометрический объем 31,5385 м3
Цена: 132968 руб.
Подробнее
1ПВ 18-1 АIVл-4 *
Плиты ребристые Серия 1.465.1-13
  • Длина 17940 мм.
  • Ширина 2930 мм.
  • Высота 600 мм.
  • Вес 10600 кг.
  • Объем бетона 4,6 м3
  • Геометрический объем 31,5385 м3
Цена: 132968 руб.
Подробнее
1ПВ 18-1 АIVл-4,1
Плиты ребристые Серия 1.465.1-13
  • Длина 17940 мм.
  • Ширина 2930 мм.
  • Высота 600 мм.
  • Вес 9100 кг.
  • Объем бетона 4,6 м3
  • Геометрический объем 31,5385 м3
Цена: 132968 руб.
Подробнее
1ПВ 18-1 АIVл-4,1*
Плиты ребристые Серия 1.465.1-13
  • Длина 17940 мм.
  • Ширина 2930 мм.
  • Высота 600 мм.
  • Вес 10700 кг.
  • Объем бетона 4,6 м3
  • Геометрический объем 31,5385 м3
Цена: 132968 руб.
Подробнее
1ПВ 18-1 АIVт-4
Плиты ребристые Серия 1.465.1-13
  • Длина 17940 мм.
  • Ширина 2930 мм.
  • Высота 600 мм.
  • Вес 11500 кг.
  • Объем бетона 4,6 м3
  • Геометрический объем 31,5385 м3
Цена: 132968 руб.
Подробнее
1ПВ 18-1 АIVт-4 н
Плиты ребристые Серия 1.465.1-13
  • Длина 17940 мм.
  • Ширина 2930 мм.
  • Высота 600 мм.
  • Вес 11500 кг.
  • Объем бетона 4,6 м3
  • Геометрический объем 31,5385 м3
Цена: 132968 руб.
Подробнее
1ПВ 18-1 АIVт-4 п
Плиты ребристые Серия 1.465.1-13
  • Длина 17940 мм.
  • Ширина 2930 мм.
  • Высота 600 мм.
  • Вес 11500 кг.
  • Объем бетона 4,6 м3
  • Геометрический объем 31,5385 м3
Цена: 132968 руб.
Подробнее
1ПВ 18-1 АIVт-4,1 н
Плиты ребристые Серия 1.465.1-13
  • Длина 17940 мм.
  • Ширина 2930 мм.
  • Высота 600 мм.
  • Вес 11700 кг.
  • Объем бетона 4,6 м3
  • Геометрический объем 31,5385 м3
Цена: 132968 руб.
Подробнее
1ПВ 18-1 АIVт-4,1
Плиты ребристые Серия 1.465.1-13
  • Длина 17940 мм.
  • Ширина 2930 мм.
  • Высота 600 мм.
  • Вес 11700 кг.
  • Объем бетона 4,6 м3
  • Геометрический объем 31,5385 м3
Цена: 132968 руб.
Подробнее
1ПВ 18-1 АIVт-7 н
Плиты ребристые Серия 1.465.1-13
  • Длина 17940 мм.
  • Ширина 2930 мм.
  • Высота 600 мм.
  • Вес 11500 кг.
  • Объем бетона 4,6 м3
  • Геометрический объем 31,5385 м3
Цена: 132968 руб.
Подробнее
1ПВ 18-1 АIVт-4,1 п
Плиты ребристые Серия 1.465.1-13
  • Длина 17940 мм.
  • Ширина 2930 мм.
  • Высота 600 мм.
  • Вес 11700 кг.
  • Объем бетона 4,6 м3
  • Геометрический объем 31,5385 м3
Цена: 132968 руб.
Подробнее
1ПВ 18-1 АIVт-7
Плиты ребристые Серия 1.465.1-13
  • Длина 17940 мм.
  • Ширина 2930 мм.
  • Высота 600 мм.
  • Вес 11500 кг.
  • Объем бетона 4,6 м3
  • Геометрический объем 31,5385 м3
Цена: 132968 руб.
Подробнее
1ПВ 18-1 АIVт-7 п
Плиты ребристые Серия 1.465.1-13
  • Длина 17940 мм.
  • Ширина 2930 мм.
  • Высота 600 мм.
  • Вес 11500 кг.
  • Объем бетона 4,6 м3
  • Геометрический объем 31,5385 м3
Цена: 132968 руб.
Подробнее
1ПВ 18-1 АIVт-7,1
Плиты ребристые Серия 1.465.1-13
  • Длина 17940 мм.
  • Ширина 2930 мм.
  • Высота 600 мм.
  • Вес 11600 кг.
  • Объем бетона 4,6 м3
  • Геометрический объем 31,5385 м3
Цена: 132968 руб.
Подробнее
1ПВ 18-1 АIVт-7,1 п
Плиты ребристые Серия 1.465.1-13
  • Длина 17940 мм.
  • Ширина 2930 мм.
  • Высота 600 мм.
  • Вес 11600 кг.
  • Объем бетона 4,6 м3
  • Геометрический объем 31,5385 м3
Цена: 132968 руб.
Подробнее
1ПВ 18-1 АIVт-7,1 н
Плиты ребристые Серия 1.465.1-13
  • Длина 17940 мм.
  • Ширина 2930 мм.
  • Высота 600 мм.
  • Вес 11600 кг.
  • Объем бетона 4,6 м3
  • Геометрический объем 31,5385 м3
Цена: 132968 руб.
Подробнее
1ПВ 18-1 АV л-10
Плиты ребристые Серия 1.465.1-13
  • Длина 17940 мм.
  • Ширина 2930 мм.
  • Высота 600 мм.
  • Вес 8900 кг.
  • Объем бетона 4,6 м3
  • Геометрический объем 31,5385 м3
Цена: 132968 руб.
Подробнее
1ПВ 18-1 АV л-14
Плиты ребристые Серия 1.465.1-13
  • Длина 17940 мм.
  • Ширина 2930 мм.
  • Высота 600 мм.
  • Вес 9400 кг.
  • Объем бетона 4,6 м3
  • Геометрический объем 31,5385 м3
Цена: 132968 руб.
Подробнее
1ПВ 18-1 АV л-10*
Плиты ребристые Серия 1.465.1-13
  • Длина 17940 мм.
  • Ширина 2930 мм.
  • Высота 600 мм.
  • Вес 10500 кг.
  • Объем бетона 4,6 м3
  • Геометрический объем 31,5385 м3
Цена: 132968 руб.
Подробнее
1ПВ 18-1 АV л-14,1
Плиты ребристые Серия 1.465.1-13
  • Длина 17940 мм.
  • Ширина 2930 мм.
  • Высота 600 мм.
  • Вес 9400 кг.
  • Объем бетона 4,6 м3
  • Геометрический объем 31,5385 м3
Цена: 132968 руб.
Подробнее
1ПВ 18-1 АV л-4
Плиты ребристые Серия 1.465.1-13
  • Длина 17940 мм.
  • Ширина 2930 мм.
  • Высота 600 мм.
  • Вес 9000 кг.
  • Объем бетона 4,6 м3
  • Геометрический объем 31,5385 м3
Цена: 132968 руб.
Подробнее
1ПВ 18-1 АV л-14,1*
Плиты ребристые Серия 1.465.1-13
  • Длина 17940 мм.
  • Ширина 2930 мм.
  • Высота 600 мм.
  • Вес 11100 кг.
  • Объем бетона 4,6 м3
  • Геометрический объем 31,5385 м3
Цена: 132968 руб.
Подробнее
1ПВ 18-1 АV л-14*
Плиты ребристые Серия 1.465.1-13
  • Длина 17940 мм.
  • Ширина 2930 мм.
  • Высота 600 мм.
  • Вес 11100 кг.
  • Объем бетона 4,6 м3
  • Геометрический объем 31,5385 м3
Цена: 132968 руб.
Подробнее
1ПВ 18-1 АV л-4*
Плиты ребристые Серия 1.465.1-13
  • Длина 17940 мм.
  • Ширина 2930 мм.
  • Высота 600 мм.
  • Вес 10600 кг.
  • Объем бетона 4,6 м3
  • Геометрический объем 31,5385 м3
Цена: 132968 руб.
Подробнее
1ПВ 18-1 АV л-7
Плиты ребристые Серия 1.465.1-13
  • Длина 17940 мм.
  • Ширина 2930 мм.
  • Высота 600 мм.
  • Вес 9000 кг.
  • Объем бетона 4,6 м3
  • Геометрический объем 31,5385 м3
Цена: 132968 руб.
Подробнее
1ПВ 18-1 АV л-7,1
Плиты ребристые Серия 1.465.1-13
  • Длина 17940 мм.
  • Ширина 2930 мм.
  • Высота 600 мм.
  • Вес 9000 кг.
  • Объем бетона 4,6 м3
  • Геометрический объем 31,5385 м3
Цена: 132968 руб.
Подробнее
1ПВ 18-1 АV л-7,1*
Плиты ребристые Серия 1.465.1-13
  • Длина 17940 мм.
  • Ширина 2930 мм.
  • Высота 600 мм.
  • Вес 10700 кг.
  • Объем бетона 4,6 м3
  • Геометрический объем 31,5385 м3
Цена: 132968 руб.
Подробнее
1ПВ 18-1 АVл-10,1*
Плиты ребристые Серия 1.465.1-13
  • Длина 17940 мм.
  • Ширина 2930 мм.
  • Высота 600 мм.
  • Вес 10600 кг.
  • Объем бетона 4,6 м3
  • Геометрический объем 31,5385 м3
Цена: 132968 руб.
Подробнее
1ПВ 18-1 АVт-10,1
Плиты ребристые Серия 1.465.1-13
  • Длина 17940 мм.
  • Ширина 2930 мм.
  • Высота 600 мм.
  • Вес 11500 кг.
  • Объем бетона 4,6 м3
  • Геометрический объем 31,5385 м3
Цена: 132968 руб.
Подробнее
1ПВ 18-1 АVл-10,1
Плиты ребристые Серия 1.465.1-13
  • Длина 17940 мм.
  • Ширина 2930 мм.
  • Высота 600 мм.
  • Вес 9000 кг.
  • Объем бетона 4,6 м3
  • Геометрический объем 31,5385 м3
Цена: 132968 руб.
Подробнее
1ПВ 18-1 АV л-7*
Плиты ребристые Серия 1.465.1-13
  • Длина 17940 мм.
  • Ширина 2930 мм.
  • Высота 600 мм.
  • Вес 10500 кг.
  • Объем бетона 4,6 м3
  • Геометрический объем 31,5385 м3
Цена: 132968 руб.
Подробнее
1ПВ 18-1 АVл-4,1
Плиты ребристые Серия 1.465.1-13
  • Длина 17940 мм.
  • Ширина 2930 мм.
  • Высота 600 мм.
  • Вес 9100 кг.
  • Объем бетона 4,6 м3
  • Геометрический объем 31,5385 м3
Цена: 132968 руб.
Подробнее
1ПВ 18-1 АVл-4,1*
Плиты ребристые Серия 1.465.1-13
  • Длина 17940 мм.
  • Ширина 2930 мм.
  • Высота 600 мм.
  • Вес 10700 кг.
  • Объем бетона 4,6 м3
  • Геометрический объем 31,5385 м3
Цена: 132968 руб.
Подробнее
1ПВ 18-1 АVт-10
Плиты ребристые Серия 1.465.1-13
  • Длина 17940 мм.
  • Ширина 2930 мм.
  • Высота 600 мм.
  • Вес 11500 кг.
  • Объем бетона 4,6 м3
  • Геометрический объем 31,5385 м3
Цена: 132968 руб.
Подробнее
1ПВ 18-1 АVт-14,1
Плиты ребристые Серия 1.465.1-13
  • Длина 17940 мм.
  • Ширина 2930 мм.
  • Высота 600 мм.
  • Вес 11500 кг.
  • Объем бетона 4,6 м3
  • Геометрический объем 31,5385 м3
Цена: 132968 руб.
Подробнее
1ПВ 18-1 АVт-7
Плиты ребристые Серия 1.465.1-13
  • Длина 17940 мм.
  • Ширина 2930 мм.
  • Высота 600 мм.
  • Вес 11500 кг.
  • Объем бетона 4,6 м3
  • Геометрический объем 31,5385 м3
Цена: 132968 руб.
Подробнее
1ПВ 18-1 АVт-14
Плиты ребристые Серия 1.465.1-13
  • Длина 17940 мм.
  • Ширина 2930 мм.
  • Высота 600 мм.
  • Вес 11500 кг.
  • Объем бетона 4,6 м3
  • Геометрический объем 31,5385 м3
Цена: 132968 руб.
Подробнее
1ПВ 18-1 АVт-7,1
Плиты ребристые Серия 1.465.1-13
  • Длина 17940 мм.
  • Ширина 2930 мм.
  • Высота 600 мм.
  • Вес 11500 кг.
  • Объем бетона 4,6 м3
  • Геометрический объем 31,5385 м3
Цена: 132968 руб.
Подробнее
1ПВ 18-1 АVт-4
Плиты ребристые Серия 1.465.1-13
  • Длина 17940 мм.
  • Ширина 2930 мм.
  • Высота 600 мм.
  • Вес 11500 кг.
  • Объем бетона 4,6 м3
  • Геометрический объем 31,5385 м3
Цена: 132968 руб.
Подробнее
1ПВ 18-1 АVт-4,1
Плиты ребристые Серия 1.465.1-13
  • Длина 17940 мм.
  • Ширина 2930 мм.
  • Высота 600 мм.
  • Вес 11500 кг.
  • Объем бетона 4,6 м3
  • Геометрический объем 31,5385 м3
Цена: 132968 руб.
Подробнее
1ПВ 18-1 к7 т-10
Плиты ребристые Серия 1.465.1-13
  • Длина 17940 мм.
  • Ширина 2930 мм.
  • Высота 600 мм.
  • Вес 11400 кг.
  • Объем бетона 4,6 м3
  • Геометрический объем 31,5385 м3
Цена: 132968 руб.
Подробнее
1ПВ 18-1 к7 т-10,1
Плиты ребристые Серия 1.465.1-13
  • Длина 17940 мм.
  • Ширина 2930 мм.
  • Высота 600 мм.
  • Вес 11500 кг.
  • Объем бетона 4,6 м3
  • Геометрический объем 31,5385 м3
Цена: 132968 руб.
Подробнее
1ПВ 18-1 к7 т-14,1
Плиты ребристые Серия 1.465.1-13
  • Длина 17940 мм.
  • Ширина 2930 мм.
  • Высота 600 мм.
  • Вес 12100 кг.
  • Объем бетона 4,6 м3
  • Геометрический объем 31,5385 м3
Цена: 132968 руб.
Подробнее
1ПВ 18-1 к7 т-14
Плиты ребристые Серия 1.465.1-13
  • Длина 17940 мм.
  • Ширина 2930 мм.
  • Высота 600 мм.
  • Вес 12100 кг.
  • Объем бетона 4,6 м3
  • Геометрический объем 31,5385 м3
Цена: 132968 руб.
Подробнее
1ПВ 18-1 к7 т-7
Плиты ребристые Серия 1.465.1-13
  • Длина 17940 мм.
  • Ширина 2930 мм.
  • Высота 600 мм.
  • Вес 11500 кг.
  • Объем бетона 4,6 м3
  • Геометрический объем 31,5385 м3
Цена: 132968 руб.
Подробнее
1ПВ 18-1 к7 т-4,1
Плиты ребристые Серия 1.465.1-13
  • Длина 17940 мм.
  • Ширина 2930 мм.
  • Высота 600 мм.
  • Вес 11700 кг.
  • Объем бетона 4,6 м3
  • Геометрический объем 31,5385 м3
Цена: 132968 руб.
Подробнее
1ПВ 18-1 к7 т-7,1
Плиты ребристые Серия 1.465.1-13
  • Длина 17940 мм.
  • Ширина 2930 мм.
  • Высота 600 мм.
  • Вес 11600 кг.
  • Объем бетона 4,6 м3
  • Геометрический объем 31,5385 м3
Цена: 132968 руб.
Подробнее
1ПВ 18-1 к7 т-4
Плиты ребристые Серия 1.465.1-13
  • Длина 17940 мм.
  • Ширина 2930 мм.
  • Высота 600 мм.
  • Вес 11500 кг.
  • Объем бетона 4,6 м3
  • Геометрический объем 31,5385 м3
Цена: 132968 руб.
Подробнее
1ПВ 18-10 АIIIв т-10
Плиты ребристые Серия 1.465.1-13
  • Длина 17940 мм.
  • Ширина 2930 мм.
  • Высота 600 мм.
  • Вес 11400 кг.
  • Объем бетона 4,6 м3
  • Геометрический объем 31,5385 м3
Цена: 132968 руб.
Подробнее
1ПВ 18-10 АIIIв т-10 н
Плиты ребристые Серия 1.465.1-13
  • Длина 17940 мм.
  • Ширина 2930 мм.
  • Высота 600 мм.
  • Вес 11400 кг.
  • Объем бетона 4,6 м3
  • Геометрический объем 31,5385 м3
Цена: 132968 руб.
Подробнее
1ПВ 18-10 АIIIв т-10,1 н
Плиты ребристые Серия 1.465.1-13
  • Длина 17940 мм.
  • Ширина 2930 мм.
  • Высота 600 мм.
  • Вес 11500 кг.
  • Объем бетона 4,6 м3
  • Геометрический объем 31,5385 м3
Цена: 132968 руб.
Подробнее
1ПВ 18-10 АIIIв т-10 п
Плиты ребристые Серия 1.465.1-13
  • Длина 17940 мм.
  • Ширина 2930 мм.
  • Высота 600 мм.
  • Вес 11400 кг.
  • Объем бетона 4,6 м3
  • Геометрический объем 31,5385 м3
Цена: 132968 руб.
Подробнее
1ПВ 18-10 АIIIв т-10,1 п
Плиты ребристые Серия 1.465.1-13
  • Длина 17940 мм.
  • Ширина 2930 мм.
  • Высота 600 мм.
  • Вес 11500 кг.
  • Объем бетона 4,6 м3
  • Геометрический объем 31,5385 м3
Цена: 132968 руб.
Подробнее
1ПВ 18-10 АIIIв т-10,1
Плиты ребристые Серия 1.465.1-13
  • Длина 17940 мм.
  • Ширина 2930 мм.
  • Высота 600 мм.
  • Вес 11500 кг.
  • Объем бетона 4,6 м3
  • Геометрический объем 31,5385 м3
Цена: 132968 руб.
Подробнее
1ПВ 18-10 АIIIв т-14
Плиты ребристые Серия 1.465.1-13
  • Длина 17940 мм.
  • Ширина 2930 мм.
  • Высота 600 мм.
  • Вес 12100 кг.
  • Объем бетона 4,6 м3
  • Геометрический объем 31,5385 м3
Цена: 132968 руб.
Подробнее

Уведомление о файлах cookie

Мы используем файлы cookie для улучшения вашего опыта просмотра и анализа трафика. Нажимая "Принять все", вы соглашаетесь с нашей политикой конфиденциальности и политикой обработки файлов cookie.

MAX Дзен Телеграм Вконтакте vk