mobile_sound +7 (930) 655-55-90

Железобетонные опоры линий электропередачи. Рабочие чертежи (Серия 1.420-6)

Поделиться:
Поделиться:

Документ Серия 1.420-6 описывает область применения, номенклатуру и ключевые требования, опираясь на действующие нормы и практику проектирования. Серия 1.420-6 была разработана ЦНИИПРОМЗДАНИЙ совместно с НИИЖБ и НИИСК, введён в действие в действие с 1978 года. Нормативный документ состоит из шестнадцати выпусков, в которых изложено максимально подробное описание ригелей и колонн, применяемых при строительстве многоэтажных производственных зданий, имеющих сетку колонн 12х6 метров. Для увеличения числа регламентов с применением представленных конструкций в расчеты приняты нормативные нагрузки 500, 750 и 1000 кгс/м2.

Файлы для скачивания:
picture_as_pdf

2402.pdf

37,097.6 KB

скачать
picture_as_pdf

2404.pdf

1,182.1 KB

скачать
picture_as_pdf

2405.pdf

33,143.4 KB

скачать
picture_as_pdf

2406.pdf

34,728.1 KB

скачать
picture_as_pdf

2417.pdf

3,527.0 KB

скачать
picture_as_pdf

2407.pdf

27,699.9 KB

скачать
picture_as_pdf

2408.pdf

31,888.6 KB

скачать
picture_as_pdf

2409.pdf

38,403.3 KB

скачать
picture_as_pdf

2410.pdf

9,406.2 KB

скачать
picture_as_pdf

2411.pdf

3,843.0 KB

скачать
picture_as_pdf

2412.pdf

2,642.5 KB

скачать
picture_as_pdf

2413.pdf

1,151.2 KB

скачать
picture_as_pdf

2414.pdf

22,235.4 KB

скачать
picture_as_pdf

2415.pdf

56,499.6 KB

скачать
picture_as_pdf

2416.pdf

9,054.9 KB

скачать
picture_as_pdf

2403.pdf

1,477.8 KB

скачать
Товары Серия 1.420-6 (60)
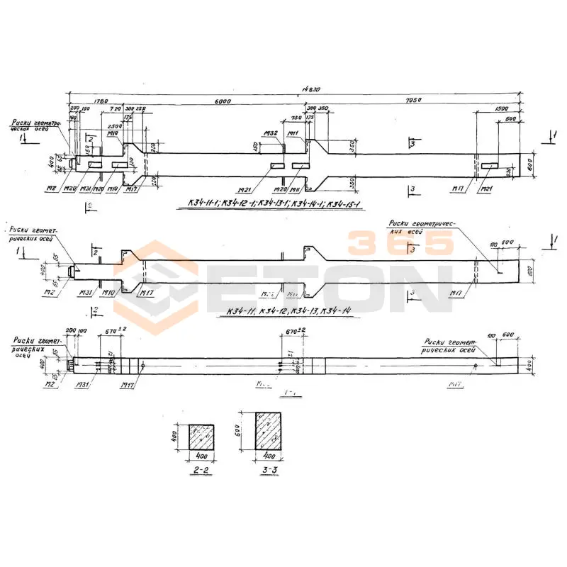
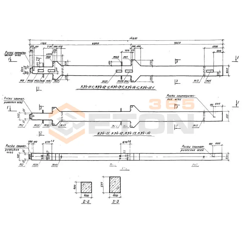
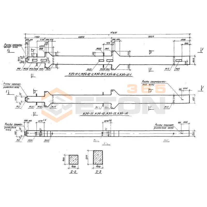
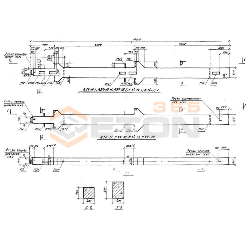
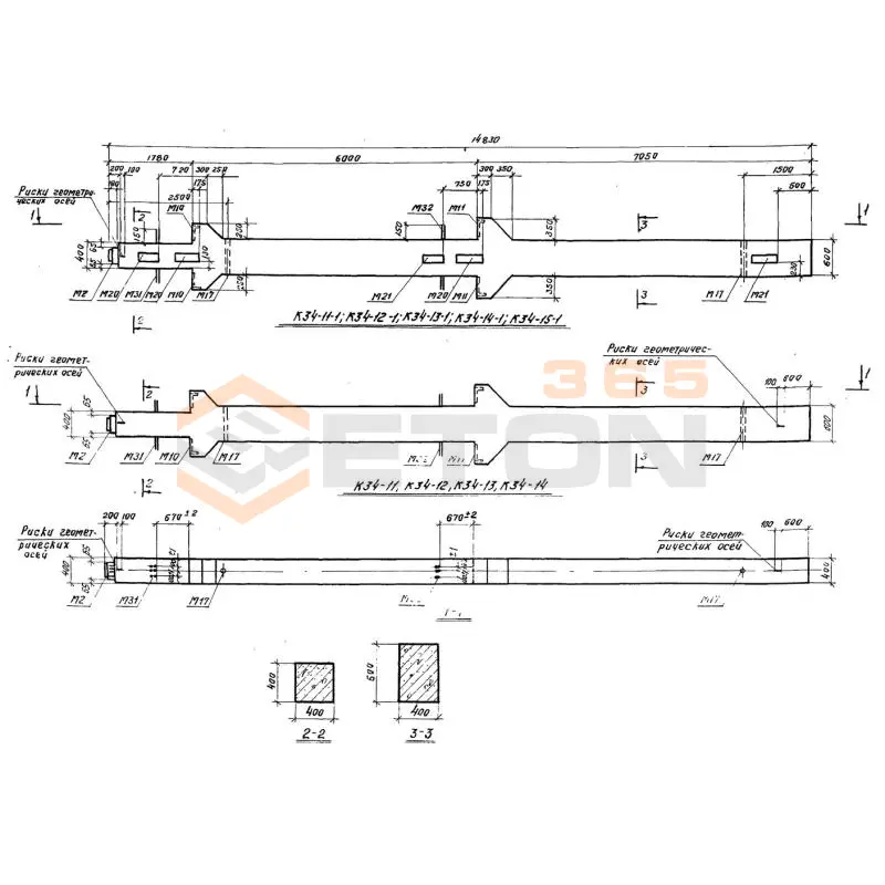
К 34-13-3
Колонны Серия 1.420-6
  • Длина 14830 мм.
  • Ширина 400 мм.
  • Высота 600 мм.
  • Вес 9100 кг.
  • Объем бетона 3,64 м3
  • Геометрический объем 3,5592 м3
Цена: 74147 руб.
Подробнее
К 34-14
Колонны Серия 1.420-6
  • Длина 14830 мм.
  • Ширина 400 мм.
  • Высота 600 мм.
  • Вес 9100 кг.
  • Объем бетона 3,64 м3
  • Геометрический объем 3,5592 м3
Цена: 74147 руб.
Подробнее
К 34-15-1
Колонны Серия 1.420-6
  • Длина 14830 мм.
  • Ширина 400 мм.
  • Высота 600 мм.
  • Вес 9100 кг.
  • Объем бетона 3,64 м3
  • Геометрический объем 3,5592 м3
Цена: 74147 руб.
Подробнее
К 34-14-3
Колонны Серия 1.420-6
  • Длина 14830 мм.
  • Ширина 400 мм.
  • Высота 600 мм.
  • Вес 9100 кг.
  • Объем бетона 3,64 м3
  • Геометрический объем 3,5592 м3
Цена: 74147 руб.
Подробнее
К 34-14-1
Колонны Серия 1.420-6
  • Длина 14830 мм.
  • Ширина 400 мм.
  • Высота 600 мм.
  • Вес 9100 кг.
  • Объем бетона 3,64 м3
  • Геометрический объем 3,5592 м3
Цена: 74147 руб.
Подробнее
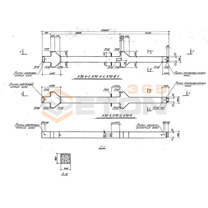
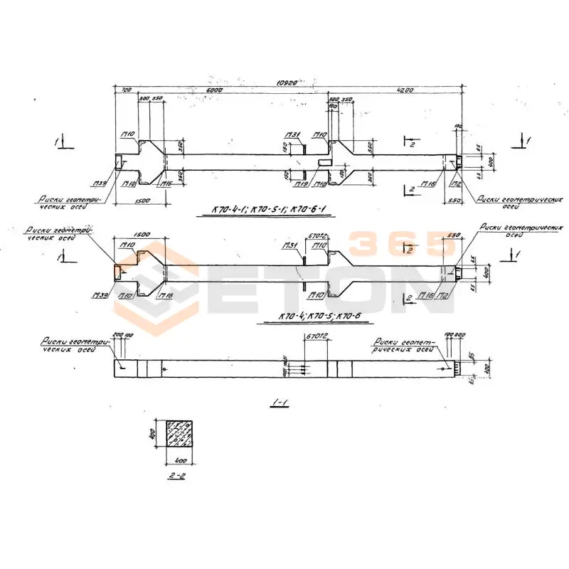
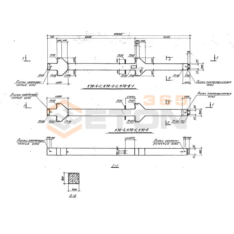
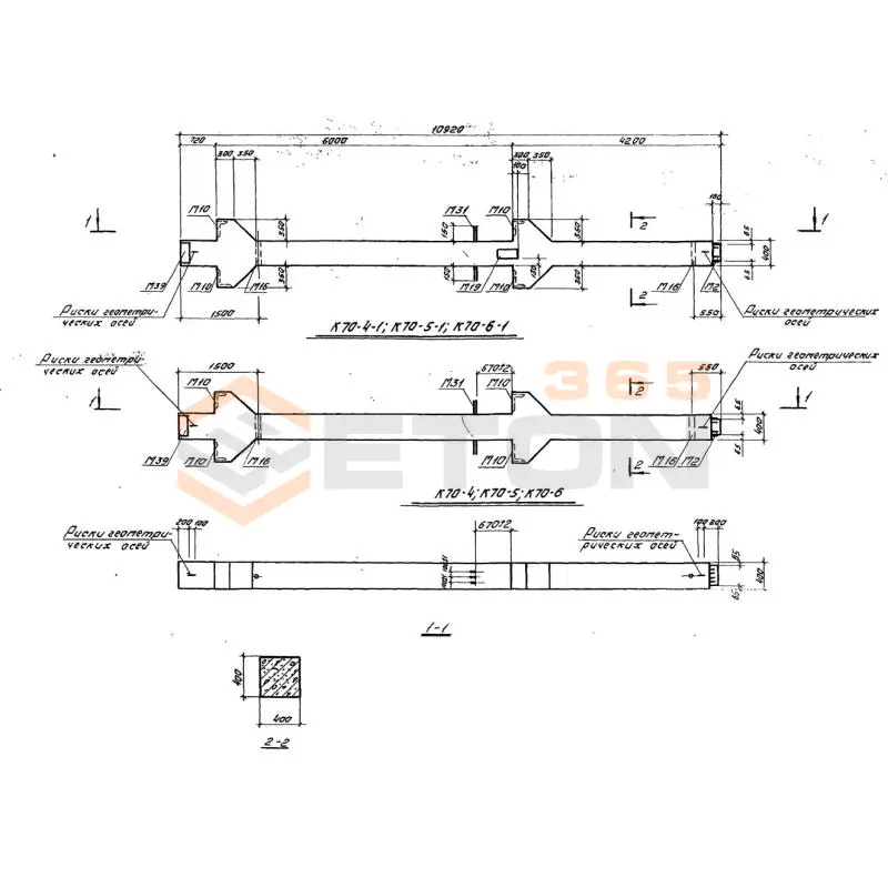
К 69-4-1
Колонны Серия 1.420-6
  • Длина 10920 мм.
  • Ширина 400 мм.
  • Высота 400 мм.
  • Вес 4600 кг.
  • Объем бетона 1,88 м3
  • Геометрический объем 1,7472 м3
Цена: 38296 руб.
Подробнее
К 69-4-3
Колонны Серия 1.420-6
  • Длина 10920 мм.
  • Ширина 400 мм.
  • Высота 400 мм.
  • Вес 4600 кг.
  • Объем бетона 1,88 м3
  • Геометрический объем 1,7472 м3
Цена: 38296 руб.
Подробнее
К 69-4-5
Колонны Серия 1.420-6
  • Длина 10920 мм.
  • Ширина 400 мм.
  • Высота 400 мм.
  • Вес 4600 кг.
  • Объем бетона 1,88 м3
  • Геометрический объем 1,7472 м3
Цена: 38296 руб.
Подробнее
К 69-5-3
Колонны Серия 1.420-6
  • Длина 10920 мм.
  • Ширина 400 мм.
  • Высота 400 мм.
  • Вес 4600 кг.
  • Объем бетона 1,88 м3
  • Геометрический объем 1,7472 м3
Цена: 38296 руб.
Подробнее
К 69-5-1
Колонны Серия 1.420-6
  • Длина 10920 мм.
  • Ширина 400 мм.
  • Высота 400 мм.
  • Вес 4600 кг.
  • Объем бетона 1,88 м3
  • Геометрический объем 1,7472 м3
Цена: 38296 руб.
Подробнее
К 69-6-1
Колонны Серия 1.420-6
  • Длина 10920 мм.
  • Ширина 400 мм.
  • Высота 400 мм.
  • Вес 4600 кг.
  • Объем бетона 1,88 м3
  • Геометрический объем 1,7472 м3
Цена: 38296 руб.
Подробнее
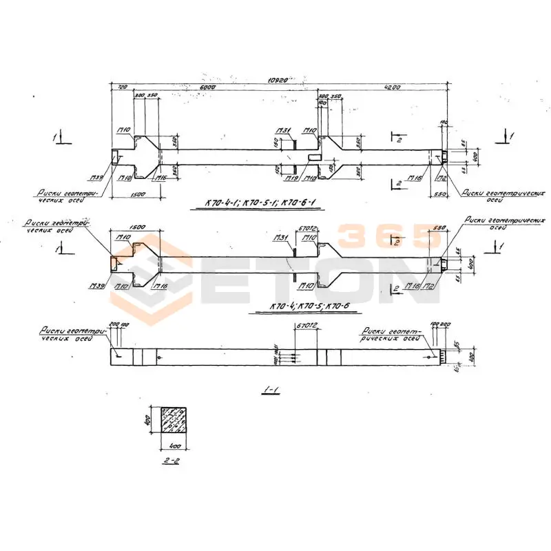
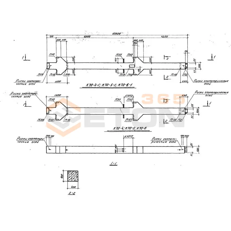
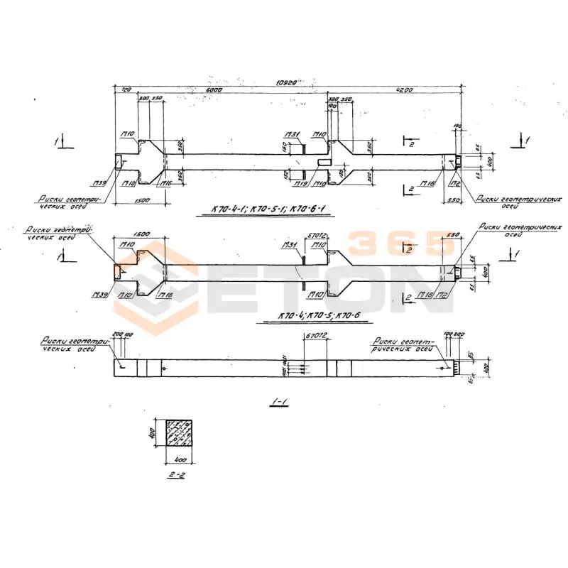
К 70-4
Колонны Серия 1.420-6
  • Длина 10920 мм.
  • Ширина 400 мм.
  • Высота 400 мм.
  • Вес 500 кг.
  • Объем бетона 2 м3
  • Геометрический объем 1,7472 м3
Цена: 40740 руб.
Подробнее
К 70-4-1
Колонны Серия 1.420-6
  • Длина 10920 мм.
  • Ширина 400 мм.
  • Высота 400 мм.
  • Вес 500 кг.
  • Объем бетона 2 м3
  • Геометрический объем 1,7472 м3
Цена: 40740 руб.
Подробнее
К 70-4-3
Колонны Серия 1.420-6
  • Длина 10920 мм.
  • Ширина 400 мм.
  • Высота 400 мм.
  • Вес 500 кг.
  • Объем бетона 2 м3
  • Геометрический объем 1,7472 м3
Цена: 40740 руб.
Подробнее
К 70-4-5
Колонны Серия 1.420-6
  • Длина 10920 мм.
  • Ширина 400 мм.
  • Высота 400 мм.
  • Вес 500 кг.
  • Объем бетона 2 м3
  • Геометрический объем 1,7472 м3
Цена: 40740 руб.
Подробнее
К 70-5
Колонны Серия 1.420-6
  • Длина 10920 мм.
  • Ширина 400 мм.
  • Высота 400 мм.
  • Вес 500 кг.
  • Объем бетона 2 м3
  • Геометрический объем 1,7472 м3
Цена: 40740 руб.
Подробнее
К 70-5-3
Колонны Серия 1.420-6
  • Длина 10920 мм.
  • Ширина 400 мм.
  • Высота 400 мм.
  • Вес 500 кг.
  • Объем бетона 2 м3
  • Геометрический объем 1,7472 м3
Цена: 40740 руб.
Подробнее
К 70-5-1
Колонны Серия 1.420-6
  • Длина 10920 мм.
  • Ширина 400 мм.
  • Высота 400 мм.
  • Вес 500 кг.
  • Объем бетона 2 м3
  • Геометрический объем 1,7472 м3
Цена: 40740 руб.
Подробнее
К 70-6
Колонны Серия 1.420-6
  • Длина 10920 мм.
  • Ширина 400 мм.
  • Высота 400 мм.
  • Вес 500 кг.
  • Объем бетона 2 м3
  • Геометрический объем 1,7472 м3
Цена: 40740 руб.
Подробнее
К 70-6-1
Колонны Серия 1.420-6
  • Длина 10920 мм.
  • Ширина 400 мм.
  • Высота 400 мм.
  • Вес 500 кг.
  • Объем бетона 2 м3
  • Геометрический объем 1,7472 м3
Цена: 40740 руб.
Подробнее
Б 29-3
Ригели Серия 1.420-6
  • Длина 5480 мм.
  • Ширина 300 мм.
  • Высота 800 мм.
  • Вес 3290 кг.
  • Объем бетона 1,32 м3
  • Геометрический объем 1,3152 м3
Цена: 51216 руб.
Подробнее
Б 30-1
Ригели Серия 1.420-6
  • Длина 10980 мм.
  • Ширина 650 мм.
  • Высота 800 мм.
  • Вес 8720 кг.
  • Объем бетона 3,49 м3
  • Геометрический объем 5,7096 м3
Цена: 135412 руб.
Подробнее
Б 30-1 АтV
Ригели Серия 1.420-6
  • Длина 10980 мм.
  • Ширина 650 мм.
  • Высота 800 мм.
  • Вес 8720 кг.
  • Объем бетона 3,49 м3
  • Геометрический объем 5,7096 м3
Цена: 135412 руб.
Подробнее
Б 30-1 АIIIв
Ригели Серия 1.420-6
  • Длина 10980 мм.
  • Ширина 650 мм.
  • Высота 800 мм.
  • Вес 8720 кг.
  • Объем бетона 3,49 м3
  • Геометрический объем 5,7096 м3
Цена: 135412 руб.
Подробнее
Б 30-1 АV
Ригели Серия 1.420-6
  • Длина 10980 мм.
  • Ширина 650 мм.
  • Высота 800 мм.
  • Вес 8720 кг.
  • Объем бетона 3,49 м3
  • Геометрический объем 5,7096 м3
Цена: 135412 руб.
Подробнее
Б 30-1 АIV
Ригели Серия 1.420-6
  • Длина 10980 мм.
  • Ширина 650 мм.
  • Высота 800 мм.
  • Вес 8720 кг.
  • Объем бетона 3,49 м3
  • Геометрический объем 5,7096 м3
Цена: 135412 руб.
Подробнее
Б 30-1 п7
Ригели Серия 1.420-6
  • Длина 10980 мм.
  • Ширина 650 мм.
  • Высота 800 мм.
  • Вес 8720 кг.
  • Объем бетона 3,49 м3
  • Геометрический объем 5,7096 м3
Цена: 135412 руб.
Подробнее
Б 30-2
Ригели Серия 1.420-6
  • Длина 10980 мм.
  • Ширина 650 мм.
  • Высота 800 мм.
  • Вес 8720 кг.
  • Объем бетона 3,49 м3
  • Геометрический объем 5,7096 м3
Цена: 135412 руб.
Подробнее
Б 30-2 АIIIв
Ригели Серия 1.420-6
  • Длина 10980 мм.
  • Ширина 650 мм.
  • Высота 800 мм.
  • Вес 8720 кг.
  • Объем бетона 3,49 м3
  • Геометрический объем 5,7096 м3
Цена: 135412 руб.
Подробнее
Б 30-2 АV
Ригели Серия 1.420-6
  • Длина 10980 мм.
  • Ширина 650 мм.
  • Высота 800 мм.
  • Вес 8720 кг.
  • Объем бетона 3,49 м3
  • Геометрический объем 5,7096 м3
Цена: 135412 руб.
Подробнее
Б 30-2 АIV
Ригели Серия 1.420-6
  • Длина 10980 мм.
  • Ширина 650 мм.
  • Высота 800 мм.
  • Вес 8720 кг.
  • Объем бетона 3,49 м3
  • Геометрический объем 5,7096 м3
Цена: 135412 руб.
Подробнее
Б 30-2 АтV
Ригели Серия 1.420-6
  • Длина 10980 мм.
  • Ширина 650 мм.
  • Высота 800 мм.
  • Вес 8720 кг.
  • Объем бетона 3,49 м3
  • Геометрический объем 5,7096 м3
Цена: 135412 руб.
Подробнее
Б 30-2 лев АIV
Ригели Серия 1.420-6
  • Длина 10980 мм.
  • Ширина 505 мм.
  • Высота 800 мм.
  • Вес 8480 кг.
  • Объем бетона 3,39 м3
  • Геометрический объем 4,4359 м3
Цена: 131532 руб.
Подробнее
Б 30-2 лев
Ригели Серия 1.420-6
  • Длина 10980 мм.
  • Ширина 505 мм.
  • Высота 800 мм.
  • Вес 8200 кг.
  • Объем бетона 3,28 м3
  • Геометрический объем 4,4359 м3
Цена: 127264 руб.
Подробнее
Б 30-2 лев АIIIв
Ригели Серия 1.420-6
  • Длина 10980 мм.
  • Ширина 505 мм.
  • Высота 800 мм.
  • Вес 8200 кг.
  • Объем бетона 3,28 м3
  • Геометрический объем 4,4359 м3
Цена: 127264 руб.
Подробнее
Б 30-2 лев АV
Ригели Серия 1.420-6
  • Длина 10980 мм.
  • Ширина 505 мм.
  • Высота 800 мм.
  • Вес 8480 кг.
  • Объем бетона 3,39 м3
  • Геометрический объем 4,4359 м3
Цена: 131532 руб.
Подробнее
Б 30-2 лев п7
Ригели Серия 1.420-6
  • Длина 10980 мм.
  • Ширина 505 мм.
  • Высота 800 мм.
  • Вес 8500 кг.
  • Объем бетона 3,4 м3
  • Геометрический объем 4,4359 м3
Цена: 131920 руб.
Подробнее
Б 30-2 пр
Ригели Серия 1.420-6
  • Длина 10980 мм.
  • Ширина 505 мм.
  • Высота 800 мм.
  • Вес 8200 кг.
  • Объем бетона 3,28 м3
  • Геометрический объем 4,4359 м3
Цена: 127264 руб.
Подробнее
Б 30-2 п7
Ригели Серия 1.420-6
  • Длина 10980 мм.
  • Ширина 650 мм.
  • Высота 800 мм.
  • Вес 8720 кг.
  • Объем бетона 3,49 м3
  • Геометрический объем 5,7096 м3
Цена: 135412 руб.
Подробнее
Б 30-2 пр АIV
Ригели Серия 1.420-6
  • Длина 10980 мм.
  • Ширина 505 мм.
  • Высота 800 мм.
  • Вес 8480 кг.
  • Объем бетона 3,39 м3
  • Геометрический объем 4,4359 м3
Цена: 131532 руб.
Подробнее
Б 30-2 лев АтV
Ригели Серия 1.420-6
  • Длина 10980 мм.
  • Ширина 505 мм.
  • Высота 800 мм.
  • Вес 8480 кг.
  • Объем бетона 3,39 м3
  • Геометрический объем 4,4359 м3
Цена: 131532 руб.
Подробнее
Б 30-2 пр АV
Ригели Серия 1.420-6
  • Длина 10980 мм.
  • Ширина 505 мм.
  • Высота 800 мм.
  • Вес 8480 кг.
  • Объем бетона 3,39 м3
  • Геометрический объем 4,4359 м3
Цена: 131532 руб.
Подробнее
Б 30-2 пр АIIIв
Ригели Серия 1.420-6
  • Длина 10980 мм.
  • Ширина 505 мм.
  • Высота 800 мм.
  • Вес 8200 кг.
  • Объем бетона 3,28 м3
  • Геометрический объем 4,4359 м3
Цена: 127264 руб.
Подробнее
Б 30-2 пр АтV
Ригели Серия 1.420-6
  • Длина 10980 мм.
  • Ширина 505 мм.
  • Высота 800 мм.
  • Вес 8480 кг.
  • Объем бетона 3,39 м3
  • Геометрический объем 4,4359 м3
Цена: 131532 руб.
Подробнее
Б 30-2 пр п7
Ригели Серия 1.420-6
  • Длина 10980 мм.
  • Ширина 505 мм.
  • Высота 800 мм.
  • Вес 8500 кг.
  • Объем бетона 3,4 м3
  • Геометрический объем 4,4359 м3
Цена: 131920 руб.
Подробнее
Б 30-3 АIIIв
Ригели Серия 1.420-6
  • Длина 10980 мм.
  • Ширина 650 мм.
  • Высота 800 мм.
  • Вес 8720 кг.
  • Объем бетона 3,49 м3
  • Геометрический объем 5,7096 м3
Цена: 135412 руб.
Подробнее
Б 30-3
Ригели Серия 1.420-6
  • Длина 10980 мм.
  • Ширина 650 мм.
  • Высота 800 мм.
  • Вес 8720 кг.
  • Объем бетона 3,49 м3
  • Геометрический объем 5,7096 м3
Цена: 135412 руб.
Подробнее
Б 30-3 АV
Ригели Серия 1.420-6
  • Длина 10980 мм.
  • Ширина 650 мм.
  • Высота 800 мм.
  • Вес 8720 кг.
  • Объем бетона 3,49 м3
  • Геометрический объем 5,7096 м3
Цена: 135412 руб.
Подробнее
Б 30-3 АтV
Ригели Серия 1.420-6
  • Длина 10980 мм.
  • Ширина 650 мм.
  • Высота 800 мм.
  • Вес 8720 кг.
  • Объем бетона 3,49 м3
  • Геометрический объем 5,7096 м3
Цена: 135412 руб.
Подробнее
Б 30-3 АIV
Ригели Серия 1.420-6
  • Длина 10980 мм.
  • Ширина 650 мм.
  • Высота 800 мм.
  • Вес 8720 кг.
  • Объем бетона 3,49 м3
  • Геометрический объем 5,7096 м3
Цена: 135412 руб.
Подробнее
Б 30-4
Ригели Серия 1.420-6
  • Длина 10980 мм.
  • Ширина 650 мм.
  • Высота 800 мм.
  • Вес 8720 кг.
  • Объем бетона 3,49 м3
  • Геометрический объем 5,7096 м3
Цена: 135412 руб.
Подробнее
Б 30-4 АIV
Ригели Серия 1.420-6
  • Длина 10980 мм.
  • Ширина 650 мм.
  • Высота 800 мм.
  • Вес 8720 кг.
  • Объем бетона 3,49 м3
  • Геометрический объем 5,7096 м3
Цена: 135412 руб.
Подробнее
Б 30-4 АV
Ригели Серия 1.420-6
  • Длина 10980 мм.
  • Ширина 650 мм.
  • Высота 800 мм.
  • Вес 8720 кг.
  • Объем бетона 3,49 м3
  • Геометрический объем 5,7096 м3
Цена: 135412 руб.
Подробнее
Б 30-4 лев АIV
Ригели Серия 1.420-6
  • Длина 10980 мм.
  • Ширина 505 мм.
  • Высота 800 мм.
  • Вес 8480 кг.
  • Объем бетона 3,39 м3
  • Геометрический объем 4,4359 м3
Цена: 131532 руб.
Подробнее
Б 30-4 АIIIв
Ригели Серия 1.420-6
  • Длина 10980 мм.
  • Ширина 650 мм.
  • Высота 800 мм.
  • Вес 8720 кг.
  • Объем бетона 3,49 м3
  • Геометрический объем 5,7096 м3
Цена: 135412 руб.
Подробнее
Б 30-4 лев
Ригели Серия 1.420-6
  • Длина 10980 мм.
  • Ширина 505 мм.
  • Высота 800 мм.
  • Вес 8200 кг.
  • Объем бетона 3,28 м3
  • Геометрический объем 4,4359 м3
Цена: 127264 руб.
Подробнее
Б 30-4 лев АIIIв
Ригели Серия 1.420-6
  • Длина 10980 мм.
  • Ширина 505 мм.
  • Высота 800 мм.
  • Вес 8200 кг.
  • Объем бетона 3,28 м3
  • Геометрический объем 4,4359 м3
Цена: 127264 руб.
Подробнее
Б 30-4 лев АV
Ригели Серия 1.420-6
  • Длина 10980 мм.
  • Ширина 505 мм.
  • Высота 800 мм.
  • Вес 8480 кг.
  • Объем бетона 3,39 м3
  • Геометрический объем 4,4359 м3
Цена: 131532 руб.
Подробнее
Б 30-4 лев АтV
Ригели Серия 1.420-6
  • Длина 10980 мм.
  • Ширина 505 мм.
  • Высота 800 мм.
  • Вес 8480 кг.
  • Объем бетона 3,39 м3
  • Геометрический объем 4,4359 м3
Цена: 131532 руб.
Подробнее
Б 30-4 пр
Ригели Серия 1.420-6
  • Длина 10980 мм.
  • Ширина 505 мм.
  • Высота 800 мм.
  • Вес 8200 кг.
  • Объем бетона 3,28 м3
  • Геометрический объем 4,4359 м3
Цена: 127264 руб.
Подробнее

Уведомление о файлах cookie

Мы используем файлы cookie для улучшения вашего опыта просмотра и анализа трафика. Нажимая "Принять все", вы соглашаетесь с нашей политикой конфиденциальности и политикой обработки файлов cookie.

Дзен Телеграм Вконтакте vk