mobile_sound +7 (930) 655-55-90

Железобетонные опоры линий электропередачи. Рабочие чертежи (Серия 1.420-6)

Поделиться:
Поделиться:

Документ Серия 1.420-6 описывает область применения, номенклатуру и ключевые требования, опираясь на действующие нормы и практику проектирования. Серия 1.420-6 была разработана ЦНИИПРОМЗДАНИЙ совместно с НИИЖБ и НИИСК, введён в действие в действие с 1978 года. Нормативный документ состоит из шестнадцати выпусков, в которых изложено максимально подробное описание ригелей и колонн, применяемых при строительстве многоэтажных производственных зданий, имеющих сетку колонн 12х6 метров. Для увеличения числа регламентов с применением представленных конструкций в расчеты приняты нормативные нагрузки 500, 750 и 1000 кгс/м2.

Файлы для скачивания:
picture_as_pdf

2402.pdf

37,097.6 KB

скачать
picture_as_pdf

2404.pdf

1,182.1 KB

скачать
picture_as_pdf

2405.pdf

33,143.4 KB

скачать
picture_as_pdf

2406.pdf

34,728.1 KB

скачать
picture_as_pdf

2417.pdf

3,527.0 KB

скачать
picture_as_pdf

2407.pdf

27,699.9 KB

скачать
picture_as_pdf

2408.pdf

31,888.6 KB

скачать
picture_as_pdf

2409.pdf

38,403.3 KB

скачать
picture_as_pdf

2410.pdf

9,406.2 KB

скачать
picture_as_pdf

2411.pdf

3,843.0 KB

скачать
picture_as_pdf

2412.pdf

2,642.5 KB

скачать
picture_as_pdf

2413.pdf

1,151.2 KB

скачать
picture_as_pdf

2414.pdf

22,235.4 KB

скачать
picture_as_pdf

2415.pdf

56,499.6 KB

скачать
picture_as_pdf

2416.pdf

9,054.9 KB

скачать
picture_as_pdf

2403.pdf

1,477.8 KB

скачать
Товары Серия 1.420-6 (60)
К 11-8-5
Колонны Серия 1.420-6
  • Длина 3720 мм.
  • Ширина 400 мм.
  • Высота 400 мм.
  • Вес 1700 кг.
  • Объем бетона 0,66 м3
  • Геометрический объем 0,5952 м3
Цена: 13444 руб.
Подробнее
К 12-10
Колонны Серия 1.420-6
  • Длина 3720 мм.
  • Ширина 400 мм.
  • Высота 400 мм.
  • Вес 1800 кг.
  • Объем бетона 0,73 м3
  • Геометрический объем 0,5952 м3
Цена: 14870 руб.
Подробнее
К 11-8-3
Колонны Серия 1.420-6
  • Длина 3720 мм.
  • Ширина 400 мм.
  • Высота 400 мм.
  • Вес 1700 кг.
  • Объем бетона 0,66 м3
  • Геометрический объем 0,5952 м3
Цена: 13444 руб.
Подробнее
К 12-10-5
Колонны Серия 1.420-6
  • Длина 3720 мм.
  • Ширина 400 мм.
  • Высота 400 мм.
  • Вес 1800 кг.
  • Объем бетона 0,73 м3
  • Геометрический объем 0,5952 м3
Цена: 14870 руб.
Подробнее
К 12-11
Колонны Серия 1.420-6
  • Длина 3720 мм.
  • Ширина 400 мм.
  • Высота 400 мм.
  • Вес 1800 кг.
  • Объем бетона 0,73 м3
  • Геометрический объем 0,5952 м3
Цена: 14870 руб.
Подробнее
К 13-6-1
Колонны Серия 1.420-6
  • Длина 11230 мм.
  • Ширина 400 мм.
  • Высота 400 мм.
  • Вес 4800 кг.
  • Объем бетона 1,93 м3
  • Геометрический объем 1,7968 м3
Цена: 39314 руб.
Подробнее
К 13-7-1
Колонны Серия 1.420-6
  • Длина 11230 мм.
  • Ширина 400 мм.
  • Высота 400 мм.
  • Вес 4800 кг.
  • Объем бетона 1,93 м3
  • Геометрический объем 1,7968 м3
Цена: 39314 руб.
Подробнее
К 13-6-5
Колонны Серия 1.420-6
  • Длина 11230 мм.
  • Ширина 400 мм.
  • Высота 400 мм.
  • Вес 4800 кг.
  • Объем бетона 1,93 м3
  • Геометрический объем 1,7968 м3
Цена: 39314 руб.
Подробнее
К 13-6-3
Колонны Серия 1.420-6
  • Длина 11230 мм.
  • Ширина 400 мм.
  • Высота 400 мм.
  • Вес 4800 кг.
  • Объем бетона 1,93 м3
  • Геометрический объем 1,7968 м3
Цена: 39314 руб.
Подробнее
К 13-7-3
Колонны Серия 1.420-6
  • Длина 11230 мм.
  • Ширина 400 мм.
  • Высота 400 мм.
  • Вес 4800 кг.
  • Объем бетона 1,93 м3
  • Геометрический объем 1,7968 м3
Цена: 39314 руб.
Подробнее
К 13-8-1
Колонны Серия 1.420-6
  • Длина 11230 мм.
  • Ширина 400 мм.
  • Высота 400 мм.
  • Вес 4800 кг.
  • Объем бетона 1,93 м3
  • Геометрический объем 1,7968 м3
Цена: 39314 руб.
Подробнее
К 14-10
Колонны Серия 1.420-6
  • Длина 11230 мм.
  • Ширина 400 мм.
  • Высота 400 мм.
  • Вес 5200 кг.
  • Объем бетона 2,06 м3
  • Геометрический объем 1,7968 м3
Цена: 41962 руб.
Подробнее
К 14-10-1
Колонны Серия 1.420-6
  • Длина 11230 мм.
  • Ширина 400 мм.
  • Высота 400 мм.
  • Вес 5200 кг.
  • Объем бетона 2,06 м3
  • Геометрический объем 1,7968 м3
Цена: 41962 руб.
Подробнее
К 14-11-1
Колонны Серия 1.420-6
  • Длина 11230 мм.
  • Ширина 400 мм.
  • Высота 400 мм.
  • Вес 5200 кг.
  • Объем бетона 2,06 м3
  • Геометрический объем 1,7968 м3
Цена: 41962 руб.
Подробнее
К 14-10-3
Колонны Серия 1.420-6
  • Длина 11230 мм.
  • Ширина 400 мм.
  • Высота 400 мм.
  • Вес 5200 кг.
  • Объем бетона 2,06 м3
  • Геометрический объем 1,7968 м3
Цена: 41962 руб.
Подробнее
К 14-8
Колонны Серия 1.420-6
  • Длина 11230 мм.
  • Ширина 400 мм.
  • Высота 400 мм.
  • Вес 5200 кг.
  • Объем бетона 2,06 м3
  • Геометрический объем 1,7968 м3
Цена: 41962 руб.
Подробнее
К 14-12-3
Колонны Серия 1.420-6
  • Длина 11230 мм.
  • Ширина 400 мм.
  • Высота 400 мм.
  • Вес 5200 кг.
  • Объем бетона 2,06 м3
  • Геометрический объем 1,7968 м3
Цена: 41962 руб.
Подробнее
К 14-8-1
Колонны Серия 1.420-6
  • Длина 11230 мм.
  • Ширина 400 мм.
  • Высота 400 мм.
  • Вес 5200 кг.
  • Объем бетона 2,06 м3
  • Геометрический объем 1,7968 м3
Цена: 41962 руб.
Подробнее
К 14-8-3
Колонны Серия 1.420-6
  • Длина 11230 мм.
  • Ширина 400 мм.
  • Высота 400 мм.
  • Вес 5200 кг.
  • Объем бетона 2,06 м3
  • Геометрический объем 1,7968 м3
Цена: 41962 руб.
Подробнее
К 14-9
Колонны Серия 1.420-6
  • Длина 11230 мм.
  • Ширина 400 мм.
  • Высота 400 мм.
  • Вес 5200 кг.
  • Объем бетона 2,06 м3
  • Геометрический объем 1,7968 м3
Цена: 41962 руб.
Подробнее
К 14-8-5
Колонны Серия 1.420-6
  • Длина 11230 мм.
  • Ширина 400 мм.
  • Высота 400 мм.
  • Вес 5200 кг.
  • Объем бетона 2,06 м3
  • Геометрический объем 1,7968 м3
Цена: 41962 руб.
Подробнее
К 14-9-3
Колонны Серия 1.420-6
  • Длина 11230 мм.
  • Ширина 400 мм.
  • Высота 400 мм.
  • Вес 5200 кг.
  • Объем бетона 2,06 м3
  • Геометрический объем 1,7968 м3
Цена: 41962 руб.
Подробнее
К 14-9-1
Колонны Серия 1.420-6
  • Длина 11230 мм.
  • Ширина 400 мм.
  • Высота 400 мм.
  • Вес 5200 кг.
  • Объем бетона 2,06 м3
  • Геометрический объем 1,7968 м3
Цена: 41962 руб.
Подробнее
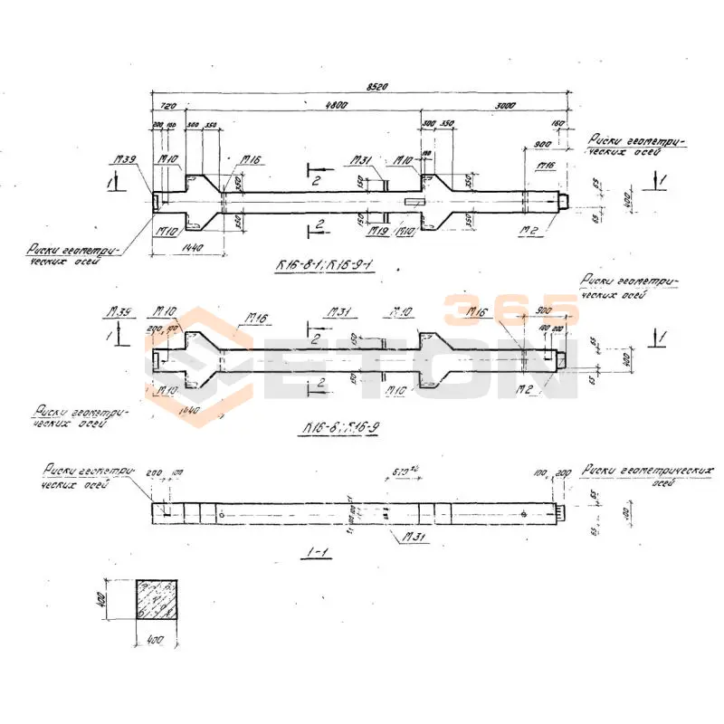
К 15-11-1
Колонны Серия 1.420-6
  • Длина 8520 мм.
  • Ширина 400 мм.
  • Высота 400 мм.
  • Вес 3800 кг.
  • Объем бетона 1,5 м3
  • Геометрический объем 1,3632 м3
Цена: 30555 руб.
Подробнее
К 15-11-3
Колонны Серия 1.420-6
  • Длина 8520 мм.
  • Ширина 400 мм.
  • Высота 400 мм.
  • Вес 3800 кг.
  • Объем бетона 1,5 м3
  • Геометрический объем 1,3632 м3
Цена: 30555 руб.
Подробнее
К 15-11-5
Колонны Серия 1.420-6
  • Длина 8520 мм.
  • Ширина 400 мм.
  • Высота 400 мм.
  • Вес 3800 кг.
  • Объем бетона 1,5 м3
  • Геометрический объем 1,3632 м3
Цена: 30555 руб.
Подробнее
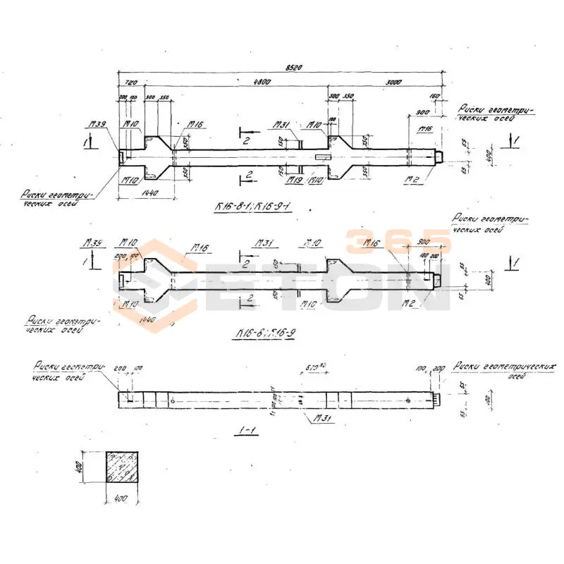
К 16-10-3
Колонны Серия 1.420-6
  • Длина 8520 мм.
  • Ширина 400 мм.
  • Высота 400 мм.
  • Вес 4100 кг.
  • Объем бетона 1,63 м3
  • Геометрический объем 1,3632 м3
Цена: 33203 руб.
Подробнее
К 15-12-3
Колонны Серия 1.420-6
  • Длина 8520 мм.
  • Ширина 400 мм.
  • Высота 400 мм.
  • Вес 3800 кг.
  • Объем бетона 1,5 м3
  • Геометрический объем 1,3632 м3
Цена: 30555 руб.
Подробнее
К 15-12-1
Колонны Серия 1.420-6
  • Длина 8520 мм.
  • Ширина 400 мм.
  • Высота 400 мм.
  • Вес 3800 кг.
  • Объем бетона 1,5 м3
  • Геометрический объем 1,3632 м3
Цена: 30555 руб.
Подробнее
К 16-8
Колонны Серия 1.420-6
  • Длина 8520 мм.
  • Ширина 400 мм.
  • Высота 400 мм.
  • Вес 4100 кг.
  • Объем бетона 1,63 м3
  • Геометрический объем 1,3632 м3
Цена: 33203 руб.
Подробнее
К 16-8-1
Колонны Серия 1.420-6
  • Длина 8520 мм.
  • Ширина 400 мм.
  • Высота 400 мм.
  • Вес 4100 кг.
  • Объем бетона 1,63 м3
  • Геометрический объем 1,3632 м3
Цена: 33203 руб.
Подробнее
К 16-8-3
Колонны Серия 1.420-6
  • Длина 8520 мм.
  • Ширина 400 мм.
  • Высота 400 мм.
  • Вес 4100 кг.
  • Объем бетона 1,63 м3
  • Геометрический объем 1,3632 м3
Цена: 33203 руб.
Подробнее
К 16-8-5
Колонны Серия 1.420-6
  • Длина 8520 мм.
  • Ширина 400 мм.
  • Высота 400 мм.
  • Вес 4100 кг.
  • Объем бетона 1,63 м3
  • Геометрический объем 1,3632 м3
Цена: 33203 руб.
Подробнее
К 16-9
Колонны Серия 1.420-6
  • Длина 8520 мм.
  • Ширина 400 мм.
  • Высота 400 мм.
  • Вес 4100 кг.
  • Объем бетона 1,63 м3
  • Геометрический объем 1,3632 м3
Цена: 33203 руб.
Подробнее
К 16-9-1
Колонны Серия 1.420-6
  • Длина 8520 мм.
  • Ширина 400 мм.
  • Высота 400 мм.
  • Вес 4100 кг.
  • Объем бетона 1,63 м3
  • Геометрический объем 1,3632 м3
Цена: 33203 руб.
Подробнее
К 16-9-3
Колонны Серия 1.420-6
  • Длина 8520 мм.
  • Ширина 400 мм.
  • Высота 400 мм.
  • Вес 4100 кг.
  • Объем бетона 1,63 м3
  • Геометрический объем 1,3632 м3
Цена: 33203 руб.
Подробнее
К 17-10-3
Колонны Серия 1.420-6
  • Длина 11230 мм.
  • Ширина 400 мм.
  • Высота 600 мм.
  • Вес 6600 кг.
  • Объем бетона 2,63 м3
  • Геометрический объем 2,6952 м3
Цена: 53573 руб.
Подробнее
К 17-10-5
Колонны Серия 1.420-6
  • Длина 11230 мм.
  • Ширина 400 мм.
  • Высота 600 мм.
  • Вес 6600 кг.
  • Объем бетона 2,63 м3
  • Геометрический объем 2,6952 м3
Цена: 53573 руб.
Подробнее
К 17-10-1
Колонны Серия 1.420-6
  • Длина 11230 мм.
  • Ширина 400 мм.
  • Высота 600 мм.
  • Вес 6600 кг.
  • Объем бетона 2,63 м3
  • Геометрический объем 2,6952 м3
Цена: 53573 руб.
Подробнее
К 17-12-1
Колонны Серия 1.420-6
  • Длина 11230 мм.
  • Ширина 400 мм.
  • Высота 600 мм.
  • Вес 6600 кг.
  • Объем бетона 2,63 м3
  • Геометрический объем 2,6952 м3
Цена: 53573 руб.
Подробнее
К 17-11-1
Колонны Серия 1.420-6
  • Длина 11230 мм.
  • Ширина 400 мм.
  • Высота 600 мм.
  • Вес 6600 кг.
  • Объем бетона 2,63 м3
  • Геометрический объем 2,6952 м3
Цена: 53573 руб.
Подробнее
К 17-11-3
Колонны Серия 1.420-6
  • Длина 11230 мм.
  • Ширина 400 мм.
  • Высота 600 мм.
  • Вес 6600 кг.
  • Объем бетона 2,63 м3
  • Геометрический объем 2,6952 м3
Цена: 53573 руб.
Подробнее
К 17-12-3
Колонны Серия 1.420-6
  • Длина 11230 мм.
  • Ширина 400 мм.
  • Высота 600 мм.
  • Вес 6600 кг.
  • Объем бетона 2,63 м3
  • Геометрический объем 2,6952 м3
Цена: 53573 руб.
Подробнее
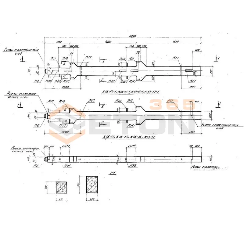
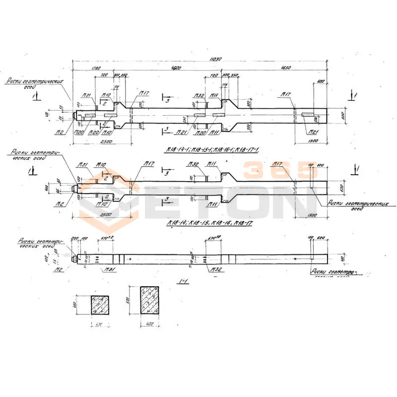
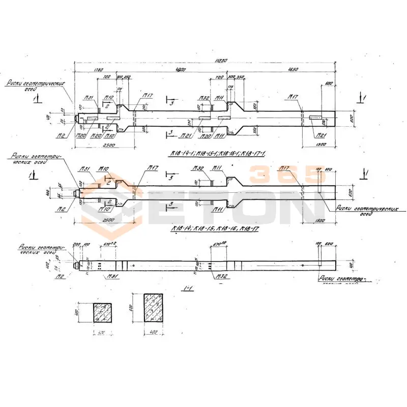
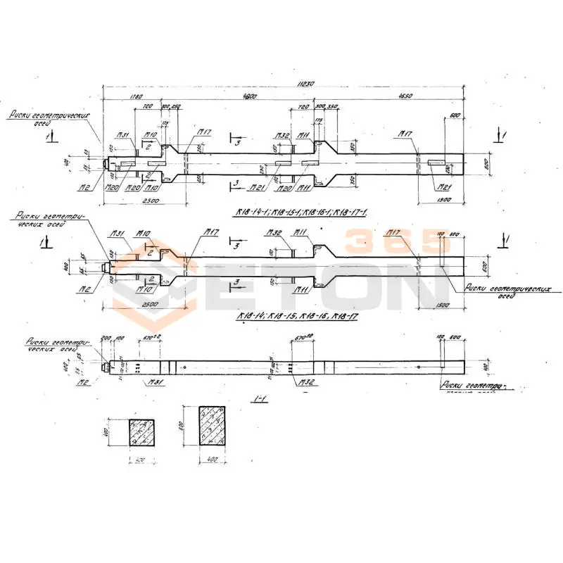
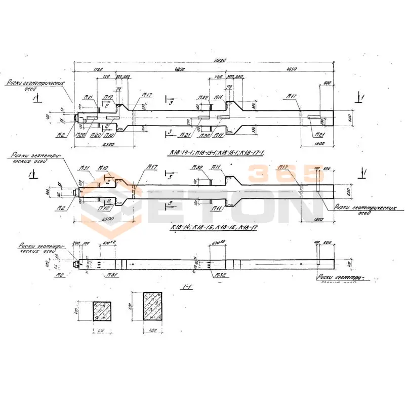
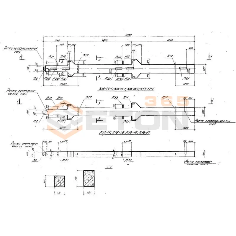
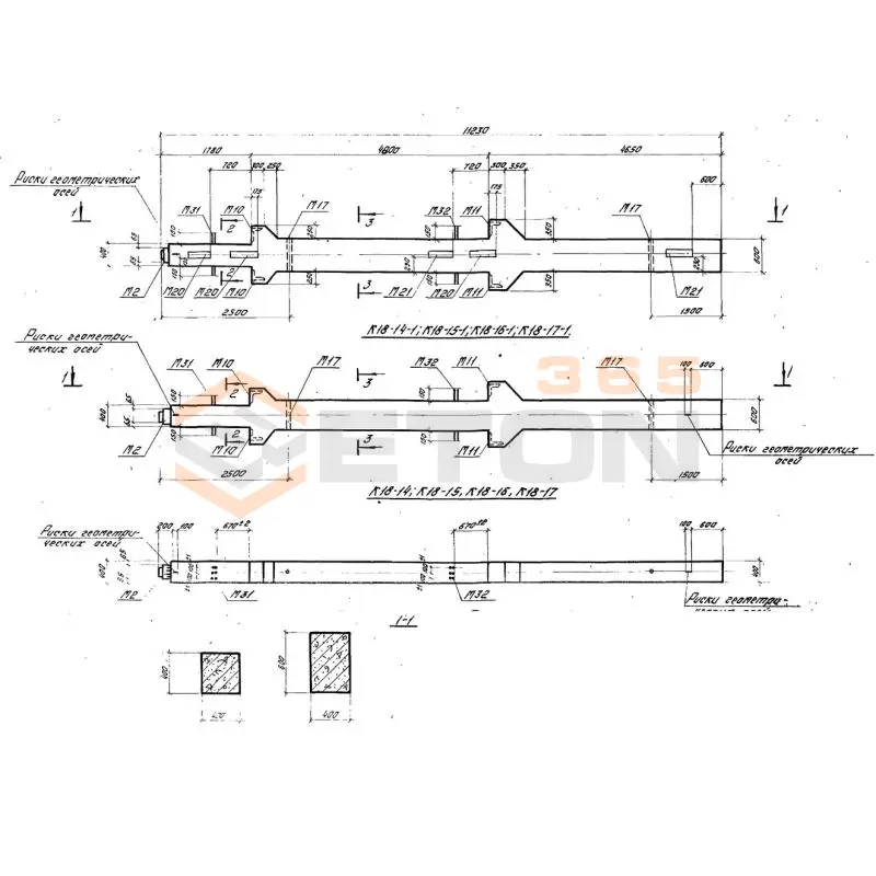
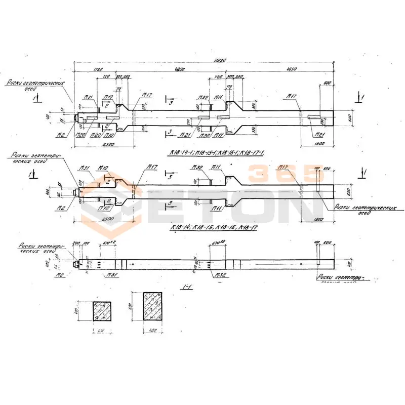
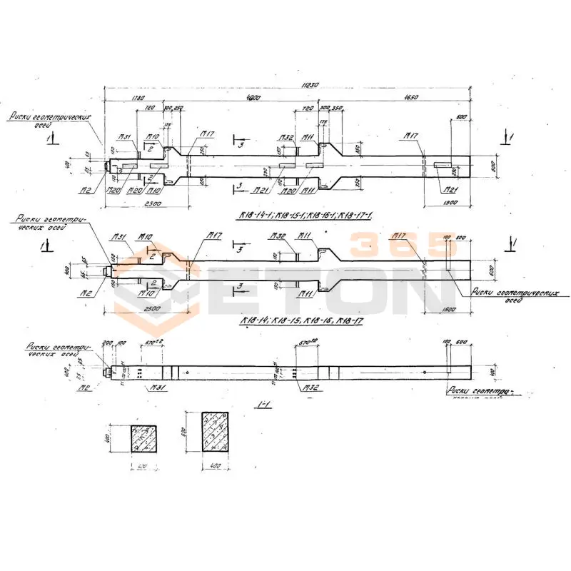
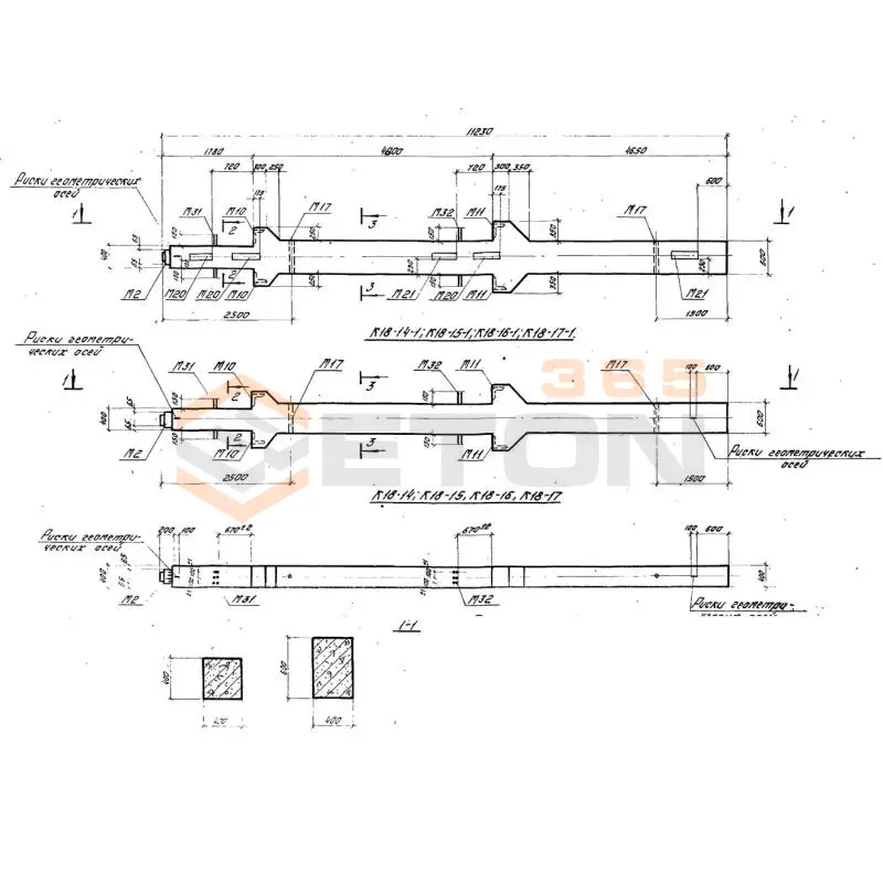
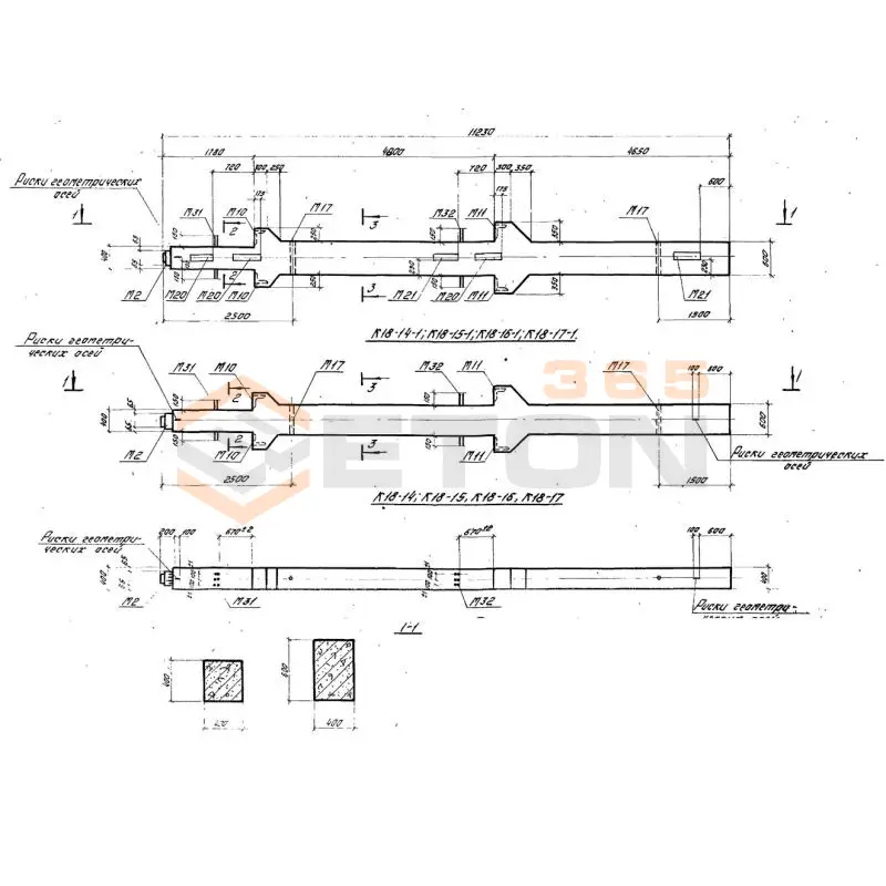
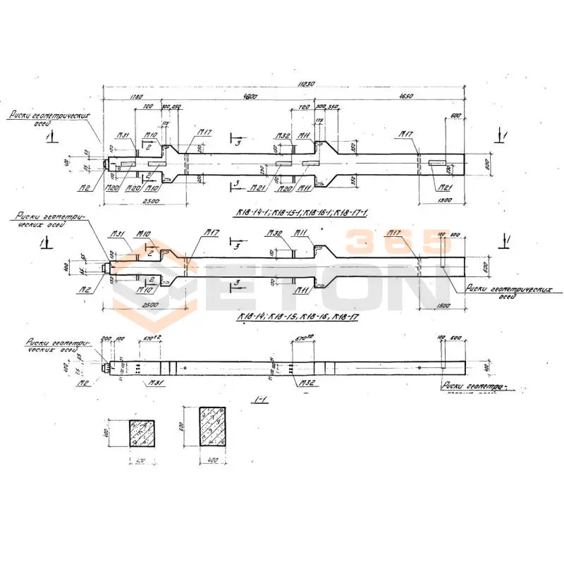
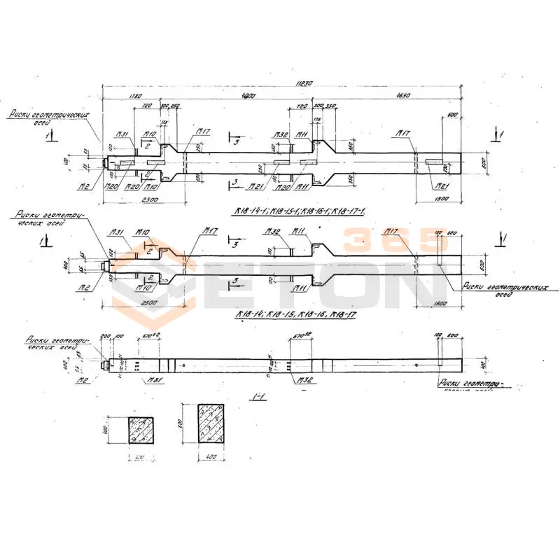
К 18-14
Колонны Серия 1.420-6
  • Длина 11230 мм.
  • Ширина 400 мм.
  • Высота 600 мм.
  • Вес 6900 кг.
  • Объем бетона 2,77 м3
  • Геометрический объем 2,6952 м3
Цена: 56425 руб.
Подробнее
К 18-14-3
Колонны Серия 1.420-6
  • Длина 11230 мм.
  • Ширина 400 мм.
  • Высота 600 мм.
  • Вес 6900 кг.
  • Объем бетона 2,77 м3
  • Геометрический объем 2,6952 м3
Цена: 56425 руб.
Подробнее
К 18-14-1
Колонны Серия 1.420-6
  • Длина 11230 мм.
  • Ширина 400 мм.
  • Высота 600 мм.
  • Вес 6900 кг.
  • Объем бетона 2,77 м3
  • Геометрический объем 2,6952 м3
Цена: 56425 руб.
Подробнее
К 18-15
Колонны Серия 1.420-6
  • Длина 11230 мм.
  • Ширина 400 мм.
  • Высота 600 мм.
  • Вес 6900 кг.
  • Объем бетона 2,77 м3
  • Геометрический объем 2,6952 м3
Цена: 56425 руб.
Подробнее
К 18-15-1
Колонны Серия 1.420-6
  • Длина 11230 мм.
  • Ширина 400 мм.
  • Высота 600 мм.
  • Вес 6900 кг.
  • Объем бетона 2,77 м3
  • Геометрический объем 2,6952 м3
Цена: 56425 руб.
Подробнее
К 18-15-3
Колонны Серия 1.420-6
  • Длина 11230 мм.
  • Ширина 400 мм.
  • Высота 600 мм.
  • Вес 6900 кг.
  • Объем бетона 2,77 м3
  • Геометрический объем 2,6952 м3
Цена: 56425 руб.
Подробнее
К 18-15-5
Колонны Серия 1.420-6
  • Длина 11230 мм.
  • Ширина 400 мм.
  • Высота 600 мм.
  • Вес 6900 кг.
  • Объем бетона 2,77 м3
  • Геометрический объем 2,6952 м3
Цена: 56425 руб.
Подробнее
К 18-16
Колонны Серия 1.420-6
  • Длина 11230 мм.
  • Ширина 400 мм.
  • Высота 600 мм.
  • Вес 6900 кг.
  • Объем бетона 2,77 м3
  • Геометрический объем 2,6952 м3
Цена: 56425 руб.
Подробнее
К 18-16-1
Колонны Серия 1.420-6
  • Длина 11230 мм.
  • Ширина 400 мм.
  • Высота 600 мм.
  • Вес 6900 кг.
  • Объем бетона 2,77 м3
  • Геометрический объем 2,6952 м3
Цена: 56425 руб.
Подробнее
К 18-16-3
Колонны Серия 1.420-6
  • Длина 11230 мм.
  • Ширина 400 мм.
  • Высота 600 мм.
  • Вес 6900 кг.
  • Объем бетона 2,77 м3
  • Геометрический объем 2,6952 м3
Цена: 56425 руб.
Подробнее
К 18-17
Колонны Серия 1.420-6
  • Длина 11230 мм.
  • Ширина 400 мм.
  • Высота 600 мм.
  • Вес 6900 кг.
  • Объем бетона 2,77 м3
  • Геометрический объем 2,6952 м3
Цена: 56425 руб.
Подробнее
К 18-17-1
Колонны Серия 1.420-6
  • Длина 11230 мм.
  • Ширина 400 мм.
  • Высота 600 мм.
  • Вес 6900 кг.
  • Объем бетона 2,77 м3
  • Геометрический объем 2,6952 м3
Цена: 56425 руб.
Подробнее
К 18-17-3
Колонны Серия 1.420-6
  • Длина 11230 мм.
  • Ширина 400 мм.
  • Высота 600 мм.
  • Вес 6900 кг.
  • Объем бетона 2,77 м3
  • Геометрический объем 2,6952 м3
Цена: 56425 руб.
Подробнее
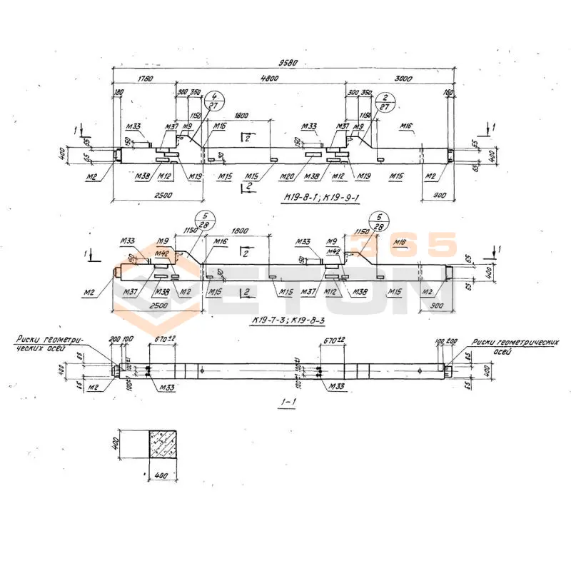
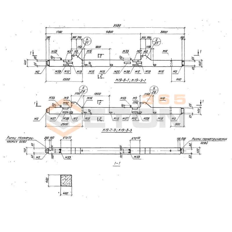
К 19-7-5
Колонны Серия 1.420-6
  • Длина 9580 мм.
  • Ширина 400 мм.
  • Высота 400 мм.
  • Вес 4200 кг.
  • Объем бетона 1,66 м3
  • Геометрический объем 1,5328 м3
Цена: 33814 руб.
Подробнее
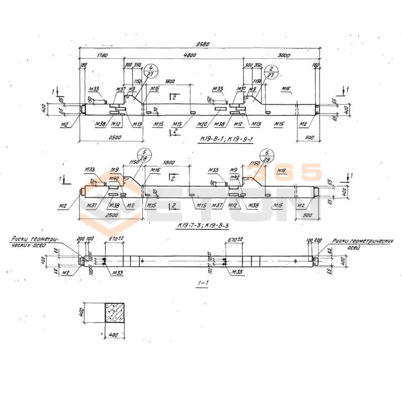
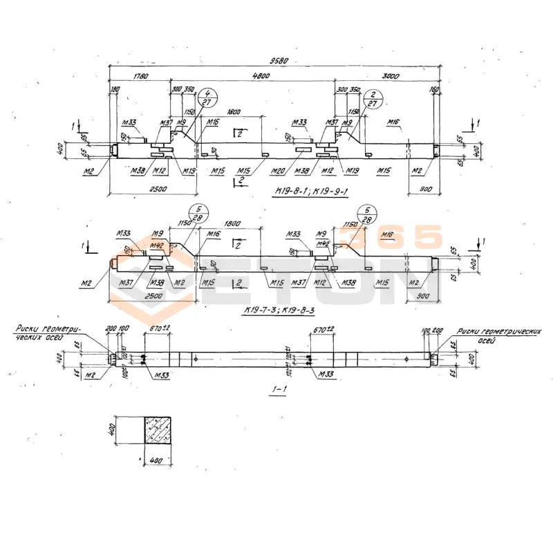
К 19-7-3
Колонны Серия 1.420-6
  • Длина 9580 мм.
  • Ширина 400 мм.
  • Высота 400 мм.
  • Вес 4200 кг.
  • Объем бетона 1,66 м3
  • Геометрический объем 1,5328 м3
Цена: 33814 руб.
Подробнее
К 19-8-3
Колонны Серия 1.420-6
  • Длина 9580 мм.
  • Ширина 400 мм.
  • Высота 400 мм.
  • Вес 4200 кг.
  • Объем бетона 1,66 м3
  • Геометрический объем 1,5328 м3
Цена: 33814 руб.
Подробнее
К 19-8-1
Колонны Серия 1.420-6
  • Длина 9580 мм.
  • Ширина 400 мм.
  • Высота 400 мм.
  • Вес 4200 кг.
  • Объем бетона 1,66 м3
  • Геометрический объем 1,5328 м3
Цена: 33814 руб.
Подробнее

Уведомление о файлах cookie

Мы используем файлы cookie для улучшения вашего опыта просмотра и анализа трафика. Нажимая "Принять все", вы соглашаетесь с нашей политикой конфиденциальности и политикой обработки файлов cookie.

Дзен Телеграм Вконтакте vk