mobile_sound +7 (930) 655-55-90

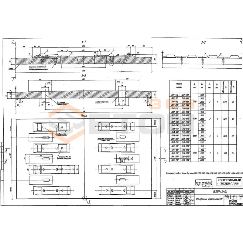
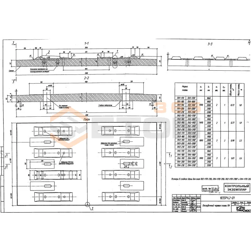
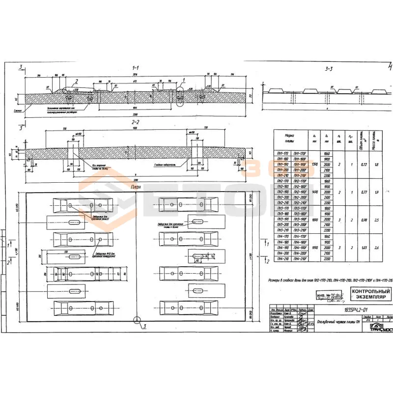
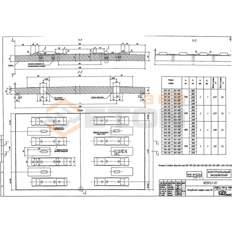
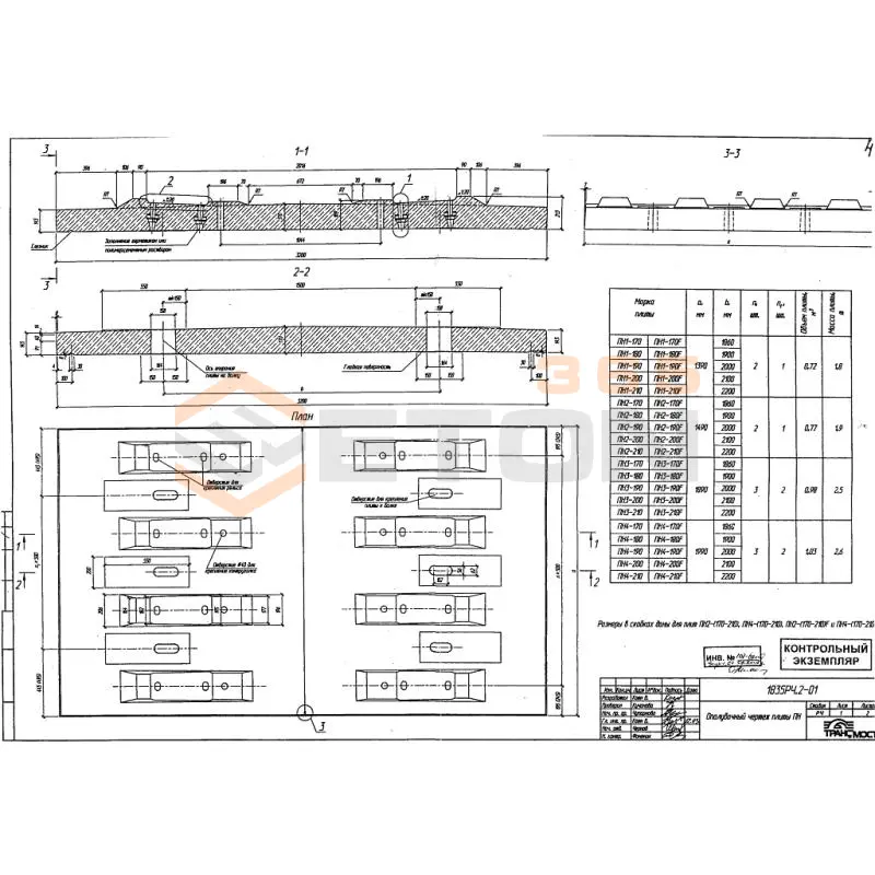
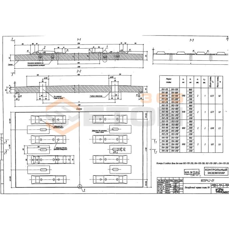
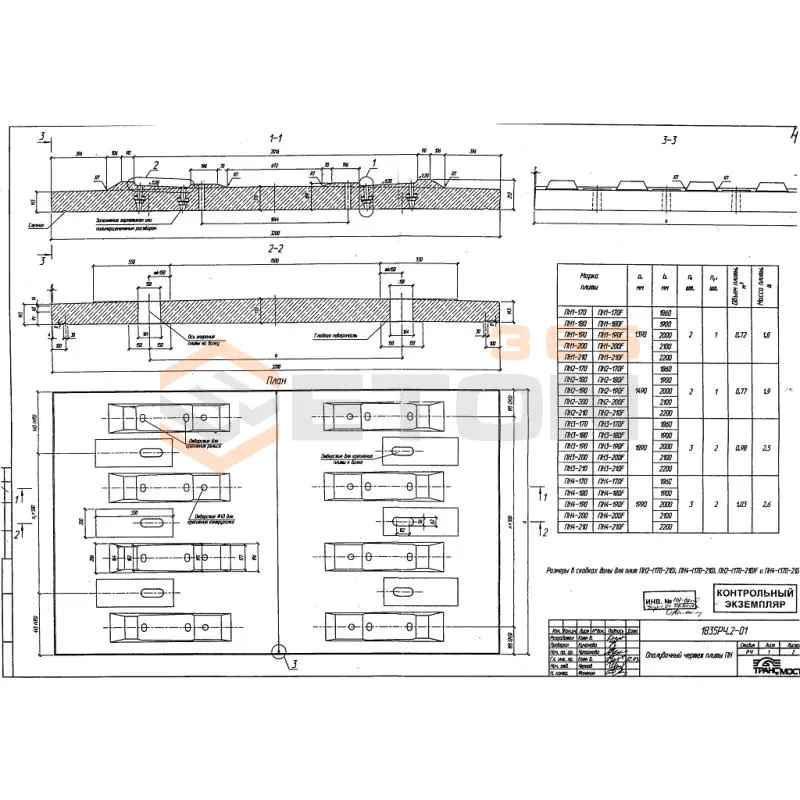
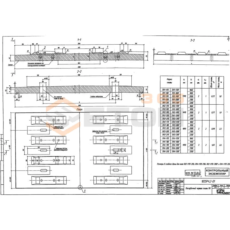
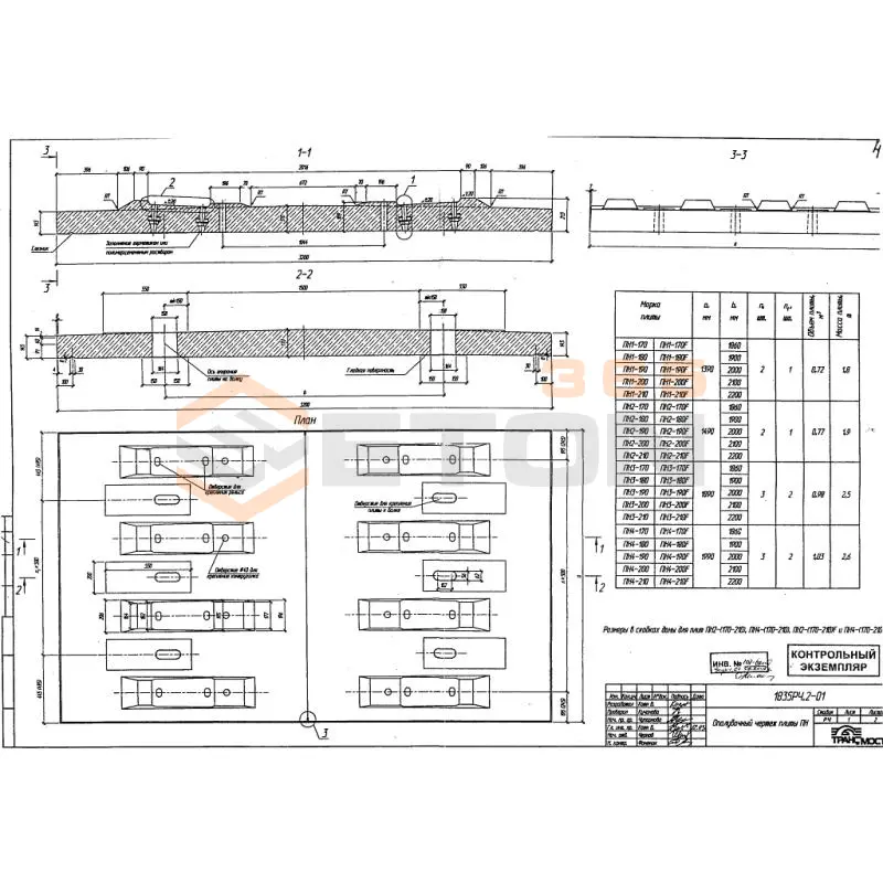
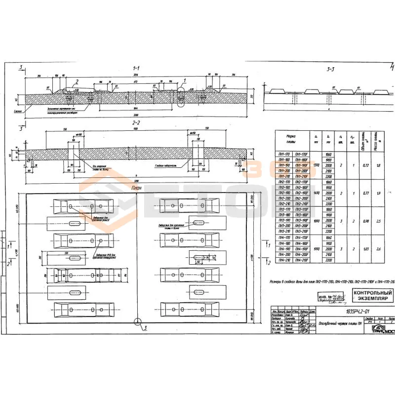
Плиты безбалластного мостового полотна (р.ч.1835РЧ/1922)

Поделиться:
Фильтр по характеристикам
Длина (мм.)
keyboard_arrow_down
мм.
мм.
Ширина (мм.)
keyboard_arrow_down
мм.
мм.
Высота (мм.)
keyboard_arrow_down
мм.
мм.
Вес (кг.)
keyboard_arrow_down
кг.
кг.
Объем бетона (м3)
keyboard_arrow_down
м3
м3
Поделиться:

Завод "Бетон365" производит плиты безбалластного мостового полотна (р.ч.1835РЧ/1922) – ключевой элемент для современных железнодорожных и транспортных развязок. Эти железобетонные конструкции обеспечивают исключительную жесткость и равномерное распределение нагрузок, что гарантирует долговечность и безопасность мостовых переходов. Соответствие строгим ГОСТам и применение высокомарочного бетона делает наши плиты оптимальным решением для объектов повышенной ответственности, значительно сокращая сроки монтажа и эксплуатационные расходы.

Реализуем плиты безбалластного мостового полотна собственного производства с доставкой по Москве и Московской области. Предлагаем конкурентные цены за счет прямых поставок от производителя и гарантируем соответствие всех изделий проектным требованиям. Для расчета стоимости и уточнения условий поставки обратитесь к нашим специалистам – поможем подобрать оптимальное решение для вашего объекта!

БМП 1-180
Плиты безбалластного мостового полотна (р.ч.1835РЧ/1922)
  • Длина 3200 мм.
  • Ширина 1390 мм.
  • Высота 180 мм.
  • Вес 1800 кг.
  • Объем бетона 0,72 м3
  • Геометрический объем 0,8006 м3
Цена: 48888 руб.
Подробнее
БМП 1-190
Плиты безбалластного мостового полотна (р.ч.1835РЧ/1922)
  • Длина 3200 мм.
  • Ширина 1390 мм.
  • Высота 190 мм.
  • Вес 1800 кг.
  • Объем бетона 0,72 м3
  • Геометрический объем 0,8451 м3
Цена: 48888 руб.
Подробнее
БМП 1-210
Плиты безбалластного мостового полотна (р.ч.1835РЧ/1922)
  • Длина 3200 мм.
  • Ширина 1390 мм.
  • Высота 210 мм.
  • Вес 1800 кг.
  • Объем бетона 0,72 м3
  • Геометрический объем 0,9341 м3
Цена: 48888 руб.
Подробнее
БМП 1-170
Плиты безбалластного мостового полотна (р.ч.1835РЧ/1922)
  • Длина 3200 мм.
  • Ширина 1390 мм.
  • Высота 170 мм.
  • Вес 1800 кг.
  • Объем бетона 0,72 м3
  • Геометрический объем 0,7562 м3
Цена: 48888 руб.
Подробнее
БМП 2-170
Плиты безбалластного мостового полотна (р.ч.1835РЧ/1922)
  • Длина 3200 мм.
  • Ширина 1490 мм.
  • Высота 170 мм.
  • Вес 1900 кг.
  • Объем бетона 0,76 м3
  • Геометрический объем 0,8106 м3
Цена: 51604 руб.
Подробнее
БМП 1-200
Плиты безбалластного мостового полотна (р.ч.1835РЧ/1922)
  • Длина 3200 мм.
  • Ширина 1390 мм.
  • Высота 200 мм.
  • Вес 1800 кг.
  • Объем бетона 0,72 м3
  • Геометрический объем 0,8896 м3
Цена: 48888 руб.
Подробнее
БМП 1-220
Плиты безбалластного мостового полотна (р.ч.1835РЧ/1922)
  • Длина 3200 мм.
  • Ширина 1390 мм.
  • Высота 220 мм.
  • Вес 1800 кг.
  • Объем бетона 0,72 м3
  • Геометрический объем 0,9786 м3
Цена: 48888 руб.
Подробнее
БМП 2-200
Плиты безбалластного мостового полотна (р.ч.1835РЧ/1922)
  • Длина 3200 мм.
  • Ширина 1490 мм.
  • Высота 200 мм.
  • Вес 1900 кг.
  • Объем бетона 0,76 м3
  • Геометрический объем 0,9536 м3
Цена: 51604 руб.
Подробнее
БМП 2-180
Плиты безбалластного мостового полотна (р.ч.1835РЧ/1922)
  • Длина 3200 мм.
  • Ширина 1490 мм.
  • Высота 180 мм.
  • Вес 1900 кг.
  • Объем бетона 0,76 м3
  • Геометрический объем 0,8582 м3
Цена: 51604 руб.
Подробнее
БМП 2-220
Плиты безбалластного мостового полотна (р.ч.1835РЧ/1922)
  • Длина 3200 мм.
  • Ширина 1490 мм.
  • Высота 220 мм.
  • Вес 1900 кг.
  • Объем бетона 0,76 м3
  • Геометрический объем 1,049 м3
Цена: 51604 руб.
Подробнее
БМП 3-170
Плиты безбалластного мостового полотна (р.ч.1835РЧ/1922)
  • Длина 3200 мм.
  • Ширина 1890 мм.
  • Высота 170 мм.
  • Вес 2500 кг.
  • Объем бетона 1 м3
  • Геометрический объем 1,0282 м3
Цена: 67900 руб.
Подробнее
БМП 2-210
Плиты безбалластного мостового полотна (р.ч.1835РЧ/1922)
  • Длина 3200 мм.
  • Ширина 1490 мм.
  • Высота 210 мм.
  • Вес 1900 кг.
  • Объем бетона 0,76 м3
  • Геометрический объем 1,0013 м3
Цена: 51604 руб.
Подробнее
БМП 2-190
Плиты безбалластного мостового полотна (р.ч.1835РЧ/1922)
  • Длина 3200 мм.
  • Ширина 1490 мм.
  • Высота 190 мм.
  • Вес 1900 кг.
  • Объем бетона 0,76 м3
  • Геометрический объем 0,9059 м3
Цена: 51604 руб.
Подробнее
БМП 3-180
Плиты безбалластного мостового полотна (р.ч.1835РЧ/1922)
  • Длина 3200 мм.
  • Ширина 1890 мм.
  • Высота 180 мм.
  • Вес 2500 кг.
  • Объем бетона 1 м3
  • Геометрический объем 1,0886 м3
Цена: 67900 руб.
Подробнее
БМП 4-170
Плиты безбалластного мостового полотна (р.ч.1835РЧ/1922)
  • Длина 3200 мм.
  • Ширина 1990 мм.
  • Высота 170 мм.
  • Вес 2600 кг.
  • Объем бетона 1,04 м3
  • Геометрический объем 1,0826 м3
Цена: 70616 руб.
Подробнее
БМП 3-190
Плиты безбалластного мостового полотна (р.ч.1835РЧ/1922)
  • Длина 3200 мм.
  • Ширина 1890 мм.
  • Высота 190 мм.
  • Вес 2500 кг.
  • Объем бетона 1 м3
  • Геометрический объем 1,1491 м3
Цена: 67900 руб.
Подробнее
БМП 3-210
Плиты безбалластного мостового полотна (р.ч.1835РЧ/1922)
  • Длина 3200 мм.
  • Ширина 1890 мм.
  • Высота 210 мм.
  • Вес 2500 кг.
  • Объем бетона 1 м3
  • Геометрический объем 1,2701 м3
Цена: 67900 руб.
Подробнее
БМП 3-220
Плиты безбалластного мостового полотна (р.ч.1835РЧ/1922)
  • Длина 3200 мм.
  • Ширина 1890 мм.
  • Высота 220 мм.
  • Вес 2500 кг.
  • Объем бетона 1 м3
  • Геометрический объем 1,3306 м3
Цена: 67900 руб.
Подробнее
БМП 4-190
Плиты безбалластного мостового полотна (р.ч.1835РЧ/1922)
  • Длина 3200 мм.
  • Ширина 1990 мм.
  • Высота 190 мм.
  • Вес 2600 кг.
  • Объем бетона 1,04 м3
  • Геометрический объем 1,2099 м3
Цена: 70616 руб.
Подробнее
БМП 4-180
Плиты безбалластного мостового полотна (р.ч.1835РЧ/1922)
  • Длина 3200 мм.
  • Ширина 1990 мм.
  • Высота 180 мм.
  • Вес 2600 кг.
  • Объем бетона 1,04 м3
  • Геометрический объем 1,1462 м3
Цена: 70616 руб.
Подробнее
БМП 3-200
Плиты безбалластного мостового полотна (р.ч.1835РЧ/1922)
  • Длина 3200 мм.
  • Ширина 1890 мм.
  • Высота 200 мм.
  • Вес 2500 кг.
  • Объем бетона 1 м3
  • Геометрический объем 1,2096 м3
Цена: 67900 руб.
Подробнее
БМП 4-200
Плиты безбалластного мостового полотна (р.ч.1835РЧ/1922)
  • Длина 3200 мм.
  • Ширина 1990 мм.
  • Высота 200 мм.
  • Вес 2600 кг.
  • Объем бетона 1,04 м3
  • Геометрический объем 1,2736 м3
Цена: 70616 руб.
Подробнее
БМП 4-220
Плиты безбалластного мостового полотна (р.ч.1835РЧ/1922)
  • Длина 3200 мм.
  • Ширина 1990 мм.
  • Высота 220 мм.
  • Вес 2600 кг.
  • Объем бетона 1,04 м3
  • Геометрический объем 1,401 м3
Цена: 70616 руб.
Подробнее
БМП 4-210
Плиты безбалластного мостового полотна (р.ч.1835РЧ/1922)
  • Длина 3200 мм.
  • Ширина 1990 мм.
  • Высота 210 мм.
  • Вес 2600 кг.
  • Объем бетона 1,04 м3
  • Геометрический объем 1,3373 м3
Цена: 70616 руб.
Подробнее
БМП П1 Д-200
Плиты безбалластного мостового полотна (р.ч.1835РЧ/1922)
  • Длина 3200 мм.
  • Ширина 1390 мм.
  • Высота 200 мм.
  • Вес 1800 кг.
  • Объем бетона 0,72 м3
  • Геометрический объем 0,8896 м3
Цена: 48888 руб.
Подробнее
БМП П1 Д-190
Плиты безбалластного мостового полотна (р.ч.1835РЧ/1922)
  • Длина 3200 мм.
  • Ширина 1390 мм.
  • Высота 190 мм.
  • Вес 1800 кг.
  • Объем бетона 0,72 м3
  • Геометрический объем 0,8451 м3
Цена: 48888 руб.
Подробнее
БМП П1 Д-180
Плиты безбалластного мостового полотна (р.ч.1835РЧ/1922)
  • Длина 3200 мм.
  • Ширина 1390 мм.
  • Высота 180 мм.
  • Вес 1800 кг.
  • Объем бетона 0,72 м3
  • Геометрический объем 0,8006 м3
Цена: 48888 руб.
Подробнее
БМП П1 Д-210
Плиты безбалластного мостового полотна (р.ч.1835РЧ/1922)
  • Длина 3200 мм.
  • Ширина 1390 мм.
  • Высота 210 мм.
  • Вес 1800 кг.
  • Объем бетона 0,72 м3
  • Геометрический объем 0,9341 м3
Цена: 48888 руб.
Подробнее
БМП П2 Д-190
Плиты безбалластного мостового полотна (р.ч.1835РЧ/1922)
  • Длина 3200 мм.
  • Ширина 1490 мм.
  • Высота 190 мм.
  • Вес 1900 кг.
  • Объем бетона 0,77 м3
  • Геометрический объем 0,9059 м3
Цена: 52283 руб.
Подробнее
БМП П2 Д-180
Плиты безбалластного мостового полотна (р.ч.1835РЧ/1922)
  • Длина 3200 мм.
  • Ширина 1490 мм.
  • Высота 180 мм.
  • Вес 1900 кг.
  • Объем бетона 0,77 м3
  • Геометрический объем 0,8582 м3
Цена: 52283 руб.
Подробнее
БМП П1 Д-220
Плиты безбалластного мостового полотна (р.ч.1835РЧ/1922)
  • Длина 3200 мм.
  • Ширина 1390 мм.
  • Высота 220 мм.
  • Вес 1800 кг.
  • Объем бетона 0,72 м3
  • Геометрический объем 0,9786 м3
Цена: 48888 руб.
Подробнее
БМП П2 Д-200
Плиты безбалластного мостового полотна (р.ч.1835РЧ/1922)
  • Длина 3200 мм.
  • Ширина 1490 мм.
  • Высота 200 мм.
  • Вес 1900 кг.
  • Объем бетона 0,77 м3
  • Геометрический объем 0,9536 м3
Цена: 52283 руб.
Подробнее
БМП П2 Д-210
Плиты безбалластного мостового полотна (р.ч.1835РЧ/1922)
  • Длина 3200 мм.
  • Ширина 1490 мм.
  • Высота 210 мм.
  • Вес 1900 кг.
  • Объем бетона 0,77 м3
  • Геометрический объем 1,0013 м3
Цена: 52283 руб.
Подробнее
БМП П2 Д-220
Плиты безбалластного мостового полотна (р.ч.1835РЧ/1922)
  • Длина 3200 мм.
  • Ширина 1490 мм.
  • Высота 220 мм.
  • Вес 1900 кг.
  • Объем бетона 0,77 м3
  • Геометрический объем 1,049 м3
Цена: 52283 руб.
Подробнее
БМП П3 Д-180
Плиты безбалластного мостового полотна (р.ч.1835РЧ/1922)
  • Длина 3200 мм.
  • Ширина 1890 мм.
  • Высота 180 мм.
  • Вес 2,5 кг.
  • Объем бетона 0,98 м3
  • Геометрический объем 1,0886 м3
Цена: 66542 руб.
Подробнее
БМП П3 Д-190
Плиты безбалластного мостового полотна (р.ч.1835РЧ/1922)
  • Длина 3200 мм.
  • Ширина 1890 мм.
  • Высота 190 мм.
  • Вес 2,5 кг.
  • Объем бетона 0,98 м3
  • Геометрический объем 1,1491 м3
Цена: 66542 руб.
Подробнее
БМП П3 Д-200
Плиты безбалластного мостового полотна (р.ч.1835РЧ/1922)
  • Длина 3200 мм.
  • Ширина 1890 мм.
  • Высота 200 мм.
  • Вес 2,5 кг.
  • Объем бетона 0,98 м3
  • Геометрический объем 1,2096 м3
Цена: 66542 руб.
Подробнее
БМП П3 Д-220
Плиты безбалластного мостового полотна (р.ч.1835РЧ/1922)
  • Длина 3200 мм.
  • Ширина 1890 мм.
  • Высота 220 мм.
  • Вес 2,5 кг.
  • Объем бетона 0,98 м3
  • Геометрический объем 1,3306 м3
Цена: 66542 руб.
Подробнее
БМП П3 Д-210
Плиты безбалластного мостового полотна (р.ч.1835РЧ/1922)
  • Длина 3200 мм.
  • Ширина 1890 мм.
  • Высота 210 мм.
  • Вес 2,5 кг.
  • Объем бетона 0,98 м3
  • Геометрический объем 1,2701 м3
Цена: 66542 руб.
Подробнее
БМП П4 Д-180
Плиты безбалластного мостового полотна (р.ч.1835РЧ/1922)
  • Длина 3200 мм.
  • Ширина 1990 мм.
  • Высота 180 мм.
  • Вес 2,6 кг.
  • Объем бетона 1,03 м3
  • Геометрический объем 1,1462 м3
Цена: 69937 руб.
Подробнее
БМП П4 Д-200
Плиты безбалластного мостового полотна (р.ч.1835РЧ/1922)
  • Длина 3200 мм.
  • Ширина 1990 мм.
  • Высота 200 мм.
  • Вес 2,6 кг.
  • Объем бетона 1,03 м3
  • Геометрический объем 1,2736 м3
Цена: 69937 руб.
Подробнее
БМП П4 Д-190
Плиты безбалластного мостового полотна (р.ч.1835РЧ/1922)
  • Длина 3200 мм.
  • Ширина 1990 мм.
  • Высота 190 мм.
  • Вес 2,6 кг.
  • Объем бетона 1,03 м3
  • Геометрический объем 1,2099 м3
Цена: 69937 руб.
Подробнее
БМП П4 Д-210
Плиты безбалластного мостового полотна (р.ч.1835РЧ/1922)
  • Длина 3200 мм.
  • Ширина 1990 мм.
  • Высота 210 мм.
  • Вес 2,6 кг.
  • Объем бетона 1,03 м3
  • Геометрический объем 1,3373 м3
Цена: 69937 руб.
Подробнее
БМП П4 Д-220
Плиты безбалластного мостового полотна (р.ч.1835РЧ/1922)
  • Длина 3200 мм.
  • Ширина 1990 мм.
  • Высота 220 мм.
  • Вес 2,6 кг.
  • Объем бетона 1,03 м3
  • Геометрический объем 1,401 м3
Цена: 69937 руб.
Подробнее

Как правильно выбрать - Плиты безбалластного мостового полотна (р.ч.1835РЧ/1922)

Плиты безбалластного мостового полотна (р.ч.1835РЧ/1922) предназначены для устройства верхнего строения пути на железнодорожных и совмещенных мостах. Они служат непосредственным основанием для укладки рельсов, воспринимая и распределяя динамические нагрузки от подвижного состава. Применение этих плит исключает необходимость в балластном слое, что повышает устойчивость пути и снижает эксплуатационные расходы. Долговечность и безопасность мостового перехода в значительной степени определяются грамотным подбором параметров плит безбалластного мостового полотна в соответствии с проектным решением.

Критерии выбора

  • Класс бетона и защитные свойства: Обязательно соответствие бетона классу не ниже В35 (М450) с показателями морозостойкости F300 и водонепроницаемости W6, что критично для работы в условиях агрессивной среды.
  • Армирование: Проверьте соответствие проекта армирования – класс напрягаемой арматуры (например, Ат-IV, Ат-V) и схему ее расположения, обеспечивающую трещиностойкость.
  • Типоразмер и конфигурация: Уточните габаритные размеры и тип плиты (прямая, криволинейная) согласно серии, наличие и расположение монтажных петель, анкерных устройств и каналов для последующей анкеровки.
  • Расчетные нагрузки: Убедитесь, что изделие рассчитано на конкретные нагрузки от подвижного состава (осевые, вертикальные, горизонтальные), указанные в проекте.
  • Комплектность и сопряжения: Обратите внимание на наличие всех предусмотренных закладных деталей для соединения с опорными частями и соседними плитами, а также для крепления рельсошпальной решетки.
  • Нормативная документация: Изделие должно изготавливаться строго в соответствии с рабочими чертежами серии 3.503.1-... и ГОСТ 13015-2012.

Рекомендации по подбору и монтажу

При составлении спецификации на плиты безбалластного мостового полотна (р.ч.1835РЧ/1922) необходимо учитывать не только типовые размеры, но и индивидуальные особенности пролетного строения – радиус кривизны, продольный уклон, тип деформационного шва. Требуйте от производителя паспорта качества с протоколами испытаний контрольных образцов на прочность, морозостойкость и водонепроницаемость.

Монтаж требует особой точности. Основание (опорные части) должно быть выверено по проектным отметкам и плоскостности. Перед укладкой проверьте чистоту опорных поверхностей. Ключевой этап – точная установка и последующее натяжение анкерных болтов, обеспечивающее совместную работу всех плит полотна как единой конструкции. Пренебрежение качеством анкеровки – частая причина появления недопустимых напряжений и деформаций.

Ответы экспертов на ваши вопросы

Основные преимущества включают: значительное снижение постоянной нагрузки на пролетное строение, повышенную долговечность (срок службы до 50-100 лет), минимальные эксплуатационные расходы, устойчивость к динамическим воздействиям от подвижного состава, возможность устройства на кривых участках пути с повышенными скоростями движения, а также улучшенные условия для отвода воды с поверхности полотна.

Плиты изготавливаются из тяжелого бетона классов В35-В45 по прочности на сжатие, с обязательным армированием предварительно напряженной арматурой класса А800-А1000. Для обеспечения долговечности применяются морозостойкие марки бетона F200-F300, обеспечивающие стойкость к многократным циклам замораживания-оттаивания в условиях эксплуатации на мостовых сооружениях.

Соединение плит между собой осуществляется с помощью петель из арматуры, расположенных по торцам плит, с последующей замоноличиванием стыков бетоном. Крепление к пролетному строению выполняется через анкерные устройства, которые предотвращают смещение плит под динамическими нагрузками. Все соединения рассчитываются на восприятие сдвигающих и отрывающих усилий от подвижного состава.

При монтаже требуется строгое соблюдение проектных отметок и уклонов, точная центровка относительно оси пути, обеспечение проектных зазоров между плитами для температурных деформаций. Особое внимание уделяется качеству замоноличивания стыков и анкерных соединений. Монтаж должен производиться при положительных температурах окружающей среды, а бетон для заделки стыков должен иметь противоморозные добавки при необходимости.

Плиты рассчитаны на восприятие нагрузок от подвижного состава согласно СТН Ц-01-95 (ВСН 186-75) для категорий С14 и выше, включая воздействие от высокоскоростных поездов. Конструкция обеспечивает равномерное распределение нагрузок от колесных пар на пролетное строение с учетом динамических коэффициентов 1+μ, достигающих значений 1,4-1,6 в зависимости от длины пролета и скорости движения.

Ранее смотрели
Фундаментные блоки пустотные ФБП серия 1.116.1-8 и ГОСТ 13579-78 ФБП 24-4-6 п
ФБП 24-4-6 п
Фундаментные блоки пустотные ФБП серия 1.116.1-8 и ГОСТ 13579-78
Косоуры ТП 501-166 К 7 (ТП 501-166)
К 7 (ТП 501-166)
Косоуры ТП 501-166
Настил коробчатый Серия В 86 Н 1-4,5-700 п (В 86)
Н 1-4,5-700 п (В 86)
Настил коробчатый Серия В 86
Косоуры ТП 501-166 К 1 (ТП 501-166)
К 1 (ТП 501-166)
Косоуры ТП 501-166
Опорные подушки Серия 1.030.9-2 ОП 3
ОП 3
Опорные подушки Серия 1.030.9-2
Косоуры ТП 501-166 К 5 (ТП 501-166)
К 5 (ТП 501-166)
Косоуры ТП 501-166
Лотки-полутрубы Д 1 м
Лотки-полутрубы Д 1 м
Мотки Альбом 819
Звенья железобетонные круглых водопропускных труб под железные и автомобильные дороги (Шифр 57-368) Блок 83 (блок фундамента R-1,0)
Блок 83 (блок фундамента R-1,0)
Звенья железобетонные круглых водопропускных труб под железные и автомобильные дороги (Шифр 57-368)

Уведомление о файлах cookie

Мы используем файлы cookie для улучшения вашего опыта просмотра и анализа трафика. Нажимая "Принять все", вы соглашаетесь с нашей политикой конфиденциальности и политикой обработки файлов cookie.

Дзен Телеграм Вконтакте vk