mobile_sound +7 (930) 655-55-90

Типовые конструкции и железобетонные изделия. Рабочие чертежи (Серия СТ 02-01)

Поделиться:
Поделиться:

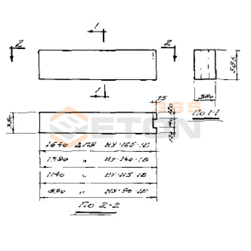
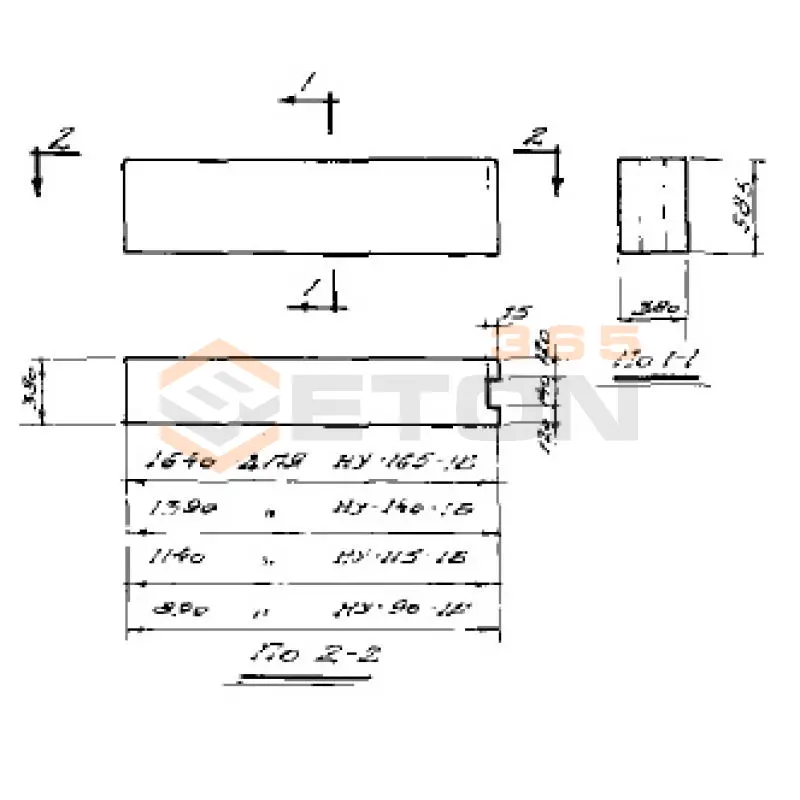
Документ Серия СТ 02-01 описывает область применения, номенклатуру и ключевые требования, опираясь на действующие нормы и практику проектирования. Узнать все об особенностях производства крупнопанельных блоков, применяемых при возведении производственных предприятий и промышленных сооружений, можно на страницах Серии СТ 02-01. Одноэтажные здания запроектированы с толщиной стен 30, 40 и 50 см. Важно при подборе материалов под нужды того или иного типового проекта учитывать температурно-влажностный режим.

Файлы для скачивания:
picture_as_pdf

5536.pdf

1,563.8 KB

скачать
picture_as_pdf

5537.pdf

2,127.3 KB

скачать
picture_as_pdf

5538.pdf

631.0 KB

скачать
Товары Серия СТ 02-01 (60)
НУ 225-4/3 В (СТ 02-01)
Блоки наружные угловые Серия СТ 02-01
  • Длина 2250 мм.
  • Ширина 500 мм.
  • Высота 785 мм.
  • Вес 1425 кг.
  • Объем бетона 0,86 м3
  • Геометрический объем 0,8831 м3
Цена: 14181 руб.
Подробнее
НУ 228-2 В (СТ 02-01)
Блоки наружные угловые Серия СТ 02-01
  • Длина 2270 мм.
  • Ширина 510 мм.
  • Высота 1185 мм.
  • Вес 2426 кг.
  • Объем бетона 1,35 м3
  • Геометрический объем 1,3719 м3
Цена: 22262 руб.
Подробнее
НУ 228-2 В (СТ 02-01)
Блоки наружные угловые Серия СТ 02-01
  • Длина 2270 мм.
  • Ширина 510 мм.
  • Высота 1185 мм.
  • Вес 2022 кг.
  • Объем бетона 1,35 м3
  • Геометрический объем 1,3719 м3
Цена: 22262 руб.
Подробнее
НУ 228-2 В (СТ 02-01)
Блоки наружные угловые Серия СТ 02-01
  • Длина 2270 мм.
  • Ширина 510 мм.
  • Высота 1185 мм.
  • Вес 2115 кг.
  • Объем бетона 1,35 м3
  • Геометрический объем 1,3719 м3
Цена: 22262 руб.
Подробнее
НУ 90-1 Б (СТ 02-01)
Блоки наружные угловые Серия СТ 02-01
  • Длина 890 мм.
  • Ширина 380 мм.
  • Высота 585 мм.
  • Вес 343 кг.
  • Объем бетона 0,19 м3
  • Геометрический объем 0,1978 м3
Цена: 3133 руб.
Подробнее
НУ 90-1 Б (СТ 02-01)
Блоки наружные угловые Серия СТ 02-01
  • Длина 890 мм.
  • Ширина 380 мм.
  • Высота 585 мм.
  • Вес 286 кг.
  • Объем бетона 0,19 м3
  • Геометрический объем 0,1978 м3
Цена: 3133 руб.
Подробнее
НУ 90-1 Б (СТ 02-01)
Блоки наружные угловые Серия СТ 02-01
  • Длина 890 мм.
  • Ширина 380 мм.
  • Высота 585 мм.
  • Вес 320 кг.
  • Объем бетона 0,19 м3
  • Геометрический объем 0,1978 м3
Цена: 3133 руб.
Подробнее
НР 100-1 А (СТ 02-01)
Блоки наружных стен Серия СТ 02-01
  • Длина 990 мм.
  • Ширина 250 мм.
  • Высота 585 мм.
  • Вес 217 кг.
  • Объем бетона 0,15 м3
  • Геометрический объем 0,1448 м3
Цена: 2474 руб.
Подробнее
НР 100-1 А (СТ 02-01)
Блоки наружных стен Серия СТ 02-01
  • Длина 990 мм.
  • Ширина 250 мм.
  • Высота 585 мм.
  • Вес 261 кг.
  • Объем бетона 0,15 м3
  • Геометрический объем 0,1448 м3
Цена: 2474 руб.
Подробнее
НР 100-1 А (СТ 02-01)
Блоки наружных стен Серия СТ 02-01
  • Длина 990 мм.
  • Ширина 300 мм.
  • Высота 585 мм.
  • Вес 192 кг.
  • Объем бетона 0,17 м3
  • Геометрический объем 0,1737 м3
Цена: 2803 руб.
Подробнее
НР 100-1 А (СТ 02-01)
Блоки наружных стен Серия СТ 02-01
  • Длина 990 мм.
  • Ширина 300 мм.
  • Высота 585 мм.
  • Вес 279 кг.
  • Объем бетона 0,17 м3
  • Геометрический объем 0,1737 м3
Цена: 2803 руб.
Подробнее
НР 100-1 А (СТ 02-01)
Блоки наружных стен Серия СТ 02-01
  • Длина 990 мм.
  • Ширина 300 мм.
  • Высота 585 мм.
  • Вес 258 кг.
  • Объем бетона 0,17 м3
  • Геометрический объем 0,1737 м3
Цена: 2803 руб.
Подробнее
НР 100-1 Б (СТ 02-01)
Блоки наружных стен Серия СТ 02-01
  • Длина 990 мм.
  • Ширина 400 мм.
  • Высота 585 мм.
  • Вес 363 кг.
  • Объем бетона 0,22 м3
  • Геометрический объем 0,2317 м3
Цена: 3628 руб.
Подробнее
НР 100-1 Б (СТ 02-01)
Блоки наружных стен Серия СТ 02-01
  • Длина 990 мм.
  • Ширина 400 мм.
  • Высота 585 мм.
  • Вес 333 кг.
  • Объем бетона 0,22 м3
  • Геометрический объем 0,2317 м3
Цена: 3628 руб.
Подробнее
НР 100-1 Б (СТ 02-01)
Блоки наружных стен Серия СТ 02-01
  • Длина 990 мм.
  • Ширина 380 мм.
  • Высота 585 мм.
  • Вес 373 кг.
  • Объем бетона 0,2 м3
  • Геометрический объем 0,2201 м3
Цена: 3298 руб.
Подробнее
НР 100-1 Б (СТ 02-01)
Блоки наружных стен Серия СТ 02-01
  • Длина 990 мм.
  • Ширина 400 мм.
  • Высота 585 мм.
  • Вес 251 кг.
  • Объем бетона 0,22 м3
  • Геометрический объем 0,2317 м3
Цена: 3628 руб.
Подробнее
НР 100-1 Б (СТ 02-01)
Блоки наружных стен Серия СТ 02-01
  • Длина 990 мм.
  • Ширина 380 мм.
  • Высота 585 мм.
  • Вес 312 кг.
  • Объем бетона 0,2 м3
  • Геометрический объем 0,2201 м3
Цена: 3298 руб.
Подробнее
НР 100-1 В (СТ 02-01)
Блоки наружных стен Серия СТ 02-01
  • Длина 990 мм.
  • Ширина 500 мм.
  • Высота 585 мм.
  • Вес 451 кг.
  • Объем бетона 0,27 м3
  • Геометрический объем 0,2896 м3
Цена: 4452 руб.
Подробнее
НР 100-1 Б (СТ 02-01)
Блоки наружных стен Серия СТ 02-01
  • Длина 990 мм.
  • Ширина 380 мм.
  • Высота 585 мм.
  • Вес 350 кг.
  • Объем бетона 0,2 м3
  • Геометрический объем 0,2201 м3
Цена: 3298 руб.
Подробнее
НР 100-1 В (СТ 02-01)
Блоки наружных стен Серия СТ 02-01
  • Длина 990 мм.
  • Ширина 500 мм.
  • Высота 585 мм.
  • Вес 400 кг.
  • Объем бетона 0,27 м3
  • Геометрический объем 0,2896 м3
Цена: 4452 руб.
Подробнее
НР 100-1 В (СТ 02-01)
Блоки наружных стен Серия СТ 02-01
  • Длина 990 мм.
  • Ширина 510 мм.
  • Высота 585 мм.
  • Вес 411 кг.
  • Объем бетона 0,27 м3
  • Геометрический объем 0,2954 м3
Цена: 4452 руб.
Подробнее
НР 100-1 В (СТ 02-01)
Блоки наружных стен Серия СТ 02-01
  • Длина 990 мм.
  • Ширина 500 мм.
  • Высота 585 мм.
  • Вес 308 кг.
  • Объем бетона 0,27 м3
  • Геометрический объем 0,2896 м3
Цена: 4452 руб.
Подробнее
НР 100-1 В (СТ 02-01)
Блоки наружных стен Серия СТ 02-01
  • Длина 990 мм.
  • Ширина 510 мм.
  • Высота 585 мм.
  • Вес 437 кг.
  • Объем бетона 0,27 м3
  • Геометрический объем 0,2954 м3
Цена: 4452 руб.
Подробнее
НР 100-2 А (СТ 02-01)
Блоки наружных стен Серия СТ 02-01
  • Длина 990 мм.
  • Ширина 300 мм.
  • Высота 1185 мм.
  • Вес 572 кг.
  • Объем бетона 0,34 м3
  • Геометрический объем 0,3519 м3
Цена: 5607 руб.
Подробнее
НР 100-2 А (СТ 02-01)
Блоки наружных стен Серия СТ 02-01
  • Длина 990 мм.
  • Ширина 300 мм.
  • Высота 1185 мм.
  • Вес 510 кг.
  • Объем бетона 0,34 м3
  • Геометрический объем 0,3519 м3
Цена: 5607 руб.
Подробнее
НР 100-1 В (СТ 02-01)
Блоки наружных стен Серия СТ 02-01
  • Длина 990 мм.
  • Ширина 510 мм.
  • Высота 585 мм.
  • Вес 504 кг.
  • Объем бетона 0,27 м3
  • Геометрический объем 0,2954 м3
Цена: 4452 руб.
Подробнее
НР 100-2 А (СТ 02-01)
Блоки наружных стен Серия СТ 02-01
  • Длина 990 мм.
  • Ширина 250 мм.
  • Высота 1185 мм.
  • Вес 440 кг.
  • Объем бетона 0,3 м3
  • Геометрический объем 0,2933 м3
Цена: 4947 руб.
Подробнее
НР 100-2 А (СТ 02-01)
Блоки наружных стен Серия СТ 02-01
  • Длина 990 мм.
  • Ширина 300 мм.
  • Высота 1185 мм.
  • Вес 382 кг.
  • Объем бетона 0,34 м3
  • Геометрический объем 0,3519 м3
Цена: 5607 руб.
Подробнее
НР 100-2 А (СТ 02-01)
Блоки наружных стен Серия СТ 02-01
  • Длина 990 мм.
  • Ширина 250 мм.
  • Высота 1185 мм.
  • Вес 527 кг.
  • Объем бетона 0,3 м3
  • Геометрический объем 0,2933 м3
Цена: 4947 руб.
Подробнее
НР 100-2 Б (СТ 02-01)
Блоки наружных стен Серия СТ 02-01
  • Длина 765 мм.
  • Ширина 380 мм.
  • Высота 1185 мм.
  • Вес 710 кг.
  • Объем бетона 0,44 м3
  • Геометрический объем 0,3445 м3
Цена: 7256 руб.
Подробнее
НР 100-2 Б (СТ 02-01)
Блоки наружных стен Серия СТ 02-01
  • Длина 765 мм.
  • Ширина 380 мм.
  • Высота 1185 мм.
  • Вес 638 кг.
  • Объем бетона 0,43 м3
  • Геометрический объем 0,3445 м3
Цена: 7091 руб.
Подробнее
НР 100-2 Б (СТ 02-01)
Блоки наружных стен Серия СТ 02-01
  • Длина 765 мм.
  • Ширина 380 мм.
  • Высота 1185 мм.
  • Вес 765 кг.
  • Объем бетона 0,43 м3
  • Геометрический объем 0,3445 м3
Цена: 7091 руб.
Подробнее
НР 100-2 Б (СТ 02-01)
Блоки наружных стен Серия СТ 02-01
  • Длина 990 мм.
  • Ширина 400 мм.
  • Высота 1185 мм.
  • Вес 678 кг.
  • Объем бетона 0,45 м3
  • Геометрический объем 0,4693 м3
Цена: 7421 руб.
Подробнее
НР 100-2 Б (СТ 02-01)
Блоки наружных стен Серия СТ 02-01
  • Длина 990 мм.
  • Ширина 400 мм.
  • Высота 1185 мм.
  • Вес 513 кг.
  • Объем бетона 0,45 м3
  • Геометрический объем 0,4693 м3
Цена: 7421 руб.
Подробнее
НР 100-2 Б (СТ 02-01)
Блоки наружных стен Серия СТ 02-01
  • Длина 990 мм.
  • Ширина 400 мм.
  • Высота 1185 мм.
  • Вес 762 кг.
  • Объем бетона 0,45 м3
  • Геометрический объем 0,4693 м3
Цена: 7421 руб.
Подробнее
НР 100-2 В (СТ 02-01)
Блоки наружных стен Серия СТ 02-01
  • Длина 990 мм.
  • Ширина 500 мм.
  • Высота 1185 мм.
  • Вес 844 кг.
  • Объем бетона 0,6 м3
  • Геометрический объем 0,5866 м3
Цена: 9894 руб.
Подробнее
НР 100-2 В (СТ 02-01)
Блоки наружных стен Серия СТ 02-01
  • Длина 990 мм.
  • Ширина 500 мм.
  • Высота 1185 мм.
  • Вес 684 кг.
  • Объем бетона 0,6 м3
  • Геометрический объем 0,5866 м3
Цена: 9894 руб.
Подробнее
НР 100-2 В (СТ 02-01)
Блоки наружных стен Серия СТ 02-01
  • Длина 990 мм.
  • Ширина 500 мм.
  • Высота 1185 мм.
  • Вес 951 кг.
  • Объем бетона 0,6 м3
  • Геометрический объем 0,5866 м3
Цена: 9894 руб.
Подробнее
НР 100-2/3 А (СТ 02-01)
Блоки наружных стен Серия СТ 02-01
  • Длина 990 мм.
  • Ширина 300 мм.
  • Высота 385 мм.
  • Вес 125 кг.
  • Объем бетона 0,11 м3
  • Геометрический объем 0,1143 м3
Цена: 1814 руб.
Подробнее
НР 100-2 В (СТ 02-01)
Блоки наружных стен Серия СТ 02-01
  • Длина 990 мм.
  • Ширина 510 мм.
  • Высота 1185 мм.
  • Вес 992 кг.
  • Объем бетона 0,55 м3
  • Геометрический объем 0,5983 м3
Цена: 9070 руб.
Подробнее
НР 100-2 В (СТ 02-01)
Блоки наружных стен Серия СТ 02-01
  • Длина 990 мм.
  • Ширина 510 мм.
  • Высота 1185 мм.
  • Вес 827 кг.
  • Объем бетона 0,55 м3
  • Геометрический объем 0,5983 м3
Цена: 9070 руб.
Подробнее
НР 100-2/3 А (СТ 02-01)
Блоки наружных стен Серия СТ 02-01
  • Длина 990 мм.
  • Ширина 300 мм.
  • Высота 385 мм.
  • Вес 183 кг.
  • Объем бетона 0,11 м3
  • Геометрический объем 0,1143 м3
Цена: 1814 руб.
Подробнее
НР 100-2/3 А (СТ 02-01)
Блоки наружных стен Серия СТ 02-01
  • Длина 990 мм.
  • Ширина 300 мм.
  • Высота 385 мм.
  • Вес 163 кг.
  • Объем бетона 0,11 м3
  • Геометрический объем 0,1143 м3
Цена: 1814 руб.
Подробнее
НР 100-2 В (СТ 02-01)
Блоки наружных стен Серия СТ 02-01
  • Длина 990 мм.
  • Ширина 510 мм.
  • Высота 1185 мм.
  • Вес 875 кг.
  • Объем бетона 0,55 м3
  • Геометрический объем 0,5983 м3
Цена: 9070 руб.
Подробнее
НР 100-2/3 Б (СТ 02-01)
Блоки наружных стен Серия СТ 02-01
  • Длина 990 мм.
  • Ширина 400 мм.
  • Высота 385 мм.
  • Вес 238 кг.
  • Объем бетона 0,14 м3
  • Геометрический объем 0,1525 м3
Цена: 2309 руб.
Подробнее
НР 100-2/3 Б (СТ 02-01)
Блоки наружных стен Серия СТ 02-01
  • Длина 990 мм.
  • Ширина 400 мм.
  • Высота 385 мм.
  • Вес 214 кг.
  • Объем бетона 0,14 м3
  • Геометрический объем 0,1525 м3
Цена: 2309 руб.
Подробнее
НР 100-2/3 Б (СТ 02-01)
Блоки наружных стен Серия СТ 02-01
  • Длина 990 мм.
  • Ширина 400 мм.
  • Высота 385 мм.
  • Вес 166 кг.
  • Объем бетона 0,14 м3
  • Геометрический объем 0,1525 м3
Цена: 2309 руб.
Подробнее
НР 100-2/3 В (СТ 02-01)
Блоки наружных стен Серия СТ 02-01
  • Длина 990 мм.
  • Ширина 500 мм.
  • Высота 385 мм.
  • Вес 196 кг.
  • Объем бетона 0,17 м3
  • Геометрический объем 0,1906 м3
Цена: 2803 руб.
Подробнее
НР 100-2/3 В (СТ 02-01)
Блоки наружных стен Серия СТ 02-01
  • Длина 990 мм.
  • Ширина 500 мм.
  • Высота 385 мм.
  • Вес 256 кг.
  • Объем бетона 0,17 м3
  • Геометрический объем 0,1906 м3
Цена: 2803 руб.
Подробнее
НР 100-2/3 В (СТ 02-01)
Блоки наружных стен Серия СТ 02-01
  • Длина 990 мм.
  • Ширина 500 мм.
  • Высота 385 мм.
  • Вес 286 кг.
  • Объем бетона 0,17 м3
  • Геометрический объем 0,1906 м3
Цена: 2803 руб.
Подробнее
НР 100-4/3 А (СТ 02-01)
Блоки наружных стен Серия СТ 02-01
  • Длина 990 мм.
  • Ширина 300 мм.
  • Высота 785 мм.
  • Вес 373 кг.
  • Объем бетона 0,22 м3
  • Геометрический объем 0,2331 м3
Цена: 3628 руб.
Подробнее
НР 100-4/3 А (СТ 02-01)
Блоки наружных стен Серия СТ 02-01
  • Длина 990 мм.
  • Ширина 300 мм.
  • Высота 785 мм.
  • Вес 335 кг.
  • Объем бетона 0,22 м3
  • Геометрический объем 0,2331 м3
Цена: 3628 руб.
Подробнее
НР 100-4/3 А (СТ 02-01)
Блоки наружных стен Серия СТ 02-01
  • Длина 990 мм.
  • Ширина 300 мм.
  • Высота 785 мм.
  • Вес 259 кг.
  • Объем бетона 0,22 м3
  • Геометрический объем 0,2331 м3
Цена: 3628 руб.
Подробнее
НР 100-4/3 Б (СТ 02-01)
Блоки наружных стен Серия СТ 02-01
  • Длина 990 мм.
  • Ширина 400 мм.
  • Высота 785 мм.
  • Вес 307 кг.
  • Объем бетона 0,2 м3
  • Геометрический объем 0,3109 м3
Цена: 3298 руб.
Подробнее
НР 100-4/3 Б (СТ 02-01)
Блоки наружных стен Серия СТ 02-01
  • Длина 990 мм.
  • Ширина 400 мм.
  • Высота 785 мм.
  • Вес 341 кг.
  • Объем бетона 0,2 м3
  • Геометрический объем 0,3109 м3
Цена: 3298 руб.
Подробнее
НР 100-4/3 Б (СТ 02-01)
Блоки наружных стен Серия СТ 02-01
  • Длина 990 мм.
  • Ширина 400 мм.
  • Высота 785 мм.
  • Вес 239 кг.
  • Объем бетона 0,2 м3
  • Геометрический объем 0,3109 м3
Цена: 3298 руб.
Подробнее
НР 100-4/3 В (СТ 02-01)
Блоки наружных стен Серия СТ 02-01
  • Длина 990 мм.
  • Ширина 500 мм.
  • Высота 785 мм.
  • Вес 568 кг.
  • Объем бетона 0,38 м3
  • Геометрический объем 0,3886 м3
Цена: 6266 руб.
Подробнее
НР 100-4/3 В (СТ 02-01)
Блоки наружных стен Серия СТ 02-01
  • Длина 990 мм.
  • Ширина 500 мм.
  • Высота 785 мм.
  • Вес 636 кг.
  • Объем бетона 0,38 м3
  • Геометрический объем 0,3886 м3
Цена: 6266 руб.
Подробнее
НР 125-1 А (СТ 02-01)
Блоки наружных стен Серия СТ 02-01
  • Длина 1240 мм.
  • Ширина 250 мм.
  • Высота 585 мм.
  • Вес 272 кг.
  • Объем бетона 0,18 м3
  • Геометрический объем 0,1814 м3
Цена: 2968 руб.
Подробнее
НР 100-4/3 В (СТ 02-01)
Блоки наружных стен Серия СТ 02-01
  • Длина 990 мм.
  • Ширина 500 мм.
  • Высота 785 мм.
  • Вес 432 кг.
  • Объем бетона 0,38 м3
  • Геометрический объем 0,3886 м3
Цена: 6266 руб.
Подробнее

Уведомление о файлах cookie

Мы используем файлы cookie для улучшения вашего опыта просмотра и анализа трафика. Нажимая "Принять все", вы соглашаетесь с нашей политикой конфиденциальности и политикой обработки файлов cookie.

MAX Дзен Телеграм Вконтакте vk