mobile_sound +7 (930) 655-55-90

Типовые конструкции и железобетонные изделия. Рабочие чертежи (Серия СТ 02-01)

Поделиться:
Поделиться:

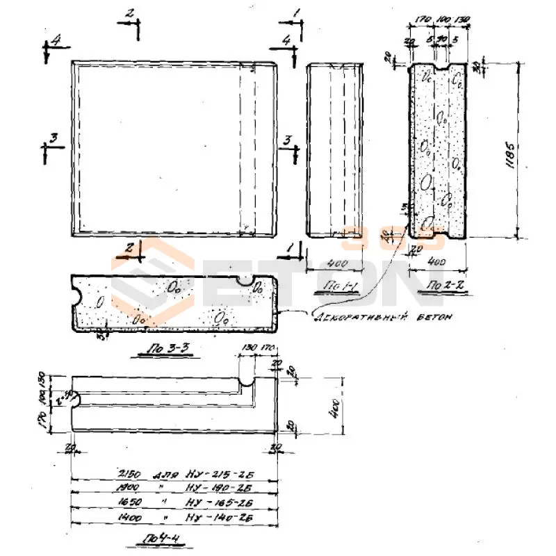
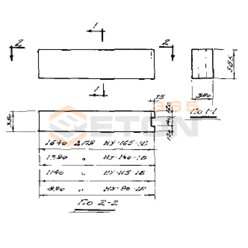
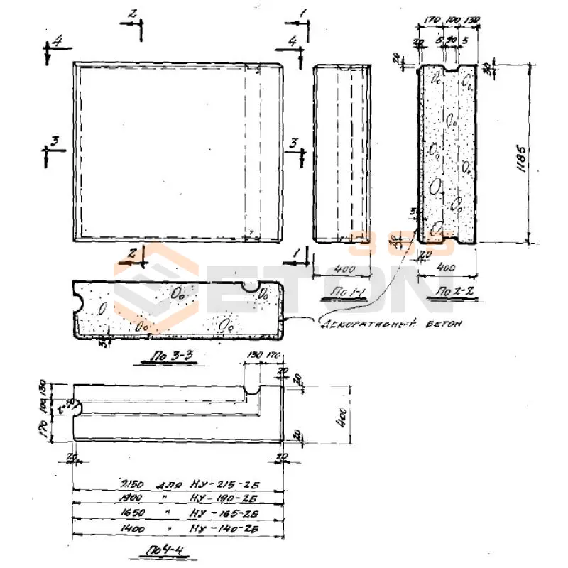
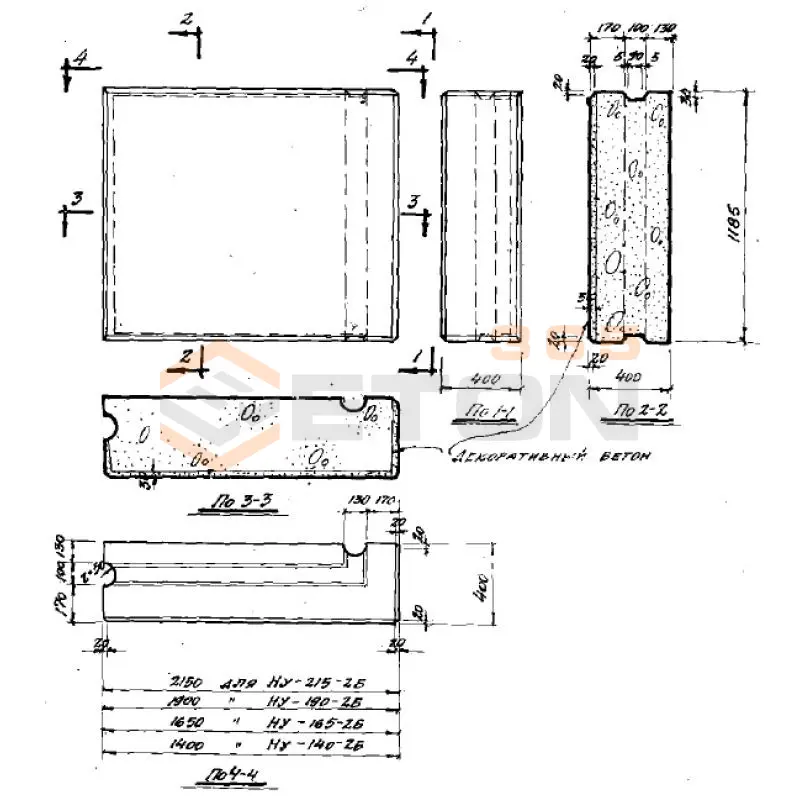
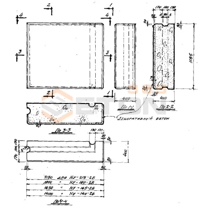
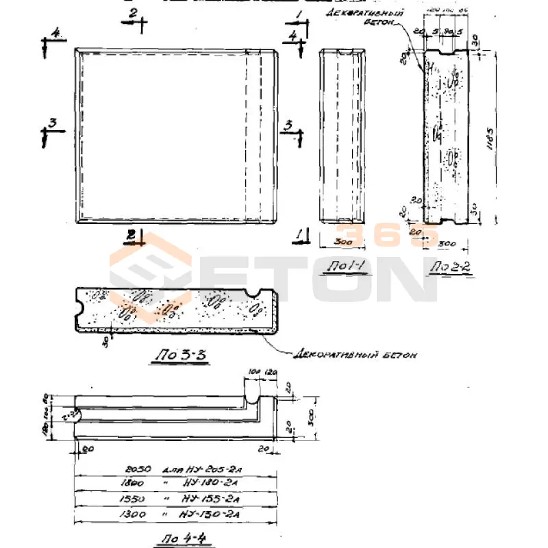
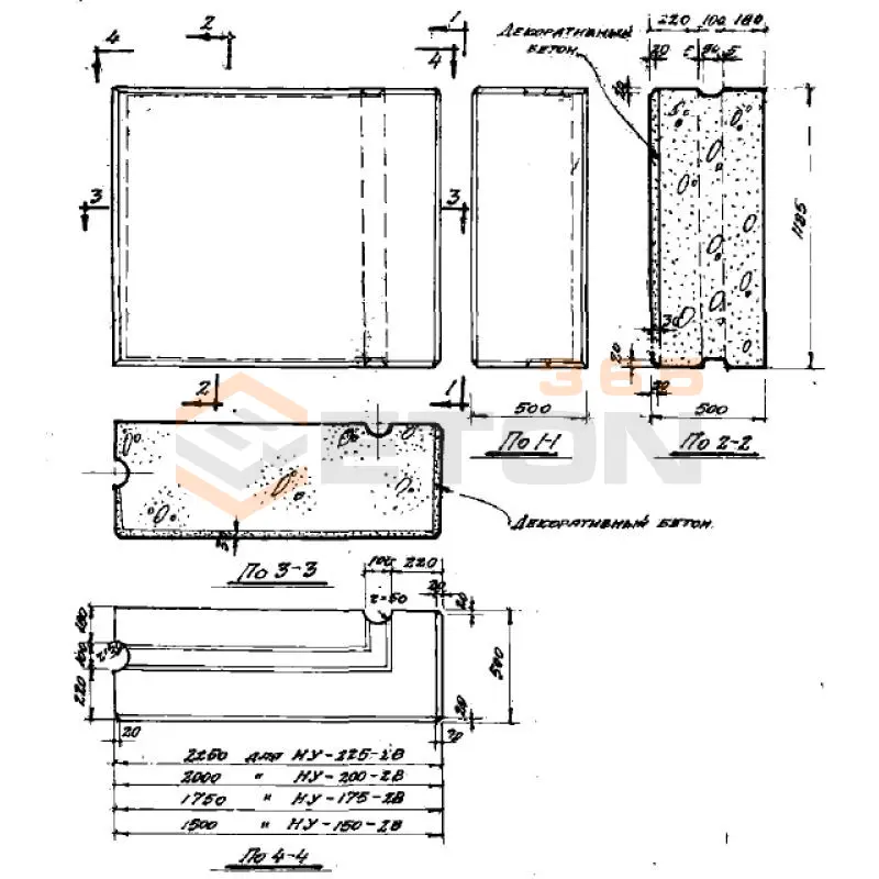
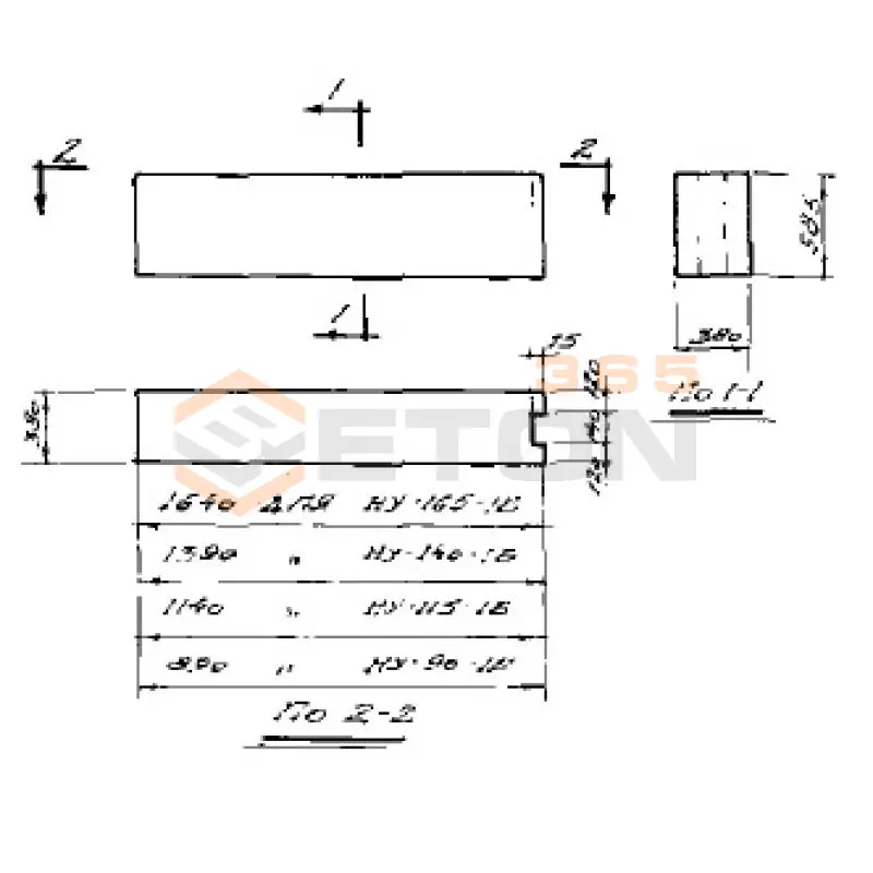
Документ Серия СТ 02-01 описывает область применения, номенклатуру и ключевые требования, опираясь на действующие нормы и практику проектирования. Узнать все об особенностях производства крупнопанельных блоков, применяемых при возведении производственных предприятий и промышленных сооружений, можно на страницах Серии СТ 02-01. Одноэтажные здания запроектированы с толщиной стен 30, 40 и 50 см. Важно при подборе материалов под нужды того или иного типового проекта учитывать температурно-влажностный режим.

Файлы для скачивания:
picture_as_pdf

5536.pdf

1,563.8 KB

скачать
picture_as_pdf

5537.pdf

2,127.3 KB

скачать
picture_as_pdf

5538.pdf

631.0 KB

скачать
Товары Серия СТ 02-01 (60)
НУ 165-1 Б (СТ 02-01)
Блоки наружные угловые Серия СТ 02-01
  • Длина 1650 мм.
  • Ширина 400 мм.
  • Высота 585 мм.
  • Вес 621 кг.
  • Объем бетона 0,38 м3
  • Геометрический объем 0,3861 м3
Цена: 6266 руб.
Подробнее
НУ 165-1 Б (СТ 02-01)
Блоки наружные угловые Серия СТ 02-01
  • Длина 1640 мм.
  • Ширина 380 мм.
  • Высота 585 мм.
  • Вес 537 кг.
  • Объем бетона 0,36 м3
  • Геометрический объем 0,3646 м3
Цена: 5936 руб.
Подробнее
НУ 165-1 Б (СТ 02-01)
Блоки наружные угловые Серия СТ 02-01
  • Длина 1640 мм.
  • Ширина 380 мм.
  • Высота 585 мм.
  • Вес 644 кг.
  • Объем бетона 0,36 м3
  • Геометрический объем 0,3646 м3
Цена: 5936 руб.
Подробнее
НУ 165-1 Б (СТ 02-01)
Блоки наружные угловые Серия СТ 02-01
  • Длина 1650 мм.
  • Ширина 400 мм.
  • Высота 585 мм.
  • Вес 419 кг.
  • Объем бетона 0,38 м3
  • Геометрический объем 0,3861 м3
Цена: 6266 руб.
Подробнее
НУ 165-2 Б (СТ 02-01)
Блоки наружные угловые Серия СТ 02-01
  • Длина 1650 мм.
  • Ширина 400 мм.
  • Высота 1185 мм.
  • Вес 854 кг.
  • Объем бетона 0,77 м3
  • Геометрический объем 0,7821 м3
Цена: 12697 руб.
Подробнее
НУ 165-2 Б (СТ 02-01)
Блоки наружные угловые Серия СТ 02-01
  • Длина 1650 мм.
  • Ширина 400 мм.
  • Высота 1185 мм.
  • Вес 1129 кг.
  • Объем бетона 0,77 м3
  • Геометрический объем 0,7821 м3
Цена: 12697 руб.
Подробнее
НУ 165-2 Б (СТ 02-01)
Блоки наружные угловые Серия СТ 02-01
  • Длина 1640 мм.
  • Ширина 380 мм.
  • Высота 1185 мм.
  • Вес 1308 кг.
  • Объем бетона 0,73 м3
  • Геометрический объем 0,7385 м3
Цена: 12038 руб.
Подробнее
НУ 165-2 Б (СТ 02-01)
Блоки наружные угловые Серия СТ 02-01
  • Длина 1650 мм.
  • Ширина 400 мм.
  • Высота 1185 мм.
  • Вес 1286 кг.
  • Объем бетона 0,77 м3
  • Геометрический объем 0,7821 м3
Цена: 12697 руб.
Подробнее
НУ 165-2 Б (СТ 02-01)
Блоки наружные угловые Серия СТ 02-01
  • Длина 1640 мм.
  • Ширина 380 мм.
  • Высота 1185 мм.
  • Вес 1195 кг.
  • Объем бетона 0,73 м3
  • Геометрический объем 0,7385 м3
Цена: 12038 руб.
Подробнее
НУ 165-2 Б (СТ 02-01)
Блоки наружные угловые Серия СТ 02-01
  • Длина 1640 мм.
  • Ширина 380 мм.
  • Высота 1185 мм.
  • Вес 1098 кг.
  • Объем бетона 0,73 м3
  • Геометрический объем 0,7385 м3
Цена: 12038 руб.
Подробнее
НУ 165-2/3 Б (СТ 02-01)
Блоки наружные угловые Серия СТ 02-01
  • Длина 1650 мм.
  • Ширина 400 мм.
  • Высота 385 мм.
  • Вес 354 кг.
  • Объем бетона 0,24 м3
  • Геометрический объем 0,2541 м3
Цена: 3958 руб.
Подробнее
НУ 165-4/3 Б (СТ 02-01)
Блоки наружные угловые Серия СТ 02-01
  • Длина 1650 мм.
  • Ширина 400 мм.
  • Высота 785 мм.
  • Вес 835 кг.
  • Объем бетона 0,5 м3
  • Геометрический объем 0,5181 м3
Цена: 8245 руб.
Подробнее
НУ 165-2/3 Б (СТ 02-01)
Блоки наружные угловые Серия СТ 02-01
  • Длина 1650 мм.
  • Ширина 400 мм.
  • Высота 385 мм.
  • Вес 398 кг.
  • Объем бетона 0,24 м3
  • Геометрический объем 0,2541 м3
Цена: 3958 руб.
Подробнее
НУ 165-2/3 Б (СТ 02-01)
Блоки наружные угловые Серия СТ 02-01
  • Длина 1650 мм.
  • Ширина 400 мм.
  • Высота 385 мм.
  • Вес 266 кг.
  • Объем бетона 0,24 м3
  • Геометрический объем 0,2541 м3
Цена: 3958 руб.
Подробнее
НУ 165-4/3 Б (СТ 02-01)
Блоки наружные угловые Серия СТ 02-01
  • Длина 1650 мм.
  • Ширина 400 мм.
  • Высота 785 мм.
  • Вес 745 кг.
  • Объем бетона 0,5 м3
  • Геометрический объем 0,5181 м3
Цена: 8245 руб.
Подробнее
НУ 175-1 В (СТ 02-01)
Блоки наружные угловые Серия СТ 02-01
  • Длина 1750 мм.
  • Ширина 500 мм.
  • Высота 585 мм.
  • Вес 823 кг.
  • Объем бетона 0,5 м3
  • Геометрический объем 0,5119 м3
Цена: 8245 руб.
Подробнее
НУ 165-4/3 Б (СТ 02-01)
Блоки наружные угловые Серия СТ 02-01
  • Длина 1650 мм.
  • Ширина 400 мм.
  • Высота 785 мм.
  • Вес 565 кг.
  • Объем бетона 0,5 м3
  • Геометрический объем 0,5181 м3
Цена: 8245 руб.
Подробнее
НУ 175-1 В (СТ 02-01)
Блоки наружные угловые Серия СТ 02-01
  • Длина 1750 мм.
  • Ширина 500 мм.
  • Высота 585 мм.
  • Вес 563 кг.
  • Объем бетона 0,5 м3
  • Геометрический объем 0,5119 м3
Цена: 8245 руб.
Подробнее
НУ 175-2 В (СТ 02-01)
Блоки наружные угловые Серия СТ 02-01
  • Длина 1750 мм.
  • Ширина 500 мм.
  • Высота 1185 мм.
  • Вес 1499 кг.
  • Объем бетона 1,02 м3
  • Геометрический объем 1,0369 м3
Цена: 16820 руб.
Подробнее
НУ 175-2 В (СТ 02-01)
Блоки наружные угловые Серия СТ 02-01
  • Длина 1750 мм.
  • Ширина 500 мм.
  • Высота 1185 мм.
  • Вес 1687 кг.
  • Объем бетона 1,02 м3
  • Геометрический объем 1,0369 м3
Цена: 16820 руб.
Подробнее
НУ 175-1 В (СТ 02-01)
Блоки наружные угловые Серия СТ 02-01
  • Длина 1750 мм.
  • Ширина 500 мм.
  • Высота 585 мм.
  • Вес 731 кг.
  • Объем бетона 0,5 м3
  • Геометрический объем 0,5119 м3
Цена: 8245 руб.
Подробнее
НУ 175-2 В (СТ 02-01)
Блоки наружные угловые Серия СТ 02-01
  • Длина 1750 мм.
  • Ширина 500 мм.
  • Высота 1185 мм.
  • Вес 1126 кг.
  • Объем бетона 1,02 м3
  • Геометрический объем 1,0369 м3
Цена: 16820 руб.
Подробнее
НУ 175-2/3 В (СТ 02-01)
Блоки наружные угловые Серия СТ 02-01
  • Длина 1750 мм.
  • Ширина 500 мм.
  • Высота 385 мм.
  • Вес 475 кг.
  • Объем бетона 0,32 м3
  • Геометрический объем 0,3369 м3
Цена: 5277 руб.
Подробнее
НУ 175-2/3 В (СТ 02-01)
Блоки наружные угловые Серия СТ 02-01
  • Длина 1750 мм.
  • Ширина 500 мм.
  • Высота 385 мм.
  • Вес 359 кг.
  • Объем бетона 0,32 м3
  • Геометрический объем 0,3369 м3
Цена: 5277 руб.
Подробнее
НУ 175-2/3 В (СТ 02-01)
Блоки наружные угловые Серия СТ 02-01
  • Длина 1750 мм.
  • Ширина 500 мм.
  • Высота 385 мм.
  • Вес 533 кг.
  • Объем бетона 0,32 м3
  • Геометрический объем 0,3369 м3
Цена: 5277 руб.
Подробнее
НУ 175-4/3 В (СТ 02-01)
Блоки наружные угловые Серия СТ 02-01
  • Длина 1750 мм.
  • Ширина 500 мм.
  • Высота 785 мм.
  • Вес 1114 кг.
  • Объем бетона 0,66 м3
  • Геометрический объем 0,6869 м3
Цена: 10883 руб.
Подробнее
НУ 175-4/3 В (СТ 02-01)
Блоки наружные угловые Серия СТ 02-01
  • Длина 1750 мм.
  • Ширина 500 мм.
  • Высота 785 мм.
  • Вес 748 кг.
  • Объем бетона 0,66 м3
  • Геометрический объем 0,6869 м3
Цена: 10883 руб.
Подробнее
НУ 175-4/3 В (СТ 02-01)
Блоки наружные угловые Серия СТ 02-01
  • Длина 1750 мм.
  • Ширина 500 мм.
  • Высота 785 мм.
  • Вес 992 кг.
  • Объем бетона 0,66 м3
  • Геометрический объем 0,6869 м3
Цена: 10883 руб.
Подробнее
НУ 177-2 А (СТ 02-01)
Блоки наружные угловые Серия СТ 02-01
  • Длина 1760 мм.
  • Ширина 250 мм.
  • Высота 1185 мм.
  • Вес 936 кг.
  • Объем бетона 0,52 м3
  • Геометрический объем 0,5214 м3
Цена: 8575 руб.
Подробнее
НУ 177-2 А (СТ 02-01)
Блоки наружные угловые Серия СТ 02-01
  • Длина 1760 мм.
  • Ширина 250 мм.
  • Высота 1185 мм.
  • Вес 780 кг.
  • Объем бетона 0,52 м3
  • Геометрический объем 0,5214 м3
Цена: 8575 руб.
Подробнее
НУ 177-1 А (СТ 02-01)
Блоки наружные угловые Серия СТ 02-01
  • Длина 1760 мм.
  • Ширина 250 мм.
  • Высота 585 мм.
  • Вес 463 кг.
  • Объем бетона 0,26 м3
  • Геометрический объем 0,2574 м3
Цена: 4287 руб.
Подробнее
НУ 177-1 А (СТ 02-01)
Блоки наружные угловые Серия СТ 02-01
  • Длина 1760 мм.
  • Ширина 250 мм.
  • Высота 585 мм.
  • Вес 384 кг.
  • Объем бетона 0,26 м3
  • Геометрический объем 0,2574 м3
Цена: 4287 руб.
Подробнее
НУ 178-1 В (СТ 02-01)
Блоки наружные угловые Серия СТ 02-01
  • Длина 1770 мм.
  • Ширина 510 мм.
  • Высота 585 мм.
  • Вес 936 кг.
  • Объем бетона 0,52 м3
  • Геометрический объем 0,5281 м3
Цена: 8575 руб.
Подробнее
НУ 178-1 В (СТ 02-01)
Блоки наружные угловые Серия СТ 02-01
  • Длина 1770 мм.
  • Ширина 510 мм.
  • Высота 585 мм.
  • Вес 780 кг.
  • Объем бетона 0,52 м3
  • Геометрический объем 0,5281 м3
Цена: 8575 руб.
Подробнее
НУ 178-2 В (СТ 02-01)
Блоки наружные угловые Серия СТ 02-01
  • Длина 1770 мм.
  • Ширина 510 мм.
  • Высота 1185 мм.
  • Вес 1569 кг.
  • Объем бетона 1,05 м3
  • Геометрический объем 1,0697 м3
Цена: 17315 руб.
Подробнее
НУ 178-1 В (СТ 02-01)
Блоки наружные угловые Серия СТ 02-01
  • Длина 1770 мм.
  • Ширина 510 мм.
  • Высота 585 мм.
  • Вес 805 кг.
  • Объем бетона 0,52 м3
  • Геометрический объем 0,5281 м3
Цена: 8575 руб.
Подробнее
НУ 178-2 В (СТ 02-01)
Блоки наружные угловые Серия СТ 02-01
  • Длина 1770 мм.
  • Ширина 510 мм.
  • Высота 1185 мм.
  • Вес 1883 кг.
  • Объем бетона 1,05 м3
  • Геометрический объем 1,0697 м3
Цена: 17315 руб.
Подробнее
НУ 178-2 В (СТ 02-01)
Блоки наружные угловые Серия СТ 02-01
  • Длина 1770 мм.
  • Ширина 510 мм.
  • Высота 1185 мм.
  • Вес 1665 кг.
  • Объем бетона 1,05 м3
  • Геометрический объем 1,0697 м3
Цена: 17315 руб.
Подробнее
НУ 180-1 А (СТ 02-01)
Блоки наружные угловые Серия СТ 02-01
  • Длина 1800 мм.
  • Ширина 300 мм.
  • Высота 585 мм.
  • Вес 507 кг.
  • Объем бетона 0,3 м3
  • Геометрический объем 0,3159 м3
Цена: 4947 руб.
Подробнее
НУ 180-1 А (СТ 02-01)
Блоки наружные угловые Серия СТ 02-01
  • Длина 1800 мм.
  • Ширина 300 мм.
  • Высота 585 мм.
  • Вес 454 кг.
  • Объем бетона 0,3 м3
  • Геометрический объем 0,3159 м3
Цена: 4947 руб.
Подробнее
НУ 180-1 А (СТ 02-01)
Блоки наружные угловые Серия СТ 02-01
  • Длина 1800 мм.
  • Ширина 300 мм.
  • Высота 585 мм.
  • Вес 348 кг.
  • Объем бетона 0,3 м3
  • Геометрический объем 0,3159 м3
Цена: 4947 руб.
Подробнее
НУ 180-2 А (СТ 02-01)
Блоки наружные угловые Серия СТ 02-01
  • Длина 1800 мм.
  • Ширина 300 мм.
  • Высота 1185 мм.
  • Вес 710 кг.
  • Объем бетона 0,62 м3
  • Геометрический объем 0,6399 м3
Цена: 10224 руб.
Подробнее
НУ 180-2/3 А (СТ 02-01)
Блоки наружные угловые Серия СТ 02-01
  • Длина 1800 мм.
  • Ширина 300 мм.
  • Высота 385 мм.
  • Вес 219 кг.
  • Объем бетона 0,16 м3
  • Геометрический объем 0,2079 м3
Цена: 2638 руб.
Подробнее
НУ 180-2 А (СТ 02-01)
Блоки наружные угловые Серия СТ 02-01
  • Длина 1800 мм.
  • Ширина 300 мм.
  • Высота 1185 мм.
  • Вес 936 кг.
  • Объем бетона 0,62 м3
  • Геометрический объем 0,6399 м3
Цена: 10224 руб.
Подробнее
НУ 180-2 А (СТ 02-01)
Блоки наружные угловые Серия СТ 02-01
  • Длина 1800 мм.
  • Ширина 300 мм.
  • Высота 1185 мм.
  • Вес 1045 кг.
  • Объем бетона 0,62 м3
  • Геометрический объем 0,6399 м3
Цена: 10224 руб.
Подробнее
НУ 180-2/3 А (СТ 02-01)
Блоки наружные угловые Серия СТ 02-01
  • Длина 1800 мм.
  • Ширина 300 мм.
  • Высота 385 мм.
  • Вес 279 кг.
  • Объем бетона 0,16 м3
  • Геометрический объем 0,2079 м3
Цена: 2638 руб.
Подробнее
НУ 180-4/3 А (СТ 02-01)
Блоки наружные угловые Серия СТ 02-01
  • Длина 1800 мм.
  • Ширина 300 мм.
  • Высота 785 мм.
  • Вес 465 кг.
  • Объем бетона 0,4 м3
  • Геометрический объем 0,4239 м3
Цена: 6596 руб.
Подробнее
НУ 180-2/3 А (СТ 02-01)
Блоки наружные угловые Серия СТ 02-01
  • Длина 1800 мм.
  • Ширина 300 мм.
  • Высота 385 мм.
  • Вес 309 кг.
  • Объем бетона 0,16 м3
  • Геометрический объем 0,2079 м3
Цена: 2638 руб.
Подробнее
НУ 180-4/3 А (СТ 02-01)
Блоки наружные угловые Серия СТ 02-01
  • Длина 1800 мм.
  • Ширина 300 мм.
  • Высота 785 мм.
  • Вес 605 кг.
  • Объем бетона 0,4 м3
  • Геометрический объем 0,4239 м3
Цена: 6596 руб.
Подробнее
НУ 180-4/3 А (СТ 02-01)
Блоки наружные угловые Серия СТ 02-01
  • Длина 1800 мм.
  • Ширина 300 мм.
  • Высота 785 мм.
  • Вес 875 кг.
  • Объем бетона 0,4 м3
  • Геометрический объем 0,4239 м3
Цена: 6596 руб.
Подробнее
НУ 190-1 Б (СТ 02-01)
Блоки наружные угловые Серия СТ 02-01
  • Длина 1900 мм.
  • Ширина 400 мм.
  • Высота 585 мм.
  • Вес 714 кг.
  • Объем бетона 0,4 м3
  • Геометрический объем 0,4446 м3
Цена: 6596 руб.
Подробнее
НУ 190-1 Б (СТ 02-01)
Блоки наружные угловые Серия СТ 02-01
  • Длина 1900 мм.
  • Ширина 400 мм.
  • Высота 585 мм.
  • Вес 637 кг.
  • Объем бетона 0,4 м3
  • Геометрический объем 0,4446 м3
Цена: 6596 руб.
Подробнее
НУ 190-2 Б (СТ 02-01)
Блоки наружные угловые Серия СТ 02-01
  • Длина 1900 мм.
  • Ширина 400 мм.
  • Высота 1185 мм.
  • Вес 1457 кг.
  • Объем бетона 0,88 м3
  • Геометрический объем 0,9006 м3
Цена: 14511 руб.
Подробнее
НУ 190-2 Б (СТ 02-01)
Блоки наружные угловые Серия СТ 02-01
  • Длина 1900 мм.
  • Ширина 400 мм.
  • Высота 1185 мм.
  • Вес 1298 кг.
  • Объем бетона 0,88 м3
  • Геометрический объем 0,9006 м3
Цена: 14511 руб.
Подробнее
НУ 190-2 Б (СТ 02-01)
Блоки наружные угловые Серия СТ 02-01
  • Длина 1900 мм.
  • Ширина 400 мм.
  • Высота 1185 мм.
  • Вес 981 кг.
  • Объем бетона 0,88 м3
  • Геометрический объем 0,9006 м3
Цена: 14511 руб.
Подробнее
НУ 190-1 Б (СТ 02-01)
Блоки наружные угловые Серия СТ 02-01
  • Длина 1900 мм.
  • Ширина 400 мм.
  • Высота 585 мм.
  • Вес 482 кг.
  • Объем бетона 0,4 м3
  • Геометрический объем 0,4446 м3
Цена: 6596 руб.
Подробнее
НУ 190-2 Б (СТ 02-01)
Блоки наружные угловые Серия СТ 02-01
  • Длина 1890 мм.
  • Ширина 380 мм.
  • Высота 1185 мм.
  • Вес 1512 кг.
  • Объем бетона 0,84 м3
  • Геометрический объем 0,8511 м3
Цена: 13852 руб.
Подробнее
НУ 190-2 Б (СТ 02-01)
Блоки наружные угловые Серия СТ 02-01
  • Длина 1890 мм.
  • Ширина 380 мм.
  • Высота 1185 мм.
  • Вес 1365 кг.
  • Объем бетона 0,84 м3
  • Геометрический объем 0,8511 м3
Цена: 13852 руб.
Подробнее
НУ 190-2 Б (СТ 02-01)
Блоки наружные угловые Серия СТ 02-01
  • Длина 1890 мм.
  • Ширина 380 мм.
  • Высота 1185 мм.
  • Вес 1260 кг.
  • Объем бетона 0,84 м3
  • Геометрический объем 0,8511 м3
Цена: 13852 руб.
Подробнее
НУ 190-2/3 Б (СТ 02-01)
Блоки наружные угловые Серия СТ 02-01
  • Длина 1900 мм.
  • Ширина 400 мм.
  • Высота 385 мм.
  • Вес 419 кг.
  • Объем бетона 0,28 м3
  • Геометрический объем 0,2926 м3
Цена: 4617 руб.
Подробнее

Уведомление о файлах cookie

Мы используем файлы cookie для улучшения вашего опыта просмотра и анализа трафика. Нажимая "Принять все", вы соглашаетесь с нашей политикой конфиденциальности и политикой обработки файлов cookie.

MAX Дзен Телеграм Вконтакте vk