mobile_sound +7 (930) 655-55-90

Типовые конструкции и железобетонные изделия. Рабочие чертежи (Серия СТ 02-01)

Поделиться:
Поделиться:

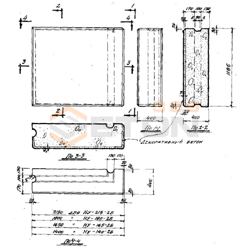
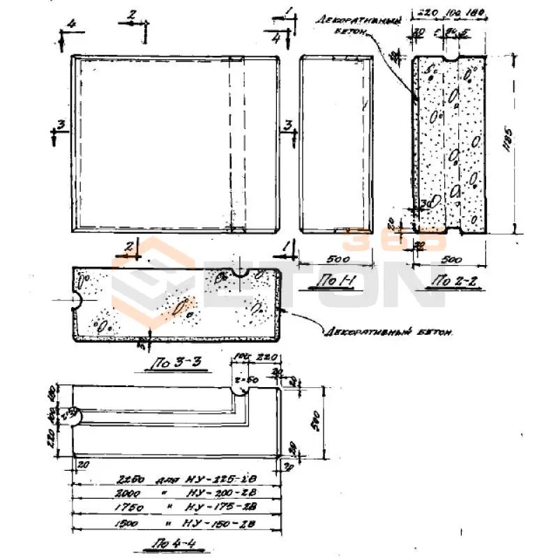
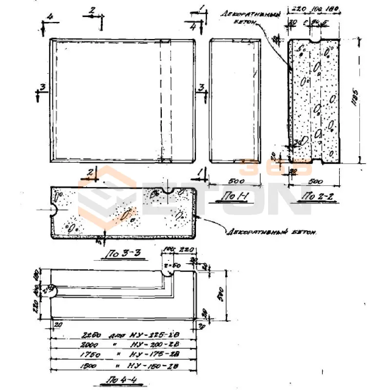
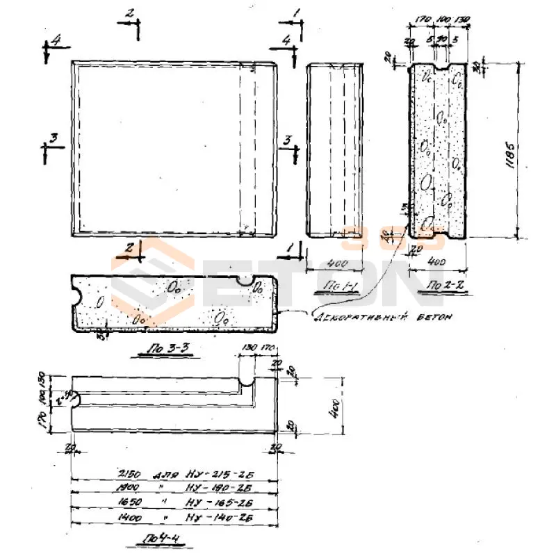
Документ Серия СТ 02-01 описывает область применения, номенклатуру и ключевые требования, опираясь на действующие нормы и практику проектирования. Узнать все об особенностях производства крупнопанельных блоков, применяемых при возведении производственных предприятий и промышленных сооружений, можно на страницах Серии СТ 02-01. Одноэтажные здания запроектированы с толщиной стен 30, 40 и 50 см. Важно при подборе материалов под нужды того или иного типового проекта учитывать температурно-влажностный режим.

Файлы для скачивания:
picture_as_pdf

5536.pdf

1,563.8 KB

скачать
picture_as_pdf

5537.pdf

2,127.3 KB

скачать
picture_as_pdf

5538.pdf

631.0 KB

скачать
Товары Серия СТ 02-01 (60)
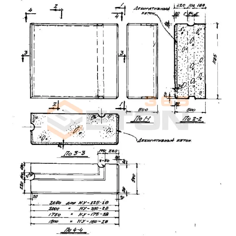
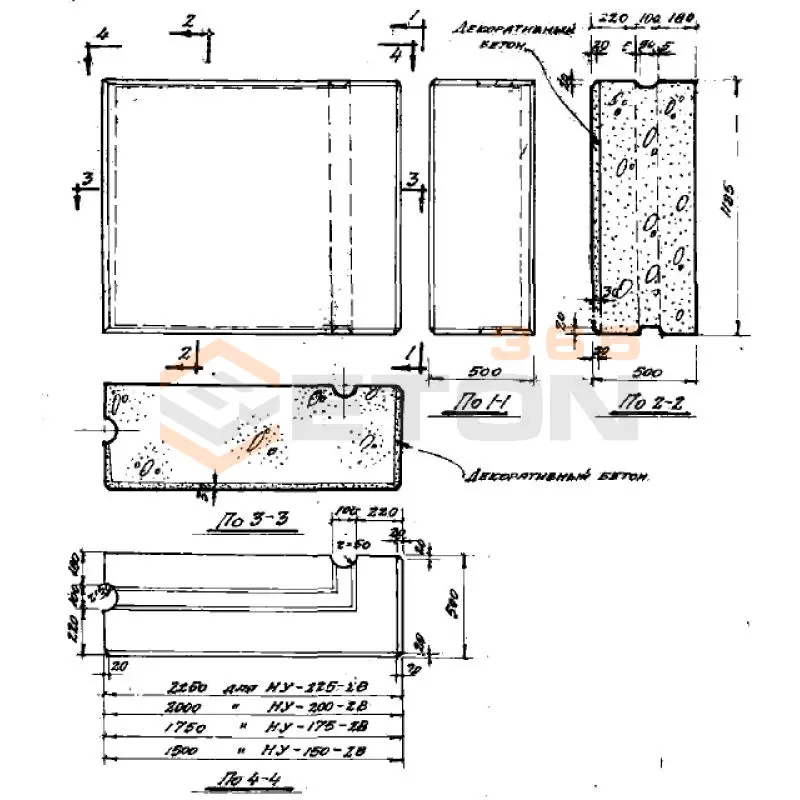
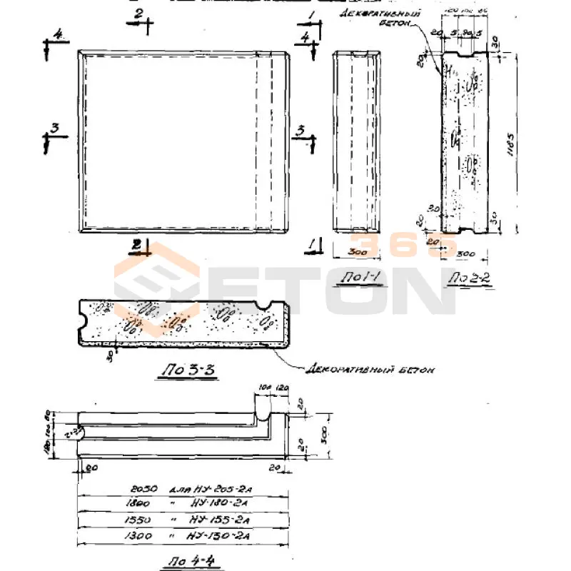
НУ 190-2/3 Б (СТ 02-01)
Блоки наружные угловые Серия СТ 02-01
  • Длина 1900 мм.
  • Ширина 400 мм.
  • Высота 385 мм.
  • Вес 469 кг.
  • Объем бетона 0,28 м3
  • Геометрический объем 0,2926 м3
Цена: 4617 руб.
Подробнее
НУ 190-4/3 Б (СТ 02-01)
Блоки наружные угловые Серия СТ 02-01
  • Длина 1900 мм.
  • Ширина 400 мм.
  • Высота 785 мм.
  • Вес 970 кг.
  • Объем бетона 0,58 м3
  • Геометрический объем 0,5966 м3
Цена: 9564 руб.
Подробнее
НУ 190-2/3 Б (СТ 02-01)
Блоки наружные угловые Серия СТ 02-01
  • Длина 1900 мм.
  • Ширина 400 мм.
  • Высота 385 мм.
  • Вес 319 кг.
  • Объем бетона 0,28 м3
  • Геометрический объем 0,2926 м3
Цена: 4617 руб.
Подробнее
НУ 190-4/3 Б (СТ 02-01)
Блоки наружные угловые Серия СТ 02-01
  • Длина 1900 мм.
  • Ширина 400 мм.
  • Высота 785 мм.
  • Вес 658 кг.
  • Объем бетона 0,58 м3
  • Геометрический объем 0,5966 м3
Цена: 9564 руб.
Подробнее
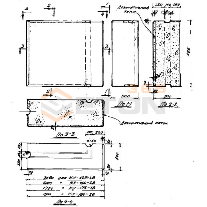
НУ 200-2 В (СТ 02-01)
Блоки наружные угловые Серия СТ 02-01
  • Длина 2000 мм.
  • Ширина 500 мм.
  • Высота 1185 мм.
  • Вес 1927 кг.
  • Объем бетона 1,16 м3
  • Геометрический объем 1,185 м3
Цена: 19128 руб.
Подробнее
НУ 200-1 В (СТ 02-01)
Блоки наружные угловые Серия СТ 02-01
  • Длина 2000 мм.
  • Ширина 500 мм.
  • Высота 585 мм.
  • Вес 627 кг.
  • Объем бетона 0,57 м3
  • Геометрический объем 0,585 м3
Цена: 9399 руб.
Подробнее
НУ 200-1 В (СТ 02-01)
Блоки наружные угловые Серия СТ 02-01
  • Длина 2000 мм.
  • Ширина 500 мм.
  • Высота 585 мм.
  • Вес 835 кг.
  • Объем бетона 0,57 м3
  • Геометрический объем 0,585 м3
Цена: 9399 руб.
Подробнее
НУ 190-4/3 Б (СТ 02-01)
Блоки наружные угловые Серия СТ 02-01
  • Длина 1900 мм.
  • Ширина 400 мм.
  • Высота 785 мм.
  • Вес 866 кг.
  • Объем бетона 0,58 м3
  • Геометрический объем 0,5966 м3
Цена: 9564 руб.
Подробнее
НУ 200-1 В (СТ 02-01)
Блоки наружные угловые Серия СТ 02-01
  • Длина 2000 мм.
  • Ширина 500 мм.
  • Высота 585 мм.
  • Вес 939 кг.
  • Объем бетона 0,57 м3
  • Геометрический объем 0,585 м3
Цена: 9399 руб.
Подробнее
НУ 200-2 В (СТ 02-01)
Блоки наружные угловые Серия СТ 02-01
  • Длина 2000 мм.
  • Ширина 500 мм.
  • Высота 1185 мм.
  • Вес 1285 кг.
  • Объем бетона 1,16 м3
  • Геометрический объем 1,185 м3
Цена: 19128 руб.
Подробнее
НУ 200-2 В (СТ 02-01)
Блоки наружные угловые Серия СТ 02-01
  • Длина 2000 мм.
  • Ширина 500 мм.
  • Высота 1185 мм.
  • Вес 1713 кг.
  • Объем бетона 1,16 м3
  • Геометрический объем 1,185 м3
Цена: 19128 руб.
Подробнее
НУ 200-2/3 В (СТ 02-01)
Блоки наружные угловые Серия СТ 02-01
  • Длина 2000 мм.
  • Ширина 500 мм.
  • Высота 385 мм.
  • Вес 613 кг.
  • Объем бетона 0,37 м3
  • Геометрический объем 0,385 м3
Цена: 6101 руб.
Подробнее
НУ 200-4/3 В (СТ 02-01)
Блоки наружные угловые Серия СТ 02-01
  • Длина 2000 мм.
  • Ширина 500 мм.
  • Высота 785 мм.
  • Вес 838 кг.
  • Объем бетона 0,76 м3
  • Геометрический объем 0,785 м3
Цена: 12532 руб.
Подробнее
НУ 200-2/3 В (СТ 02-01)
Блоки наружные угловые Серия СТ 02-01
  • Длина 2000 мм.
  • Ширина 500 мм.
  • Высота 385 мм.
  • Вес 409 кг.
  • Объем бетона 0,37 м3
  • Геометрический объем 0,385 м3
Цена: 6101 руб.
Подробнее
НУ 200-2/3 В (СТ 02-01)
Блоки наружные угловые Серия СТ 02-01
  • Длина 2000 мм.
  • Ширина 500 мм.
  • Высота 385 мм.
  • Вес 545 кг.
  • Объем бетона 0,37 м3
  • Геометрический объем 0,385 м3
Цена: 6101 руб.
Подробнее
НУ 200-4/3 В (СТ 02-01)
Блоки наружные угловые Серия СТ 02-01
  • Длина 2000 мм.
  • Ширина 500 мм.
  • Высота 785 мм.
  • Вес 1110 кг.
  • Объем бетона 0,76 м3
  • Геометрический объем 0,785 м3
Цена: 12532 руб.
Подробнее
НУ 200-4/3 В (СТ 02-01)
Блоки наружные угловые Серия СТ 02-01
  • Длина 2000 мм.
  • Ширина 500 мм.
  • Высота 785 мм.
  • Вес 1258 кг.
  • Объем бетона 0,76 м3
  • Геометрический объем 0,785 м3
Цена: 12532 руб.
Подробнее
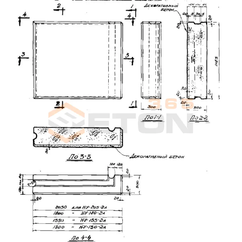
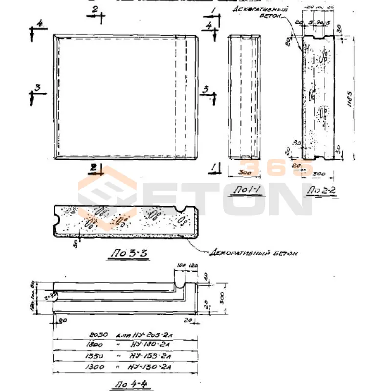
НУ 202-2 А (СТ 02-01)
Блоки наружные угловые Серия СТ 02-01
  • Длина 2010 мм.
  • Ширина 250 мм.
  • Высота 1185 мм.
  • Вес 1071 кг.
  • Объем бетона 0,6 м3
  • Геометрический объем 0,5955 м3
Цена: 9894 руб.
Подробнее
НУ 202-2 А (СТ 02-01)
Блоки наружные угловые Серия СТ 02-01
  • Длина 2010 мм.
  • Ширина 250 мм.
  • Высота 1185 мм.
  • Вес 893 кг.
  • Объем бетона 0,6 м3
  • Геометрический объем 0,5955 м3
Цена: 9894 руб.
Подробнее
НУ 203-2 В (СТ 02-01)
Блоки наружные угловые Серия СТ 02-01
  • Длина 2020 мм.
  • Ширина 510 мм.
  • Высота 1185 мм.
  • Вес 2155 кг.
  • Объем бетона 1,2 м3
  • Геометрический объем 1,2208 м3
Цена: 19788 руб.
Подробнее
НУ 203-2 В (СТ 02-01)
Блоки наружные угловые Серия СТ 02-01
  • Длина 2020 мм.
  • Ширина 510 мм.
  • Высота 1185 мм.
  • Вес 1796 кг.
  • Объем бетона 1,2 м3
  • Геометрический объем 1,2208 м3
Цена: 19788 руб.
Подробнее
НУ 205-1 А (СТ 02-01)
Блоки наружные угловые Серия СТ 02-01
  • Длина 2050 мм.
  • Ширина 300 мм.
  • Высота 585 мм.
  • Вес 396 кг.
  • Объем бетона 0,34 м3
  • Геометрический объем 0,3598 м3
Цена: 5607 руб.
Подробнее
НУ 203-2 В (СТ 02-01)
Блоки наружные угловые Серия СТ 02-01
  • Длина 2020 мм.
  • Ширина 510 мм.
  • Высота 1185 мм.
  • Вес 1890 кг.
  • Объем бетона 1,2 м3
  • Геометрический объем 1,2208 м3
Цена: 19788 руб.
Подробнее
НУ 205-1 А (СТ 02-01)
Блоки наружные угловые Серия СТ 02-01
  • Длина 2050 мм.
  • Ширина 300 мм.
  • Высота 585 мм.
  • Вес 577 кг.
  • Объем бетона 0,34 м3
  • Геометрический объем 0,3598 м3
Цена: 5607 руб.
Подробнее
НУ 205-2 А (СТ 02-01)
Блоки наружные угловые Серия СТ 02-01
  • Длина 2050 мм.
  • Ширина 300 мм.
  • Высота 1185 мм.
  • Вес 1191 кг.
  • Объем бетона 0,71 м3
  • Геометрический объем 0,7288 м3
Цена: 11708 руб.
Подробнее
НУ 205-1 А (СТ 02-01)
Блоки наружные угловые Серия СТ 02-01
  • Длина 2050 мм.
  • Ширина 300 мм.
  • Высота 585 мм.
  • Вес 517 кг.
  • Объем бетона 0,34 м3
  • Геометрический объем 0,3598 м3
Цена: 5607 руб.
Подробнее
НУ 205-2 А (СТ 02-01)
Блоки наружные угловые Серия СТ 02-01
  • Длина 2050 мм.
  • Ширина 300 мм.
  • Высота 1185 мм.
  • Вес 1065 кг.
  • Объем бетона 0,71 м3
  • Геометрический объем 0,7288 м3
Цена: 11708 руб.
Подробнее
НУ 205-2 А (СТ 02-01)
Блоки наружные угловые Серия СТ 02-01
  • Длина 2050 мм.
  • Ширина 300 мм.
  • Высота 1185 мм.
  • Вес 817 кг.
  • Объем бетона 0,71 м3
  • Геометрический объем 0,7288 м3
Цена: 11708 руб.
Подробнее
НУ 205-2/3 А (СТ 02-01)
Блоки наружные угловые Серия СТ 02-01
  • Длина 2050 мм.
  • Ширина 300 мм.
  • Высота 385 мм.
  • Вес 259 кг.
  • Объем бетона 0,22 м3
  • Геометрический объем 0,2368 м3
Цена: 3628 руб.
Подробнее
НУ 205-2/3 А (СТ 02-01)
Блоки наружные угловые Серия СТ 02-01
  • Длина 2050 мм.
  • Ширина 300 мм.
  • Высота 385 мм.
  • Вес 335 кг.
  • Объем бетона 0,22 м3
  • Геометрический объем 0,2368 м3
Цена: 3628 руб.
Подробнее
НУ 205-4/3 А (СТ 02-01)
Блоки наружные угловые Серия СТ 02-01
  • Длина 2050 мм.
  • Ширина 300 мм.
  • Высота 785 мм.
  • Вес 558 кг.
  • Объем бетона 0,46 м3
  • Геометрический объем 0,4828 м3
Цена: 7585 руб.
Подробнее
НУ 205-2/3 А (СТ 02-01)
Блоки наружные угловые Серия СТ 02-01
  • Длина 2050 мм.
  • Ширина 300 мм.
  • Высота 385 мм.
  • Вес 373 кг.
  • Объем бетона 0,22 м3
  • Геометрический объем 0,2368 м3
Цена: 3628 руб.
Подробнее
НУ 205-4/3 А (СТ 02-01)
Блоки наружные угловые Серия СТ 02-01
  • Длина 2050 мм.
  • Ширина 300 мм.
  • Высота 785 мм.
  • Вес 698 кг.
  • Объем бетона 0,46 м3
  • Геометрический объем 0,4828 м3
Цена: 7585 руб.
Подробнее
НУ 205-4/3 А (СТ 02-01)
Блоки наружные угловые Серия СТ 02-01
  • Длина 2050 мм.
  • Ширина 300 мм.
  • Высота 785 мм.
  • Вес 778 кг.
  • Объем бетона 0,46 м3
  • Геометрический объем 0,4828 м3
Цена: 7585 руб.
Подробнее
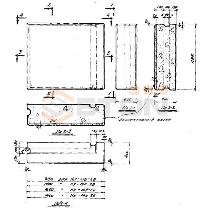
НУ 215-1 Б (СТ 02-01)
Блоки наружные угловые Серия СТ 02-01
  • Длина 2150 мм.
  • Ширина 400 мм.
  • Высота 585 мм.
  • Вес 544 кг.
  • Объем бетона 0,47 м3
  • Геометрический объем 0,5031 м3
Цена: 7750 руб.
Подробнее
НУ 215-1 Б (СТ 02-01)
Блоки наружные угловые Серия СТ 02-01
  • Длина 2150 мм.
  • Ширина 400 мм.
  • Высота 585 мм.
  • Вес 807 кг.
  • Объем бетона 0,47 м3
  • Геометрический объем 0,5031 м3
Цена: 7750 руб.
Подробнее
НУ 215-1 Б (СТ 02-01)
Блоки наружные угловые Серия СТ 02-01
  • Длина 2150 мм.
  • Ширина 400 мм.
  • Высота 585 мм.
  • Вес 721 кг.
  • Объем бетона 0,47 м3
  • Геометрический объем 0,5031 м3
Цена: 7750 руб.
Подробнее
НУ 215-2 Б (СТ 02-01)
Блоки наружные угловые Серия СТ 02-01
  • Длина 2150 мм.
  • Ширина 400 мм.
  • Высота 1185 мм.
  • Вес 1107 кг.
  • Объем бетона 1 м3
  • Геометрический объем 1,0191 м3
Цена: 16490 руб.
Подробнее
НУ 215-2 Б (СТ 02-01)
Блоки наружные угловые Серия СТ 02-01
  • Длина 2150 мм.
  • Ширина 400 мм.
  • Высота 1185 мм.
  • Вес 1469 кг.
  • Объем бетона 1 м3
  • Геометрический объем 1,0191 м3
Цена: 16490 руб.
Подробнее
НУ 215-2 Б (СТ 02-01)
Блоки наружные угловые Серия СТ 02-01
  • Длина 2150 мм.
  • Ширина 400 мм.
  • Высота 1185 мм.
  • Вес 1650 кг.
  • Объем бетона 1 м3
  • Геометрический объем 1,0191 м3
Цена: 16490 руб.
Подробнее
НУ 215-2 Б (СТ 02-01)
Блоки наружные угловые Серия СТ 02-01
  • Длина 2140 мм.
  • Ширина 380 мм.
  • Высота 1185 мм.
  • Вес 1713 кг.
  • Объем бетона 0,95 м3
  • Геометрический объем 0,9636 м3
Цена: 15666 руб.
Подробнее
НУ 215-2 Б (СТ 02-01)
Блоки наружные угловые Серия СТ 02-01
  • Длина 2140 мм.
  • Ширина 380 мм.
  • Высота 1185 мм.
  • Вес 1428 кг.
  • Объем бетона 0,95 м3
  • Геометрический объем 0,9636 м3
Цена: 15666 руб.
Подробнее
НУ 215-2/3 Б (СТ 02-01)
Блоки наружные угловые Серия СТ 02-01
  • Длина 2150 мм.
  • Ширина 400 мм.
  • Высота 385 мм.
  • Вес 503 кг.
  • Объем бетона 0,34 м3
  • Геометрический объем 0,3311 м3
Цена: 5607 руб.
Подробнее
НУ 215-2 Б (СТ 02-01)
Блоки наружные угловые Серия СТ 02-01
  • Длина 2140 мм.
  • Ширина 380 мм.
  • Высота 1185 мм.
  • Вес 1553 кг.
  • Объем бетона 0,97 м3
  • Геометрический объем 0,9636 м3
Цена: 15995 руб.
Подробнее
НУ 215-2/3 Б (СТ 02-01)
Блоки наружные угловые Серия СТ 02-01
  • Длина 2150 мм.
  • Ширина 400 мм.
  • Высота 385 мм.
  • Вес 565 кг.
  • Объем бетона 0,34 м3
  • Геометрический объем 0,3311 м3
Цена: 5607 руб.
Подробнее
НУ 215-2/3 Б (СТ 02-01)
Блоки наружные угловые Серия СТ 02-01
  • Длина 2150 мм.
  • Ширина 400 мм.
  • Высота 385 мм.
  • Вес 379 кг.
  • Объем бетона 0,34 м3
  • Геометрический объем 0,3311 м3
Цена: 5607 руб.
Подробнее
НУ 215-4/3 Б (СТ 02-01)
Блоки наружные угловые Серия СТ 02-01
  • Длина 2150 мм.
  • Ширина 400 мм.
  • Высота 785 мм.
  • Вес 1082 кг.
  • Объем бетона 0,65 м3
  • Геометрический объем 0,6751 м3
Цена: 10719 руб.
Подробнее
НУ 215-4/3 Б (СТ 02-01)
Блоки наружные угловые Серия СТ 02-01
  • Длина 2150 мм.
  • Ширина 400 мм.
  • Высота 785 мм.
  • Вес 964 кг.
  • Объем бетона 0,65 м3
  • Геометрический объем 0,6751 м3
Цена: 10719 руб.
Подробнее
НУ 215-4/3 Б (СТ 02-01)
Блоки наружные угловые Серия СТ 02-01
  • Длина 2150 мм.
  • Ширина 400 мм.
  • Высота 785 мм.
  • Вес 728 кг.
  • Объем бетона 0,65 м3
  • Геометрический объем 0,6751 м3
Цена: 10719 руб.
Подробнее
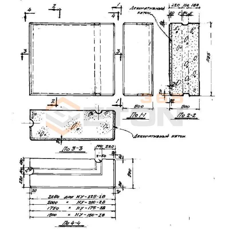
НУ 225-1 В (СТ 02-01)
Блоки наружные угловые Серия СТ 02-01
  • Длина 2250 мм.
  • Ширина 500 мм.
  • Высота 585 мм.
  • Вес 704 кг.
  • Объем бетона 0,64 м3
  • Геометрический объем 0,6581 м3
Цена: 10554 руб.
Подробнее
НУ 225-1 В (СТ 02-01)
Блоки наружные угловые Серия СТ 02-01
  • Длина 2250 мм.
  • Ширина 500 мм.
  • Высота 585 мм.
  • Вес 940 кг.
  • Объем бетона 0,64 м3
  • Геометрический объем 0,6581 м3
Цена: 10554 руб.
Подробнее
НУ 225-1 В (СТ 02-01)
Блоки наружные угловые Серия СТ 02-01
  • Длина 2250 мм.
  • Ширина 500 мм.
  • Высота 585 мм.
  • Вес 1058 кг.
  • Объем бетона 0,64 м3
  • Геометрический объем 0,6581 м3
Цена: 10554 руб.
Подробнее
НУ 225-2 В (СТ 02-01)
Блоки наружные угловые Серия СТ 02-01
  • Длина 2250 мм.
  • Ширина 500 мм.
  • Высота 1185 мм.
  • Вес 2167 кг.
  • Объем бетона 1,3 м3
  • Геометрический объем 1,3331 м3
Цена: 21437 руб.
Подробнее
НУ 225-2 В (СТ 02-01)
Блоки наружные угловые Серия СТ 02-01
  • Длина 2250 мм.
  • Ширина 500 мм.
  • Высота 1185 мм.
  • Вес 1926 кг.
  • Объем бетона 1,3 м3
  • Геометрический объем 1,3331 м3
Цена: 21437 руб.
Подробнее
НУ 225-2 В (СТ 02-01)
Блоки наружные угловые Серия СТ 02-01
  • Длина 2250 мм.
  • Ширина 500 мм.
  • Высота 1185 мм.
  • Вес 1442 кг.
  • Объем бетона 1,3 м3
  • Геометрический объем 1,3331 м3
Цена: 21437 руб.
Подробнее
НУ 225-2/3 В (СТ 02-01)
Блоки наружные угловые Серия СТ 02-01
  • Длина 2250 мм.
  • Ширина 500 мм.
  • Высота 385 мм.
  • Вес 601 кг.
  • Объем бетона 0,41 м3
  • Геометрический объем 0,4331 м3
Цена: 6761 руб.
Подробнее
НУ 225-2/3 В (СТ 02-01)
Блоки наружные угловые Серия СТ 02-01
  • Длина 2250 мм.
  • Ширина 500 мм.
  • Высота 385 мм.
  • Вес 677 кг.
  • Объем бетона 0,41 м3
  • Геометрический объем 0,4331 м3
Цена: 6761 руб.
Подробнее
НУ 225-4/3 В (СТ 02-01)
Блоки наружные угловые Серия СТ 02-01
  • Длина 2250 мм.
  • Ширина 500 мм.
  • Высота 785 мм.
  • Вес 951 кг.
  • Объем бетона 0,86 м3
  • Геометрический объем 0,8831 м3
Цена: 14181 руб.
Подробнее
НУ 225-2/3 В (СТ 02-01)
Блоки наружные угловые Серия СТ 02-01
  • Длина 2250 мм.
  • Ширина 500 мм.
  • Высота 385 мм.
  • Вес 449 кг.
  • Объем бетона 0,41 м3
  • Геометрический объем 0,4331 м3
Цена: 6761 руб.
Подробнее
НУ 225-4/3 В (СТ 02-01)
Блоки наружные угловые Серия СТ 02-01
  • Длина 2250 мм.
  • Ширина 500 мм.
  • Высота 785 мм.
  • Вес 1267 кг.
  • Объем бетона 0,86 м3
  • Геометрический объем 0,8831 м3
Цена: 14181 руб.
Подробнее

Уведомление о файлах cookie

Мы используем файлы cookie для улучшения вашего опыта просмотра и анализа трафика. Нажимая "Принять все", вы соглашаетесь с нашей политикой конфиденциальности и политикой обработки файлов cookie.

MAX Дзен Телеграм Вконтакте vk