mobile_sound +7 (930) 655-55-90

Типовые конструкции и железобетонные изделия. Рабочие чертежи (Серия КЭ 01-03)

Поделиться:
Поделиться:

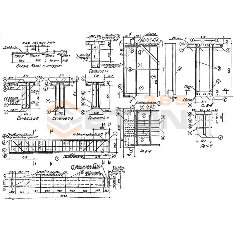
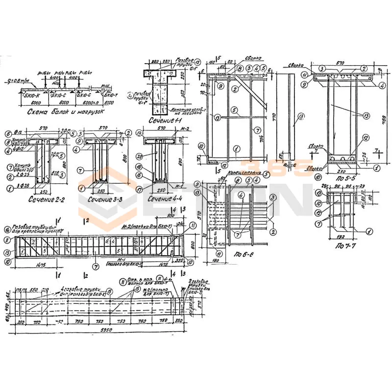
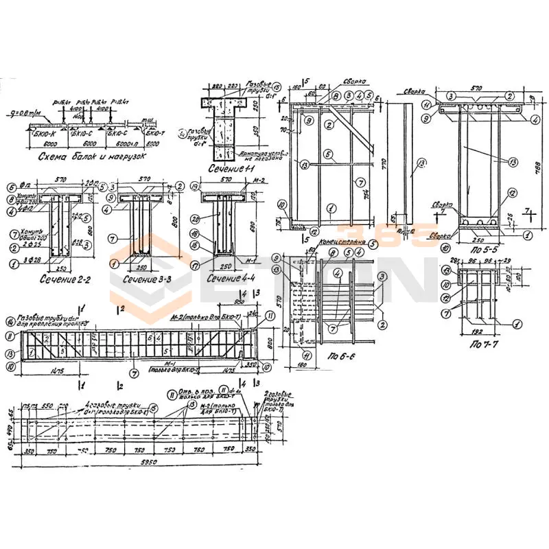
Документ Серия КЭ 01-03 описывает область применения, номенклатуру и ключевые требования, опираясь на действующие нормы и практику проектирования. Узнать все о тонкостях и нюансах производства унифицированных подкрановых балок можно на страницах Серии КЭ 01-03. Главным разработчиком нормативного документа является проектный институт ГИПРОТИС, введение в действие состоялось с февраля 1954 года. При проектировании важно учитывать расчеты возможных воздействий, а также рекомендации регламента относительно грузоподъемности устанавливаемых кранов, которые будут использоваться в качестве важного оборудования в возводимых производственных сооружениях.

Файлы для скачивания:
picture_as_pdf

5253.pdf

8,712.3 KB

скачать
Товары Серия КЭ 01-03 (12)
БК 10 к (КЭ 01-03)
Балки подкрановые Серия КЭ 01-03
  • Длина 5950 мм.
  • Ширина 570 мм.
  • Высота 800 мм.
  • Вес 3550 кг.
  • Объем бетона 1,42 м3
  • Геометрический объем 2,7132 м3
Цена: 55096 руб.
Подробнее
БК 10 т (КЭ 01-03)
Балки подкрановые Серия КЭ 01-03
  • Длина 5950 мм.
  • Ширина 570 мм.
  • Высота 800 мм.
  • Вес 3550 кг.
  • Объем бетона 1,42 м3
  • Геометрический объем 2,7132 м3
Цена: 55096 руб.
Подробнее
БК 15 с (КЭ 01-03)
Балки подкрановые Серия КЭ 01-03
  • Длина 5950 мм.
  • Ширина 570 мм.
  • Высота 1000 мм.
  • Вес 4950 кг.
  • Объем бетона 1,98 м3
  • Геометрический объем 3,3915 м3
Цена: 76824 руб.
Подробнее
БК 15 к (КЭ 01-03)
Балки подкрановые Серия КЭ 01-03
  • Длина 5950 мм.
  • Ширина 570 мм.
  • Высота 1000 мм.
  • Вес 4950 кг.
  • Объем бетона 1,98 м3
  • Геометрический объем 3,3915 м3
Цена: 76824 руб.
Подробнее
БК 10 с (КЭ 01-03)
Балки подкрановые Серия КЭ 01-03
  • Длина 5950 мм.
  • Ширина 570 мм.
  • Высота 800 мм.
  • Вес 3550 кг.
  • Объем бетона 1,42 м3
  • Геометрический объем 2,7132 м3
Цена: 55096 руб.
Подробнее
БК 15 т (КЭ 01-03)
Балки подкрановые Серия КЭ 01-03
  • Длина 5950 мм.
  • Ширина 570 мм.
  • Высота 1000 мм.
  • Вес 4950 кг.
  • Объем бетона 1,98 м3
  • Геометрический объем 3,3915 м3
Цена: 76824 руб.
Подробнее
БК 20 к (КЭ 01-03)
Балки подкрановые Серия КЭ 01-03
  • Длина 5950 мм.
  • Ширина 570 мм.
  • Высота 1000 мм.
  • Вес 4950 кг.
  • Объем бетона 1,98 м3
  • Геометрический объем 3,3915 м3
Цена: 76824 руб.
Подробнее
БК 20 с (КЭ 01-03)
Балки подкрановые Серия КЭ 01-03
  • Длина 5950 мм.
  • Ширина 570 мм.
  • Высота 1000 мм.
  • Вес 4950 кг.
  • Объем бетона 1,98 м3
  • Геометрический объем 3,3915 м3
Цена: 76824 руб.
Подробнее
БК 20 т (КЭ 01-03)
Балки подкрановые Серия КЭ 01-03
  • Длина 5950 мм.
  • Ширина 570 мм.
  • Высота 1000 мм.
  • Вес 4950 кг.
  • Объем бетона 1,98 м3
  • Геометрический объем 3,3915 м3
Цена: 76824 руб.
Подробнее
БК 5 к (КЭ 01-03)
Балки подкрановые Серия КЭ 01-03
  • Длина 5950 мм.
  • Ширина 570 мм.
  • Высота 800 мм.
  • Вес 3550 кг.
  • Объем бетона 1,42 м3
  • Геометрический объем 2,7132 м3
Цена: 55096 руб.
Подробнее
БК 5 т (КЭ 01-03)
Балки подкрановые Серия КЭ 01-03
  • Длина 5950 мм.
  • Ширина 570 мм.
  • Высота 800 мм.
  • Вес 3550 кг.
  • Объем бетона 1,42 м3
  • Геометрический объем 2,7132 м3
Цена: 55096 руб.
Подробнее
БК 5 с (КЭ 01-03)
Балки подкрановые Серия КЭ 01-03
  • Длина 5950 мм.
  • Ширина 570 мм.
  • Высота 800 мм.
  • Вес 3550 кг.
  • Объем бетона 1,42 м3
  • Геометрический объем 2,7132 м3
Цена: 55096 руб.
Подробнее

Уведомление о файлах cookie

Мы используем файлы cookie для улучшения вашего опыта просмотра и анализа трафика. Нажимая "Принять все", вы соглашаетесь с нашей политикой конфиденциальности и политикой обработки файлов cookie.

MAX Дзен Телеграм Вконтакте vk