mobile_sound +7 (930) 655-55-90

Типовые конструкции и железобетонные изделия. Рабочие чертежи (Серия ИС 01-05)

Поделиться:
Поделиться:

Документ Серия ИС 01-05 описывает область применения, номенклатуру и ключевые требования, опираясь на действующие нормы и практику проектирования. Номенклатурный перечень Серии ИС 01-05 весьма разнообразен, он определяет и регламентирует сборные конструкции из железобетона, среди которых присутствуют стойки, балки, плиты перекрытий и днищ, а также элементы стен. Датой введения в действия является июль 1964 года после утверждения Госкомом СССР по вопросам строительства. Основным разработчиком нормативного документа считается проектный институт ПРОМСТРОЙПРОЕКТ, работы велись совместно с НИИЖБ.

Файлы для скачивания:
picture_as_pdf

2866.pdf

14,921.6 KB

скачать
picture_as_pdf

2867.pdf

18,186.1 KB

скачать
picture_as_pdf

2868.pdf

18,822.4 KB

скачать
picture_as_pdf

2869.pdf

2,036.5 KB

скачать
picture_as_pdf

2870.pdf

5,947.8 KB

скачать
picture_as_pdf

2871.pdf

17,304.4 KB

скачать
picture_as_pdf

2872.pdf

14,484.5 KB

скачать
Товары Серия ИС 01-05 (60)
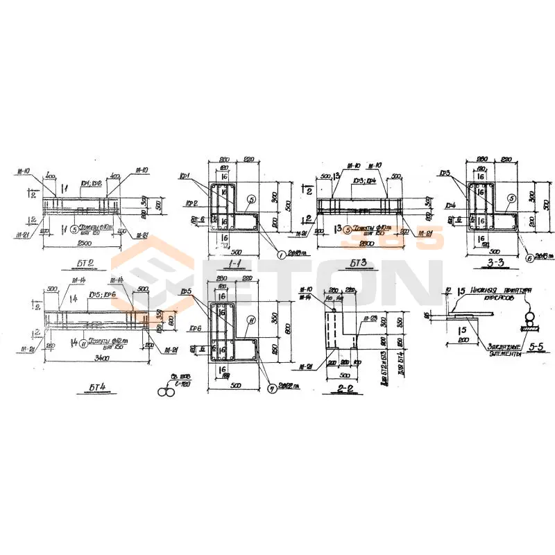
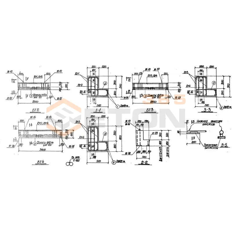
БТ 2
Балки Серия ИС 01-05 ( НК 029-23:39 )
  • Длина 2500 мм.
  • Ширина 500 мм.
  • Высота 500 мм.
  • Вес 1200 кг.
  • Объем бетона 0,46 м3
  • Геометрический объем 0,625 м3
Цена: 17848 руб.
Подробнее
БТ 4
Балки Серия ИС 01-05 ( НК 029-23:39 )
  • Длина 3400 мм.
  • Ширина 500 мм.
  • Высота 600 мм.
  • Вес 1900 кг.
  • Объем бетона 0,76 м3
  • Геометрический объем 1,02 м3
Цена: 29488 руб.
Подробнее
БТ 1
Балки Серия ИС 01-05 ( НК 029-23:39 )
  • Длина 2200 мм.
  • Ширина 200 мм.
  • Высота 300 мм.
  • Вес 330 кг.
  • Объем бетона 0,13 м3
  • Геометрический объем 0,132 м3
Цена: 5044 руб.
Подробнее
БТ 3
Балки Серия ИС 01-05 ( НК 029-23:39 )
  • Длина 2800 мм.
  • Ширина 500 мм.
  • Высота 500 мм.
  • Вес 1300 кг.
  • Объем бетона 0,52 м3
  • Геометрический объем 0,7 м3
Цена: 20176 руб.
Подробнее
БТ 5
Балки Серия ИС 01-05 ( НК 029-23:39 )
  • Длина 4000 мм.
  • Ширина 500 мм.
  • Высота 700 мм.
  • Вес 2500 кг.
  • Объем бетона 1 м3
  • Геометрический объем 1,4 м3
Цена: 38800 руб.
Подробнее
БТ 6
Балки Серия ИС 01-05 ( НК 029-23:39 )
  • Длина 4600 мм.
  • Ширина 500 мм.
  • Высота 800 мм.
  • Вес 3300 кг.
  • Объем бетона 1,33 м3
  • Геометрический объем 1,84 м3
Цена: 51604 руб.
Подробнее
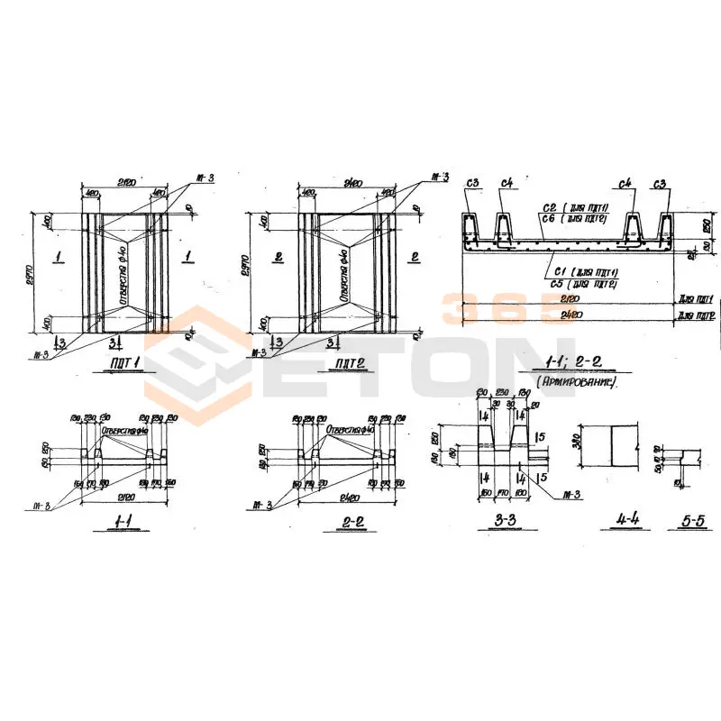
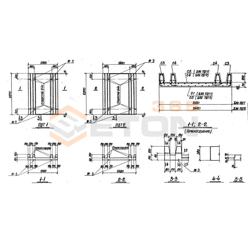
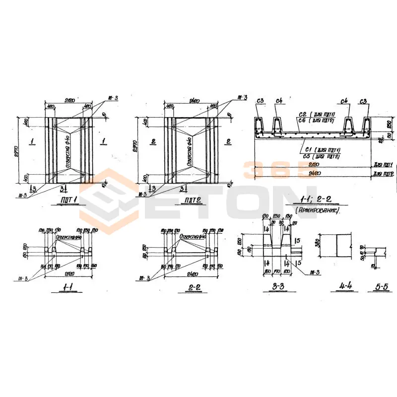
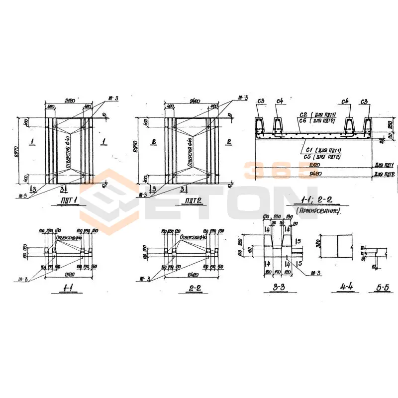
ПДТ 1
Плиты днища серия ИС 01-05 ( НК 029-23:39 )
  • Длина 2970 мм.
  • Ширина 2120 мм.
  • Высота 380 мм.
  • Вес 3200 кг.
  • Объем бетона 1,26 м3
  • Геометрический объем 2,3926 м3
Цена: 30555 руб.
Подробнее
ПДТ 1-1
Плиты днища серия ИС 01-05 ( НК 029-23:39 )
  • Длина 2970 мм.
  • Ширина 2120 мм.
  • Высота 380 мм.
  • Вес 3200 кг.
  • Объем бетона 1,26 м3
  • Геометрический объем 2,3926 м3
Цена: 30555 руб.
Подробнее
ПДТ 10-1
Плиты днища серия ИС 01-05 ( НК 029-23:39 )
  • Длина 4450 мм.
  • Ширина 1480 мм.
  • Высота 450 мм.
  • Вес 5500 кг.
  • Объем бетона 2,2 м3
  • Геометрический объем 2,9637 м3
Цена: 53350 руб.
Подробнее
ПДТ 1-2
Плиты днища серия ИС 01-05 ( НК 029-23:39 )
  • Длина 2970 мм.
  • Ширина 2120 мм.
  • Высота 380 мм.
  • Вес 3200 кг.
  • Объем бетона 1,26 м3
  • Геометрический объем 2,3926 м3
Цена: 30555 руб.
Подробнее
ПДТ 10-2
Плиты днища серия ИС 01-05 ( НК 029-23:39 )
  • Длина 4450 мм.
  • Ширина 1480 мм.
  • Высота 450 мм.
  • Вес 5500 кг.
  • Объем бетона 2,2 м3
  • Геометрический объем 2,9637 м3
Цена: 53350 руб.
Подробнее
ПДТ 11-2
Плиты днища серия ИС 01-05 ( НК 029-23:39 )
  • Длина 5050 мм.
  • Ширина 1480 мм.
  • Высота 450 мм.
  • Вес 6100 кг.
  • Объем бетона 2,42 м3
  • Геометрический объем 3,3633 м3
Цена: 58685 руб.
Подробнее
ПДТ 11-1
Плиты днища серия ИС 01-05 ( НК 029-23:39 )
  • Длина 5050 мм.
  • Ширина 1480 мм.
  • Высота 450 мм.
  • Вес 6100 кг.
  • Объем бетона 2,42 м3
  • Геометрический объем 3,3633 м3
Цена: 58685 руб.
Подробнее
ПДТ 1-3
Плиты днища серия ИС 01-05 ( НК 029-23:39 )
  • Длина 2970 мм.
  • Ширина 2120 мм.
  • Высота 380 мм.
  • Вес 3200 кг.
  • Объем бетона 1,26 м3
  • Геометрический объем 2,3926 м3
Цена: 30555 руб.
Подробнее
ПДТ 12-1
Плиты днища серия ИС 01-05 ( НК 029-23:39 )
  • Длина 5650 мм.
  • Ширина 1480 мм.
  • Высота 450 мм.
  • Вес 6600 кг.
  • Объем бетона 2,64 м3
  • Геометрический объем 3,7629 м3
Цена: 64020 руб.
Подробнее
ПДТ 2-2
Плиты днища серия ИС 01-05 ( НК 029-23:39 )
  • Длина 2970 мм.
  • Ширина 2420 мм.
  • Высота 380 мм.
  • Вес 3500 кг.
  • Объем бетона 1,39 м3
  • Геометрический объем 2,7312 м3
Цена: 33708 руб.
Подробнее
ПДТ 2
Плиты днища серия ИС 01-05 ( НК 029-23:39 )
  • Длина 2970 мм.
  • Ширина 2420 мм.
  • Высота 380 мм.
  • Вес 3500 кг.
  • Объем бетона 1,39 м3
  • Геометрический объем 2,7312 м3
Цена: 33708 руб.
Подробнее
ПДТ 3
Плиты днища серия ИС 01-05 ( НК 029-23:39 )
  • Длина 2970 мм.
  • Ширина 2800 мм.
  • Высота 450 мм.
  • Вес 4700 кг.
  • Объем бетона 1,87 м3
  • Геометрический объем 3,7422 м3
Цена: 45348 руб.
Подробнее
ПДТ 2-3
Плиты днища серия ИС 01-05 ( НК 029-23:39 )
  • Длина 2970 мм.
  • Ширина 2420 мм.
  • Высота 380 мм.
  • Вес 3500 кг.
  • Объем бетона 1,39 м3
  • Геометрический объем 2,7312 м3
Цена: 33708 руб.
Подробнее
ПДТ 2-4
Плиты днища серия ИС 01-05 ( НК 029-23:39 )
  • Длина 2970 мм.
  • Ширина 2420 мм.
  • Высота 380 мм.
  • Вес 3500 кг.
  • Объем бетона 1,39 м3
  • Геометрический объем 2,7312 м3
Цена: 33708 руб.
Подробнее
ПДТ 2-1
Плиты днища серия ИС 01-05 ( НК 029-23:39 )
  • Длина 2970 мм.
  • Ширина 2420 мм.
  • Высота 380 мм.
  • Вес 3500 кг.
  • Объем бетона 1,39 м3
  • Геометрический объем 2,7312 м3
Цена: 33708 руб.
Подробнее
ПДТ 12-2
Плиты днища серия ИС 01-05 ( НК 029-23:39 )
  • Длина 5650 мм.
  • Ширина 1480 мм.
  • Высота 450 мм.
  • Вес 6600 кг.
  • Объем бетона 2,64 м3
  • Геометрический объем 3,7629 м3
Цена: 64020 руб.
Подробнее
ПДТ 3-2
Плиты днища серия ИС 01-05 ( НК 029-23:39 )
  • Длина 2970 мм.
  • Ширина 2800 мм.
  • Высота 450 мм.
  • Вес 4700 кг.
  • Объем бетона 1,87 м3
  • Геометрический объем 3,7422 м3
Цена: 45348 руб.
Подробнее
ПДТ 3-1
Плиты днища серия ИС 01-05 ( НК 029-23:39 )
  • Длина 2970 мм.
  • Ширина 2800 мм.
  • Высота 450 мм.
  • Вес 4700 кг.
  • Объем бетона 1,87 м3
  • Геометрический объем 3,7422 м3
Цена: 45348 руб.
Подробнее
ПДТ 3-4
Плиты днища серия ИС 01-05 ( НК 029-23:39 )
  • Длина 2970 мм.
  • Ширина 2800 мм.
  • Высота 450 мм.
  • Вес 4700 кг.
  • Объем бетона 1,87 м3
  • Геометрический объем 3,7422 м3
Цена: 45348 руб.
Подробнее
ПДТ 3-3
Плиты днища серия ИС 01-05 ( НК 029-23:39 )
  • Длина 2970 мм.
  • Ширина 2800 мм.
  • Высота 450 мм.
  • Вес 4700 кг.
  • Объем бетона 1,87 м3
  • Геометрический объем 3,7422 м3
Цена: 45348 руб.
Подробнее
ПДТ 4
Плиты днища серия ИС 01-05 ( НК 029-23:39 )
  • Длина 2970 мм.
  • Ширина 3100 мм.
  • Высота 450 мм.
  • Вес 5000 кг.
  • Объем бетона 2 м3
  • Геометрический объем 4,1432 м3
Цена: 48500 руб.
Подробнее
ПДТ 4-1
Плиты днища серия ИС 01-05 ( НК 029-23:39 )
  • Длина 2970 мм.
  • Ширина 3100 мм.
  • Высота 450 мм.
  • Вес 5000 кг.
  • Объем бетона 2 м3
  • Геометрический объем 4,1432 м3
Цена: 48500 руб.
Подробнее
ПДТ 4-2
Плиты днища серия ИС 01-05 ( НК 029-23:39 )
  • Длина 2970 мм.
  • Ширина 3100 мм.
  • Высота 450 мм.
  • Вес 5000 кг.
  • Объем бетона 2 м3
  • Геометрический объем 4,1432 м3
Цена: 48500 руб.
Подробнее
ПДТ 6-1
Плиты днища серия ИС 01-05 ( НК 029-23:39 )
  • Длина 4100 мм.
  • Ширина 1480 мм.
  • Высота 300 мм.
  • Вес 3800 кг.
  • Объем бетона 1,5 м3
  • Геометрический объем 1,8204 м3
Цена: 36375 руб.
Подробнее
ПДТ 6
Плиты днища серия ИС 01-05 ( НК 029-23:39 )
  • Длина 4100 мм.
  • Ширина 1480 мм.
  • Высота 300 мм.
  • Вес 3800 кг.
  • Объем бетона 1,5 м3
  • Геометрический объем 1,8204 м3
Цена: 36375 руб.
Подробнее
ПДТ 5-1
Плиты днища серия ИС 01-05 ( НК 029-23:39 )
  • Длина 3500 мм.
  • Ширина 1480 мм.
  • Высота 300 мм.
  • Вес 3300 кг.
  • Объем бетона 1,33 м3
  • Геометрический объем 1,554 м3
Цена: 32253 руб.
Подробнее
ПДТ 7
Плиты днища серия ИС 01-05 ( НК 029-23:39 )
  • Длина 4700 мм.
  • Ширина 1480 мм.
  • Высота 360 мм.
  • Вес 4200 кг.
  • Объем бетона 1,7 м3
  • Геометрический объем 2,5042 м3
Цена: 41225 руб.
Подробнее
ПДТ 8
Плиты днища серия ИС 01-05 ( НК 029-23:39 )
  • Длина 5300 мм.
  • Ширина 1480 мм.
  • Высота 400 мм.
  • Вес 5500 кг.
  • Объем бетона 2,2 м3
  • Геометрический объем 3,1376 м3
Цена: 53350 руб.
Подробнее
ПДТ 5
Плиты днища серия ИС 01-05 ( НК 029-23:39 )
  • Длина 3500 мм.
  • Ширина 1480 мм.
  • Высота 300 мм.
  • Вес 3300 кг.
  • Объем бетона 1,33 м3
  • Геометрический объем 1,554 м3
Цена: 32253 руб.
Подробнее
ПДТ 9-1
Плиты днища серия ИС 01-05 ( НК 029-23:39 )
  • Длина 3850 мм.
  • Ширина 1480 мм.
  • Высота 420 мм.
  • Вес 4500 кг.
  • Объем бетона 1,79 м3
  • Геометрический объем 2,3932 м3
Цена: 43408 руб.
Подробнее
ПДТ 9-2
Плиты днища серия ИС 01-05 ( НК 029-23:39 )
  • Длина 3850 мм.
  • Ширина 1480 мм.
  • Высота 420 мм.
  • Вес 4500 кг.
  • Объем бетона 1,79 м3
  • Геометрический объем 2,3932 м3
Цена: 43408 руб.
Подробнее
ПОТ 1
Плиты перекрытия серия ИС 01-05 ( НК 029-23:39 )
  • Длина 2100 мм.
  • Ширина 2980 мм.
  • Высота 180 мм.
  • Вес 2500 кг.
  • Объем бетона 1,01 м3
  • Геометрический объем 1,1264 м3
Цена: 16655 руб.
Подробнее
ПОТ 10
Плиты перекрытия серия ИС 01-05 ( НК 029-23:39 )
  • Длина 4600 мм.
  • Ширина 1480 мм.
  • Высота 400 мм.
  • Вес 5200 кг.
  • Объем бетона 2,06 м3
  • Геометрический объем 2,7232 м3
Цена: 33969 руб.
Подробнее
ПОТ 3
Плиты перекрытия серия ИС 01-05 ( НК 029-23:39 )
  • Длина 2800 мм.
  • Ширина 2980 мм.
  • Высота 220 мм.
  • Вес 4300 кг.
  • Объем бетона 1,7 м3
  • Геометрический объем 1,8357 м3
Цена: 28033 руб.
Подробнее
ПОТ 10 и (1 отв)
Плиты перекрытия серия ИС 01-05 ( НК 029-23:39 )
  • Длина 4600 мм.
  • Ширина 1190 мм.
  • Высота 300 мм.
  • Вес 3100 кг.
  • Объем бетона 1,4 м3
  • Геометрический объем 1,6422 м3
Цена: 23086 руб.
Подробнее
ПОТ 2
Плиты перекрытия серия ИС 01-05 ( НК 029-23:39 )
  • Длина 2500 мм.
  • Ширина 2980 мм.
  • Высота 200 мм.
  • Вес 3400 кг.
  • Объем бетона 1,37 м3
  • Геометрический объем 1,49 м3
Цена: 22591 руб.
Подробнее
ПОТ 5
Плиты перекрытия серия ИС 01-05 ( НК 029-23:39 )
  • Длина 4000 мм.
  • Ширина 1480 мм.
  • Высота 350 мм.
  • Вес 4100 кг.
  • Объем бетона 1,65 м3
  • Геометрический объем 2,072 м3
Цена: 27209 руб.
Подробнее
ПОТ 4
Плиты перекрытия серия ИС 01-05 ( НК 029-23:39 )
  • Длина 3400 мм.
  • Ширина 1480 мм.
  • Высота 260 мм.
  • Вес 2600 кг.
  • Объем бетона 1,04 м3
  • Геометрический объем 1,3083 м3
Цена: 17150 руб.
Подробнее
ПОТ 6
Плиты перекрытия серия ИС 01-05 ( НК 029-23:39 )
  • Длина 4600 мм.
  • Ширина 1480 мм.
  • Высота 400 мм.
  • Вес 5400 кг.
  • Объем бетона 2,17 м3
  • Геометрический объем 2,7232 м3
Цена: 35783 руб.
Подробнее
ПОТ 7
Плиты перекрытия серия ИС 01-05 ( НК 029-23:39 )
  • Длина 2800 мм.
  • Ширина 1480 мм.
  • Высота 240 мм.
  • Вес 1800 кг.
  • Объем бетона 0,7 м3
  • Геометрический объем 0,9946 м3
Цена: 11543 руб.
Подробнее
ПОТ 8
Плиты перекрытия серия ИС 01-05 ( НК 029-23:39 )
  • Длина 3400 мм.
  • Ширина 1480 мм.
  • Высота 260 мм.
  • Вес 2400 кг.
  • Объем бетона 0,96 м3
  • Геометрический объем 1,3083 м3
Цена: 15830 руб.
Подробнее
ПОТ 8 (2 отв.)
Плиты перекрытия серия ИС 01-05 ( НК 029-23:39 )
  • Длина 3400 мм.
  • Ширина 1480 мм.
  • Высота 260 мм.
  • Вес 2600 кг.
  • Объем бетона 1,2 м3
  • Геометрический объем 1,3083 м3
Цена: 19788 руб.
Подробнее
ПОТ 8 и (1отв)
Плиты перекрытия серия ИС 01-05 ( НК 029-23:39 )
  • Длина 3400 мм.
  • Ширина 1190 мм.
  • Высота 230 мм.
  • Вес 2130 кг.
  • Объем бетона 0,85 м3
  • Геометрический объем 0,9306 м3
Цена: 14017 руб.
Подробнее
ПОТ 8 и-1 (1отв)
Плиты перекрытия серия ИС 01-05 ( НК 029-23:39 )
  • Длина 3400 мм.
  • Ширина 1190 мм.
  • Высота 300 мм.
  • Вес 2780 кг.
  • Объем бетона 1,11 м3
  • Геометрический объем 1,2138 м3
Цена: 18304 руб.
Подробнее
ПОТ 8 а (1 отв.)
Плиты перекрытия серия ИС 01-05 ( НК 029-23:39 )
  • Длина 3400 мм.
  • Ширина 1480 мм.
  • Высота 260 мм.
  • Вес 2600 кг.
  • Объем бетона 1,2 м3
  • Геометрический объем 1,3083 м3
Цена: 19788 руб.
Подробнее
ПОТ 8 и-2
Плиты перекрытия серия ИС 01-05 ( НК 029-23:39 )
  • Длина 3400 мм.
  • Ширина 1190 мм.
  • Высота 230 мм.
  • Вес 2130 кг.
  • Объем бетона 0,85 м3
  • Геометрический объем 0,9306 м3
Цена: 14017 руб.
Подробнее
ПОТ 9
Плиты перекрытия серия ИС 01-05 ( НК 029-23:39 )
  • Длина 4000 мм.
  • Ширина 1480 мм.
  • Высота 350 мм.
  • Вес 3800 кг.
  • Объем бетона 1,52 м3
  • Геометрический объем 2,072 м3
Цена: 25065 руб.
Подробнее
ПТ 1
Плиты перекрытия серия ИС 01-05 ( НК 029-23:39 )
  • Длина 1800 мм.
  • Ширина 2980 мм.
  • Высота 130 мм.
  • Вес 1600 кг.
  • Объем бетона 0,65 м3
  • Геометрический объем 0,6973 м3
Цена: 10719 руб.
Подробнее
ПТ 1-2
Плиты перекрытия серия ИС 01-05 ( НК 029-23:39 )
  • Длина 1800 мм.
  • Ширина 2980 мм.
  • Высота 130 мм.
  • Вес 1600 кг.
  • Объем бетона 0,65 м3
  • Геометрический объем 0,6973 м3
Цена: 10719 руб.
Подробнее
ПТ 1-1
Плиты перекрытия серия ИС 01-05 ( НК 029-23:39 )
  • Длина 1800 мм.
  • Ширина 2980 мм.
  • Высота 130 мм.
  • Вес 1600 кг.
  • Объем бетона 0,65 м3
  • Геометрический объем 0,6973 м3
Цена: 10719 руб.
Подробнее
ПОТ 9 и (1отв)
Плиты перекрытия серия ИС 01-05 ( НК 029-23:39 )
  • Длина 4000 мм.
  • Ширина 1190 мм.
  • Высота 260 мм.
  • Вес 2750 кг.
  • Объем бетона 1,1 м3
  • Геометрический объем 1,2376 м3
Цена: 18139 руб.
Подробнее
ПТ 10-1
Плиты перекрытия серия ИС 01-05 ( НК 029-23:39 )
  • Длина 2500 мм.
  • Ширина 1480 мм.
  • Высота 250 мм.
  • Вес 4500 кг.
  • Объем бетона 1,81 м3
  • Геометрический объем 0,925 м3
Цена: 29847 руб.
Подробнее
ПТ 10-2
Плиты перекрытия серия ИС 01-05 ( НК 029-23:39 )
  • Длина 2500 мм.
  • Ширина 1480 мм.
  • Высота 250 мм.
  • Вес 4500 кг.
  • Объем бетона 1,81 м3
  • Геометрический объем 0,925 м3
Цена: 29847 руб.
Подробнее
ПТ 11-2
Плиты перекрытия серия ИС 01-05 ( НК 029-23:39 )
  • Длина 2900 мм.
  • Ширина 2980 мм.
  • Высота 250 мм.
  • Вес 5200 кг.
  • Объем бетона 2,08 м3
  • Геометрический объем 2,1605 м3
Цена: 34299 руб.
Подробнее

Уведомление о файлах cookie

Мы используем файлы cookie для улучшения вашего опыта просмотра и анализа трафика. Нажимая "Принять все", вы соглашаетесь с нашей политикой конфиденциальности и политикой обработки файлов cookie.

Дзен Телеграм Вконтакте vk