mobile_sound +7 (930) 655-55-90

Железобетонные опоры линий электропередачи. Рабочие чертежи (Серия Б1.038.1-1)

Поделиться:
Поделиться:

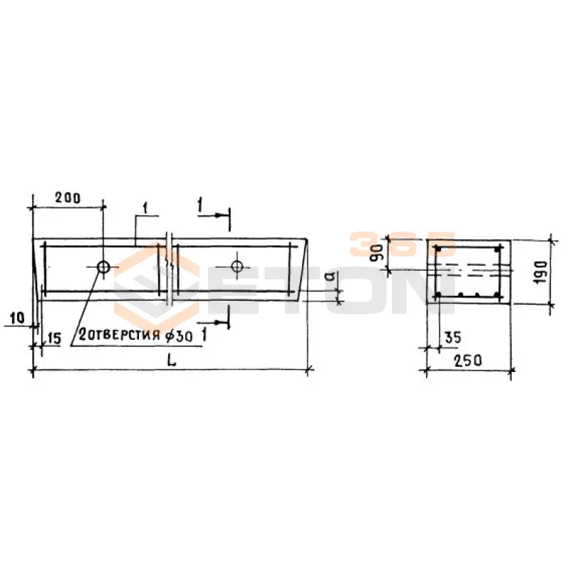
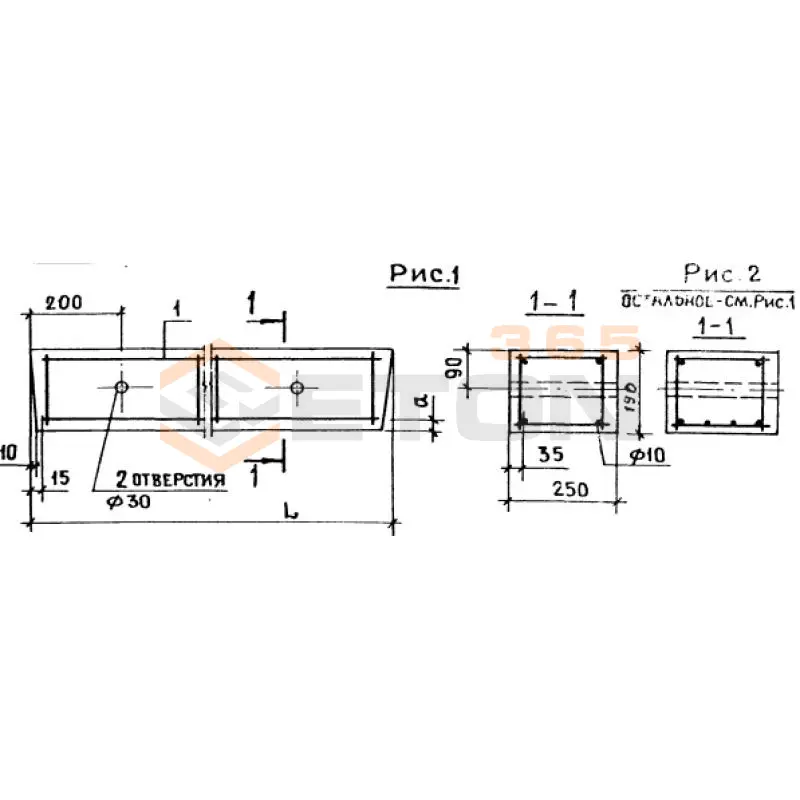
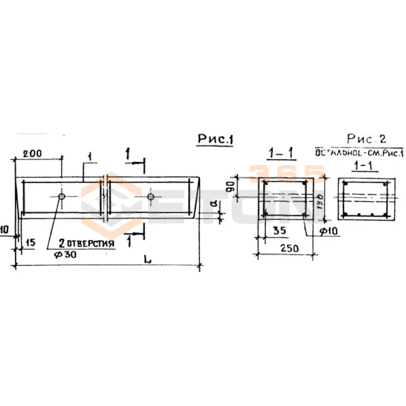
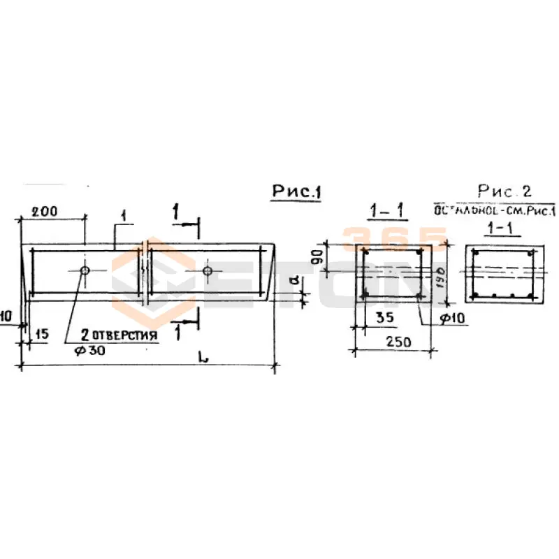
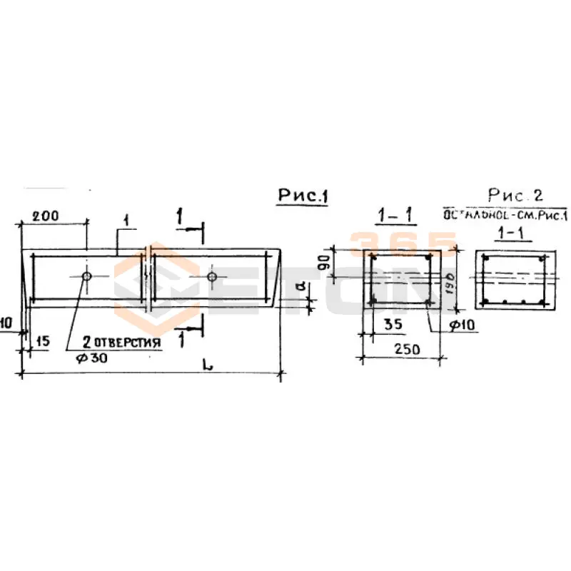
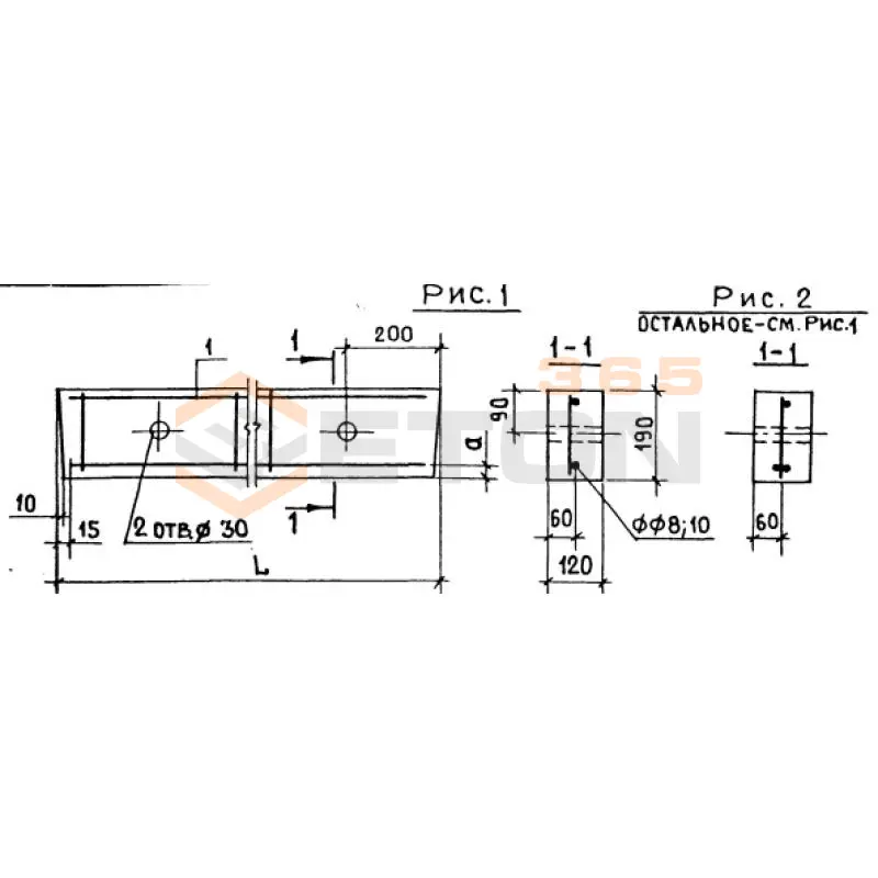
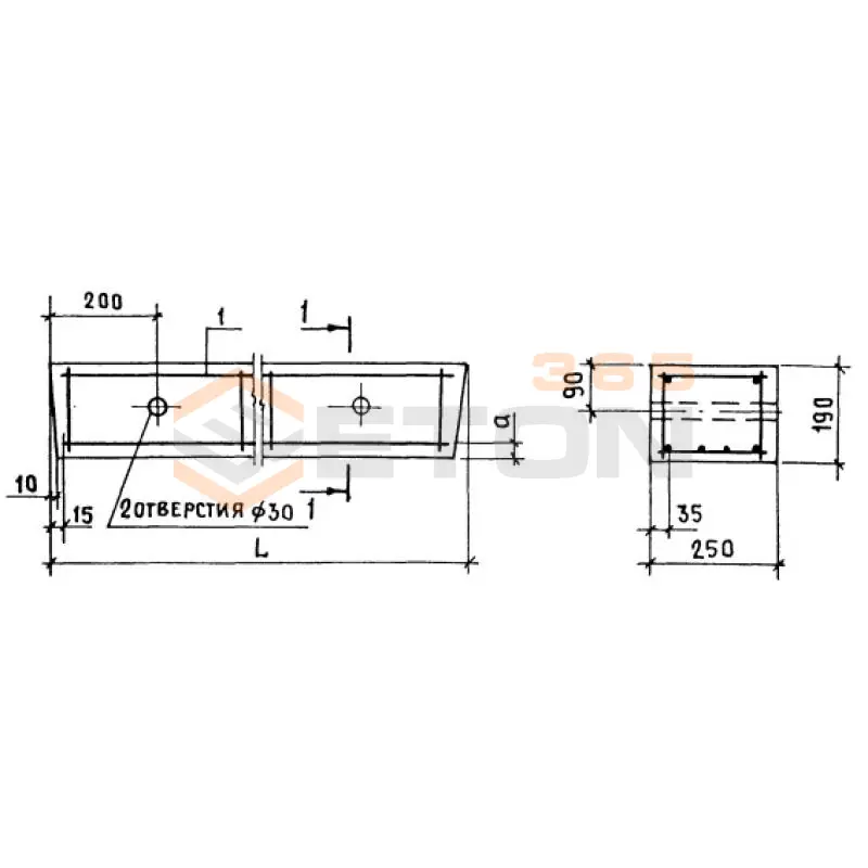
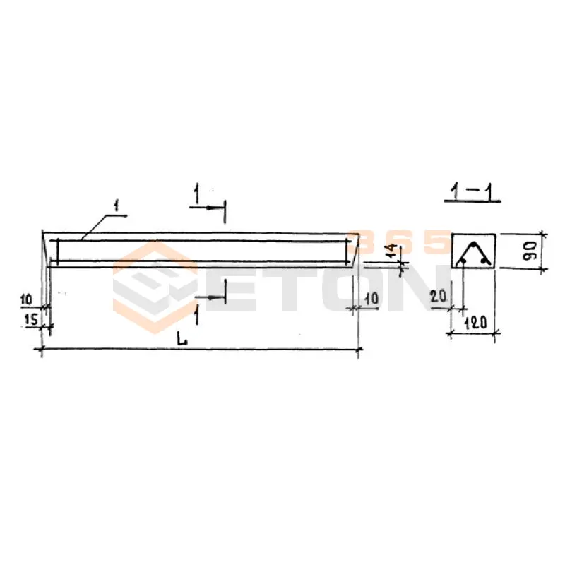
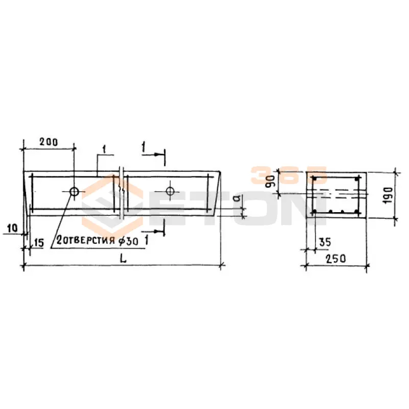
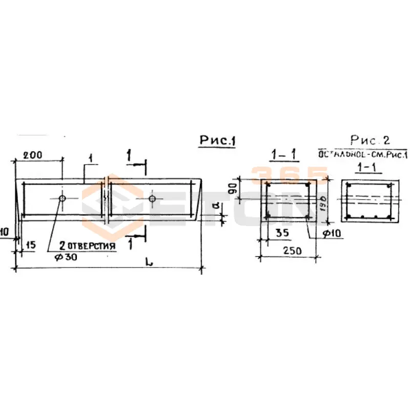
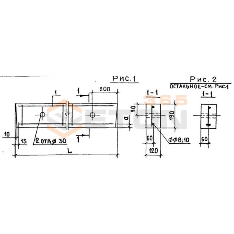
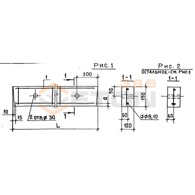
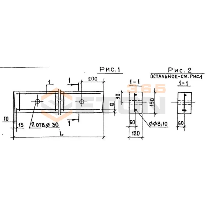
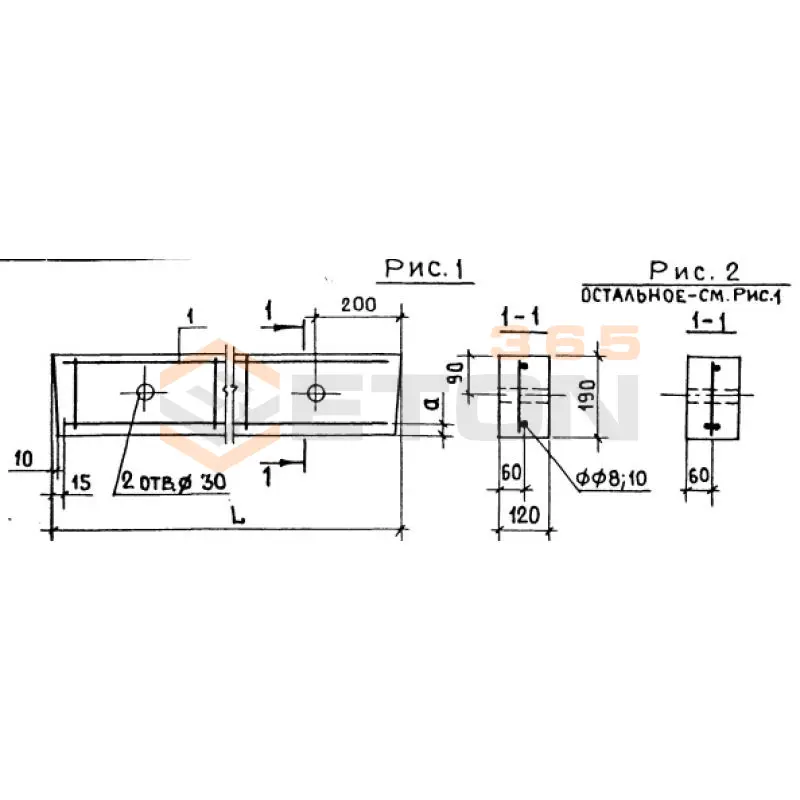
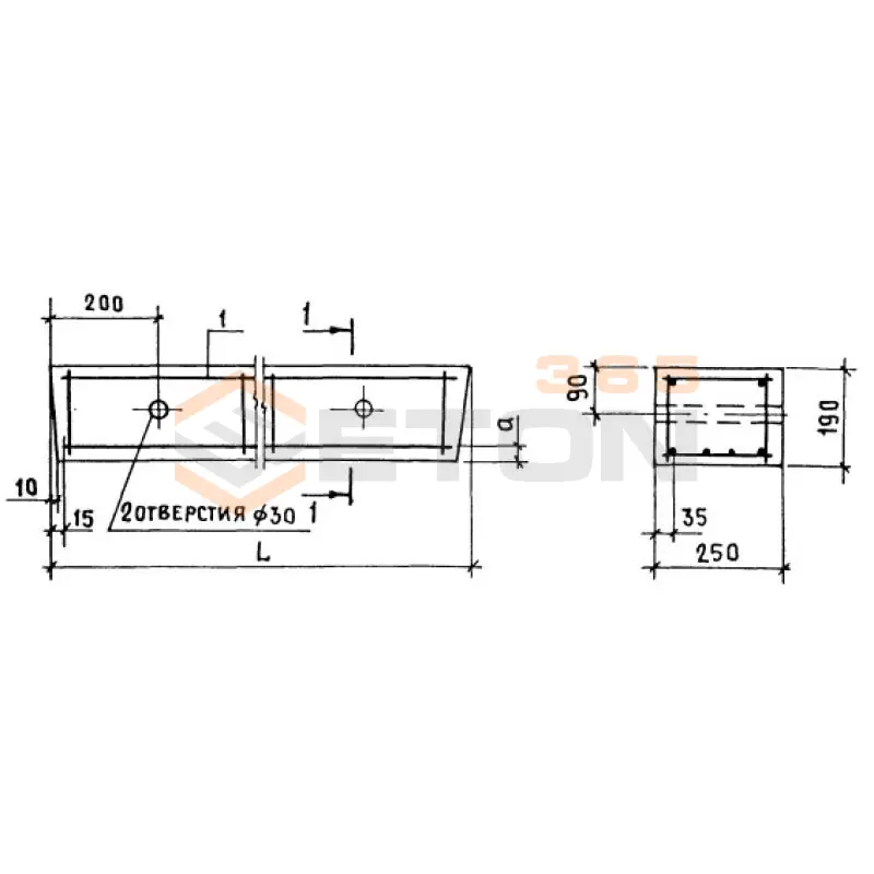
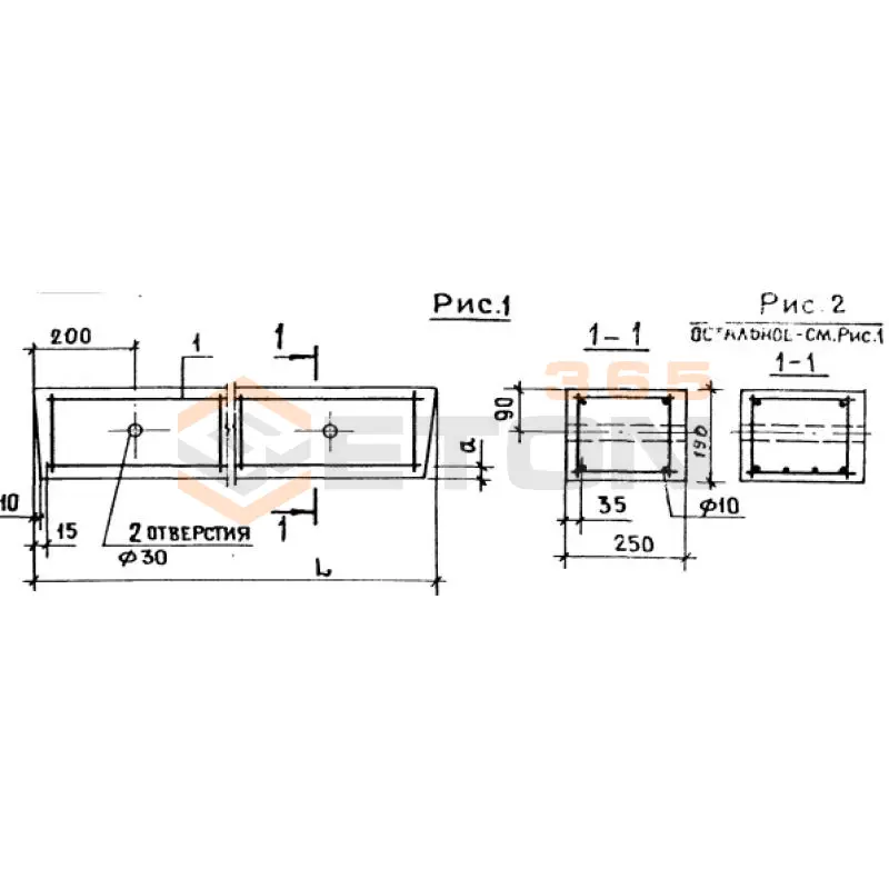
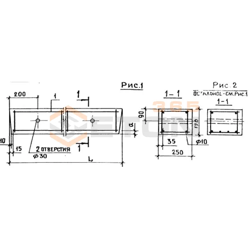
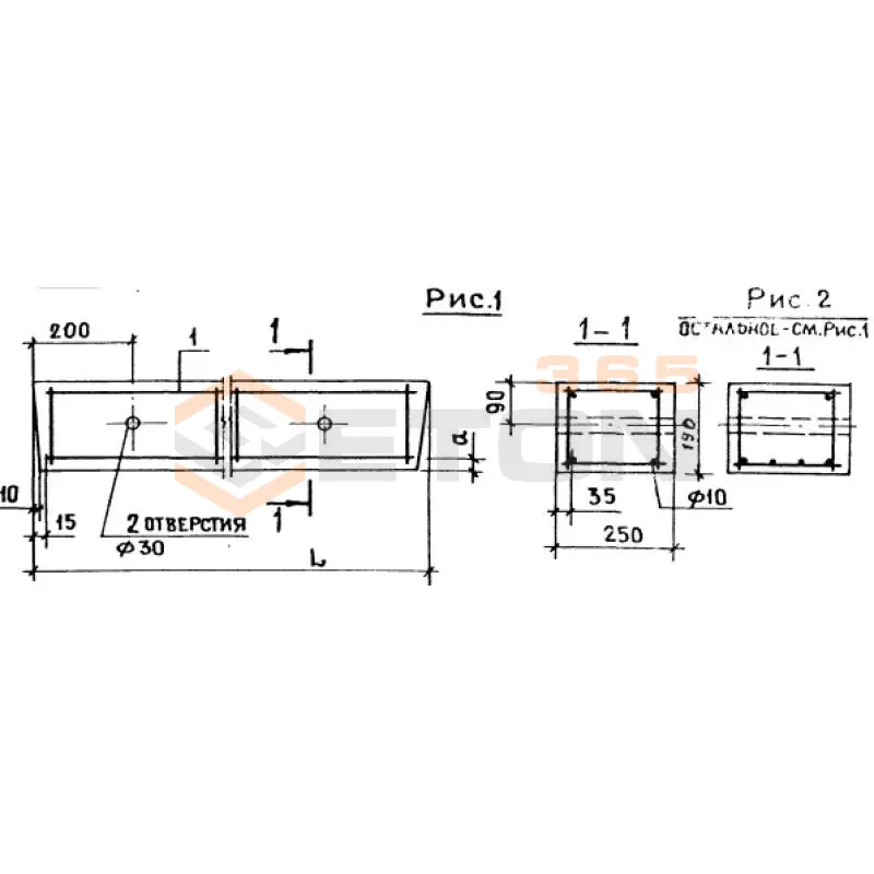
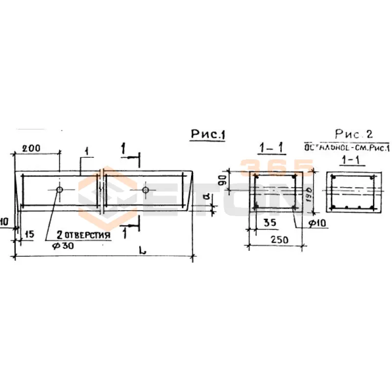
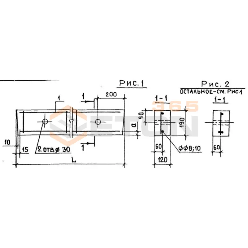
Документ Серия Б1.038.1-1 описывает область применения, номенклатуру и ключевые требования, опираясь на действующие нормы и практику проектирования. При строительстве сооружений различного назначения с кирпичными стенами для формирования оконных и дверных проемов применяются унифицированные перемычки, рабочие чертежи которых приведены на страницах Серии Б1.038.1-1. Регламент был разработан проектным институтом БЕЛГОСПРОЕКТ и введён в действие в действие, начиная с января 1988 года после утверждения Госстроем БССР. Для увеличения областей применения и числа типовых проектов с использованием конструкций были разработаны плитные, балочные и брусковые перемычки в различных вариациях геометрических пропорций и несущих способностей.

Файлы для скачивания:
picture_as_pdf

5565.pdf

3,213.4 KB

скачать
picture_as_pdf

5563.pdf

2,292.3 KB

скачать
picture_as_pdf

5562.pdf

1,032.9 KB

скачать
picture_as_pdf

5564.pdf

72,305.3 KB

скачать
Товары Серия Б1.038.1-1 (60)
3ПР 32-36-25-44 (Б1.038.1-1)
Перемычки балочные Серия Б1.038.1-1
  • Длина 3890 мм.
  • Ширина 250 мм.
  • Высота 440 мм.
  • Вес 792 кг.
  • Объем бетона 0,317 м3
  • Геометрический объем 0,4279 м3
Цена: 6765 руб.
Подробнее
3ПР 32-44-25-44 (Б1.038.1-1)
Перемычки балочные Серия Б1.038.1-1
  • Длина 4410 мм.
  • Ширина 250 мм.
  • Высота 440 мм.
  • Вес 897 кг.
  • Объем бетона 0,359 м3
  • Геометрический объем 0,4851 м3
Цена: 7661 руб.
Подробнее
3ПР 32-44-25-44 (Б1.038.1-1)
Перемычки балочные Серия Б1.038.1-1
  • Длина 4150 мм.
  • Ширина 250 мм.
  • Высота 440 мм.
  • Вес 845 кг.
  • Объем бетона 0,338 м3
  • Геометрический объем 0,4565 м3
Цена: 7213 руб.
Подробнее
3ПР 32-48-25-44 (Б1.038.1-1)
Перемычки балочные Серия Б1.038.1-1
  • Длина 4800 мм.
  • Ширина 250 мм.
  • Высота 440 мм.
  • Вес 917 кг.
  • Объем бетона 0,391 м3
  • Геометрический объем 0,528 м3
Цена: 8344 руб.
Подробнее
3ПР 32-59-38-44 (Б1.038.1-1)
Перемычки балочные Серия Б1.038.1-1
  • Длина 5960 мм.
  • Ширина 380 мм.
  • Высота 440 мм.
  • Вес 2065 кг.
  • Объем бетона 0,826 м3
  • Геометрический объем 0,9965 м3
Цена: 17627 руб.
Подробнее
3ПР 41-12-28-29 (Б1.038.1-1)
Перемычки балочные Серия Б1.038.1-1
  • Длина 1290 мм.
  • Ширина 380 мм.
  • Высота 290 мм.
  • Вес 295 кг.
  • Объем бетона 0,12 м3
  • Геометрический объем 0,1422 м3
Цена: 2561 руб.
Подробнее
3ПР 41-23-38-29 (Б1.038.1-1)
Перемычки балочные Серия Б1.038.1-1
  • Длина 2330 мм.
  • Ширина 380 мм.
  • Высота 290 мм.
  • Вес 535 кг.
  • Объем бетона 0,21 м3
  • Геометрический объем 0,2568 м3
Цена: 4481 руб.
Подробнее
3ПР 41-15-38-29 (Б1.038.1-1)
Перемычки балочные Серия Б1.038.1-1
  • Длина 1550 мм.
  • Ширина 380 мм.
  • Высота 290 мм.
  • Вес 357 кг.
  • Объем бетона 0,143 м3
  • Геометрический объем 0,1708 м3
Цена: 3052 руб.
Подробнее
3ПР 41-32-38-29 (Б1.038.1-1)
Перемычки балочные Серия Б1.038.1-1
  • Длина 3240 мм.
  • Ширина 380 мм.
  • Высота 290 мм.
  • Вес 820 кг.
  • Объем бетона 0,33 м3
  • Геометрический объем 0,357 м3
Цена: 7042 руб.
Подробнее
3ПР 41-25-38-29 (Б1.038.1-1)
Перемычки балочные Серия Б1.038.1-1
  • Длина 2590 мм.
  • Ширина 380 мм.
  • Высота 290 мм.
  • Вес 596 кг.
  • Объем бетона 0,238 м3
  • Геометрический объем 0,2854 м3
Цена: 5079 руб.
Подробнее
3ПР 41-29-38-29 (Б1.038.1-1)
Перемычки балочные Серия Б1.038.1-1
  • Длина 2990 мм.
  • Ширина 380 мм.
  • Высота 290 мм.
  • Вес 753 кг.
  • Объем бетона 0,301 м3
  • Геометрический объем 0,3295 м3
Цена: 6423 руб.
Подробнее
3ПР 41-59-51-44 (Б1.038.1-1)
Перемычки балочные Серия Б1.038.1-1
  • Длина 5960 мм.
  • Ширина 510 мм.
  • Высота 440 мм.
  • Вес 2917 кг.
  • Объем бетона 1,167 м3
  • Геометрический объем 1,3374 м3
Цена: 24904 руб.
Подробнее
3ПР 8-44-25-29 (Б1.038.1-1)
Перемычки балочные Серия Б1.038.1-1
  • Длина 4410 мм.
  • Ширина 250 мм.
  • Высота 290 мм.
  • Вес 484 кг.
  • Объем бетона 0,194 м3
  • Геометрический объем 0,3197 м3
Цена: 4140 руб.
Подробнее
3ПР 8-48-25-29 (Б1.038.1-1)
Перемычки балочные Серия Б1.038.1-1
  • Длина 4800 мм.
  • Ширина 250 мм.
  • Высота 290 мм.
  • Вес 527 кг.
  • Объем бетона 0,211 м3
  • Геометрический объем 0,348 м3
Цена: 4503 руб.
Подробнее
3ПР 41-44-38-44 (Б1.038.1-1)
Перемычки балочные Серия Б1.038.1-1
  • Длина 4410 мм.
  • Ширина 380 мм.
  • Высота 440 мм.
  • Вес 1528 кг.
  • Объем бетона 0,611 м3
  • Геометрический объем 0,7374 м3
Цена: 13039 руб.
Подробнее
1ПР 1-10-12-9 (Б1.038.1-1)
Перемычки брусковые Серия Б1.038.1-1
  • Длина 1030 мм.
  • Ширина 120 мм.
  • Высота 90 мм.
  • Вес 28 кг.
  • Объем бетона 0,011 м3
  • Геометрический объем 0,0111 м3
Цена: 235 руб.
Подробнее
1ПР 1-10-18-9 (Б1.038.1-1)
Перемычки брусковые Серия Б1.038.1-1
  • Длина 1030 мм.
  • Ширина 120 мм.
  • Высота 90 мм.
  • Вес 28 кг.
  • Объем бетона 0,011 м3
  • Геометрический объем 0,0111 м3
Цена: 235 руб.
Подробнее
1ПР 1-12-12-9 (Б1.038.1-1)
Перемычки брусковые Серия Б1.038.1-1
  • Длина 1290 мм.
  • Ширина 120 мм.
  • Высота 90 мм.
  • Вес 35 кг.
  • Объем бетона 0,014 м3
  • Геометрический объем 0,0139 м3
Цена: 299 руб.
Подробнее
1ПР 1-15-12-6 (Б1.038.1-1)
Перемычки брусковые Серия Б1.038.1-1
  • Длина 1550 мм.
  • Ширина 120 мм.
  • Высота 65 мм.
  • Вес 30 кг.
  • Объем бетона 0,012 м3
  • Геометрический объем 0,0121 м3
Цена: 256 руб.
Подробнее
1ПР 1-15-12-9 (Б1.038.1-1)
Перемычки брусковые Серия Б1.038.1-1
  • Длина 1550 мм.
  • Ширина 120 мм.
  • Высота 90 мм.
  • Вес 42 кг.
  • Объем бетона 0,016 м3
  • Геометрический объем 0,0167 м3
Цена: 341 руб.
Подробнее
1ПР 20-33-25-22 у (Б1.038.1-1)
Перемычки брусковые Серия Б1.038.1-1
  • Длина 3370 мм.
  • Ширина 250 мм.
  • Высота 220 мм.
  • Вес 463 кг.
  • Объем бетона 0,0185 м3
  • Геометрический объем 0,1853 м3
Цена: 395 руб.
Подробнее
1ПР 2-16-12-9 (Б1.038.1-1)
Перемычки брусковые Серия Б1.038.1-1
  • Длина 1680 мм.
  • Ширина 120 мм.
  • Высота 90 мм.
  • Вес 45 кг.
  • Объем бетона 0,018 м3
  • Геометрический объем 0,0181 м3
Цена: 384 руб.
Подробнее
1ПР 20-36-25-22 уп (Б1.038.1-1)
Перемычки брусковые Серия Б1.038.1-1
  • Длина 3630 мм.
  • Ширина 250 мм.
  • Высота 220 мм.
  • Вес 500 кг.
  • Объем бетона 0,2 м3
  • Геометрический объем 0,1996 м3
Цена: 4268 руб.
Подробнее
1ПР 20-36-25-22 у (Б1.038.1-1)
Перемычки брусковые Серия Б1.038.1-1
  • Длина 3630 мм.
  • Ширина 250 мм.
  • Высота 220 мм.
  • Вес 500 кг.
  • Объем бетона 0,2 м3
  • Геометрический объем 0,1996 м3
Цена: 4268 руб.
Подробнее
1ПР 28-18-25-19 у (Б1.038.1-1)
Перемычки брусковые Серия Б1.038.1-1
  • Длина 1810 мм.
  • Ширина 250 мм.
  • Высота 190 мм.
  • Вес 215 кг.
  • Объем бетона 0,086 м3
  • Геометрический объем 0,086 м3
Цена: 1835 руб.
Подробнее
1ПР 20-33-25-22 уп (Б1.038.1-1)
Перемычки брусковые Серия Б1.038.1-1
  • Длина 3370 мм.
  • Ширина 250 мм.
  • Высота 220 мм.
  • Вес 463 кг.
  • Объем бетона 0,0185 м3
  • Геометрический объем 0,1853 м3
Цена: 395 руб.
Подробнее
1ПР 28-18-29-19 уп (Б1.038.1-1)
Перемычки брусковые Серия Б1.038.1-1
  • Длина 1810 мм.
  • Ширина 250 мм.
  • Высота 190 мм.
  • Вес 215 кг.
  • Объем бетона 0,086 м3
  • Геометрический объем 0,086 м3
Цена: 1835 руб.
Подробнее
1ПР 28-18-25-19 уп (Б1.038.1-1)
Перемычки брусковые Серия Б1.038.1-1
  • Длина 1810 мм.
  • Ширина 250 мм.
  • Высота 190 мм.
  • Вес 215 кг.
  • Объем бетона 0,086 м3
  • Геометрический объем 0,086 м3
Цена: 1835 руб.
Подробнее
1ПР 28-18-29-19 у (Б1.038.1-1)
Перемычки брусковые Серия Б1.038.1-1
  • Длина 1810 мм.
  • Ширина 250 мм.
  • Высота 190 мм.
  • Вес 215 кг.
  • Объем бетона 0,086 м3
  • Геометрический объем 0,086 м3
Цена: 1835 руб.
Подробнее
1ПР 28-20-25-19 уап (Б1.038.1-1)
Перемычки брусковые Серия Б1.038.1-1
  • Длина 2070 мм.
  • Ширина 250 мм.
  • Высота 190 мм.
  • Вес 246 кг.
  • Объем бетона 0,098 м3
  • Геометрический объем 0,0983 м3
Цена: 2091 руб.
Подробнее
1ПР 28-20-25-19 у (Б1.038.1-1)
Перемычки брусковые Серия Б1.038.1-1
  • Длина 2070 мм.
  • Ширина 250 мм.
  • Высота 190 мм.
  • Вес 246 кг.
  • Объем бетона 0,098 м3
  • Геометрический объем 0,0983 м3
Цена: 2091 руб.
Подробнее
1ПР 28-20-25-19 уа (Б1.038.1-1)
Перемычки брусковые Серия Б1.038.1-1
  • Длина 2070 мм.
  • Ширина 250 мм.
  • Высота 190 мм.
  • Вес 246 кг.
  • Объем бетона 0,098 м3
  • Геометрический объем 0,0983 м3
Цена: 2091 руб.
Подробнее
1ПР 28-20-25-19 уп (Б1.038.1-1)
Перемычки брусковые Серия Б1.038.1-1
  • Длина 2070 мм.
  • Ширина 250 мм.
  • Высота 190 мм.
  • Вес 246 кг.
  • Объем бетона 0,098 м3
  • Геометрический объем 0,0983 м3
Цена: 2091 руб.
Подробнее
1ПР 28-20-25-22 уа (Б1.038.1-1)
Перемычки брусковые Серия Б1.038.1-1
  • Длина 2070 мм.
  • Ширина 250 мм.
  • Высота 220 мм.
  • Вес 285 кг.
  • Объем бетона 0,11 м3
  • Геометрический объем 0,1139 м3
Цена: 2347 руб.
Подробнее
1ПР 28-20-25-22 уап (Б1.038.1-1)
Перемычки брусковые Серия Б1.038.1-1
  • Длина 2070 мм.
  • Ширина 250 мм.
  • Высота 220 мм.
  • Вес 285 кг.
  • Объем бетона 0,11 м3
  • Геометрический объем 0,1139 м3
Цена: 2347 руб.
Подробнее
1ПР 28-24-25-19 у (Б1.038.1-1)
Перемычки брусковые Серия Б1.038.1-1
  • Длина 2460 мм.
  • Ширина 250 мм.
  • Высота 190 мм.
  • Вес 292 кг.
  • Объем бетона 0,11 м3
  • Геометрический объем 0,1168 м3
Цена: 2347 руб.
Подробнее
1ПР 28-24-25-22 ау (Б1.038.1-1)
Перемычки брусковые Серия Б1.038.1-1
  • Длина 2460 мм.
  • Ширина 250 мм.
  • Высота 220 мм.
  • Вес 338 кг.
  • Объем бетона 0,13 м3
  • Геометрический объем 0,1353 м3
Цена: 2774 руб.
Подробнее
1ПР 28-24-25-19 уп (Б1.038.1-1)
Перемычки брусковые Серия Б1.038.1-1
  • Длина 2460 мм.
  • Ширина 250 мм.
  • Высота 190 мм.
  • Вес 292 кг.
  • Объем бетона 0,11 м3
  • Геометрический объем 0,1168 м3
Цена: 2347 руб.
Подробнее
1ПР 28-24-25-19 уап (Б1.038.1-1)
Перемычки брусковые Серия Б1.038.1-1
  • Длина 2460 мм.
  • Ширина 250 мм.
  • Высота 190 мм.
  • Вес 292 кг.
  • Объем бетона 0,11 м3
  • Геометрический объем 0,1168 м3
Цена: 2347 руб.
Подробнее
1ПР 28-24-25-19 уа (Б1.038.1-1)
Перемычки брусковые Серия Б1.038.1-1
  • Длина 2460 мм.
  • Ширина 250 мм.
  • Высота 190 мм.
  • Вес 292 кг.
  • Объем бетона 0,11 м3
  • Геометрический объем 0,1168 м3
Цена: 2347 руб.
Подробнее
1ПР 28-24-25-22 ауп (Б1.038.1-1)
Перемычки брусковые Серия Б1.038.1-1
  • Длина 2460 мм.
  • Ширина 250 мм.
  • Высота 220 мм.
  • Вес 338 кг.
  • Объем бетона 0,13 м3
  • Геометрический объем 0,1353 м3
Цена: 2774 руб.
Подробнее
1ПР 28-27-25-19 у (Б1.038.1-1)
Перемычки брусковые Серия Б1.038.1-1
  • Длина 2720 мм.
  • Ширина 250 мм.
  • Высота 190 мм.
  • Вес 323 кг.
  • Объем бетона 0,13 м3
  • Геометрический объем 0,1292 м3
Цена: 2774 руб.
Подробнее
1ПР 28-27-25-19 уа (Б1.038.1-1)
Перемычки брусковые Серия Б1.038.1-1
  • Длина 2720 мм.
  • Ширина 250 мм.
  • Высота 190 мм.
  • Вес 323 кг.
  • Объем бетона 0,13 м3
  • Геометрический объем 0,1292 м3
Цена: 2774 руб.
Подробнее
1ПР 28-27-25-19 уп (Б1.038.1-1)
Перемычки брусковые Серия Б1.038.1-1
  • Длина 2720 мм.
  • Ширина 250 мм.
  • Высота 190 мм.
  • Вес 323 кг.
  • Объем бетона 0,13 м3
  • Геометрический объем 0,1292 м3
Цена: 2774 руб.
Подробнее
1ПР 28-27-25-19 уап (Б1.038.1-1)
Перемычки брусковые Серия Б1.038.1-1
  • Длина 2720 мм.
  • Ширина 250 мм.
  • Высота 190 мм.
  • Вес 323 кг.
  • Объем бетона 0,13 м3
  • Геометрический объем 0,1292 м3
Цена: 2774 руб.
Подробнее
1ПР 28-27-25-22 уап (Б1.038.1-1)
Перемычки брусковые Серия Б1.038.1-1
  • Длина 2720 мм.
  • Ширина 250 мм.
  • Высота 220 мм.
  • Вес 375 кг.
  • Объем бетона 0,15 м3
  • Геометрический объем 0,1496 м3
Цена: 3201 руб.
Подробнее
1ПР 28-27-25-22 уа (Б1.038.1-1)
Перемычки брусковые Серия Б1.038.1-1
  • Длина 2720 мм.
  • Ширина 250 мм.
  • Высота 220 мм.
  • Вес 375 кг.
  • Объем бетона 0,15 м3
  • Геометрический объем 0,1496 м3
Цена: 3201 руб.
Подробнее
1ПР 28-29-25-22 уа (Б1.038.1-1)
Перемычки брусковые Серия Б1.038.1-1
  • Длина 2980 мм.
  • Ширина 250 мм.
  • Высота 220 мм.
  • Вес 410 кг.
  • Объем бетона 0,16 м3
  • Геометрический объем 0,1639 м3
Цена: 3414 руб.
Подробнее
1ПР 28-29-25-22 уап (Б1.038.1-1)
Перемычки брусковые Серия Б1.038.1-1
  • Длина 2980 мм.
  • Ширина 250 мм.
  • Высота 220 мм.
  • Вес 410 кг.
  • Объем бетона 0,16 м3
  • Геометрический объем 0,1639 м3
Цена: 3414 руб.
Подробнее
1ПР 28-29-25-29 уа (Б1.038.1-1)
Перемычки брусковые Серия Б1.038.1-1
  • Длина 2980 мм.
  • Ширина 250 мм.
  • Высота 220 мм.
  • Вес 410 кг.
  • Объем бетона 0,16 м3
  • Геометрический объем 0,1639 м3
Цена: 3414 руб.
Подробнее
1ПР 28-31-25-22 у (Б1.038.1-1)
Перемычки брусковые Серия Б1.038.1-1
  • Длина 3110 мм.
  • Ширина 250 мм.
  • Высота 220 мм.
  • Вес 428 кг.
  • Объем бетона 0,171 м3
  • Геометрический объем 0,1711 м3
Цена: 3649 руб.
Подробнее
1ПР 28-29-25-29 уап (Б1.038.1-1)
Перемычки брусковые Серия Б1.038.1-1
  • Длина 2980 мм.
  • Ширина 250 мм.
  • Высота 220 мм.
  • Вес 410 кг.
  • Объем бетона 0,16 м3
  • Геометрический объем 0,1639 м3
Цена: 3414 руб.
Подробнее
1ПР 28-31-25-22 уп (Б1.038.1-1)
Перемычки брусковые Серия Б1.038.1-1
  • Длина 3110 мм.
  • Ширина 250 мм.
  • Высота 220 мм.
  • Вес 428 кг.
  • Объем бетона 0,171 м3
  • Геометрический объем 0,1711 м3
Цена: 3649 руб.
Подробнее
1ПР 3-19-12-9 (Б1.038.1-1)
Перемычки брусковые Серия Б1.038.1-1
  • Длина 1940 мм.
  • Ширина 120 мм.
  • Высота 90 мм.
  • Вес 52 кг.
  • Объем бетона 0,021 м3
  • Геометрический объем 0,021 м3
Цена: 448 руб.
Подробнее
1ПР 3-22-12-19 (Б1.038.1-1)
Перемычки брусковые Серия Б1.038.1-1
  • Длина 2200 мм.
  • Ширина 120 мм.
  • Высота 190 мм.
  • Вес 125 кг.
  • Объем бетона 0,05 м3
  • Геометрический объем 0,0502 м3
Цена: 1067 руб.
Подробнее
1ПР 3-24-12-19 (Б1.038.1-1)
Перемычки брусковые Серия Б1.038.1-1
  • Длина 2460 мм.
  • Ширина 120 мм.
  • Высота 190 мм.
  • Вес 140 кг.
  • Объем бетона 0,056 м3
  • Геометрический объем 0,0561 м3
Цена: 1195 руб.
Подробнее
1ПР 3-22-12-19 п (Б1.038.1-1)
Перемычки брусковые Серия Б1.038.1-1
  • Длина 2200 мм.
  • Ширина 120 мм.
  • Высота 190 мм.
  • Вес 125 кг.
  • Объем бетона 0,05 м3
  • Геометрический объем 0,0502 м3
Цена: 1067 руб.
Подробнее
1ПР 38-12-12-19 у (Б1.038.1-1)
Перемычки брусковые Серия Б1.038.1-1
  • Длина 1290 мм.
  • Ширина 120 мм.
  • Высота 190 мм.
  • Вес 74 кг.
  • Объем бетона 0,029 м3
  • Геометрический объем 0,0294 м3
Цена: 619 руб.
Подробнее
1ПР 3-24-12-19 п (Б1.038.1-1)
Перемычки брусковые Серия Б1.038.1-1
  • Длина 2460 мм.
  • Ширина 120 мм.
  • Высота 190 мм.
  • Вес 140 кг.
  • Объем бетона 0,056 м3
  • Геометрический объем 0,0561 м3
Цена: 1195 руб.
Подробнее
1ПР 38-12-12-19 уп (Б1.038.1-1)
Перемычки брусковые Серия Б1.038.1-1
  • Длина 1290 мм.
  • Ширина 120 мм.
  • Высота 190 мм.
  • Вес 74 кг.
  • Объем бетона 0,029 м3
  • Геометрический объем 0,0294 м3
Цена: 619 руб.
Подробнее

Уведомление о файлах cookie

Мы используем файлы cookie для улучшения вашего опыта просмотра и анализа трафика. Нажимая "Принять все", вы соглашаетесь с нашей политикой конфиденциальности и политикой обработки файлов cookie.

MAX Дзен Телеграм Вконтакте vk