mobile_sound +7 (930) 655-55-90

Железобетонные опоры линий электропередачи. Рабочие чертежи (Серия Б1.038.1-1)

Поделиться:
Поделиться:

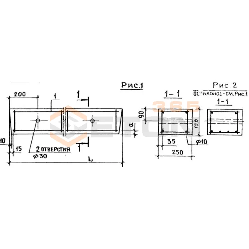
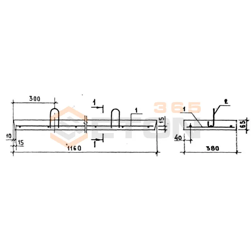
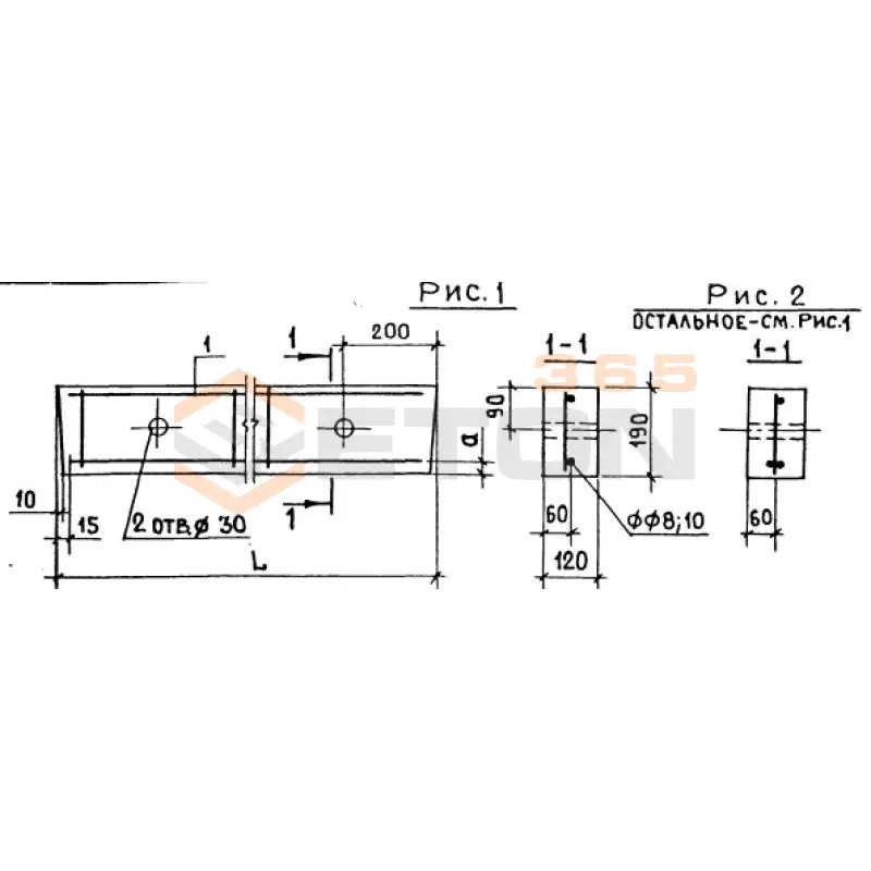
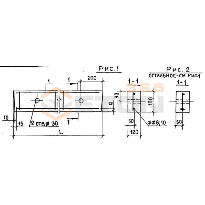
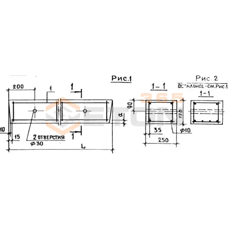
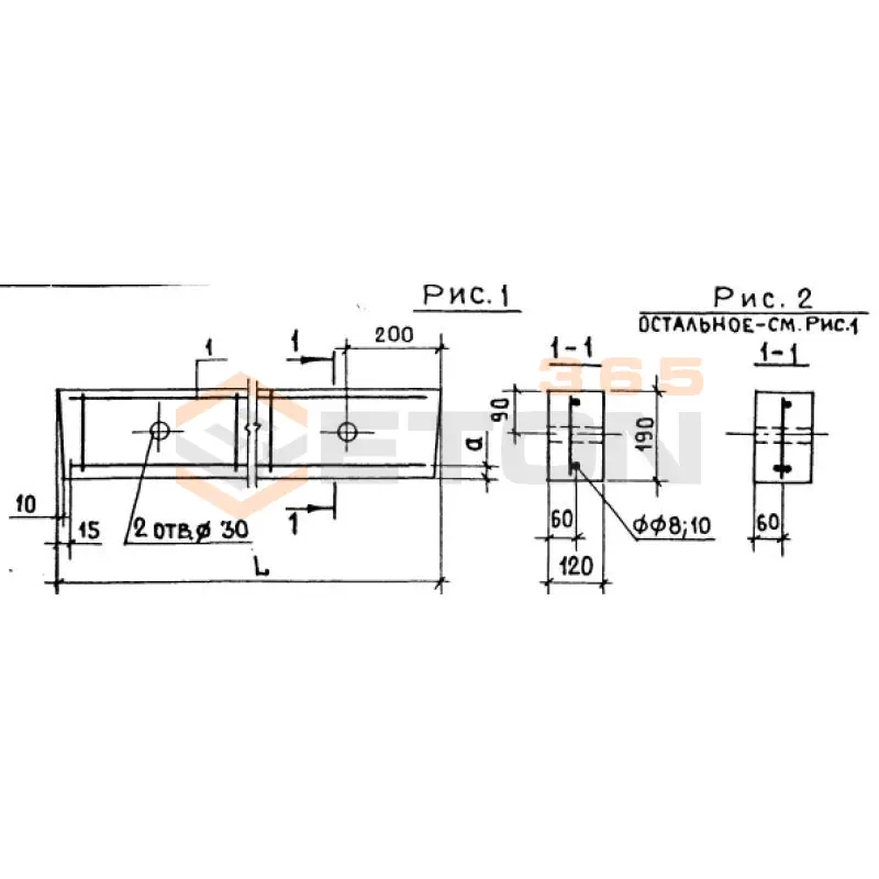
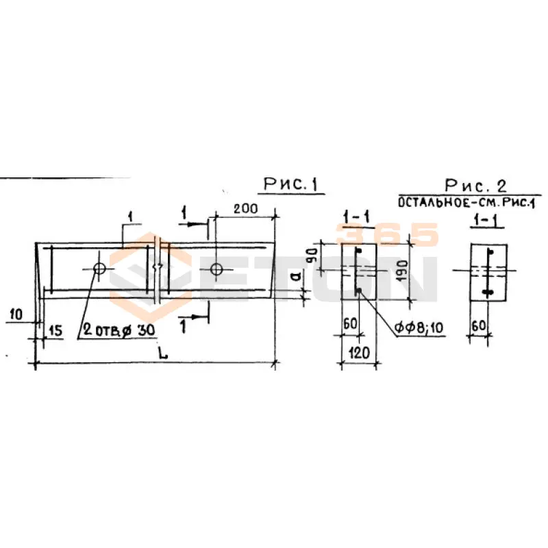
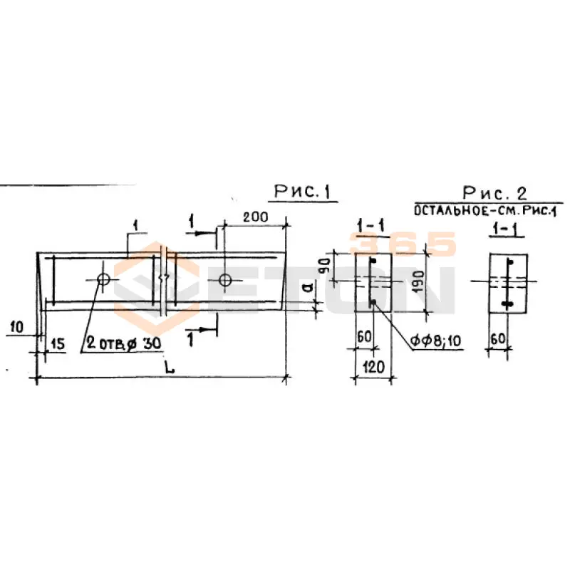
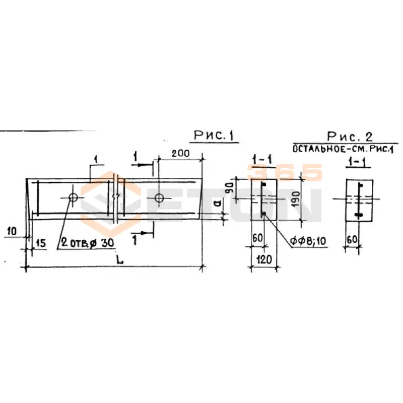
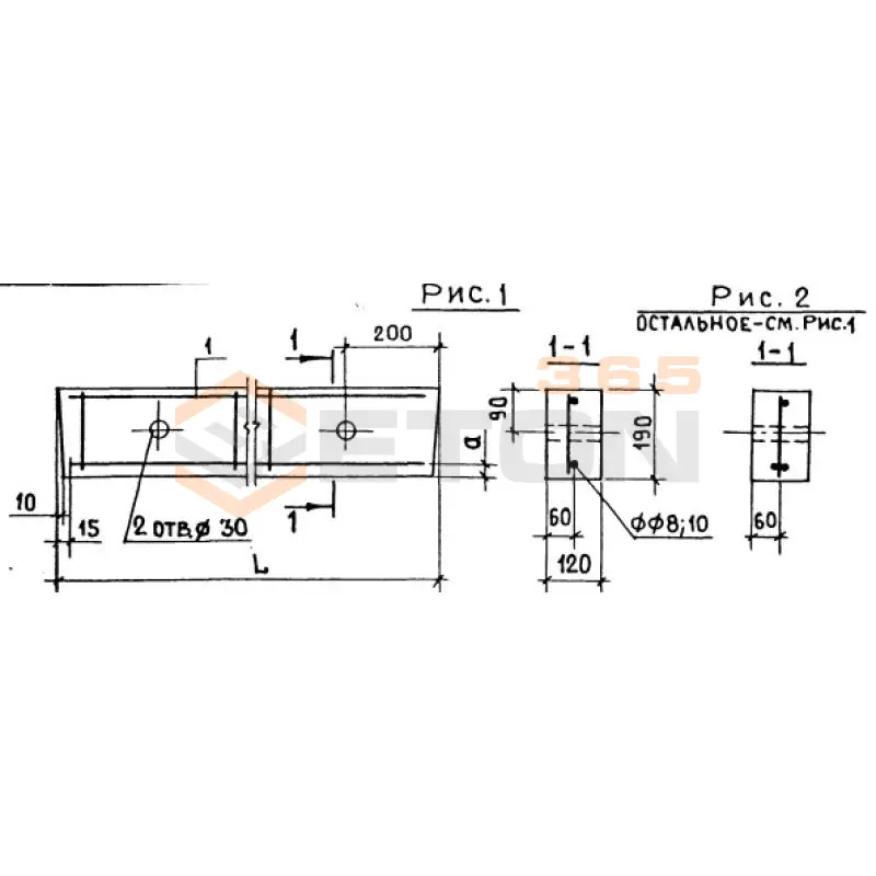
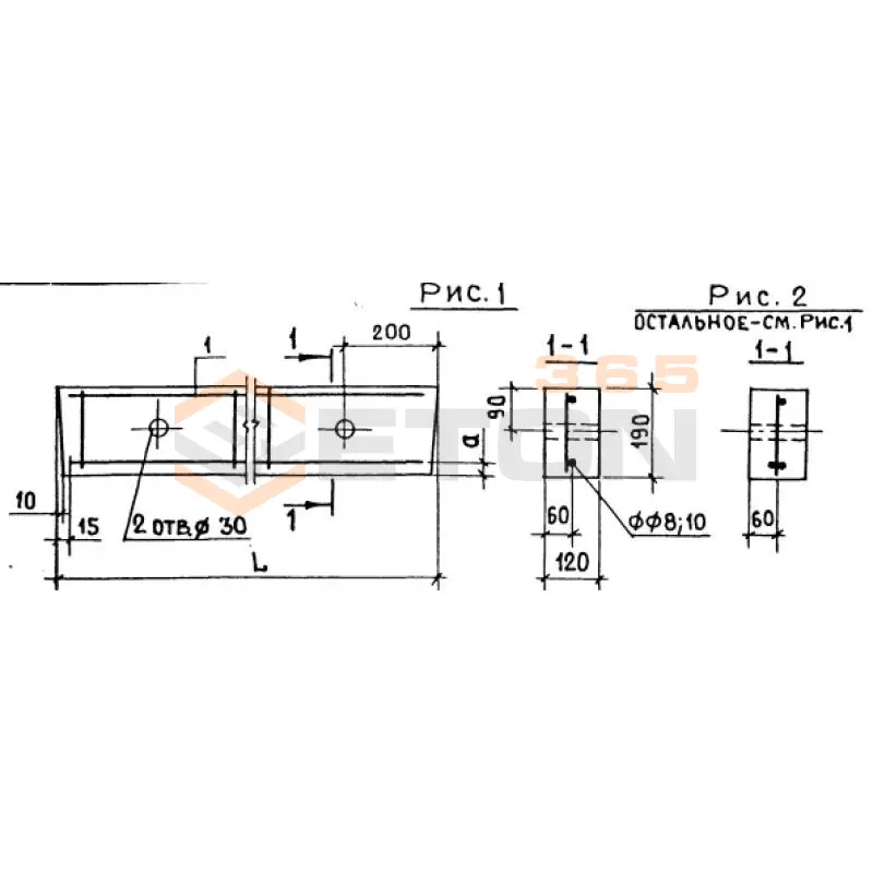
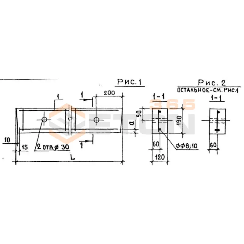
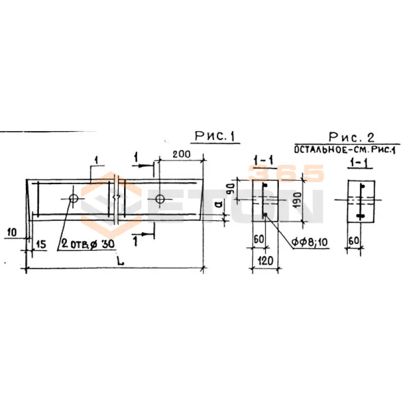
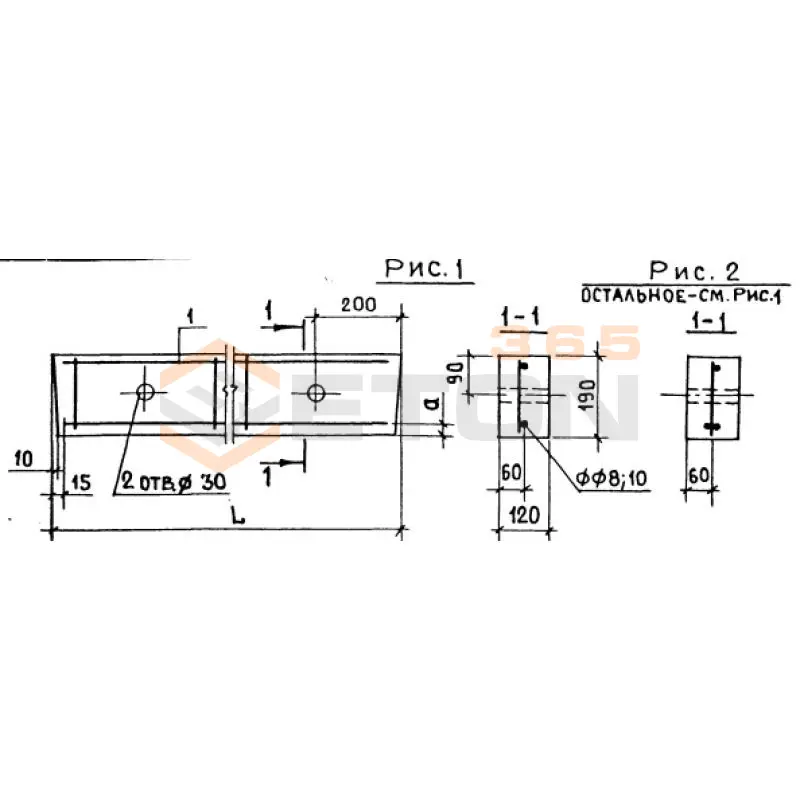
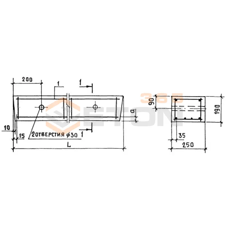
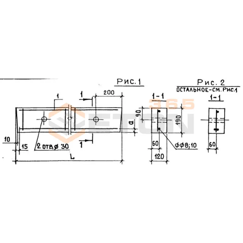
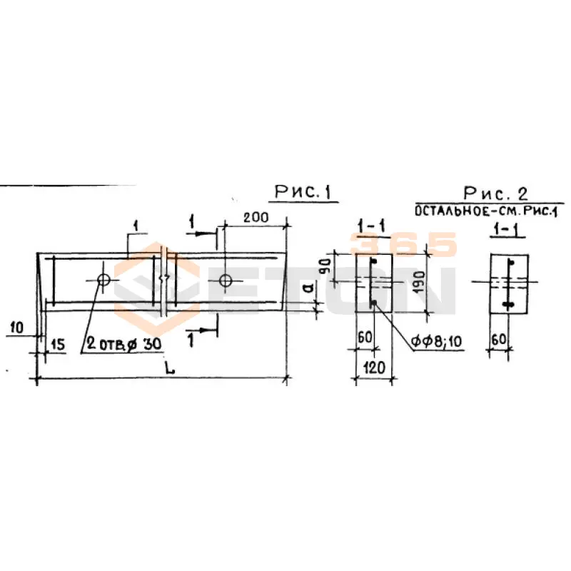
Документ Серия Б1.038.1-1 описывает область применения, номенклатуру и ключевые требования, опираясь на действующие нормы и практику проектирования. При строительстве сооружений различного назначения с кирпичными стенами для формирования оконных и дверных проемов применяются унифицированные перемычки, рабочие чертежи которых приведены на страницах Серии Б1.038.1-1. Регламент был разработан проектным институтом БЕЛГОСПРОЕКТ и введён в действие в действие, начиная с января 1988 года после утверждения Госстроем БССР. Для увеличения областей применения и числа типовых проектов с использованием конструкций были разработаны плитные, балочные и брусковые перемычки в различных вариациях геометрических пропорций и несущих способностей.

Файлы для скачивания:
picture_as_pdf

5565.pdf

3,213.4 KB

скачать
picture_as_pdf

5563.pdf

2,292.3 KB

скачать
picture_as_pdf

5562.pdf

1,032.9 KB

скачать
picture_as_pdf

5564.pdf

72,305.3 KB

скачать
Товары Серия Б1.038.1-1 (57)
1ПР 38-15-12-19 у (Б1.038.1-1)
Перемычки брусковые Серия Б1.038.1-1
  • Длина 1550 мм.
  • Ширина 120 мм.
  • Высота 190 мм.
  • Вес 88 кг.
  • Объем бетона 0,035 м3
  • Геометрический объем 0,0353 м3
Цена: 747 руб.
Подробнее
1ПР 38-15-12-19 уп (Б1.038.1-1)
Перемычки брусковые Серия Б1.038.1-1
  • Длина 1550 мм.
  • Ширина 120 мм.
  • Высота 190 мм.
  • Вес 88 кг.
  • Объем бетона 0,035 м3
  • Геометрический объем 0,0353 м3
Цена: 747 руб.
Подробнее
1ПР 38-18-12-19 у (Б1.038.1-1)
Перемычки брусковые Серия Б1.038.1-1
  • Длина 1810 мм.
  • Ширина 120 мм.
  • Высота 190 мм.
  • Вес 103 кг.
  • Объем бетона 0,041 м3
  • Геометрический объем 0,0413 м3
Цена: 875 руб.
Подробнее
1ПР 38-27-25-19 уп (Б1.038.1-1)
Перемычки брусковые Серия Б1.038.1-1
  • Длина 2720 мм.
  • Ширина 250 мм.
  • Высота 190 мм.
  • Вес 323 кг.
  • Объем бетона 0,13 м3
  • Геометрический объем 0,1292 м3
Цена: 2774 руб.
Подробнее
1ПР 38-24-25-19 у (Б1.038.1-1)
Перемычки брусковые Серия Б1.038.1-1
  • Длина 2460 мм.
  • Ширина 250 мм.
  • Высота 190 мм.
  • Вес 292 кг.
  • Объем бетона 0,11 м3
  • Геометрический объем 0,1168 м3
Цена: 2347 руб.
Подробнее
1ПР 38-27-25-19 у (Б1.038.1-1)
Перемычки брусковые Серия Б1.038.1-1
  • Длина 2720 мм.
  • Ширина 250 мм.
  • Высота 190 мм.
  • Вес 323 кг.
  • Объем бетона 0,13 м3
  • Геометрический объем 0,1292 м3
Цена: 2774 руб.
Подробнее
1ПР 38-18-12-19 уп (Б1.038.1-1)
Перемычки брусковые Серия Б1.038.1-1
  • Длина 1810 мм.
  • Ширина 120 мм.
  • Высота 190 мм.
  • Вес 103 кг.
  • Объем бетона 0,041 м3
  • Геометрический объем 0,0413 м3
Цена: 875 руб.
Подробнее
1ПР 38-24-25-19 уп (Б1.038.1-1)
Перемычки брусковые Серия Б1.038.1-1
  • Длина 2460 мм.
  • Ширина 250 мм.
  • Высота 190 мм.
  • Вес 292 кг.
  • Объем бетона 0,11 м3
  • Геометрический объем 0,1168 м3
Цена: 2347 руб.
Подробнее
1ПР 4-25-12-19 (Б1.038.1-1)
Перемычки брусковые Серия Б1.038.1-1
  • Длина 2590 мм.
  • Ширина 120 мм.
  • Высота 190 мм.
  • Вес 148 кг.
  • Объем бетона 0,06 м3
  • Геометрический объем 0,0591 м3
Цена: 1280 руб.
Подробнее
1ПР 4-25-12-19 п (Б1.038.1-1)
Перемычки брусковые Серия Б1.038.1-1
  • Длина 2590 мм.
  • Ширина 120 мм.
  • Высота 190 мм.
  • Вес 148 кг.
  • Объем бетона 0,06 м3
  • Геометрический объем 0,0591 м3
Цена: 1280 руб.
Подробнее
1ПР 4-28-12-19 п (Б1.038.1-1)
Перемычки брусковые Серия Б1.038.1-1
  • Длина 2850 мм.
  • Ширина 120 мм.
  • Высота 190 мм.
  • Вес 162 кг.
  • Объем бетона 0,065 м3
  • Геометрический объем 0,065 м3
Цена: 1387 руб.
Подробнее
1ПР 4-28-12-19 (Б1.038.1-1)
Перемычки брусковые Серия Б1.038.1-1
  • Длина 2850 мм.
  • Ширина 120 мм.
  • Высота 190 мм.
  • Вес 162 кг.
  • Объем бетона 0,065 м3
  • Геометрический объем 0,065 м3
Цена: 1387 руб.
Подробнее
1ПР 4-29-12-19 (Б1.038.1-1)
Перемычки брусковые Серия Б1.038.1-1
  • Длина 2980 мм.
  • Ширина 120 мм.
  • Высота 190 мм.
  • Вес 170 кг.
  • Объем бетона 0,068 м3
  • Геометрический объем 0,0679 м3
Цена: 1451 руб.
Подробнее
1ПР 4-29-12-19 п (Б1.038.1-1)
Перемычки брусковые Серия Б1.038.1-1
  • Длина 2980 мм.
  • Ширина 120 мм.
  • Высота 190 мм.
  • Вес 170 кг.
  • Объем бетона 0,068 м3
  • Геометрический объем 0,0679 м3
Цена: 1451 руб.
Подробнее
1ПР 8-18-12-19 у (Б1.038.1-1)
Перемычки брусковые Серия Б1.038.1-1
  • Длина 1810 мм.
  • Ширина 120 мм.
  • Высота 190 мм.
  • Вес 103 кг.
  • Объем бетона 0,041 м3
  • Геометрический объем 0,0413 м3
Цена: 875 руб.
Подробнее
1ПР 8-18-12-19 уп (Б1.038.1-1)
Перемычки брусковые Серия Б1.038.1-1
  • Длина 1810 мм.
  • Ширина 120 мм.
  • Высота 190 мм.
  • Вес 103 кг.
  • Объем бетона 0,041 м3
  • Геометрический объем 0,0413 м3
Цена: 875 руб.
Подробнее
1ПР 8-20-12-19 у (Б1.038.1-1)
Перемычки брусковые Серия Б1.038.1-1
  • Длина 2070 мм.
  • Ширина 120 мм.
  • Высота 190 мм.
  • Вес 118 кг.
  • Объем бетона 0,047 м3
  • Геометрический объем 0,0472 м3
Цена: 1003 руб.
Подробнее
1ПР 8-20-12-19 уп (Б1.038.1-1)
Перемычки брусковые Серия Б1.038.1-1
  • Длина 2070 мм.
  • Ширина 120 мм.
  • Высота 190 мм.
  • Вес 118 кг.
  • Объем бетона 0,047 м3
  • Геометрический объем 0,0472 м3
Цена: 1003 руб.
Подробнее
1ПР 8-24-12-19 у (Б1.038.1-1)
Перемычки брусковые Серия Б1.038.1-1
  • Длина 2460 мм.
  • Ширина 120 мм.
  • Высота 190 мм.
  • Вес 140 кг.
  • Объем бетона 0,056 м3
  • Геометрический объем 0,0561 м3
Цена: 1195 руб.
Подробнее
1ПР 8-24-12-19 уп (Б1.038.1-1)
Перемычки брусковые Серия Б1.038.1-1
  • Длина 2460 мм.
  • Ширина 120 мм.
  • Высота 190 мм.
  • Вес 140 кг.
  • Объем бетона 0,056 м3
  • Геометрический объем 0,0561 м3
Цена: 1195 руб.
Подробнее
1ПР 8-27-12-19 уп (Б1.038.1-1)
Перемычки брусковые Серия Б1.038.1-1
  • Длина 2720 мм.
  • Ширина 120 мм.
  • Высота 190 мм.
  • Вес 155 кг.
  • Объем бетона 0,062 м3
  • Геометрический объем 0,062 м3
Цена: 1323 руб.
Подробнее
1ПР 8-27-12-19 у (Б1.038.1-1)
Перемычки брусковые Серия Б1.038.1-1
  • Длина 2720 мм.
  • Ширина 120 мм.
  • Высота 190 мм.
  • Вес 155 кг.
  • Объем бетона 0,062 м3
  • Геометрический объем 0,062 м3
Цена: 1323 руб.
Подробнее
1ПР 8-29-12-22 у (Б1.038.1-1)
Перемычки брусковые Серия Б1.038.1-1
  • Длина 2980 мм.
  • Ширина 120 мм.
  • Высота 220 мм.
  • Вес 197 кг.
  • Объем бетона 0,078 м3
  • Геометрический объем 0,0787 м3
Цена: 1665 руб.
Подробнее
1ПР 8-29-12-22 уп (Б1.038.1-1)
Перемычки брусковые Серия Б1.038.1-1
  • Длина 2980 мм.
  • Ширина 120 мм.
  • Высота 220 мм.
  • Вес 197 кг.
  • Объем бетона 0,078 м3
  • Геометрический объем 0,0787 м3
Цена: 1665 руб.
Подробнее
1ПР 8-29-12-28 у (Б1.038.1-1)
Перемычки брусковые Серия Б1.038.1-1
  • Длина 2980 мм.
  • Ширина 120 мм.
  • Высота 220 мм.
  • Вес 197 кг.
  • Объем бетона 0,079 м3
  • Геометрический объем 0,0787 м3
Цена: 1686 руб.
Подробнее
1ПР 8-29-12-28 уп (Б1.038.1-1)
Перемычки брусковые Серия Б1.038.1-1
  • Длина 2980 мм.
  • Ширина 120 мм.
  • Высота 220 мм.
  • Вес 197 кг.
  • Объем бетона 0,079 м3
  • Геометрический объем 0,0787 м3
Цена: 1686 руб.
Подробнее
1ПР 8-48-12-29 (Б1.038.1-1)
Перемычки брусковые Серия Б1.038.1-1
  • Длина 4800 мм.
  • Ширина 120 мм.
  • Высота 290 мм.
  • Вес 418 кг.
  • Объем бетона 0,167 м3
  • Геометрический объем 0,167 м3
Цена: 3564 руб.
Подробнее
1ПР 8-44-12-29 (Б1.038.1-1)
Перемычки брусковые Серия Б1.038.1-1
  • Длина 4410 мм.
  • Ширина 120 мм.
  • Высота 290 мм.
  • Вес 384 кг.
  • Объем бетона 0,154 м3
  • Геометрический объем 0,1535 м3
Цена: 3286 руб.
Подробнее
1ПР 8-44-12-29 п (Б1.038.1-1)
Перемычки брусковые Серия Б1.038.1-1
  • Длина 4410 мм.
  • Ширина 120 мм.
  • Высота 290 мм.
  • Вес 384 кг.
  • Объем бетона 0,154 м3
  • Геометрический объем 0,1535 м3
Цена: 3286 руб.
Подробнее
1ПР 8-59-12-29 (Б1.038.1-1)
Перемычки брусковые Серия Б1.038.1-1
  • Длина 5960 мм.
  • Ширина 120 мм.
  • Высота 290 мм.
  • Вес 519 кг.
  • Объем бетона 0,207 м3
  • Геометрический объем 0,2074 м3
Цена: 4417 руб.
Подробнее
1ПР 8-48-12-29 п (Б1.038.1-1)
Перемычки брусковые Серия Б1.038.1-1
  • Длина 4800 мм.
  • Ширина 120 мм.
  • Высота 290 мм.
  • Вес 418 кг.
  • Объем бетона 0,167 м3
  • Геометрический объем 0,167 м3
Цена: 3564 руб.
Подробнее
1ПР 8-59-12-29 п (Б1.038.1-1)
Перемычки брусковые Серия Б1.038.1-1
  • Длина 5960 мм.
  • Ширина 120 мм.
  • Высота 290 мм.
  • Вес 519 кг.
  • Объем бетона 0,207 м3
  • Геометрический объем 0,2074 м3
Цена: 4417 руб.
Подробнее
2ПР 10-23-51-14 (Б1.038.1-1)
Перемычки плитные Серия Б1.038.1-1
  • Длина 2330 мм.
  • Ширина 510 мм.
  • Высота 140 мм.
  • Вес 416 кг.
  • Объем бетона 0,16 м3
  • Геометрический объем 0,1664 м3
Цена: 3414 руб.
Подробнее
2ПР 11-24-51-14 (Б1.038.1-1)
Перемычки плитные Серия Б1.038.1-1
  • Длина 2460 мм.
  • Ширина 510 мм.
  • Высота 140 мм.
  • Вес 435 кг.
  • Объем бетона 0,18 м3
  • Геометрический объем 0,1756 м3
Цена: 3841 руб.
Подробнее
2ПР 13-29-51-22 (Б1.038.1-1)
Перемычки плитные Серия Б1.038.1-1
  • Длина 2980 мм.
  • Ширина 510 мм.
  • Высота 220 мм.
  • Вес 835 кг.
  • Объем бетона 0,334 м3
  • Геометрический объем 0,3344 м3
Цена: 7128 руб.
Подробнее
2ПР 3-11-38-6 (Б1.038.1-1)
Перемычки плитные Серия Б1.038.1-1
  • Длина 1160 мм.
  • Ширина 380 мм.
  • Высота 65 мм.
  • Вес 72 кг.
  • Объем бетона 0,029 м3
  • Геометрический объем 0,0287 м3
Цена: 619 руб.
Подробнее
2ПР 4-14-38-14 (Б1.038.1-1)
Перемычки плитные Серия Б1.038.1-1
  • Длина 1420 мм.
  • Ширина 380 мм.
  • Высота 140 мм.
  • Вес 189 кг.
  • Объем бетона 0,075 м3
  • Геометрический объем 0,0755 м3
Цена: 1601 руб.
Подробнее
2ПР 5-14-51-14 (Б1.038.1-1)
Перемычки плитные Серия Б1.038.1-1
  • Длина 1420 мм.
  • Ширина 510 мм.
  • Высота 140 мм.
  • Вес 253 кг.
  • Объем бетона 0,16 м3
  • Геометрический объем 0,1014 м3
Цена: 3414 руб.
Подробнее
2ПР 4-11-51-6 (Б1.038.1-1)
Перемычки плитные Серия Б1.038.1-1
  • Длина 1160 мм.
  • Ширина 510 мм.
  • Высота 65 мм.
  • Вес 95 кг.
  • Объем бетона 0,038 м3
  • Геометрический объем 0,0385 м3
Цена: 811 руб.
Подробнее
2ПР 5-16-38-14 (Б1.038.1-1)
Перемычки плитные Серия Б1.038.1-1
  • Длина 1680 мм.
  • Ширина 380 мм.
  • Высота 140 мм.
  • Вес 223 кг.
  • Объем бетона 0,089 м3
  • Геометрический объем 0,0894 м3
Цена: 1899 руб.
Подробнее
2ПР 5-18-38-14 (Б1.038.1-1)
Перемычки плитные Серия Б1.038.1-1
  • Длина 1810 мм.
  • Ширина 380 мм.
  • Высота 140 мм.
  • Вес 241 кг.
  • Объем бетона 0,096 м3
  • Геометрический объем 0,0963 м3
Цена: 2049 руб.
Подробнее
2ПР 6-16-51-14 (Б1.038.1-1)
Перемычки плитные Серия Б1.038.1-1
  • Длина 1680 мм.
  • Ширина 510 мм.
  • Высота 140 мм.
  • Вес 300 кг.
  • Объем бетона 0,12 м3
  • Геометрический объем 0,12 м3
Цена: 2561 руб.
Подробнее
2ПР 6-20-38-14 (Б1.038.1-1)
Перемычки плитные Серия Б1.038.1-1
  • Длина 2070 мм.
  • Ширина 380 мм.
  • Высота 140 мм.
  • Вес 275 кг.
  • Объем бетона 0,11 м3
  • Геометрический объем 0,1101 м3
Цена: 2347 руб.
Подробнее
2ПР 72-14-38-22 у (Б1.038.1-1)
Перемычки плитные Серия Б1.038.1-1
  • Длина 1420 мм.
  • Ширина 380 мм.
  • Высота 220 мм.
  • Вес 297 кг.
  • Объем бетона 0,119 м3
  • Геометрический объем 0,1187 м3
Цена: 2539 руб.
Подробнее
2ПР 7-18-51-14 (Б1.038.1-1)
Перемычки плитные Серия Б1.038.1-1
  • Длина 1810 мм.
  • Ширина 510 мм.
  • Высота 140 мм.
  • Вес 322 кг.
  • Объем бетона 0,129 м3
  • Геометрический объем 0,1292 м3
Цена: 2753 руб.
Подробнее
2ПР 7-23-38-14 (Б1.038.1-1)
Перемычки плитные Серия Б1.038.1-1
  • Длина 2330 мм.
  • Ширина 380 мм.
  • Высота 140 мм.
  • Вес 310 кг.
  • Объем бетона 0,12 м3
  • Геометрический объем 0,124 м3
Цена: 2561 руб.
Подробнее
2ПР 72-15-38-22 у (Б1.038.1-1)
Перемычки плитные Серия Б1.038.1-1
  • Длина 1150 мм.
  • Ширина 380 мм.
  • Высота 220 мм.
  • Вес 325 кг.
  • Объем бетона 0,13 м3
  • Геометрический объем 0,0961 м3
Цена: 2774 руб.
Подробнее
2ПР 72-18-38-22 у (Б1.038.1-1)
Перемычки плитные Серия Б1.038.1-1
  • Длина 1810 мм.
  • Ширина 380 мм.
  • Высота 220 мм.
  • Вес 378 кг.
  • Объем бетона 0,151 м3
  • Геометрический объем 0,1513 м3
Цена: 3222 руб.
Подробнее
2ПР 72-20-38-22 у (Б1.038.1-1)
Перемычки плитные Серия Б1.038.1-1
  • Длина 2070 мм.
  • Ширина 380 мм.
  • Высота 220 мм.
  • Вес 430 кг.
  • Объем бетона 0,173 м3
  • Геометрический объем 0,1731 м3
Цена: 3692 руб.
Подробнее
2ПР 73-14-51-22 у (Б1.038.1-1)
Перемычки плитные Серия Б1.038.1-1
  • Длина 1420 мм.
  • Ширина 510 мм.
  • Высота 220 мм.
  • Вес 395 кг.
  • Объем бетона 0,16 м3
  • Геометрический объем 0,1593 м3
Цена: 3414 руб.
Подробнее
2ПР 73-15-51-22 у (Б1.038.1-1)
Перемычки плитные Серия Б1.038.1-1
  • Длина 1550 мм.
  • Ширина 510 мм.
  • Высота 220 мм.
  • Вес 433 кг.
  • Объем бетона 0,17 м3
  • Геометрический объем 0,1739 м3
Цена: 3628 руб.
Подробнее
2ПР 73-18-51-22 у (Б1.038.1-1)
Перемычки плитные Серия Б1.038.1-1
  • Длина 1810 мм.
  • Ширина 510 мм.
  • Высота 220 мм.
  • Вес 505 кг.
  • Объем бетона 0,22 м3
  • Геометрический объем 0,2031 м3
Цена: 4695 руб.
Подробнее
2ПР 72-27-38-22 у (Б1.038.1-1)
Перемычки плитные Серия Б1.038.1-1
  • Длина 2720 мм.
  • Ширина 380 мм.
  • Высота 220 мм.
  • Вес 568 кг.
  • Объем бетона 0,227 м3
  • Геометрический объем 0,2274 м3
Цена: 4844 руб.
Подробнее
2ПР 73-20-51-22 у (Б1.038.1-1)
Перемычки плитные Серия Б1.038.1-1
  • Длина 2070 мм.
  • Ширина 510 мм.
  • Высота 220 мм.
  • Вес 580 кг.
  • Объем бетона 0,23 м3
  • Геометрический объем 0,2323 м3
Цена: 4908 руб.
Подробнее
2ПР 73-27-51-22 у (Б1.038.1-1)
Перемычки плитные Серия Б1.038.1-1
  • Длина 2720 мм.
  • Ширина 510 мм.
  • Высота 220 мм.
  • Вес 760 кг.
  • Объем бетона 0,3 м3
  • Геометрический объем 0,3052 м3
Цена: 6402 руб.
Подробнее
2ПР 8-20-51-14 (Б1.038.1-1)
Перемычки плитные Серия Б1.038.1-1
  • Длина 2070 мм.
  • Ширина 510 мм.
  • Высота 140 мм.
  • Вес 370 кг.
  • Объем бетона 0,15 м3
  • Геометрический объем 0,1478 м3
Цена: 3201 руб.
Подробнее
2ПР 8-24-38-14 (Б1.038.1-1)
Перемычки плитные Серия Б1.038.1-1
  • Длина 2460 мм.
  • Ширина 380 мм.
  • Высота 140 мм.
  • Вес 327 кг.
  • Объем бетона 0,13 м3
  • Геометрический объем 0,1309 м3
Цена: 2774 руб.
Подробнее

Уведомление о файлах cookie

Мы используем файлы cookie для улучшения вашего опыта просмотра и анализа трафика. Нажимая "Принять все", вы соглашаетесь с нашей политикой конфиденциальности и политикой обработки файлов cookie.

MAX Дзен Телеграм Вконтакте vk