mobile_sound +7 (930) 655-55-90

Железобетонные опоры линий электропередачи. Рабочие чертежи (Серия 3.900.1-10)

Поделиться:
Поделиться:

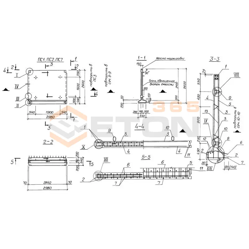
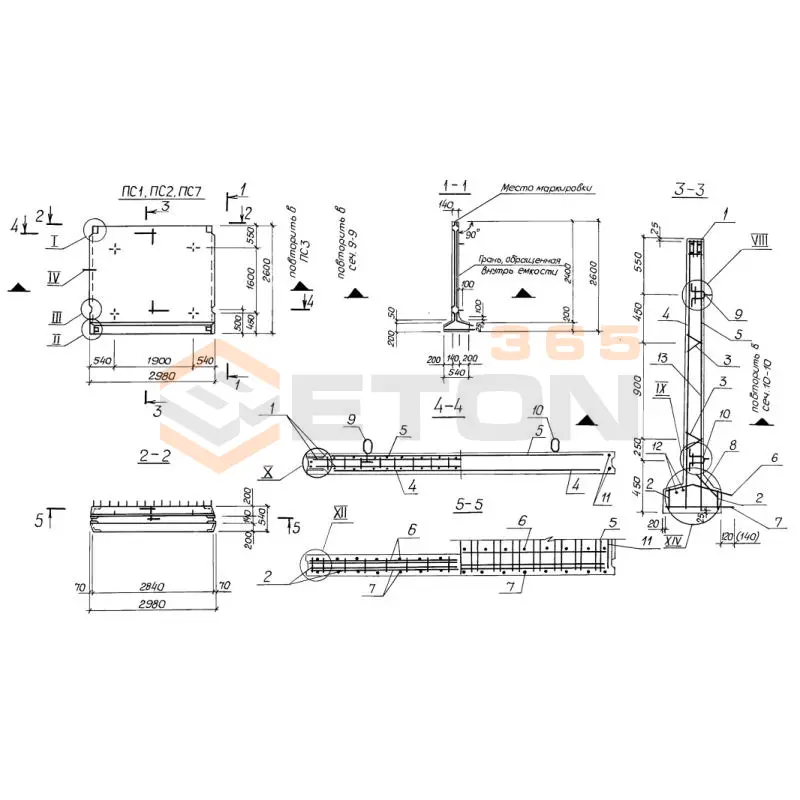
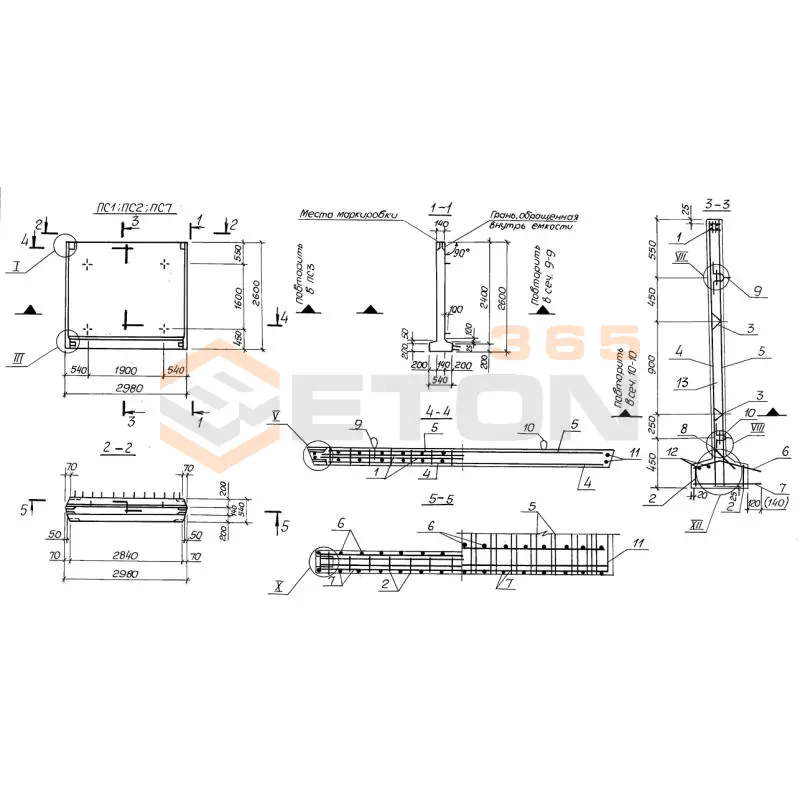
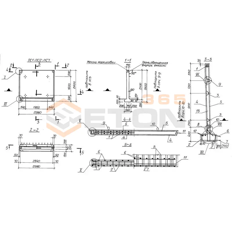
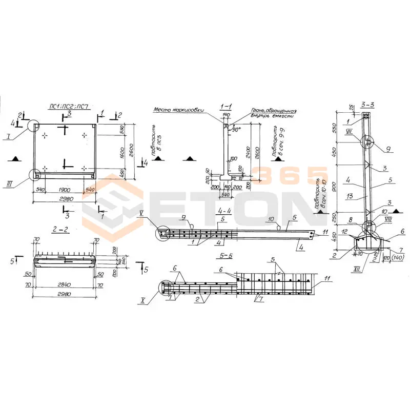
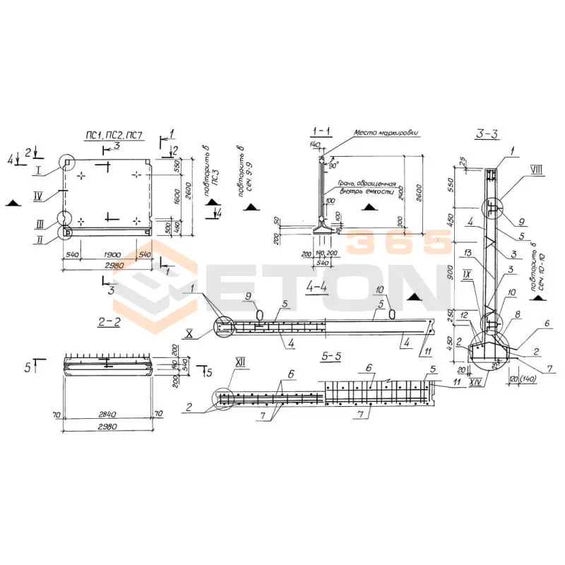
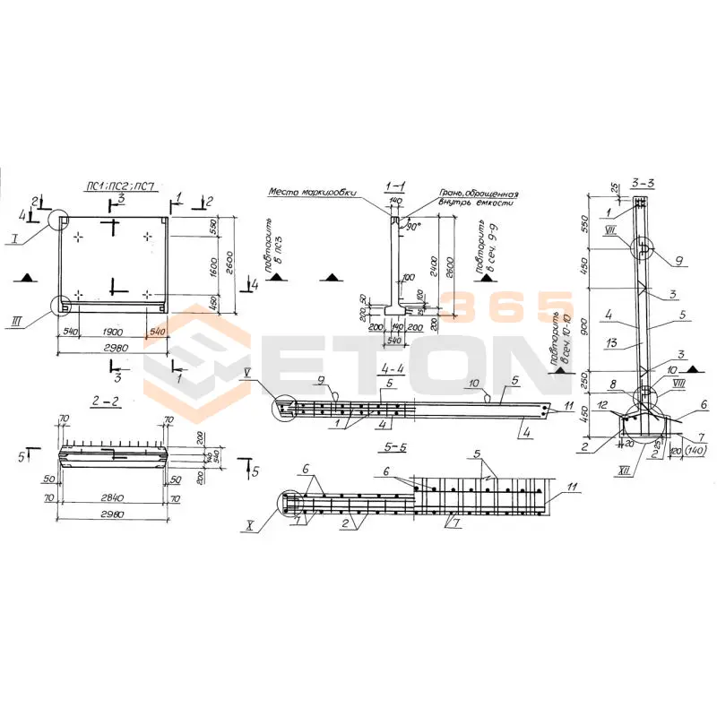
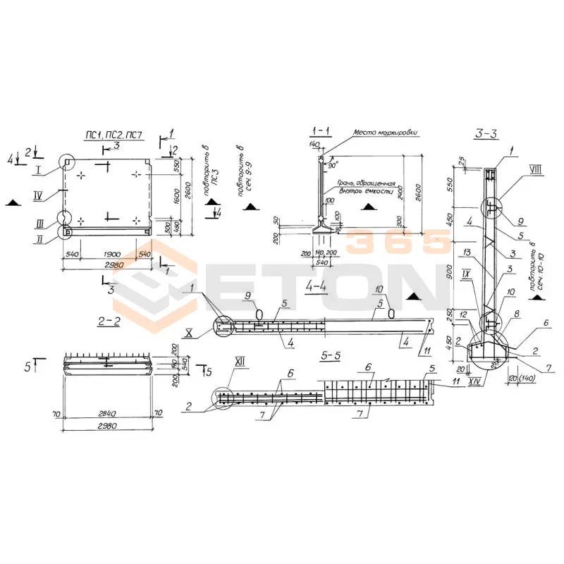
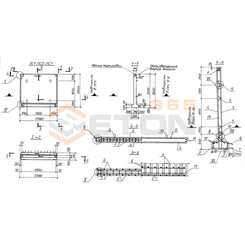
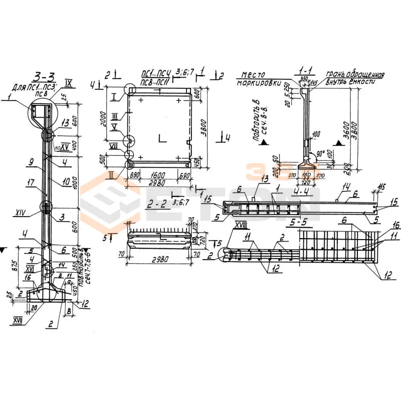
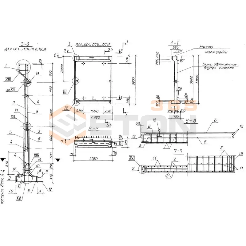
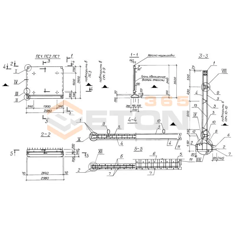
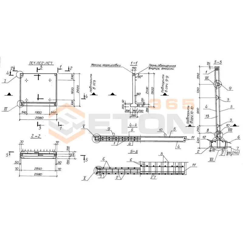
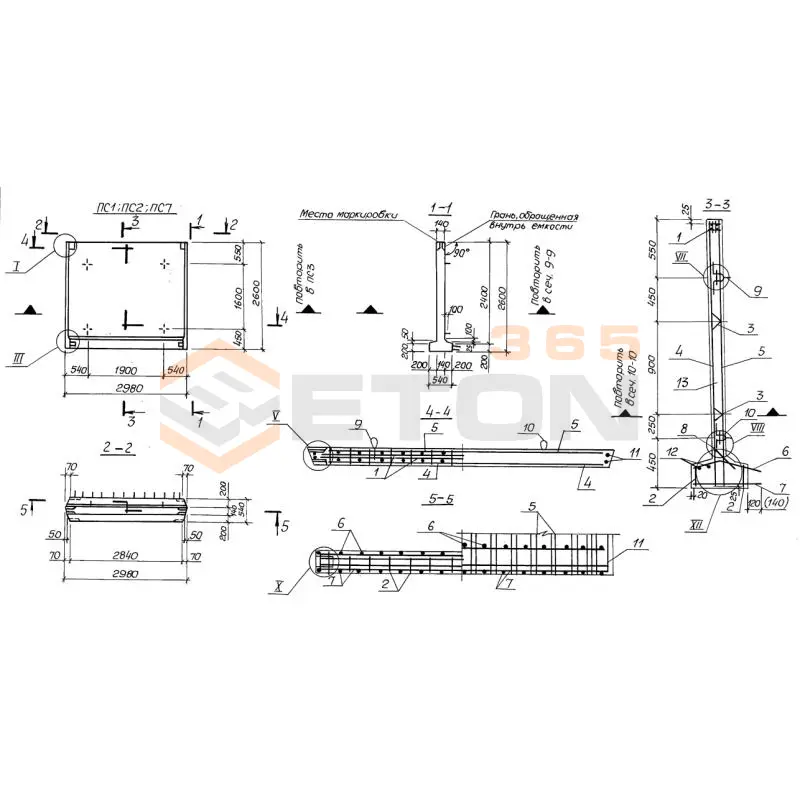
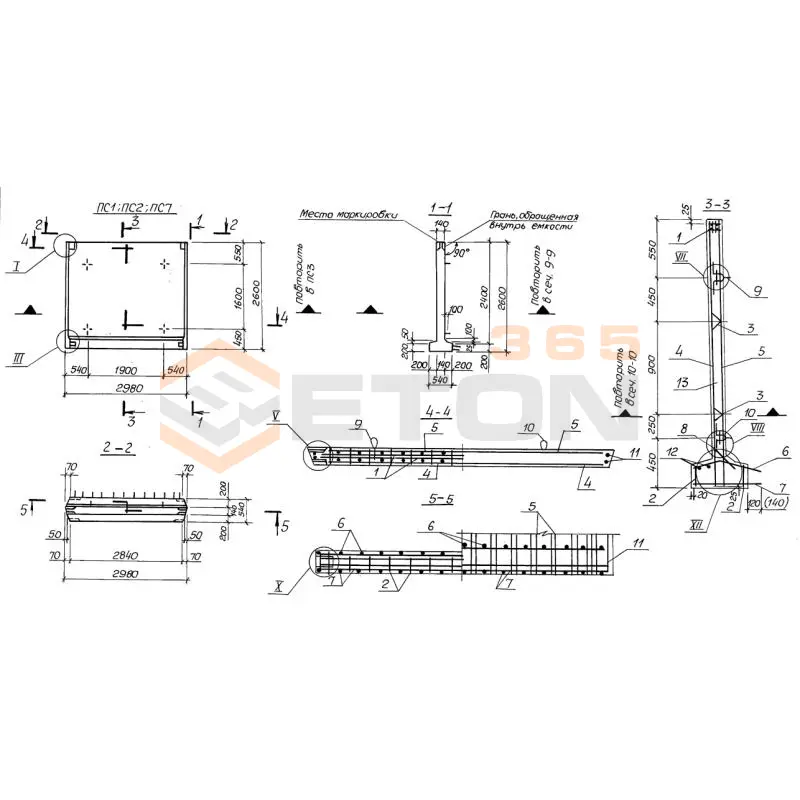
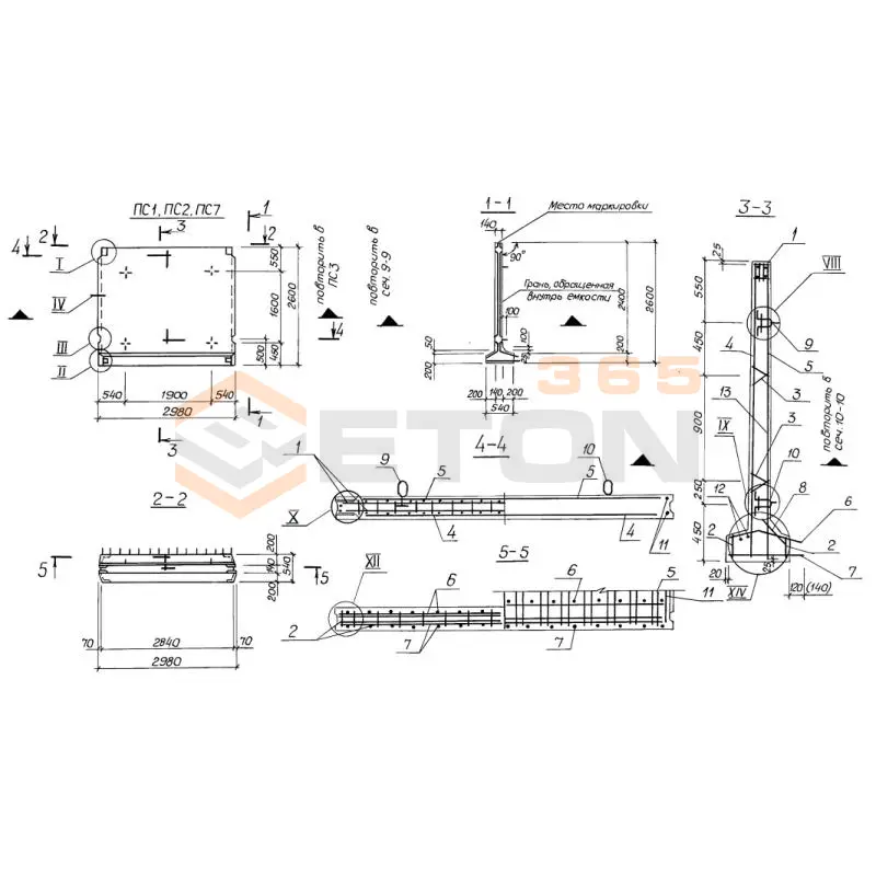
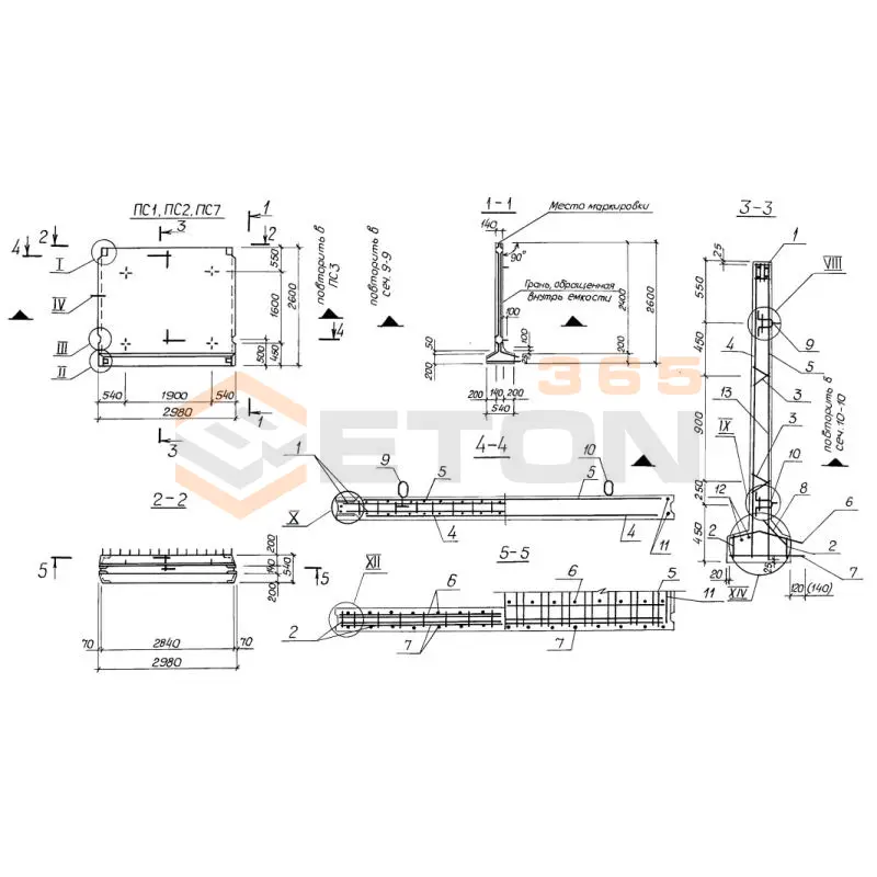
Документ Серия 3.900.1-10 описывает область применения, номенклатуру и ключевые требования, опираясь на действующие нормы и практику проектирования. В двадцати двух частях Серии 3.900.1-10 детально изложены особенности проектирования и производства конструкций из железобетона, предназначенных под строительство емкостных сооружений, используемых под водоснабжение и канализацию, насосные станции и другие объекты. В номенклатурном перечне можно встретить железобетонные стеновые панели различных геометрических пропорций и областей применения, а также плиты покрытий, колонны и фундаменты. Для всех типов конструкций приведены спецификации с материалоемкостью, а также расчеты несущих способностей.

Файлы для скачивания:
picture_as_pdf

2111.pdf

1,977.5 KB

скачать
picture_as_pdf

2112.pdf

27,978.8 KB

скачать
picture_as_pdf

2113.pdf

24,450.2 KB

скачать
picture_as_pdf

2114.pdf

7,472.6 KB

скачать
picture_as_pdf

2115.pdf

5,026.3 KB

скачать
picture_as_pdf

2116.pdf

23,810.1 KB

скачать
picture_as_pdf

2117.pdf

6,636.9 KB

скачать
picture_as_pdf

2118.pdf

2,064.3 KB

скачать
picture_as_pdf

2119.pdf

9,238.0 KB

скачать
picture_as_pdf

2128.pdf

3,718.1 KB

скачать
picture_as_pdf

2120.pdf

5,996.4 KB

скачать
picture_as_pdf

2121.pdf

16,515.5 KB

скачать
picture_as_pdf

2122.pdf

6,246.9 KB

скачать
picture_as_pdf

2123.pdf

16,634.0 KB

скачать
picture_as_pdf

2124.pdf

8,076.8 KB

скачать
picture_as_pdf

2125.pdf

16,037.4 KB

скачать
picture_as_pdf

2126.pdf

8,642.6 KB

скачать
picture_as_pdf

2127.pdf

4,121.0 KB

скачать
picture_as_pdf

2129.pdf

10,324.0 KB

скачать
picture_as_pdf

2130.pdf

2,955.0 KB

скачать
picture_as_pdf

2131.pdf

13,742.1 KB

скачать
picture_as_pdf

2132.pdf

3,481.2 KB

скачать
Товары Серия 3.900.1-10 (60)
ПСП 24 к1 к
Панели стеновые Серия 3.900.1-10
  • Длина 2980 мм.
  • Ширина 2600 мм.
  • Высота 540 мм.
  • Вес 3350 кг.
  • Объем бетона 1,34 м3
  • Геометрический объем 4,1839 м3
Цена: 45493 руб.
Подробнее
ПСП 24 к11 к1
Панели стеновые Серия 3.900.1-10
  • Длина 2980 мм.
  • Ширина 2600 мм.
  • Высота 540 мм.
  • Вес 3350 кг.
  • Объем бетона 1,34 м3
  • Геометрический объем 4,1839 м3
Цена: 45493 руб.
Подробнее
ПСП 24 к1 ш1
Панели стеновые Серия 3.900.1-10
  • Длина 2980 мм.
  • Ширина 2600 мм.
  • Высота 540 мм.
  • Вес 3380 кг.
  • Объем бетона 1,35 м3
  • Геометрический объем 4,1839 м3
Цена: 45833 руб.
Подробнее
ПСП 24 к11 к
Панели стеновые Серия 3.900.1-10
  • Длина 2980 мм.
  • Ширина 2600 мм.
  • Высота 540 мм.
  • Вес 3350 кг.
  • Объем бетона 1,34 м3
  • Геометрический объем 4,1839 м3
Цена: 45493 руб.
Подробнее
ПСП 24 к1 к1
Панели стеновые Серия 3.900.1-10
  • Длина 2980 мм.
  • Ширина 2600 мм.
  • Высота 540 мм.
  • Вес 3350 кг.
  • Объем бетона 1,34 м3
  • Геометрический объем 4,1839 м3
Цена: 45493 руб.
Подробнее
ПСП 24 к11 ш
Панели стеновые Серия 3.900.1-10
  • Длина 2980 мм.
  • Ширина 2600 мм.
  • Высота 540 мм.
  • Вес 3380 кг.
  • Объем бетона 1,35 м3
  • Геометрический объем 4,1839 м3
Цена: 45833 руб.
Подробнее
ПСП 24 к12 ш
Панели стеновые Серия 3.900.1-10
  • Длина 2980 мм.
  • Ширина 2600 мм.
  • Высота 540 мм.
  • Вес 3380 кг.
  • Объем бетона 1,35 м3
  • Геометрический объем 4,1839 м3
Цена: 45833 руб.
Подробнее
ПСП 24 к12 к
Панели стеновые Серия 3.900.1-10
  • Длина 2980 мм.
  • Ширина 2600 мм.
  • Высота 540 мм.
  • Вес 3350 кг.
  • Объем бетона 1,34 м3
  • Геометрический объем 4,1839 м3
Цена: 45493 руб.
Подробнее
ПСП 24 к11 ш1
Панели стеновые Серия 3.900.1-10
  • Длина 2980 мм.
  • Ширина 2600 мм.
  • Высота 540 мм.
  • Вес 3380 кг.
  • Объем бетона 1,35 м3
  • Геометрический объем 4,1839 м3
Цена: 45833 руб.
Подробнее
ПСП 24 к2 к
Панели стеновые Серия 3.900.1-10
  • Длина 2980 мм.
  • Ширина 2600 мм.
  • Высота 540 мм.
  • Вес 3350 кг.
  • Объем бетона 1,34 м3
  • Геометрический объем 4,1839 м3
Цена: 45493 руб.
Подробнее
ПСП 24 к15 ш
Панели стеновые Серия 3.900.1-10
  • Длина 2980 мм.
  • Ширина 2600 мм.
  • Высота 540 мм.
  • Вес 3380 кг.
  • Объем бетона 1,35 м3
  • Геометрический объем 4,1839 м3
Цена: 45833 руб.
Подробнее
ПСП 24 к15 к
Панели стеновые Серия 3.900.1-10
  • Длина 2980 мм.
  • Ширина 2600 мм.
  • Высота 540 мм.
  • Вес 3350 кг.
  • Объем бетона 1,34 м3
  • Геометрический объем 4,1839 м3
Цена: 45493 руб.
Подробнее
ПСП 24 к2 ш
Панели стеновые Серия 3.900.1-10
  • Длина 2980 мм.
  • Ширина 2600 мм.
  • Высота 540 мм.
  • Вес 3380 кг.
  • Объем бетона 1,35 м3
  • Геометрический объем 4,1839 м3
Цена: 45833 руб.
Подробнее
ПСП 24-б1 к
Панели стеновые Серия 3.900.1-10
  • Длина 2980 мм.
  • Ширина 2600 мм.
  • Высота 540 мм.
  • Вес 3500 кг.
  • Объем бетона 1,38 м3
  • Геометрический объем 4,1839 м3
Цена: 46851 руб.
Подробнее
ПСП 24 к5 к
Панели стеновые Серия 3.900.1-10
  • Длина 2980 мм.
  • Ширина 2600 мм.
  • Высота 540 мм.
  • Вес 3350 кг.
  • Объем бетона 1,34 м3
  • Геометрический объем 4,1839 м3
Цена: 45493 руб.
Подробнее
ПСП 24-б2 к1
Панели стеновые Серия 3.900.1-10
  • Длина 2980 мм.
  • Ширина 2600 мм.
  • Высота 540 мм.
  • Вес 3500 кг.
  • Объем бетона 1,38 м3
  • Геометрический объем 4,1839 м3
Цена: 46851 руб.
Подробнее
ПСП 24 к5 ш
Панели стеновые Серия 3.900.1-10
  • Длина 2980 мм.
  • Ширина 2600 мм.
  • Высота 540 мм.
  • Вес 3380 кг.
  • Объем бетона 1,35 м3
  • Геометрический объем 4,1839 м3
Цена: 45833 руб.
Подробнее
ПСП 24-б2 к
Панели стеновые Серия 3.900.1-10
  • Длина 2980 мм.
  • Ширина 2600 мм.
  • Высота 540 мм.
  • Вес 3500 кг.
  • Объем бетона 1,38 м3
  • Геометрический объем 4,1839 м3
Цена: 46851 руб.
Подробнее
ПСП 24-б5 к
Панели стеновые Серия 3.900.1-10
  • Длина 2980 мм.
  • Ширина 2600 мм.
  • Высота 540 мм.
  • Вес 3500 кг.
  • Объем бетона 1,38 м3
  • Геометрический объем 4,1839 м3
Цена: 46851 руб.
Подробнее
ПСП 30 б1 ш
Панели стеновые Серия 3.900.1-10
  • Длина 2980 мм.
  • Ширина 3200 мм.
  • Высота 720 мм.
  • Вес 5030 кг.
  • Объем бетона 2,01 м3
  • Геометрический объем 6,8659 м3
Цена: 68240 руб.
Подробнее
ПСП 30 б2 ш
Панели стеновые Серия 3.900.1-10
  • Длина 2980 мм.
  • Ширина 3200 мм.
  • Высота 720 мм.
  • Вес 5030 кг.
  • Объем бетона 2,01 м3
  • Геометрический объем 6,8659 м3
Цена: 68240 руб.
Подробнее
ПСП 30 б2 ш1
Панели стеновые Серия 3.900.1-10
  • Длина 2980 мм.
  • Ширина 3200 мм.
  • Высота 720 мм.
  • Вес 5030 кг.
  • Объем бетона 2,01 м3
  • Геометрический объем 6,8659 м3
Цена: 68240 руб.
Подробнее
ПСП 30 к1 к
Панели стеновые Серия 3.900.1-10
  • Длина 2980 мм.
  • Ширина 3200 мм.
  • Высота 720 мм.
  • Вес 4750 кг.
  • Объем бетона 1,9 м3
  • Геометрический объем 6,8659 м3
Цена: 64505 руб.
Подробнее
ПСП 30 б5 ш
Панели стеновые Серия 3.900.1-10
  • Длина 2980 мм.
  • Ширина 3200 мм.
  • Высота 720 мм.
  • Вес 5030 кг.
  • Объем бетона 2,01 м3
  • Геометрический объем 6,8659 м3
Цена: 68240 руб.
Подробнее
ПСП 30 к1 ш
Панели стеновые Серия 3.900.1-10
  • Длина 2980 мм.
  • Ширина 3200 мм.
  • Высота 720 мм.
  • Вес 4780 кг.
  • Объем бетона 1,91 м3
  • Геометрический объем 6,8659 м3
Цена: 64845 руб.
Подробнее
ПСП 30 к1 к1
Панели стеновые Серия 3.900.1-10
  • Длина 2980 мм.
  • Ширина 3200 мм.
  • Высота 720 мм.
  • Вес 4750 кг.
  • Объем бетона 1,9 м3
  • Геометрический объем 6,8659 м3
Цена: 64505 руб.
Подробнее
ПСП 30 к11 к
Панели стеновые Серия 3.900.1-10
  • Длина 2980 мм.
  • Ширина 3200 мм.
  • Высота 720 мм.
  • Вес 5000 кг.
  • Объем бетона 1,99 м3
  • Геометрический объем 6,8659 м3
Цена: 67561 руб.
Подробнее
ПСП 30 к1 ш1
Панели стеновые Серия 3.900.1-10
  • Длина 2980 мм.
  • Ширина 3200 мм.
  • Высота 720 мм.
  • Вес 4780 кг.
  • Объем бетона 1,91 м3
  • Геометрический объем 6,8659 м3
Цена: 64845 руб.
Подробнее
ПСП 30 к12 к
Панели стеновые Серия 3.900.1-10
  • Длина 2980 мм.
  • Ширина 3200 мм.
  • Высота 720 мм.
  • Вес 4750 кг.
  • Объем бетона 1,9 м3
  • Геометрический объем 6,8659 м3
Цена: 64505 руб.
Подробнее
ПСП 30 к11 ш
Панели стеновые Серия 3.900.1-10
  • Длина 2980 мм.
  • Ширина 3200 мм.
  • Высота 720 мм.
  • Вес 4780 кг.
  • Объем бетона 1,91 м3
  • Геометрический объем 6,8659 м3
Цена: 64845 руб.
Подробнее
ПСП 30 к11 к1
Панели стеновые Серия 3.900.1-10
  • Длина 2980 мм.
  • Ширина 3200 мм.
  • Высота 720 мм.
  • Вес 4750 кг.
  • Объем бетона 1,9 м3
  • Геометрический объем 6,8659 м3
Цена: 64505 руб.
Подробнее
ПСП 30 к12 ш
Панели стеновые Серия 3.900.1-10
  • Длина 2980 мм.
  • Ширина 3200 мм.
  • Высота 720 мм.
  • Вес 4780 кг.
  • Объем бетона 1,91 м3
  • Геометрический объем 6,8659 м3
Цена: 64845 руб.
Подробнее
ПСП 30 к11 ш1
Панели стеновые Серия 3.900.1-10
  • Длина 2980 мм.
  • Ширина 3200 мм.
  • Высота 720 мм.
  • Вес 4780 кг.
  • Объем бетона 1,91 м3
  • Геометрический объем 6,8659 м3
Цена: 64845 руб.
Подробнее
ПСП 30 к13 к
Панели стеновые Серия 3.900.1-10
  • Длина 2980 мм.
  • Ширина 3200 мм.
  • Высота 720 мм.
  • Вес 4750 кг.
  • Объем бетона 1,9 м3
  • Геометрический объем 6,8659 м3
Цена: 64505 руб.
Подробнее
ПСП 30 к13 ш
Панели стеновые Серия 3.900.1-10
  • Длина 2980 мм.
  • Ширина 3200 мм.
  • Высота 720 мм.
  • Вес 4780 кг.
  • Объем бетона 1,91 м3
  • Геометрический объем 6,8659 м3
Цена: 64845 руб.
Подробнее
ПСП 30 к13 к1
Панели стеновые Серия 3.900.1-10
  • Длина 2980 мм.
  • Ширина 3200 мм.
  • Высота 720 мм.
  • Вес 4750 кг.
  • Объем бетона 1,9 м3
  • Геометрический объем 6,8659 м3
Цена: 64505 руб.
Подробнее
ПСП 30 к13 ш1
Панели стеновые Серия 3.900.1-10
  • Длина 2980 мм.
  • Ширина 3200 мм.
  • Высота 720 мм.
  • Вес 4780 кг.
  • Объем бетона 1,91 м3
  • Геометрический объем 6,8659 м3
Цена: 64845 руб.
Подробнее
ПСП 30 к15 к
Панели стеновые Серия 3.900.1-10
  • Длина 2980 мм.
  • Ширина 3200 мм.
  • Высота 720 мм.
  • Вес 4750 кг.
  • Объем бетона 1,9 м3
  • Геометрический объем 6,8659 м3
Цена: 64505 руб.
Подробнее
ПСП 30 к14 ш
Панели стеновые Серия 3.900.1-10
  • Длина 2980 мм.
  • Ширина 3200 мм.
  • Высота 720 мм.
  • Вес 4780 кг.
  • Объем бетона 1,91 м3
  • Геометрический объем 6,8659 м3
Цена: 64845 руб.
Подробнее
ПСП 30 к14 к
Панели стеновые Серия 3.900.1-10
  • Длина 2980 мм.
  • Ширина 3200 мм.
  • Высота 720 мм.
  • Вес 4750 кг.
  • Объем бетона 1,9 м3
  • Геометрический объем 6,8659 м3
Цена: 64505 руб.
Подробнее
ПСП 30 к2 к
Панели стеновые Серия 3.900.1-10
  • Длина 2980 мм.
  • Ширина 3200 мм.
  • Высота 720 мм.
  • Вес 4750 кг.
  • Объем бетона 1,9 м3
  • Геометрический объем 6,8659 м3
Цена: 64505 руб.
Подробнее
ПСП 30 к15 ш
Панели стеновые Серия 3.900.1-10
  • Длина 2980 мм.
  • Ширина 3200 мм.
  • Высота 720 мм.
  • Вес 4780 кг.
  • Объем бетона 1,91 м3
  • Геометрический объем 6,8659 м3
Цена: 64845 руб.
Подробнее
ПСП 30 к2 ш
Панели стеновые Серия 3.900.1-10
  • Длина 2980 мм.
  • Ширина 3200 мм.
  • Высота 720 мм.
  • Вес 4780 кг.
  • Объем бетона 1,91 м3
  • Геометрический объем 6,8659 м3
Цена: 64845 руб.
Подробнее
ПСП 30 к3 ш1
Панели стеновые Серия 3.900.1-10
  • Длина 2980 мм.
  • Ширина 3200 мм.
  • Высота 720 мм.
  • Вес 5000 кг.
  • Объем бетона 1,99 м3
  • Геометрический объем 6,8659 м3
Цена: 67561 руб.
Подробнее
ПСП 30 к3 к
Панели стеновые Серия 3.900.1-10
  • Длина 2980 мм.
  • Ширина 3200 мм.
  • Высота 720 мм.
  • Вес 4750 кг.
  • Объем бетона 1,9 м3
  • Геометрический объем 6,8659 м3
Цена: 64505 руб.
Подробнее
ПСП 30 к3 к1
Панели стеновые Серия 3.900.1-10
  • Длина 2980 мм.
  • Ширина 3200 мм.
  • Высота 720 мм.
  • Вес 4750 кг.
  • Объем бетона 1,9 м3
  • Геометрический объем 6,8659 м3
Цена: 64505 руб.
Подробнее
ПСП 30 к3 ш
Панели стеновые Серия 3.900.1-10
  • Длина 2980 мм.
  • Ширина 3200 мм.
  • Высота 720 мм.
  • Вес 4780 кг.
  • Объем бетона 1,91 м3
  • Геометрический объем 6,8659 м3
Цена: 64845 руб.
Подробнее
ПСП 30 к4 к
Панели стеновые Серия 3.900.1-10
  • Длина 2980 мм.
  • Ширина 3200 мм.
  • Высота 720 мм.
  • Вес 4750 кг.
  • Объем бетона 1,9 м3
  • Геометрический объем 6,8659 м3
Цена: 64505 руб.
Подробнее
ПСП 30 к5 ш
Панели стеновые Серия 3.900.1-10
  • Длина 2980 мм.
  • Ширина 3200 мм.
  • Высота 720 мм.
  • Вес 4780 кг.
  • Объем бетона 1,91 м3
  • Геометрический объем 6,8659 м3
Цена: 64845 руб.
Подробнее
ПСП 30 к4 ш
Панели стеновые Серия 3.900.1-10
  • Длина 2980 мм.
  • Ширина 3200 мм.
  • Высота 720 мм.
  • Вес 4780 кг.
  • Объем бетона 1,91 м3
  • Геометрический объем 6,8659 м3
Цена: 64845 руб.
Подробнее
ПСП 30 к5 к
Панели стеновые Серия 3.900.1-10
  • Длина 2980 мм.
  • Ширина 3200 мм.
  • Высота 720 мм.
  • Вес 4750 кг.
  • Объем бетона 1,9 м3
  • Геометрический объем 6,8659 м3
Цена: 64505 руб.
Подробнее
ПСП 30-б2 к
Панели стеновые Серия 3.900.1-10
  • Длина 2980 мм.
  • Ширина 3200 мм.
  • Высота 720 мм.
  • Вес 5000 кг.
  • Объем бетона 1,99 м3
  • Геометрический объем 6,8659 м3
Цена: 67561 руб.
Подробнее
ПСП 30-б1 к
Панели стеновые Серия 3.900.1-10
  • Длина 2980 мм.
  • Ширина 3200 мм.
  • Высота 720 мм.
  • Вес 5000 кг.
  • Объем бетона 1,99 м3
  • Геометрический объем 6,8659 м3
Цена: 67561 руб.
Подробнее
ПСП 30-б2 к1
Панели стеновые Серия 3.900.1-10
  • Длина 2980 мм.
  • Ширина 3200 мм.
  • Высота 720 мм.
  • Вес 5000 кг.
  • Объем бетона 1,99 м3
  • Геометрический объем 6,8659 м3
Цена: 67561 руб.
Подробнее
ПСП 36 б3 к4
Панели стеновые Серия 3.900.1-10
  • Длина 2980 мм.
  • Ширина 3800 мм.
  • Высота 720 мм.
  • Вес 5400 кг.
  • Объем бетона 2,16 м3
  • Геометрический объем 8,1533 м3
Цена: 73332 руб.
Подробнее
ПСП 36 б1 ш
Панели стеновые Серия 3.900.1-10
  • Длина 2980 мм.
  • Ширина 3800 мм.
  • Высота 720 мм.
  • Вес 600 кг.
  • Объем бетона 2,39 м3
  • Геометрический объем 8,1533 м3
Цена: 81141 руб.
Подробнее
ПСП 36 б2 ш1
Панели стеновые Серия 3.900.1-10
  • Длина 2980 мм.
  • Ширина 3800 мм.
  • Высота 720 мм.
  • Вес 600 кг.
  • Объем бетона 2,39 м3
  • Геометрический объем 8,1533 м3
Цена: 81141 руб.
Подробнее
ПСП 36 б3 ш3
Панели стеновые Серия 3.900.1-10
  • Длина 2980 мм.
  • Ширина 3800 мм.
  • Высота 720 мм.
  • Вес 600 кг.
  • Объем бетона 2,39 м3
  • Геометрический объем 8,1533 м3
Цена: 81141 руб.
Подробнее
ПСП 30-б5 к
Панели стеновые Серия 3.900.1-10
  • Длина 2980 мм.
  • Ширина 3200 мм.
  • Высота 720 мм.
  • Вес 5000 кг.
  • Объем бетона 1,99 м3
  • Геометрический объем 6,8659 м3
Цена: 67561 руб.
Подробнее
ПСП 36 б3 ш
Панели стеновые Серия 3.900.1-10
  • Длина 2980 мм.
  • Ширина 3800 мм.
  • Высота 720 мм.
  • Вес 600 кг.
  • Объем бетона 2,39 м3
  • Геометрический объем 8,1533 м3
Цена: 81141 руб.
Подробнее

Уведомление о файлах cookie

Мы используем файлы cookie для улучшения вашего опыта просмотра и анализа трафика. Нажимая "Принять все", вы соглашаетесь с нашей политикой конфиденциальности и политикой обработки файлов cookie.

MAX Дзен Телеграм Вконтакте vk