mobile_sound +7 (930) 655-55-90

Железобетонные опоры линий электропередачи. Рабочие чертежи (Серия 3.900.1-10)

Поделиться:
Поделиться:

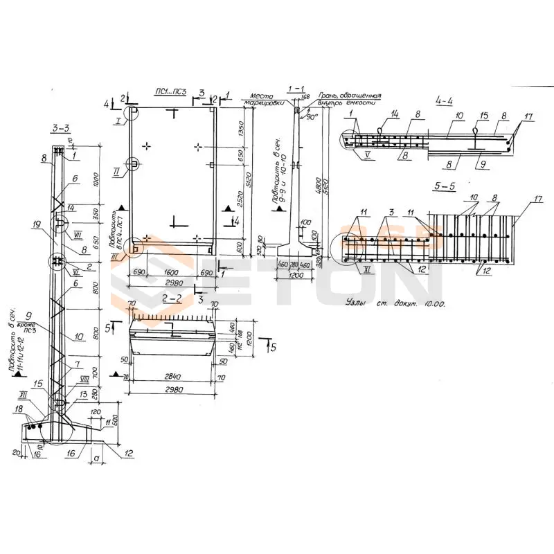
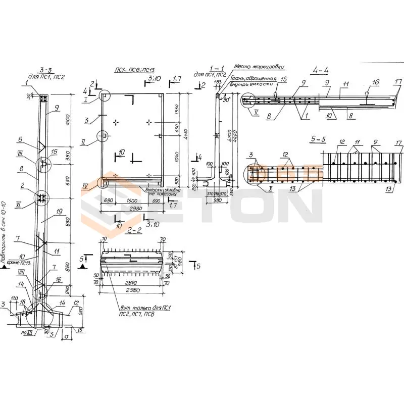
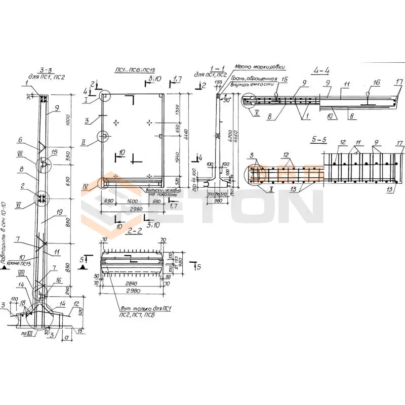
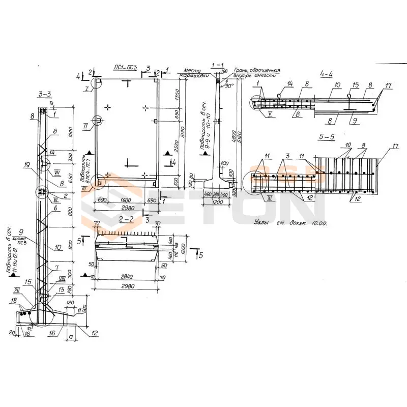
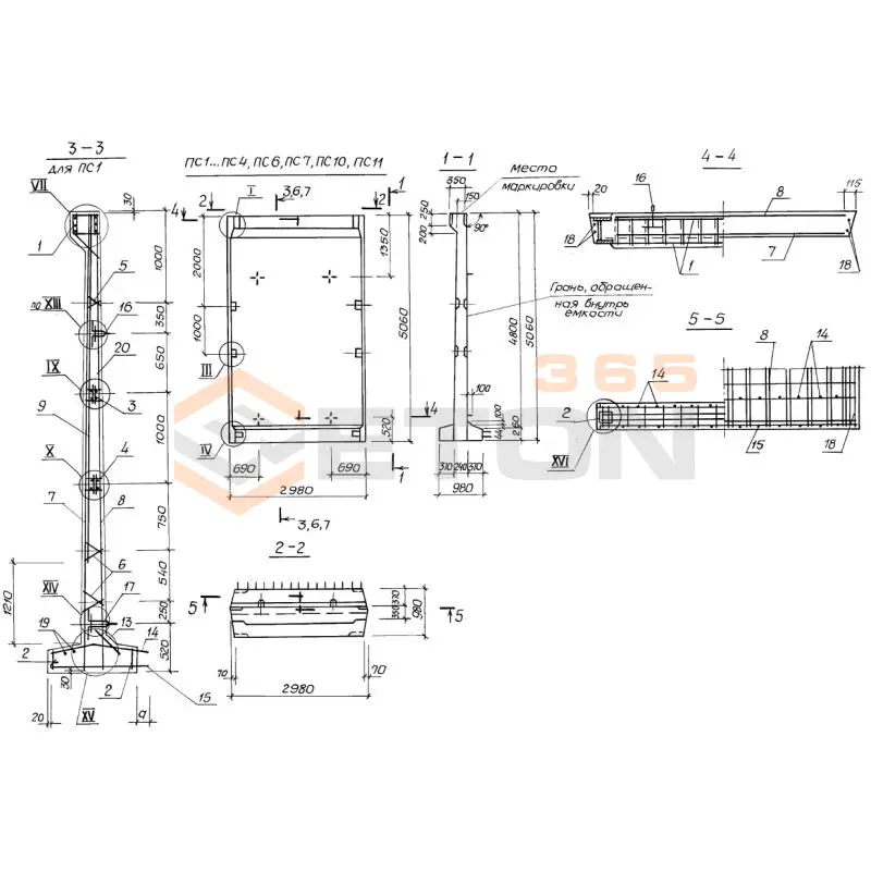
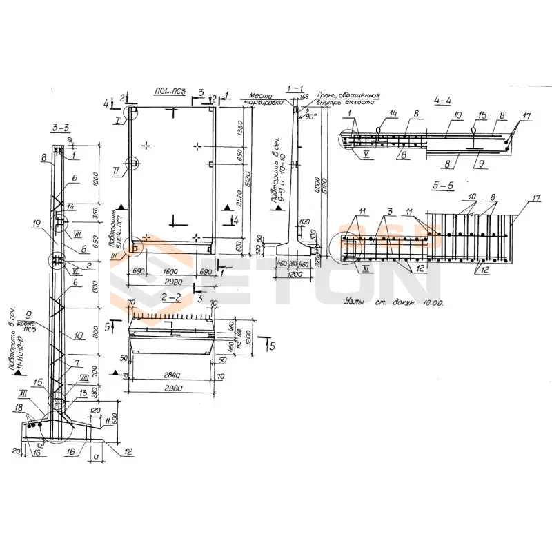
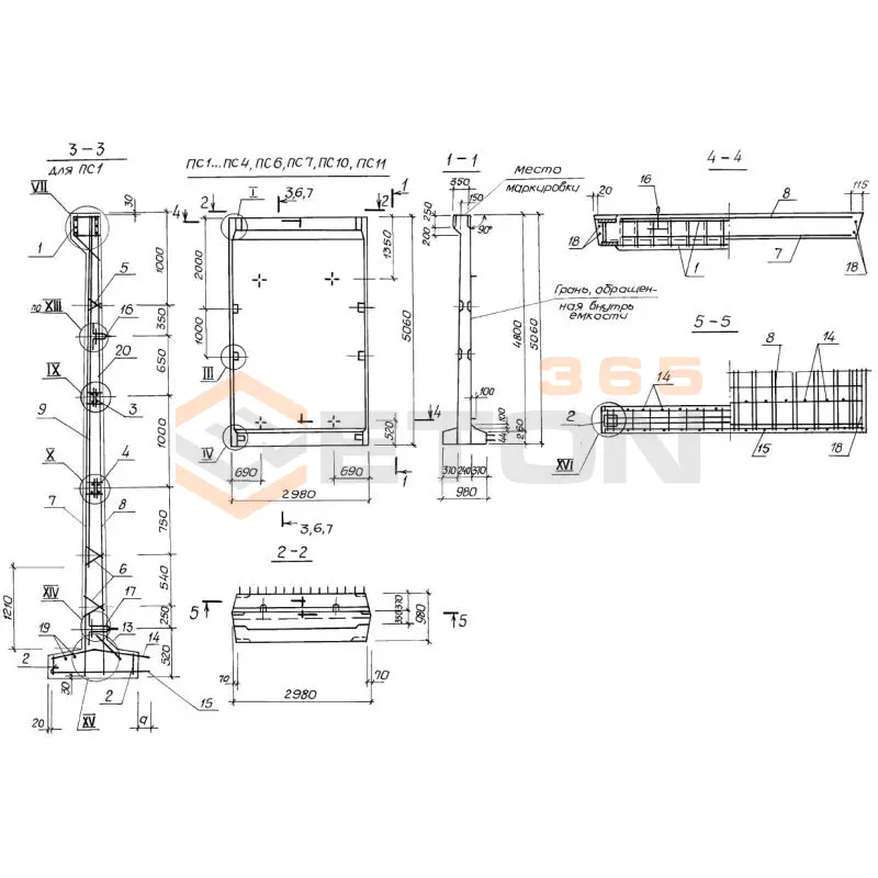
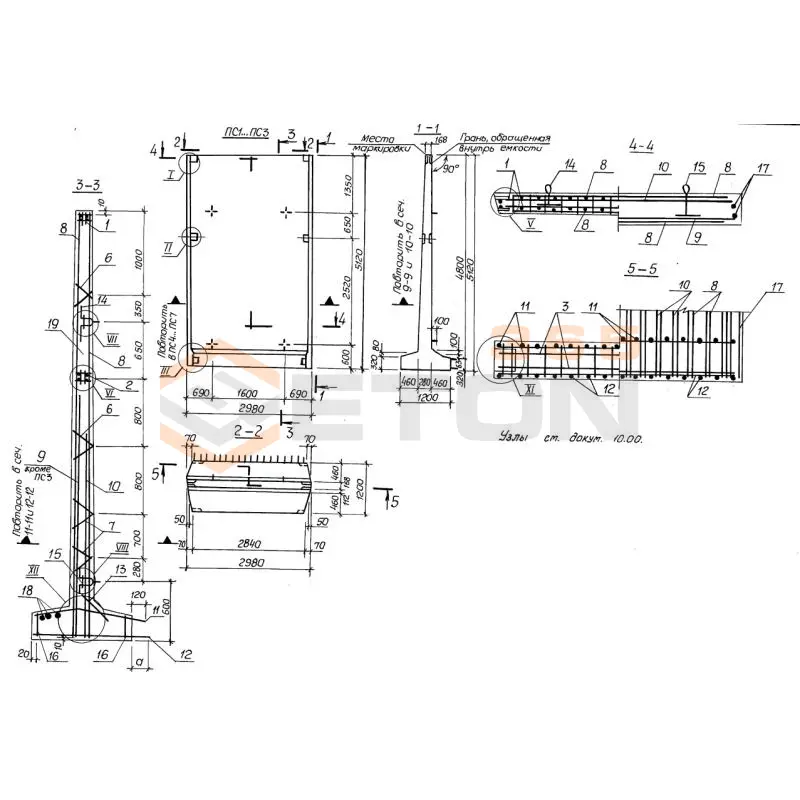
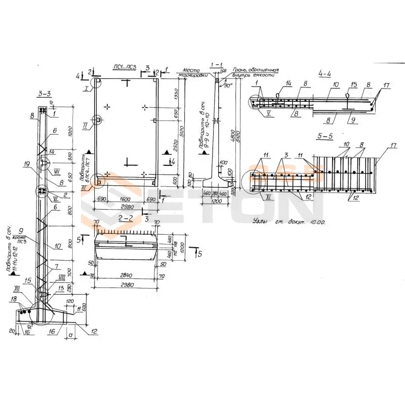
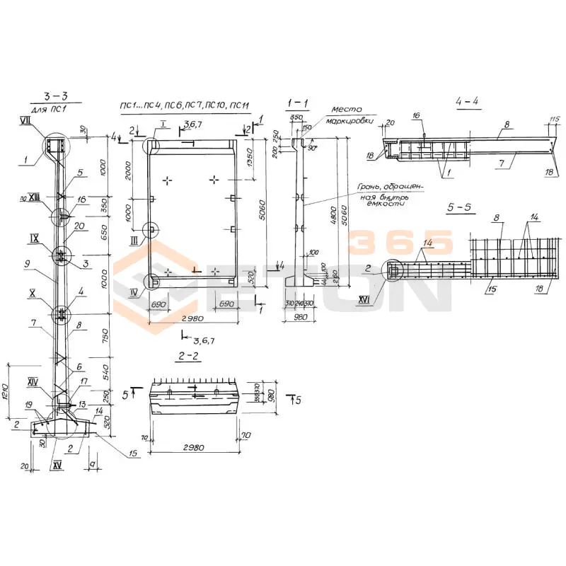
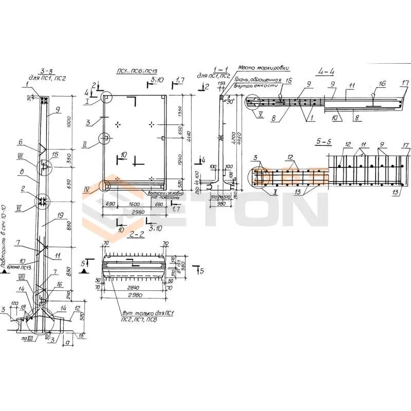
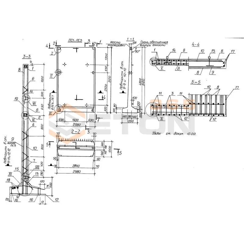
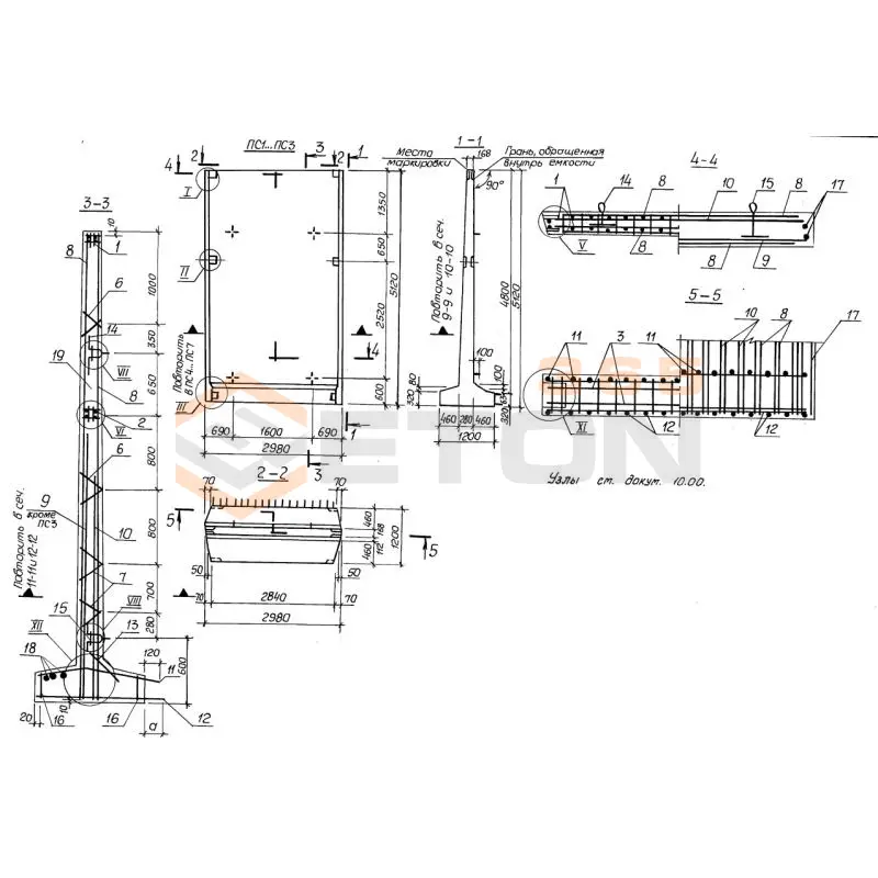
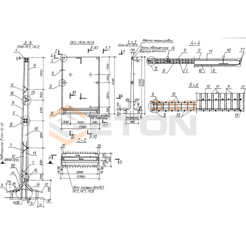
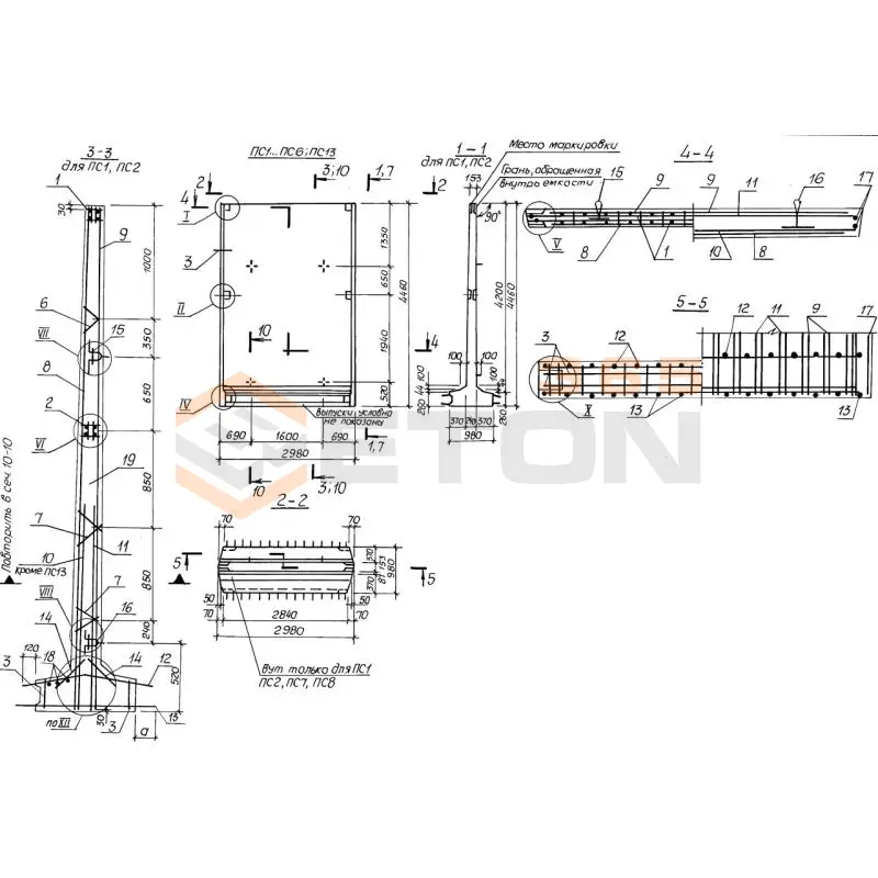
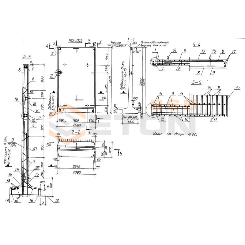
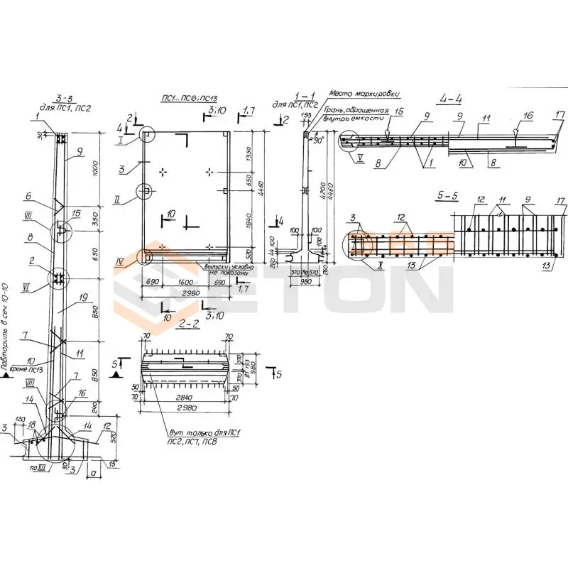
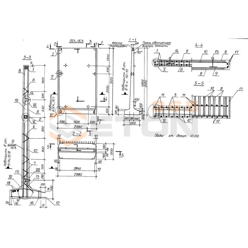
Документ Серия 3.900.1-10 описывает область применения, номенклатуру и ключевые требования, опираясь на действующие нормы и практику проектирования. В двадцати двух частях Серии 3.900.1-10 детально изложены особенности проектирования и производства конструкций из железобетона, предназначенных под строительство емкостных сооружений, используемых под водоснабжение и канализацию, насосные станции и другие объекты. В номенклатурном перечне можно встретить железобетонные стеновые панели различных геометрических пропорций и областей применения, а также плиты покрытий, колонны и фундаменты. Для всех типов конструкций приведены спецификации с материалоемкостью, а также расчеты несущих способностей.

Файлы для скачивания:
picture_as_pdf

2111.pdf

1,977.5 KB

скачать
picture_as_pdf

2112.pdf

27,978.8 KB

скачать
picture_as_pdf

2113.pdf

24,450.2 KB

скачать
picture_as_pdf

2114.pdf

7,472.6 KB

скачать
picture_as_pdf

2115.pdf

5,026.3 KB

скачать
picture_as_pdf

2116.pdf

23,810.1 KB

скачать
picture_as_pdf

2117.pdf

6,636.9 KB

скачать
picture_as_pdf

2118.pdf

2,064.3 KB

скачать
picture_as_pdf

2119.pdf

9,238.0 KB

скачать
picture_as_pdf

2128.pdf

3,718.1 KB

скачать
picture_as_pdf

2120.pdf

5,996.4 KB

скачать
picture_as_pdf

2121.pdf

16,515.5 KB

скачать
picture_as_pdf

2122.pdf

6,246.9 KB

скачать
picture_as_pdf

2123.pdf

16,634.0 KB

скачать
picture_as_pdf

2124.pdf

8,076.8 KB

скачать
picture_as_pdf

2125.pdf

16,037.4 KB

скачать
picture_as_pdf

2126.pdf

8,642.6 KB

скачать
picture_as_pdf

2127.pdf

4,121.0 KB

скачать
picture_as_pdf

2129.pdf

10,324.0 KB

скачать
picture_as_pdf

2130.pdf

2,955.0 KB

скачать
picture_as_pdf

2131.pdf

13,742.1 KB

скачать
picture_as_pdf

2132.pdf

3,481.2 KB

скачать
Товары Серия 3.900.1-10 (60)
ПСП 42 к11 ш2
Панели стеновые Серия 3.900.1-10
  • Длина 2980 мм.
  • Ширина 4460 мм.
  • Высота 980 мм.
  • Вес 8150 кг.
  • Объем бетона 3,27 м3
  • Геометрический объем 13,025 м3
Цена: 111017 руб.
Подробнее
ПСП 42 к12 к2
Панели стеновые Серия 3.900.1-10
  • Длина 2980 мм.
  • Ширина 4460 мм.
  • Высота 980 мм.
  • Вес 8100 кг.
  • Объем бетона 3,25 м3
  • Геометрический объем 13,025 м3
Цена: 110338 руб.
Подробнее
ПСП 42 к13 к1
Панели стеновые Серия 3.900.1-10
  • Длина 2980 мм.
  • Ширина 4460 мм.
  • Высота 980 мм.
  • Вес 8100 кг.
  • Объем бетона 3,25 м3
  • Геометрический объем 13,025 м3
Цена: 110338 руб.
Подробнее
ПСП 42 к1 ш2
Панели стеновые Серия 3.900.1-10
  • Длина 2980 мм.
  • Ширина 4460 мм.
  • Высота 980 мм.
  • Вес 8150 кг.
  • Объем бетона 3,27 м3
  • Геометрический объем 13,025 м3
Цена: 111017 руб.
Подробнее
ПСП 42 к13 ш2
Панели стеновые Серия 3.900.1-10
  • Длина 2980 мм.
  • Ширина 4460 мм.
  • Высота 980 мм.
  • Вес 8150 кг.
  • Объем бетона 3,27 м3
  • Геометрический объем 13,025 м3
Цена: 111017 руб.
Подробнее
ПСП 42 к13 к2
Панели стеновые Серия 3.900.1-10
  • Длина 2980 мм.
  • Ширина 4460 мм.
  • Высота 980 мм.
  • Вес 8100 кг.
  • Объем бетона 3,25 м3
  • Геометрический объем 13,025 м3
Цена: 110338 руб.
Подробнее
ПСП 42 к13 ш1
Панели стеновые Серия 3.900.1-10
  • Длина 2980 мм.
  • Ширина 4460 мм.
  • Высота 980 мм.
  • Вес 8150 кг.
  • Объем бетона 3,27 м3
  • Геометрический объем 13,025 м3
Цена: 111017 руб.
Подробнее
ПСП 42 к14 к2
Панели стеновые Серия 3.900.1-10
  • Длина 2980 мм.
  • Ширина 4460 мм.
  • Высота 980 мм.
  • Вес 8100 кг.
  • Объем бетона 3,25 м3
  • Геометрический объем 13,025 м3
Цена: 110338 руб.
Подробнее
ПСП 42 к15 ш
Панели стеновые Серия 3.900.1-10
  • Длина 2980 мм.
  • Ширина 4460 мм.
  • Высота 980 мм.
  • Вес 8150 кг.
  • Объем бетона 3,27 м3
  • Геометрический объем 13,025 м3
Цена: 111017 руб.
Подробнее
ПСП 42 к14 ш2
Панели стеновые Серия 3.900.1-10
  • Длина 2980 мм.
  • Ширина 4460 мм.
  • Высота 980 мм.
  • Вес 8150 кг.
  • Объем бетона 3,27 м3
  • Геометрический объем 13,025 м3
Цена: 111017 руб.
Подробнее
ПСП 42 к15 к
Панели стеновые Серия 3.900.1-10
  • Длина 2980 мм.
  • Ширина 4460 мм.
  • Высота 980 мм.
  • Вес 8100 кг.
  • Объем бетона 3,25 м3
  • Геометрический объем 13,025 м3
Цена: 110338 руб.
Подробнее
ПСП 42 к2 к2
Панели стеновые Серия 3.900.1-10
  • Длина 2980 мм.
  • Ширина 4460 мм.
  • Высота 980 мм.
  • Вес 8100 кг.
  • Объем бетона 3,25 м3
  • Геометрический объем 13,025 м3
Цена: 110338 руб.
Подробнее
ПСП 42 к11 к2
Панели стеновые Серия 3.900.1-10
  • Длина 2980 мм.
  • Ширина 4460 мм.
  • Высота 980 мм.
  • Вес 8100 кг.
  • Объем бетона 3,25 м3
  • Геометрический объем 13,025 м3
Цена: 110338 руб.
Подробнее
ПСП 42 к3 к2
Панели стеновые Серия 3.900.1-10
  • Длина 2980 мм.
  • Ширина 4460 мм.
  • Высота 980 мм.
  • Вес 8100 кг.
  • Объем бетона 3,25 м3
  • Геометрический объем 13,025 м3
Цена: 110338 руб.
Подробнее
ПСП 42 к2 ш2
Панели стеновые Серия 3.900.1-10
  • Длина 2980 мм.
  • Ширина 4460 мм.
  • Высота 980 мм.
  • Вес 8150 кг.
  • Объем бетона 3,27 м3
  • Геометрический объем 13,025 м3
Цена: 111017 руб.
Подробнее
ПСП 42 к3 ш1
Панели стеновые Серия 3.900.1-10
  • Длина 2980 мм.
  • Ширина 4460 мм.
  • Высота 980 мм.
  • Вес 8150 кг.
  • Объем бетона 3,27 м3
  • Геометрический объем 13,025 м3
Цена: 111017 руб.
Подробнее
ПСП 42 к3 ш2
Панели стеновые Серия 3.900.1-10
  • Длина 2980 мм.
  • Ширина 4460 мм.
  • Высота 980 мм.
  • Вес 8150 кг.
  • Объем бетона 3,27 м3
  • Геометрический объем 13,025 м3
Цена: 111017 руб.
Подробнее
ПСП 42 к3 к1
Панели стеновые Серия 3.900.1-10
  • Длина 2980 мм.
  • Ширина 4460 мм.
  • Высота 980 мм.
  • Вес 8100 кг.
  • Объем бетона 3,25 м3
  • Геометрический объем 13,025 м3
Цена: 110338 руб.
Подробнее
ПСП 42 к4 к2
Панели стеновые Серия 3.900.1-10
  • Длина 2980 мм.
  • Ширина 4460 мм.
  • Высота 980 мм.
  • Вес 8100 кг.
  • Объем бетона 3,25 м3
  • Геометрический объем 13,025 м3
Цена: 110338 руб.
Подробнее
ПСП 42 к4 ш2
Панели стеновые Серия 3.900.1-10
  • Длина 2980 мм.
  • Ширина 4460 мм.
  • Высота 980 мм.
  • Вес 8150 кг.
  • Объем бетона 3,27 м3
  • Геометрический объем 13,025 м3
Цена: 111017 руб.
Подробнее
ПСП 42 к5 к
Панели стеновые Серия 3.900.1-10
  • Длина 2980 мм.
  • Ширина 4460 мм.
  • Высота 980 мм.
  • Вес 8100 кг.
  • Объем бетона 3,25 м3
  • Геометрический объем 13,025 м3
Цена: 110338 руб.
Подробнее
ПСП 42 к5 ш
Панели стеновые Серия 3.900.1-10
  • Длина 2980 мм.
  • Ширина 4460 мм.
  • Высота 980 мм.
  • Вес 8150 кг.
  • Объем бетона 3,27 м3
  • Геометрический объем 13,025 м3
Цена: 111017 руб.
Подробнее
ПСП 42-б2 к
Панели стеновые Серия 3.900.1-10
  • Длина 2980 мм.
  • Ширина 4460 мм.
  • Высота 980 мм.
  • Вес 8600 кг.
  • Объем бетона 3,44 м3
  • Геометрический объем 13,025 м3
Цена: 116788 руб.
Подробнее
ПСП 42-б1 к
Панели стеновые Серия 3.900.1-10
  • Длина 2980 мм.
  • Ширина 4460 мм.
  • Высота 980 мм.
  • Вес 8600 кг.
  • Объем бетона 3,44 м3
  • Геометрический объем 13,025 м3
Цена: 116788 руб.
Подробнее
ПСП 42-б2 к1
Панели стеновые Серия 3.900.1-10
  • Длина 2980 мм.
  • Ширина 4460 мм.
  • Высота 980 мм.
  • Вес 8600 кг.
  • Объем бетона 3,44 м3
  • Геометрический объем 13,025 м3
Цена: 116788 руб.
Подробнее
ПСП 42 к11 ш1
Панели стеновые Серия 3.900.1-10
  • Длина 2980 мм.
  • Ширина 4460 мм.
  • Высота 980 мм.
  • Вес 8150 кг.
  • Объем бетона 3,27 м3
  • Геометрический объем 13,025 м3
Цена: 111017 руб.
Подробнее
ПСП 42-б5 к
Панели стеновые Серия 3.900.1-10
  • Длина 2980 мм.
  • Ширина 4460 мм.
  • Высота 980 мм.
  • Вес 8600 кг.
  • Объем бетона 3,44 м3
  • Геометрический объем 13,025 м3
Цена: 116788 руб.
Подробнее
ПСП 48 б1 ш
Панели стеновые Серия 3.900.1-10
  • Длина 2980 мм.
  • Ширина 5060 мм.
  • Высота 980 мм.
  • Вес 9300 кг.
  • Объем бетона 3,73 м3
  • Геометрический объем 14,7772 м3
Цена: 126634 руб.
Подробнее
ПСП 48 б2 ш
Панели стеновые Серия 3.900.1-10
  • Длина 2980 мм.
  • Ширина 5060 мм.
  • Высота 980 мм.
  • Вес 9300 кг.
  • Объем бетона 3,73 м3
  • Геометрический объем 14,7772 м3
Цена: 126634 руб.
Подробнее
ПСП 48 б3 к4
Панели стеновые Серия 3.900.1-10
  • Длина 2980 мм.
  • Ширина 5060 мм.
  • Высота 980 мм.
  • Вес 9300 кг.
  • Объем бетона 3,73 м3
  • Геометрический объем 14,7772 м3
Цена: 126634 руб.
Подробнее
ПСП 48 б3 ш
Панели стеновые Серия 3.900.1-10
  • Длина 2980 мм.
  • Ширина 5060 мм.
  • Высота 980 мм.
  • Вес 9300 кг.
  • Объем бетона 3,73 м3
  • Геометрический объем 14,7772 м3
Цена: 126634 руб.
Подробнее
ПСП 48 б2 ш1
Панели стеновые Серия 3.900.1-10
  • Длина 2980 мм.
  • Ширина 5060 мм.
  • Высота 980 мм.
  • Вес 9300 кг.
  • Объем бетона 3,73 м3
  • Геометрический объем 14,7772 м3
Цена: 126634 руб.
Подробнее
ПСП 48 б3 ш3
Панели стеновые Серия 3.900.1-10
  • Длина 2980 мм.
  • Ширина 5060 мм.
  • Высота 980 мм.
  • Вес 9300 кг.
  • Объем бетона 3,73 м3
  • Геометрический объем 14,7772 м3
Цена: 126634 руб.
Подробнее
ПСП 48 б3 ш4
Панели стеновые Серия 3.900.1-10
  • Длина 2980 мм.
  • Ширина 5060 мм.
  • Высота 980 мм.
  • Вес 9200 кг.
  • Объем бетона 3,69 м3
  • Геометрический объем 14,7772 м3
Цена: 125276 руб.
Подробнее
ПСП 48 б4 к4
Панели стеновые Серия 3.900.1-10
  • Длина 2980 мм.
  • Ширина 5060 мм.
  • Высота 980 мм.
  • Вес 9300 кг.
  • Объем бетона 3,73 м3
  • Геометрический объем 14,7772 м3
Цена: 126634 руб.
Подробнее
ПСП 48 б4 ш
Панели стеновые Серия 3.900.1-10
  • Длина 2980 мм.
  • Ширина 5060 мм.
  • Высота 980 мм.
  • Вес 9300 кг.
  • Объем бетона 3,73 м3
  • Геометрический объем 14,7772 м3
Цена: 126634 руб.
Подробнее
ПСП 48 б4 ш3
Панели стеновые Серия 3.900.1-10
  • Длина 2980 мм.
  • Ширина 5060 мм.
  • Высота 980 мм.
  • Вес 9300 кг.
  • Объем бетона 3,73 м3
  • Геометрический объем 14,7772 м3
Цена: 126634 руб.
Подробнее
ПСП 48 б4 ш4
Панели стеновые Серия 3.900.1-10
  • Длина 2980 мм.
  • Ширина 5060 мм.
  • Высота 980 мм.
  • Вес 9200 кг.
  • Объем бетона 3,69 м3
  • Геометрический объем 14,7772 м3
Цена: 125276 руб.
Подробнее
ПСП 48 б5 к4
Панели стеновые Серия 3.900.1-10
  • Длина 2980 мм.
  • Ширина 5060 мм.
  • Высота 980 мм.
  • Вес 9300 кг.
  • Объем бетона 3,73 м3
  • Геометрический объем 14,7772 м3
Цена: 126634 руб.
Подробнее
ПСП 48 б5 ш
Панели стеновые Серия 3.900.1-10
  • Длина 2980 мм.
  • Ширина 5060 мм.
  • Высота 980 мм.
  • Вес 9300 кг.
  • Объем бетона 3,73 м3
  • Геометрический объем 14,7772 м3
Цена: 126634 руб.
Подробнее
ПСП 48 б5 ш3
Панели стеновые Серия 3.900.1-10
  • Длина 2980 мм.
  • Ширина 5060 мм.
  • Высота 980 мм.
  • Вес 9300 кг.
  • Объем бетона 3,73 м3
  • Геометрический объем 14,7772 м3
Цена: 126634 руб.
Подробнее
ПСП 48 б5 ш4
Панели стеновые Серия 3.900.1-10
  • Длина 2980 мм.
  • Ширина 5060 мм.
  • Высота 980 мм.
  • Вес 9200 кг.
  • Объем бетона 3,69 м3
  • Геометрический объем 14,7772 м3
Цена: 125276 руб.
Подробнее
ПСП 48 к11 к
Панели стеновые Серия 3.900.1-10
  • Длина 2980 мм.
  • Ширина 5120 мм.
  • Высота 1200 мм.
  • Вес 10970 кг.
  • Объем бетона 4,38 м3
  • Геометрический объем 18,3091 м3
Цена: 148701 руб.
Подробнее
ПСП 48 к1 к
Панели стеновые Серия 3.900.1-10
  • Длина 2980 мм.
  • Ширина 5120 мм.
  • Высота 1200 мм.
  • Вес 10970 кг.
  • Объем бетона 4,38 м3
  • Геометрический объем 18,3091 м3
Цена: 148701 руб.
Подробнее
ПСП 48 к1 ш
Панели стеновые Серия 3.900.1-10
  • Длина 2980 мм.
  • Ширина 5120 мм.
  • Высота 1200 мм.
  • Вес 11020 кг.
  • Объем бетона 4,41 м3
  • Геометрический объем 18,3091 м3
Цена: 149720 руб.
Подробнее
ПСП 48 к11 ш
Панели стеновые Серия 3.900.1-10
  • Длина 2980 мм.
  • Ширина 5120 мм.
  • Высота 1200 мм.
  • Вес 11020 кг.
  • Объем бетона 4,41 м3
  • Геометрический объем 18,3091 м3
Цена: 149720 руб.
Подробнее
ПСП 48 к12 к2
Панели стеновые Серия 3.900.1-10
  • Длина 2980 мм.
  • Ширина 5120 мм.
  • Высота 1200 мм.
  • Вес 10970 кг.
  • Объем бетона 4,38 м3
  • Геометрический объем 18,3091 м3
Цена: 148701 руб.
Подробнее
ПСП 48 к12 ш1
Панели стеновые Серия 3.900.1-10
  • Длина 2980 мм.
  • Ширина 5120 мм.
  • Высота 1200 мм.
  • Вес 11020 кг.
  • Объем бетона 4,41 м3
  • Геометрический объем 18,3091 м3
Цена: 149720 руб.
Подробнее
ПСП 48 к12 к1
Панели стеновые Серия 3.900.1-10
  • Длина 2980 мм.
  • Ширина 5120 мм.
  • Высота 1200 мм.
  • Вес 10970 кг.
  • Объем бетона 4,38 м3
  • Геометрический объем 18,3091 м3
Цена: 148701 руб.
Подробнее
ПСП 48 к13 к
Панели стеновые Серия 3.900.1-10
  • Длина 2980 мм.
  • Ширина 5120 мм.
  • Высота 1200 мм.
  • Вес 10970 кг.
  • Объем бетона 4,38 м3
  • Геометрический объем 18,3091 м3
Цена: 148701 руб.
Подробнее
ПСП 48 к12 ш2
Панели стеновые Серия 3.900.1-10
  • Длина 2980 мм.
  • Ширина 5120 мм.
  • Высота 1200 мм.
  • Вес 11020 кг.
  • Объем бетона 4,41 м3
  • Геометрический объем 18,3091 м3
Цена: 149720 руб.
Подробнее
ПСП 48 к14 к1
Панели стеновые Серия 3.900.1-10
  • Длина 2980 мм.
  • Ширина 5120 мм.
  • Высота 1200 мм.
  • Вес 10970 кг.
  • Объем бетона 4,38 м3
  • Геометрический объем 18,3091 м3
Цена: 148701 руб.
Подробнее
ПСП 48 к13 ш
Панели стеновые Серия 3.900.1-10
  • Длина 2980 мм.
  • Ширина 5120 мм.
  • Высота 1200 мм.
  • Вес 11020 кг.
  • Объем бетона 4,41 м3
  • Геометрический объем 18,3091 м3
Цена: 149720 руб.
Подробнее
ПСП 48 к14 к2
Панели стеновые Серия 3.900.1-10
  • Длина 2980 мм.
  • Ширина 5120 мм.
  • Высота 1200 мм.
  • Вес 10970 кг.
  • Объем бетона 4,38 м3
  • Геометрический объем 18,3091 м3
Цена: 148701 руб.
Подробнее
ПСП 48 к14 ш2
Панели стеновые Серия 3.900.1-10
  • Длина 2980 мм.
  • Ширина 5120 мм.
  • Высота 1200 мм.
  • Вес 11020 кг.
  • Объем бетона 4,41 м3
  • Геометрический объем 18,3091 м3
Цена: 149720 руб.
Подробнее
ПСП 48 к14 ш1
Панели стеновые Серия 3.900.1-10
  • Длина 2980 мм.
  • Ширина 5120 мм.
  • Высота 1200 мм.
  • Вес 11020 кг.
  • Объем бетона 4,41 м3
  • Геометрический объем 18,3091 м3
Цена: 149720 руб.
Подробнее
ПСП 48 к2 к2
Панели стеновые Серия 3.900.1-10
  • Длина 2980 мм.
  • Ширина 5120 мм.
  • Высота 1200 мм.
  • Вес 10970 кг.
  • Объем бетона 4,38 м3
  • Геометрический объем 18,3091 м3
Цена: 148701 руб.
Подробнее
ПСП 48 к15 к
Панели стеновые Серия 3.900.1-10
  • Длина 2980 мм.
  • Ширина 5120 мм.
  • Высота 1200 мм.
  • Вес 10970 кг.
  • Объем бетона 4,38 м3
  • Геометрический объем 18,3091 м3
Цена: 148701 руб.
Подробнее
ПСП 48 к15 ш
Панели стеновые Серия 3.900.1-10
  • Длина 2980 мм.
  • Ширина 5120 мм.
  • Высота 1200 мм.
  • Вес 11020 кг.
  • Объем бетона 4,41 м3
  • Геометрический объем 18,3091 м3
Цена: 149720 руб.
Подробнее
ПСП 48 к2 к1
Панели стеновые Серия 3.900.1-10
  • Длина 2980 мм.
  • Ширина 5120 мм.
  • Высота 1200 мм.
  • Вес 10970 кг.
  • Объем бетона 4,38 м3
  • Геометрический объем 18,3091 м3
Цена: 148701 руб.
Подробнее

Уведомление о файлах cookie

Мы используем файлы cookie для улучшения вашего опыта просмотра и анализа трафика. Нажимая "Принять все", вы соглашаетесь с нашей политикой конфиденциальности и политикой обработки файлов cookie.

MAX Дзен Телеграм Вконтакте vk