mobile_sound +7 (930) 655-55-90

Железобетонные опоры линий электропередачи. Рабочие чертежи (Серия 3.900.1-10)

Поделиться:
Поделиться:

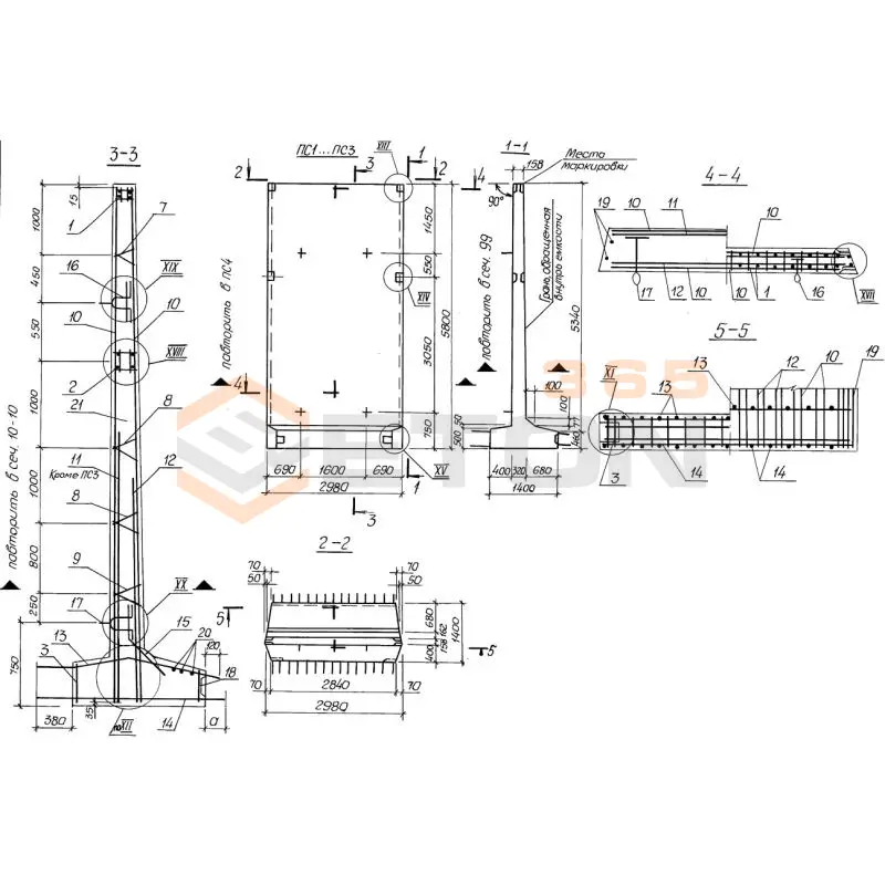
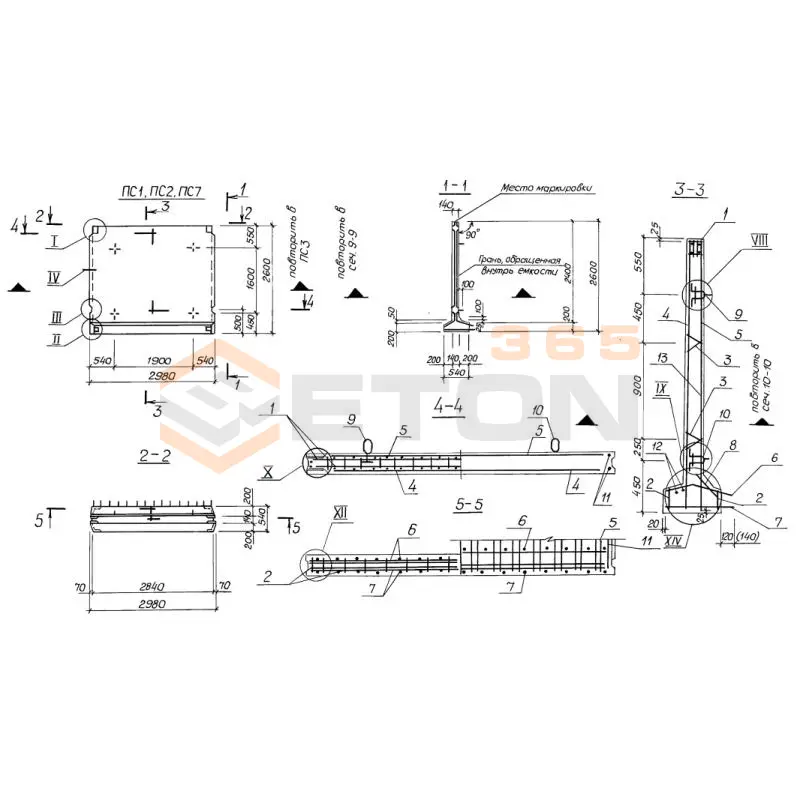
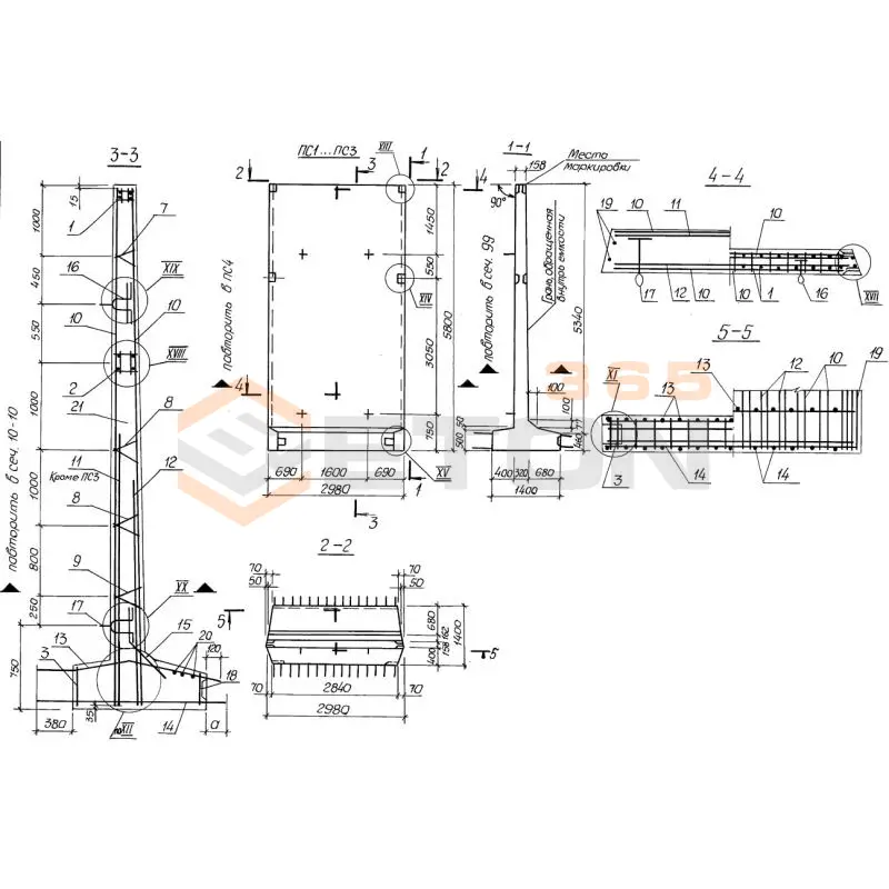
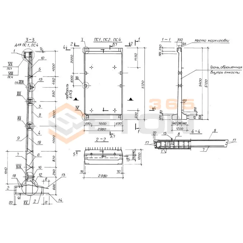
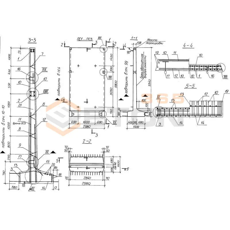
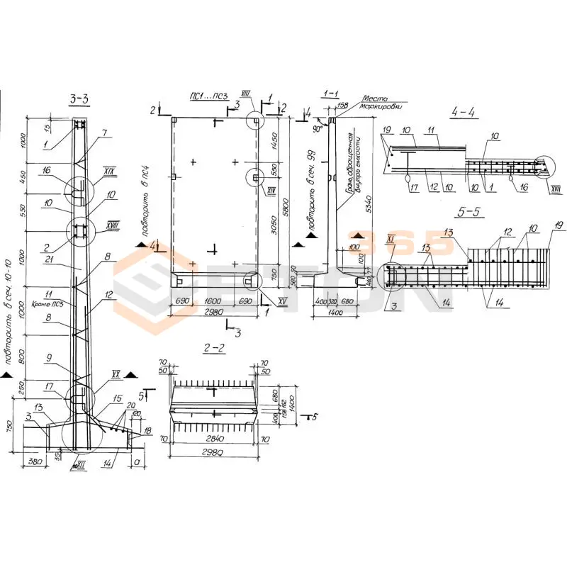
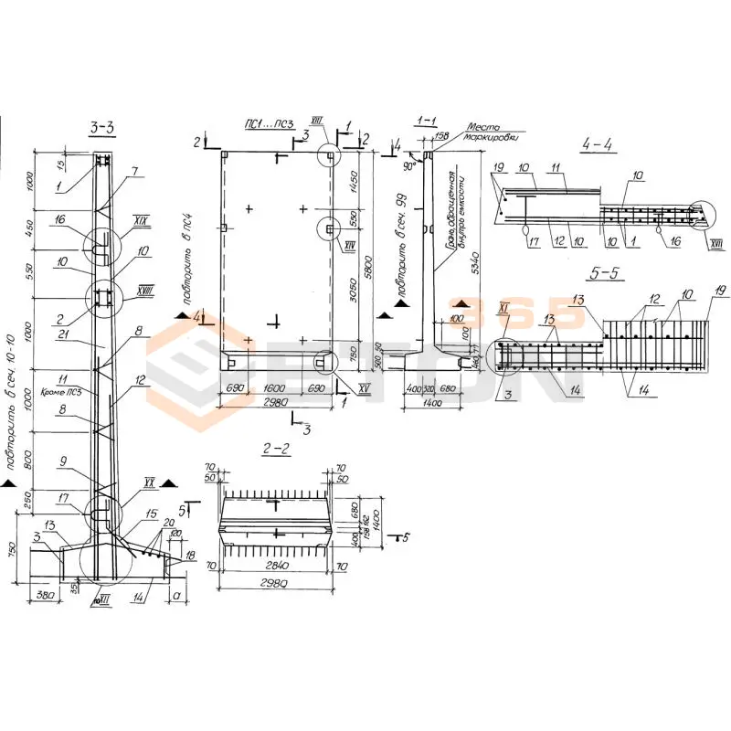
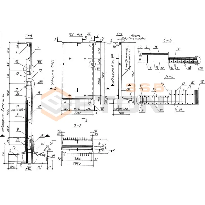
Документ Серия 3.900.1-10 описывает область применения, номенклатуру и ключевые требования, опираясь на действующие нормы и практику проектирования. В двадцати двух частях Серии 3.900.1-10 детально изложены особенности проектирования и производства конструкций из железобетона, предназначенных под строительство емкостных сооружений, используемых под водоснабжение и канализацию, насосные станции и другие объекты. В номенклатурном перечне можно встретить железобетонные стеновые панели различных геометрических пропорций и областей применения, а также плиты покрытий, колонны и фундаменты. Для всех типов конструкций приведены спецификации с материалоемкостью, а также расчеты несущих способностей.

Файлы для скачивания:
picture_as_pdf

2111.pdf

1,977.5 KB

скачать
picture_as_pdf

2112.pdf

27,978.8 KB

скачать
picture_as_pdf

2113.pdf

24,450.2 KB

скачать
picture_as_pdf

2114.pdf

7,472.6 KB

скачать
picture_as_pdf

2115.pdf

5,026.3 KB

скачать
picture_as_pdf

2116.pdf

23,810.1 KB

скачать
picture_as_pdf

2117.pdf

6,636.9 KB

скачать
picture_as_pdf

2118.pdf

2,064.3 KB

скачать
picture_as_pdf

2119.pdf

9,238.0 KB

скачать
picture_as_pdf

2128.pdf

3,718.1 KB

скачать
picture_as_pdf

2120.pdf

5,996.4 KB

скачать
picture_as_pdf

2121.pdf

16,515.5 KB

скачать
picture_as_pdf

2122.pdf

6,246.9 KB

скачать
picture_as_pdf

2123.pdf

16,634.0 KB

скачать
picture_as_pdf

2124.pdf

8,076.8 KB

скачать
picture_as_pdf

2125.pdf

16,037.4 KB

скачать
picture_as_pdf

2126.pdf

8,642.6 KB

скачать
picture_as_pdf

2127.pdf

4,121.0 KB

скачать
picture_as_pdf

2129.pdf

10,324.0 KB

скачать
picture_as_pdf

2130.pdf

2,955.0 KB

скачать
picture_as_pdf

2131.pdf

13,742.1 KB

скачать
picture_as_pdf

2132.pdf

3,481.2 KB

скачать
Товары Серия 3.900.1-10 (60)
ПСП 1,48 к11 к
Панели стеновые Серия 3.900.1-10
  • Длина 2980 мм.
  • Ширина 5120 мм.
  • Высота 1200 мм.
  • Вес 10970 кг.
  • Объем бетона 4,38 м3
  • Геометрический объем 18,3091 м3
Цена: 148701 руб.
Подробнее
ПСП 1,48 б5 ш4
Панели стеновые Серия 3.900.1-10
  • Длина 2980 мм.
  • Ширина 5060 мм.
  • Высота 980 мм.
  • Вес 9300 кг.
  • Объем бетона 3,73 м3
  • Геометрический объем 14,7772 м3
Цена: 126634 руб.
Подробнее
ПСП 1,48 к11 ш
Панели стеновые Серия 3.900.1-10
  • Длина 2980 мм.
  • Ширина 5120 мм.
  • Высота 1200 мм.
  • Вес 11020 кг.
  • Объем бетона 4,41 м3
  • Геометрический объем 18,3091 м3
Цена: 149720 руб.
Подробнее
ПСП 1,48 к12 ш1
Панели стеновые Серия 3.900.1-10
  • Длина 2980 мм.
  • Ширина 5120 мм.
  • Высота 1200 мм.
  • Вес 11020 кг.
  • Объем бетона 4,41 м3
  • Геометрический объем 18,3091 м3
Цена: 149720 руб.
Подробнее
ПСП 1,48 к12 к2
Панели стеновые Серия 3.900.1-10
  • Длина 2980 мм.
  • Ширина 5120 мм.
  • Высота 1200 мм.
  • Вес 10970 кг.
  • Объем бетона 4,38 м3
  • Геометрический объем 18,3091 м3
Цена: 148701 руб.
Подробнее
ПСП 1,48 к12 ш2
Панели стеновые Серия 3.900.1-10
  • Длина 2980 мм.
  • Ширина 5120 мм.
  • Высота 1200 мм.
  • Вес 11020 кг.
  • Объем бетона 4,41 м3
  • Геометрический объем 18,3091 м3
Цена: 149720 руб.
Подробнее
ПСП 1,48 к12 к1
Панели стеновые Серия 3.900.1-10
  • Длина 2980 мм.
  • Ширина 5120 мм.
  • Высота 1200 мм.
  • Вес 10970 кг.
  • Объем бетона 4,38 м3
  • Геометрический объем 18,3091 м3
Цена: 148701 руб.
Подробнее
ПСП 1,48 к13 ш
Панели стеновые Серия 3.900.1-10
  • Длина 2980 мм.
  • Ширина 5120 мм.
  • Высота 1200 мм.
  • Вес 11020 кг.
  • Объем бетона 4,41 м3
  • Геометрический объем 18,3091 м3
Цена: 149720 руб.
Подробнее
ПСП 1,48 к13 к
Панели стеновые Серия 3.900.1-10
  • Длина 2980 мм.
  • Ширина 5120 мм.
  • Высота 1200 мм.
  • Вес 10970 кг.
  • Объем бетона 4,38 м3
  • Геометрический объем 18,3091 м3
Цена: 148701 руб.
Подробнее
ПСП 1,48 к14 к1
Панели стеновые Серия 3.900.1-10
  • Длина 2980 мм.
  • Ширина 5120 мм.
  • Высота 1200 мм.
  • Вес 10970 кг.
  • Объем бетона 4,38 м3
  • Геометрический объем 18,3091 м3
Цена: 148701 руб.
Подробнее
ПСП 1,48 к14 ш1
Панели стеновые Серия 3.900.1-10
  • Длина 2980 мм.
  • Ширина 5120 мм.
  • Высота 1200 мм.
  • Вес 11020 кг.
  • Объем бетона 4,41 м3
  • Геометрический объем 18,3091 м3
Цена: 149720 руб.
Подробнее
ПСП 1,48 к14 ш2
Панели стеновые Серия 3.900.1-10
  • Длина 2980 мм.
  • Ширина 5120 мм.
  • Высота 1200 мм.
  • Вес 11020 кг.
  • Объем бетона 4,41 м3
  • Геометрический объем 18,3091 м3
Цена: 149720 руб.
Подробнее
ПСП 1,48 к14 к2
Панели стеновые Серия 3.900.1-10
  • Длина 2980 мм.
  • Ширина 5120 мм.
  • Высота 1200 мм.
  • Вес 10970 кг.
  • Объем бетона 4,38 м3
  • Геометрический объем 18,3091 м3
Цена: 148701 руб.
Подробнее
ПСП 1,48 к2 к1
Панели стеновые Серия 3.900.1-10
  • Длина 2980 мм.
  • Ширина 5120 мм.
  • Высота 1200 мм.
  • Вес 10970 кг.
  • Объем бетона 4,38 м3
  • Геометрический объем 18,3091 м3
Цена: 148701 руб.
Подробнее
ПСП 1,48 к15 к
Панели стеновые Серия 3.900.1-10
  • Длина 2980 мм.
  • Ширина 5120 мм.
  • Высота 1200 мм.
  • Вес 10970 кг.
  • Объем бетона 4,38 м3
  • Геометрический объем 18,3091 м3
Цена: 148701 руб.
Подробнее
ПСП 1,48 к15 ш
Панели стеновые Серия 3.900.1-10
  • Длина 2980 мм.
  • Ширина 5120 мм.
  • Высота 1200 мм.
  • Вес 11020 кг.
  • Объем бетона 4,41 м3
  • Геометрический объем 18,3091 м3
Цена: 149720 руб.
Подробнее
ПСП 1,48 к2 ш1
Панели стеновые Серия 3.900.1-10
  • Длина 2980 мм.
  • Ширина 5120 мм.
  • Высота 1200 мм.
  • Вес 11020 кг.
  • Объем бетона 4,41 м3
  • Геометрический объем 18,3091 м3
Цена: 149720 руб.
Подробнее
ПСП 1,48 к2 к2
Панели стеновые Серия 3.900.1-10
  • Длина 2980 мм.
  • Ширина 5120 мм.
  • Высота 1200 мм.
  • Вес 10970 кг.
  • Объем бетона 4,38 м3
  • Геометрический объем 18,3091 м3
Цена: 148701 руб.
Подробнее
ПСП 1,48 к2 ш2
Панели стеновые Серия 3.900.1-10
  • Длина 2980 мм.
  • Ширина 5120 мм.
  • Высота 1200 мм.
  • Вес 11020 кг.
  • Объем бетона 4,41 м3
  • Геометрический объем 18,3091 м3
Цена: 149720 руб.
Подробнее
ПСП 1,48 к3 к
Панели стеновые Серия 3.900.1-10
  • Длина 2980 мм.
  • Ширина 5120 мм.
  • Высота 1200 мм.
  • Вес 10970 кг.
  • Объем бетона 4,38 м3
  • Геометрический объем 18,3091 м3
Цена: 148701 руб.
Подробнее
ПСП 1,48 к3 ш
Панели стеновые Серия 3.900.1-10
  • Длина 2980 мм.
  • Ширина 5120 мм.
  • Высота 1200 мм.
  • Вес 11020 кг.
  • Объем бетона 4,41 м3
  • Геометрический объем 18,3091 м3
Цена: 149720 руб.
Подробнее
ПСП 1,48 к4 к2
Панели стеновые Серия 3.900.1-10
  • Длина 2980 мм.
  • Ширина 5120 мм.
  • Высота 1200 мм.
  • Вес 10970 кг.
  • Объем бетона 4,38 м3
  • Геометрический объем 18,3091 м3
Цена: 148701 руб.
Подробнее
ПСП 1,48 к4 к1
Панели стеновые Серия 3.900.1-10
  • Длина 2980 мм.
  • Ширина 5120 мм.
  • Высота 1200 мм.
  • Вес 10970 кг.
  • Объем бетона 4,38 м3
  • Геометрический объем 18,3091 м3
Цена: 148701 руб.
Подробнее
ПСП 1,48 к4 ш1
Панели стеновые Серия 3.900.1-10
  • Длина 2980 мм.
  • Ширина 5120 мм.
  • Высота 1200 мм.
  • Вес 11020 кг.
  • Объем бетона 4,41 м3
  • Геометрический объем 18,3091 м3
Цена: 149720 руб.
Подробнее
ПСП 1,48 к4 ш2
Панели стеновые Серия 3.900.1-10
  • Длина 2980 мм.
  • Ширина 5120 мм.
  • Высота 1200 мм.
  • Вес 11020 кг.
  • Объем бетона 4,41 м3
  • Геометрический объем 18,3091 м3
Цена: 149720 руб.
Подробнее
ПСП 1,48 к5 к
Панели стеновые Серия 3.900.1-10
  • Длина 2980 мм.
  • Ширина 5120 мм.
  • Высота 1200 мм.
  • Вес 10970 кг.
  • Объем бетона 4,38 м3
  • Геометрический объем 18,3091 м3
Цена: 148701 руб.
Подробнее
ПСП 1,48 к5 ш
Панели стеновые Серия 3.900.1-10
  • Длина 2980 мм.
  • Ширина 5120 мм.
  • Высота 1200 мм.
  • Вес 11020 кг.
  • Объем бетона 4,41 м3
  • Геометрический объем 18,3091 м3
Цена: 149720 руб.
Подробнее
ПСП 1,48-б1 к
Панели стеновые Серия 3.900.1-10
  • Длина 2980 мм.
  • Ширина 5060 мм.
  • Высота 980 мм.
  • Вес 9200 кг.
  • Объем бетона 3,69 м3
  • Геометрический объем 14,7772 м3
Цена: 125276 руб.
Подробнее
ПСП 1,48-б2 к1
Панели стеновые Серия 3.900.1-10
  • Длина 2980 мм.
  • Ширина 5060 мм.
  • Высота 980 мм.
  • Вес 9200 кг.
  • Объем бетона 3,69 м3
  • Геометрический объем 14,7772 м3
Цена: 125276 руб.
Подробнее
ПСП 1,48-б2 к
Панели стеновые Серия 3.900.1-10
  • Длина 2980 мм.
  • Ширина 5060 мм.
  • Высота 980 мм.
  • Вес 9200 кг.
  • Объем бетона 3,69 м3
  • Геометрический объем 14,7772 м3
Цена: 125276 руб.
Подробнее
ПСП 1,48-б3 к3
Панели стеновые Серия 3.900.1-10
  • Длина 2980 мм.
  • Ширина 5060 мм.
  • Высота 980 мм.
  • Вес 9200 кг.
  • Объем бетона 3,69 м3
  • Геометрический объем 14,7772 м3
Цена: 125276 руб.
Подробнее
ПСП 1,48-б3 к4
Панели стеновые Серия 3.900.1-10
  • Длина 2980 мм.
  • Ширина 5060 мм.
  • Высота 980 мм.
  • Вес 9200 кг.
  • Объем бетона 3,69 м3
  • Геометрический объем 14,7772 м3
Цена: 125276 руб.
Подробнее
ПСП 1,48-б3 к
Панели стеновые Серия 3.900.1-10
  • Длина 2980 мм.
  • Ширина 5060 мм.
  • Высота 980 мм.
  • Вес 9200 кг.
  • Объем бетона 3,69 м3
  • Геометрический объем 14,7772 м3
Цена: 125276 руб.
Подробнее
ПСП 1,48-б4 к3
Панели стеновые Серия 3.900.1-10
  • Длина 2980 мм.
  • Ширина 5060 мм.
  • Высота 980 мм.
  • Вес 9200 кг.
  • Объем бетона 3,69 м3
  • Геометрический объем 14,7772 м3
Цена: 125276 руб.
Подробнее
ПСП 1,48-б5 к
Панели стеновые Серия 3.900.1-10
  • Длина 2980 мм.
  • Ширина 5060 мм.
  • Высота 980 мм.
  • Вес 9200 кг.
  • Объем бетона 3,69 м3
  • Геометрический объем 14,7772 м3
Цена: 125276 руб.
Подробнее
ПСП 1,48-б4 к4
Панели стеновые Серия 3.900.1-10
  • Длина 2980 мм.
  • Ширина 5060 мм.
  • Высота 980 мм.
  • Вес 9200 кг.
  • Объем бетона 3,69 м3
  • Геометрический объем 14,7772 м3
Цена: 125276 руб.
Подробнее
ПСП 1,48-б4 к
Панели стеновые Серия 3.900.1-10
  • Длина 2980 мм.
  • Ширина 5060 мм.
  • Высота 980 мм.
  • Вес 9200 кг.
  • Объем бетона 3,69 м3
  • Геометрический объем 14,7772 м3
Цена: 125276 руб.
Подробнее
ПСП 1,48-б5 к3
Панели стеновые Серия 3.900.1-10
  • Длина 2980 мм.
  • Ширина 5060 мм.
  • Высота 980 мм.
  • Вес 9200 кг.
  • Объем бетона 3,69 м3
  • Геометрический объем 14,7772 м3
Цена: 125276 руб.
Подробнее
ПСП 1,48-б5 к4
Панели стеновые Серия 3.900.1-10
  • Длина 2980 мм.
  • Ширина 5060 мм.
  • Высота 980 мм.
  • Вес 9200 кг.
  • Объем бетона 3,69 м3
  • Геометрический объем 14,7772 м3
Цена: 125276 руб.
Подробнее
ПСП 1,54 к1 к2
Панели стеновые Серия 3.900.1-10
  • Длина 2980 мм.
  • Ширина 5800 мм.
  • Высота 1400 мм.
  • Вес 14400 кг.
  • Объем бетона 5,76 м3
  • Геометрический объем 24,1976 м3
Цена: 195552 руб.
Подробнее
ПСП 1,54 к1 ш2
Панели стеновые Серия 3.900.1-10
  • Длина 2980 мм.
  • Ширина 5800 мм.
  • Высота 1400 мм.
  • Вес 14550 кг.
  • Объем бетона 5,82 м3
  • Геометрический объем 24,1976 м3
Цена: 197589 руб.
Подробнее
ПСП 1,54 к11 к2
Панели стеновые Серия 3.900.1-10
  • Длина 2980 мм.
  • Ширина 5800 мм.
  • Высота 1400 мм.
  • Вес 14400 кг.
  • Объем бетона 5,76 м3
  • Геометрический объем 24,1976 м3
Цена: 195552 руб.
Подробнее
ПСП 1,54 к12 к1
Панели стеновые Серия 3.900.1-10
  • Длина 2980 мм.
  • Ширина 5800 мм.
  • Высота 1400 мм.
  • Вес 14400 кг.
  • Объем бетона 5,76 м3
  • Геометрический объем 24,1976 м3
Цена: 195552 руб.
Подробнее
ПСП 1,54 к11 ш2
Панели стеновые Серия 3.900.1-10
  • Длина 2980 мм.
  • Ширина 5800 мм.
  • Высота 1400 мм.
  • Вес 14550 кг.
  • Объем бетона 5,82 м3
  • Геометрический объем 24,1976 м3
Цена: 197589 руб.
Подробнее
ПСП 1,54 к12 ш2
Панели стеновые Серия 3.900.1-10
  • Длина 2980 мм.
  • Ширина 5800 мм.
  • Высота 1400 мм.
  • Вес 14550 кг.
  • Объем бетона 5,82 м3
  • Геометрический объем 24,1976 м3
Цена: 197589 руб.
Подробнее
ПСП 1,54 к12 к2
Панели стеновые Серия 3.900.1-10
  • Длина 2980 мм.
  • Ширина 5800 мм.
  • Высота 1400 мм.
  • Вес 14400 кг.
  • Объем бетона 5,76 м3
  • Геометрический объем 24,1976 м3
Цена: 195552 руб.
Подробнее
ПСП 1,54 к15 ш2
Панели стеновые Серия 3.900.1-10
  • Длина 2980 мм.
  • Ширина 5800 мм.
  • Высота 1400 мм.
  • Вес 14550 кг.
  • Объем бетона 5,82 м3
  • Геометрический объем 24,1976 м3
Цена: 197589 руб.
Подробнее
ПСП 1,54 к15 к2
Панели стеновые Серия 3.900.1-10
  • Длина 2980 мм.
  • Ширина 5800 мм.
  • Высота 1400 мм.
  • Вес 14400 кг.
  • Объем бетона 5,76 м3
  • Геометрический объем 24,1976 м3
Цена: 195552 руб.
Подробнее
ПСП 1,54 к12 ш1
Панели стеновые Серия 3.900.1-10
  • Длина 2980 мм.
  • Ширина 5800 мм.
  • Высота 1400 мм.
  • Вес 14550 кг.
  • Объем бетона 5,82 м3
  • Геометрический объем 24,1976 м3
Цена: 197589 руб.
Подробнее
ПСП 1,54 к2 к2
Панели стеновые Серия 3.900.1-10
  • Длина 2980 мм.
  • Ширина 5800 мм.
  • Высота 1400 мм.
  • Вес 14400 кг.
  • Объем бетона 5,76 м3
  • Геометрический объем 24,1976 м3
Цена: 195552 руб.
Подробнее
ПСП 1,54 к2 к1
Панели стеновые Серия 3.900.1-10
  • Длина 2980 мм.
  • Ширина 5800 мм.
  • Высота 1400 мм.
  • Вес 14400 кг.
  • Объем бетона 5,76 м3
  • Геометрический объем 24,1976 м3
Цена: 195552 руб.
Подробнее
ПСП 1,54 к5 к2
Панели стеновые Серия 3.900.1-10
  • Длина 2980 мм.
  • Ширина 5800 мм.
  • Высота 1400 мм.
  • Вес 14400 кг.
  • Объем бетона 5,76 м3
  • Геометрический объем 24,1976 м3
Цена: 195552 руб.
Подробнее
ПСП 1,54 к5 ш2
Панели стеновые Серия 3.900.1-10
  • Длина 2980 мм.
  • Ширина 5800 мм.
  • Высота 1400 мм.
  • Вес 14550 кг.
  • Объем бетона 5,82 м3
  • Геометрический объем 24,1976 м3
Цена: 197589 руб.
Подробнее
ПСП 1,54 к2 ш1
Панели стеновые Серия 3.900.1-10
  • Длина 2980 мм.
  • Ширина 5800 мм.
  • Высота 1400 мм.
  • Вес 14550 кг.
  • Объем бетона 5,82 м3
  • Геометрический объем 24,1976 м3
Цена: 197589 руб.
Подробнее
ПСП 24 б2 ш1
Панели стеновые Серия 3.900.1-10
  • Длина 2980 мм.
  • Ширина 2600 мм.
  • Высота 540 мм.
  • Вес 3600 кг.
  • Объем бетона 1,42 м3
  • Геометрический объем 4,1839 м3
Цена: 48209 руб.
Подробнее
ПСП 24 б1 ш
Панели стеновые Серия 3.900.1-10
  • Длина 2980 мм.
  • Ширина 2600 мм.
  • Высота 540 мм.
  • Вес 3600 кг.
  • Объем бетона 1,42 м3
  • Геометрический объем 4,1839 м3
Цена: 48209 руб.
Подробнее
ПСП 1,54 к2 ш2
Панели стеновые Серия 3.900.1-10
  • Длина 2980 мм.
  • Ширина 5800 мм.
  • Высота 1400 мм.
  • Вес 14550 кг.
  • Объем бетона 5,82 м3
  • Геометрический объем 24,1976 м3
Цена: 197589 руб.
Подробнее
ПСП 24 б2 ш
Панели стеновые Серия 3.900.1-10
  • Длина 2980 мм.
  • Ширина 2600 мм.
  • Высота 540 мм.
  • Вес 3600 кг.
  • Объем бетона 1,42 м3
  • Геометрический объем 4,1839 м3
Цена: 48209 руб.
Подробнее
ПСП 24 б5 ш
Панели стеновые Серия 3.900.1-10
  • Длина 2980 мм.
  • Ширина 2600 мм.
  • Высота 540 мм.
  • Вес 3600 кг.
  • Объем бетона 1,42 м3
  • Геометрический объем 4,1839 м3
Цена: 48209 руб.
Подробнее
ПСП 24 к1 ш
Панели стеновые Серия 3.900.1-10
  • Длина 2980 мм.
  • Ширина 2600 мм.
  • Высота 540 мм.
  • Вес 3380 кг.
  • Объем бетона 1,35 м3
  • Геометрический объем 4,1839 м3
Цена: 45833 руб.
Подробнее

Уведомление о файлах cookie

Мы используем файлы cookie для улучшения вашего опыта просмотра и анализа трафика. Нажимая "Принять все", вы соглашаетесь с нашей политикой конфиденциальности и политикой обработки файлов cookie.

MAX Дзен Телеграм Вконтакте vk