mobile_sound +7 (930) 655-55-90

Железобетонные опоры линий электропередачи. Рабочие чертежи (Серия 3.900-3)

Поделиться:
Поделиться:

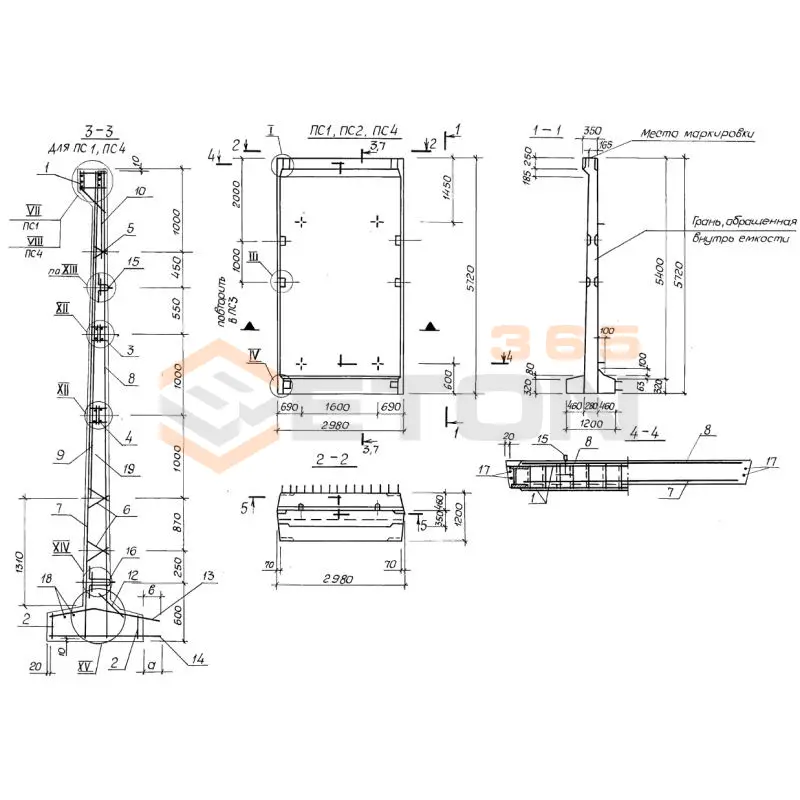
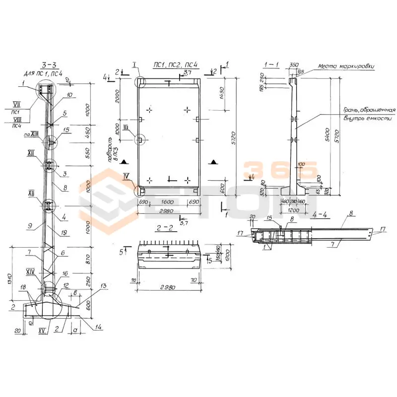
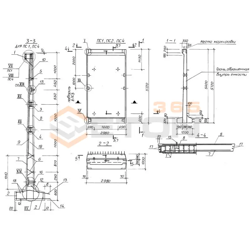
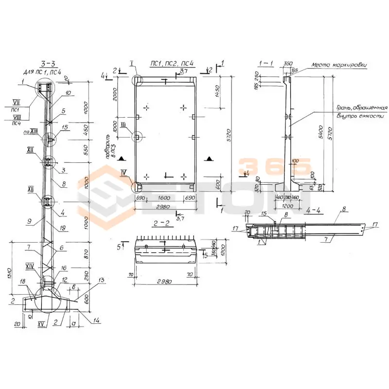
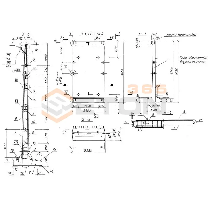
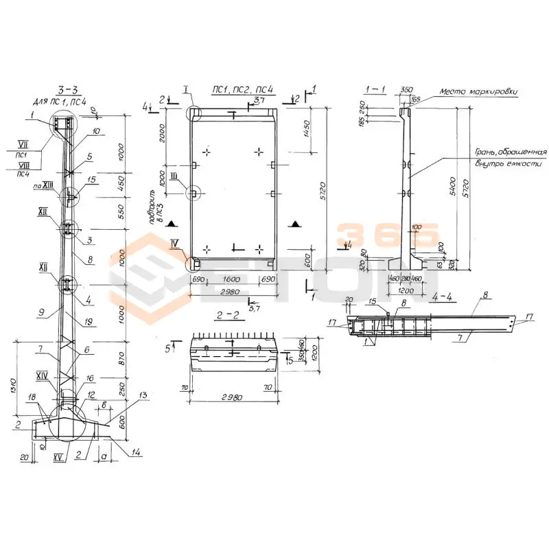
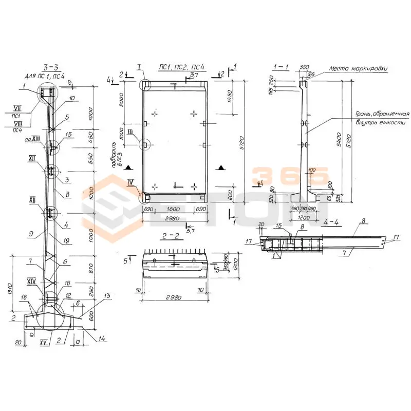
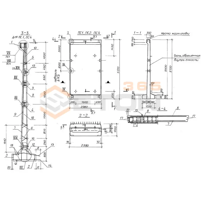
Документ Серия 3.900-3 описывает область применения, номенклатуру и ключевые требования, опираясь на действующие нормы и практику проектирования. Серия 3.900-3 состоит из большого числа выпусков (29), охватывающих все тонкости и нюансы проектирования и производства сборных железобетонных изделия и конструкции, предназначенных под возведение емкостных сооружений под водоснабжение и канализацию. Регламент собрал воедино накопленные опыт и знания строительной сферы для разработки максимально эффективных конструкций, в число которых вошли: стеновые панели различных конфигураций и геометрических пропорций, лотковые элементы и изделия и конструкции круглых колодезных сооружений. Благодаря комбинированию запроектированных элементов становится возможным удовлетворить потребности большого числа типовых проектов.

Файлы для скачивания:
picture_as_pdf

2081.pdf

24,274.7 KB

скачать
picture_as_pdf

2082.pdf

20,984.3 KB

скачать
picture_as_pdf

2100.pdf

11,586.0 KB

скачать
picture_as_pdf

2101.pdf

7,958.1 KB

скачать
picture_as_pdf

2102.pdf

11,836.0 KB

скачать
picture_as_pdf

2103.pdf

7,952.1 KB

скачать
picture_as_pdf

2104.pdf

11,609.3 KB

скачать
picture_as_pdf

2105.pdf

10,970.0 KB

скачать
picture_as_pdf

2106.pdf

12,009.1 KB

скачать
picture_as_pdf

2107.pdf

12,286.4 KB

скачать
picture_as_pdf

2108.pdf

5,230.4 KB

скачать
picture_as_pdf

2109.pdf

16,283.8 KB

скачать
picture_as_pdf

2083.pdf

8,521.6 KB

скачать
picture_as_pdf

2084.pdf

8,174.8 KB

скачать
picture_as_pdf

2085.pdf

6,033.3 KB

скачать
picture_as_pdf

2086.pdf

6,830.6 KB

скачать
picture_as_pdf

2087.pdf

11,382.0 KB

скачать
picture_as_pdf

2088.pdf

4,873.4 KB

скачать
picture_as_pdf

2089.pdf

5,136.1 KB

скачать
picture_as_pdf

2090.pdf

5,314.5 KB

скачать
picture_as_pdf

2091.pdf

4,949.1 KB

скачать
picture_as_pdf

2092.pdf

5,547.7 KB

скачать
picture_as_pdf

2093.pdf

3,385.0 KB

скачать
picture_as_pdf

2094.pdf

4,163.4 KB

скачать
picture_as_pdf

2095.pdf

7,333.3 KB

скачать
picture_as_pdf

2096.pdf

7,315.1 KB

скачать
picture_as_pdf

2097.pdf

5,338.7 KB

скачать
picture_as_pdf

2098.pdf

7,262.2 KB

скачать
picture_as_pdf

2099.pdf

28,664.5 KB

скачать
Товары Серия 3.900-3 (60)
ПСП 54 к12 ш (3.900-3)
Панели стеновые ПСП Серия 3.900-3
  • Длина 2980 мм.
  • Ширина 5720 мм.
  • Высота 1200 мм.
  • Вес 14550 кг.
  • Объем бетона 6,76 м3
  • Геометрический объем 20,4547 м3
Цена: 229502 руб.
Подробнее
ПСП 54 к12 ш1 (3.900-3)
Панели стеновые ПСП Серия 3.900-3
  • Длина 2980 мм.
  • Ширина 5720 мм.
  • Высота 1200 мм.
  • Вес 14550 кг.
  • Объем бетона 6,76 м3
  • Геометрический объем 20,4547 м3
Цена: 229502 руб.
Подробнее
ПСП 54 к2 к (3.900-3)
Панели стеновые ПСП Серия 3.900-3
  • Длина 2980 мм.
  • Ширина 5720 мм.
  • Высота 1200 мм.
  • Вес 14400 кг.
  • Объем бетона 6,76 м3
  • Геометрический объем 20,4547 м3
Цена: 229502 руб.
Подробнее
ПСП 54 к15 ш (3.900-3)
Панели стеновые ПСП Серия 3.900-3
  • Длина 2980 мм.
  • Ширина 5720 мм.
  • Высота 1200 мм.
  • Вес 14550 кг.
  • Объем бетона 6,76 м3
  • Геометрический объем 20,4547 м3
Цена: 229502 руб.
Подробнее
ПСП 54 к2 ш (3.900-3)
Панели стеновые ПСП Серия 3.900-3
  • Длина 2980 мм.
  • Ширина 5720 мм.
  • Высота 1200 мм.
  • Вес 14550 кг.
  • Объем бетона 6,76 м3
  • Геометрический объем 20,4547 м3
Цена: 229502 руб.
Подробнее
ПСП 54 к2 ш1 (3.900-3)
Панели стеновые ПСП Серия 3.900-3
  • Длина 2980 мм.
  • Ширина 5720 мм.
  • Высота 1200 мм.
  • Вес 14550 кг.
  • Объем бетона 6,76 м3
  • Геометрический объем 20,4547 м3
Цена: 229502 руб.
Подробнее
ПСП 60 б1 к (3.900-3)
Панели стеновые ПСП Серия 3.900-3
  • Длина 2980 мм.
  • Ширина 6400 мм.
  • Высота 1400 мм.
  • Вес 12900 кг.
  • Объем бетона 3,17 м3
  • Геометрический объем 26,7008 м3
Цена: 107622 руб.
Подробнее
ПСП 54 к5 к (3.900-3)
Панели стеновые ПСП Серия 3.900-3
  • Длина 2980 мм.
  • Ширина 5720 мм.
  • Высота 1200 мм.
  • Вес 14400 кг.
  • Объем бетона 6,76 м3
  • Геометрический объем 20,4547 м3
Цена: 229502 руб.
Подробнее
ПСП 54 к2 к1 (3.900-3)
Панели стеновые ПСП Серия 3.900-3
  • Длина 2980 мм.
  • Ширина 5720 мм.
  • Высота 1200 мм.
  • Вес 14400 кг.
  • Объем бетона 6,76 м3
  • Геометрический объем 20,4547 м3
Цена: 229502 руб.
Подробнее
ПСП 54 к5 ш (3.900-3)
Панели стеновые ПСП Серия 3.900-3
  • Длина 2980 мм.
  • Ширина 5720 мм.
  • Высота 1200 мм.
  • Вес 14550 кг.
  • Объем бетона 6,76 м3
  • Геометрический объем 20,4547 м3
Цена: 229502 руб.
Подробнее
ПСП 60 б1 ш (3.900-3)
Панели стеновые ПСП Серия 3.900-3
  • Длина 2980 мм.
  • Ширина 6400 мм.
  • Высота 1400 мм.
  • Вес 12900 кг.
  • Объем бетона 3,17 м3
  • Геометрический объем 26,7008 м3
Цена: 107622 руб.
Подробнее
ПСП 60 б2 к1 (3.900-3)
Панели стеновые ПСП Серия 3.900-3
  • Длина 2980 мм.
  • Ширина 6400 мм.
  • Высота 1400 мм.
  • Вес 12900 кг.
  • Объем бетона 3,17 м3
  • Геометрический объем 26,7008 м3
Цена: 107622 руб.
Подробнее
ПСП 60 б2 ш (3.900-3)
Панели стеновые ПСП Серия 3.900-3
  • Длина 2980 мм.
  • Ширина 6400 мм.
  • Высота 1400 мм.
  • Вес 12900 кг.
  • Объем бетона 3,17 м3
  • Геометрический объем 26,7008 м3
Цена: 107622 руб.
Подробнее
ПСП 60 б2 ш1 (3.900-3)
Панели стеновые ПСП Серия 3.900-3
  • Длина 2980 мм.
  • Ширина 6400 мм.
  • Высота 1400 мм.
  • Вес 12900 кг.
  • Объем бетона 3,17 м3
  • Геометрический объем 26,7008 м3
Цена: 107622 руб.
Подробнее
ПСП 60 к1 ш (3.900-3)
Панели стеновые ПСП Серия 3.900-3
  • Длина 2980 мм.
  • Ширина 6400 мм.
  • Высота 1400 мм.
  • Вес 15200 кг.
  • Объем бетона 6,08 м3
  • Геометрический объем 26,7008 м3
Цена: 206416 руб.
Подробнее
ПСП 60 б2 к (3.900-3)
Панели стеновые ПСП Серия 3.900-3
  • Длина 2980 мм.
  • Ширина 6400 мм.
  • Высота 1400 мм.
  • Вес 12900 кг.
  • Объем бетона 3,17 м3
  • Геометрический объем 26,7008 м3
Цена: 107622 руб.
Подробнее
ПСП 60 к11 к (3.900-3)
Панели стеновые ПСП Серия 3.900-3
  • Длина 2980 мм.
  • Ширина 6400 мм.
  • Высота 1400 мм.
  • Вес 15050 кг.
  • Объем бетона 6,02 м3
  • Геометрический объем 26,7008 м3
Цена: 204379 руб.
Подробнее
ПСП 60 к1 к (3.900-3)
Панели стеновые ПСП Серия 3.900-3
  • Длина 2980 мм.
  • Ширина 6400 мм.
  • Высота 1400 мм.
  • Вес 15050 кг.
  • Объем бетона 6,02 м3
  • Геометрический объем 26,7008 м3
Цена: 204379 руб.
Подробнее
ПСП 60 к11 ш (3.900-3)
Панели стеновые ПСП Серия 3.900-3
  • Длина 2980 мм.
  • Ширина 6400 мм.
  • Высота 1400 мм.
  • Вес 15200 кг.
  • Объем бетона 6,08 м3
  • Геометрический объем 26,7008 м3
Цена: 206416 руб.
Подробнее
ПСП 60 к12 ш (3.900-3)
Панели стеновые ПСП Серия 3.900-3
  • Длина 2980 мм.
  • Ширина 6400 мм.
  • Высота 1400 мм.
  • Вес 15200 кг.
  • Объем бетона 6,08 м3
  • Геометрический объем 26,7008 м3
Цена: 206416 руб.
Подробнее
ПСП 60 к12 к (3.900-3)
Панели стеновые ПСП Серия 3.900-3
  • Длина 2980 мм.
  • Ширина 6400 мм.
  • Высота 1400 мм.
  • Вес 15050 кг.
  • Объем бетона 6,02 м3
  • Геометрический объем 26,7008 м3
Цена: 204379 руб.
Подробнее
ПСП 60 к12 ш1 (3.900-3)
Панели стеновые ПСП Серия 3.900-3
  • Длина 2980 мм.
  • Ширина 6400 мм.
  • Высота 1400 мм.
  • Вес 15200 кг.
  • Объем бетона 6,08 м3
  • Геометрический объем 26,7008 м3
Цена: 206416 руб.
Подробнее
ПСП 60 к12 к1 (3.900-3)
Панели стеновые ПСП Серия 3.900-3
  • Длина 2980 мм.
  • Ширина 6400 мм.
  • Высота 1400 мм.
  • Вес 15050 кг.
  • Объем бетона 6,02 м3
  • Геометрический объем 26,7008 м3
Цена: 204379 руб.
Подробнее
ПСП 60 к2 к (3.900-3)
Панели стеновые ПСП Серия 3.900-3
  • Длина 2980 мм.
  • Ширина 6400 мм.
  • Высота 1400 мм.
  • Вес 15050 кг.
  • Объем бетона 6,02 м3
  • Геометрический объем 26,7008 м3
Цена: 204379 руб.
Подробнее
ПСП 60 к2 к1 (3.900-3)
Панели стеновые ПСП Серия 3.900-3
  • Длина 2980 мм.
  • Ширина 6400 мм.
  • Высота 1400 мм.
  • Вес 15050 кг.
  • Объем бетона 6,02 м3
  • Геометрический объем 26,7008 м3
Цена: 204379 руб.
Подробнее
ПСП 60 к2 ш (3.900-3)
Панели стеновые ПСП Серия 3.900-3
  • Длина 2980 мм.
  • Ширина 6400 мм.
  • Высота 1400 мм.
  • Вес 15200 кг.
  • Объем бетона 6,08 м3
  • Геометрический объем 26,7008 м3
Цена: 206416 руб.
Подробнее
ПСП 60 к2 ш1 (3.900-3)
Панели стеновые ПСП Серия 3.900-3
  • Длина 2980 мм.
  • Ширина 6400 мм.
  • Высота 1400 мм.
  • Вес 15200 кг.
  • Объем бетона 6,08 м3
  • Геометрический объем 26,7008 м3
Цена: 206416 руб.
Подробнее
ПДР (3.900-3)
Плиты днища распределительные Серия 3.900-3
  • Длина 2100 мм.
  • Ширина 1500 мм.
  • Высота 200 мм.
  • Вес 1580 кг.
  • Объем бетона 0,63 м3
  • Геометрический объем 0,63 м3
Цена: 9167 руб.
Подробнее
КЦО 2
Опорные плиты Серия 3.900-3
  • Длина 1700 мм.
  • Ширина 1700 мм.
  • Высота 150 мм.
  • Вес 800 кг.
  • Объем бетона 0,32 м3
  • Геометрический объем 0,4335 м3
Цена: 10864 руб.
Подробнее
ПТ 12-30
Плиты покрытия лотков Серия 3.900-3
  • Длина 2990 мм.
  • Ширина 1450 мм.
  • Высота 80 мм.
  • Вес 880 кг.
  • Объем бетона 0,35 м3
  • Геометрический объем 0,3468 м3
Цена: 10185 руб.
Подробнее
ПТ 15-30
Плиты покрытия лотков Серия 3.900-3
  • Длина 2990 мм.
  • Ширина 1800 мм.
  • Высота 80 мм.
  • Вес 1080 кг.
  • Объем бетона 0,43 м3
  • Геометрический объем 0,4306 м3
Цена: 12513 руб.
Подробнее
ПТ 15-6
Плиты покрытия лотков Серия 3.900-3
  • Длина 590 мм.
  • Ширина 1800 мм.
  • Высота 80 мм.
  • Вес 210 кг.
  • Объем бетона 0,08 м3
  • Геометрический объем 0,085 м3
Цена: 2328 руб.
Подробнее
ПТ 18-30
Плиты покрытия лотков Серия 3.900-3
  • Длина 2990 мм.
  • Ширина 2100 мм.
  • Высота 80 мм.
  • Вес 1250 кг.
  • Объем бетона 0,5 м3
  • Геометрический объем 0,5023 м3
Цена: 14550 руб.
Подробнее
ПТ 12-6
Плиты покрытия лотков Серия 3.900-3
  • Длина 590 мм.
  • Ширина 1450 мм.
  • Высота 80 мм.
  • Вес 170 кг.
  • Объем бетона 0,07 м3
  • Геометрический объем 0,0684 м3
Цена: 2037 руб.
Подробнее
ПТ 18-6
Плиты покрытия лотков Серия 3.900-3
  • Длина 590 мм.
  • Ширина 2100 мм.
  • Высота 80 мм.
  • Вес 250 кг.
  • Объем бетона 0,1 м3
  • Геометрический объем 0,0991 м3
Цена: 2910 руб.
Подробнее
ПТ 2-6
Плиты покрытия лотков Серия 3.900-3
  • Длина 590 мм.
  • Ширина 400 мм.
  • Высота 50 мм.
  • Вес 30 кг.
  • Объем бетона 0,01 м3
  • Геометрический объем 0,0118 м3
Цена: 291 руб.
Подробнее
ПТ 4,5-6
Плиты покрытия лотков Серия 3.900-3
  • Длина 590 мм.
  • Ширина 650 мм.
  • Высота 50 мм.
  • Вес 50 кг.
  • Объем бетона 0,02 м3
  • Геометрический объем 0,0192 м3
Цена: 582 руб.
Подробнее
ПТ 6-6
Плиты покрытия лотков Серия 3.900-3
  • Длина 590 мм.
  • Ширина 850 мм.
  • Высота 50 мм.
  • Вес 60 кг.
  • Объем бетона 0,02 м3
  • Геометрический объем 0,0251 м3
Цена: 582 руб.
Подробнее
ПТ 3-6
Плиты покрытия лотков Серия 3.900-3
  • Длина 590 мм.
  • Ширина 500 мм.
  • Высота 50 мм.
  • Вес 40 кг.
  • Объем бетона 0,02 м3
  • Геометрический объем 0,0147 м3
Цена: 582 руб.
Подробнее
ПТ 9-30
Плиты покрытия лотков Серия 3.900-3
  • Длина 2990 мм.
  • Ширина 1150 мм.
  • Высота 80 мм.
  • Вес 700 кг.
  • Объем бетона 0,28 м3
  • Геометрический объем 0,2751 м3
Цена: 8148 руб.
Подробнее
ПТ 9-6
Плиты покрытия лотков Серия 3.900-3
  • Длина 590 мм.
  • Ширина 1150 мм.
  • Высота 80 мм.
  • Вес 140 кг.
  • Объем бетона 0,05 м3
  • Геометрический объем 0,0543 м3
Цена: 1455 руб.
Подробнее
1ПР 1 (3.900-3)
Плиты покрытия Серия 3.900-3
  • Длина 5970 мм.
  • Ширина 2970 мм.
  • Высота 500 мм.
  • Вес 4580 кг.
  • Объем бетона 1,83 м3
  • Геометрический объем 8,8654 м3
Цена: 30177 руб.
Подробнее
1ПР 2 (3.900-3)
Плиты покрытия Серия 3.900-3
  • Длина 5970 мм.
  • Ширина 2970 мм.
  • Высота 500 мм.
  • Вес 4580 кг.
  • Объем бетона 1,83 м3
  • Геометрический объем 8,8654 м3
Цена: 30177 руб.
Подробнее
1ПР 4 (3.900-3)
Плиты покрытия Серия 3.900-3
  • Длина 5970 мм.
  • Ширина 2970 мм.
  • Высота 500 мм.
  • Вес 4580 кг.
  • Объем бетона 1,83 м3
  • Геометрический объем 8,8654 м3
Цена: 30177 руб.
Подробнее
1ПР 3 (3.900-3)
Плиты покрытия Серия 3.900-3
  • Длина 5970 мм.
  • Ширина 2970 мм.
  • Высота 500 мм.
  • Вес 4580 кг.
  • Объем бетона 1,83 м3
  • Геометрический объем 8,8654 м3
Цена: 30177 руб.
Подробнее
2ПР 1 (3.900-3)
Плиты покрытия Серия 3.900-3
  • Длина 5970 мм.
  • Ширина 2970 мм.
  • Высота 500 мм.
  • Вес 4680 кг.
  • Объем бетона 1,87 м3
  • Геометрический объем 8,8654 м3
Цена: 30836 руб.
Подробнее
2ПР 4 (3.900-3)
Плиты покрытия Серия 3.900-3
  • Длина 5970 мм.
  • Ширина 2970 мм.
  • Высота 500 мм.
  • Вес 4680 кг.
  • Объем бетона 1,87 м3
  • Геометрический объем 8,8654 м3
Цена: 30836 руб.
Подробнее
3ПР 1 (3.900-3)
Плиты покрытия Серия 3.900-3
  • Длина 5970 мм.
  • Ширина 2970 мм.
  • Высота 250 мм.
  • Вес 4250 кг.
  • Объем бетона 1,7 м3
  • Геометрический объем 4,4327 м3
Цена: 28033 руб.
Подробнее
2ПР 2 (3.900-3)
Плиты покрытия Серия 3.900-3
  • Длина 5970 мм.
  • Ширина 2970 мм.
  • Высота 500 мм.
  • Вес 4680 кг.
  • Объем бетона 1,87 м3
  • Геометрический объем 8,8654 м3
Цена: 30836 руб.
Подробнее
2ПР 3 (3.900-3)
Плиты покрытия Серия 3.900-3
  • Длина 5970 мм.
  • Ширина 2970 мм.
  • Высота 500 мм.
  • Вес 4680 кг.
  • Объем бетона 1,87 м3
  • Геометрический объем 8,8654 м3
Цена: 30836 руб.
Подробнее
3ПР 2 (3.900-3)
Плиты покрытия Серия 3.900-3
  • Длина 5970 мм.
  • Ширина 2970 мм.
  • Высота 250 мм.
  • Вес 4250 кг.
  • Объем бетона 1,7 м3
  • Геометрический объем 4,4327 м3
Цена: 28033 руб.
Подробнее
3ПР 3 (3.900-3)
Плиты покрытия Серия 3.900-3
  • Длина 5970 мм.
  • Ширина 2970 мм.
  • Высота 250 мм.
  • Вес 4250 кг.
  • Объем бетона 1,7 м3
  • Геометрический объем 4,4327 м3
Цена: 28033 руб.
Подробнее
3ПР 4 (3.900-3)
Плиты покрытия Серия 3.900-3
  • Длина 5970 мм.
  • Ширина 2970 мм.
  • Высота 250 мм.
  • Вес 4250 кг.
  • Объем бетона 1,7 м3
  • Геометрический объем 4,4327 м3
Цена: 28033 руб.
Подробнее
4ПР 1 (3.900-3)
Плиты покрытия Серия 3.900-3
  • Длина 5970 мм.
  • Ширина 2970 мм.
  • Высота 500 мм.
  • Вес 4400 кг.
  • Объем бетона 1,77 м3
  • Геометрический объем 8,8654 м3
Цена: 29187 руб.
Подробнее
4ПР 2 (3.900-3)
Плиты покрытия Серия 3.900-3
  • Длина 5970 мм.
  • Ширина 2970 мм.
  • Высота 500 мм.
  • Вес 4400 кг.
  • Объем бетона 1,77 м3
  • Геометрический объем 8,8654 м3
Цена: 29187 руб.
Подробнее
4ПР 2 а (3.900-3)
Плиты покрытия Серия 3.900-3
  • Длина 5970 мм.
  • Ширина 2970 мм.
  • Высота 500 мм.
  • Вес 4350 кг.
  • Объем бетона 1,74 м3
  • Геометрический объем 8,8654 м3
Цена: 28693 руб.
Подробнее
4ПР 1 а (3.900-3)
Плиты покрытия Серия 3.900-3
  • Длина 5970 мм.
  • Ширина 2970 мм.
  • Высота 500 мм.
  • Вес 4350 кг.
  • Объем бетона 1,74 м3
  • Геометрический объем 8,8654 м3
Цена: 28693 руб.
Подробнее
4ПР 3 (3.900-3)
Плиты покрытия Серия 3.900-3
  • Длина 5970 мм.
  • Ширина 2970 мм.
  • Высота 500 мм.
  • Вес 4400 кг.
  • Объем бетона 1,77 м3
  • Геометрический объем 8,8654 м3
Цена: 29187 руб.
Подробнее
4ПР 3 а (3.900-3)
Плиты покрытия Серия 3.900-3
  • Длина 5970 мм.
  • Ширина 2970 мм.
  • Высота 500 мм.
  • Вес 4350 кг.
  • Объем бетона 1,74 м3
  • Геометрический объем 8,8654 м3
Цена: 28693 руб.
Подробнее
4ПР 4 (3.900-3)
Плиты покрытия Серия 3.900-3
  • Длина 5970 мм.
  • Ширина 2970 мм.
  • Высота 500 мм.
  • Вес 4400 кг.
  • Объем бетона 1,77 м3
  • Геометрический объем 8,8654 м3
Цена: 29187 руб.
Подробнее

Уведомление о файлах cookie

Мы используем файлы cookie для улучшения вашего опыта просмотра и анализа трафика. Нажимая "Принять все", вы соглашаетесь с нашей политикой конфиденциальности и политикой обработки файлов cookie.

MAX Дзен Телеграм Вконтакте vk