mobile_sound +7 (930) 655-55-90

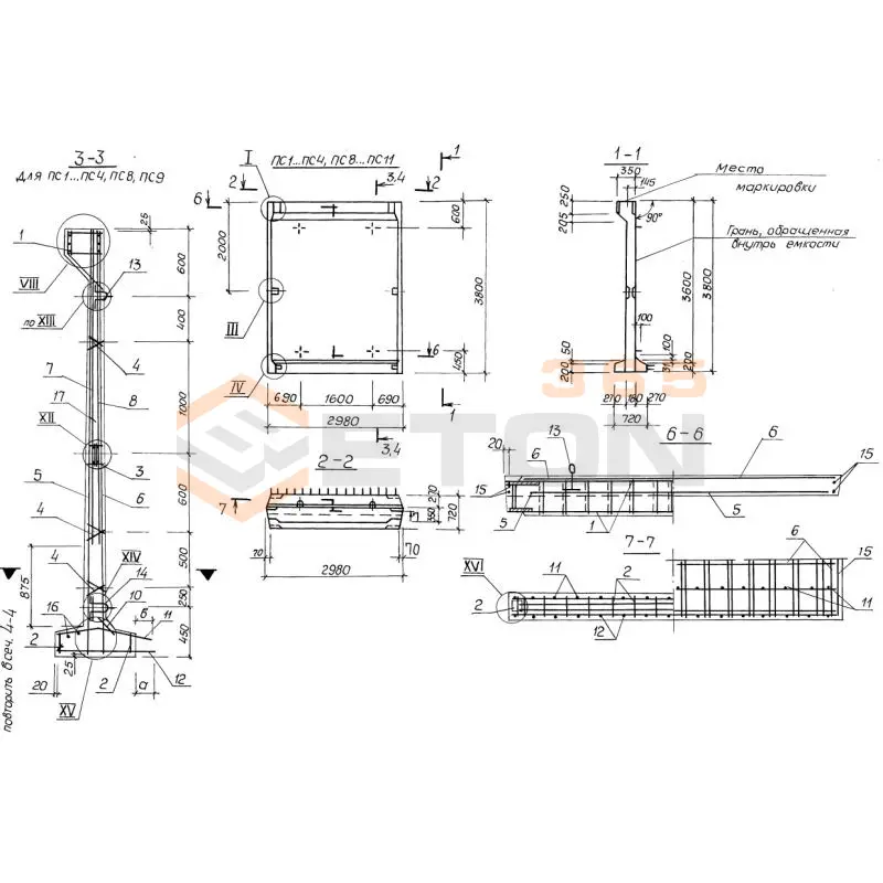
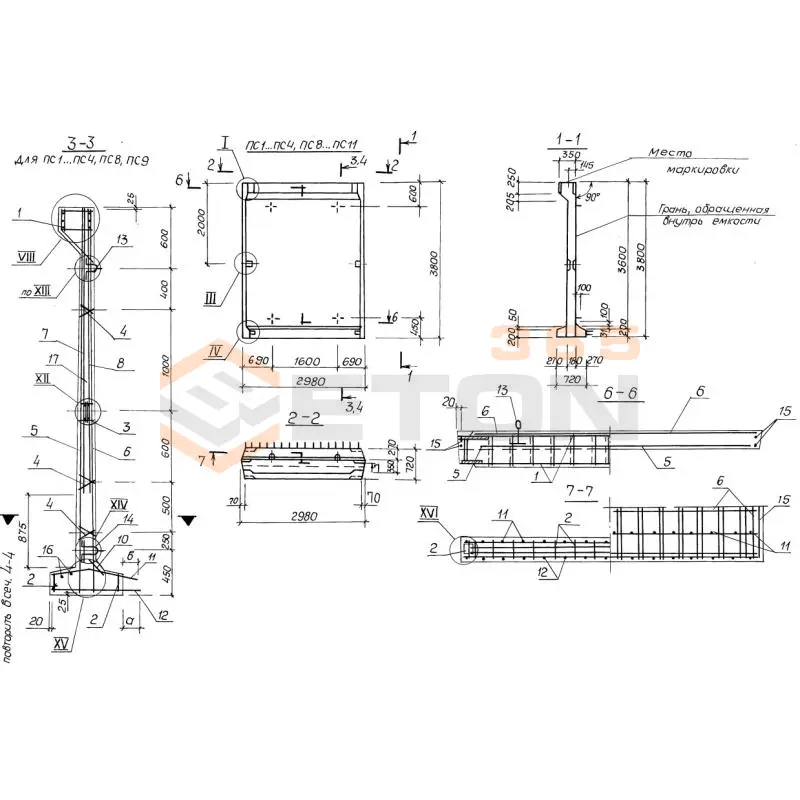
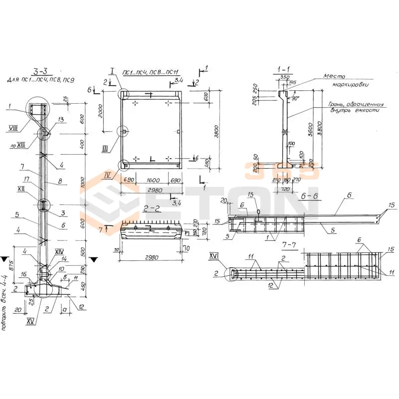
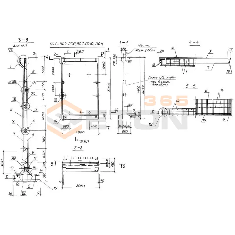
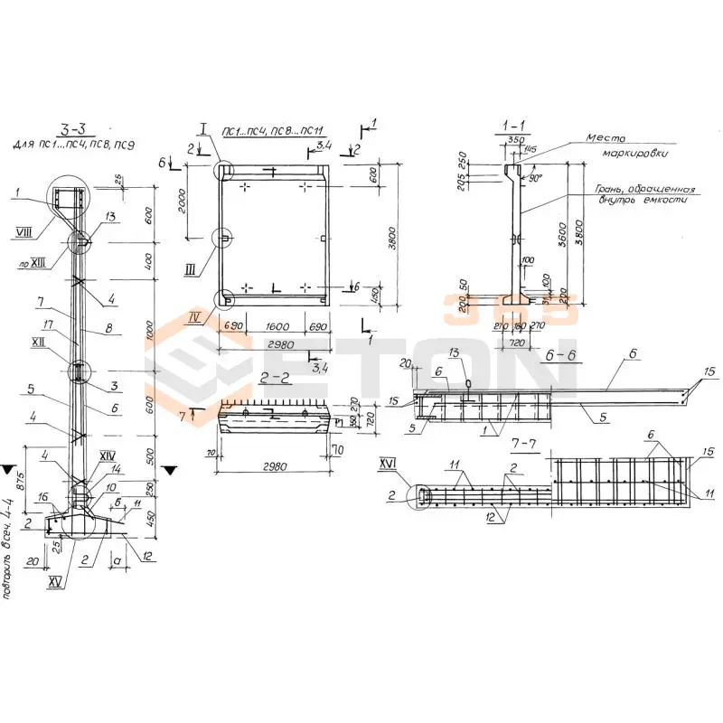
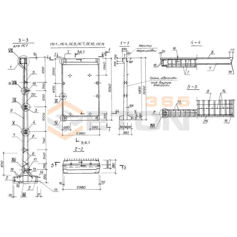
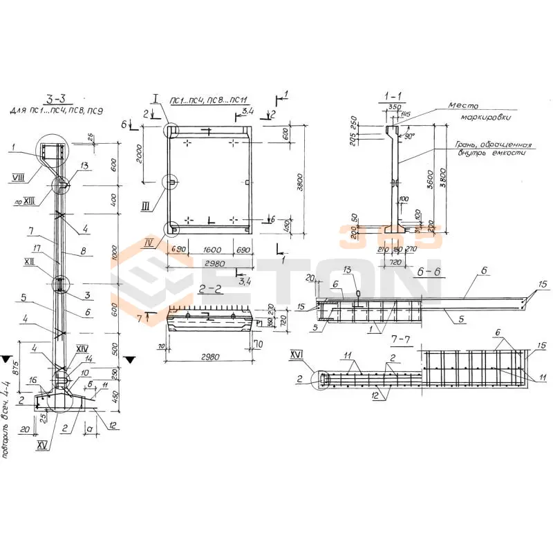
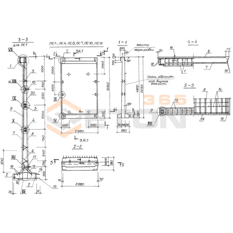
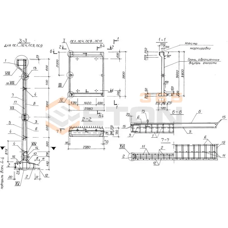
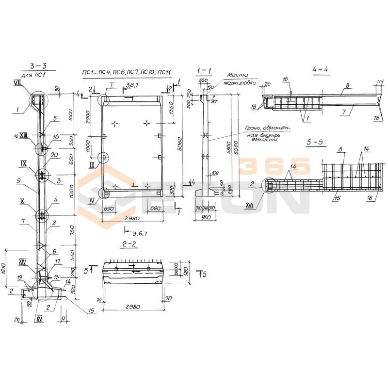
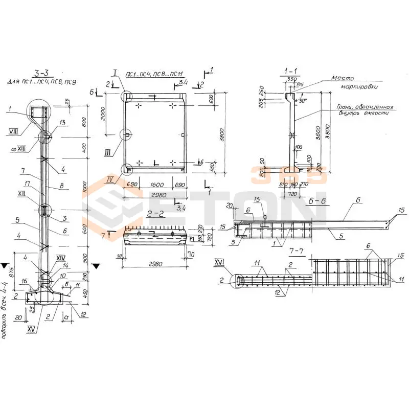
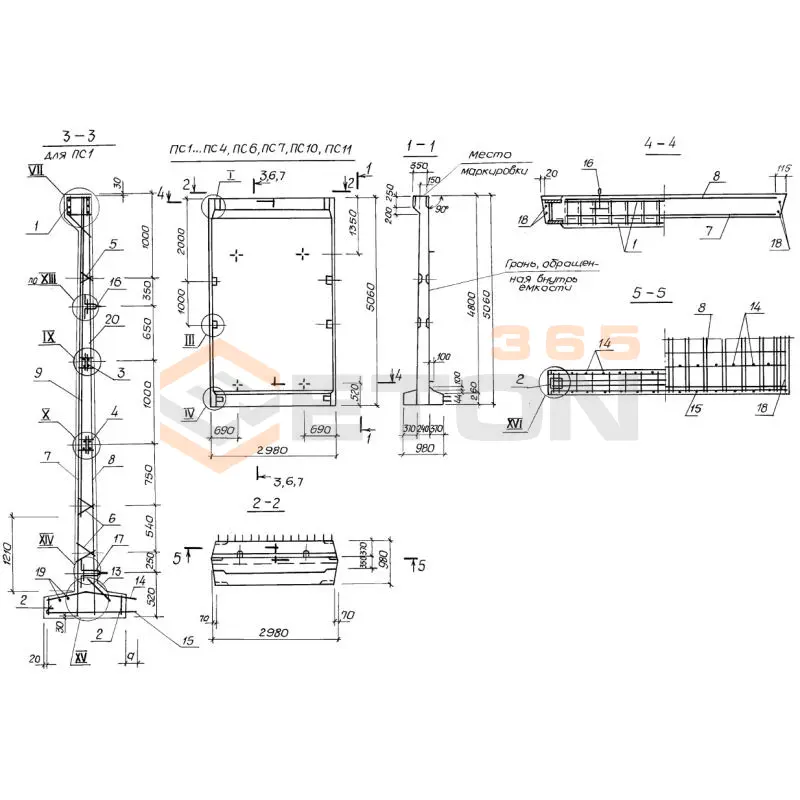
Железобетонные опоры линий электропередачи. Рабочие чертежи (Серия 3.900-3)

Поделиться:
Поделиться:

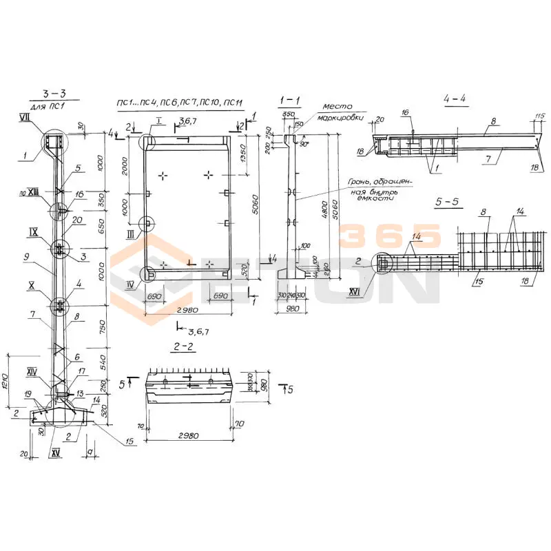
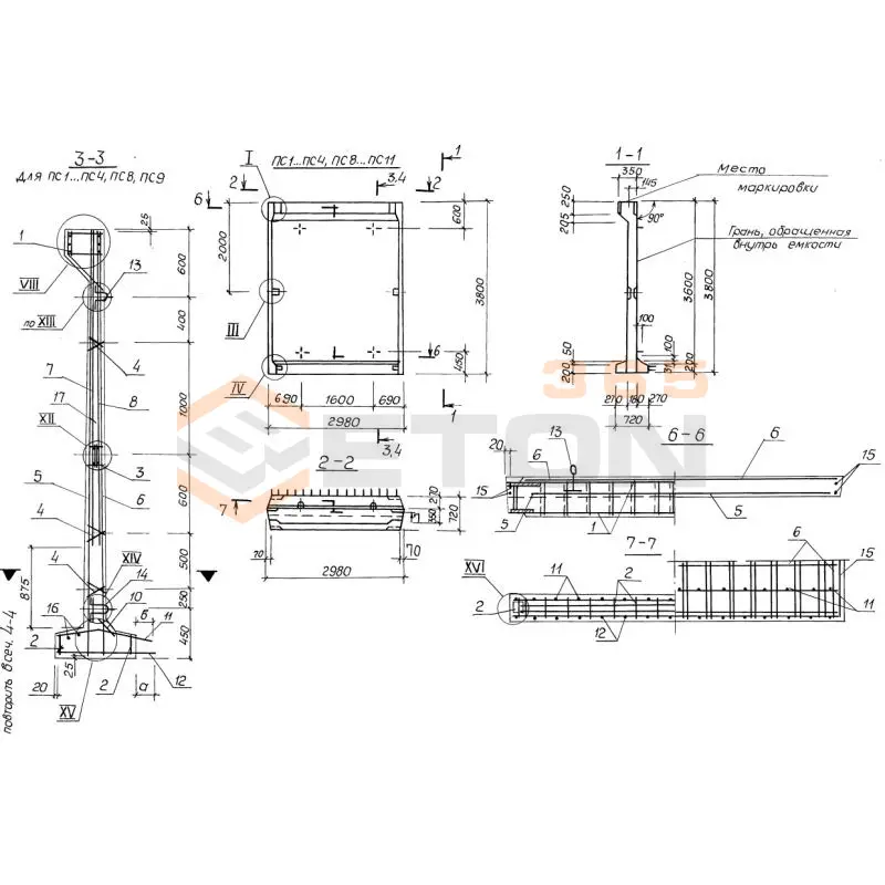
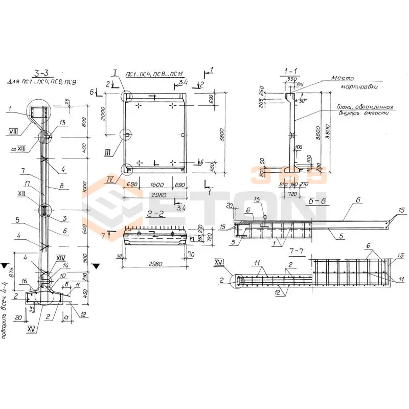
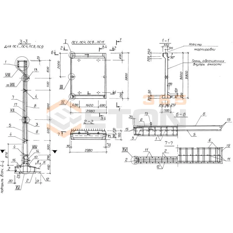
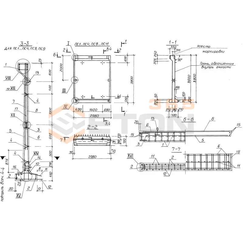
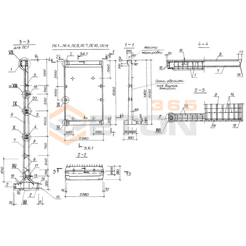
Документ Серия 3.900-3 описывает область применения, номенклатуру и ключевые требования, опираясь на действующие нормы и практику проектирования. Серия 3.900-3 состоит из большого числа выпусков (29), охватывающих все тонкости и нюансы проектирования и производства сборных железобетонных изделия и конструкции, предназначенных под возведение емкостных сооружений под водоснабжение и канализацию. Регламент собрал воедино накопленные опыт и знания строительной сферы для разработки максимально эффективных конструкций, в число которых вошли: стеновые панели различных конфигураций и геометрических пропорций, лотковые элементы и изделия и конструкции круглых колодезных сооружений. Благодаря комбинированию запроектированных элементов становится возможным удовлетворить потребности большого числа типовых проектов.

Файлы для скачивания:
picture_as_pdf

2081.pdf

24,274.7 KB

скачать
picture_as_pdf

2082.pdf

20,984.3 KB

скачать
picture_as_pdf

2100.pdf

11,586.0 KB

скачать
picture_as_pdf

2101.pdf

7,958.1 KB

скачать
picture_as_pdf

2102.pdf

11,836.0 KB

скачать
picture_as_pdf

2103.pdf

7,952.1 KB

скачать
picture_as_pdf

2104.pdf

11,609.3 KB

скачать
picture_as_pdf

2105.pdf

10,970.0 KB

скачать
picture_as_pdf

2106.pdf

12,009.1 KB

скачать
picture_as_pdf

2107.pdf

12,286.4 KB

скачать
picture_as_pdf

2108.pdf

5,230.4 KB

скачать
picture_as_pdf

2109.pdf

16,283.8 KB

скачать
picture_as_pdf

2083.pdf

8,521.6 KB

скачать
picture_as_pdf

2084.pdf

8,174.8 KB

скачать
picture_as_pdf

2085.pdf

6,033.3 KB

скачать
picture_as_pdf

2086.pdf

6,830.6 KB

скачать
picture_as_pdf

2087.pdf

11,382.0 KB

скачать
picture_as_pdf

2088.pdf

4,873.4 KB

скачать
picture_as_pdf

2089.pdf

5,136.1 KB

скачать
picture_as_pdf

2090.pdf

5,314.5 KB

скачать
picture_as_pdf

2091.pdf

4,949.1 KB

скачать
picture_as_pdf

2092.pdf

5,547.7 KB

скачать
picture_as_pdf

2093.pdf

3,385.0 KB

скачать
picture_as_pdf

2094.pdf

4,163.4 KB

скачать
picture_as_pdf

2095.pdf

7,333.3 KB

скачать
picture_as_pdf

2096.pdf

7,315.1 KB

скачать
picture_as_pdf

2097.pdf

5,338.7 KB

скачать
picture_as_pdf

2098.pdf

7,262.2 KB

скачать
picture_as_pdf

2099.pdf

28,664.5 KB

скачать
Товары Серия 3.900-3 (60)
ПСП 36 к1 ш (3.900-3)
Панели стеновые ПСП Серия 3.900-3
  • Длина 2980 мм.
  • Ширина 3800 мм.
  • Высота 720 мм.
  • Вес 7600 кг.
  • Объем бетона 3,04 м3
  • Геометрический объем 8,1533 м3
Цена: 103208 руб.
Подробнее
ПСП 36 к1 к (3.900-3)
Панели стеновые ПСП Серия 3.900-3
  • Длина 2980 мм.
  • Ширина 3800 мм.
  • Высота 720 мм.
  • Вес 7550 кг.
  • Объем бетона 3,02 м3
  • Геометрический объем 8,1533 м3
Цена: 102529 руб.
Подробнее
ПСП 36 к1 ш1 (3.900-3)
Панели стеновые ПСП Серия 3.900-3
  • Длина 2980 мм.
  • Ширина 3800 мм.
  • Высота 720 мм.
  • Вес 7600 кг.
  • Объем бетона 3,04 м3
  • Геометрический объем 8,1533 м3
Цена: 103208 руб.
Подробнее
ПСП 36 к11 к (3.900-3)
Панели стеновые ПСП Серия 3.900-3
  • Длина 2980 мм.
  • Ширина 3800 мм.
  • Высота 720 мм.
  • Вес 7550 кг.
  • Объем бетона 3,02 м3
  • Геометрический объем 8,1533 м3
Цена: 102529 руб.
Подробнее
ПСП 36 к11 ш (3.900-3)
Панели стеновые ПСП Серия 3.900-3
  • Длина 2980 мм.
  • Ширина 3800 мм.
  • Высота 720 мм.
  • Вес 7600 кг.
  • Объем бетона 3,04 м3
  • Геометрический объем 8,1533 м3
Цена: 103208 руб.
Подробнее
ПСП 36 к11 к1 (3.900-3)
Панели стеновые ПСП Серия 3.900-3
  • Длина 2980 мм.
  • Ширина 3800 мм.
  • Высота 720 мм.
  • Вес 7550 кг.
  • Объем бетона 3,02 м3
  • Геометрический объем 8,1533 м3
Цена: 102529 руб.
Подробнее
ПСП 36 к11 ш1 (3.900-3)
Панели стеновые ПСП Серия 3.900-3
  • Длина 2980 мм.
  • Ширина 3800 мм.
  • Высота 720 мм.
  • Вес 7600 кг.
  • Объем бетона 3,04 м3
  • Геометрический объем 8,1533 м3
Цена: 103208 руб.
Подробнее
ПСП 36 к12 к2 (3.900-3)
Панели стеновые ПСП Серия 3.900-3
  • Длина 2980 мм.
  • Ширина 3800 мм.
  • Высота 720 мм.
  • Вес 7550 кг.
  • Объем бетона 3,02 м3
  • Геометрический объем 8,1533 м3
Цена: 102529 руб.
Подробнее
ПСП 36 к12 ш2 (3.900-3)
Панели стеновые ПСП Серия 3.900-3
  • Длина 2980 мм.
  • Ширина 3800 мм.
  • Высота 720 мм.
  • Вес 7600 кг.
  • Объем бетона 3,04 м3
  • Геометрический объем 8,1533 м3
Цена: 103208 руб.
Подробнее
ПСП 36 к13 к (3.900-3)
Панели стеновые ПСП Серия 3.900-3
  • Длина 2980 мм.
  • Ширина 3800 мм.
  • Высота 720 мм.
  • Вес 7550 кг.
  • Объем бетона 3,02 м3
  • Геометрический объем 8,1533 м3
Цена: 102529 руб.
Подробнее
ПСП 36 к13 к1 (3.900-3)
Панели стеновые ПСП Серия 3.900-3
  • Длина 2980 мм.
  • Ширина 3800 мм.
  • Высота 720 мм.
  • Вес 7550 кг.
  • Объем бетона 3,02 м3
  • Геометрический объем 8,1533 м3
Цена: 102529 руб.
Подробнее
ПСП 36 к13 ш1 (3.900-3)
Панели стеновые ПСП Серия 3.900-3
  • Длина 2980 мм.
  • Ширина 3800 мм.
  • Высота 720 мм.
  • Вес 7600 кг.
  • Объем бетона 3,04 м3
  • Геометрический объем 8,1533 м3
Цена: 103208 руб.
Подробнее
ПСП 36 к13 ш (3.900-3)
Панели стеновые ПСП Серия 3.900-3
  • Длина 2980 мм.
  • Ширина 3800 мм.
  • Высота 720 мм.
  • Вес 7600 кг.
  • Объем бетона 3,04 м3
  • Геометрический объем 8,1533 м3
Цена: 103208 руб.
Подробнее
ПСП 36 к14 к2 (3.900-3)
Панели стеновые ПСП Серия 3.900-3
  • Длина 2980 мм.
  • Ширина 3800 мм.
  • Высота 720 мм.
  • Вес 7550 кг.
  • Объем бетона 3,02 м3
  • Геометрический объем 8,1533 м3
Цена: 102529 руб.
Подробнее
ПСП 36 к14 ш12 (3.900-3)
Панели стеновые ПСП Серия 3.900-3
  • Длина 2980 мм.
  • Ширина 3800 мм.
  • Высота 720 мм.
  • Вес 7600 кг.
  • Объем бетона 3,04 м3
  • Геометрический объем 8,1533 м3
Цена: 103208 руб.
Подробнее
ПСП 36 к2 к2 (3.900-3)
Панели стеновые ПСП Серия 3.900-3
  • Длина 2980 мм.
  • Ширина 3800 мм.
  • Высота 720 мм.
  • Вес 7550 кг.
  • Объем бетона 3,02 м3
  • Геометрический объем 8,1533 м3
Цена: 102529 руб.
Подробнее
ПСП 36 к3 к (3.900-3)
Панели стеновые ПСП Серия 3.900-3
  • Длина 2980 мм.
  • Ширина 3800 мм.
  • Высота 720 мм.
  • Вес 7550 кг.
  • Объем бетона 3,02 м3
  • Геометрический объем 8,1533 м3
Цена: 102529 руб.
Подробнее
ПСП 36 к2 ш2 (3.900-3)
Панели стеновые ПСП Серия 3.900-3
  • Длина 2980 мм.
  • Ширина 3800 мм.
  • Высота 720 мм.
  • Вес 7600 кг.
  • Объем бетона 3,04 м3
  • Геометрический объем 8,1533 м3
Цена: 103208 руб.
Подробнее
ПСП 36 к3 ш (3.900-3)
Панели стеновые ПСП Серия 3.900-3
  • Длина 2980 мм.
  • Ширина 3800 мм.
  • Высота 720 мм.
  • Вес 7600 кг.
  • Объем бетона 3,04 м3
  • Геометрический объем 8,1533 м3
Цена: 103208 руб.
Подробнее
ПСП 36 к3 к1 (3.900-3)
Панели стеновые ПСП Серия 3.900-3
  • Длина 2980 мм.
  • Ширина 3800 мм.
  • Высота 720 мм.
  • Вес 7550 кг.
  • Объем бетона 3,02 м3
  • Геометрический объем 8,1533 м3
Цена: 102529 руб.
Подробнее
ПСП 36 к3 ш1 (3.900-3)
Панели стеновые ПСП Серия 3.900-3
  • Длина 2980 мм.
  • Ширина 3800 мм.
  • Высота 720 мм.
  • Вес 7600 кг.
  • Объем бетона 3,04 м3
  • Геометрический объем 8,1533 м3
Цена: 103208 руб.
Подробнее
ПСП 36 к4 к2 (3.900-3)
Панели стеновые ПСП Серия 3.900-3
  • Длина 2980 мм.
  • Ширина 3800 мм.
  • Высота 720 мм.
  • Вес 7550 кг.
  • Объем бетона 3,02 м3
  • Геометрический объем 8,1533 м3
Цена: 102529 руб.
Подробнее
ПСП 42 б1 к (3.900-3)
Панели стеновые ПСП Серия 3.900-3
  • Длина 2980 мм.
  • Ширина 4460 мм.
  • Высота 980 мм.
  • Вес 8600 кг.
  • Объем бетона 3,44 м3
  • Геометрический объем 13,025 м3
Цена: 116788 руб.
Подробнее
ПСП 36 к4 ш2 (3.900-3)
Панели стеновые ПСП Серия 3.900-3
  • Длина 2980 мм.
  • Ширина 3800 мм.
  • Высота 720 мм.
  • Вес 7600 кг.
  • Объем бетона 3,04 м3
  • Геометрический объем 8,1533 м3
Цена: 103208 руб.
Подробнее
ПСП 42 б1 ш (3.900-3)
Панели стеновые ПСП Серия 3.900-3
  • Длина 2980 мм.
  • Ширина 4460 мм.
  • Высота 980 мм.
  • Вес 8600 кг.
  • Объем бетона 3,44 м3
  • Геометрический объем 13,025 м3
Цена: 116788 руб.
Подробнее
ПСП 42 б2 к (3.900-3)
Панели стеновые ПСП Серия 3.900-3
  • Длина 2980 мм.
  • Ширина 4460 мм.
  • Высота 980 мм.
  • Вес 8600 кг.
  • Объем бетона 3,44 м3
  • Геометрический объем 13,025 м3
Цена: 116788 руб.
Подробнее
ПСП 42 б2 к1 (3.900-3)
Панели стеновые ПСП Серия 3.900-3
  • Длина 2980 мм.
  • Ширина 4460 мм.
  • Высота 980 мм.
  • Вес 8600 кг.
  • Объем бетона 3,44 м3
  • Геометрический объем 13,025 м3
Цена: 116788 руб.
Подробнее
ПСП 42 б2 ш (3.900-3)
Панели стеновые ПСП Серия 3.900-3
  • Длина 2980 мм.
  • Ширина 4460 мм.
  • Высота 980 мм.
  • Вес 8600 кг.
  • Объем бетона 3,44 м3
  • Геометрический объем 13,025 м3
Цена: 116788 руб.
Подробнее
ПСП 42 б2 ш1 (3.900-3)
Панели стеновые ПСП Серия 3.900-3
  • Длина 2980 мм.
  • Ширина 4460 мм.
  • Высота 980 мм.
  • Вес 8600 кг.
  • Объем бетона 3,44 м3
  • Геометрический объем 13,025 м3
Цена: 116788 руб.
Подробнее
ПСП 42 к1 к1 (3.900-3)
Панели стеновые ПСП Серия 3.900-3
  • Длина 2980 мм.
  • Ширина 4460 мм.
  • Высота 980 мм.
  • Вес 8100 кг.
  • Объем бетона 3,24 м3
  • Геометрический объем 13,025 м3
Цена: 109998 руб.
Подробнее
ПСП 42 к1 к2 (3.900-3)
Панели стеновые ПСП Серия 3.900-3
  • Длина 2980 мм.
  • Ширина 4460 мм.
  • Высота 980 мм.
  • Вес 8100 кг.
  • Объем бетона 3,24 м3
  • Геометрический объем 13,025 м3
Цена: 109998 руб.
Подробнее
ПСП 42 к1 ш1 (3.900-3)
Панели стеновые ПСП Серия 3.900-3
  • Длина 2980 мм.
  • Ширина 4460 мм.
  • Высота 980 мм.
  • Вес 8150 кг.
  • Объем бетона 3,26 м3
  • Геометрический объем 13,025 м3
Цена: 110677 руб.
Подробнее
ПСП 42 к1 ш2 (3.900-3)
Панели стеновые ПСП Серия 3.900-3
  • Длина 2980 мм.
  • Ширина 4460 мм.
  • Высота 980 мм.
  • Вес 8150 кг.
  • Объем бетона 3,26 м3
  • Геометрический объем 13,025 м3
Цена: 110677 руб.
Подробнее
ПСП 42 к11 к1 (3.900-3)
Панели стеновые ПСП Серия 3.900-3
  • Длина 2980 мм.
  • Ширина 4460 мм.
  • Высота 980 мм.
  • Вес 8100 кг.
  • Объем бетона 3,24 м3
  • Геометрический объем 13,025 м3
Цена: 109998 руб.
Подробнее
ПСП 42 к11 ш2 (3.900-3)
Панели стеновые ПСП Серия 3.900-3
  • Длина 2980 мм.
  • Ширина 4460 мм.
  • Высота 980 мм.
  • Вес 8150 кг.
  • Объем бетона 3,26 м3
  • Геометрический объем 13,025 м3
Цена: 110677 руб.
Подробнее
ПСП 42 к11 ш1 (3.900-3)
Панели стеновые ПСП Серия 3.900-3
  • Длина 2980 мм.
  • Ширина 4460 мм.
  • Высота 980 мм.
  • Вес 8150 кг.
  • Объем бетона 3,26 м3
  • Геометрический объем 13,025 м3
Цена: 110677 руб.
Подробнее
ПСП 42 к12 к2 (3.900-3)
Панели стеновые ПСП Серия 3.900-3
  • Длина 2980 мм.
  • Ширина 4460 мм.
  • Высота 980 мм.
  • Вес 8100 кг.
  • Объем бетона 3,24 м3
  • Геометрический объем 13,025 м3
Цена: 109998 руб.
Подробнее
ПСП 42 к12 ш2 (3.900-3)
Панели стеновые ПСП Серия 3.900-3
  • Длина 2980 мм.
  • Ширина 4460 мм.
  • Высота 980 мм.
  • Вес 8150 кг.
  • Объем бетона 3,26 м3
  • Геометрический объем 13,025 м3
Цена: 110677 руб.
Подробнее
ПСП 42 к13 к1 (3.900-3)
Панели стеновые ПСП Серия 3.900-3
  • Длина 2980 мм.
  • Ширина 4460 мм.
  • Высота 980 мм.
  • Вес 8100 кг.
  • Объем бетона 3,24 м3
  • Геометрический объем 13,025 м3
Цена: 109998 руб.
Подробнее
ПСП 42 к13 к2 (3.900-3)
Панели стеновые ПСП Серия 3.900-3
  • Длина 2980 мм.
  • Ширина 4460 мм.
  • Высота 980 мм.
  • Вес 8100 кг.
  • Объем бетона 3,24 м3
  • Геометрический объем 13,025 м3
Цена: 109998 руб.
Подробнее
ПСП 42 к11 к2 (3.900-3)
Панели стеновые ПСП Серия 3.900-3
  • Длина 2980 мм.
  • Ширина 4460 мм.
  • Высота 980 мм.
  • Вес 8100 кг.
  • Объем бетона 3,24 м3
  • Геометрический объем 13,025 м3
Цена: 109998 руб.
Подробнее
ПСП 42 к14 к2 (3.900-3)
Панели стеновые ПСП Серия 3.900-3
  • Длина 2980 мм.
  • Ширина 4460 мм.
  • Высота 980 мм.
  • Вес 8100 кг.
  • Объем бетона 3,24 м3
  • Геометрический объем 13,025 м3
Цена: 109998 руб.
Подробнее
ПСП 42 к13 ш1 (3.900-3)
Панели стеновые ПСП Серия 3.900-3
  • Длина 2980 мм.
  • Ширина 4460 мм.
  • Высота 980 мм.
  • Вес 8150 кг.
  • Объем бетона 3,26 м3
  • Геометрический объем 13,025 м3
Цена: 110677 руб.
Подробнее
ПСП 42 к13 ш2 (3.900-3)
Панели стеновые ПСП Серия 3.900-3
  • Длина 2980 мм.
  • Ширина 4460 мм.
  • Высота 980 мм.
  • Вес 8150 кг.
  • Объем бетона 3,26 м3
  • Геометрический объем 13,025 м3
Цена: 110677 руб.
Подробнее
ПСП 42 к14 ш2 (3.900-3)
Панели стеновые ПСП Серия 3.900-3
  • Длина 2980 мм.
  • Ширина 4460 мм.
  • Высота 980 мм.
  • Вес 8150 кг.
  • Объем бетона 3,26 м3
  • Геометрический объем 13,025 м3
Цена: 110677 руб.
Подробнее
ПСП 42 к2 к2 (3.900-3)
Панели стеновые ПСП Серия 3.900-3
  • Длина 2980 мм.
  • Ширина 4460 мм.
  • Высота 980 мм.
  • Вес 8100 кг.
  • Объем бетона 3,24 м3
  • Геометрический объем 13,025 м3
Цена: 109998 руб.
Подробнее
ПСП 42 к2 ш2 (3.900-3)
Панели стеновые ПСП Серия 3.900-3
  • Длина 2980 мм.
  • Ширина 4460 мм.
  • Высота 980 мм.
  • Вес 8150 кг.
  • Объем бетона 3,26 м3
  • Геометрический объем 13,025 м3
Цена: 110677 руб.
Подробнее
ПСП 42 к3 к1 (3.900-3)
Панели стеновые ПСП Серия 3.900-3
  • Длина 2980 мм.
  • Ширина 4460 мм.
  • Высота 980 мм.
  • Вес 8100 кг.
  • Объем бетона 3,24 м3
  • Геометрический объем 13,025 м3
Цена: 109998 руб.
Подробнее
ПСП 42 к3 к2 (3.900-3)
Панели стеновые ПСП Серия 3.900-3
  • Длина 2980 мм.
  • Ширина 4460 мм.
  • Высота 980 мм.
  • Вес 8100 кг.
  • Объем бетона 3,24 м3
  • Геометрический объем 13,025 м3
Цена: 109998 руб.
Подробнее
ПСП 42 к3 ш2 (3.900-3)
Панели стеновые ПСП Серия 3.900-3
  • Длина 2980 мм.
  • Ширина 4460 мм.
  • Высота 980 мм.
  • Вес 8150 кг.
  • Объем бетона 3,26 м3
  • Геометрический объем 13,025 м3
Цена: 110677 руб.
Подробнее
ПСП 42 к3 ш1 (3.900-3)
Панели стеновые ПСП Серия 3.900-3
  • Длина 2980 мм.
  • Ширина 4460 мм.
  • Высота 980 мм.
  • Вес 8150 кг.
  • Объем бетона 3,26 м3
  • Геометрический объем 13,025 м3
Цена: 110677 руб.
Подробнее
ПСП 42 к4 к2 (3.900-3)
Панели стеновые ПСП Серия 3.900-3
  • Длина 2980 мм.
  • Ширина 4460 мм.
  • Высота 980 мм.
  • Вес 8100 кг.
  • Объем бетона 3,24 м3
  • Геометрический объем 13,025 м3
Цена: 109998 руб.
Подробнее
ПСП 42 к4 ш2 (3.900-3)
Панели стеновые ПСП Серия 3.900-3
  • Длина 2980 мм.
  • Ширина 4460 мм.
  • Высота 980 мм.
  • Вес 8150 кг.
  • Объем бетона 3,26 м3
  • Геометрический объем 13,025 м3
Цена: 110677 руб.
Подробнее
ПСП 48 б1 к (3.900-3)
Панели стеновые ПСП Серия 3.900-3
  • Длина 2980 мм.
  • Ширина 5060 мм.
  • Высота 980 мм.
  • Вес 9200 кг.
  • Объем бетона 3,67 м3
  • Геометрический объем 14,7772 м3
Цена: 124597 руб.
Подробнее
ПСП 48 б1 ш (3.900-3)
Панели стеновые ПСП Серия 3.900-3
  • Длина 2980 мм.
  • Ширина 5060 мм.
  • Высота 980 мм.
  • Вес 9300 кг.
  • Объем бетона 3,7 м3
  • Геометрический объем 14,7772 м3
Цена: 125615 руб.
Подробнее
ПСП 48 б2 к1 (3.900-3)
Панели стеновые ПСП Серия 3.900-3
  • Длина 2980 мм.
  • Ширина 5060 мм.
  • Высота 980 мм.
  • Вес 9200 кг.
  • Объем бетона 3,67 м3
  • Геометрический объем 14,7772 м3
Цена: 124597 руб.
Подробнее
ПСП 48 б2 к (3.900-3)
Панели стеновые ПСП Серия 3.900-3
  • Длина 2980 мм.
  • Ширина 5060 мм.
  • Высота 980 мм.
  • Вес 9200 кг.
  • Объем бетона 3,67 м3
  • Геометрический объем 14,7772 м3
Цена: 124597 руб.
Подробнее
ПСП 48 б2 ш (3.900-3)
Панели стеновые ПСП Серия 3.900-3
  • Длина 2980 мм.
  • Ширина 5060 мм.
  • Высота 980 мм.
  • Вес 9300 кг.
  • Объем бетона 3,7 м3
  • Геометрический объем 14,7772 м3
Цена: 125615 руб.
Подробнее
ПСП 48 б2 ш1 (3.900-3)
Панели стеновые ПСП Серия 3.900-3
  • Длина 2980 мм.
  • Ширина 5060 мм.
  • Высота 980 мм.
  • Вес 9300 кг.
  • Объем бетона 3,7 м3
  • Геометрический объем 14,7772 м3
Цена: 125615 руб.
Подробнее
ПСП 48 б3 к (3.900-3)
Панели стеновые ПСП Серия 3.900-3
  • Длина 2980 мм.
  • Ширина 5060 мм.
  • Высота 980 мм.
  • Вес 9200 кг.
  • Объем бетона 3,67 м3
  • Геометрический объем 14,7772 м3
Цена: 124597 руб.
Подробнее

Уведомление о файлах cookie

Мы используем файлы cookie для улучшения вашего опыта просмотра и анализа трафика. Нажимая "Принять все", вы соглашаетесь с нашей политикой конфиденциальности и политикой обработки файлов cookie.

MAX Дзен Телеграм Вконтакте vk