mobile_sound +7 (930) 655-55-90

Железобетонные опоры линий электропередачи. Рабочие чертежи (Серия 3.900-3)

Поделиться:
Поделиться:

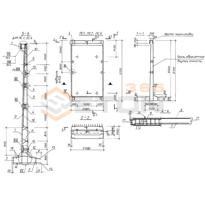
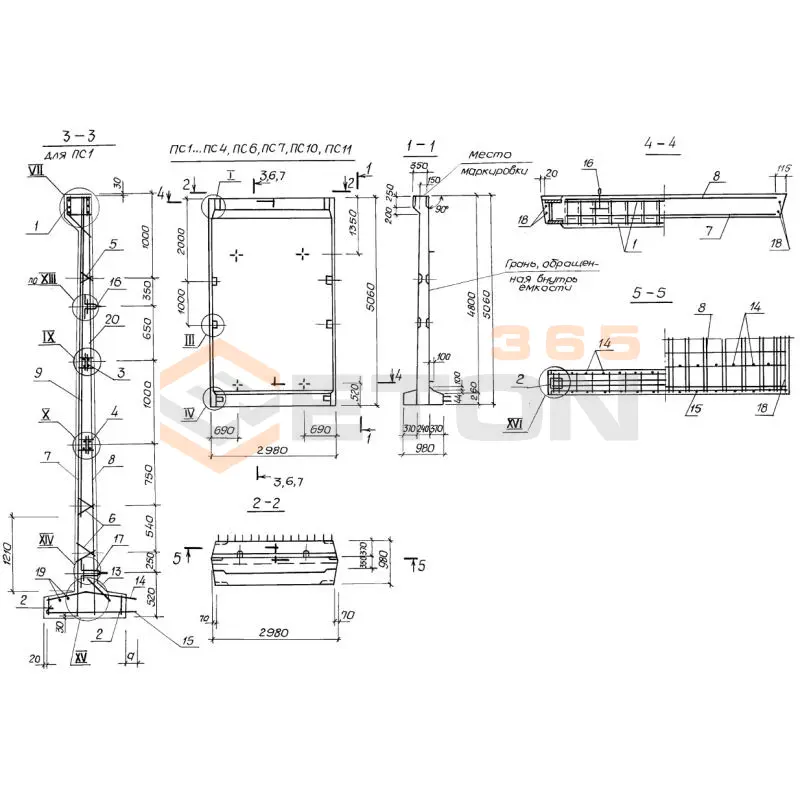
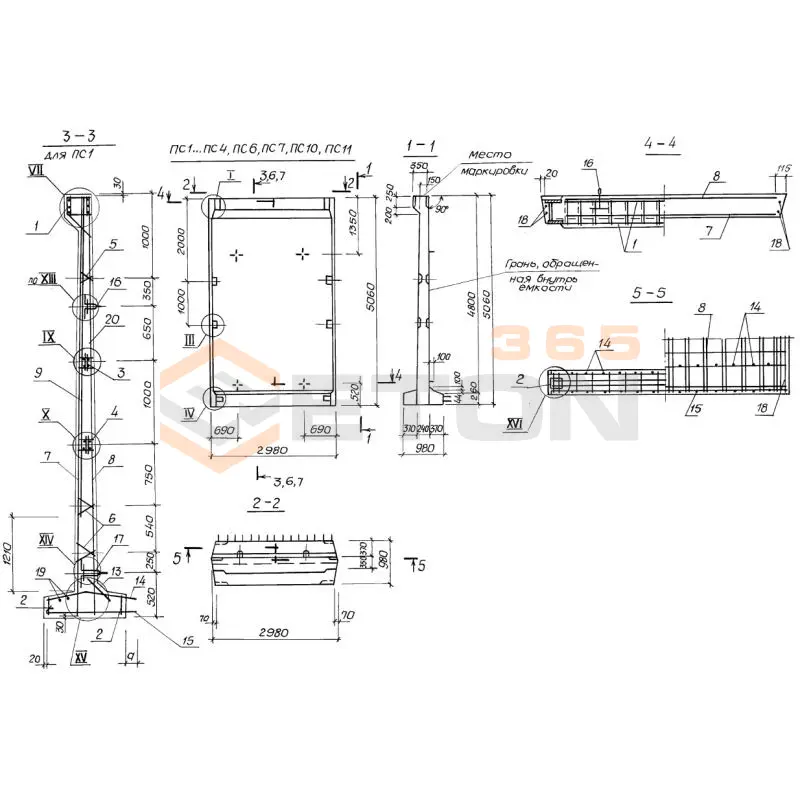
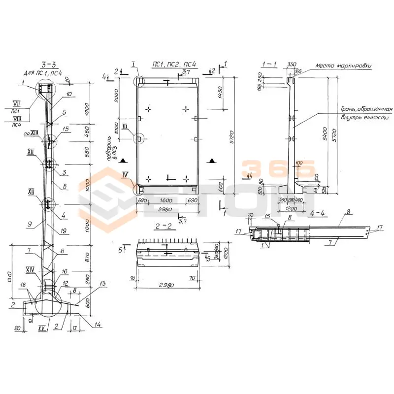
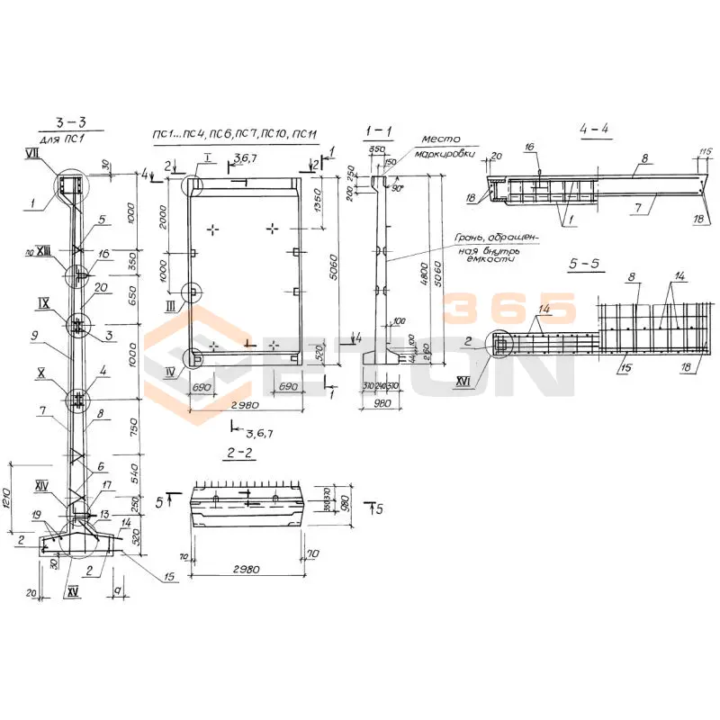
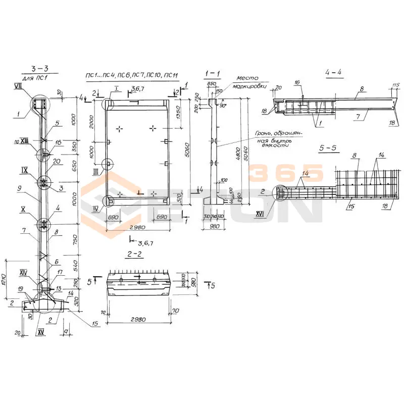
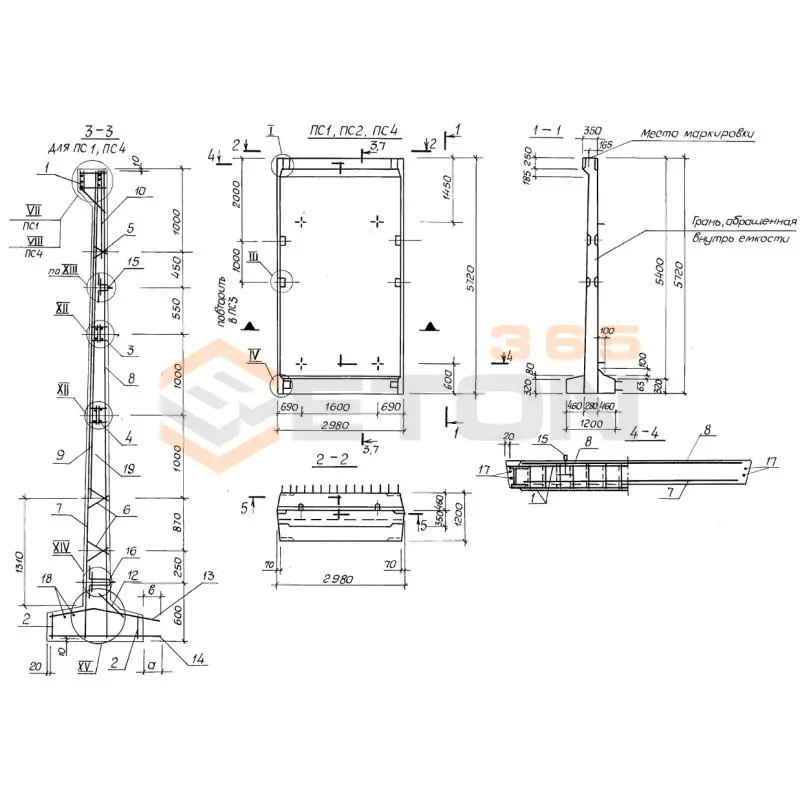
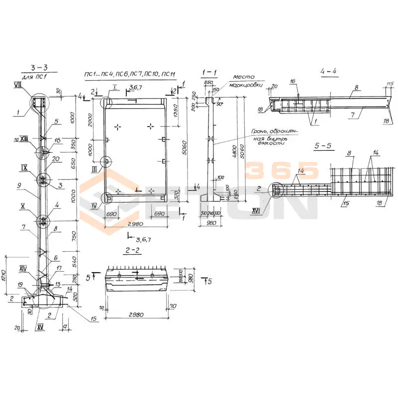
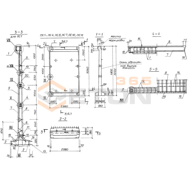
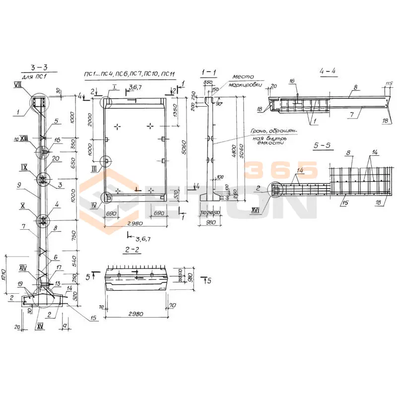
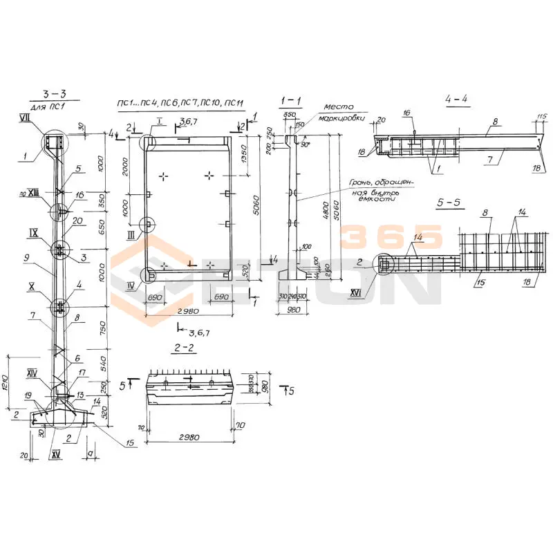
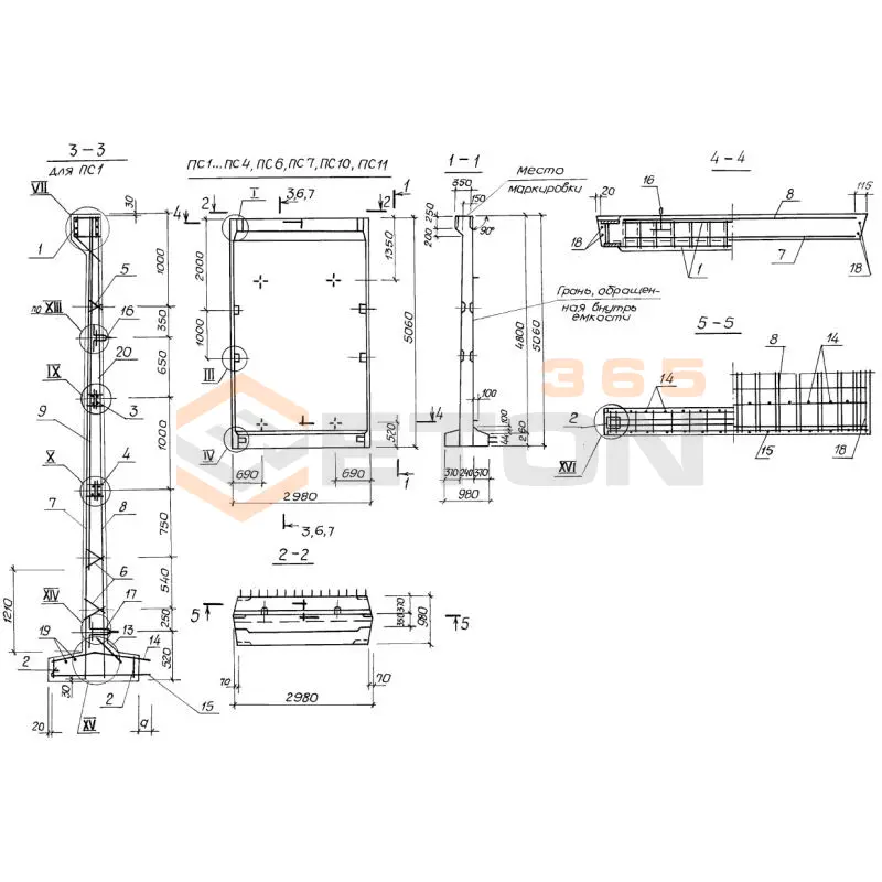
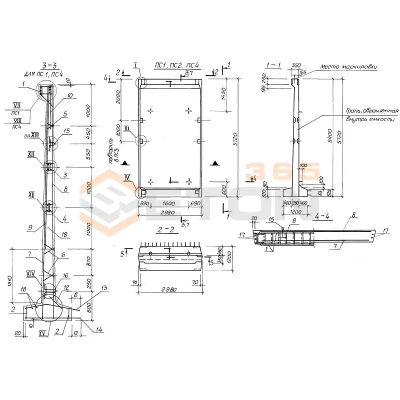
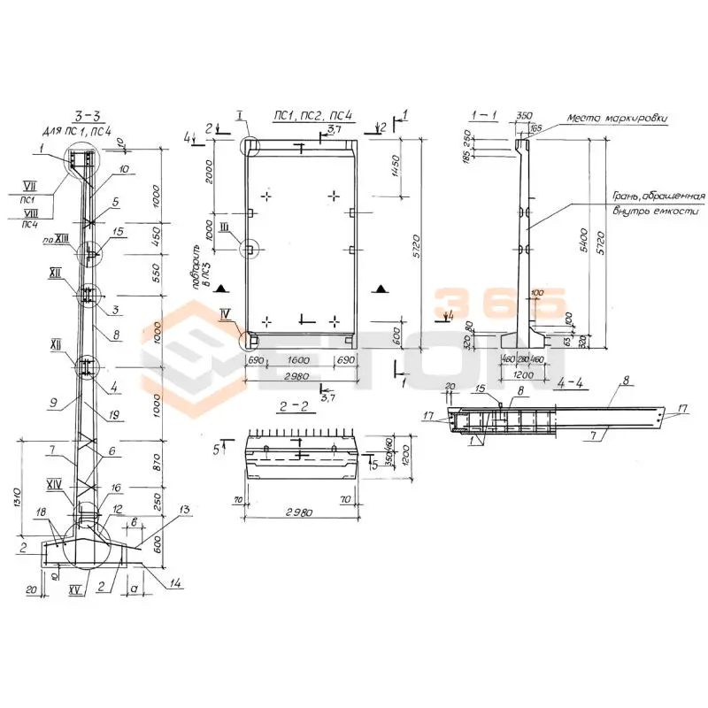
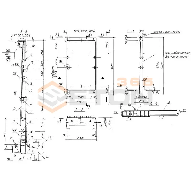
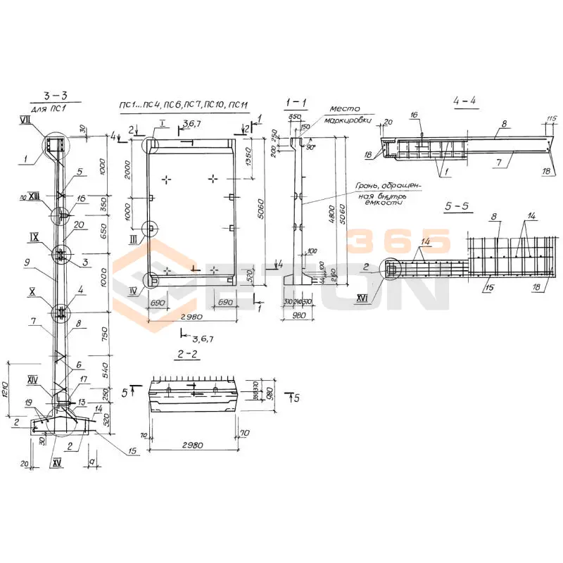
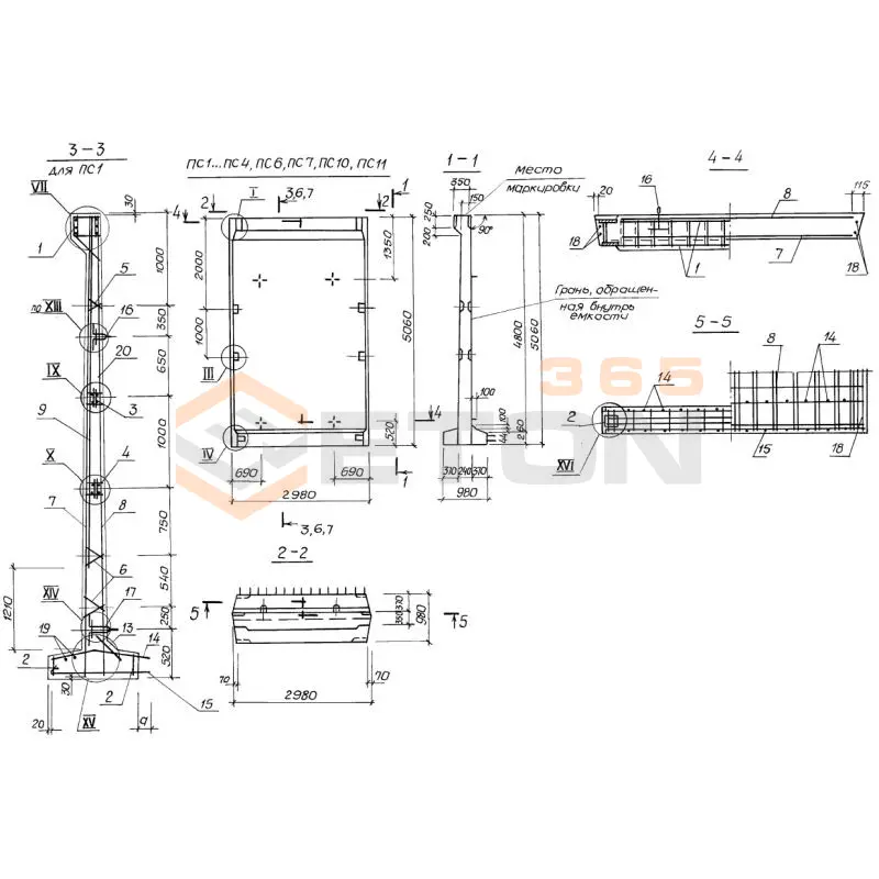
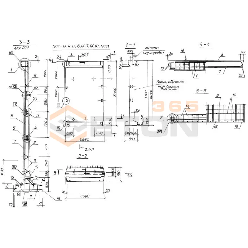
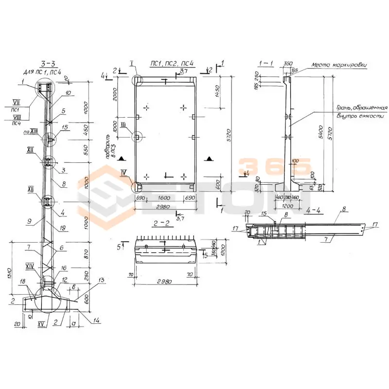
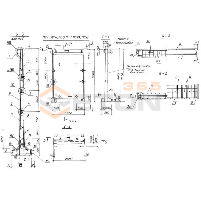
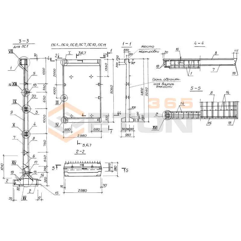
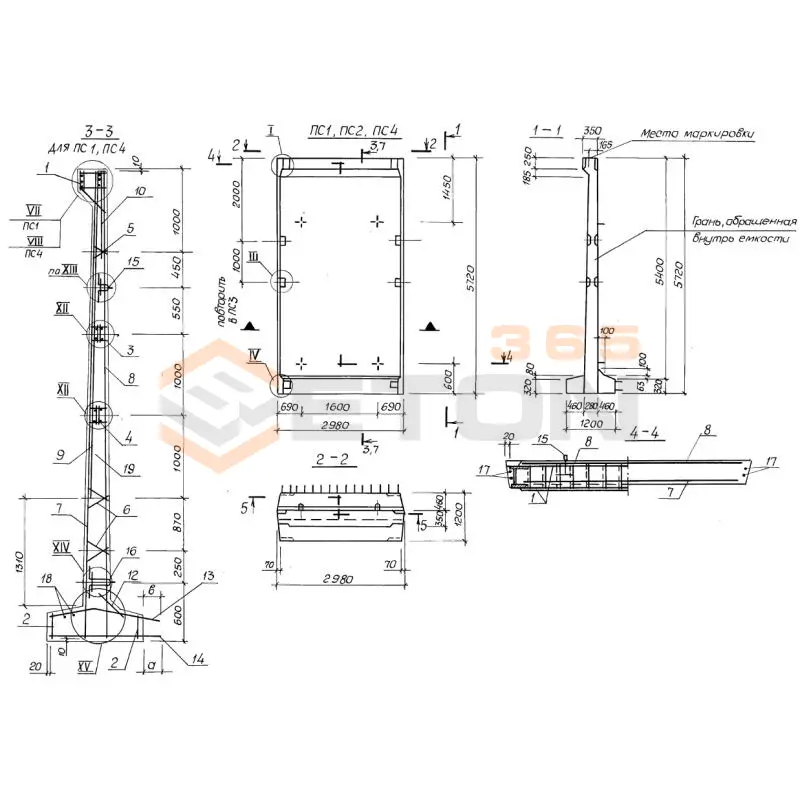
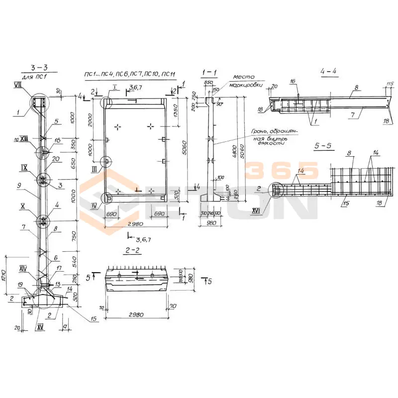
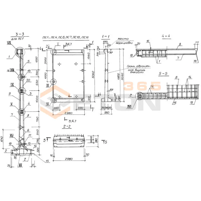
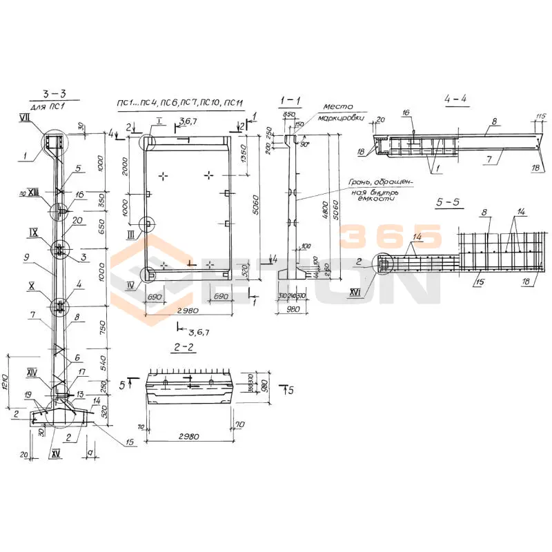
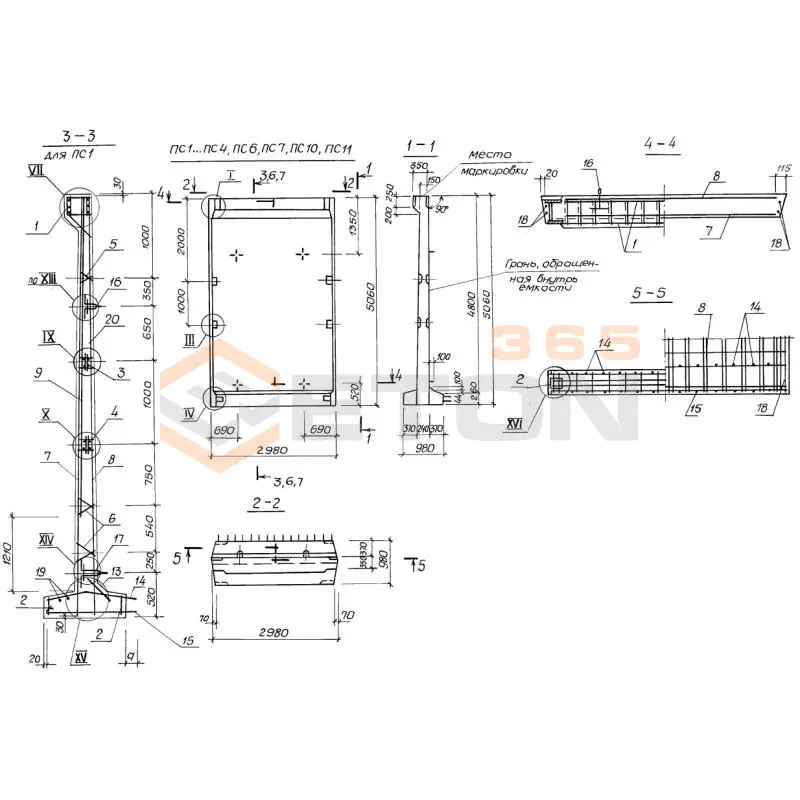
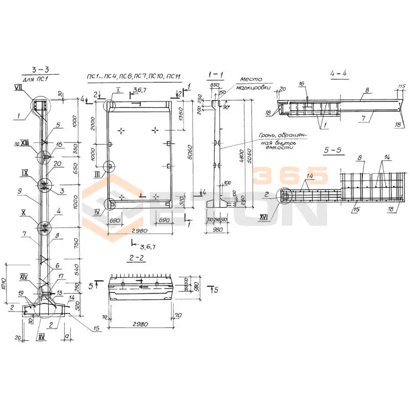
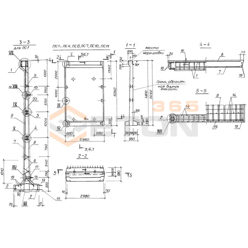
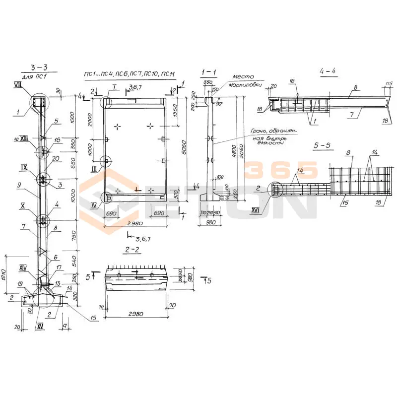
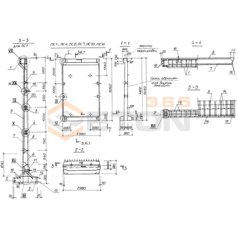
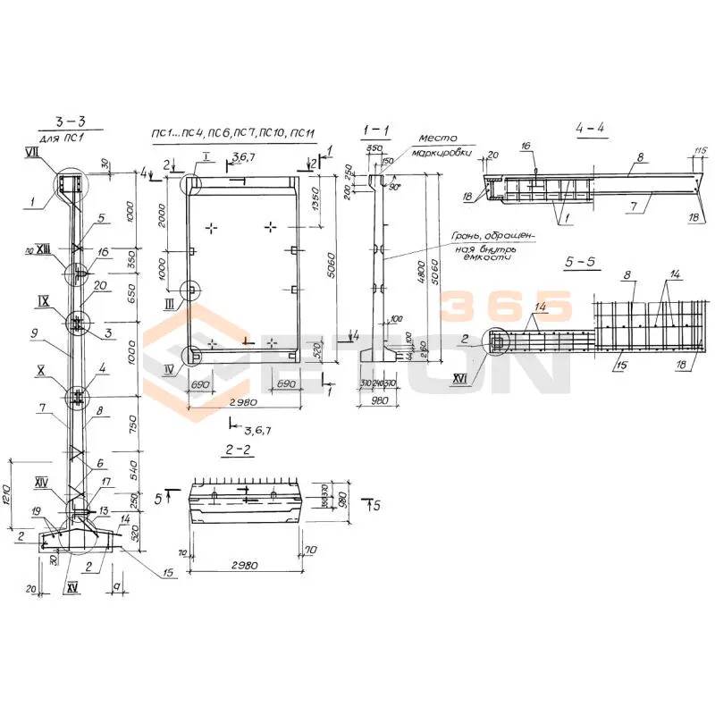
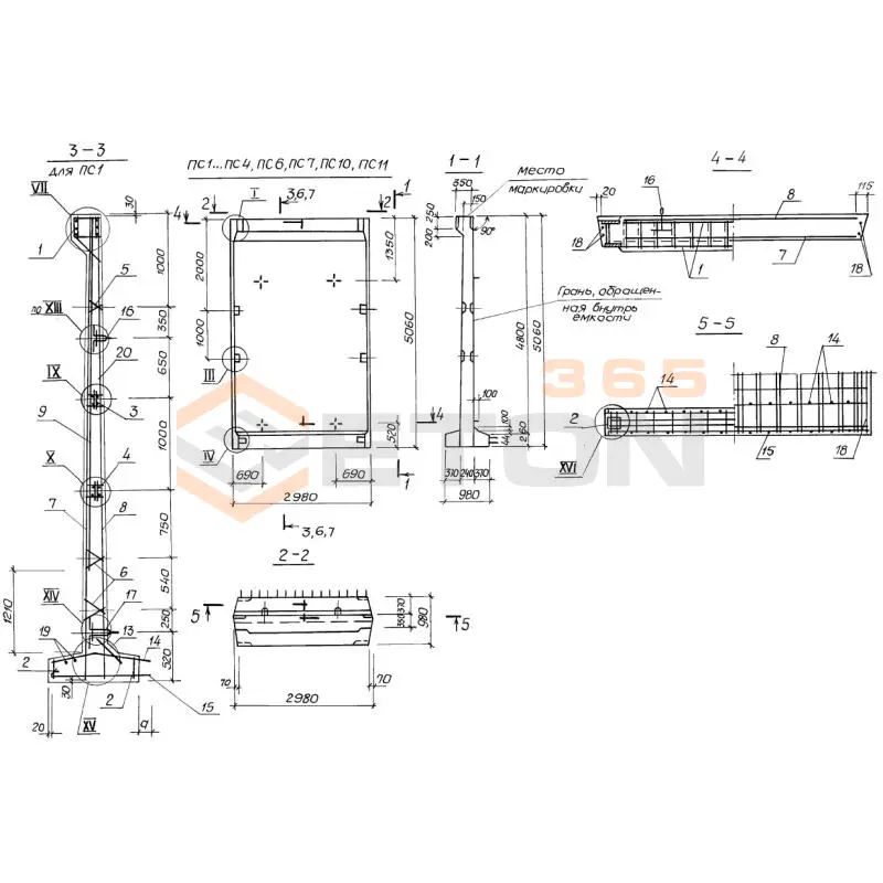
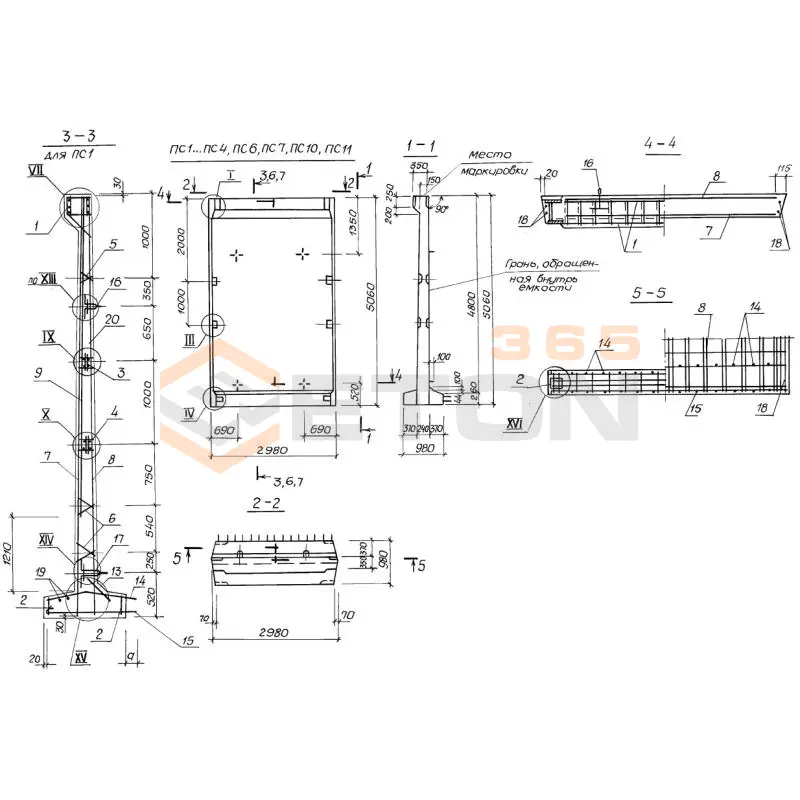
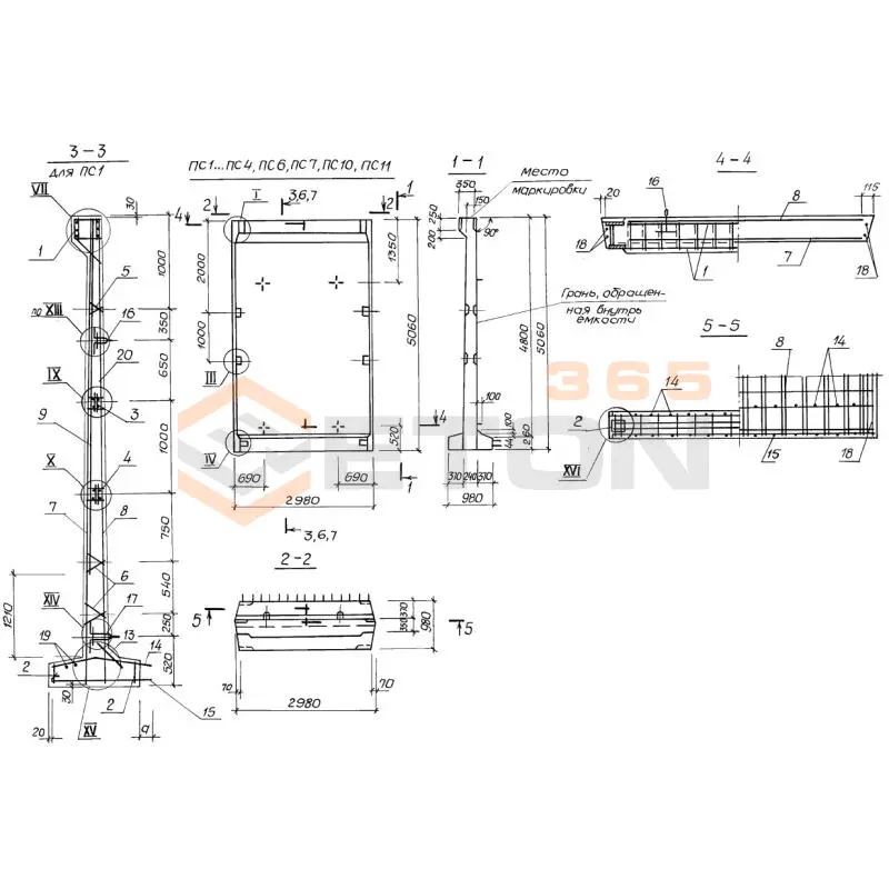
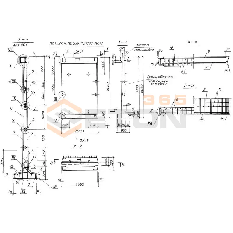
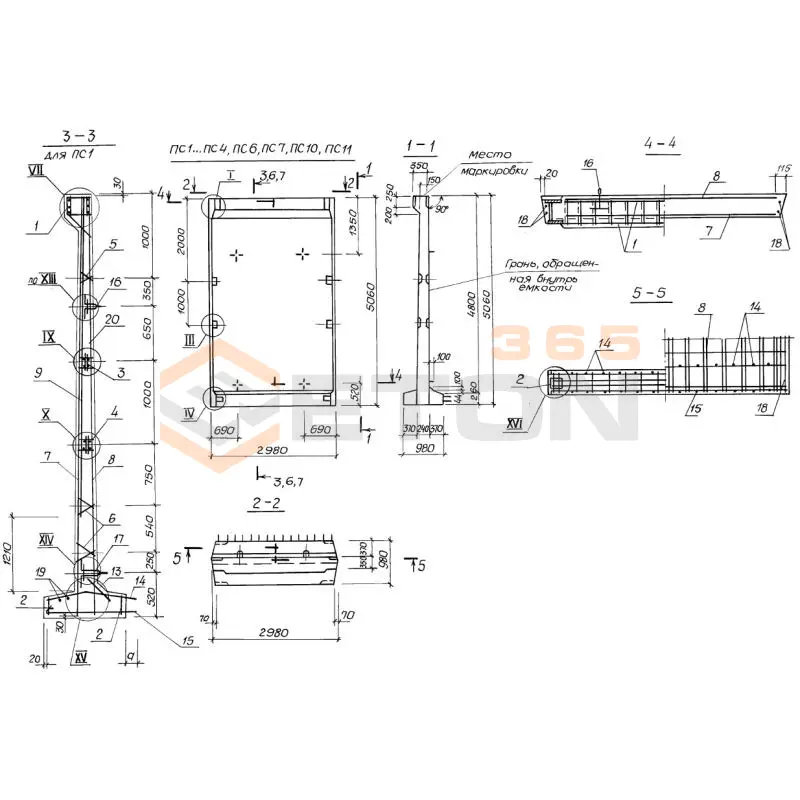
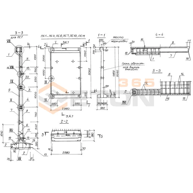
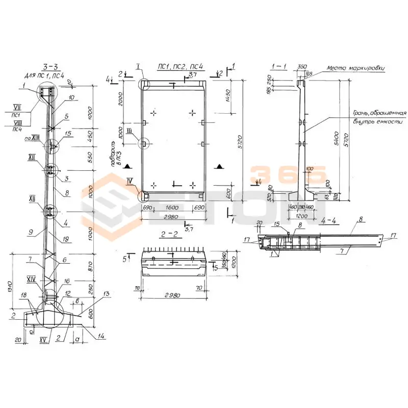
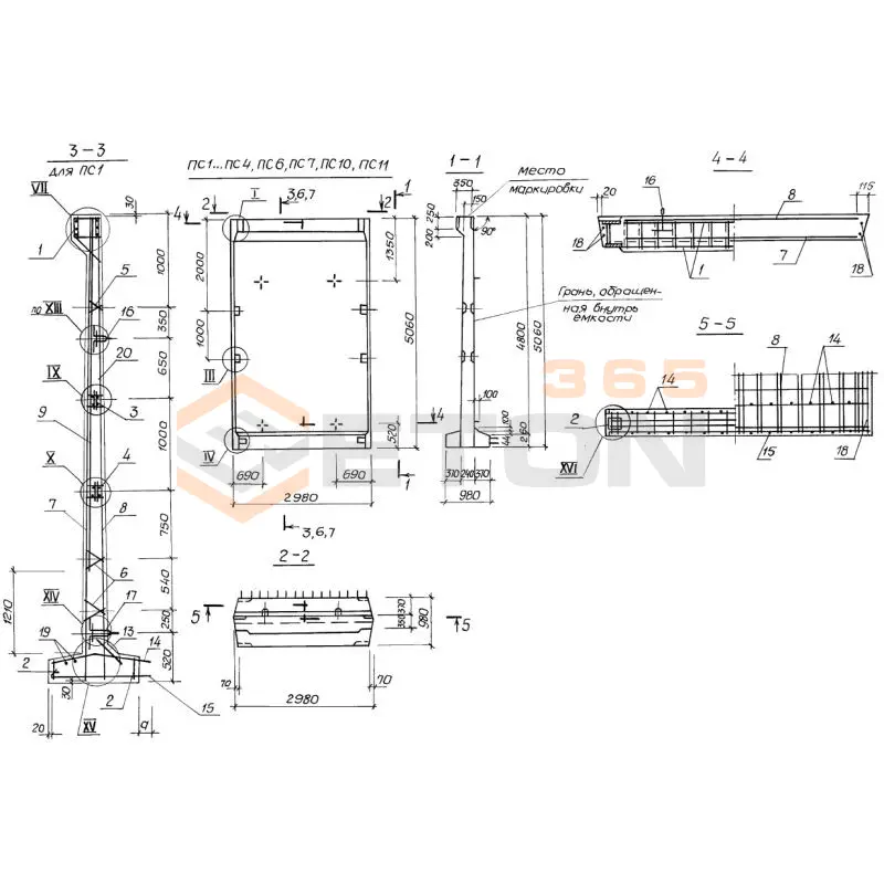
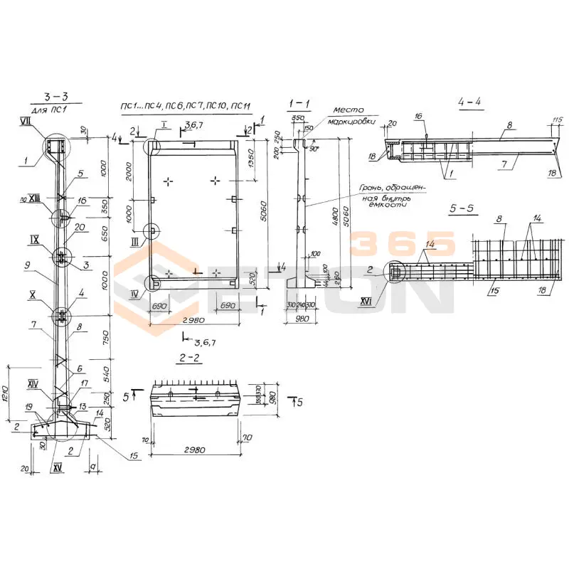
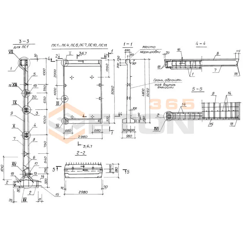
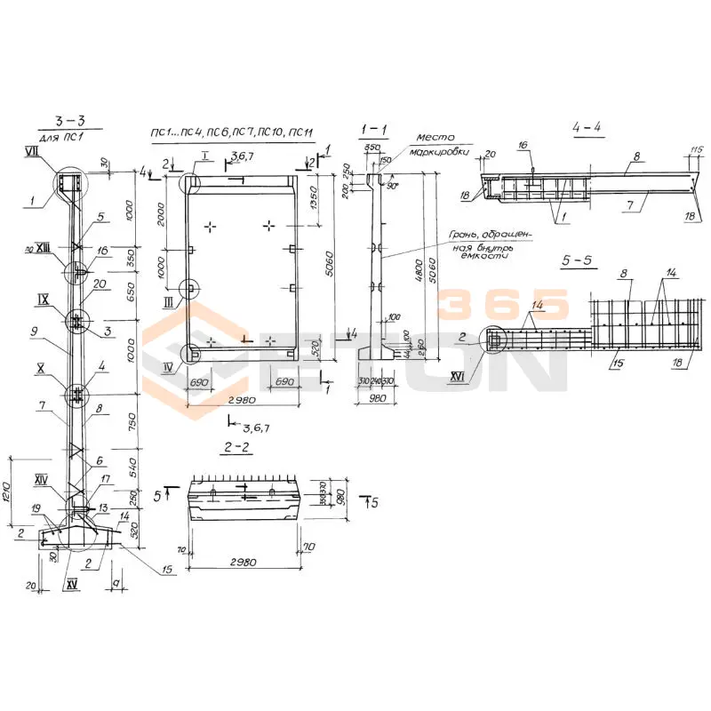
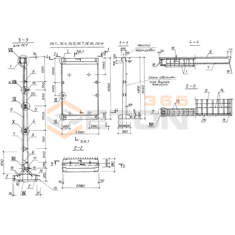
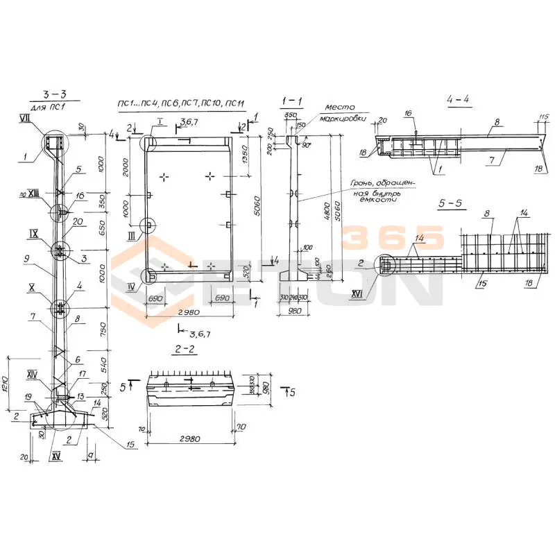
Документ Серия 3.900-3 описывает область применения, номенклатуру и ключевые требования, опираясь на действующие нормы и практику проектирования. Серия 3.900-3 состоит из большого числа выпусков (29), охватывающих все тонкости и нюансы проектирования и производства сборных железобетонных изделия и конструкции, предназначенных под возведение емкостных сооружений под водоснабжение и канализацию. Регламент собрал воедино накопленные опыт и знания строительной сферы для разработки максимально эффективных конструкций, в число которых вошли: стеновые панели различных конфигураций и геометрических пропорций, лотковые элементы и изделия и конструкции круглых колодезных сооружений. Благодаря комбинированию запроектированных элементов становится возможным удовлетворить потребности большого числа типовых проектов.

Файлы для скачивания:
picture_as_pdf

2081.pdf

24,274.7 KB

скачать
picture_as_pdf

2082.pdf

20,984.3 KB

скачать
picture_as_pdf

2100.pdf

11,586.0 KB

скачать
picture_as_pdf

2101.pdf

7,958.1 KB

скачать
picture_as_pdf

2102.pdf

11,836.0 KB

скачать
picture_as_pdf

2103.pdf

7,952.1 KB

скачать
picture_as_pdf

2104.pdf

11,609.3 KB

скачать
picture_as_pdf

2105.pdf

10,970.0 KB

скачать
picture_as_pdf

2106.pdf

12,009.1 KB

скачать
picture_as_pdf

2107.pdf

12,286.4 KB

скачать
picture_as_pdf

2108.pdf

5,230.4 KB

скачать
picture_as_pdf

2109.pdf

16,283.8 KB

скачать
picture_as_pdf

2083.pdf

8,521.6 KB

скачать
picture_as_pdf

2084.pdf

8,174.8 KB

скачать
picture_as_pdf

2085.pdf

6,033.3 KB

скачать
picture_as_pdf

2086.pdf

6,830.6 KB

скачать
picture_as_pdf

2087.pdf

11,382.0 KB

скачать
picture_as_pdf

2088.pdf

4,873.4 KB

скачать
picture_as_pdf

2089.pdf

5,136.1 KB

скачать
picture_as_pdf

2090.pdf

5,314.5 KB

скачать
picture_as_pdf

2091.pdf

4,949.1 KB

скачать
picture_as_pdf

2092.pdf

5,547.7 KB

скачать
picture_as_pdf

2093.pdf

3,385.0 KB

скачать
picture_as_pdf

2094.pdf

4,163.4 KB

скачать
picture_as_pdf

2095.pdf

7,333.3 KB

скачать
picture_as_pdf

2096.pdf

7,315.1 KB

скачать
picture_as_pdf

2097.pdf

5,338.7 KB

скачать
picture_as_pdf

2098.pdf

7,262.2 KB

скачать
picture_as_pdf

2099.pdf

28,664.5 KB

скачать
Товары Серия 3.900-3 (60)
ПСП 48 б3 к3 (3.900-3)
Панели стеновые ПСП Серия 3.900-3
  • Длина 2980 мм.
  • Ширина 5060 мм.
  • Высота 980 мм.
  • Вес 9200 кг.
  • Объем бетона 3,67 м3
  • Геометрический объем 14,7772 м3
Цена: 124597 руб.
Подробнее
ПСП 48 б3 к4 (3.900-3)
Панели стеновые ПСП Серия 3.900-3
  • Длина 2980 мм.
  • Ширина 5060 мм.
  • Высота 980 мм.
  • Вес 8700 кг.
  • Объем бетона 3,52 м3
  • Геометрический объем 14,7772 м3
Цена: 119504 руб.
Подробнее
ПСП 48 б3 ш (3.900-3)
Панели стеновые ПСП Серия 3.900-3
  • Длина 2980 мм.
  • Ширина 5060 мм.
  • Высота 980 мм.
  • Вес 9300 кг.
  • Объем бетона 3,7 м3
  • Геометрический объем 14,7772 м3
Цена: 125615 руб.
Подробнее
ПСП 48 б3 ш3 (3.900-3)
Панели стеновые ПСП Серия 3.900-3
  • Длина 2980 мм.
  • Ширина 5060 мм.
  • Высота 980 мм.
  • Вес 9300 кг.
  • Объем бетона 3,7 м3
  • Геометрический объем 14,7772 м3
Цена: 125615 руб.
Подробнее
ПСП 48 б3 ш4 (3.900-3)
Панели стеновые ПСП Серия 3.900-3
  • Длина 2980 мм.
  • Ширина 5060 мм.
  • Высота 980 мм.
  • Вес 8800 кг.
  • Объем бетона 3,52 м3
  • Геометрический объем 14,7772 м3
Цена: 119504 руб.
Подробнее
ПСП 48 б4 к (3.900-3)
Панели стеновые ПСП Серия 3.900-3
  • Длина 2980 мм.
  • Ширина 5060 мм.
  • Высота 980 мм.
  • Вес 9200 кг.
  • Объем бетона 3,67 м3
  • Геометрический объем 14,7772 м3
Цена: 124597 руб.
Подробнее
ПСП 48 б4 к3 (3.900-3)
Панели стеновые ПСП Серия 3.900-3
  • Длина 2980 мм.
  • Ширина 5060 мм.
  • Высота 980 мм.
  • Вес 9200 кг.
  • Объем бетона 3,67 м3
  • Геометрический объем 14,7772 м3
Цена: 124597 руб.
Подробнее
ПСП 48 б4 к4 (3.900-3)
Панели стеновые ПСП Серия 3.900-3
  • Длина 2980 мм.
  • Ширина 5060 мм.
  • Высота 980 мм.
  • Вес 8700 кг.
  • Объем бетона 3,52 м3
  • Геометрический объем 14,7772 м3
Цена: 119504 руб.
Подробнее
ПСП 48 б4 ш (3.900-3)
Панели стеновые ПСП Серия 3.900-3
  • Длина 2980 мм.
  • Ширина 5060 мм.
  • Высота 980 мм.
  • Вес 9300 кг.
  • Объем бетона 3,7 м3
  • Геометрический объем 14,7772 м3
Цена: 125615 руб.
Подробнее
ПСП 48 б4 ш3 (3.900-3)
Панели стеновые ПСП Серия 3.900-3
  • Длина 2980 мм.
  • Ширина 5060 мм.
  • Высота 980 мм.
  • Вес 9300 кг.
  • Объем бетона 3,7 м3
  • Геометрический объем 14,7772 м3
Цена: 125615 руб.
Подробнее
ПСП 48 б5 к3 (3.900-3)
Панели стеновые ПСП Серия 3.900-3
  • Длина 2980 мм.
  • Ширина 5060 мм.
  • Высота 980 мм.
  • Вес 9200 кг.
  • Объем бетона 3,67 м3
  • Геометрический объем 14,7772 м3
Цена: 124597 руб.
Подробнее
ПСП 48 б5 к (3.900-3)
Панели стеновые ПСП Серия 3.900-3
  • Длина 2980 мм.
  • Ширина 5060 мм.
  • Высота 980 мм.
  • Вес 9200 кг.
  • Объем бетона 3,67 м3
  • Геометрический объем 14,7772 м3
Цена: 124597 руб.
Подробнее
ПСП 48 б4 ш4 (3.900-3)
Панели стеновые ПСП Серия 3.900-3
  • Длина 2980 мм.
  • Ширина 5060 мм.
  • Высота 980 мм.
  • Вес 8800 кг.
  • Объем бетона 3,52 м3
  • Геометрический объем 14,7772 м3
Цена: 119504 руб.
Подробнее
ПСП 48 б5 ш (3.900-3)
Панели стеновые ПСП Серия 3.900-3
  • Длина 2980 мм.
  • Ширина 5060 мм.
  • Высота 980 мм.
  • Вес 9300 кг.
  • Объем бетона 3,7 м3
  • Геометрический объем 14,7772 м3
Цена: 125615 руб.
Подробнее
ПСП 48 б5 к4 (3.900-3)
Панели стеновые ПСП Серия 3.900-3
  • Длина 2980 мм.
  • Ширина 5060 мм.
  • Высота 980 мм.
  • Вес 8700 кг.
  • Объем бетона 3,52 м3
  • Геометрический объем 14,7772 м3
Цена: 119504 руб.
Подробнее
ПСП 48 б5 ш3 (3.900-3)
Панели стеновые ПСП Серия 3.900-3
  • Длина 2980 мм.
  • Ширина 5060 мм.
  • Высота 980 мм.
  • Вес 9300 кг.
  • Объем бетона 3,7 м3
  • Геометрический объем 14,7772 м3
Цена: 125615 руб.
Подробнее
ПСП 48 б5 ш4 (3.900-3)
Панели стеновые ПСП Серия 3.900-3
  • Длина 2980 мм.
  • Ширина 5060 мм.
  • Высота 980 мм.
  • Вес 8800 кг.
  • Объем бетона 3,52 м3
  • Геометрический объем 14,7772 м3
Цена: 119504 руб.
Подробнее
ПСП 48 к1 к (3.900-3)
Панели стеновые ПСП Серия 3.900-3
  • Длина 2980 мм.
  • Ширина 5060 мм.
  • Высота 980 мм.
  • Вес 11200 кг.
  • Объем бетона 4,41 м3
  • Геометрический объем 14,7772 м3
Цена: 149720 руб.
Подробнее
ПСП 48 к11 к (3.900-3)
Панели стеновые ПСП Серия 3.900-3
  • Длина 2980 мм.
  • Ширина 5060 мм.
  • Высота 980 мм.
  • Вес 11200 кг.
  • Объем бетона 4,41 м3
  • Геометрический объем 14,7772 м3
Цена: 149720 руб.
Подробнее
ПСП 48 к1 ш (3.900-3)
Панели стеновые ПСП Серия 3.900-3
  • Длина 2980 мм.
  • Ширина 5060 мм.
  • Высота 980 мм.
  • Вес 11200 кг.
  • Объем бетона 4,41 м3
  • Геометрический объем 14,7772 м3
Цена: 149720 руб.
Подробнее
ПСП 48 к11 ш (3.900-3)
Панели стеновые ПСП Серия 3.900-3
  • Длина 2980 мм.
  • Ширина 5060 мм.
  • Высота 980 мм.
  • Вес 11200 кг.
  • Объем бетона 4,41 м3
  • Геометрический объем 14,7772 м3
Цена: 149720 руб.
Подробнее
ПСП 48 к12 к1 (3.900-3)
Панели стеновые ПСП Серия 3.900-3
  • Длина 2980 мм.
  • Ширина 5060 мм.
  • Высота 980 мм.
  • Вес 11200 кг.
  • Объем бетона 4,41 м3
  • Геометрический объем 14,7772 м3
Цена: 149720 руб.
Подробнее
ПСП 48 к12 к2 (3.900-3)
Панели стеновые ПСП Серия 3.900-3
  • Длина 2980 мм.
  • Ширина 5060 мм.
  • Высота 980 мм.
  • Вес 11200 кг.
  • Объем бетона 4,41 м3
  • Геометрический объем 14,7772 м3
Цена: 149720 руб.
Подробнее
ПСП 48 к12 ш1 (3.900-3)
Панели стеновые ПСП Серия 3.900-3
  • Длина 2980 мм.
  • Ширина 5060 мм.
  • Высота 980 мм.
  • Вес 11200 кг.
  • Объем бетона 4,41 м3
  • Геометрический объем 14,7772 м3
Цена: 149720 руб.
Подробнее
ПСП 48 к12 ш2 (3.900-3)
Панели стеновые ПСП Серия 3.900-3
  • Длина 2980 мм.
  • Ширина 5060 мм.
  • Высота 980 мм.
  • Вес 11200 кг.
  • Объем бетона 4,41 м3
  • Геометрический объем 14,7772 м3
Цена: 149720 руб.
Подробнее
ПСП 48 к13 к (3.900-3)
Панели стеновые ПСП Серия 3.900-3
  • Длина 2980 мм.
  • Ширина 5060 мм.
  • Высота 980 мм.
  • Вес 11200 кг.
  • Объем бетона 4,41 м3
  • Геометрический объем 14,7772 м3
Цена: 149720 руб.
Подробнее
ПСП 48 к14 к2 (3.900-3)
Панели стеновые ПСП Серия 3.900-3
  • Длина 2980 мм.
  • Ширина 5060 мм.
  • Высота 980 мм.
  • Вес 11200 кг.
  • Объем бетона 4,41 м3
  • Геометрический объем 14,7772 м3
Цена: 149720 руб.
Подробнее
ПСП 48 к14 к1 (3.900-3)
Панели стеновые ПСП Серия 3.900-3
  • Длина 2980 мм.
  • Ширина 5060 мм.
  • Высота 980 мм.
  • Вес 11200 кг.
  • Объем бетона 4,41 м3
  • Геометрический объем 14,7772 м3
Цена: 149720 руб.
Подробнее
ПСП 48 к13 ш (3.900-3)
Панели стеновые ПСП Серия 3.900-3
  • Длина 2980 мм.
  • Ширина 5060 мм.
  • Высота 980 мм.
  • Вес 11200 кг.
  • Объем бетона 4,41 м3
  • Геометрический объем 14,7772 м3
Цена: 149720 руб.
Подробнее
ПСП 48 к14 ш1 (3.900-3)
Панели стеновые ПСП Серия 3.900-3
  • Длина 2980 мм.
  • Ширина 5060 мм.
  • Высота 980 мм.
  • Вес 11200 кг.
  • Объем бетона 4,41 м3
  • Геометрический объем 14,7772 м3
Цена: 149720 руб.
Подробнее
ПСП 48 к14 ш2 (3.900-3)
Панели стеновые ПСП Серия 3.900-3
  • Длина 2980 мм.
  • Ширина 5060 мм.
  • Высота 980 мм.
  • Вес 11200 кг.
  • Объем бетона 4,41 м3
  • Геометрический объем 14,7772 м3
Цена: 149720 руб.
Подробнее
ПСП 48 к15 к (3.900-3)
Панели стеновые ПСП Серия 3.900-3
  • Длина 2980 мм.
  • Ширина 5060 мм.
  • Высота 980 мм.
  • Вес 11200 кг.
  • Объем бетона 4,41 м3
  • Геометрический объем 14,7772 м3
Цена: 149720 руб.
Подробнее
ПСП 48 к15 ш (3.900-3)
Панели стеновые ПСП Серия 3.900-3
  • Длина 2980 мм.
  • Ширина 5060 мм.
  • Высота 980 мм.
  • Вес 11200 кг.
  • Объем бетона 4,41 м3
  • Геометрический объем 14,7772 м3
Цена: 149720 руб.
Подробнее
ПСП 48 к2 к2 (3.900-3)
Панели стеновые ПСП Серия 3.900-3
  • Длина 2980 мм.
  • Ширина 5060 мм.
  • Высота 980 мм.
  • Вес 11200 кг.
  • Объем бетона 4,41 м3
  • Геометрический объем 14,7772 м3
Цена: 149720 руб.
Подробнее
ПСП 48 к2 к1 (3.900-3)
Панели стеновые ПСП Серия 3.900-3
  • Длина 2980 мм.
  • Ширина 5060 мм.
  • Высота 980 мм.
  • Вес 11200 кг.
  • Объем бетона 4,41 м3
  • Геометрический объем 14,7772 м3
Цена: 149720 руб.
Подробнее
ПСП 48 к2 ш1 (3.900-3)
Панели стеновые ПСП Серия 3.900-3
  • Длина 2980 мм.
  • Ширина 5060 мм.
  • Высота 980 мм.
  • Вес 11200 кг.
  • Объем бетона 4,41 м3
  • Геометрический объем 14,7772 м3
Цена: 149720 руб.
Подробнее
ПСП 48 к3 к (3.900-3)
Панели стеновые ПСП Серия 3.900-3
  • Длина 2980 мм.
  • Ширина 5060 мм.
  • Высота 980 мм.
  • Вес 11200 кг.
  • Объем бетона 4,41 м3
  • Геометрический объем 14,7772 м3
Цена: 149720 руб.
Подробнее
ПСП 48 к2 ш2 (3.900-3)
Панели стеновые ПСП Серия 3.900-3
  • Длина 2980 мм.
  • Ширина 5060 мм.
  • Высота 980 мм.
  • Вес 11200 кг.
  • Объем бетона 4,41 м3
  • Геометрический объем 14,7772 м3
Цена: 149720 руб.
Подробнее
ПСП 48 к3 ш (3.900-3)
Панели стеновые ПСП Серия 3.900-3
  • Длина 2980 мм.
  • Ширина 5060 мм.
  • Высота 980 мм.
  • Вес 11200 кг.
  • Объем бетона 4,41 м3
  • Геометрический объем 14,7772 м3
Цена: 149720 руб.
Подробнее
ПСП 48 к4 к1 (3.900-3)
Панели стеновые ПСП Серия 3.900-3
  • Длина 2980 мм.
  • Ширина 5060 мм.
  • Высота 980 мм.
  • Вес 11200 кг.
  • Объем бетона 4,41 м3
  • Геометрический объем 14,7772 м3
Цена: 149720 руб.
Подробнее
ПСП 48 к4 ш2 (3.900-3)
Панели стеновые ПСП Серия 3.900-3
  • Длина 2980 мм.
  • Ширина 5060 мм.
  • Высота 980 мм.
  • Вес 11200 кг.
  • Объем бетона 4,41 м3
  • Геометрический объем 14,7772 м3
Цена: 149720 руб.
Подробнее
ПСП 48 к4 к2 (3.900-3)
Панели стеновые ПСП Серия 3.900-3
  • Длина 2980 мм.
  • Ширина 5060 мм.
  • Высота 980 мм.
  • Вес 11200 кг.
  • Объем бетона 4,41 м3
  • Геометрический объем 14,7772 м3
Цена: 149720 руб.
Подробнее
ПСП 48 к4 ш1 (3.900-3)
Панели стеновые ПСП Серия 3.900-3
  • Длина 2980 мм.
  • Ширина 5060 мм.
  • Высота 980 мм.
  • Вес 11200 кг.
  • Объем бетона 4,41 м3
  • Геометрический объем 14,7772 м3
Цена: 149720 руб.
Подробнее
ПСП 48 к5 к (3.900-3)
Панели стеновые ПСП Серия 3.900-3
  • Длина 2980 мм.
  • Ширина 5060 мм.
  • Высота 980 мм.
  • Вес 11200 кг.
  • Объем бетона 4,41 м3
  • Геометрический объем 14,7772 м3
Цена: 149720 руб.
Подробнее
ПСП 48 к5 ш (3.900-3)
Панели стеновые ПСП Серия 3.900-3
  • Длина 2980 мм.
  • Ширина 5060 мм.
  • Высота 980 мм.
  • Вес 11200 кг.
  • Объем бетона 4,41 м3
  • Геометрический объем 14,7772 м3
Цена: 149720 руб.
Подробнее
ПСП 54 б1 к (3.900-3)
Панели стеновые ПСП Серия 3.900-3
  • Длина 2980 мм.
  • Ширина 5720 мм.
  • Высота 1200 мм.
  • Вес 12100 кг.
  • Объем бетона 4,84 м3
  • Геометрический объем 20,4547 м3
Цена: 164318 руб.
Подробнее
ПСП 54 б1 ш (3.900-3)
Панели стеновые ПСП Серия 3.900-3
  • Длина 2980 мм.
  • Ширина 5720 мм.
  • Высота 1200 мм.
  • Вес 12200 кг.
  • Объем бетона 4,87 м3
  • Геометрический объем 20,4547 м3
Цена: 165337 руб.
Подробнее
ПСП 54 б2 к (3.900-3)
Панели стеновые ПСП Серия 3.900-3
  • Длина 2980 мм.
  • Ширина 5720 мм.
  • Высота 1200 мм.
  • Вес 12100 кг.
  • Объем бетона 4,84 м3
  • Геометрический объем 20,4547 м3
Цена: 164318 руб.
Подробнее
ПСП 54 б2 ш (3.900-3)
Панели стеновые ПСП Серия 3.900-3
  • Длина 2980 мм.
  • Ширина 5720 мм.
  • Высота 1200 мм.
  • Вес 12200 кг.
  • Объем бетона 4,87 м3
  • Геометрический объем 20,4547 м3
Цена: 165337 руб.
Подробнее
ПСП 54 б2 к1 (3.900-3)
Панели стеновые ПСП Серия 3.900-3
  • Длина 2980 мм.
  • Ширина 5720 мм.
  • Высота 1200 мм.
  • Вес 12100 кг.
  • Объем бетона 4,84 м3
  • Геометрический объем 20,4547 м3
Цена: 164318 руб.
Подробнее
ПСП 54 б2 ш1 (3.900-3)
Панели стеновые ПСП Серия 3.900-3
  • Длина 2980 мм.
  • Ширина 5720 мм.
  • Высота 1200 мм.
  • Вес 12200 кг.
  • Объем бетона 4,87 м3
  • Геометрический объем 20,4547 м3
Цена: 165337 руб.
Подробнее
ПСП 54 б5 ш (3.900-3)
Панели стеновые ПСП Серия 3.900-3
  • Длина 2980 мм.
  • Ширина 5720 мм.
  • Высота 1200 мм.
  • Вес 12200 кг.
  • Объем бетона 4,87 м3
  • Геометрический объем 20,4547 м3
Цена: 165337 руб.
Подробнее
ПСП 54 б5 к (3.900-3)
Панели стеновые ПСП Серия 3.900-3
  • Длина 2980 мм.
  • Ширина 5720 мм.
  • Высота 1200 мм.
  • Вес 12100 кг.
  • Объем бетона 4,84 м3
  • Геометрический объем 20,4547 м3
Цена: 164318 руб.
Подробнее
ПСП 54 к1 к (3.900-3)
Панели стеновые ПСП Серия 3.900-3
  • Длина 2980 мм.
  • Ширина 5720 мм.
  • Высота 1200 мм.
  • Вес 14400 кг.
  • Объем бетона 6,76 м3
  • Геометрический объем 20,4547 м3
Цена: 229502 руб.
Подробнее
ПСП 54 к1 ш (3.900-3)
Панели стеновые ПСП Серия 3.900-3
  • Длина 2980 мм.
  • Ширина 5720 мм.
  • Высота 1200 мм.
  • Вес 14550 кг.
  • Объем бетона 6,76 м3
  • Геометрический объем 20,4547 м3
Цена: 229502 руб.
Подробнее
ПСП 54 к11 к (3.900-3)
Панели стеновые ПСП Серия 3.900-3
  • Длина 2980 мм.
  • Ширина 5720 мм.
  • Высота 1200 мм.
  • Вес 14400 кг.
  • Объем бетона 6,76 м3
  • Геометрический объем 20,4547 м3
Цена: 229502 руб.
Подробнее
ПСП 54 к11 ш (3.900-3)
Панели стеновые ПСП Серия 3.900-3
  • Длина 2980 мм.
  • Ширина 5720 мм.
  • Высота 1200 мм.
  • Вес 14550 кг.
  • Объем бетона 6,76 м3
  • Геометрический объем 20,4547 м3
Цена: 229502 руб.
Подробнее
ПСП 54 к12 к1 (3.900-3)
Панели стеновые ПСП Серия 3.900-3
  • Длина 2980 мм.
  • Ширина 5720 мм.
  • Высота 1200 мм.
  • Вес 14400 кг.
  • Объем бетона 6,76 м3
  • Геометрический объем 20,4547 м3
Цена: 229502 руб.
Подробнее
ПСП 54 к12 к (3.900-3)
Панели стеновые ПСП Серия 3.900-3
  • Длина 2980 мм.
  • Ширина 5720 мм.
  • Высота 1200 мм.
  • Вес 14400 кг.
  • Объем бетона 6,76 м3
  • Геометрический объем 20,4547 м3
Цена: 229502 руб.
Подробнее
ПСП 54 к15 к (3.900-3)
Панели стеновые ПСП Серия 3.900-3
  • Длина 2980 мм.
  • Ширина 5720 мм.
  • Высота 1200 мм.
  • Вес 14400 кг.
  • Объем бетона 6,76 м3
  • Геометрический объем 20,4547 м3
Цена: 229502 руб.
Подробнее

Уведомление о файлах cookie

Мы используем файлы cookie для улучшения вашего опыта просмотра и анализа трафика. Нажимая "Принять все", вы соглашаетесь с нашей политикой конфиденциальности и политикой обработки файлов cookie.

MAX Дзен Телеграм Вконтакте vk