mobile_sound +7 (930) 655-55-90

Железобетонные опоры линий электропередачи. Рабочие чертежи (Серия 3.015-2)

Поделиться:
Поделиться:

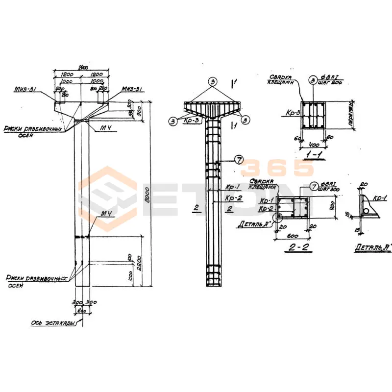
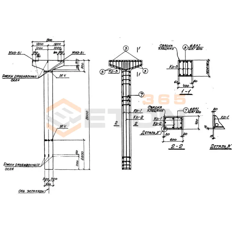
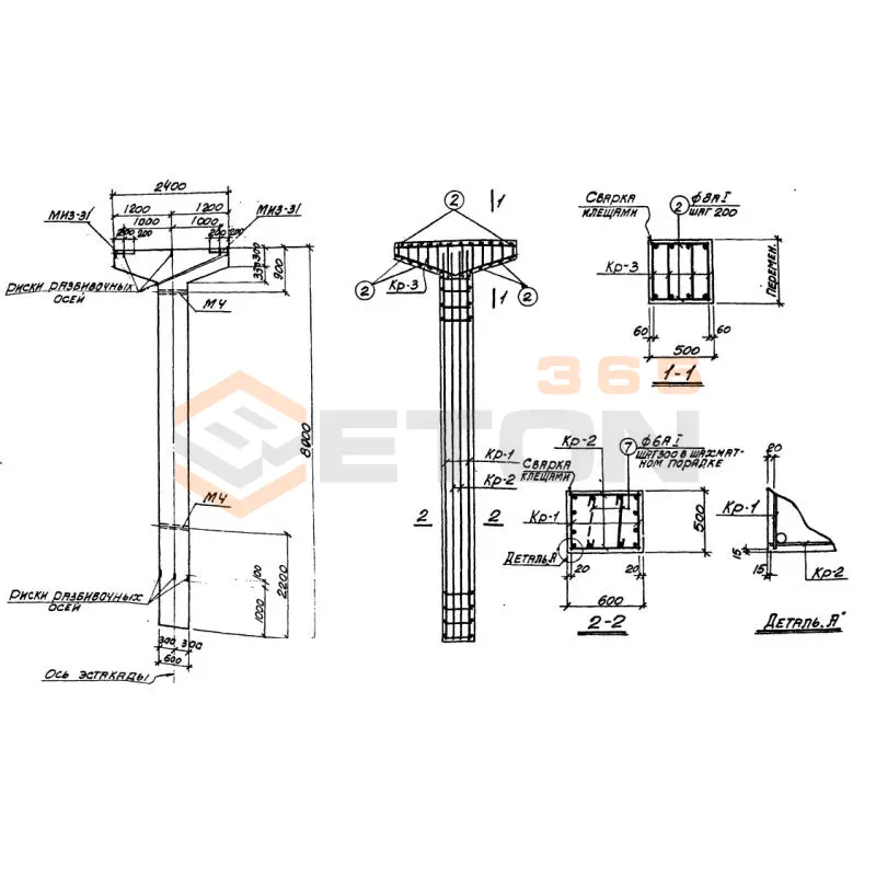
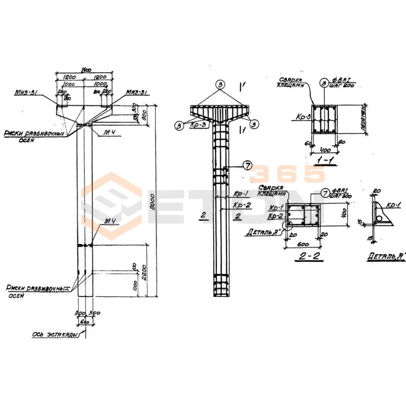
Документ Серия 3.015-2 описывает область применения, номенклатуру и ключевые требования, опираясь на действующие нормы и практику проектирования. Максимально детально ознакомиться со спецификой производства унифицированных одноярусных эстакад можно на страницах нормативного документа Серии 3.015-2. Регламент был разработан рядом проектных организаций и институтов, среди которых можно выделить НИИЖБ, ЦНИИпромзданий, ПРОМСТРОЙНИИПРОЕКТ и другие. Введение в действие состоялось после утверждения Госстроем СССР, начиная с октября 1974 года.

Файлы для скачивания:
picture_as_pdf

5083.pdf

6,552.3 KB

скачать
picture_as_pdf

5084.pdf

7,079.6 KB

скачать
picture_as_pdf

5085.pdf

6,762.5 KB

скачать
picture_as_pdf

5086.pdf

6,487.7 KB

скачать
picture_as_pdf

5087.pdf

6,049.2 KB

скачать
picture_as_pdf

5088.pdf

2,763.4 KB

скачать
picture_as_pdf

5089.pdf

4,095.2 KB

скачать
Товары Серия 3.015-2 (60)
К 13-2 (3.015-2)
Колонны Серия 3.015-2
  • Длина 8000 мм.
  • Ширина 400 мм.
  • Высота 400 мм.
  • Вес 4100 кг.
  • Объем бетона 1,64 м3
  • Геометрический объем 1,28 м3
Цена: 34998 руб.
Подробнее
К 13-4 (3.015-2)
Колонны Серия 3.015-2
  • Длина 8000 мм.
  • Ширина 400 мм.
  • Высота 400 мм.
  • Вес 4100 кг.
  • Объем бетона 1,64 м3
  • Геометрический объем 1,28 м3
Цена: 34998 руб.
Подробнее
К 13-3 (3.015-2)
Колонны Серия 3.015-2
  • Длина 8000 мм.
  • Ширина 400 мм.
  • Высота 400 мм.
  • Вес 4100 кг.
  • Объем бетона 1,64 м3
  • Геометрический объем 1,28 м3
Цена: 34998 руб.
Подробнее
К 14-2 (3.015-2)
Колонны Серия 3.015-2
  • Длина 8000 мм.
  • Ширина 500 мм.
  • Высота 400 мм.
  • Вес 4900 кг.
  • Объем бетона 1,94 м3
  • Геометрический объем 1,6 м3
Цена: 41400 руб.
Подробнее
К 14-1 (3.015-2)
Колонны Серия 3.015-2
  • Длина 8000 мм.
  • Ширина 500 мм.
  • Высота 400 мм.
  • Вес 4900 кг.
  • Объем бетона 1,94 м3
  • Геометрический объем 1,6 м3
Цена: 41400 руб.
Подробнее
К 14-4 (3.015-2)
Колонны Серия 3.015-2
  • Длина 8000 мм.
  • Ширина 500 мм.
  • Высота 400 мм.
  • Вес 4900 кг.
  • Объем бетона 1,94 м3
  • Геометрический объем 1,6 м3
Цена: 41400 руб.
Подробнее
К 14-5 (3.015-2)
Колонны Серия 3.015-2
  • Длина 8000 мм.
  • Ширина 500 мм.
  • Высота 400 мм.
  • Вес 4900 кг.
  • Объем бетона 1,94 м3
  • Геометрический объем 1,6 м3
Цена: 41400 руб.
Подробнее
К 14-3 (3.015-2)
Колонны Серия 3.015-2
  • Длина 8000 мм.
  • Ширина 500 мм.
  • Высота 400 мм.
  • Вес 4900 кг.
  • Объем бетона 1,94 м3
  • Геометрический объем 1,6 м3
Цена: 41400 руб.
Подробнее
К 14-6 (3.015-2)
Колонны Серия 3.015-2
  • Длина 8000 мм.
  • Ширина 500 мм.
  • Высота 400 мм.
  • Вес 4900 кг.
  • Объем бетона 1,94 м3
  • Геометрический объем 1,6 м3
Цена: 41400 руб.
Подробнее
К 15-1 (3.015-2)
Колонны Серия 3.015-2
  • Длина 5800 мм.
  • Ширина 400 мм.
  • Высота 400 мм.
  • Вес 3300 кг.
  • Объем бетона 1,32 м3
  • Геометрический объем 0,928 м3
Цена: 28169 руб.
Подробнее
К 15-2 (3.015-2)
Колонны Серия 3.015-2
  • Длина 5800 мм.
  • Ширина 400 мм.
  • Высота 400 мм.
  • Вес 3300 кг.
  • Объем бетона 1,32 м3
  • Геометрический объем 0,928 м3
Цена: 28169 руб.
Подробнее
К 15-3 (3.015-2)
Колонны Серия 3.015-2
  • Длина 5800 мм.
  • Ширина 400 мм.
  • Высота 400 мм.
  • Вес 3300 кг.
  • Объем бетона 1,32 м3
  • Геометрический объем 0,928 м3
Цена: 28169 руб.
Подробнее
К 15-5 (3.015-2)
Колонны Серия 3.015-2
  • Длина 5800 мм.
  • Ширина 400 мм.
  • Высота 400 мм.
  • Вес 3300 кг.
  • Объем бетона 1,32 м3
  • Геометрический объем 0,928 м3
Цена: 28169 руб.
Подробнее
К 15-4 (3.015-2)
Колонны Серия 3.015-2
  • Длина 5800 мм.
  • Ширина 400 мм.
  • Высота 400 мм.
  • Вес 3300 кг.
  • Объем бетона 1,32 м3
  • Геометрический объем 0,928 м3
Цена: 28169 руб.
Подробнее
К 15-6 (3.015-2)
Колонны Серия 3.015-2
  • Длина 5800 мм.
  • Ширина 400 мм.
  • Высота 400 мм.
  • Вес 3300 кг.
  • Объем бетона 1,32 м3
  • Геометрический объем 0,928 м3
Цена: 28169 руб.
Подробнее
К 16-1 (3.015-2)
Колонны Серия 3.015-2
  • Длина 5800 мм.
  • Ширина 500 мм.
  • Высота 400 мм.
  • Вес 3800 кг.
  • Объем бетона 1,52 м3
  • Геометрический объем 1,16 м3
Цена: 32437 руб.
Подробнее
К 16-2 (3.015-2)
Колонны Серия 3.015-2
  • Длина 5800 мм.
  • Ширина 500 мм.
  • Высота 400 мм.
  • Вес 3800 кг.
  • Объем бетона 1,52 м3
  • Геометрический объем 1,16 м3
Цена: 32437 руб.
Подробнее
К 16-3 (3.015-2)
Колонны Серия 3.015-2
  • Длина 5800 мм.
  • Ширина 500 мм.
  • Высота 400 мм.
  • Вес 3800 кг.
  • Объем бетона 1,52 м3
  • Геометрический объем 1,16 м3
Цена: 32437 руб.
Подробнее
К 17-1 (3.015-2)
Колонны Серия 3.015-2
  • Длина 5800 мм.
  • Ширина 600 мм.
  • Высота 400 мм.
  • Вес 4300 кг.
  • Объем бетона 1,73 м3
  • Геометрический объем 1,392 м3
Цена: 36918 руб.
Подробнее
К 16-4 (3.015-2)
Колонны Серия 3.015-2
  • Длина 5800 мм.
  • Ширина 500 мм.
  • Высота 400 мм.
  • Вес 3800 кг.
  • Объем бетона 1,52 м3
  • Геометрический объем 1,16 м3
Цена: 32437 руб.
Подробнее
К 18-1 (3.015-2)
Колонны Серия 3.015-2
  • Длина 6200 мм.
  • Ширина 500 мм.
  • Высота 400 мм.
  • Вес 4000 кг.
  • Объем бетона 1,6 м3
  • Геометрический объем 1,24 м3
Цена: 34144 руб.
Подробнее
К 18-3 (3.015-2)
Колонны Серия 3.015-2
  • Длина 6200 мм.
  • Ширина 500 мм.
  • Высота 400 мм.
  • Вес 4000 кг.
  • Объем бетона 1,6 м3
  • Геометрический объем 1,24 м3
Цена: 34144 руб.
Подробнее
К 18-2 (3.015-2)
Колонны Серия 3.015-2
  • Длина 6200 мм.
  • Ширина 500 мм.
  • Высота 400 мм.
  • Вес 4000 кг.
  • Объем бетона 1,6 м3
  • Геометрический объем 1,24 м3
Цена: 34144 руб.
Подробнее
К 18-4 (3.015-2)
Колонны Серия 3.015-2
  • Длина 6200 мм.
  • Ширина 500 мм.
  • Высота 400 мм.
  • Вес 4000 кг.
  • Объем бетона 1,6 м3
  • Геометрический объем 1,24 м3
Цена: 34144 руб.
Подробнее
К 18-6 (3.015-2)
Колонны Серия 3.015-2
  • Длина 6200 мм.
  • Ширина 500 мм.
  • Высота 400 мм.
  • Вес 4000 кг.
  • Объем бетона 1,6 м3
  • Геометрический объем 1,24 м3
Цена: 34144 руб.
Подробнее
К 19-2 (3.015-2)
Колонны Серия 3.015-2
  • Длина 6200 мм.
  • Ширина 600 мм.
  • Высота 400 мм.
  • Вес 4600 кг.
  • Объем бетона 1,83 м3
  • Геометрический объем 1,488 м3
Цена: 39052 руб.
Подробнее
К 18-5 (3.015-2)
Колонны Серия 3.015-2
  • Длина 6200 мм.
  • Ширина 500 мм.
  • Высота 400 мм.
  • Вес 4000 кг.
  • Объем бетона 1,6 м3
  • Геометрический объем 1,24 м3
Цена: 34144 руб.
Подробнее
К 19-1 (3.015-2)
Колонны Серия 3.015-2
  • Длина 6200 мм.
  • Ширина 600 мм.
  • Высота 400 мм.
  • Вес 4600 кг.
  • Объем бетона 1,83 м3
  • Геометрический объем 1,488 м3
Цена: 39052 руб.
Подробнее
К 19-3 (3.015-2)
Колонны Серия 3.015-2
  • Длина 6200 мм.
  • Ширина 600 мм.
  • Высота 400 мм.
  • Вес 4600 кг.
  • Объем бетона 1,83 м3
  • Геометрический объем 1,488 м3
Цена: 39052 руб.
Подробнее
К 19-4 (3.015-2)
Колонны Серия 3.015-2
  • Длина 6200 мм.
  • Ширина 600 мм.
  • Высота 400 мм.
  • Вес 4600 кг.
  • Объем бетона 1,83 м3
  • Геометрический объем 1,488 м3
Цена: 39052 руб.
Подробнее
К 19-5 (3.015-2)
Колонны Серия 3.015-2
  • Длина 6200 мм.
  • Ширина 600 мм.
  • Высота 400 мм.
  • Вес 4600 кг.
  • Объем бетона 1,83 м3
  • Геометрический объем 1,488 м3
Цена: 39052 руб.
Подробнее
К 2-1 (3.015-2)
Колонны Серия 3.015-2
  • Длина 6000 мм.
  • Ширина 400 мм.
  • Высота 400 мм.
  • Вес 2400 кг.
  • Объем бетона 0,96 м3
  • Геометрический объем 0,96 м3
Цена: 20486 руб.
Подробнее
К 2-3 (3.015-2)
Колонны Серия 3.015-2
  • Длина 6000 мм.
  • Ширина 400 мм.
  • Высота 400 мм.
  • Вес 2400 кг.
  • Объем бетона 0,96 м3
  • Геометрический объем 0,96 м3
Цена: 20486 руб.
Подробнее
К 2-2 (3.015-2)
Колонны Серия 3.015-2
  • Длина 6000 мм.
  • Ширина 400 мм.
  • Высота 400 мм.
  • Вес 2400 кг.
  • Объем бетона 0,96 м3
  • Геометрический объем 0,96 м3
Цена: 20486 руб.
Подробнее
К 2-4 (3.015-2)
Колонны Серия 3.015-2
  • Длина 6000 мм.
  • Ширина 400 мм.
  • Высота 400 мм.
  • Вес 2400 кг.
  • Объем бетона 0,96 м3
  • Геометрический объем 0,96 м3
Цена: 20486 руб.
Подробнее
К 2-5 (3.015-2)
Колонны Серия 3.015-2
  • Длина 6000 мм.
  • Ширина 400 мм.
  • Высота 400 мм.
  • Вес 2400 кг.
  • Объем бетона 0,96 м3
  • Геометрический объем 0,96 м3
Цена: 20486 руб.
Подробнее
К 20-4 (3.015-2)
Колонны Серия 3.015-2
  • Длина 6800 мм.
  • Ширина 500 мм.
  • Высота 400 мм.
  • Вес 4300 кг.
  • Объем бетона 1,72 м3
  • Геометрический объем 1,36 м3
Цена: 36705 руб.
Подробнее
К 20-2 (3.015-2)
Колонны Серия 3.015-2
  • Длина 6800 мм.
  • Ширина 500 мм.
  • Высота 400 мм.
  • Вес 4300 кг.
  • Объем бетона 1,72 м3
  • Геометрический объем 1,36 м3
Цена: 36705 руб.
Подробнее
К 20-1 (3.015-2)
Колонны Серия 3.015-2
  • Длина 6800 мм.
  • Ширина 500 мм.
  • Высота 400 мм.
  • Вес 4300 кг.
  • Объем бетона 1,72 м3
  • Геометрический объем 1,36 м3
Цена: 36705 руб.
Подробнее
К 20-3 (3.015-2)
Колонны Серия 3.015-2
  • Длина 6800 мм.
  • Ширина 500 мм.
  • Высота 400 мм.
  • Вес 4300 кг.
  • Объем бетона 1,72 м3
  • Геометрический объем 1,36 м3
Цена: 36705 руб.
Подробнее
К 20-5 (3.015-2)
Колонны Серия 3.015-2
  • Длина 6800 мм.
  • Ширина 500 мм.
  • Высота 400 мм.
  • Вес 4300 кг.
  • Объем бетона 1,72 м3
  • Геометрический объем 1,36 м3
Цена: 36705 руб.
Подробнее
К 20-6 (3.015-2)
Колонны Серия 3.015-2
  • Длина 6800 мм.
  • Ширина 500 мм.
  • Высота 400 мм.
  • Вес 4300 кг.
  • Объем бетона 1,72 м3
  • Геометрический объем 1,36 м3
Цена: 36705 руб.
Подробнее
К 21-1 (3.015-2)
Колонны Серия 3.015-2
  • Длина 6800 мм.
  • Ширина 600 мм.
  • Высота 400 мм.
  • Вес 4900 кг.
  • Объем бетона 1,97 м3
  • Геометрический объем 1,632 м3
Цена: 42040 руб.
Подробнее
К 21-2 (3.015-2)
Колонны Серия 3.015-2
  • Длина 6800 мм.
  • Ширина 600 мм.
  • Высота 400 мм.
  • Вес 4900 кг.
  • Объем бетона 1,97 м3
  • Геометрический объем 1,632 м3
Цена: 42040 руб.
Подробнее
К 21-5 (3.015-2)
Колонны Серия 3.015-2
  • Длина 6800 мм.
  • Ширина 600 мм.
  • Высота 400 мм.
  • Вес 4900 кг.
  • Объем бетона 1,97 м3
  • Геометрический объем 1,632 м3
Цена: 42040 руб.
Подробнее
К 21-3 (3.015-2)
Колонны Серия 3.015-2
  • Длина 6800 мм.
  • Ширина 600 мм.
  • Высота 400 мм.
  • Вес 4900 кг.
  • Объем бетона 1,97 м3
  • Геометрический объем 1,632 м3
Цена: 42040 руб.
Подробнее
К 21-4 (3.015-2)
Колонны Серия 3.015-2
  • Длина 6800 мм.
  • Ширина 600 мм.
  • Высота 400 мм.
  • Вес 4900 кг.
  • Объем бетона 1,97 м3
  • Геометрический объем 1,632 м3
Цена: 42040 руб.
Подробнее
К 22-1 (3.015-2)
Колонны Серия 3.015-2
  • Длина 8000 мм.
  • Ширина 500 мм.
  • Высота 400 мм.
  • Вес 4900 кг.
  • Объем бетона 1,96 м3
  • Геометрический объем 1,6 м3
Цена: 41826 руб.
Подробнее
К 22-2 (3.015-2)
Колонны Серия 3.015-2
  • Длина 8000 мм.
  • Ширина 500 мм.
  • Высота 400 мм.
  • Вес 4900 кг.
  • Объем бетона 1,96 м3
  • Геометрический объем 1,6 м3
Цена: 41826 руб.
Подробнее
К 23-2 (3.015-2)
Колонны Серия 3.015-2
  • Длина 8000 мм.
  • Ширина 600 мм.
  • Высота 400 мм.
  • Вес 5600 кг.
  • Объем бетона 2,25 м3
  • Геометрический объем 1,92 м3
Цена: 48015 руб.
Подробнее
К 23-4 (3.015-2)
Колонны Серия 3.015-2
  • Длина 8000 мм.
  • Ширина 600 мм.
  • Высота 400 мм.
  • Вес 5600 кг.
  • Объем бетона 2,25 м3
  • Геометрический объем 1,92 м3
Цена: 48015 руб.
Подробнее
К 23-1 (3.015-2)
Колонны Серия 3.015-2
  • Длина 8000 мм.
  • Ширина 600 мм.
  • Высота 400 мм.
  • Вес 5600 кг.
  • Объем бетона 2,25 м3
  • Геометрический объем 1,92 м3
Цена: 48015 руб.
Подробнее
К 23-3 (3.015-2)
Колонны Серия 3.015-2
  • Длина 8000 мм.
  • Ширина 600 мм.
  • Высота 400 мм.
  • Вес 5600 кг.
  • Объем бетона 2,25 м3
  • Геометрический объем 1,92 м3
Цена: 48015 руб.
Подробнее
К 23-5 (3.015-2)
Колонны Серия 3.015-2
  • Длина 8000 мм.
  • Ширина 600 мм.
  • Высота 400 мм.
  • Вес 5600 кг.
  • Объем бетона 2,25 м3
  • Геометрический объем 1,92 м3
Цена: 48015 руб.
Подробнее
К 24-1 (3.015-2)
Колонны Серия 3.015-2
  • Длина 8000 мм.
  • Ширина 600 мм.
  • Высота 500 мм.
  • Вес 7000 кг.
  • Объем бетона 2,81 м3
  • Геометрический объем 2,4 м3
Цена: 59965 руб.
Подробнее
К 23-6 (3.015-2)
Колонны Серия 3.015-2
  • Длина 8000 мм.
  • Ширина 600 мм.
  • Высота 400 мм.
  • Вес 5600 кг.
  • Объем бетона 2,25 м3
  • Геометрический объем 1,92 м3
Цена: 48015 руб.
Подробнее
К 24-2 (3.015-2)
Колонны Серия 3.015-2
  • Длина 8000 мм.
  • Ширина 600 мм.
  • Высота 500 мм.
  • Вес 7000 кг.
  • Объем бетона 2,81 м3
  • Геометрический объем 2,4 м3
Цена: 59965 руб.
Подробнее
К 23-7 (3.015-2)
Колонны Серия 3.015-2
  • Длина 8000 мм.
  • Ширина 600 мм.
  • Высота 400 мм.
  • Вес 5600 кг.
  • Объем бетона 2,25 м3
  • Геометрический объем 1,92 м3
Цена: 48015 руб.
Подробнее
К 24-3 (3.015-2)
Колонны Серия 3.015-2
  • Длина 8000 мм.
  • Ширина 600 мм.
  • Высота 500 мм.
  • Вес 7000 кг.
  • Объем бетона 2,81 м3
  • Геометрический объем 2,4 м3
Цена: 59965 руб.
Подробнее
К 25-1 (3.015-2)
Колонны Серия 3.015-2
  • Длина 5700 мм.
  • Ширина 400 мм.
  • Высота 400 мм.
  • Вес 2300 кг.
  • Объем бетона 0,91 м3
  • Геометрический объем 0,912 м3
Цена: 19419 руб.
Подробнее

Уведомление о файлах cookie

Мы используем файлы cookie для улучшения вашего опыта просмотра и анализа трафика. Нажимая "Принять все", вы соглашаетесь с нашей политикой конфиденциальности и политикой обработки файлов cookie.

MAX Дзен Телеграм Вконтакте vk