mobile_sound +7 (930) 655-55-90

Железобетонные опоры линий электропередачи. Рабочие чертежи (Серия 3.015-2/82)

Поделиться:
Поделиться:

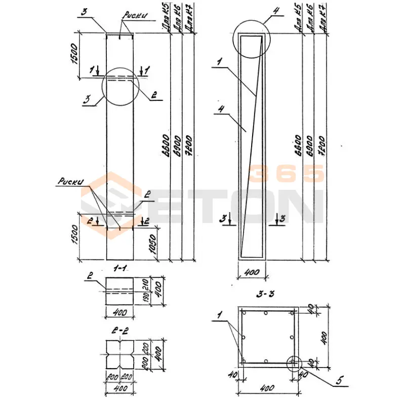
Документ Серия 3.015-2/82 описывает область применения, номенклатуру и ключевые требования, опираясь на действующие нормы и практику проектирования. Серия 3.015-2/82 является заменой ранее выпущенного нормативного документа и определяет и регламентирует перечень усовершенствованных конструкций унифицированных одноярусных эстакад. изделия и конструкции широко применяются при прокладке технологических трубопроводов и подразделяются на группы по несущей способности, что увеличивает возможность их использования в разнообразных типовых проектах. В номенклатурном перечне приведены индустриальные колонны и траверсы, а также стальные конструкции, с помощью которых можно собрать различного типа опоры под эстакады.

Файлы для скачивания:
picture_as_pdf

1466.pdf

29,903.4 KB

скачать
picture_as_pdf

1467.pdf

31,003.1 KB

скачать
picture_as_pdf

1468.pdf

5,635.5 KB

скачать
picture_as_pdf

1469.pdf

9,545.3 KB

скачать
picture_as_pdf

1470.pdf

19,629.9 KB

скачать
picture_as_pdf

1471.pdf

14,396.2 KB

скачать
picture_as_pdf

1472.pdf

8,612.5 KB

скачать
picture_as_pdf

1473.pdf

13,410.6 KB

скачать
Товары Серия 3.015-2/82 (60)
К 30-11
Колонны Серия 3.015-2/82
  • Длина 6900 мм.
  • Ширина 400 мм.
  • Высота 400 мм.
  • Вес 2800 кг.
  • Объем бетона 1,11 м3
  • Геометрический объем 1,104 м3
Цена: 23687 руб.
Подробнее
К 30-11 АтIVс
Колонны Серия 3.015-2/82
  • Длина 6900 мм.
  • Ширина 400 мм.
  • Высота 400 мм.
  • Вес 2800 кг.
  • Объем бетона 1,11 м3
  • Геометрический объем 1,104 м3
Цена: 23687 руб.
Подробнее
К 30-12
Колонны Серия 3.015-2/82
  • Длина 6900 мм.
  • Ширина 400 мм.
  • Высота 400 мм.
  • Вес 2800 кг.
  • Объем бетона 1,11 м3
  • Геометрический объем 1,104 м3
Цена: 23687 руб.
Подробнее
К 30-12 АтIVс
Колонны Серия 3.015-2/82
  • Длина 6900 мм.
  • Ширина 400 мм.
  • Высота 400 мм.
  • Вес 2800 кг.
  • Объем бетона 1,11 м3
  • Геометрический объем 1,104 м3
Цена: 23687 руб.
Подробнее
К 30-13
Колонны Серия 3.015-2/82
  • Длина 6900 мм.
  • Ширина 400 мм.
  • Высота 400 мм.
  • Вес 2800 кг.
  • Объем бетона 1,11 м3
  • Геометрический объем 1,104 м3
Цена: 23687 руб.
Подробнее
К 30-13 АтIVс
Колонны Серия 3.015-2/82
  • Длина 6900 мм.
  • Ширина 400 мм.
  • Высота 400 мм.
  • Вес 2800 кг.
  • Объем бетона 1,11 м3
  • Геометрический объем 1,104 м3
Цена: 23687 руб.
Подробнее
К 30-2
Колонны Серия 3.015-2/82
  • Длина 6900 мм.
  • Ширина 400 мм.
  • Высота 400 мм.
  • Вес 2800 кг.
  • Объем бетона 1,11 м3
  • Геометрический объем 1,104 м3
Цена: 23687 руб.
Подробнее
К 30-2 АтIVс
Колонны Серия 3.015-2/82
  • Длина 6900 мм.
  • Ширина 400 мм.
  • Высота 400 мм.
  • Вес 2800 кг.
  • Объем бетона 1,11 м3
  • Геометрический объем 1,104 м3
Цена: 23687 руб.
Подробнее
К 30-3 АтIVс
Колонны Серия 3.015-2/82
  • Длина 6900 мм.
  • Ширина 400 мм.
  • Высота 400 мм.
  • Вес 2800 кг.
  • Объем бетона 1,11 м3
  • Геометрический объем 1,104 м3
Цена: 23687 руб.
Подробнее
К 30-3
Колонны Серия 3.015-2/82
  • Длина 6900 мм.
  • Ширина 400 мм.
  • Высота 400 мм.
  • Вес 2800 кг.
  • Объем бетона 1,11 м3
  • Геометрический объем 1,104 м3
Цена: 23687 руб.
Подробнее
К 30-4
Колонны Серия 3.015-2/82
  • Длина 6900 мм.
  • Ширина 400 мм.
  • Высота 400 мм.
  • Вес 2800 кг.
  • Объем бетона 1,11 м3
  • Геометрический объем 1,104 м3
Цена: 23687 руб.
Подробнее
К 30-5
Колонны Серия 3.015-2/82
  • Длина 6900 мм.
  • Ширина 400 мм.
  • Высота 400 мм.
  • Вес 2800 кг.
  • Объем бетона 1,11 м3
  • Геометрический объем 1,104 м3
Цена: 23687 руб.
Подробнее
К 30-4 АтIVс
Колонны Серия 3.015-2/82
  • Длина 6900 мм.
  • Ширина 400 мм.
  • Высота 400 мм.
  • Вес 2800 кг.
  • Объем бетона 1,11 м3
  • Геометрический объем 1,104 м3
Цена: 23687 руб.
Подробнее
К 30-5 АтIVс
Колонны Серия 3.015-2/82
  • Длина 6900 мм.
  • Ширина 400 мм.
  • Высота 400 мм.
  • Вес 2800 кг.
  • Объем бетона 1,11 м3
  • Геометрический объем 1,104 м3
Цена: 23687 руб.
Подробнее
К 30-6
Колонны Серия 3.015-2/82
  • Длина 6900 мм.
  • Ширина 400 мм.
  • Высота 400 мм.
  • Вес 2800 кг.
  • Объем бетона 1,11 м3
  • Геометрический объем 1,104 м3
Цена: 23687 руб.
Подробнее
К 30-6 АтIVс
Колонны Серия 3.015-2/82
  • Длина 6900 мм.
  • Ширина 400 мм.
  • Высота 400 мм.
  • Вес 2800 кг.
  • Объем бетона 1,11 м3
  • Геометрический объем 1,104 м3
Цена: 23687 руб.
Подробнее
К 30-7
Колонны Серия 3.015-2/82
  • Длина 6900 мм.
  • Ширина 400 мм.
  • Высота 400 мм.
  • Вес 2800 кг.
  • Объем бетона 1,11 м3
  • Геометрический объем 1,104 м3
Цена: 23687 руб.
Подробнее
К 30-8
Колонны Серия 3.015-2/82
  • Длина 6900 мм.
  • Ширина 400 мм.
  • Высота 400 мм.
  • Вес 2800 кг.
  • Объем бетона 1,11 м3
  • Геометрический объем 1,104 м3
Цена: 23687 руб.
Подробнее
К 30-7 АтIVс
Колонны Серия 3.015-2/82
  • Длина 6900 мм.
  • Ширина 400 мм.
  • Высота 400 мм.
  • Вес 2800 кг.
  • Объем бетона 1,11 м3
  • Геометрический объем 1,104 м3
Цена: 23687 руб.
Подробнее
К 30-8 АтIVс
Колонны Серия 3.015-2/82
  • Длина 6900 мм.
  • Ширина 400 мм.
  • Высота 400 мм.
  • Вес 2800 кг.
  • Объем бетона 1,11 м3
  • Геометрический объем 1,104 м3
Цена: 23687 руб.
Подробнее
К 30-9
Колонны Серия 3.015-2/82
  • Длина 6900 мм.
  • Ширина 400 мм.
  • Высота 400 мм.
  • Вес 2800 кг.
  • Объем бетона 1,11 м3
  • Геометрический объем 1,104 м3
Цена: 23687 руб.
Подробнее
К 30-9 АтIVс
Колонны Серия 3.015-2/82
  • Длина 6900 мм.
  • Ширина 400 мм.
  • Высота 400 мм.
  • Вес 2800 кг.
  • Объем бетона 1,11 м3
  • Геометрический объем 1,104 м3
Цена: 23687 руб.
Подробнее
К 31-1
Колонны Серия 3.015-2/82
  • Длина 6900 мм.
  • Ширина 400 мм.
  • Высота 500 мм.
  • Вес 3500 кг.
  • Объем бетона 1,38 м3
  • Геометрический объем 1,38 м3
Цена: 29449 руб.
Подробнее
К 31-1 АтIVс
Колонны Серия 3.015-2/82
  • Длина 6900 мм.
  • Ширина 400 мм.
  • Высота 500 мм.
  • Вес 3500 кг.
  • Объем бетона 1,38 м3
  • Геометрический объем 1,38 м3
Цена: 29449 руб.
Подробнее
К 31-2
Колонны Серия 3.015-2/82
  • Длина 6900 мм.
  • Ширина 400 мм.
  • Высота 500 мм.
  • Вес 3500 кг.
  • Объем бетона 1,38 м3
  • Геометрический объем 1,38 м3
Цена: 29449 руб.
Подробнее
К 31-2 АтIVс
Колонны Серия 3.015-2/82
  • Длина 6900 мм.
  • Ширина 400 мм.
  • Высота 500 мм.
  • Вес 3500 кг.
  • Объем бетона 1,38 м3
  • Геометрический объем 1,38 м3
Цена: 29449 руб.
Подробнее
К 31-3
Колонны Серия 3.015-2/82
  • Длина 6900 мм.
  • Ширина 400 мм.
  • Высота 500 мм.
  • Вес 3500 кг.
  • Объем бетона 1,38 м3
  • Геометрический объем 1,38 м3
Цена: 29449 руб.
Подробнее
К 31-3 АтIVс
Колонны Серия 3.015-2/82
  • Длина 6900 мм.
  • Ширина 400 мм.
  • Высота 500 мм.
  • Вес 3500 кг.
  • Объем бетона 1,38 м3
  • Геометрический объем 1,38 м3
Цена: 29449 руб.
Подробнее
К 31-4
Колонны Серия 3.015-2/82
  • Длина 6900 мм.
  • Ширина 400 мм.
  • Высота 500 мм.
  • Вес 3500 кг.
  • Объем бетона 1,38 м3
  • Геометрический объем 1,38 м3
Цена: 29449 руб.
Подробнее
К 31-4 АтIVс
Колонны Серия 3.015-2/82
  • Длина 6900 мм.
  • Ширина 400 мм.
  • Высота 500 мм.
  • Вес 3500 кг.
  • Объем бетона 1,38 м3
  • Геометрический объем 1,38 м3
Цена: 29449 руб.
Подробнее
К 31-5
Колонны Серия 3.015-2/82
  • Длина 6900 мм.
  • Ширина 400 мм.
  • Высота 500 мм.
  • Вес 3500 кг.
  • Объем бетона 1,38 м3
  • Геометрический объем 1,38 м3
Цена: 29449 руб.
Подробнее
К 31-5 АтIVс
Колонны Серия 3.015-2/82
  • Длина 6900 мм.
  • Ширина 400 мм.
  • Высота 500 мм.
  • Вес 3500 кг.
  • Объем бетона 1,38 м3
  • Геометрический объем 1,38 м3
Цена: 29449 руб.
Подробнее
К 31-6
Колонны Серия 3.015-2/82
  • Длина 6900 мм.
  • Ширина 400 мм.
  • Высота 500 мм.
  • Вес 3500 кг.
  • Объем бетона 1,38 м3
  • Геометрический объем 1,38 м3
Цена: 29449 руб.
Подробнее
К 31-6 АтIVс
Колонны Серия 3.015-2/82
  • Длина 6900 мм.
  • Ширина 400 мм.
  • Высота 500 мм.
  • Вес 3500 кг.
  • Объем бетона 1,38 м3
  • Геометрический объем 1,38 м3
Цена: 29449 руб.
Подробнее
К 32-1
Колонны Серия 3.015-2/82
  • Длина 6900 мм.
  • Ширина 500 мм.
  • Высота 500 мм.
  • Вес 4300 кг.
  • Объем бетона 1,72 м3
  • Геометрический объем 1,725 м3
Цена: 36705 руб.
Подробнее
К 32-1 АтIVс
Колонны Серия 3.015-2/82
  • Длина 6900 мм.
  • Ширина 500 мм.
  • Высота 500 мм.
  • Вес 4300 кг.
  • Объем бетона 1,72 м3
  • Геометрический объем 1,725 м3
Цена: 36705 руб.
Подробнее
К 32-2
Колонны Серия 3.015-2/82
  • Длина 6900 мм.
  • Ширина 500 мм.
  • Высота 500 мм.
  • Вес 4300 кг.
  • Объем бетона 1,72 м3
  • Геометрический объем 1,725 м3
Цена: 36705 руб.
Подробнее
К 32-2 АтIVс
Колонны Серия 3.015-2/82
  • Длина 6900 мм.
  • Ширина 500 мм.
  • Высота 500 мм.
  • Вес 4300 кг.
  • Объем бетона 1,72 м3
  • Геометрический объем 1,725 м3
Цена: 36705 руб.
Подробнее
К 33-1
Колонны Серия 3.015-2/82
  • Длина 8100 мм.
  • Ширина 400 мм.
  • Высота 400 мм.
  • Вес 3300 кг.
  • Объем бетона 1,3 м3
  • Геометрический объем 1,296 м3
Цена: 27742 руб.
Подробнее
К 33-2
Колонны Серия 3.015-2/82
  • Длина 8100 мм.
  • Ширина 400 мм.
  • Высота 400 мм.
  • Вес 3300 кг.
  • Объем бетона 1,3 м3
  • Геометрический объем 1,296 м3
Цена: 27742 руб.
Подробнее
К 33-1 АтIVс
Колонны Серия 3.015-2/82
  • Длина 8100 мм.
  • Ширина 400 мм.
  • Высота 400 мм.
  • Вес 3300 кг.
  • Объем бетона 1,3 м3
  • Геометрический объем 1,296 м3
Цена: 27742 руб.
Подробнее
К 33-2 АтIVс
Колонны Серия 3.015-2/82
  • Длина 8100 мм.
  • Ширина 400 мм.
  • Высота 400 мм.
  • Вес 3300 кг.
  • Объем бетона 1,3 м3
  • Геометрический объем 1,296 м3
Цена: 27742 руб.
Подробнее
К 33-3
Колонны Серия 3.015-2/82
  • Длина 8100 мм.
  • Ширина 400 мм.
  • Высота 400 мм.
  • Вес 3300 кг.
  • Объем бетона 1,3 м3
  • Геометрический объем 1,296 м3
Цена: 27742 руб.
Подробнее
К 33-3 АтIVс
Колонны Серия 3.015-2/82
  • Длина 8100 мм.
  • Ширина 400 мм.
  • Высота 400 мм.
  • Вес 3300 кг.
  • Объем бетона 1,3 м3
  • Геометрический объем 1,296 м3
Цена: 27742 руб.
Подробнее
К 33-4
Колонны Серия 3.015-2/82
  • Длина 8100 мм.
  • Ширина 400 мм.
  • Высота 400 мм.
  • Вес 3300 кг.
  • Объем бетона 1,3 м3
  • Геометрический объем 1,296 м3
Цена: 27742 руб.
Подробнее
К 33-4 АтIVс
Колонны Серия 3.015-2/82
  • Длина 8100 мм.
  • Ширина 400 мм.
  • Высота 400 мм.
  • Вес 3300 кг.
  • Объем бетона 1,3 м3
  • Геометрический объем 1,296 м3
Цена: 27742 руб.
Подробнее
К 33-5 АтIVс
Колонны Серия 3.015-2/82
  • Длина 8100 мм.
  • Ширина 400 мм.
  • Высота 400 мм.
  • Вес 3300 кг.
  • Объем бетона 1,3 м3
  • Геометрический объем 1,296 м3
Цена: 27742 руб.
Подробнее
К 33-5
Колонны Серия 3.015-2/82
  • Длина 8100 мм.
  • Ширина 400 мм.
  • Высота 400 мм.
  • Вес 3300 кг.
  • Объем бетона 1,3 м3
  • Геометрический объем 1,296 м3
Цена: 27742 руб.
Подробнее
К 33-6
Колонны Серия 3.015-2/82
  • Длина 8100 мм.
  • Ширина 400 мм.
  • Высота 400 мм.
  • Вес 3300 кг.
  • Объем бетона 1,3 м3
  • Геометрический объем 1,296 м3
Цена: 27742 руб.
Подробнее
К 33-7
Колонны Серия 3.015-2/82
  • Длина 8100 мм.
  • Ширина 400 мм.
  • Высота 400 мм.
  • Вес 3300 кг.
  • Объем бетона 1,3 м3
  • Геометрический объем 1,296 м3
Цена: 27742 руб.
Подробнее
К 33-6 АтIVс
Колонны Серия 3.015-2/82
  • Длина 8100 мм.
  • Ширина 400 мм.
  • Высота 400 мм.
  • Вес 3300 кг.
  • Объем бетона 1,3 м3
  • Геометрический объем 1,296 м3
Цена: 27742 руб.
Подробнее
К 34-1 АтIVс
Колонны Серия 3.015-2/82
  • Длина 8100 мм.
  • Ширина 400 мм.
  • Высота 500 мм.
  • Вес 4100 кг.
  • Объем бетона 1,62 м3
  • Геометрический объем 1,62 м3
Цена: 34571 руб.
Подробнее
К 34-1
Колонны Серия 3.015-2/82
  • Длина 8100 мм.
  • Ширина 400 мм.
  • Высота 500 мм.
  • Вес 4100 кг.
  • Объем бетона 1,62 м3
  • Геометрический объем 1,62 м3
Цена: 34571 руб.
Подробнее
К 34-10
Колонны Серия 3.015-2/82
  • Длина 8100 мм.
  • Ширина 400 мм.
  • Высота 500 мм.
  • Вес 4100 кг.
  • Объем бетона 1,62 м3
  • Геометрический объем 1,62 м3
Цена: 34571 руб.
Подробнее
К 33-7 АтIVс
Колонны Серия 3.015-2/82
  • Длина 8100 мм.
  • Ширина 400 мм.
  • Высота 400 мм.
  • Вес 3300 кг.
  • Объем бетона 1,3 м3
  • Геометрический объем 1,296 м3
Цена: 27742 руб.
Подробнее
К 34-10 АтIVс
Колонны Серия 3.015-2/82
  • Длина 8100 мм.
  • Ширина 400 мм.
  • Высота 500 мм.
  • Вес 4100 кг.
  • Объем бетона 1,62 м3
  • Геометрический объем 1,62 м3
Цена: 34571 руб.
Подробнее
К 34-11
Колонны Серия 3.015-2/82
  • Длина 8100 мм.
  • Ширина 400 мм.
  • Высота 500 мм.
  • Вес 4100 кг.
  • Объем бетона 1,62 м3
  • Геометрический объем 1,62 м3
Цена: 34571 руб.
Подробнее
К 34-2
Колонны Серия 3.015-2/82
  • Длина 8100 мм.
  • Ширина 400 мм.
  • Высота 500 мм.
  • Вес 4100 кг.
  • Объем бетона 1,62 м3
  • Геометрический объем 1,62 м3
Цена: 34571 руб.
Подробнее
К 34-3
Колонны Серия 3.015-2/82
  • Длина 8100 мм.
  • Ширина 400 мм.
  • Высота 500 мм.
  • Вес 4100 кг.
  • Объем бетона 1,62 м3
  • Геометрический объем 1,62 м3
Цена: 34571 руб.
Подробнее
К 34-2 АтIVс
Колонны Серия 3.015-2/82
  • Длина 8100 мм.
  • Ширина 400 мм.
  • Высота 500 мм.
  • Вес 4100 кг.
  • Объем бетона 1,62 м3
  • Геометрический объем 1,62 м3
Цена: 34571 руб.
Подробнее

Уведомление о файлах cookie

Мы используем файлы cookie для улучшения вашего опыта просмотра и анализа трафика. Нажимая "Принять все", вы соглашаетесь с нашей политикой конфиденциальности и политикой обработки файлов cookie.

MAX Дзен Телеграм Вконтакте vk