mobile_sound +7 (930) 655-55-90

Железобетонные опоры линий электропередачи. Рабочие чертежи (Серия 3.015-2/82)

Поделиться:
Поделиться:

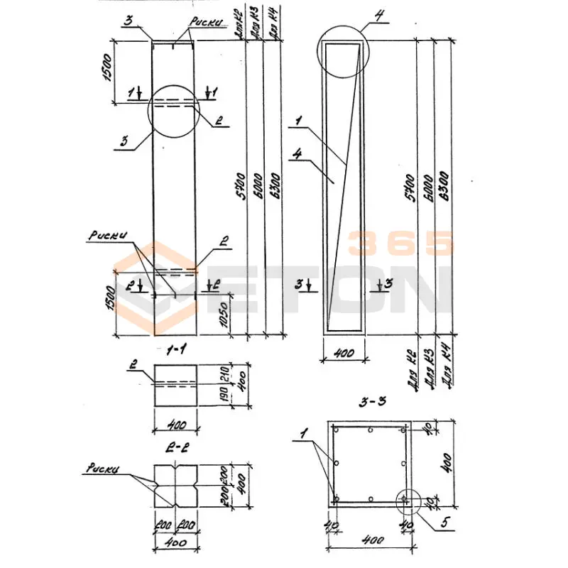
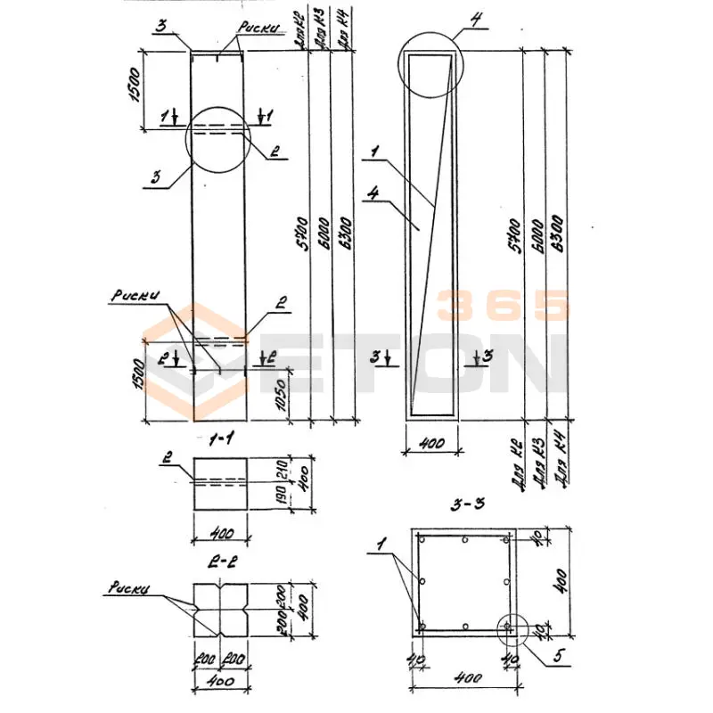
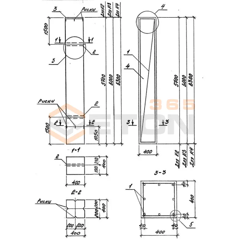
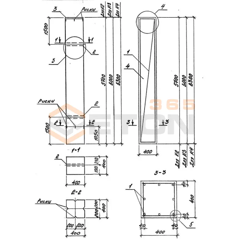
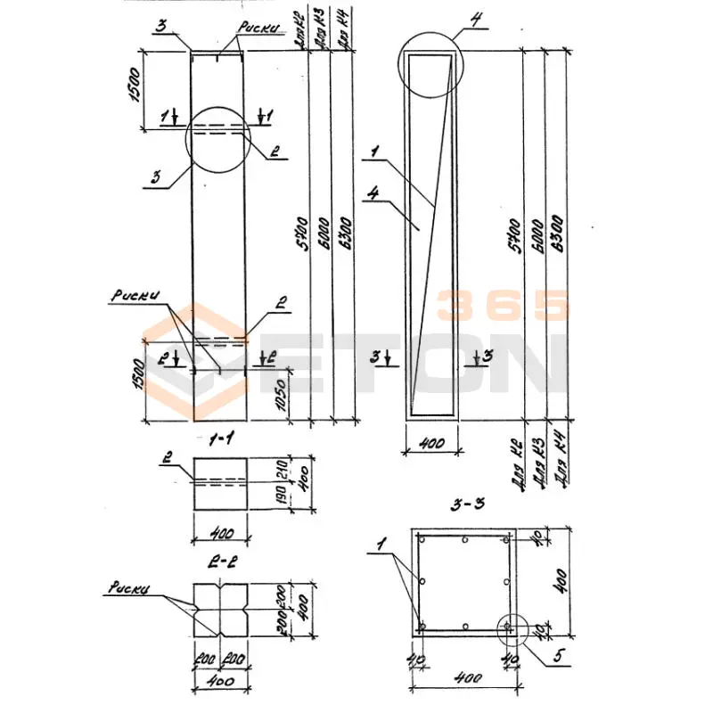
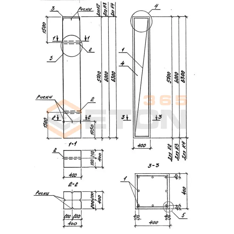
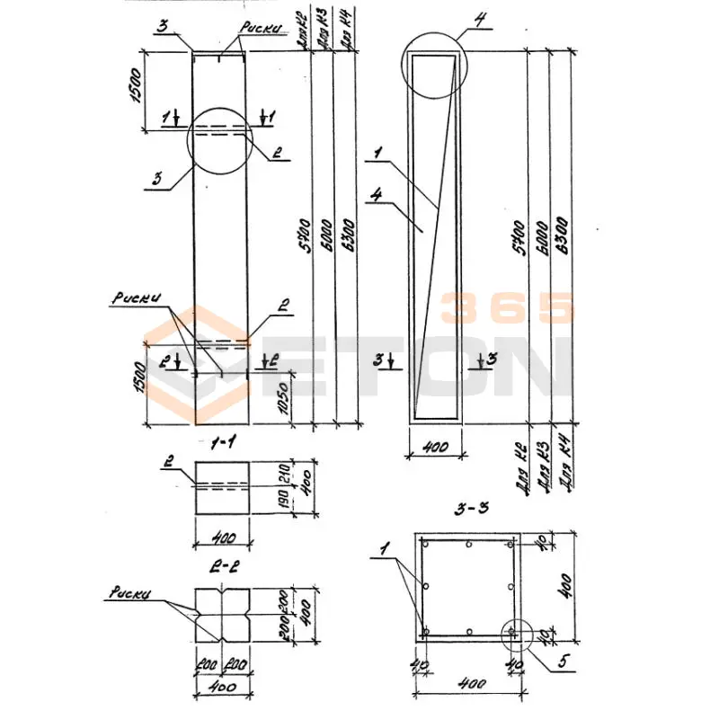
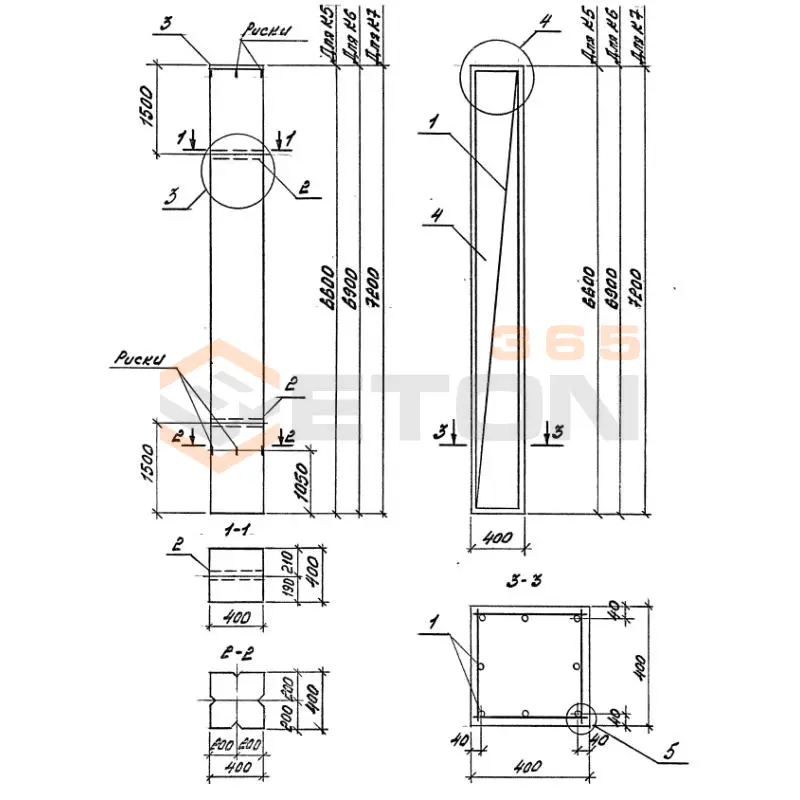
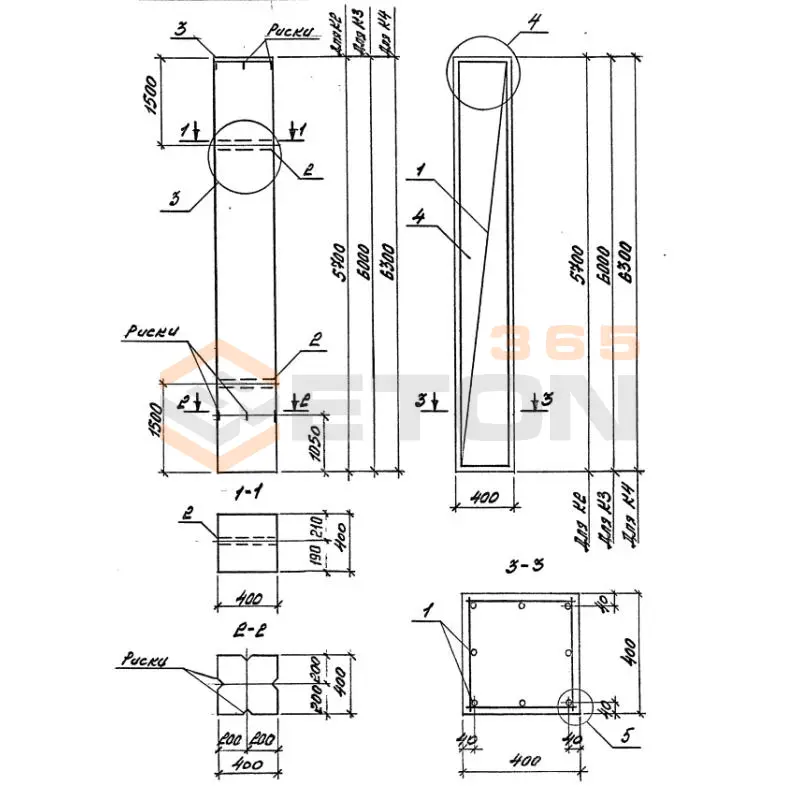
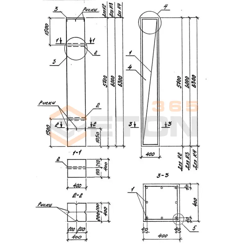
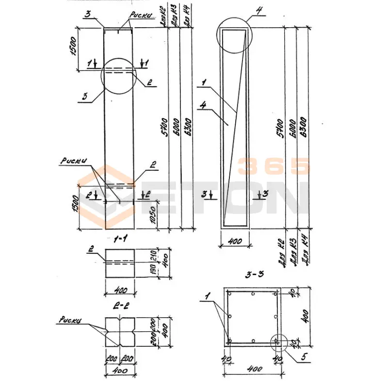
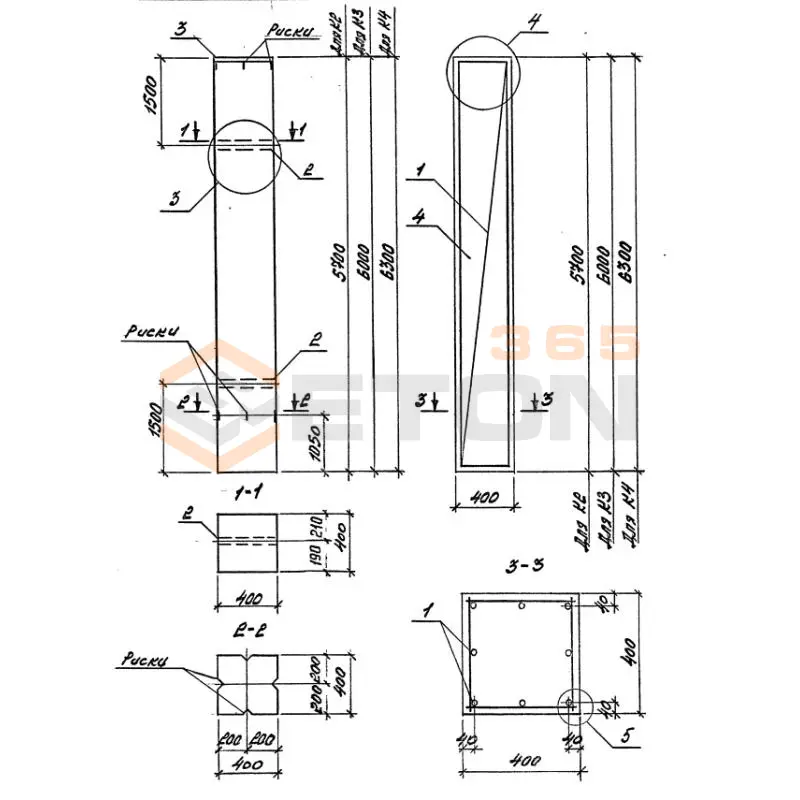
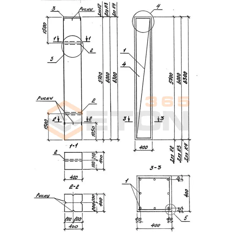
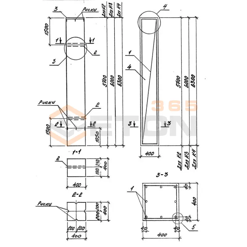
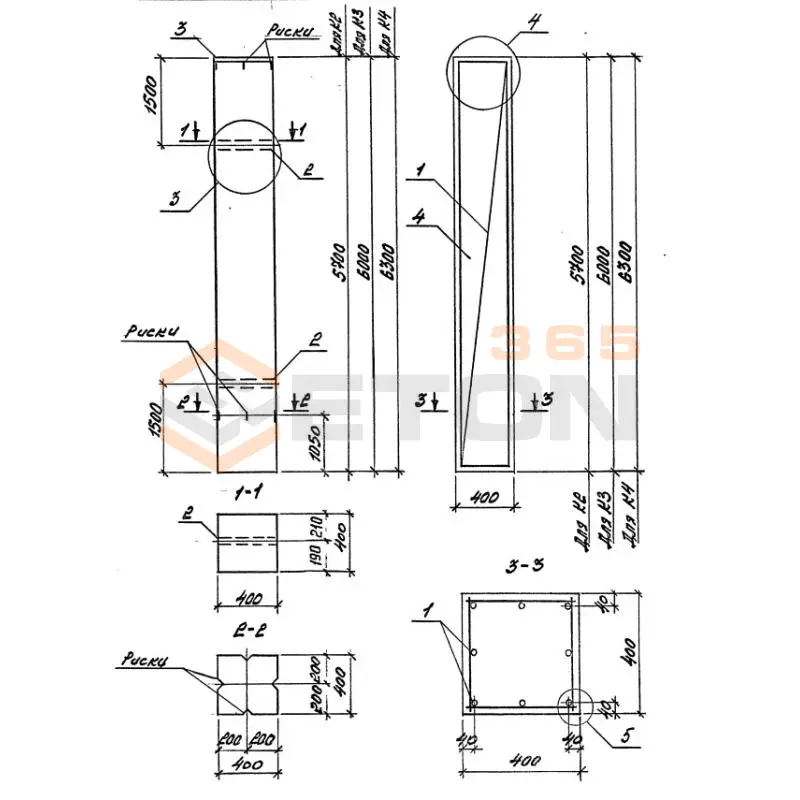
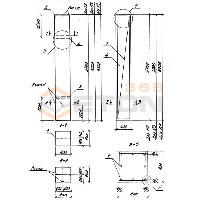
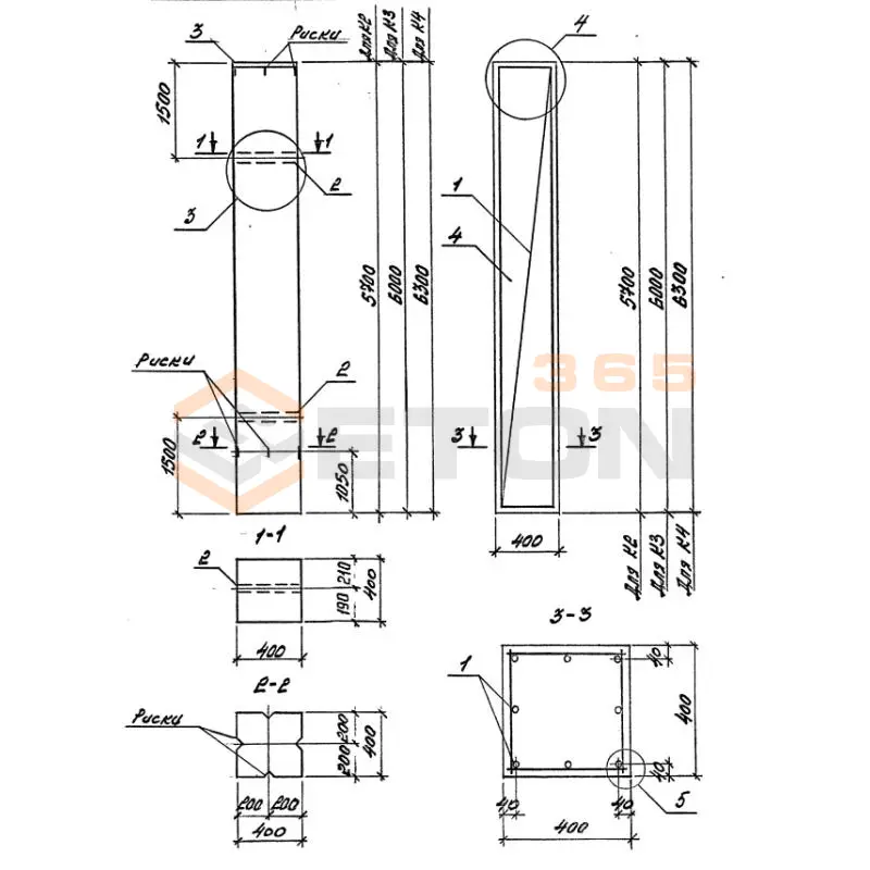
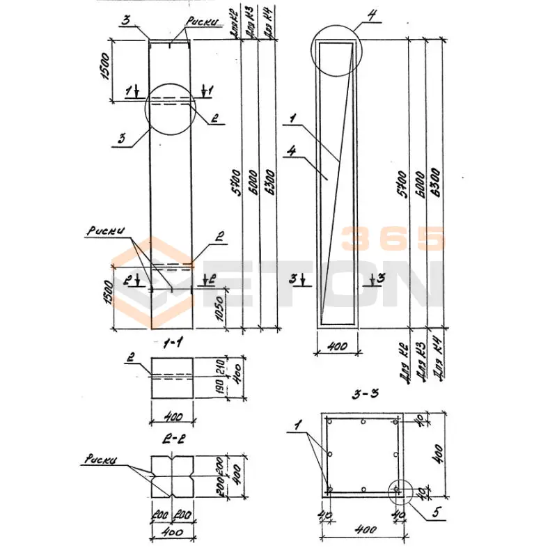
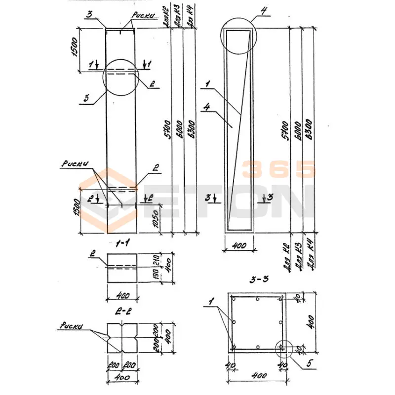
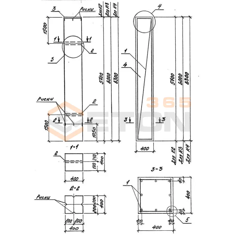
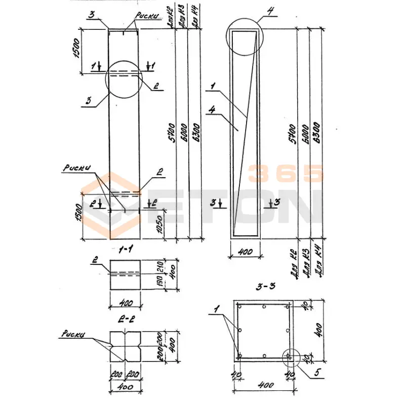
Документ Серия 3.015-2/82 описывает область применения, номенклатуру и ключевые требования, опираясь на действующие нормы и практику проектирования. Серия 3.015-2/82 является заменой ранее выпущенного нормативного документа и определяет и регламентирует перечень усовершенствованных конструкций унифицированных одноярусных эстакад. изделия и конструкции широко применяются при прокладке технологических трубопроводов и подразделяются на группы по несущей способности, что увеличивает возможность их использования в разнообразных типовых проектах. В номенклатурном перечне приведены индустриальные колонны и траверсы, а также стальные конструкции, с помощью которых можно собрать различного типа опоры под эстакады.

Файлы для скачивания:
picture_as_pdf

1466.pdf

29,903.4 KB

скачать
picture_as_pdf

1467.pdf

31,003.1 KB

скачать
picture_as_pdf

1468.pdf

5,635.5 KB

скачать
picture_as_pdf

1469.pdf

9,545.3 KB

скачать
picture_as_pdf

1470.pdf

19,629.9 KB

скачать
picture_as_pdf

1471.pdf

14,396.2 KB

скачать
picture_as_pdf

1472.pdf

8,612.5 KB

скачать
picture_as_pdf

1473.pdf

13,410.6 KB

скачать
Товары Серия 3.015-2/82 (60)
К 27-1
Колонны Серия 3.015-2/82
  • Длина 6300 мм.
  • Ширина 400 мм.
  • Высота 400 мм.
  • Вес 2500 кг.
  • Объем бетона 1,01 м3
  • Геометрический объем 1,008 м3
Цена: 21553 руб.
Подробнее
К 27-1 АтIVс
Колонны Серия 3.015-2/82
  • Длина 6300 мм.
  • Ширина 400 мм.
  • Высота 400 мм.
  • Вес 2500 кг.
  • Объем бетона 1,01 м3
  • Геометрический объем 1,008 м3
Цена: 21553 руб.
Подробнее
К 27-11
Колонны Серия 3.015-2/82
  • Длина 6300 мм.
  • Ширина 400 мм.
  • Высота 400 мм.
  • Вес 2500 кг.
  • Объем бетона 1,01 м3
  • Геометрический объем 1,008 м3
Цена: 21553 руб.
Подробнее
К 27-11 АтIVс
Колонны Серия 3.015-2/82
  • Длина 6300 мм.
  • Ширина 400 мм.
  • Высота 400 мм.
  • Вес 2500 кг.
  • Объем бетона 1,01 м3
  • Геометрический объем 1,008 м3
Цена: 21553 руб.
Подробнее
К 27-10 АтIVс
Колонны Серия 3.015-2/82
  • Длина 6300 мм.
  • Ширина 400 мм.
  • Высота 400 мм.
  • Вес 2500 кг.
  • Объем бетона 1,01 м3
  • Геометрический объем 1,008 м3
Цена: 21553 руб.
Подробнее
К 27-12
Колонны Серия 3.015-2/82
  • Длина 6300 мм.
  • Ширина 400 мм.
  • Высота 400 мм.
  • Вес 2500 кг.
  • Объем бетона 1,01 м3
  • Геометрический объем 1,008 м3
Цена: 21553 руб.
Подробнее
К 27-10
Колонны Серия 3.015-2/82
  • Длина 6300 мм.
  • Ширина 400 мм.
  • Высота 400 мм.
  • Вес 2500 кг.
  • Объем бетона 1,01 м3
  • Геометрический объем 1,008 м3
Цена: 21553 руб.
Подробнее
К 27-12 АтIVс
Колонны Серия 3.015-2/82
  • Длина 6300 мм.
  • Ширина 400 мм.
  • Высота 400 мм.
  • Вес 2500 кг.
  • Объем бетона 1,01 м3
  • Геометрический объем 1,008 м3
Цена: 21553 руб.
Подробнее
К 27-13 АтIVс
Колонны Серия 3.015-2/82
  • Длина 6300 мм.
  • Ширина 400 мм.
  • Высота 400 мм.
  • Вес 2500 кг.
  • Объем бетона 1,01 м3
  • Геометрический объем 1,008 м3
Цена: 21553 руб.
Подробнее
К 27-2
Колонны Серия 3.015-2/82
  • Длина 6300 мм.
  • Ширина 400 мм.
  • Высота 400 мм.
  • Вес 2500 кг.
  • Объем бетона 1,01 м3
  • Геометрический объем 1,008 м3
Цена: 21553 руб.
Подробнее
К 27-3
Колонны Серия 3.015-2/82
  • Длина 6300 мм.
  • Ширина 400 мм.
  • Высота 400 мм.
  • Вес 2500 кг.
  • Объем бетона 1,01 м3
  • Геометрический объем 1,008 м3
Цена: 21553 руб.
Подробнее
К 27-13
Колонны Серия 3.015-2/82
  • Длина 6300 мм.
  • Ширина 400 мм.
  • Высота 400 мм.
  • Вес 2500 кг.
  • Объем бетона 1,01 м3
  • Геометрический объем 1,008 м3
Цена: 21553 руб.
Подробнее
К 27-2 АтIVс
Колонны Серия 3.015-2/82
  • Длина 6300 мм.
  • Ширина 400 мм.
  • Высота 400 мм.
  • Вес 2500 кг.
  • Объем бетона 1,01 м3
  • Геометрический объем 1,008 м3
Цена: 21553 руб.
Подробнее
К 27-3 АтIVс
Колонны Серия 3.015-2/82
  • Длина 6300 мм.
  • Ширина 400 мм.
  • Высота 400 мм.
  • Вес 2500 кг.
  • Объем бетона 1,01 м3
  • Геометрический объем 1,008 м3
Цена: 21553 руб.
Подробнее
К 27-4
Колонны Серия 3.015-2/82
  • Длина 6300 мм.
  • Ширина 400 мм.
  • Высота 400 мм.
  • Вес 2500 кг.
  • Объем бетона 1,01 м3
  • Геометрический объем 1,008 м3
Цена: 21553 руб.
Подробнее
К 27-6
Колонны Серия 3.015-2/82
  • Длина 6300 мм.
  • Ширина 400 мм.
  • Высота 400 мм.
  • Вес 2500 кг.
  • Объем бетона 1,01 м3
  • Геометрический объем 1,008 м3
Цена: 21553 руб.
Подробнее
К 27-5
Колонны Серия 3.015-2/82
  • Длина 6300 мм.
  • Ширина 400 мм.
  • Высота 400 мм.
  • Вес 2500 кг.
  • Объем бетона 1,01 м3
  • Геометрический объем 1,008 м3
Цена: 21553 руб.
Подробнее
К 27-4 АтIVс
Колонны Серия 3.015-2/82
  • Длина 6300 мм.
  • Ширина 400 мм.
  • Высота 400 мм.
  • Вес 2500 кг.
  • Объем бетона 1,01 м3
  • Геометрический объем 1,008 м3
Цена: 21553 руб.
Подробнее
К 27-5 АтIVс
Колонны Серия 3.015-2/82
  • Длина 6300 мм.
  • Ширина 400 мм.
  • Высота 400 мм.
  • Вес 2500 кг.
  • Объем бетона 1,01 м3
  • Геометрический объем 1,008 м3
Цена: 21553 руб.
Подробнее
К 27-7 АтIVс
Колонны Серия 3.015-2/82
  • Длина 6300 мм.
  • Ширина 400 мм.
  • Высота 400 мм.
  • Вес 2500 кг.
  • Объем бетона 1,01 м3
  • Геометрический объем 1,008 м3
Цена: 21553 руб.
Подробнее
К 27-6 АтIVс
Колонны Серия 3.015-2/82
  • Длина 6300 мм.
  • Ширина 400 мм.
  • Высота 400 мм.
  • Вес 2500 кг.
  • Объем бетона 1,01 м3
  • Геометрический объем 1,008 м3
Цена: 21553 руб.
Подробнее
К 27-7
Колонны Серия 3.015-2/82
  • Длина 6300 мм.
  • Ширина 400 мм.
  • Высота 400 мм.
  • Вес 2500 кг.
  • Объем бетона 1,01 м3
  • Геометрический объем 1,008 м3
Цена: 21553 руб.
Подробнее
К 27-8 АтIVс
Колонны Серия 3.015-2/82
  • Длина 6300 мм.
  • Ширина 400 мм.
  • Высота 400 мм.
  • Вес 2500 кг.
  • Объем бетона 1,01 м3
  • Геометрический объем 1,008 м3
Цена: 21553 руб.
Подробнее
К 27-9
Колонны Серия 3.015-2/82
  • Длина 6300 мм.
  • Ширина 400 мм.
  • Высота 400 мм.
  • Вес 2500 кг.
  • Объем бетона 1,01 м3
  • Геометрический объем 1,008 м3
Цена: 21553 руб.
Подробнее
К 27-8
Колонны Серия 3.015-2/82
  • Длина 6300 мм.
  • Ширина 400 мм.
  • Высота 400 мм.
  • Вес 2500 кг.
  • Объем бетона 1,01 м3
  • Геометрический объем 1,008 м3
Цена: 21553 руб.
Подробнее
К 27-9 АтIVс
Колонны Серия 3.015-2/82
  • Длина 6300 мм.
  • Ширина 400 мм.
  • Высота 400 мм.
  • Вес 2500 кг.
  • Объем бетона 1,01 м3
  • Геометрический объем 1,008 м3
Цена: 21553 руб.
Подробнее
К 28-2 АтIVс
Колонны Серия 3.015-2/82
  • Длина 6300 мм.
  • Ширина 400 мм.
  • Высота 500 мм.
  • Вес 3200 кг.
  • Объем бетона 1,26 м3
  • Геометрический объем 1,26 м3
Цена: 26888 руб.
Подробнее
К 28-1
Колонны Серия 3.015-2/82
  • Длина 6300 мм.
  • Ширина 400 мм.
  • Высота 500 мм.
  • Вес 3200 кг.
  • Объем бетона 1,26 м3
  • Геометрический объем 1,26 м3
Цена: 26888 руб.
Подробнее
К 28-2
Колонны Серия 3.015-2/82
  • Длина 6300 мм.
  • Ширина 400 мм.
  • Высота 500 мм.
  • Вес 3200 кг.
  • Объем бетона 1,26 м3
  • Геометрический объем 1,26 м3
Цена: 26888 руб.
Подробнее
К 28-1 АтIVс
Колонны Серия 3.015-2/82
  • Длина 6300 мм.
  • Ширина 400 мм.
  • Высота 500 мм.
  • Вес 3200 кг.
  • Объем бетона 1,26 м3
  • Геометрический объем 1,26 м3
Цена: 26888 руб.
Подробнее
К 28-3
Колонны Серия 3.015-2/82
  • Длина 6300 мм.
  • Ширина 400 мм.
  • Высота 500 мм.
  • Вес 3200 кг.
  • Объем бетона 1,26 м3
  • Геометрический объем 1,26 м3
Цена: 26888 руб.
Подробнее
К 28-3 АтIVс
Колонны Серия 3.015-2/82
  • Длина 6300 мм.
  • Ширина 400 мм.
  • Высота 500 мм.
  • Вес 3200 кг.
  • Объем бетона 1,26 м3
  • Геометрический объем 1,26 м3
Цена: 26888 руб.
Подробнее
К 28-4
Колонны Серия 3.015-2/82
  • Длина 6300 мм.
  • Ширина 400 мм.
  • Высота 500 мм.
  • Вес 3200 кг.
  • Объем бетона 1,26 м3
  • Геометрический объем 1,26 м3
Цена: 26888 руб.
Подробнее
К 28-4 АтIVс
Колонны Серия 3.015-2/82
  • Длина 6300 мм.
  • Ширина 400 мм.
  • Высота 500 мм.
  • Вес 3200 кг.
  • Объем бетона 1,26 м3
  • Геометрический объем 1,26 м3
Цена: 26888 руб.
Подробнее
К 28-5
Колонны Серия 3.015-2/82
  • Длина 6300 мм.
  • Ширина 400 мм.
  • Высота 500 мм.
  • Вес 3200 кг.
  • Объем бетона 1,26 м3
  • Геометрический объем 1,26 м3
Цена: 26888 руб.
Подробнее
К 29-1
Колонны Серия 3.015-2/82
  • Длина 6300 мм.
  • Ширина 500 мм.
  • Высота 500 мм.
  • Вес 4000 кг.
  • Объем бетона 1,58 м3
  • Геометрический объем 1,575 м3
Цена: 33717 руб.
Подробнее
К 28-5 АтIVс
Колонны Серия 3.015-2/82
  • Длина 6300 мм.
  • Ширина 400 мм.
  • Высота 500 мм.
  • Вес 3200 кг.
  • Объем бетона 1,26 м3
  • Геометрический объем 1,26 м3
Цена: 26888 руб.
Подробнее
К 29-1 АтIVс
Колонны Серия 3.015-2/82
  • Длина 6300 мм.
  • Ширина 500 мм.
  • Высота 500 мм.
  • Вес 4000 кг.
  • Объем бетона 1,58 м3
  • Геометрический объем 1,575 м3
Цена: 33717 руб.
Подробнее
К 29-2
Колонны Серия 3.015-2/82
  • Длина 6300 мм.
  • Ширина 500 мм.
  • Высота 500 мм.
  • Вес 4000 кг.
  • Объем бетона 1,58 м3
  • Геометрический объем 1,575 м3
Цена: 33717 руб.
Подробнее
К 29-2 АтIVс
Колонны Серия 3.015-2/82
  • Длина 6300 мм.
  • Ширина 500 мм.
  • Высота 500 мм.
  • Вес 4000 кг.
  • Объем бетона 1,58 м3
  • Геометрический объем 1,575 м3
Цена: 33717 руб.
Подробнее
К 3-1
Колонны Серия 3.015-2/82
  • Длина 6600 мм.
  • Ширина 400 мм.
  • Высота 400 мм.
  • Вес 2600 кг.
  • Объем бетона 1,06 м3
  • Геометрический объем 1,056 м3
Цена: 22620 руб.
Подробнее
К 3-1 АтIVс
Колонны Серия 3.015-2/82
  • Длина 6600 мм.
  • Ширина 400 мм.
  • Высота 400 мм.
  • Вес 2600 кг.
  • Объем бетона 1,06 м3
  • Геометрический объем 1,056 м3
Цена: 22620 руб.
Подробнее
К 3-2
Колонны Серия 3.015-2/82
  • Длина 6600 мм.
  • Ширина 400 мм.
  • Высота 400 мм.
  • Вес 2600 кг.
  • Объем бетона 1,06 м3
  • Геометрический объем 1,056 м3
Цена: 22620 руб.
Подробнее
К 3-2 АтIVс
Колонны Серия 3.015-2/82
  • Длина 6600 мм.
  • Ширина 400 мм.
  • Высота 400 мм.
  • Вес 2600 кг.
  • Объем бетона 1,06 м3
  • Геометрический объем 1,056 м3
Цена: 22620 руб.
Подробнее
К 3-3
Колонны Серия 3.015-2/82
  • Длина 6600 мм.
  • Ширина 400 мм.
  • Высота 400 мм.
  • Вес 2600 кг.
  • Объем бетона 1,06 м3
  • Геометрический объем 1,056 м3
Цена: 22620 руб.
Подробнее
К 3-3 АтIVс
Колонны Серия 3.015-2/82
  • Длина 6600 мм.
  • Ширина 400 мм.
  • Высота 400 мм.
  • Вес 2600 кг.
  • Объем бетона 1,06 м3
  • Геометрический объем 1,056 м3
Цена: 22620 руб.
Подробнее
К 3-4
Колонны Серия 3.015-2/82
  • Длина 6600 мм.
  • Ширина 400 мм.
  • Высота 400 мм.
  • Вес 2600 кг.
  • Объем бетона 1,06 м3
  • Геометрический объем 1,056 м3
Цена: 22620 руб.
Подробнее
К 3-4 АтIVс
Колонны Серия 3.015-2/82
  • Длина 6600 мм.
  • Ширина 400 мм.
  • Высота 400 мм.
  • Вес 2600 кг.
  • Объем бетона 1,06 м3
  • Геометрический объем 1,056 м3
Цена: 22620 руб.
Подробнее
К 3-5
Колонны Серия 3.015-2/82
  • Длина 6600 мм.
  • Ширина 400 мм.
  • Высота 400 мм.
  • Вес 2600 кг.
  • Объем бетона 1,06 м3
  • Геометрический объем 1,056 м3
Цена: 22620 руб.
Подробнее
К 3-5 АтIVс
Колонны Серия 3.015-2/82
  • Длина 6600 мм.
  • Ширина 400 мм.
  • Высота 400 мм.
  • Вес 2600 кг.
  • Объем бетона 1,06 м3
  • Геометрический объем 1,056 м3
Цена: 22620 руб.
Подробнее
К 3-6
Колонны Серия 3.015-2/82
  • Длина 6600 мм.
  • Ширина 400 мм.
  • Высота 400 мм.
  • Вес 2600 кг.
  • Объем бетона 1,06 м3
  • Геометрический объем 1,056 м3
Цена: 22620 руб.
Подробнее
К 3-6 АтIVс
Колонны Серия 3.015-2/82
  • Длина 6600 мм.
  • Ширина 400 мм.
  • Высота 400 мм.
  • Вес 2600 кг.
  • Объем бетона 1,06 м3
  • Геометрический объем 1,056 м3
Цена: 22620 руб.
Подробнее
К 3-7
Колонны Серия 3.015-2/82
  • Длина 6600 мм.
  • Ширина 400 мм.
  • Высота 400 мм.
  • Вес 2600 кг.
  • Объем бетона 1,06 м3
  • Геометрический объем 1,056 м3
Цена: 22620 руб.
Подробнее
К 3-7 АтIVс
Колонны Серия 3.015-2/82
  • Длина 6600 мм.
  • Ширина 400 мм.
  • Высота 400 мм.
  • Вес 2600 кг.
  • Объем бетона 1,06 м3
  • Геометрический объем 1,056 м3
Цена: 22620 руб.
Подробнее
К 3-8
Колонны Серия 3.015-2/82
  • Длина 6600 мм.
  • Ширина 400 мм.
  • Высота 400 мм.
  • Вес 2600 кг.
  • Объем бетона 1,06 м3
  • Геометрический объем 1,056 м3
Цена: 22620 руб.
Подробнее
К 3-8 АтIVс
Колонны Серия 3.015-2/82
  • Длина 6600 мм.
  • Ширина 400 мм.
  • Высота 400 мм.
  • Вес 2600 кг.
  • Объем бетона 1,06 м3
  • Геометрический объем 1,056 м3
Цена: 22620 руб.
Подробнее
К 30-1
Колонны Серия 3.015-2/82
  • Длина 6900 мм.
  • Ширина 400 мм.
  • Высота 400 мм.
  • Вес 2800 кг.
  • Объем бетона 1,11 м3
  • Геометрический объем 1,104 м3
Цена: 23687 руб.
Подробнее
К 30-1 АтIVс
Колонны Серия 3.015-2/82
  • Длина 6900 мм.
  • Ширина 400 мм.
  • Высота 400 мм.
  • Вес 2800 кг.
  • Объем бетона 1,11 м3
  • Геометрический объем 1,104 м3
Цена: 23687 руб.
Подробнее
К 30-10
Колонны Серия 3.015-2/82
  • Длина 6900 мм.
  • Ширина 400 мм.
  • Высота 400 мм.
  • Вес 2800 кг.
  • Объем бетона 1,11 м3
  • Геометрический объем 1,104 м3
Цена: 23687 руб.
Подробнее
К 30-10 АтIVс
Колонны Серия 3.015-2/82
  • Длина 6900 мм.
  • Ширина 400 мм.
  • Высота 400 мм.
  • Вес 2800 кг.
  • Объем бетона 1,11 м3
  • Геометрический объем 1,104 м3
Цена: 23687 руб.
Подробнее

Уведомление о файлах cookie

Мы используем файлы cookie для улучшения вашего опыта просмотра и анализа трафика. Нажимая "Принять все", вы соглашаетесь с нашей политикой конфиденциальности и политикой обработки файлов cookie.

MAX Дзен Телеграм Вконтакте vk