mobile_sound +7 (930) 655-55-90

Железобетонные опоры линий электропередачи. Рабочие чертежи (Серия 3.015-2/82)

Поделиться:
Поделиться:

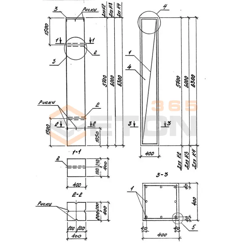
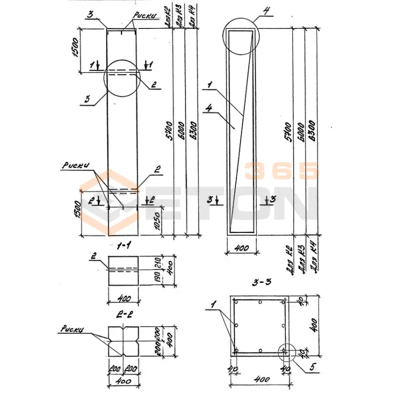
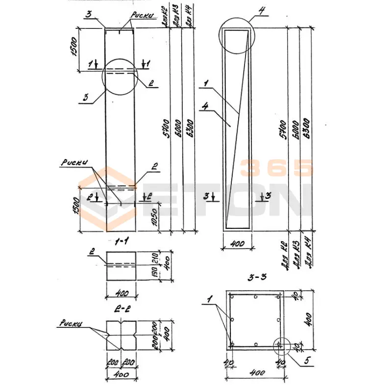
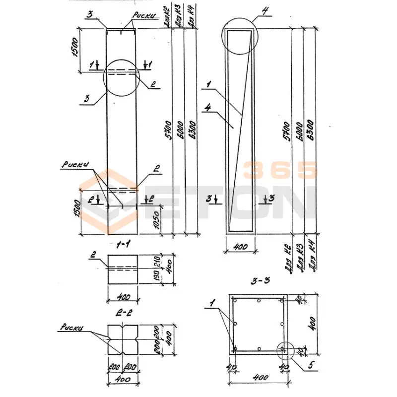
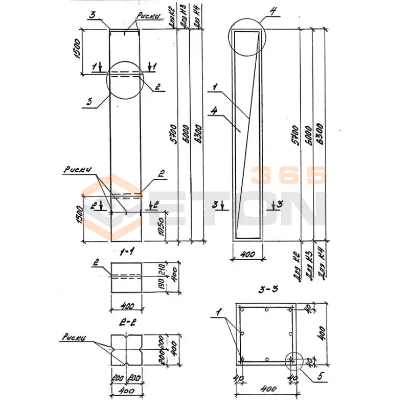
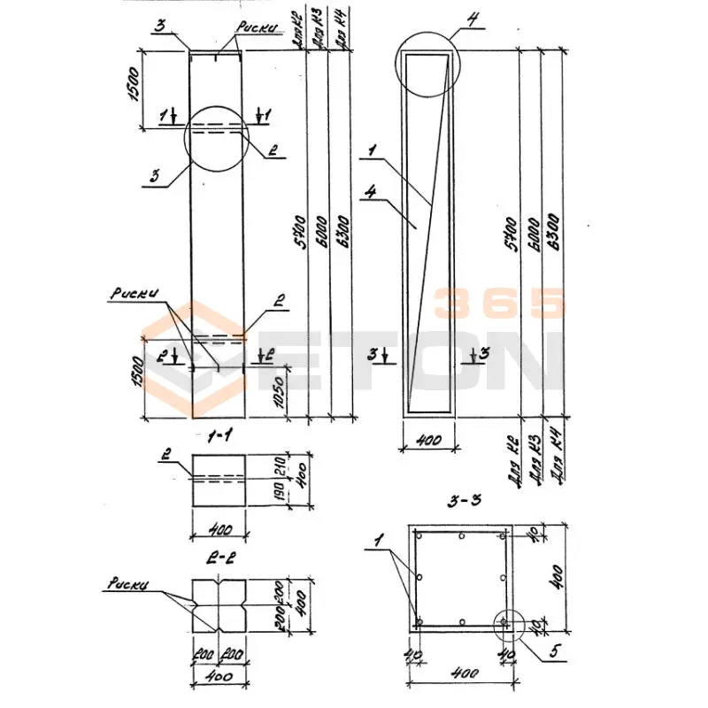
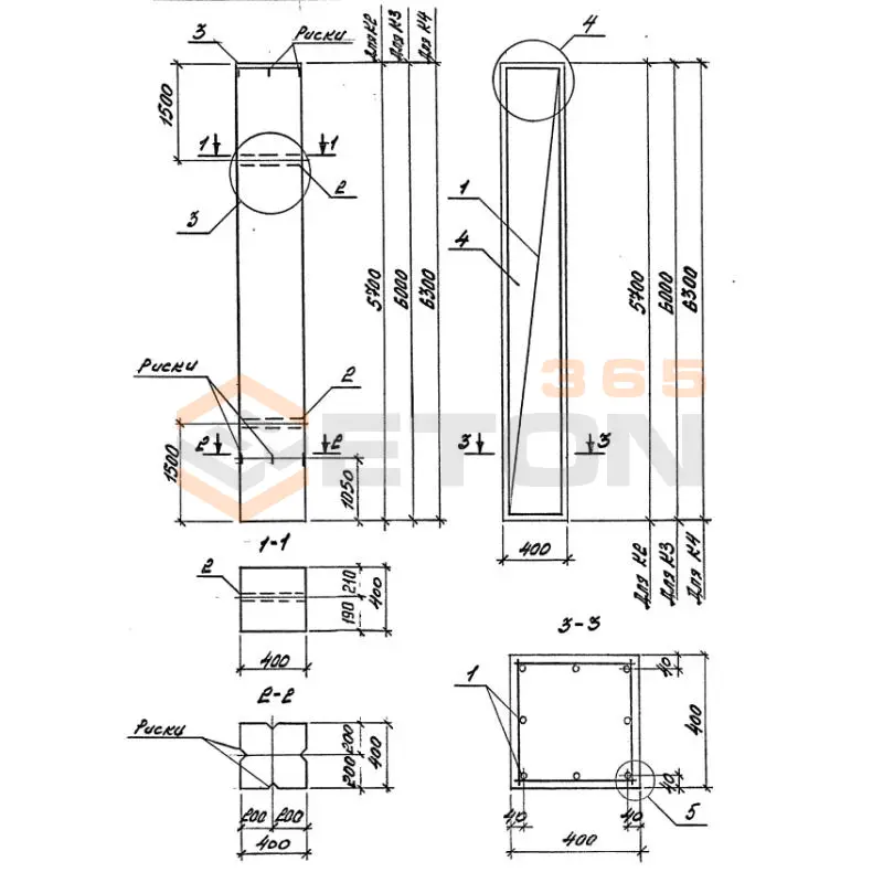
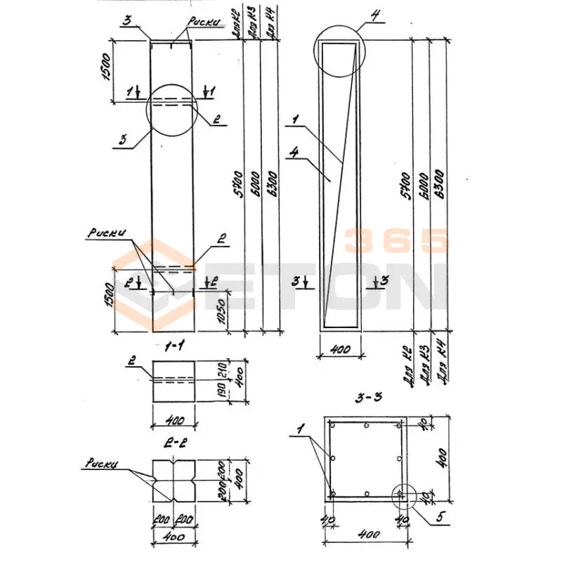
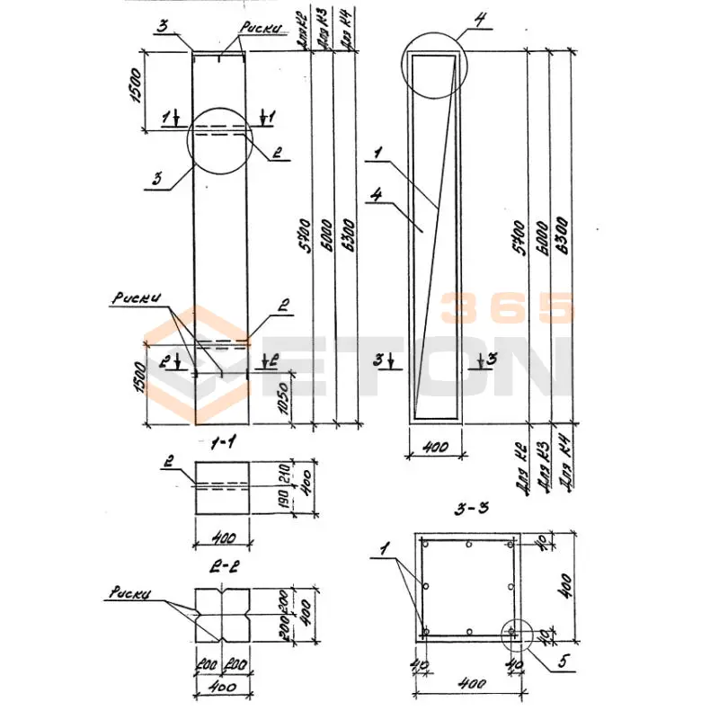
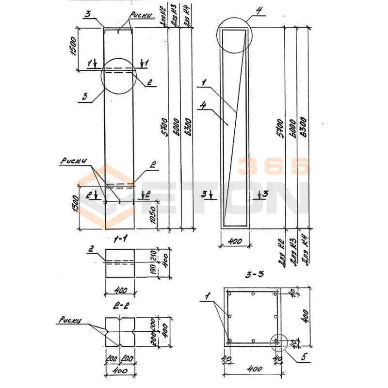
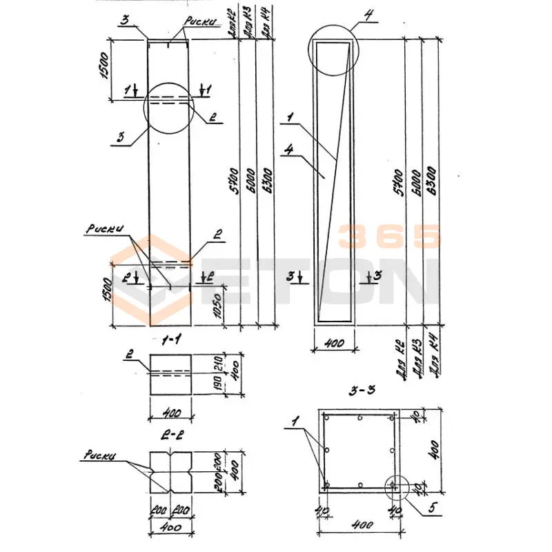
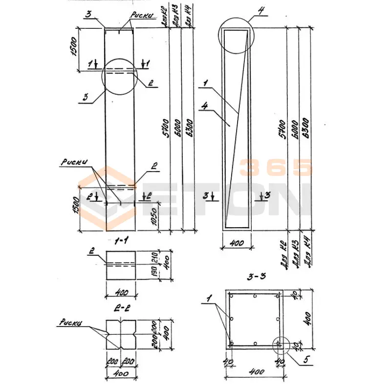
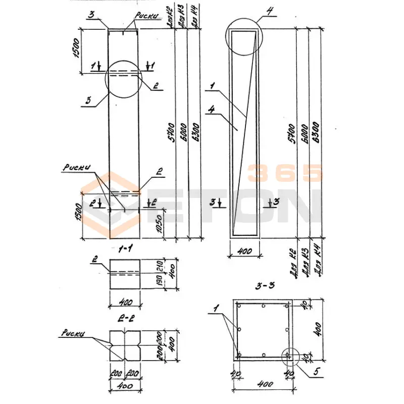
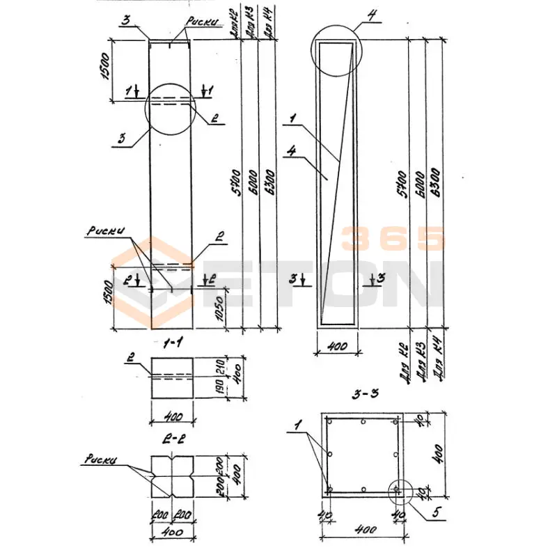
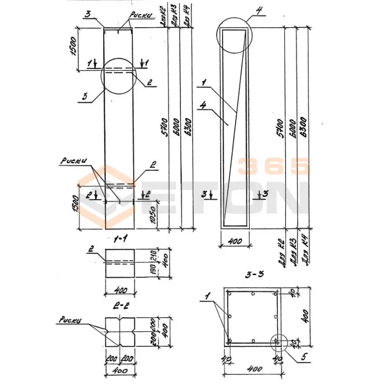
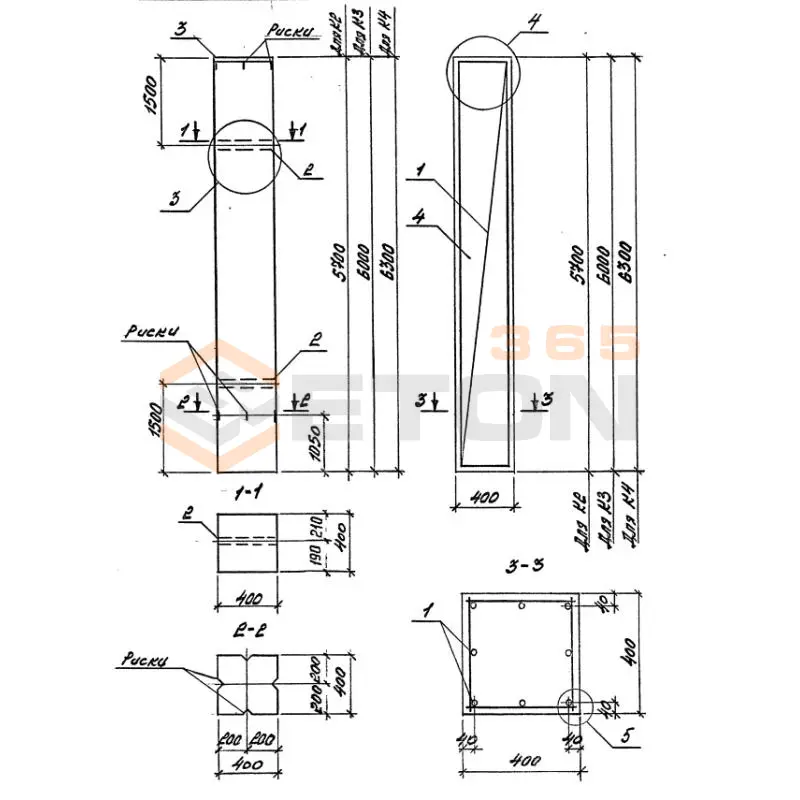
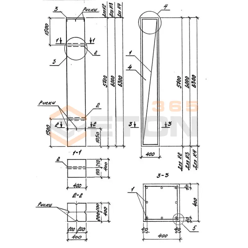
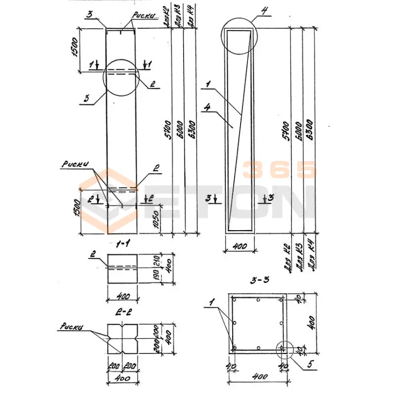
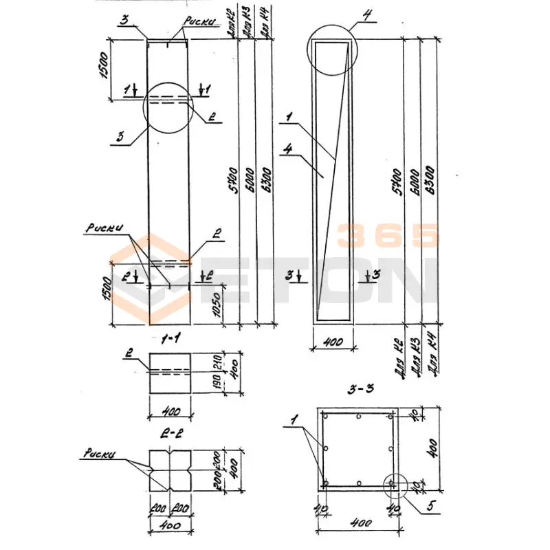
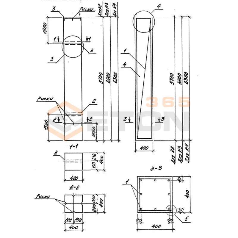
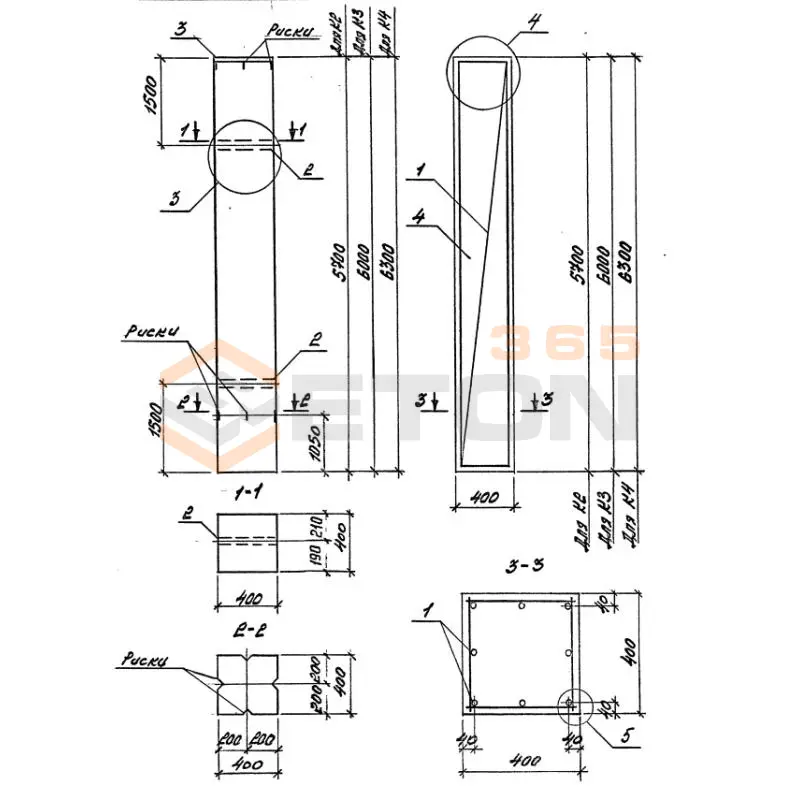
Документ Серия 3.015-2/82 описывает область применения, номенклатуру и ключевые требования, опираясь на действующие нормы и практику проектирования. Серия 3.015-2/82 является заменой ранее выпущенного нормативного документа и определяет и регламентирует перечень усовершенствованных конструкций унифицированных одноярусных эстакад. изделия и конструкции широко применяются при прокладке технологических трубопроводов и подразделяются на группы по несущей способности, что увеличивает возможность их использования в разнообразных типовых проектах. В номенклатурном перечне приведены индустриальные колонны и траверсы, а также стальные конструкции, с помощью которых можно собрать различного типа опоры под эстакады.

Файлы для скачивания:
picture_as_pdf

1466.pdf

29,903.4 KB

скачать
picture_as_pdf

1467.pdf

31,003.1 KB

скачать
picture_as_pdf

1468.pdf

5,635.5 KB

скачать
picture_as_pdf

1469.pdf

9,545.3 KB

скачать
picture_as_pdf

1470.pdf

19,629.9 KB

скачать
picture_as_pdf

1471.pdf

14,396.2 KB

скачать
picture_as_pdf

1472.pdf

8,612.5 KB

скачать
picture_as_pdf

1473.pdf

13,410.6 KB

скачать
Товары Серия 3.015-2/82 (60)
К 23-12 АтIVс
Колонны Серия 3.015-2/82
  • Длина 8000 мм.
  • Ширина 600 мм.
  • Высота 400 мм.
  • Вес 5600 кг.
  • Объем бетона 2,25 м3
  • Геометрический объем 1,92 м3
Цена: 48015 руб.
Подробнее
К 23-13 АтIVс
Колонны Серия 3.015-2/82
  • Длина 8000 мм.
  • Ширина 600 мм.
  • Высота 400 мм.
  • Вес 5600 кг.
  • Объем бетона 2,25 м3
  • Геометрический объем 1,92 м3
Цена: 48015 руб.
Подробнее
К 23-14 АтIVс
Колонны Серия 3.015-2/82
  • Длина 8000 мм.
  • Ширина 600 мм.
  • Высота 400 мм.
  • Вес 5600 кг.
  • Объем бетона 2,25 м3
  • Геометрический объем 1,92 м3
Цена: 48015 руб.
Подробнее
К 23-14
Колонны Серия 3.015-2/82
  • Длина 8000 мм.
  • Ширина 600 мм.
  • Высота 400 мм.
  • Вес 5600 кг.
  • Объем бетона 2,25 м3
  • Геометрический объем 1,92 м3
Цена: 48015 руб.
Подробнее
К 23-2 АтIVс
Колонны Серия 3.015-2/82
  • Длина 8000 мм.
  • Ширина 600 мм.
  • Высота 400 мм.
  • Вес 5600 кг.
  • Объем бетона 2,25 м3
  • Геометрический объем 1,92 м3
Цена: 48015 руб.
Подробнее
К 23-2
Колонны Серия 3.015-2/82
  • Длина 8000 мм.
  • Ширина 600 мм.
  • Высота 400 мм.
  • Вес 5600 кг.
  • Объем бетона 2,25 м3
  • Геометрический объем 1,92 м3
Цена: 48015 руб.
Подробнее
К 23-3
Колонны Серия 3.015-2/82
  • Длина 8000 мм.
  • Ширина 600 мм.
  • Высота 400 мм.
  • Вес 5600 кг.
  • Объем бетона 2,25 м3
  • Геометрический объем 1,92 м3
Цена: 48015 руб.
Подробнее
К 23-4
Колонны Серия 3.015-2/82
  • Длина 8000 мм.
  • Ширина 600 мм.
  • Высота 400 мм.
  • Вес 5600 кг.
  • Объем бетона 2,25 м3
  • Геометрический объем 1,92 м3
Цена: 48015 руб.
Подробнее
К 23-4 АтIVс
Колонны Серия 3.015-2/82
  • Длина 8000 мм.
  • Ширина 600 мм.
  • Высота 400 мм.
  • Вес 5600 кг.
  • Объем бетона 2,25 м3
  • Геометрический объем 1,92 м3
Цена: 48015 руб.
Подробнее
К 23-5 АтIVс
Колонны Серия 3.015-2/82
  • Длина 8000 мм.
  • Ширина 600 мм.
  • Высота 400 мм.
  • Вес 5600 кг.
  • Объем бетона 2,25 м3
  • Геометрический объем 1,92 м3
Цена: 48015 руб.
Подробнее
К 23-5
Колонны Серия 3.015-2/82
  • Длина 8000 мм.
  • Ширина 600 мм.
  • Высота 400 мм.
  • Вес 5600 кг.
  • Объем бетона 2,25 м3
  • Геометрический объем 1,92 м3
Цена: 48015 руб.
Подробнее
К 23-3 АтIVс
Колонны Серия 3.015-2/82
  • Длина 8000 мм.
  • Ширина 600 мм.
  • Высота 400 мм.
  • Вес 5600 кг.
  • Объем бетона 2,25 м3
  • Геометрический объем 1,92 м3
Цена: 48015 руб.
Подробнее
К 23-6
Колонны Серия 3.015-2/82
  • Длина 8000 мм.
  • Ширина 600 мм.
  • Высота 400 мм.
  • Вес 5600 кг.
  • Объем бетона 2,25 м3
  • Геометрический объем 1,92 м3
Цена: 48015 руб.
Подробнее
К 23-7
Колонны Серия 3.015-2/82
  • Длина 8000 мм.
  • Ширина 600 мм.
  • Высота 400 мм.
  • Вес 5600 кг.
  • Объем бетона 2,25 м3
  • Геометрический объем 1,92 м3
Цена: 48015 руб.
Подробнее
К 23-7 АтIVс
Колонны Серия 3.015-2/82
  • Длина 8000 мм.
  • Ширина 600 мм.
  • Высота 400 мм.
  • Вес 5600 кг.
  • Объем бетона 2,25 м3
  • Геометрический объем 1,92 м3
Цена: 48015 руб.
Подробнее
К 23-6 АтIVс
Колонны Серия 3.015-2/82
  • Длина 8000 мм.
  • Ширина 600 мм.
  • Высота 400 мм.
  • Вес 5600 кг.
  • Объем бетона 2,25 м3
  • Геометрический объем 1,92 м3
Цена: 48015 руб.
Подробнее
К 23-8 АтIVс
Колонны Серия 3.015-2/82
  • Длина 8000 мм.
  • Ширина 600 мм.
  • Высота 400 мм.
  • Вес 5600 кг.
  • Объем бетона 2,25 м3
  • Геометрический объем 1,92 м3
Цена: 48015 руб.
Подробнее
К 23-8
Колонны Серия 3.015-2/82
  • Длина 8000 мм.
  • Ширина 600 мм.
  • Высота 400 мм.
  • Вес 5600 кг.
  • Объем бетона 2,25 м3
  • Геометрический объем 1,92 м3
Цена: 48015 руб.
Подробнее
К 23-9
Колонны Серия 3.015-2/82
  • Длина 8000 мм.
  • Ширина 600 мм.
  • Высота 400 мм.
  • Вес 5600 кг.
  • Объем бетона 2,25 м3
  • Геометрический объем 1,92 м3
Цена: 48015 руб.
Подробнее
К 23-9 АтIVс
Колонны Серия 3.015-2/82
  • Длина 8000 мм.
  • Ширина 600 мм.
  • Высота 400 мм.
  • Вес 5600 кг.
  • Объем бетона 2,25 м3
  • Геометрический объем 1,92 м3
Цена: 48015 руб.
Подробнее
К 24-2
Колонны Серия 3.015-2/82
  • Длина 8000 мм.
  • Ширина 600 мм.
  • Высота 500 мм.
  • Вес 7000 кг.
  • Объем бетона 2,81 м3
  • Геометрический объем 2,4 м3
Цена: 59965 руб.
Подробнее
К 24-1
Колонны Серия 3.015-2/82
  • Длина 8000 мм.
  • Ширина 600 мм.
  • Высота 500 мм.
  • Вес 7000 кг.
  • Объем бетона 2,81 м3
  • Геометрический объем 2,4 м3
Цена: 59965 руб.
Подробнее
К 24-1 АтIVс
Колонны Серия 3.015-2/82
  • Длина 8000 мм.
  • Ширина 600 мм.
  • Высота 500 мм.
  • Вес 7000 кг.
  • Объем бетона 2,81 м3
  • Геометрический объем 2,4 м3
Цена: 59965 руб.
Подробнее
К 24-2 АтIVс
Колонны Серия 3.015-2/82
  • Длина 8000 мм.
  • Ширина 600 мм.
  • Высота 500 мм.
  • Вес 7000 кг.
  • Объем бетона 2,81 м3
  • Геометрический объем 2,4 м3
Цена: 59965 руб.
Подробнее
К 24-3
Колонны Серия 3.015-2/82
  • Длина 8000 мм.
  • Ширина 600 мм.
  • Высота 500 мм.
  • Вес 7000 кг.
  • Объем бетона 2,81 м3
  • Геометрический объем 2,4 м3
Цена: 59965 руб.
Подробнее
К 24-5
Колонны Серия 3.015-2/82
  • Длина 8000 мм.
  • Ширина 600 мм.
  • Высота 500 мм.
  • Вес 7000 кг.
  • Объем бетона 2,81 м3
  • Геометрический объем 2,4 м3
Цена: 59965 руб.
Подробнее
К 24-4
Колонны Серия 3.015-2/82
  • Длина 8000 мм.
  • Ширина 600 мм.
  • Высота 500 мм.
  • Вес 7000 кг.
  • Объем бетона 2,81 м3
  • Геометрический объем 2,4 м3
Цена: 59965 руб.
Подробнее
К 24-3 АтIVс
Колонны Серия 3.015-2/82
  • Длина 8000 мм.
  • Ширина 600 мм.
  • Высота 500 мм.
  • Вес 7000 кг.
  • Объем бетона 2,81 м3
  • Геометрический объем 2,4 м3
Цена: 59965 руб.
Подробнее
К 24-5 АтIVс
Колонны Серия 3.015-2/82
  • Длина 8000 мм.
  • Ширина 600 мм.
  • Высота 500 мм.
  • Вес 7000 кг.
  • Объем бетона 2,81 м3
  • Геометрический объем 2,4 м3
Цена: 59965 руб.
Подробнее
К 24-6
Колонны Серия 3.015-2/82
  • Длина 8000 мм.
  • Ширина 600 мм.
  • Высота 500 мм.
  • Вес 7000 кг.
  • Объем бетона 2,81 м3
  • Геометрический объем 2,4 м3
Цена: 59965 руб.
Подробнее
К 24-4 АтIVс
Колонны Серия 3.015-2/82
  • Длина 8000 мм.
  • Ширина 600 мм.
  • Высота 500 мм.
  • Вес 7000 кг.
  • Объем бетона 2,81 м3
  • Геометрический объем 2,4 м3
Цена: 59965 руб.
Подробнее
К 24-6 АтIVс
Колонны Серия 3.015-2/82
  • Длина 8000 мм.
  • Ширина 600 мм.
  • Высота 500 мм.
  • Вес 7000 кг.
  • Объем бетона 2,81 м3
  • Геометрический объем 2,4 м3
Цена: 59965 руб.
Подробнее
К 25-1
Колонны Серия 3.015-2/82
  • Длина 5700 мм.
  • Ширина 400 мм.
  • Высота 400 мм.
  • Вес 2300 кг.
  • Объем бетона 0,91 м3
  • Геометрический объем 0,912 м3
Цена: 19419 руб.
Подробнее
К 25-10
Колонны Серия 3.015-2/82
  • Длина 5700 мм.
  • Ширина 400 мм.
  • Высота 400 мм.
  • Вес 2300 кг.
  • Объем бетона 0,91 м3
  • Геометрический объем 0,912 м3
Цена: 19419 руб.
Подробнее
К 25-11
Колонны Серия 3.015-2/82
  • Длина 5700 мм.
  • Ширина 400 мм.
  • Высота 400 мм.
  • Вес 2300 кг.
  • Объем бетона 0,91 м3
  • Геометрический объем 0,912 м3
Цена: 19419 руб.
Подробнее
К 25-10 АтIVс
Колонны Серия 3.015-2/82
  • Длина 5700 мм.
  • Ширина 400 мм.
  • Высота 400 мм.
  • Вес 2300 кг.
  • Объем бетона 0,91 м3
  • Геометрический объем 0,912 м3
Цена: 19419 руб.
Подробнее
К 25-1 АтIVс
Колонны Серия 3.015-2/82
  • Длина 5700 мм.
  • Ширина 400 мм.
  • Высота 400 мм.
  • Вес 2300 кг.
  • Объем бетона 0,91 м3
  • Геометрический объем 0,912 м3
Цена: 19419 руб.
Подробнее
К 25-13 АтIVс
Колонны Серия 3.015-2/82
  • Длина 5700 мм.
  • Ширина 400 мм.
  • Высота 400 мм.
  • Вес 2300 кг.
  • Объем бетона 0,91 м3
  • Геометрический объем 0,912 м3
Цена: 19419 руб.
Подробнее
К 25-11 АтIVс
Колонны Серия 3.015-2/82
  • Длина 5700 мм.
  • Ширина 400 мм.
  • Высота 400 мм.
  • Вес 2300 кг.
  • Объем бетона 0,91 м3
  • Геометрический объем 0,912 м3
Цена: 19419 руб.
Подробнее
К 25-12
Колонны Серия 3.015-2/82
  • Длина 5700 мм.
  • Ширина 400 мм.
  • Высота 400 мм.
  • Вес 2300 кг.
  • Объем бетона 0,91 м3
  • Геометрический объем 0,912 м3
Цена: 19419 руб.
Подробнее
К 25-12 АтIVс
Колонны Серия 3.015-2/82
  • Длина 5700 мм.
  • Ширина 400 мм.
  • Высота 400 мм.
  • Вес 2300 кг.
  • Объем бетона 0,91 м3
  • Геометрический объем 0,912 м3
Цена: 19419 руб.
Подробнее
К 25-2
Колонны Серия 3.015-2/82
  • Длина 5700 мм.
  • Ширина 400 мм.
  • Высота 400 мм.
  • Вес 2300 кг.
  • Объем бетона 0,91 м3
  • Геометрический объем 0,912 м3
Цена: 19419 руб.
Подробнее
К 25-13
Колонны Серия 3.015-2/82
  • Длина 5700 мм.
  • Ширина 400 мм.
  • Высота 400 мм.
  • Вес 2300 кг.
  • Объем бетона 0,91 м3
  • Геометрический объем 0,912 м3
Цена: 19419 руб.
Подробнее
К 25-3
Колонны Серия 3.015-2/82
  • Длина 5700 мм.
  • Ширина 400 мм.
  • Высота 400 мм.
  • Вес 2300 кг.
  • Объем бетона 0,91 м3
  • Геометрический объем 0,912 м3
Цена: 19419 руб.
Подробнее
К 25-2 АтIVс
Колонны Серия 3.015-2/82
  • Длина 5700 мм.
  • Ширина 400 мм.
  • Высота 400 мм.
  • Вес 2300 кг.
  • Объем бетона 0,91 м3
  • Геометрический объем 0,912 м3
Цена: 19419 руб.
Подробнее
К 25-4 АтIVс
Колонны Серия 3.015-2/82
  • Длина 5700 мм.
  • Ширина 400 мм.
  • Высота 400 мм.
  • Вес 2300 кг.
  • Объем бетона 0,91 м3
  • Геометрический объем 0,912 м3
Цена: 19419 руб.
Подробнее
К 25-3 АтIVс
Колонны Серия 3.015-2/82
  • Длина 5700 мм.
  • Ширина 400 мм.
  • Высота 400 мм.
  • Вес 2300 кг.
  • Объем бетона 0,91 м3
  • Геометрический объем 0,912 м3
Цена: 19419 руб.
Подробнее
К 25-5
Колонны Серия 3.015-2/82
  • Длина 5700 мм.
  • Ширина 400 мм.
  • Высота 400 мм.
  • Вес 2300 кг.
  • Объем бетона 0,91 м3
  • Геометрический объем 0,912 м3
Цена: 19419 руб.
Подробнее
К 25-4
Колонны Серия 3.015-2/82
  • Длина 5700 мм.
  • Ширина 400 мм.
  • Высота 400 мм.
  • Вес 2300 кг.
  • Объем бетона 0,91 м3
  • Геометрический объем 0,912 м3
Цена: 19419 руб.
Подробнее
К 25-7 АтIVс
Колонны Серия 3.015-2/82
  • Длина 5700 мм.
  • Ширина 400 мм.
  • Высота 400 мм.
  • Вес 2300 кг.
  • Объем бетона 0,91 м3
  • Геометрический объем 0,912 м3
Цена: 19419 руб.
Подробнее
К 25-7
Колонны Серия 3.015-2/82
  • Длина 5700 мм.
  • Ширина 400 мм.
  • Высота 400 мм.
  • Вес 2300 кг.
  • Объем бетона 0,91 м3
  • Геометрический объем 0,912 м3
Цена: 19419 руб.
Подробнее
К 25-5 АтIVс
Колонны Серия 3.015-2/82
  • Длина 5700 мм.
  • Ширина 400 мм.
  • Высота 400 мм.
  • Вес 2300 кг.
  • Объем бетона 0,91 м3
  • Геометрический объем 0,912 м3
Цена: 19419 руб.
Подробнее
К 25-6 АтIVс
Колонны Серия 3.015-2/82
  • Длина 5700 мм.
  • Ширина 400 мм.
  • Высота 400 мм.
  • Вес 2300 кг.
  • Объем бетона 0,91 м3
  • Геометрический объем 0,912 м3
Цена: 19419 руб.
Подробнее
К 25-8
Колонны Серия 3.015-2/82
  • Длина 5700 мм.
  • Ширина 400 мм.
  • Высота 400 мм.
  • Вес 2300 кг.
  • Объем бетона 0,91 м3
  • Геометрический объем 0,912 м3
Цена: 19419 руб.
Подробнее
К 25-6
Колонны Серия 3.015-2/82
  • Длина 5700 мм.
  • Ширина 400 мм.
  • Высота 400 мм.
  • Вес 2300 кг.
  • Объем бетона 0,91 м3
  • Геометрический объем 0,912 м3
Цена: 19419 руб.
Подробнее
К 25-9
Колонны Серия 3.015-2/82
  • Длина 5700 мм.
  • Ширина 400 мм.
  • Высота 400 мм.
  • Вес 2300 кг.
  • Объем бетона 0,91 м3
  • Геометрический объем 0,912 м3
Цена: 19419 руб.
Подробнее
К 26-1
Колонны Серия 3.015-2/82
  • Длина 5700 мм.
  • Ширина 400 мм.
  • Высота 500 мм.
  • Вес 2900 кг.
  • Объем бетона 1,14 м3
  • Геометрический объем 1,14 м3
Цена: 24328 руб.
Подробнее
К 25-8 АтIVс
Колонны Серия 3.015-2/82
  • Длина 5700 мм.
  • Ширина 400 мм.
  • Высота 400 мм.
  • Вес 2300 кг.
  • Объем бетона 0,91 м3
  • Геометрический объем 0,912 м3
Цена: 19419 руб.
Подробнее
К 25-9 АтIVс
Колонны Серия 3.015-2/82
  • Длина 5700 мм.
  • Ширина 400 мм.
  • Высота 400 мм.
  • Вес 2300 кг.
  • Объем бетона 0,91 м3
  • Геометрический объем 0,912 м3
Цена: 19419 руб.
Подробнее
К 26-1 АтIVс
Колонны Серия 3.015-2/82
  • Длина 5700 мм.
  • Ширина 400 мм.
  • Высота 500 мм.
  • Вес 2900 кг.
  • Объем бетона 1,14 м3
  • Геометрический объем 1,14 м3
Цена: 24328 руб.
Подробнее

Уведомление о файлах cookie

Мы используем файлы cookie для улучшения вашего опыта просмотра и анализа трафика. Нажимая "Принять все", вы соглашаетесь с нашей политикой конфиденциальности и политикой обработки файлов cookie.

MAX Дзен Телеграм Вконтакте vk