mobile_sound +7 (930) 655-55-90

Типовые конструкции и железобетонные изделия. Рабочие чертежи (Серия 1.462-1)

Поделиться:
Поделиться:

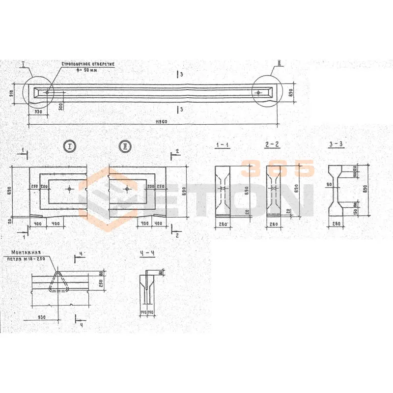
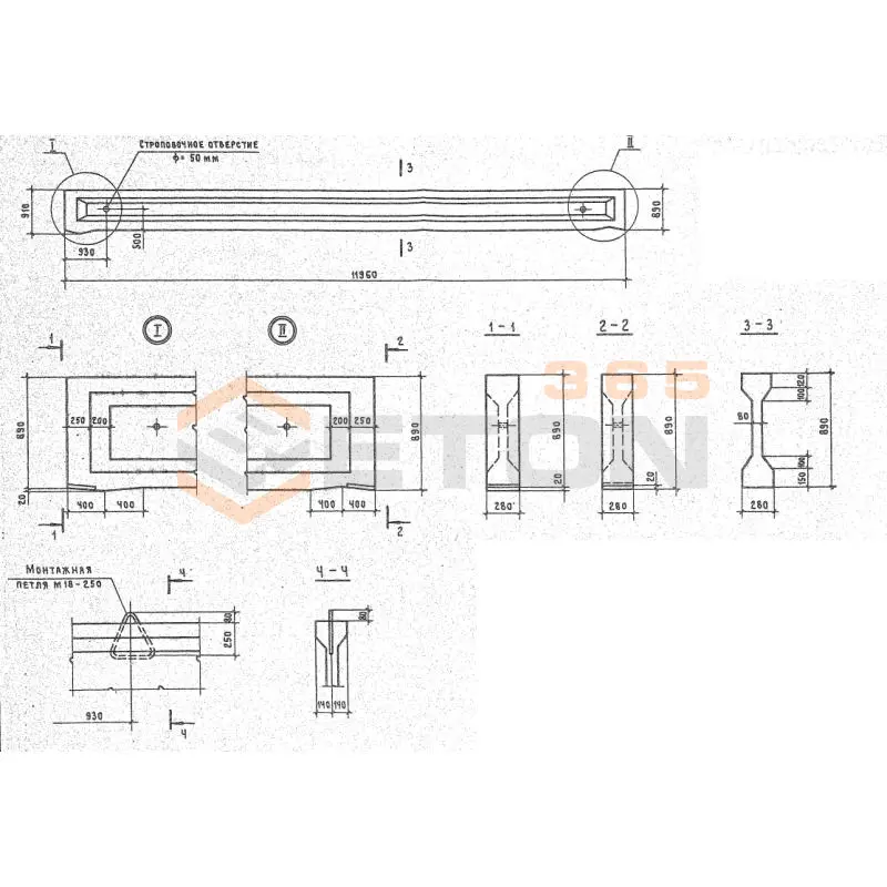
Документ Серия 1.462-1 описывает область применения, номенклатуру и ключевые требования, опираясь на действующие нормы и практику проектирования. Для покрытий зданий и сооружений различного назначения следует использовать высокопрочные конструкции, способные справляться с возлагаемыми ветровыми и снеговыми нагрузками. Среди таких изделия и конструкции в Серии 1.462-1 были специально разработаны балки с параллельными поясами, которые имеют пролеты равные 12 метрам. Предварительно напряженные конструкции были запроектированы институтом ПРОМСТРОЙПРОЕКТ при участии НИИЖБ.

Файлы для скачивания:
picture_as_pdf

1242.pdf

8,309.1 KB

скачать
picture_as_pdf

1243.pdf

1,495.5 KB

скачать
picture_as_pdf

1244.pdf

6,690.2 KB

скачать
picture_as_pdf

1245.pdf

1,483.6 KB

скачать
picture_as_pdf

1246.pdf

1,467.0 KB

скачать
Товары Серия 1.462-1 (60)
1БСО 12-1 АIV п
Балки железобетонные Серия 1.462.1-1/88 и 1.462-1
  • Длина 11960 мм.
  • Ширина 280 мм.
  • Высота 890 мм.
  • Вес 5000 кг.
  • Объем бетона 2 м3
  • Геометрический объем 2,9804 м3
Цена: 97000 руб.
Подробнее
1БСО 12-1 АтIVк п
Балки железобетонные Серия 1.462.1-1/88 и 1.462-1
  • Длина 11960 мм.
  • Ширина 280 мм.
  • Высота 890 мм.
  • Вес 5000 кг.
  • Объем бетона 2 м3
  • Геометрический объем 2,9804 м3
Цена: 97000 руб.
Подробнее
1БСО 12-1 АтIVс
Балки железобетонные Серия 1.462.1-1/88 и 1.462-1
  • Длина 11960 мм.
  • Ширина 280 мм.
  • Высота 890 мм.
  • Вес 5000 кг.
  • Объем бетона 2 м3
  • Геометрический объем 2,9804 м3
Цена: 97000 руб.
Подробнее
1БСО 12-1 АVI
Балки железобетонные Серия 1.462.1-1/88 и 1.462-1
  • Длина 11960 мм.
  • Ширина 280 мм.
  • Высота 890 мм.
  • Вес 5000 кг.
  • Объем бетона 2 м3
  • Геометрический объем 2,9804 м3
Цена: 97000 руб.
Подробнее
1БСО 12-1 АтIVк н
Балки железобетонные Серия 1.462.1-1/88 и 1.462-1
  • Длина 11960 мм.
  • Ширина 280 мм.
  • Высота 890 мм.
  • Вес 5000 кг.
  • Объем бетона 2 м3
  • Геометрический объем 2,9804 м3
Цена: 97000 руб.
Подробнее
1БСО 12-1 АтIVс н
Балки железобетонные Серия 1.462.1-1/88 и 1.462-1
  • Длина 11960 мм.
  • Ширина 280 мм.
  • Высота 890 мм.
  • Вес 5000 кг.
  • Объем бетона 2 м3
  • Геометрический объем 2,9804 м3
Цена: 97000 руб.
Подробнее
1БСО 12-1 АтV
Балки железобетонные Серия 1.462.1-1/88 и 1.462-1
  • Длина 11960 мм.
  • Ширина 280 мм.
  • Высота 890 мм.
  • Вес 5000 кг.
  • Объем бетона 2 м3
  • Геометрический объем 2,9804 м3
Цена: 97000 руб.
Подробнее
1БСО 12-1 АтVI
Балки железобетонные Серия 1.462.1-1/88 и 1.462-1
  • Длина 11960 мм.
  • Ширина 280 мм.
  • Высота 890 мм.
  • Вес 5000 кг.
  • Объем бетона 2 м3
  • Геометрический объем 2,9804 м3
Цена: 97000 руб.
Подробнее
1БСО 12-1 АтVIк н
Балки железобетонные Серия 1.462.1-1/88 и 1.462-1
  • Длина 11960 мм.
  • Ширина 280 мм.
  • Высота 890 мм.
  • Вес 5000 кг.
  • Объем бетона 2 м3
  • Геометрический объем 2,9804 м3
Цена: 97000 руб.
Подробнее
1БСО 12-1 АтVск н
Балки железобетонные Серия 1.462.1-1/88 и 1.462-1
  • Длина 11960 мм.
  • Ширина 280 мм.
  • Высота 890 мм.
  • Вес 5000 кг.
  • Объем бетона 2 м3
  • Геометрический объем 2,9804 м3
Цена: 97000 руб.
Подробнее
1БСО 12-1 к7
Балки железобетонные Серия 1.462.1-1/88 и 1.462-1
  • Длина 11960 мм.
  • Ширина 280 мм.
  • Высота 890 мм.
  • Вес 5000 кг.
  • Объем бетона 2 м3
  • Геометрический объем 2,9804 м3
Цена: 97000 руб.
Подробнее
1БСО 12-2 АIIIв
Балки железобетонные Серия 1.462.1-1/88 и 1.462-1
  • Длина 11960 мм.
  • Ширина 280 мм.
  • Высота 890 мм.
  • Вес 5000 кг.
  • Объем бетона 2 м3
  • Геометрический объем 2,9804 м3
Цена: 97000 руб.
Подробнее
1БСО 12-2 АIIIв н
Балки железобетонные Серия 1.462.1-1/88 и 1.462-1
  • Длина 11960 мм.
  • Ширина 280 мм.
  • Высота 890 мм.
  • Вес 5000 кг.
  • Объем бетона 2 м3
  • Геометрический объем 2,9804 м3
Цена: 97000 руб.
Подробнее
1БСО 12-2 АIIIв п
Балки железобетонные Серия 1.462.1-1/88 и 1.462-1
  • Длина 11960 мм.
  • Ширина 280 мм.
  • Высота 890 мм.
  • Вес 5000 кг.
  • Объем бетона 2 м3
  • Геометрический объем 2,9804 м3
Цена: 97000 руб.
Подробнее
1БСО 12-2 АIV н
Балки железобетонные Серия 1.462.1-1/88 и 1.462-1
  • Длина 11960 мм.
  • Ширина 280 мм.
  • Высота 890 мм.
  • Вес 5000 кг.
  • Объем бетона 2 м3
  • Геометрический объем 2,9804 м3
Цена: 97000 руб.
Подробнее
1БСО 12-2 АIV
Балки железобетонные Серия 1.462.1-1/88 и 1.462-1
  • Длина 11960 мм.
  • Ширина 280 мм.
  • Высота 890 мм.
  • Вес 5000 кг.
  • Объем бетона 2 м3
  • Геометрический объем 2,9804 м3
Цена: 97000 руб.
Подробнее
1БСО 12-2 АIV п
Балки железобетонные Серия 1.462.1-1/88 и 1.462-1
  • Длина 11960 мм.
  • Ширина 280 мм.
  • Высота 890 мм.
  • Вес 5000 кг.
  • Объем бетона 2 м3
  • Геометрический объем 2,9804 м3
Цена: 97000 руб.
Подробнее
1БСО 12-2 АV
Балки железобетонные Серия 1.462.1-1/88 и 1.462-1
  • Длина 11960 мм.
  • Ширина 280 мм.
  • Высота 890 мм.
  • Вес 5000 кг.
  • Объем бетона 2 м3
  • Геометрический объем 2,9804 м3
Цена: 97000 руб.
Подробнее
1БСО 12-2 АVI
Балки железобетонные Серия 1.462.1-1/88 и 1.462-1
  • Длина 11960 мм.
  • Ширина 280 мм.
  • Высота 890 мм.
  • Вес 5000 кг.
  • Объем бетона 2 м3
  • Геометрический объем 2,9804 м3
Цена: 97000 руб.
Подробнее
1БСО 12-2 АтIVк н
Балки железобетонные Серия 1.462.1-1/88 и 1.462-1
  • Длина 11960 мм.
  • Ширина 280 мм.
  • Высота 890 мм.
  • Вес 5000 кг.
  • Объем бетона 2 м3
  • Геометрический объем 2,9804 м3
Цена: 97000 руб.
Подробнее
1БСО 12-2 АтIVк п
Балки железобетонные Серия 1.462.1-1/88 и 1.462-1
  • Длина 11960 мм.
  • Ширина 280 мм.
  • Высота 890 мм.
  • Вес 5000 кг.
  • Объем бетона 2 м3
  • Геометрический объем 2,9804 м3
Цена: 97000 руб.
Подробнее
1БСО 12-2 АтIVс н
Балки железобетонные Серия 1.462.1-1/88 и 1.462-1
  • Длина 11960 мм.
  • Ширина 280 мм.
  • Высота 890 мм.
  • Вес 5000 кг.
  • Объем бетона 2 м3
  • Геометрический объем 2,9804 м3
Цена: 97000 руб.
Подробнее
1БСО 12-2 АтIVс
Балки железобетонные Серия 1.462.1-1/88 и 1.462-1
  • Длина 11960 мм.
  • Ширина 280 мм.
  • Высота 890 мм.
  • Вес 5000 кг.
  • Объем бетона 2 м3
  • Геометрический объем 2,9804 м3
Цена: 97000 руб.
Подробнее
1БСО 12-2 АтVI
Балки железобетонные Серия 1.462.1-1/88 и 1.462-1
  • Длина 11960 мм.
  • Ширина 280 мм.
  • Высота 890 мм.
  • Вес 5000 кг.
  • Объем бетона 2 м3
  • Геометрический объем 2,9804 м3
Цена: 97000 руб.
Подробнее
1БСО 12-2 АтV
Балки железобетонные Серия 1.462.1-1/88 и 1.462-1
  • Длина 11960 мм.
  • Ширина 280 мм.
  • Высота 890 мм.
  • Вес 5000 кг.
  • Объем бетона 2 м3
  • Геометрический объем 2,9804 м3
Цена: 97000 руб.
Подробнее
1БСО 12-2 АтVIк н
Балки железобетонные Серия 1.462.1-1/88 и 1.462-1
  • Длина 11960 мм.
  • Ширина 280 мм.
  • Высота 890 мм.
  • Вес 5000 кг.
  • Объем бетона 2 м3
  • Геометрический объем 2,9804 м3
Цена: 97000 руб.
Подробнее
1БСО 12-2 АтVск н
Балки железобетонные Серия 1.462.1-1/88 и 1.462-1
  • Длина 11960 мм.
  • Ширина 280 мм.
  • Высота 890 мм.
  • Вес 5000 кг.
  • Объем бетона 2 м3
  • Геометрический объем 2,9804 м3
Цена: 97000 руб.
Подробнее
1БСО 12-2 к7
Балки железобетонные Серия 1.462.1-1/88 и 1.462-1
  • Длина 11960 мм.
  • Ширина 280 мм.
  • Высота 890 мм.
  • Вес 5000 кг.
  • Объем бетона 2 м3
  • Геометрический объем 2,9804 м3
Цена: 97000 руб.
Подробнее
1БСО 12-3 АIIIв
Балки железобетонные Серия 1.462.1-1/88 и 1.462-1
  • Длина 11960 мм.
  • Ширина 280 мм.
  • Высота 890 мм.
  • Вес 5000 кг.
  • Объем бетона 2 м3
  • Геометрический объем 2,9804 м3
Цена: 97000 руб.
Подробнее
1БСО 12-3 АIIIв н
Балки железобетонные Серия 1.462.1-1/88 и 1.462-1
  • Длина 11960 мм.
  • Ширина 280 мм.
  • Высота 890 мм.
  • Вес 5000 кг.
  • Объем бетона 2 м3
  • Геометрический объем 2,9804 м3
Цена: 97000 руб.
Подробнее
1БСО 12-3 АIIIв п
Балки железобетонные Серия 1.462.1-1/88 и 1.462-1
  • Длина 11960 мм.
  • Ширина 280 мм.
  • Высота 890 мм.
  • Вес 5000 кг.
  • Объем бетона 2 м3
  • Геометрический объем 2,9804 м3
Цена: 97000 руб.
Подробнее
1БСО 12-3 АIV
Балки железобетонные Серия 1.462.1-1/88 и 1.462-1
  • Длина 11960 мм.
  • Ширина 280 мм.
  • Высота 890 мм.
  • Вес 5000 кг.
  • Объем бетона 2 м3
  • Геометрический объем 2,9804 м3
Цена: 97000 руб.
Подробнее
1БСО 12-3 АIV н
Балки железобетонные Серия 1.462.1-1/88 и 1.462-1
  • Длина 11960 мм.
  • Ширина 280 мм.
  • Высота 890 мм.
  • Вес 5000 кг.
  • Объем бетона 2 м3
  • Геометрический объем 2,9804 м3
Цена: 97000 руб.
Подробнее
1БСО 12-3 АIV п
Балки железобетонные Серия 1.462.1-1/88 и 1.462-1
  • Длина 11960 мм.
  • Ширина 280 мм.
  • Высота 890 мм.
  • Вес 5000 кг.
  • Объем бетона 2 м3
  • Геометрический объем 2,9804 м3
Цена: 97000 руб.
Подробнее
1БСО 12-3 АV
Балки железобетонные Серия 1.462.1-1/88 и 1.462-1
  • Длина 11960 мм.
  • Ширина 280 мм.
  • Высота 890 мм.
  • Вес 5000 кг.
  • Объем бетона 2 м3
  • Геометрический объем 2,9804 м3
Цена: 97000 руб.
Подробнее
1БСО 12-3 АVI
Балки железобетонные Серия 1.462.1-1/88 и 1.462-1
  • Длина 11960 мм.
  • Ширина 280 мм.
  • Высота 890 мм.
  • Вес 5000 кг.
  • Объем бетона 2 м3
  • Геометрический объем 2,9804 м3
Цена: 97000 руб.
Подробнее
1БСО 12-3 АтIVк н
Балки железобетонные Серия 1.462.1-1/88 и 1.462-1
  • Длина 11960 мм.
  • Ширина 280 мм.
  • Высота 890 мм.
  • Вес 5000 кг.
  • Объем бетона 2 м3
  • Геометрический объем 2,9804 м3
Цена: 97000 руб.
Подробнее
1БСО 12-3 АтIVк п
Балки железобетонные Серия 1.462.1-1/88 и 1.462-1
  • Длина 11960 мм.
  • Ширина 280 мм.
  • Высота 890 мм.
  • Вес 5000 кг.
  • Объем бетона 2 м3
  • Геометрический объем 2,9804 м3
Цена: 97000 руб.
Подробнее
1БСО 12-3 АтIVс
Балки железобетонные Серия 1.462.1-1/88 и 1.462-1
  • Длина 11960 мм.
  • Ширина 280 мм.
  • Высота 890 мм.
  • Вес 5000 кг.
  • Объем бетона 2 м3
  • Геометрический объем 2,9804 м3
Цена: 97000 руб.
Подробнее
1БСО 12-3 АтV
Балки железобетонные Серия 1.462.1-1/88 и 1.462-1
  • Длина 11960 мм.
  • Ширина 280 мм.
  • Высота 890 мм.
  • Вес 5000 кг.
  • Объем бетона 2 м3
  • Геометрический объем 2,9804 м3
Цена: 97000 руб.
Подробнее
1БСО 12-3 АтIVс н
Балки железобетонные Серия 1.462.1-1/88 и 1.462-1
  • Длина 11960 мм.
  • Ширина 280 мм.
  • Высота 890 мм.
  • Вес 5000 кг.
  • Объем бетона 2 м3
  • Геометрический объем 2,9804 м3
Цена: 97000 руб.
Подробнее
1БСО 12-3 АтVI
Балки железобетонные Серия 1.462.1-1/88 и 1.462-1
  • Длина 11960 мм.
  • Ширина 280 мм.
  • Высота 890 мм.
  • Вес 5000 кг.
  • Объем бетона 2 м3
  • Геометрический объем 2,9804 м3
Цена: 97000 руб.
Подробнее
1БСО 12-3 АтVIк н
Балки железобетонные Серия 1.462.1-1/88 и 1.462-1
  • Длина 11960 мм.
  • Ширина 280 мм.
  • Высота 890 мм.
  • Вес 5000 кг.
  • Объем бетона 2 м3
  • Геометрический объем 2,9804 м3
Цена: 97000 руб.
Подробнее
1БСО 12-3 АтVск н
Балки железобетонные Серия 1.462.1-1/88 и 1.462-1
  • Длина 11960 мм.
  • Ширина 280 мм.
  • Высота 890 мм.
  • Вес 5000 кг.
  • Объем бетона 2 м3
  • Геометрический объем 2,9804 м3
Цена: 97000 руб.
Подробнее
1БСО 12-3 к7
Балки железобетонные Серия 1.462.1-1/88 и 1.462-1
  • Длина 11960 мм.
  • Ширина 280 мм.
  • Высота 890 мм.
  • Вес 5000 кг.
  • Объем бетона 2 м3
  • Геометрический объем 2,9804 м3
Цена: 97000 руб.
Подробнее
1БСО 12-4 АIIIв
Балки железобетонные Серия 1.462.1-1/88 и 1.462-1
  • Длина 11960 мм.
  • Ширина 280 мм.
  • Высота 890 мм.
  • Вес 5000 кг.
  • Объем бетона 2 м3
  • Геометрический объем 2,9804 м3
Цена: 97000 руб.
Подробнее
1БСО 12-4 АIIIв н
Балки железобетонные Серия 1.462.1-1/88 и 1.462-1
  • Длина 11960 мм.
  • Ширина 280 мм.
  • Высота 890 мм.
  • Вес 5000 кг.
  • Объем бетона 2 м3
  • Геометрический объем 2,9804 м3
Цена: 97000 руб.
Подробнее
1БСО 12-4 АIIIв п
Балки железобетонные Серия 1.462.1-1/88 и 1.462-1
  • Длина 11960 мм.
  • Ширина 280 мм.
  • Высота 890 мм.
  • Вес 5000 кг.
  • Объем бетона 2 м3
  • Геометрический объем 2,9804 м3
Цена: 97000 руб.
Подробнее
1БСО 12-4 АIV
Балки железобетонные Серия 1.462.1-1/88 и 1.462-1
  • Длина 11960 мм.
  • Ширина 280 мм.
  • Высота 890 мм.
  • Вес 5000 кг.
  • Объем бетона 2 м3
  • Геометрический объем 2,9804 м3
Цена: 97000 руб.
Подробнее
1БСО 12-4 АIV н
Балки железобетонные Серия 1.462.1-1/88 и 1.462-1
  • Длина 11960 мм.
  • Ширина 280 мм.
  • Высота 890 мм.
  • Вес 5000 кг.
  • Объем бетона 2 м3
  • Геометрический объем 2,9804 м3
Цена: 97000 руб.
Подробнее
1БСО 12-4 АIV п
Балки железобетонные Серия 1.462.1-1/88 и 1.462-1
  • Длина 11960 мм.
  • Ширина 280 мм.
  • Высота 890 мм.
  • Вес 5000 кг.
  • Объем бетона 2 м3
  • Геометрический объем 2,9804 м3
Цена: 97000 руб.
Подробнее
1БСО 12-4 АVI
Балки железобетонные Серия 1.462.1-1/88 и 1.462-1
  • Длина 11960 мм.
  • Ширина 280 мм.
  • Высота 890 мм.
  • Вес 5000 кг.
  • Объем бетона 2 м3
  • Геометрический объем 2,9804 м3
Цена: 97000 руб.
Подробнее
1БСО 12-4 АV
Балки железобетонные Серия 1.462.1-1/88 и 1.462-1
  • Длина 11960 мм.
  • Ширина 280 мм.
  • Высота 890 мм.
  • Вес 5000 кг.
  • Объем бетона 2 м3
  • Геометрический объем 2,9804 м3
Цена: 97000 руб.
Подробнее
1БСО 12-4 АтIVк н
Балки железобетонные Серия 1.462.1-1/88 и 1.462-1
  • Длина 11960 мм.
  • Ширина 280 мм.
  • Высота 890 мм.
  • Вес 5000 кг.
  • Объем бетона 2 м3
  • Геометрический объем 2,9804 м3
Цена: 97000 руб.
Подробнее
1БСО 12-4 АтIVк п
Балки железобетонные Серия 1.462.1-1/88 и 1.462-1
  • Длина 11960 мм.
  • Ширина 280 мм.
  • Высота 890 мм.
  • Вес 5000 кг.
  • Объем бетона 2 м3
  • Геометрический объем 2,9804 м3
Цена: 97000 руб.
Подробнее
1БСО 12-4 АтIVс
Балки железобетонные Серия 1.462.1-1/88 и 1.462-1
  • Длина 11960 мм.
  • Ширина 280 мм.
  • Высота 890 мм.
  • Вес 5000 кг.
  • Объем бетона 2 м3
  • Геометрический объем 2,9804 м3
Цена: 97000 руб.
Подробнее
1БСО 12-4 АтIVс н
Балки железобетонные Серия 1.462.1-1/88 и 1.462-1
  • Длина 11960 мм.
  • Ширина 280 мм.
  • Высота 890 мм.
  • Вес 5000 кг.
  • Объем бетона 2 м3
  • Геометрический объем 2,9804 м3
Цена: 97000 руб.
Подробнее
1БСО 12-4 АтVIк н
Балки железобетонные Серия 1.462.1-1/88 и 1.462-1
  • Длина 11960 мм.
  • Ширина 280 мм.
  • Высота 890 мм.
  • Вес 5000 кг.
  • Объем бетона 2 м3
  • Геометрический объем 2,9804 м3
Цена: 97000 руб.
Подробнее
1БСО 12-4 АтV
Балки железобетонные Серия 1.462.1-1/88 и 1.462-1
  • Длина 11960 мм.
  • Ширина 280 мм.
  • Высота 890 мм.
  • Вес 5000 кг.
  • Объем бетона 2 м3
  • Геометрический объем 2,9804 м3
Цена: 97000 руб.
Подробнее
1БСО 12-4 АтVI
Балки железобетонные Серия 1.462.1-1/88 и 1.462-1
  • Длина 11960 мм.
  • Ширина 280 мм.
  • Высота 890 мм.
  • Вес 5000 кг.
  • Объем бетона 2 м3
  • Геометрический объем 2,9804 м3
Цена: 97000 руб.
Подробнее

Уведомление о файлах cookie

Мы используем файлы cookie для улучшения вашего опыта просмотра и анализа трафика. Нажимая "Принять все", вы соглашаетесь с нашей политикой конфиденциальности и политикой обработки файлов cookie.

MAX Дзен Телеграм Вконтакте vk