mobile_sound +7 (930) 655-55-90

Типовые конструкции и железобетонные изделия. Рабочие чертежи (Серия 1.462-1)

Поделиться:
Поделиться:

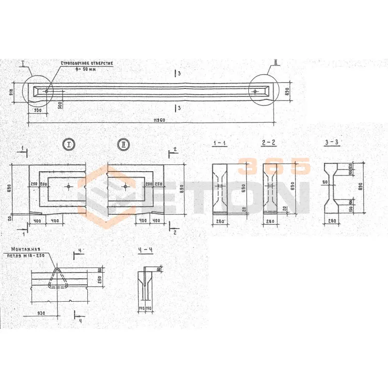
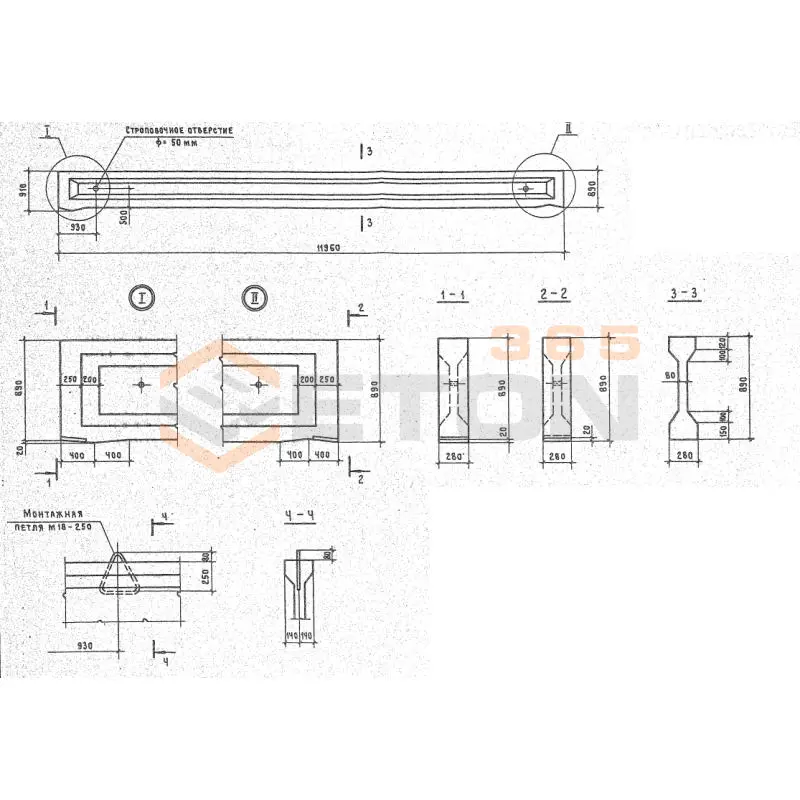
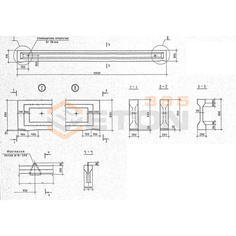
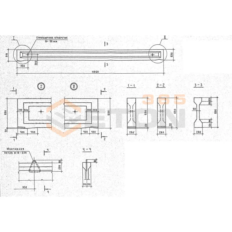
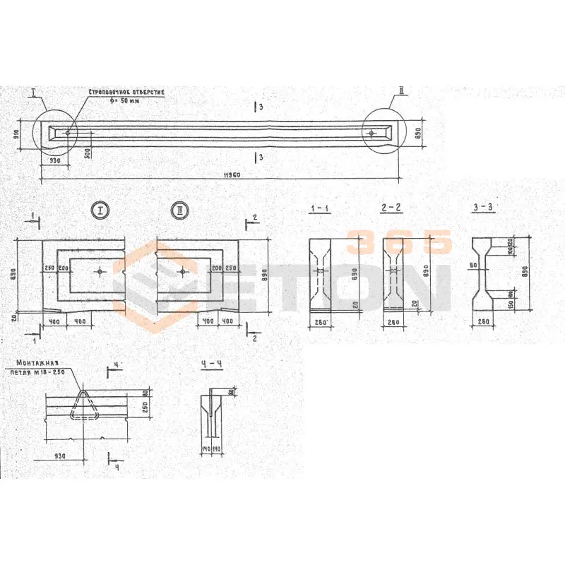
Документ Серия 1.462-1 описывает область применения, номенклатуру и ключевые требования, опираясь на действующие нормы и практику проектирования. Для покрытий зданий и сооружений различного назначения следует использовать высокопрочные конструкции, способные справляться с возлагаемыми ветровыми и снеговыми нагрузками. Среди таких изделия и конструкции в Серии 1.462-1 были специально разработаны балки с параллельными поясами, которые имеют пролеты равные 12 метрам. Предварительно напряженные конструкции были запроектированы институтом ПРОМСТРОЙПРОЕКТ при участии НИИЖБ.

Файлы для скачивания:
picture_as_pdf

1242.pdf

8,309.1 KB

скачать
picture_as_pdf

1243.pdf

1,495.5 KB

скачать
picture_as_pdf

1244.pdf

6,690.2 KB

скачать
picture_as_pdf

1245.pdf

1,483.6 KB

скачать
picture_as_pdf

1246.pdf

1,467.0 KB

скачать
Товары Серия 1.462-1 (60)
2БО 12-5 АIIIв
Балки железобетонные Серия 1.462.1-1/88 и 1.462-1
  • Длина 11960 мм.
  • Ширина 280 мм.
  • Высота 890 мм.
  • Вес 5000 кг.
  • Объем бетона 2 м3
  • Геометрический объем 2,9804 м3
Цена: 97000 руб.
Подробнее
2БО 12-5
Балки железобетонные Серия 1.462.1-1/88 и 1.462-1
  • Длина 11960 мм.
  • Ширина 280 мм.
  • Высота 890 мм.
  • Вес 5000 кг.
  • Объем бетона 2 м3
  • Геометрический объем 2,9804 м3
Цена: 97000 руб.
Подробнее
2БО 12-5 АIV
Балки железобетонные Серия 1.462.1-1/88 и 1.462-1
  • Длина 11960 мм.
  • Ширина 280 мм.
  • Высота 890 мм.
  • Вес 5000 кг.
  • Объем бетона 2 м3
  • Геометрический объем 2,9804 м3
Цена: 97000 руб.
Подробнее
2БО 12-5 АтV
Балки железобетонные Серия 1.462.1-1/88 и 1.462-1
  • Длина 11960 мм.
  • Ширина 280 мм.
  • Высота 890 мм.
  • Вес 5000 кг.
  • Объем бетона 2 м3
  • Геометрический объем 2,9804 м3
Цена: 97000 руб.
Подробнее
2БО 12-5 АтVI
Балки железобетонные Серия 1.462.1-1/88 и 1.462-1
  • Длина 11960 мм.
  • Ширина 280 мм.
  • Высота 890 мм.
  • Вес 5000 кг.
  • Объем бетона 2 м3
  • Геометрический объем 2,9804 м3
Цена: 97000 руб.
Подробнее
2БО 12-5 п
Балки железобетонные Серия 1.462.1-1/88 и 1.462-1
  • Длина 11960 мм.
  • Ширина 280 мм.
  • Высота 890 мм.
  • Вес 5000 кг.
  • Объем бетона 2 м3
  • Геометрический объем 2,9804 м3
Цена: 97000 руб.
Подробнее
2БО 12-5 в
Балки железобетонные Серия 1.462.1-1/88 и 1.462-1
  • Длина 11960 мм.
  • Ширина 280 мм.
  • Высота 890 мм.
  • Вес 5000 кг.
  • Объем бетона 2 м3
  • Геометрический объем 2,9804 м3
Цена: 97000 руб.
Подробнее
2БО 12-6
Балки железобетонные Серия 1.462.1-1/88 и 1.462-1
  • Длина 11960 мм.
  • Ширина 280 мм.
  • Высота 890 мм.
  • Вес 5000 кг.
  • Объем бетона 2 м3
  • Геометрический объем 2,9804 м3
Цена: 97000 руб.
Подробнее
2БО 12-6 АIIIв
Балки железобетонные Серия 1.462.1-1/88 и 1.462-1
  • Длина 11960 мм.
  • Ширина 280 мм.
  • Высота 890 мм.
  • Вес 5000 кг.
  • Объем бетона 2 м3
  • Геометрический объем 2,9804 м3
Цена: 97000 руб.
Подробнее
2БО 12-6 АIV
Балки железобетонные Серия 1.462.1-1/88 и 1.462-1
  • Длина 11960 мм.
  • Ширина 280 мм.
  • Высота 890 мм.
  • Вес 5000 кг.
  • Объем бетона 2 м3
  • Геометрический объем 2,9804 м3
Цена: 97000 руб.
Подробнее
2БО 12-6 АV
Балки железобетонные Серия 1.462.1-1/88 и 1.462-1
  • Длина 11960 мм.
  • Ширина 280 мм.
  • Высота 890 мм.
  • Вес 5000 кг.
  • Объем бетона 2 м3
  • Геометрический объем 2,9804 м3
Цена: 97000 руб.
Подробнее
2БО 12-6 АтV
Балки железобетонные Серия 1.462.1-1/88 и 1.462-1
  • Длина 11960 мм.
  • Ширина 280 мм.
  • Высота 890 мм.
  • Вес 5000 кг.
  • Объем бетона 2 м3
  • Геометрический объем 2,9804 м3
Цена: 97000 руб.
Подробнее
2БО 12-6 АтVI
Балки железобетонные Серия 1.462.1-1/88 и 1.462-1
  • Длина 11960 мм.
  • Ширина 280 мм.
  • Высота 890 мм.
  • Вес 5000 кг.
  • Объем бетона 2 м3
  • Геометрический объем 2,9804 м3
Цена: 97000 руб.
Подробнее
2БОЭ 12-3 АIIIв
Балки железобетонные Серия 1.462.1-1/88 и 1.462-1
  • Длина 11960 мм.
  • Ширина 280 мм.
  • Высота 890 мм.
  • Вес 5000 кг.
  • Объем бетона 2 м3
  • Геометрический объем 2,9804 м3
Цена: 97000 руб.
Подробнее
2БО 12-6 п
Балки железобетонные Серия 1.462.1-1/88 и 1.462-1
  • Длина 11960 мм.
  • Ширина 280 мм.
  • Высота 890 мм.
  • Вес 5000 кг.
  • Объем бетона 2 м3
  • Геометрический объем 2,9804 м3
Цена: 97000 руб.
Подробнее
2БОЭ 12-4 АIIIв
Балки железобетонные Серия 1.462.1-1/88 и 1.462-1
  • Длина 11960 мм.
  • Ширина 280 мм.
  • Высота 890 мм.
  • Вес 5000 кг.
  • Объем бетона 2 м3
  • Геометрический объем 2,9804 м3
Цена: 97000 руб.
Подробнее
2БОЭ 12-4 АIIIвт
Балки железобетонные Серия 1.462.1-1/88 и 1.462-1
  • Длина 11960 мм.
  • Ширина 280 мм.
  • Высота 890 мм.
  • Вес 5000 кг.
  • Объем бетона 2 м3
  • Геометрический объем 2,9804 м3
Цена: 97000 руб.
Подробнее
2БОЭ 12-3 АIV
Балки железобетонные Серия 1.462.1-1/88 и 1.462-1
  • Длина 11960 мм.
  • Ширина 280 мм.
  • Высота 890 мм.
  • Вес 5000 кг.
  • Объем бетона 2 м3
  • Геометрический объем 2,9804 м3
Цена: 97000 руб.
Подробнее
2БОЭ 12-4 АIV
Балки железобетонные Серия 1.462.1-1/88 и 1.462-1
  • Длина 11960 мм.
  • Ширина 280 мм.
  • Высота 890 мм.
  • Вес 5000 кг.
  • Объем бетона 2 м3
  • Геометрический объем 2,9804 м3
Цена: 97000 руб.
Подробнее
2БОЭ 12-5 АIV
Балки железобетонные Серия 1.462.1-1/88 и 1.462-1
  • Длина 11960 мм.
  • Ширина 280 мм.
  • Высота 890 мм.
  • Вес 5000 кг.
  • Объем бетона 2 м3
  • Геометрический объем 2,9804 м3
Цена: 97000 руб.
Подробнее
2БОЭ 12-5 АIIIв
Балки железобетонные Серия 1.462.1-1/88 и 1.462-1
  • Длина 11960 мм.
  • Ширина 280 мм.
  • Высота 890 мм.
  • Вес 5000 кг.
  • Объем бетона 2 м3
  • Геометрический объем 2,9804 м3
Цена: 97000 руб.
Подробнее
2БОЭ 12-6 АIIIв
Балки железобетонные Серия 1.462.1-1/88 и 1.462-1
  • Длина 11960 мм.
  • Ширина 280 мм.
  • Высота 890 мм.
  • Вес 5000 кг.
  • Объем бетона 2 м3
  • Геометрический объем 2,9804 м3
Цена: 97000 руб.
Подробнее
2БОЭ 12-6 АIV
Балки железобетонные Серия 1.462.1-1/88 и 1.462-1
  • Длина 11960 мм.
  • Ширина 280 мм.
  • Высота 890 мм.
  • Вес 5000 кг.
  • Объем бетона 2 м3
  • Геометрический объем 2,9804 м3
Цена: 97000 руб.
Подробнее
2БОЭ 12-6 АV
Балки железобетонные Серия 1.462.1-1/88 и 1.462-1
  • Длина 11960 мм.
  • Ширина 280 мм.
  • Высота 890 мм.
  • Вес 5000 кг.
  • Объем бетона 2 м3
  • Геометрический объем 2,9804 м3
Цена: 97000 руб.
Подробнее
2БП 12-3 АIV
Балки железобетонные Серия 1.462.1-1/88 и 1.462-1
  • Длина 11960 мм.
  • Ширина 280 мм.
  • Высота 890 мм.
  • Вес 4500 кг.
  • Объем бетона 1,8 м3
  • Геометрический объем 2,9804 м3
Цена: 87300 руб.
Подробнее
2БП 12-3
Балки железобетонные Серия 1.462.1-1/88 и 1.462-1
  • Длина 11960 мм.
  • Ширина 280 мм.
  • Высота 890 мм.
  • Вес 4500 кг.
  • Объем бетона 1,8 м3
  • Геометрический объем 2,9804 м3
Цена: 87300 руб.
Подробнее
2БП 12-3 АIIIв
Балки железобетонные Серия 1.462.1-1/88 и 1.462-1
  • Длина 11960 мм.
  • Ширина 280 мм.
  • Высота 890 мм.
  • Вес 4500 кг.
  • Объем бетона 1,8 м3
  • Геометрический объем 2,9804 м3
Цена: 87300 руб.
Подробнее
2БП 12-3 АтV
Балки железобетонные Серия 1.462.1-1/88 и 1.462-1
  • Длина 11960 мм.
  • Ширина 280 мм.
  • Высота 890 мм.
  • Вес 4500 кг.
  • Объем бетона 1,8 м3
  • Геометрический объем 2,9804 м3
Цена: 87300 руб.
Подробнее
2БП 12-3 в
Балки железобетонные Серия 1.462.1-1/88 и 1.462-1
  • Длина 11960 мм.
  • Ширина 280 мм.
  • Высота 890 мм.
  • Вес 4500 кг.
  • Объем бетона 1,8 м3
  • Геометрический объем 2,9804 м3
Цена: 87300 руб.
Подробнее
2БП 12-3 АтVI
Балки железобетонные Серия 1.462.1-1/88 и 1.462-1
  • Длина 11960 мм.
  • Ширина 280 мм.
  • Высота 890 мм.
  • Вес 4500 кг.
  • Объем бетона 1,8 м3
  • Геометрический объем 2,9804 м3
Цена: 87300 руб.
Подробнее
2БП 12-3 п
Балки железобетонные Серия 1.462.1-1/88 и 1.462-1
  • Длина 11960 мм.
  • Ширина 280 мм.
  • Высота 890 мм.
  • Вес 4500 кг.
  • Объем бетона 1,8 м3
  • Геометрический объем 2,9804 м3
Цена: 87300 руб.
Подробнее
2БП 12-4 АIIIв
Балки железобетонные Серия 1.462.1-1/88 и 1.462-1
  • Длина 11960 мм.
  • Ширина 280 мм.
  • Высота 890 мм.
  • Вес 4500 кг.
  • Объем бетона 1,8 м3
  • Геометрический объем 2,9804 м3
Цена: 87300 руб.
Подробнее
2БП 12-4
Балки железобетонные Серия 1.462.1-1/88 и 1.462-1
  • Длина 11960 мм.
  • Ширина 280 мм.
  • Высота 890 мм.
  • Вес 4500 кг.
  • Объем бетона 1,8 м3
  • Геометрический объем 2,9804 м3
Цена: 87300 руб.
Подробнее
2БП 12-4 АтV
Балки железобетонные Серия 1.462.1-1/88 и 1.462-1
  • Длина 11960 мм.
  • Ширина 280 мм.
  • Высота 890 мм.
  • Вес 4500 кг.
  • Объем бетона 1,8 м3
  • Геометрический объем 2,9804 м3
Цена: 87300 руб.
Подробнее
2БП 12-4 АIV
Балки железобетонные Серия 1.462.1-1/88 и 1.462-1
  • Длина 11960 мм.
  • Ширина 280 мм.
  • Высота 890 мм.
  • Вес 4500 кг.
  • Объем бетона 1,8 м3
  • Геометрический объем 2,9804 м3
Цена: 87300 руб.
Подробнее
2БП 12-4 АтVI
Балки железобетонные Серия 1.462.1-1/88 и 1.462-1
  • Длина 11960 мм.
  • Ширина 280 мм.
  • Высота 890 мм.
  • Вес 4500 кг.
  • Объем бетона 1,8 м3
  • Геометрический объем 2,9804 м3
Цена: 87300 руб.
Подробнее
2БП 12-4 в
Балки железобетонные Серия 1.462.1-1/88 и 1.462-1
  • Длина 11960 мм.
  • Ширина 280 мм.
  • Высота 890 мм.
  • Вес 4500 кг.
  • Объем бетона 1,8 м3
  • Геометрический объем 2,9804 м3
Цена: 87300 руб.
Подробнее
2БП 12-4 п
Балки железобетонные Серия 1.462.1-1/88 и 1.462-1
  • Длина 11960 мм.
  • Ширина 280 мм.
  • Высота 890 мм.
  • Вес 4500 кг.
  • Объем бетона 1,8 м3
  • Геометрический объем 2,9804 м3
Цена: 87300 руб.
Подробнее
2БП 12-5 АIIIв
Балки железобетонные Серия 1.462.1-1/88 и 1.462-1
  • Длина 11960 мм.
  • Ширина 280 мм.
  • Высота 890 мм.
  • Вес 4500 кг.
  • Объем бетона 1,8 м3
  • Геометрический объем 2,9804 м3
Цена: 87300 руб.
Подробнее
2БП 12-5 АтV
Балки железобетонные Серия 1.462.1-1/88 и 1.462-1
  • Длина 11960 мм.
  • Ширина 280 мм.
  • Высота 890 мм.
  • Вес 4500 кг.
  • Объем бетона 1,8 м3
  • Геометрический объем 2,9804 м3
Цена: 87300 руб.
Подробнее
2БП 12-5
Балки железобетонные Серия 1.462.1-1/88 и 1.462-1
  • Длина 11960 мм.
  • Ширина 280 мм.
  • Высота 890 мм.
  • Вес 4500 кг.
  • Объем бетона 1,8 м3
  • Геометрический объем 2,9804 м3
Цена: 87300 руб.
Подробнее
2БП 12-5 АIV
Балки железобетонные Серия 1.462.1-1/88 и 1.462-1
  • Длина 11960 мм.
  • Ширина 280 мм.
  • Высота 890 мм.
  • Вес 4500 кг.
  • Объем бетона 1,8 м3
  • Геометрический объем 2,9804 м3
Цена: 87300 руб.
Подробнее
2БП 12-5 АтVI
Балки железобетонные Серия 1.462.1-1/88 и 1.462-1
  • Длина 11960 мм.
  • Ширина 280 мм.
  • Высота 890 мм.
  • Вес 4500 кг.
  • Объем бетона 1,8 м3
  • Геометрический объем 2,9804 м3
Цена: 87300 руб.
Подробнее
2БП 12-5 в
Балки железобетонные Серия 1.462.1-1/88 и 1.462-1
  • Длина 11960 мм.
  • Ширина 280 мм.
  • Высота 890 мм.
  • Вес 4500 кг.
  • Объем бетона 1,8 м3
  • Геометрический объем 2,9804 м3
Цена: 87300 руб.
Подробнее
2БП 12-6
Балки железобетонные Серия 1.462.1-1/88 и 1.462-1
  • Длина 11960 мм.
  • Ширина 280 мм.
  • Высота 890 мм.
  • Вес 5000 кг.
  • Объем бетона 2 м3
  • Геометрический объем 2,9804 м3
Цена: 97000 руб.
Подробнее
2БП 12-6 АIV
Балки железобетонные Серия 1.462.1-1/88 и 1.462-1
  • Длина 11960 мм.
  • Ширина 280 мм.
  • Высота 890 мм.
  • Вес 5000 кг.
  • Объем бетона 2 м3
  • Геометрический объем 2,9804 м3
Цена: 97000 руб.
Подробнее
2БП 12-6 АIIIв
Балки железобетонные Серия 1.462.1-1/88 и 1.462-1
  • Длина 11960 мм.
  • Ширина 280 мм.
  • Высота 890 мм.
  • Вес 5000 кг.
  • Объем бетона 2 м3
  • Геометрический объем 2,9804 м3
Цена: 97000 руб.
Подробнее
2БП 12-5 п
Балки железобетонные Серия 1.462.1-1/88 и 1.462-1
  • Длина 11960 мм.
  • Ширина 280 мм.
  • Высота 890 мм.
  • Вес 4500 кг.
  • Объем бетона 1,8 м3
  • Геометрический объем 2,9804 м3
Цена: 87300 руб.
Подробнее
2БП 12-6 АV
Балки железобетонные Серия 1.462.1-1/88 и 1.462-1
  • Длина 11960 мм.
  • Ширина 280 мм.
  • Высота 890 мм.
  • Вес 5000 кг.
  • Объем бетона 2 м3
  • Геометрический объем 2,9804 м3
Цена: 97000 руб.
Подробнее
2БП 12-6 АтV
Балки железобетонные Серия 1.462.1-1/88 и 1.462-1
  • Длина 11960 мм.
  • Ширина 280 мм.
  • Высота 890 мм.
  • Вес 5000 кг.
  • Объем бетона 2 м3
  • Геометрический объем 2,9804 м3
Цена: 97000 руб.
Подробнее
2БП 12-6 АтVI
Балки железобетонные Серия 1.462.1-1/88 и 1.462-1
  • Длина 11960 мм.
  • Ширина 280 мм.
  • Высота 890 мм.
  • Вес 5000 кг.
  • Объем бетона 2 м3
  • Геометрический объем 2,9804 м3
Цена: 97000 руб.
Подробнее
2БП 12-6 п
Балки железобетонные Серия 1.462.1-1/88 и 1.462-1
  • Длина 11960 мм.
  • Ширина 280 мм.
  • Высота 890 мм.
  • Вес 5000 кг.
  • Объем бетона 2 м3
  • Геометрический объем 2,9804 м3
Цена: 97000 руб.
Подробнее
2БПЭ 12-3 АIIIв
Балки железобетонные Серия 1.462.1-1/88 и 1.462-1
  • Длина 11960 мм.
  • Ширина 280 мм.
  • Высота 890 мм.
  • Вес 4500 кг.
  • Объем бетона 1,8 м3
  • Геометрический объем 2,9804 м3
Цена: 87300 руб.
Подробнее
2БПЭ 12-4 АIIIв
Балки железобетонные Серия 1.462.1-1/88 и 1.462-1
  • Длина 11960 мм.
  • Ширина 280 мм.
  • Высота 890 мм.
  • Вес 4500 кг.
  • Объем бетона 1,8 м3
  • Геометрический объем 2,9804 м3
Цена: 87300 руб.
Подробнее
2БПЭ 12-3 АIV
Балки железобетонные Серия 1.462.1-1/88 и 1.462-1
  • Длина 11960 мм.
  • Ширина 280 мм.
  • Высота 890 мм.
  • Вес 4500 кг.
  • Объем бетона 1,8 м3
  • Геометрический объем 2,9804 м3
Цена: 87300 руб.
Подробнее
2БПЭ 12-4 АIV
Балки железобетонные Серия 1.462.1-1/88 и 1.462-1
  • Длина 11960 мм.
  • Ширина 280 мм.
  • Высота 890 мм.
  • Вес 4500 кг.
  • Объем бетона 1,8 м3
  • Геометрический объем 2,9804 м3
Цена: 87300 руб.
Подробнее
2БПЭ 12-5 АIIIв
Балки железобетонные Серия 1.462.1-1/88 и 1.462-1
  • Длина 11960 мм.
  • Ширина 280 мм.
  • Высота 890 мм.
  • Вес 4500 кг.
  • Объем бетона 1,8 м3
  • Геометрический объем 2,9804 м3
Цена: 87300 руб.
Подробнее
2БПЭ 12-5 АIV
Балки железобетонные Серия 1.462.1-1/88 и 1.462-1
  • Длина 11960 мм.
  • Ширина 280 мм.
  • Высота 890 мм.
  • Вес 4500 кг.
  • Объем бетона 1,8 м3
  • Геометрический объем 2,9804 м3
Цена: 87300 руб.
Подробнее
2БПЭ 12-6 АIIIв
Балки железобетонные Серия 1.462.1-1/88 и 1.462-1
  • Длина 11960 мм.
  • Ширина 280 мм.
  • Высота 890 мм.
  • Вес 5000 кг.
  • Объем бетона 2 м3
  • Геометрический объем 2,9804 м3
Цена: 97000 руб.
Подробнее
2БПЭ 12-6 АIV
Балки железобетонные Серия 1.462.1-1/88 и 1.462-1
  • Длина 11960 мм.
  • Ширина 280 мм.
  • Высота 890 мм.
  • Вес 5000 кг.
  • Объем бетона 2 м3
  • Геометрический объем 2,9804 м3
Цена: 97000 руб.
Подробнее

Уведомление о файлах cookie

Мы используем файлы cookie для улучшения вашего опыта просмотра и анализа трафика. Нажимая "Принять все", вы соглашаетесь с нашей политикой конфиденциальности и политикой обработки файлов cookie.

MAX Дзен Телеграм Вконтакте vk