mobile_sound +7 (930) 655-55-90

Типовые конструкции и железобетонные изделия. Рабочие чертежи (Серия 1.432-5)

Поделиться:
Поделиться:

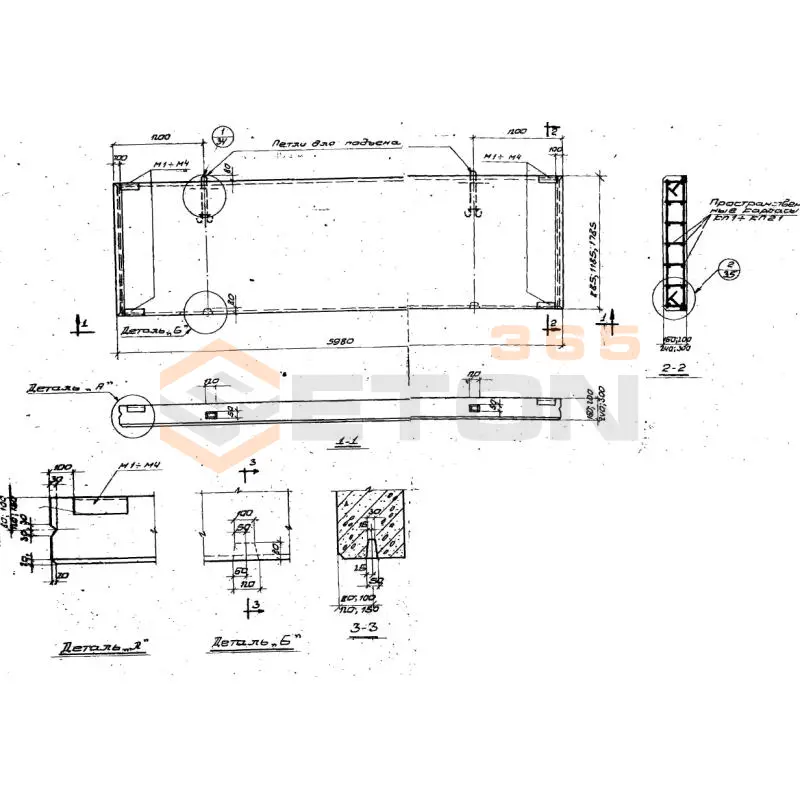
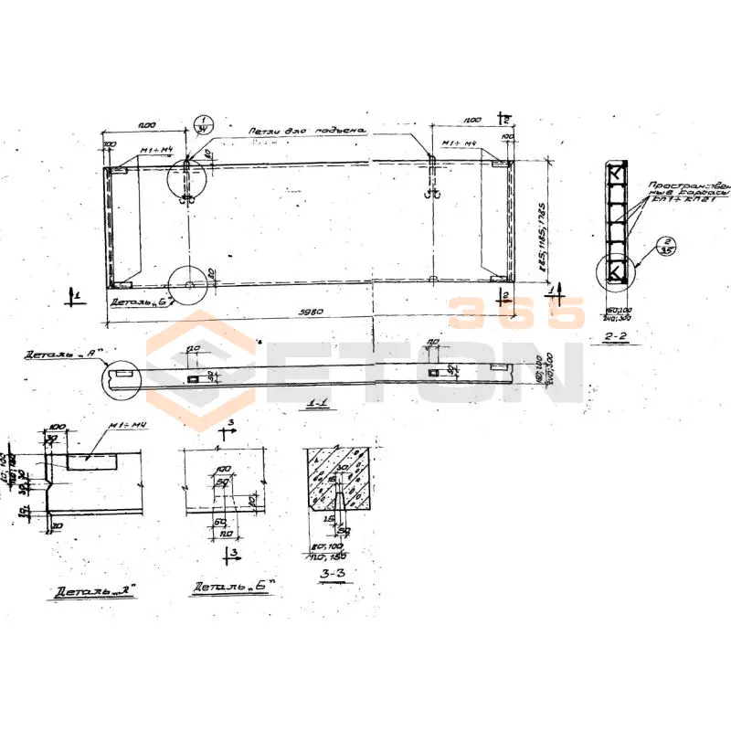
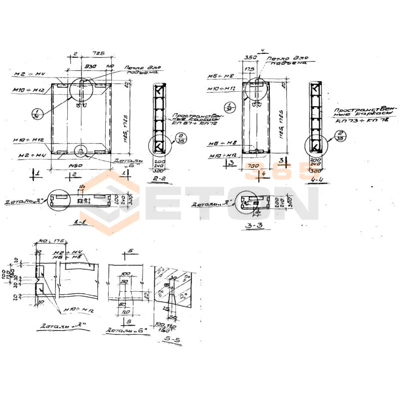
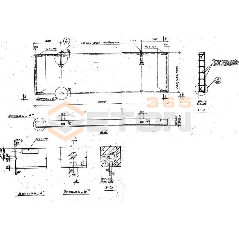
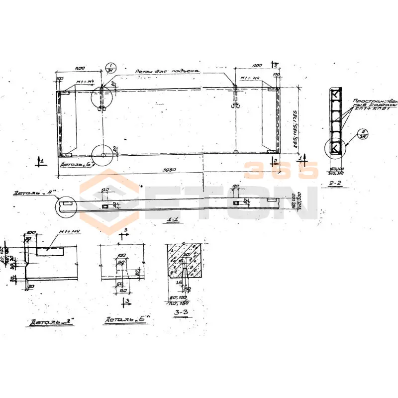
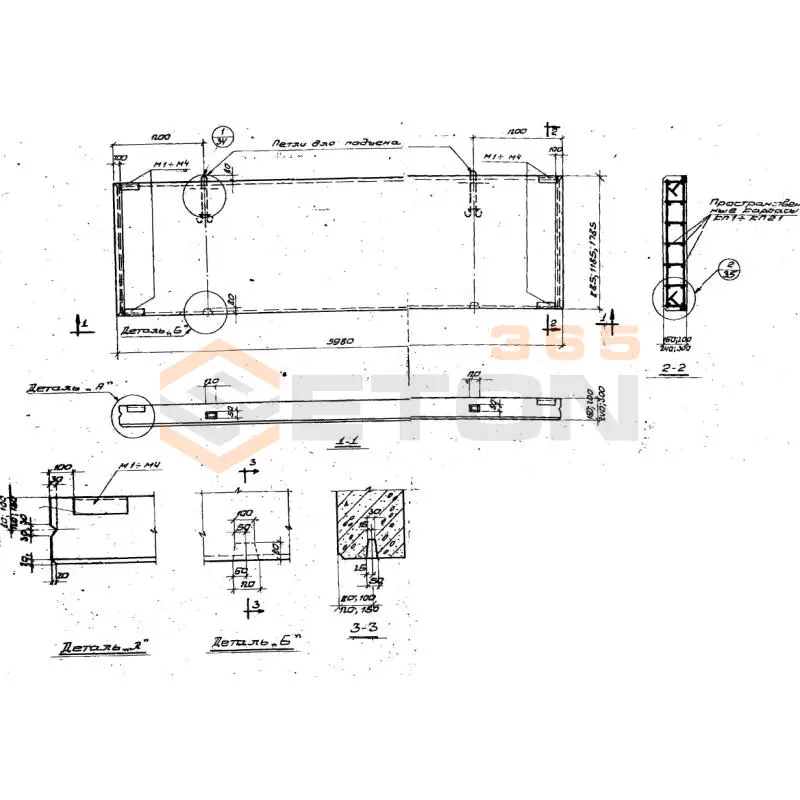
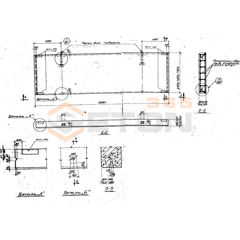
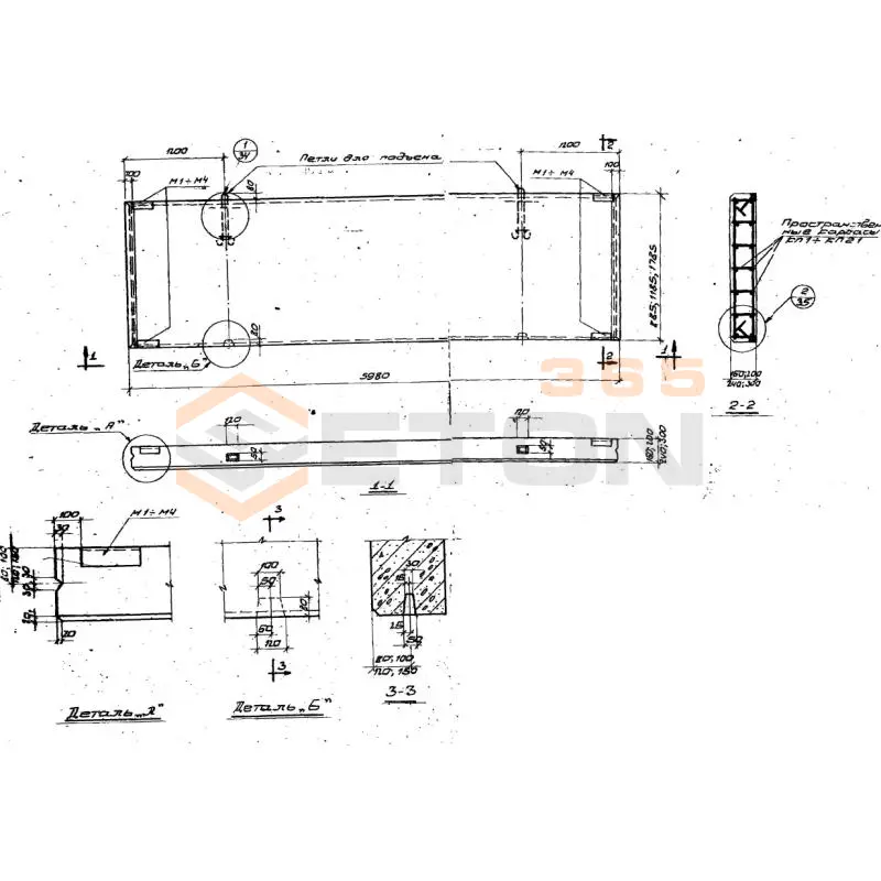
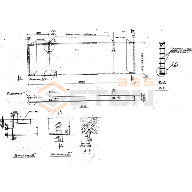
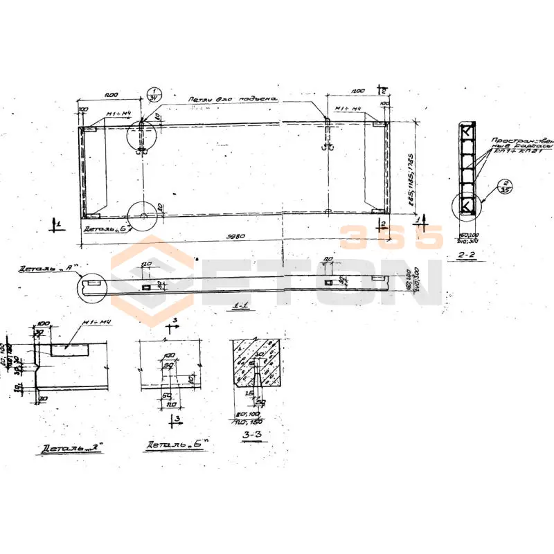
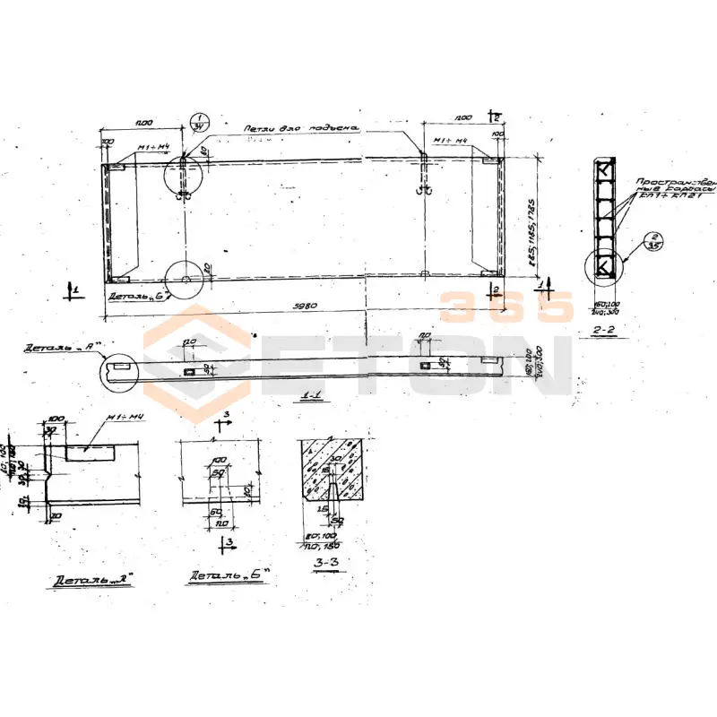
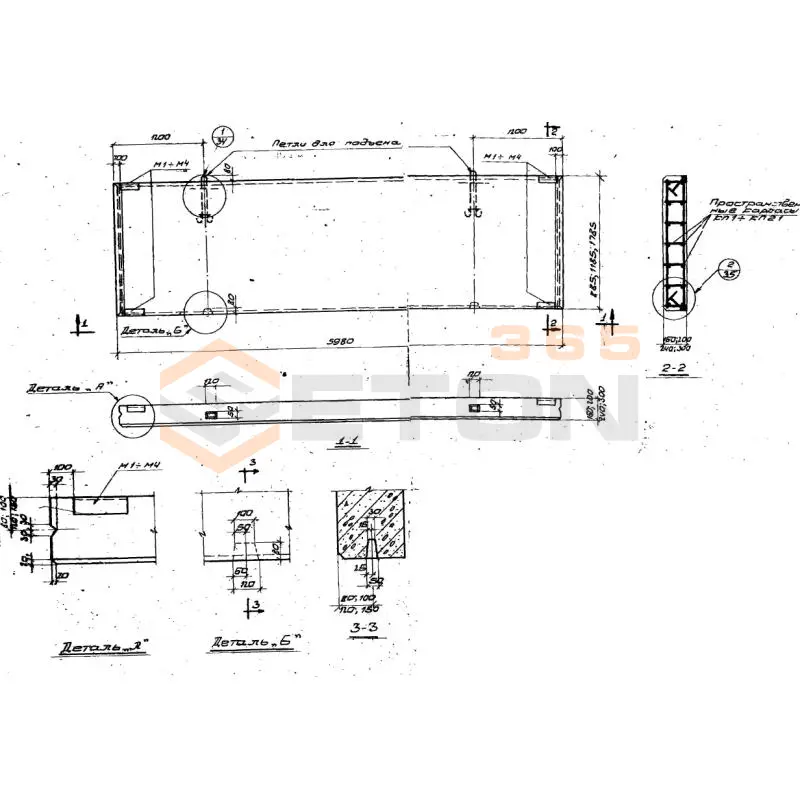
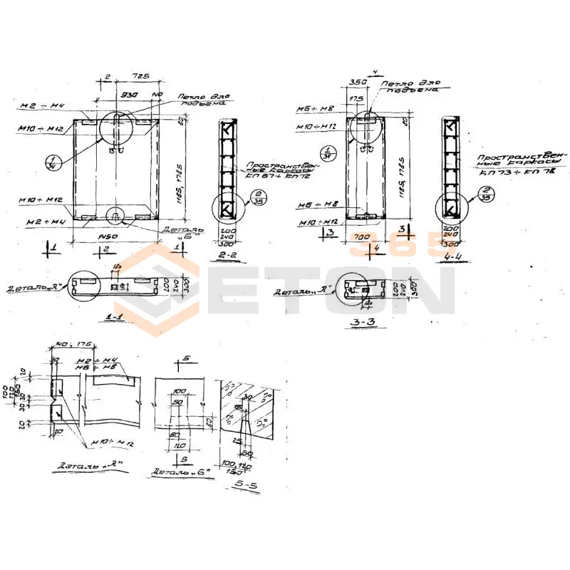
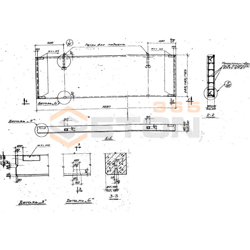
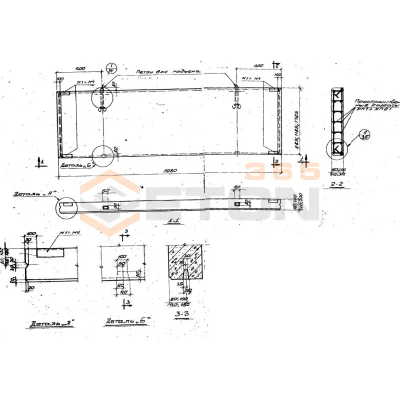
Документ Серия 1.432-5 описывает область применения, номенклатуру и ключевые требования, опираясь на действующие нормы и практику проектирования. Серия 1.432-5 входит в состав строительных каталог типовых конструкций и описывает производство стеновых панелей, предназначенных для промышленных сооружений, возводимых с шагом колонн равным 6 метрам. Документ был разработан ЦНИИпромзданий совместно с НИИЖБ, а также НИИСФ. После утверждения Госстроем СССР регламент был введён в действие с 1 января 1973 года и для удобства разбит на четыре выпуска.

Файлы для скачивания:
picture_as_pdf

5226.pdf

6,963.6 KB

скачать
picture_as_pdf

5227.pdf

6,247.3 KB

скачать
picture_as_pdf

5228.pdf

3,867.7 KB

скачать
picture_as_pdf

5229.pdf

880.0 KB

скачать
Товары Серия 1.432-5 (60)
ПСЛ 24-0,9-3-221 (1.432-5)
Панели стеновые Серия 1.432-5
  • Длина 2950 мм.
  • Ширина 240 мм.
  • Высота 885 мм.
  • Вес 900 кг.
  • Объем бетона 0,63 м3
  • Геометрический объем 0,6266 м3
Цена: 24444 руб.
Подробнее
ПСЛ 24-0,9-3-122 (1.432-5)
Панели стеновые Серия 1.432-5
  • Длина 2950 мм.
  • Ширина 240 мм.
  • Высота 885 мм.
  • Вес 900 кг.
  • Объем бетона 0,63 м3
  • Геометрический объем 0,6266 м3
Цена: 24444 руб.
Подробнее
ПСЛ 24-0,9-3-222 (1.432-5)
Панели стеновые Серия 1.432-5
  • Длина 2950 мм.
  • Ширина 240 мм.
  • Высота 885 мм.
  • Вес 900 кг.
  • Объем бетона 0,63 м3
  • Геометрический объем 0,6266 м3
Цена: 24444 руб.
Подробнее
ПСЛ 24-0,9-6-111 (1.432-5)
Панели стеновые Серия 1.432-5
  • Длина 5980 мм.
  • Ширина 240 мм.
  • Высота 885 мм.
  • Вес 1800 кг.
  • Объем бетона 1,27 м3
  • Геометрический объем 1,2702 м3
Цена: 49276 руб.
Подробнее
ПСЛ 24-0,9-6-121 (1.432-5)
Панели стеновые Серия 1.432-5
  • Длина 5980 мм.
  • Ширина 240 мм.
  • Высота 885 мм.
  • Вес 1800 кг.
  • Объем бетона 1,27 м3
  • Геометрический объем 1,2702 м3
Цена: 49276 руб.
Подробнее
ПСЛ 24-0,9-6-112 (1.432-5)
Панели стеновые Серия 1.432-5
  • Длина 5980 мм.
  • Ширина 240 мм.
  • Высота 885 мм.
  • Вес 1800 кг.
  • Объем бетона 1,27 м3
  • Геометрический объем 1,2702 м3
Цена: 49276 руб.
Подробнее
ПСЛ 24-0,9-6-122 (1.432-5)
Панели стеновые Серия 1.432-5
  • Длина 5980 мм.
  • Ширина 240 мм.
  • Высота 885 мм.
  • Вес 1800 кг.
  • Объем бетона 1,27 м3
  • Геометрический объем 1,2702 м3
Цена: 49276 руб.
Подробнее
ПСЛ 24-0,9-6-212 (1.432-5)
Панели стеновые Серия 1.432-5
  • Длина 5980 мм.
  • Ширина 240 мм.
  • Высота 885 мм.
  • Вес 1800 кг.
  • Объем бетона 1,27 м3
  • Геометрический объем 1,2702 м3
Цена: 49276 руб.
Подробнее
ПСЛ 24-0,9-6-211 (1.432-5)
Панели стеновые Серия 1.432-5
  • Длина 5980 мм.
  • Ширина 240 мм.
  • Высота 885 мм.
  • Вес 1800 кг.
  • Объем бетона 1,27 м3
  • Геометрический объем 1,2702 м3
Цена: 49276 руб.
Подробнее
ПСЛ 24-0,9-6-221 (1.432-5)
Панели стеновые Серия 1.432-5
  • Длина 5980 мм.
  • Ширина 240 мм.
  • Высота 885 мм.
  • Вес 1800 кг.
  • Объем бетона 1,27 м3
  • Геометрический объем 1,2702 м3
Цена: 49276 руб.
Подробнее
ПСЛ 24-0,9-6-311 (1.432-5)
Панели стеновые Серия 1.432-5
  • Длина 5980 мм.
  • Ширина 240 мм.
  • Высота 885 мм.
  • Вес 1800 кг.
  • Объем бетона 1,27 м3
  • Геометрический объем 1,2702 м3
Цена: 49276 руб.
Подробнее
ПСЛ 24-0,9-6-222 (1.432-5)
Панели стеновые Серия 1.432-5
  • Длина 5980 мм.
  • Ширина 240 мм.
  • Высота 885 мм.
  • Вес 1800 кг.
  • Объем бетона 1,27 м3
  • Геометрический объем 1,2702 м3
Цена: 49276 руб.
Подробнее
ПСЛ 24-0,9-6-322 (1.432-5)
Панели стеновые Серия 1.432-5
  • Длина 5980 мм.
  • Ширина 240 мм.
  • Высота 885 мм.
  • Вес 1800 кг.
  • Объем бетона 1,27 м3
  • Геометрический объем 1,2702 м3
Цена: 49276 руб.
Подробнее
ПСЛ 24-0,9-6-312 (1.432-5)
Панели стеновые Серия 1.432-5
  • Длина 5980 мм.
  • Ширина 240 мм.
  • Высота 885 мм.
  • Вес 1800 кг.
  • Объем бетона 1,27 м3
  • Геометрический объем 1,2702 м3
Цена: 49276 руб.
Подробнее
ПСЛ 24-0,9-6-321 (1.432-5)
Панели стеновые Серия 1.432-5
  • Длина 5980 мм.
  • Ширина 240 мм.
  • Высота 885 мм.
  • Вес 1800 кг.
  • Объем бетона 1,27 м3
  • Геометрический объем 1,2702 м3
Цена: 49276 руб.
Подробнее
ПСЛ 24-0,9-6-421 (1.432-5)
Панели стеновые Серия 1.432-5
  • Длина 5980 мм.
  • Ширина 240 мм.
  • Высота 885 мм.
  • Вес 1800 кг.
  • Объем бетона 1,27 м3
  • Геометрический объем 1,2702 м3
Цена: 49276 руб.
Подробнее
ПСЛ 24-0,9-6-621 (1.432-5)
Панели стеновые Серия 1.432-5
  • Длина 5980 мм.
  • Ширина 240 мм.
  • Высота 885 мм.
  • Вес 1800 кг.
  • Объем бетона 1,27 м3
  • Геометрический объем 1,2702 м3
Цена: 49276 руб.
Подробнее
ПСЛ 24-0,9-6-521 (1.432-5)
Панели стеновые Серия 1.432-5
  • Длина 5980 мм.
  • Ширина 240 мм.
  • Высота 885 мм.
  • Вес 1800 кг.
  • Объем бетона 1,27 м3
  • Геометрический объем 1,2702 м3
Цена: 49276 руб.
Подробнее
ПСЛ 24-0,9-6-721 (1.432-5)
Панели стеновые Серия 1.432-5
  • Длина 5980 мм.
  • Ширина 240 мм.
  • Высота 885 мм.
  • Вес 1800 кг.
  • Объем бетона 1,27 м3
  • Геометрический объем 1,2702 м3
Цена: 49276 руб.
Подробнее
ПСЛ 24-1,2-0,75-022 (1.432-5)
Панели стеновые Серия 1.432-5
  • Длина 700 мм.
  • Ширина 240 мм.
  • Высота 1185 мм.
  • Вес 300 кг.
  • Объем бетона 0,21 м3
  • Геометрический объем 0,1991 м3
Цена: 8148 руб.
Подробнее
ПСЛ 24-1,2-1,5-021 (1.432-5)
Панели стеновые Серия 1.432-5
  • Длина 1450 мм.
  • Ширина 240 мм.
  • Высота 1185 мм.
  • Вес 600 кг.
  • Объем бетона 0,42 м3
  • Геометрический объем 0,4124 м3
Цена: 16296 руб.
Подробнее
ПСЛ 24-1,2-3-021 (1.432-5)
Панели стеновые Серия 1.432-5
  • Длина 2950 мм.
  • Ширина 240 мм.
  • Высота 1185 мм.
  • Вес 1200 кг.
  • Объем бетона 0,84 м3
  • Геометрический объем 0,839 м3
Цена: 32592 руб.
Подробнее
ПСЛ 24-1,2-1,5-022 (1.432-5)
Панели стеновые Серия 1.432-5
  • Длина 1450 мм.
  • Ширина 240 мм.
  • Высота 1185 мм.
  • Вес 600 кг.
  • Объем бетона 0,42 м3
  • Геометрический объем 0,4124 м3
Цена: 16296 руб.
Подробнее
ПСЛ 24-1,2-3-121 (1.432-5)
Панели стеновые Серия 1.432-5
  • Длина 2950 мм.
  • Ширина 240 мм.
  • Высота 1185 мм.
  • Вес 1200 кг.
  • Объем бетона 0,84 м3
  • Геометрический объем 0,839 м3
Цена: 32592 руб.
Подробнее
ПСЛ 24-1,2-3-122 (1.432-5)
Панели стеновые Серия 1.432-5
  • Длина 2950 мм.
  • Ширина 240 мм.
  • Высота 1185 мм.
  • Вес 1200 кг.
  • Объем бетона 0,84 м3
  • Геометрический объем 0,839 м3
Цена: 32592 руб.
Подробнее
ПСЛ 24-1,2-3-221 (1.432-5)
Панели стеновые Серия 1.432-5
  • Длина 2950 мм.
  • Ширина 240 мм.
  • Высота 1185 мм.
  • Вес 1200 кг.
  • Объем бетона 0,84 м3
  • Геометрический объем 0,839 м3
Цена: 32592 руб.
Подробнее
ПСЛ 24-1,2-3-222 (1.432-5)
Панели стеновые Серия 1.432-5
  • Длина 2950 мм.
  • Ширина 240 мм.
  • Высота 1185 мм.
  • Вес 1200 кг.
  • Объем бетона 0,84 м3
  • Геометрический объем 0,839 м3
Цена: 32592 руб.
Подробнее
ПСЛ 24-1,2-6-111 (1.432-5)
Панели стеновые Серия 1.432-5
  • Длина 5980 мм.
  • Ширина 240 мм.
  • Высота 1185 мм.
  • Вес 2400 кг.
  • Объем бетона 1,7 м3
  • Геометрический объем 1,7007 м3
Цена: 65960 руб.
Подробнее
ПСЛ 24-1,2-6-112 (1.432-5)
Панели стеновые Серия 1.432-5
  • Длина 5980 мм.
  • Ширина 240 мм.
  • Высота 1185 мм.
  • Вес 2400 кг.
  • Объем бетона 1,7 м3
  • Геометрический объем 1,7007 м3
Цена: 65960 руб.
Подробнее
ПСЛ 24-1,2-6-121 (1.432-5)
Панели стеновые Серия 1.432-5
  • Длина 5980 мм.
  • Ширина 240 мм.
  • Высота 1185 мм.
  • Вес 2400 кг.
  • Объем бетона 1,7 м3
  • Геометрический объем 1,7007 м3
Цена: 65960 руб.
Подробнее
ПСЛ 24-1,2-6-122 (1.432-5)
Панели стеновые Серия 1.432-5
  • Длина 5980 мм.
  • Ширина 240 мм.
  • Высота 1185 мм.
  • Вес 2400 кг.
  • Объем бетона 1,7 м3
  • Геометрический объем 1,7007 м3
Цена: 65960 руб.
Подробнее
ПСЛ 24-1,2-6-211 (1.432-5)
Панели стеновые Серия 1.432-5
  • Длина 5980 мм.
  • Ширина 240 мм.
  • Высота 1185 мм.
  • Вес 2400 кг.
  • Объем бетона 1,7 м3
  • Геометрический объем 1,7007 м3
Цена: 65960 руб.
Подробнее
ПСЛ 24-1,2-6-212 (1.432-5)
Панели стеновые Серия 1.432-5
  • Длина 5980 мм.
  • Ширина 240 мм.
  • Высота 1185 мм.
  • Вес 2400 кг.
  • Объем бетона 1,7 м3
  • Геометрический объем 1,7007 м3
Цена: 65960 руб.
Подробнее
ПСЛ 24-1,2-6-222 (1.432-5)
Панели стеновые Серия 1.432-5
  • Длина 5980 мм.
  • Ширина 240 мм.
  • Высота 1185 мм.
  • Вес 2400 кг.
  • Объем бетона 1,7 м3
  • Геометрический объем 1,7007 м3
Цена: 65960 руб.
Подробнее
ПСЛ 24-1,2-6-221 (1.432-5)
Панели стеновые Серия 1.432-5
  • Длина 5980 мм.
  • Ширина 240 мм.
  • Высота 1185 мм.
  • Вес 2400 кг.
  • Объем бетона 1,7 м3
  • Геометрический объем 1,7007 м3
Цена: 65960 руб.
Подробнее
ПСЛ 24-1,2-6-311 (1.432-5)
Панели стеновые Серия 1.432-5
  • Длина 5980 мм.
  • Ширина 240 мм.
  • Высота 1185 мм.
  • Вес 2400 кг.
  • Объем бетона 1,7 м3
  • Геометрический объем 1,7007 м3
Цена: 65960 руб.
Подробнее
ПСЛ 24-1,2-6-312 (1.432-5)
Панели стеновые Серия 1.432-5
  • Длина 5980 мм.
  • Ширина 240 мм.
  • Высота 1185 мм.
  • Вес 2400 кг.
  • Объем бетона 1,7 м3
  • Геометрический объем 1,7007 м3
Цена: 65960 руб.
Подробнее
ПСЛ 24-1,2-6-322 (1.432-5)
Панели стеновые Серия 1.432-5
  • Длина 5980 мм.
  • Ширина 240 мм.
  • Высота 1185 мм.
  • Вес 2400 кг.
  • Объем бетона 1,7 м3
  • Геометрический объем 1,7007 м3
Цена: 65960 руб.
Подробнее
ПСЛ 24-1,2-6-321 (1.432-5)
Панели стеновые Серия 1.432-5
  • Длина 5980 мм.
  • Ширина 240 мм.
  • Высота 1185 мм.
  • Вес 2400 кг.
  • Объем бетона 1,7 м3
  • Геометрический объем 1,7007 м3
Цена: 65960 руб.
Подробнее
ПСЛ 24-1,2-6-421 (1.432-5)
Панели стеновые Серия 1.432-5
  • Длина 5980 мм.
  • Ширина 240 мм.
  • Высота 1185 мм.
  • Вес 2400 кг.
  • Объем бетона 1,7 м3
  • Геометрический объем 1,7007 м3
Цена: 65960 руб.
Подробнее
ПСЛ 24-1,2-6-521 (1.432-5)
Панели стеновые Серия 1.432-5
  • Длина 5980 мм.
  • Ширина 240 мм.
  • Высота 1185 мм.
  • Вес 2400 кг.
  • Объем бетона 1,7 м3
  • Геометрический объем 1,7007 м3
Цена: 65960 руб.
Подробнее
ПСЛ 24-1,2-6-721 (1.432-5)
Панели стеновые Серия 1.432-5
  • Длина 5980 мм.
  • Ширина 240 мм.
  • Высота 1185 мм.
  • Вес 2400 кг.
  • Объем бетона 1,7 м3
  • Геометрический объем 1,7007 м3
Цена: 65960 руб.
Подробнее
ПСЛ 24-1,2-6-621 (1.432-5)
Панели стеновые Серия 1.432-5
  • Длина 5980 мм.
  • Ширина 240 мм.
  • Высота 1185 мм.
  • Вес 2400 кг.
  • Объем бетона 1,7 м3
  • Геометрический объем 1,7007 м3
Цена: 65960 руб.
Подробнее
ПСЛ 24-1,2-6-821 (1.432-5)
Панели стеновые Серия 1.432-5
  • Длина 5980 мм.
  • Ширина 240 мм.
  • Высота 1185 мм.
  • Вес 2400 кг.
  • Объем бетона 1,7 м3
  • Геометрический объем 1,7007 м3
Цена: 65960 руб.
Подробнее
ПСЛ 24-1,2-6-921 (1.432-5)
Панели стеновые Серия 1.432-5
  • Длина 5980 мм.
  • Ширина 240 мм.
  • Высота 1185 мм.
  • Вес 2400 кг.
  • Объем бетона 1,7 м3
  • Геометрический объем 1,7007 м3
Цена: 65960 руб.
Подробнее
ПСЛ 24-1,5-6-421 (1.432-5)
Панели стеновые Серия 1.432-5
  • Длина 5980 мм.
  • Ширина 240 мм.
  • Высота 1485 мм.
  • Вес 2900 кг.
  • Объем бетона 2,15 м3
  • Геометрический объем 2,1313 м3
Цена: 83420 руб.
Подробнее
ПСЛ 24-1,5-6-521 (1.432-5)
Панели стеновые Серия 1.432-5
  • Длина 5980 мм.
  • Ширина 240 мм.
  • Высота 1485 мм.
  • Вес 2900 кг.
  • Объем бетона 2,15 м3
  • Геометрический объем 2,1313 м3
Цена: 83420 руб.
Подробнее
ПСЛ 24-1,5-6-621 (1.432-5)
Панели стеновые Серия 1.432-5
  • Длина 5980 мм.
  • Ширина 240 мм.
  • Высота 1485 мм.
  • Вес 2900 кг.
  • Объем бетона 2,15 м3
  • Геометрический объем 2,1313 м3
Цена: 83420 руб.
Подробнее
ПСЛ 24-1,8-0,75-022 (1.432-5)
Панели стеновые Серия 1.432-5
  • Длина 700 мм.
  • Ширина 240 мм.
  • Высота 1785 мм.
  • Вес 400 кг.
  • Объем бетона 0,32 м3
  • Геометрический объем 0,2999 м3
Цена: 12416 руб.
Подробнее
ПСЛ 24-1,8-1,5-021 (1.432-5)
Панели стеновые Серия 1.432-5
  • Длина 1450 мм.
  • Ширина 240 мм.
  • Высота 1785 мм.
  • Вес 900 кг.
  • Объем бетона 0,65 м3
  • Геометрический объем 0,6212 м3
Цена: 25220 руб.
Подробнее
ПСЛ 24-1,8-1,5-022 (1.432-5)
Панели стеновые Серия 1.432-5
  • Длина 1450 мм.
  • Ширина 240 мм.
  • Высота 1785 мм.
  • Вес 900 кг.
  • Объем бетона 0,65 м3
  • Геометрический объем 0,6212 м3
Цена: 25220 руб.
Подробнее
ПСЛ 24-1,8-3-021 (1.432-5)
Панели стеновые Серия 1.432-5
  • Длина 2950 мм.
  • Ширина 240 мм.
  • Высота 1780 мм.
  • Вес 1800 кг.
  • Объем бетона 1,26 м3
  • Геометрический объем 1,2602 м3
Цена: 48888 руб.
Подробнее
ПСЛ 24-1,8-3-121 (1.432-5)
Панели стеновые Серия 1.432-5
  • Длина 2950 мм.
  • Ширина 240 мм.
  • Высота 1780 мм.
  • Вес 1800 кг.
  • Объем бетона 1,26 м3
  • Геометрический объем 1,2602 м3
Цена: 48888 руб.
Подробнее
ПСЛ 24-1,8-3-122 (1.432-5)
Панели стеновые Серия 1.432-5
  • Длина 2950 мм.
  • Ширина 240 мм.
  • Высота 1780 мм.
  • Вес 1800 кг.
  • Объем бетона 1,26 м3
  • Геометрический объем 1,2602 м3
Цена: 48888 руб.
Подробнее
ПСЛ 24-1,8-3-221 (1.432-5)
Панели стеновые Серия 1.432-5
  • Длина 2950 мм.
  • Ширина 240 мм.
  • Высота 1780 мм.
  • Вес 1800 кг.
  • Объем бетона 1,26 м3
  • Геометрический объем 1,2602 м3
Цена: 48888 руб.
Подробнее
ПСЛ 24-1,8-6-111 (1.432-5)
Панели стеновые Серия 1.432-5
  • Длина 5980 мм.
  • Ширина 240 мм.
  • Высота 1785 мм.
  • Вес 3500 кг.
  • Объем бетона 2,56 м3
  • Геометрический объем 2,5618 м3
Цена: 99328 руб.
Подробнее
ПСЛ 24-1,8-3-222 (1.432-5)
Панели стеновые Серия 1.432-5
  • Длина 2950 мм.
  • Ширина 240 мм.
  • Высота 1780 мм.
  • Вес 1800 кг.
  • Объем бетона 1,26 м3
  • Геометрический объем 1,2602 м3
Цена: 48888 руб.
Подробнее
ПСЛ 24-1,8-6-112 (1.432-5)
Панели стеновые Серия 1.432-5
  • Длина 5980 мм.
  • Ширина 240 мм.
  • Высота 1785 мм.
  • Вес 3500 кг.
  • Объем бетона 2,56 м3
  • Геометрический объем 2,5618 м3
Цена: 99328 руб.
Подробнее
ПСЛ 24-1,8-6-121 (1.432-5)
Панели стеновые Серия 1.432-5
  • Длина 5980 мм.
  • Ширина 240 мм.
  • Высота 1785 мм.
  • Вес 3500 кг.
  • Объем бетона 2,56 м3
  • Геометрический объем 2,5618 м3
Цена: 99328 руб.
Подробнее
ПСЛ 24-1,8-6-211 (1.432-5)
Панели стеновые Серия 1.432-5
  • Длина 5980 мм.
  • Ширина 240 мм.
  • Высота 1785 мм.
  • Вес 3500 кг.
  • Объем бетона 2,56 м3
  • Геометрический объем 2,5618 м3
Цена: 99328 руб.
Подробнее

Уведомление о файлах cookie

Мы используем файлы cookie для улучшения вашего опыта просмотра и анализа трафика. Нажимая "Принять все", вы соглашаетесь с нашей политикой конфиденциальности и политикой обработки файлов cookie.

MAX Дзен Телеграм Вконтакте vk